Exhibit 10.279
TWELFTH LEASE AMENDMENT
THIS TWELFTH LEASE AMENDMENT (this “Amendment”) is entered into by and between GREENWAY OFFICE CENTER L.L.C. (the “Landlord”) and PPD DEVELOPMENT, LP (the “Tenant”).
RECITALS:
A. Tenant (as successor to PPD Development, LLC) and Landlord (as successor to Greenway Properties, Inc. f/k/a Western Center Properties, Inc.) have entered into that certain Lease dated April 30, 2001, as amended on August 15, 2001, August 25, 2003, March 22, 2004, May 17, 2004, December 14, 2004, June 3, 2005, July 29, 2005, March 1, 2006, August 31, 2007, September 25, 2007, and March 31, 2008, with respect to certain space in the building located at 8551 Research Way, Middleton, Wisconsin (collectively, the “Lease”); and
B. Tenant desires to add Suite 140 and remove Suite 150 from the Premises, subject to the terms and conditions set forth herein.
AGREEMENT:
FOR GOOD AND VALUABLE CONSIDERATION, the receipt and sufficiency of which the parties hereby acknowledge, Landlord and Tenant agree as follows:
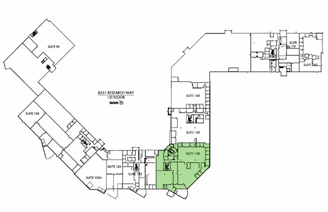
1. Addition of Suite 140. Effective February 1, 2011 (the “Suite 140 Expansion Date”), Suite 140, consisting of 20,646 rentable square feet (depicted on the attached Exhibit A-1) (“Suite 140”), shall be added to the Premises. As of the Suite 140 Expansion Date, Tenant shall pay to Landlord the following monthly base rent for Suite 140:
|   Period or Months of Term  | 
Annual Rate Per Square Foot  | 
Monthly Base Rent | ||||||
|   02/01/2011 to 07/31/2011  | 
$ | 14.75 | $ | 16,027.10 | * | |||
|   08/01/2011 to 02/29/2012  | 
$ | 14.75 | $ | 25,377.38 | ||||
|   03/01/2012 to 02/28/2013  | 
$ | 15.12 | $ | 26,011.81 | ||||
|   03/01/2013 to 02/28/2014  | 
$ | 15.50 | $ | 26,662.10 | ||||
|   03/01/2014 to 02/28/2015  | 
$ | 15.88 | $ | 27,328.66 | ||||
|   03/01/2015 to 02/29/2016  | 
$ | 16.28 | $ | 28,011.87 | ||||
|   03/01/2016 to 02/28/2017  | 
$ | 16.69 | $ | 28,712.17 | ||||
|   03/01/2017 to 02/28/2018  | 
$ | 17.11 | $ | 29,429.97 | ||||
|   03/01/2018 to 05/30/2018  | 
$ | 17.53 | $ | 30,165.72 | ||||
| * | From February 1, 2011 through July 31, 2011, Tenant’s monthly base rent for Suite 140 shall only be based on 13,039 square feet, even though Tenant is permitted to occupy all of Suite 140. | 
In accordance with the Lease, Tenant shall pay its prorated share of Common Area Expenses (as defined in Section 4.4 of the Lease) to Landlord. As of the Suite 140 Expansion Date, Tenant’s prorated share of Common Area Expenses shall be 10.82 percent.
2. Right to Reduce Premises. Tenant shall have the right to reduce the size of Suite 140 by 7,607 rentable square feet (depicted on the attached Exhibit A-2 as Suite 145) effective February 1, 2012 (“Reduction Date”), upon providing at least 150 days’ advance written notice to Landlord. Tenant will be responsible for all construction costs associated with the demising of the Suite 140 space from Suite 145 and Tenant shall have the option to complete such work using Tenant’s contractors that are reasonably acceptable to Landlord. Tenant’s rental obligations under the Lease shall be reduced to reflect the removal of Suite 145 from the Premises as of the Reduction Date regardless of whether the construction associated with the demise of Suite 140 from Suite 145 has been completed. In the event Tenant does not exercise its right to reduce Suite 140 as stated above, Landlord shall pay to Tenant the amount of $76,070.00 by February 1, 2012 (the “Suite 140 Payment”). Notwithstanding anything to the contrary in the Lease, in the event Tenant is entitled to the Suite 140 Payment and Landlord does not make the full Suite 140 Payment by February 1, 2010, Tenant may, in its sole discretion, after giving Landlord written notice of
such failure to make such payment and thirty (30) days to make the payment, credit the amount of the February 1, 2012 Payment that Landlord has failed to make against any monthly base rent or other rent obligation that may be payable under the Lease.
3. Termination of Suite 150. Effective February 1, 2011, Suite 150, consisting of 13,039 rentable square feet, shall be deleted from the Premises, without penalty or future obligation.
4. Miscellaneous. This Amendment may be executed in any number of counterparts, each of which shall be deemed an original. All capitalized terms not defined herein shall have the meaning ascribed to them in the Lease. Except as otherwise expressly stated in this Amendment, the terms and conditions of the Lease are hereby ratified and affirmed and shall remain in full force and effect. In the event of conflict between the provisions of this Amendment and the terms of the Lease, the provisions of this Amendment will control.
IN WITNESS WHEREOF, Landlord and Tenant have entered into this Amendment as of the date it is executed by both of the parties.
| TENANT: | LANDLORD: | |||||||||
| PPD DEVELOPMENT, LP | GREENWAY OFFICE CENTER L.L.C. | |||||||||
| By: PPD GP, LLC, Its General Partner | By: T. Wall Properties L.L.C., Its Manager | |||||||||
| By: | /s/ William J. Sharbaugh | By: | /s/ Randall J. Guenther | |||||||
| Name: | William J. Sharbaugh | Randall J. Guenther, | ||||||||
| Title: | Chief Operating Officer | President & Chief Financial Officer | ||||||||
| Date: | January 31, 2011 | Date: | February 10, 2011 | |||||||
2
EXHIBIT A-1
OUTLINE AND LOCATION OF SUITE 140
 
3
EXHIBIT A-2
OUTLINE AND LOCATION OF DEMISED SPACE IN SUITE 140
 
4