Exhibit 10.1
SUBLEASE
by and between
YALE UNIVERSITY
(Sublandlord)
and
ACHILLION PHARMACEUTICALS, INC.
(Subtenant)
Dated: September 13, 2019
Dated: September 13, 2019
Reference Data
| SUBLANDLORD: | Yale University | 
| 
 | 
 | 
| SUBLANDLORD'S ADDRESS: | c/o Office of University Properties, 433 Temple Street, New Haven, CT 06511 | 
| 
 | 
 | 
| SUBTENANT: | Achillion Pharmaceuticals, Inc. | 
| 
 | 
 | 
| SUBTENANT'S ADDRESS: | Achillion Pharmaceuticals, Inc. 1777 Sentry Parkway West VEVA Building 14, Suite 200 Blue Bell, PA 19422 | 
| 
 | 
 | 
| BUILDING: | 300 George Street, New Haven, Connecticut | 
| 
 | 
 | 
| PREMISES: | Approximately 22,497 rentable square feet of area in the Building as outlined on Exhibit A; | 
| 
 | 
 | 
| COMMENCEMENT DATE: | October 1, 2019 | 
| 
 | 
 | 
| TERM: | Two (2) years, expiring September 30, 2021 | 
| 
 | 
 | 
| LEASE YEAR: | Each twelve (12) month period commencing on the Commencement Date, provided that if the Commencement Date is sooner than September 30, 2019 or later than October 1, 2019, then the first Lease Year shall be the period from the Commencement Date through September 30, 2020 | 
| 
 | 
 | 
| ANNUAL RENT: | Lease Year 1: $528,679.50 per year Lease Year 2: $539,928.00 per year | 
The foregoing data is to be used for reference purposes only and not as a summary or interpretation of any of the terms and conditions of the Sublease.
-i-
TABLE OF CONTENTS
| 
 | 
 | Page | 
| 1. | PREMISES | 1 | 
| 2. | TERM | 1 | 
| 3. | RENT | 1 | 
| 4. | INTENTIONALLY OMITTED | 6 | 
| 5. | USE | 6 | 
| 6. | SERVICES | 6 | 
| 7. | UTILITIES | 7 | 
| 8. | INTERRUPTION OF SERVICES AND UTILITIES | 9 | 
| 9. | EXTRA SERVICES AND UTILITIES | 10 | 
| 10. | REPAIRS | 10 | 
| 11. | YIELD UP AND FIXTURES | 11 | 
| 12. | CHANGES AND ALTERATIONS | 12 | 
| 13. | INDEMNITY AND INSURANCE | 14 | 
| 14. | SUBLEASING AND ASSIGNMENT | 15 | 
| 15. | SUBLANDLORD’S RIGHTS IN A TENANT BANKRUPTCY | 18 | 
| 16. | COMPLIANCE WITH LAWS | 19 | 
| 17. | APPURTENANCES | 19 | 
| 18. | FIRE OR OTHER CASUALTY | 19 | 
| 19. | CONDEMNATION | 21 | 
| 20. | INTENTIONALLY OMITTED | 22 | 
| 21. | ACCESS | 22 | 
| 22. | LIABILITY | 22 | 
| 23. | DEFAULT | 23 | 
| 24. | BANKRUPTCY | 24 | 
| 25. | WAIVER OF SUBROGATION | 24 | 
| 26. | SUBORDINATION | 25 | 
| 27. | DEFINITION OF SUBLANDLORD | 25 | 
| 28. | BROKERAGE | 25 | 
| 29. | RULES AND REGULATIONS | 25 | 
| 30. | INTENTIONALLY OMITTED | 26 | 
| 31. | FORCE MAJEURE | 26 | 
| 32. | NOTICES | 26 | 
| 33. | SELF HELP | 27 | 
| 34. | ESTOPPEL CERTIFICATES | 27 | 
| 35. | MECHANICS LIENS | 28 | 
| 36. | CONDITION OF THE PREMISES | 28 | 
| 37. | PREJUDGMENT REMEDY, REDEMPTION, COUNTERCLAIM AND JURY TRIAL | 28 | 
| 38. | RECORDING | 29 | 
| 39. | PARTIAL INVALIDITY | 29 | 
| 40. | ENTIRE AGREEMENT | 29 | 
| 41. | HEIRS, ASSIGNS, NUMBER AND GENDER | 29 | 
| 42. | MORTGAGE PROTECTION | 30 | 
| 43. | INTENTIONALLY OMITTED | 30 | 
| 44. | HOLDING OVER | 30 | 
| 45. | INTENTIONALLY OMITTED | 30 | 
-ii-
| 
 | 
 | Page | 
| 46. | SHORING | 30 | 
| 47. | ENVIRONMENTAL CONDITION OF THE PROPERTY | 30 | 
| 48. | INTENTIONALLY OMITTED | 32 | 
| 49. | FF&E | 32 | 
| 50. | RENEWAL OPTION | 32 | 
| 51. | PRIME LEASE | 33 | 
| 52. | MISCELLANEOUS | 34 | 
EXHIBITS:
Exhibit A – Plan showing the Premises
Exhibit B – Subtenant’s Work
Exhibit C – Rules and Regulations
-iii-
THIS SUBLEASE made this 13th day of September, 2019 (the “Effective Date”), between Yale University, a specially chartered Connecticut corporation with an office c/o Office of University Properties, 433 Temple Street, New Haven, Connecticut 06511 (hereinafter called "Sublandlord"), and Achillion Pharmaceuticals, Inc., a Delaware corporation with offices at 300 George Street, New Haven, CT 06510 (hereinafter called "Subtenant").
W I T N E S S E T H :
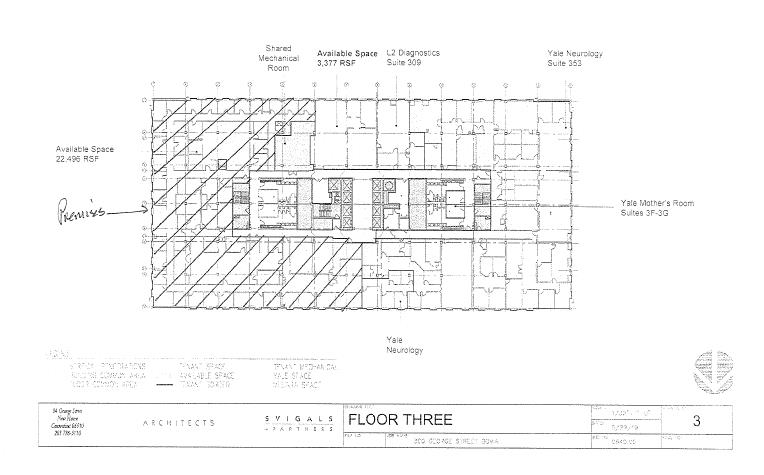
1.PREMISES. Sublandlord hereby Subleases to Subtenant and Subtenant hereby hires from Sublandlord, 22,497 rentable square feet of space located on the third (3rd) floor of the building known as 300 George Street, New Haven, Connecticut (hereinafter referred to as the "Building"), as indicated on the plan attached hereto as Exhibit A (hereinafter referred to as the "Premises").
2.TERM. The term of this Sublease shall commence on October 1, 2019 (the "Commencement Date"). Sublandlord represents to Subtenant that Sublandlord has not created, brought or introduced any Hazardous Materials (as defined below) in the Premises, but Sublandlord has no knowledge of the existence or non-existence of Hazardous Materials in the Premises otherwise. The term ending date shall be September 30, 2021. The Commencement Date of this Sublease and the obligation of Subtenant to pay rent, additional rent and all other charges hereunder shall not be delayed or postponed by reason of any delay by Subtenant in performing changes or alterations in the Premises to be performed by Subtenant. In the event the term shall commence on a day other than the first day of a month, then the rent shall be immediately paid for such partial month prorated on the basis of a thirty (30) day month. From and following the Effective Date, Subtenant shall have access to the Premises to perform Subtenant’s Work (as defined below), pursuant to the Access Agreement (as defined below). Notwithstanding anything to the contrary contained herein, such Subtenant’s early access shall not be deemed to be Subtenant’s acceptance or occupancy of the Premises, provided that all of the terms and conditions of this Sublease, other than the obligation to pay annual rent and additional rent, shall apply to Subtenant during such period of early access.
3.RENT. Annual rent shall be as follows:
(i)Lease Year 1: $528,679.50 per year ($23.50 per rentable square foot), payable in monthly installments of $44,056.63.
(ii)Lease Year 2: $539,928.00 per year ($24.00 per rentable square foot), payable in monthly installments of $44,994.00.
Subtenant covenants and agrees to pay to Sublandlord the rent at YSM Facilities, Yale University, P.O. Box 209038, New Haven, CT 06520-8038, or at such other place as Sublandlord may designate in writing. Except as otherwise set forth herein, rent shall be payable without notice or demand, without abatement, deduction or setoff. Rent for any portion of a month shall be pro-rated. Annual rent shall be payable in monthly installments on the first day of each month in advance. All amounts (other than annual rent) payable to Sublandlord by Subtenant under this Sublease shall be deemed additional rent and Sublandlord shall have the same rights and remedies by reason of non-payment of such additional rent as if Subtenant had
-1-
failed to pay an installment of annual rent. Sublandlord shall be and shall remain responsible under the Prime Lease (as defined below) for any and all payments owed to Landlord (as defined below), and Subtenant shall have no responsibility whatsoever for making any payment directly to Landlord under the Prime Lease or otherwise related to Subtenant’s sublease of the Premises, Subtenant’s sole and exclusive financial responsibility related to Subtenant’s sublease of the Premises being to Sublandlord as expressly set forth in this Sublease.
In addition to the annual rental payable under this Sublease as set forth above, Subtenant shall pay to Sublandlord, the following:
(a)A pro rata percentage of all Operating Expenses (as hereinafter defined) during the term of this Sublease. The pro rata percentage applicable to this Sublease is four and thirty-four one hundredths percent (4.34%) of the Building.
(b)A pro rata percentage of all Real Estate Taxes levied upon the Building, applicable to and due and payable during the term of this Sublease. The pro rata percentage applicable to this Sublease is four and thirty-four one hundredths percent (4.34%) of the Building.
"Operating Expenses" shall mean those Expenses that Sublandlord is required to pay to Landlord under the Prime Lease. Sublandlord represents and warrants that the definition of Expenses contained in the Prime Lease is as follows:
“all costs and expenses actually incurred in each calendar year in connection with operating, maintaining, repairing, and managing the Building and the Property including, but not limited to:
(i)Properly allocated labor costs, including wages, salaries, social security and employment taxes, medical and other types of insurance, uniforms, training, and retirement and pension plans.
(ii)Management fees (not to exceed five percent (5%) of gross Rent collections), the cost of equipping and maintaining a management office, accounting and bookkeeping services, legal fees not attributable to leasing or collection activity, and other administrative costs. Landlord, by itself or through an affiliate, shall have the right to directly perform or provide any services under this Lease (including management services), provided that the cost of any such services shall not exceed the cost that would have been incurred had Landlord entered into an arms-length contract for such services with an unaffiliated entity of comparable skill and experience.
(iii)The cost of services, including amounts paid to service providers and independent contractors and the rental and purchase cost of parts, suppliers, tools and equipment.
(iv)Premiums and deductibles paid by Landlord for insurance, including workers compensation, fire and extended coverage, earthquake, general liability, rental loss, environmental, elevator, boiler and other insurance customarily carried from time to time by owners of comparable buildings.
-2-
(v)Electrical Costs (defined below) and charges for water, gas, steam and sewer, but excluding those charges for utilities delivered to leased or leasable areas of the Building. "Electrical Costs" means: (a) charges paid by Landlord for electricity; and (b) costs incurred in connection with an energy management program for the Property. Electrical Costs shall be adjusted as follows: (i) amounts received by Landlord as reimbursement for above standard electrical consumption shall be deducted from Electrical Costs; (ii) the cost of electricity incurred to provide overtime HVAC to specific tenants (as reasonably estimated by Landlord) shall be deducted from Electrical Costs; and (iii) if Tenant is billed directly for the cost of building standard electricity to the Premises as a separate charge in addition to Base Rent, the cost of electricity to individual tenant spaces in the Building shall be deducted from Electrical Costs.
(vi)The cost of all window and other cleaning and janitorial, snow and ice removal and security services.
(vii)The cost of exterior and interior plantings and landscapings.
(viii)The amortized cost of capital improvements (as distinguished from replacement parts or components installed in the ordinary course of business) and alterations and improvements made to the Property which are: (a) performed primarily to reduce operating expenses costs or otherwise improve the operating efficiency of the Property; or (b) required to comply with any Laws that, whether newly enacted or by amendment, first become effective after the Commencement Date. The cost of capital improvements shall be amortized by Landlord over the useful life as reasonably determined by the Internal Revenue Service, provided that in the case of the cost of capital improvements under (a) above, the annual amount that is includable in Expenses shall not exceed the amount of the savings achieved by such improvements, as reasonably determined by Landlord, for the Property as a whole. The amortized cost of capital improvements shall include actual or imputed interest at the rate that Landlord would reasonably be required to pay to finance the cost of the capital improvement.
If Landlord incurs Expenses for the Property together with one or more other buildings or properties, whether pursuant to a reciprocal easement agreement, common area agreement or otherwise, the shared costs and expenses shall be equitable prorated and apportioned between the Property and the other buildings or properties.
Expenses shall not include: the cost of capital improvements (except as set forth above); depreciation; interest (except as provided above for the amortization of capital improvements); principal payments of mortgage and other non-operating debts of Landlord; the cost of repairs or other work to the extent Landlord is reimbursed by insurance or condemnation proceeds; costs in connection with leasing space in the Building, including brokerage commissions; lease concessions, including rental abatements and construction allowances granted to specific tenants; costs incurred in connection with the sale, financing or refinancing of the Building; fines, interest and penalties incurred due to the late payment of Taxes or Expenses; expenses associated with the creation and operation of the entity which constitutes Landlord; any penalties or damages that Landlord pays to Tenant under this Lease or to other tenants in the Building under their respective leases; any payments to Landlord or affiliates of Landlord for services in the Building to the extent same exceeds the costs of such services if rendered by unaffiliated companies on a competitive basis; expenses incurred by Landlord to resolve disputes, enforce or negotiate lease terms with prospective or existing tenants or in connection with any financing, sale or
-3-
syndication of the Property; expenses incurred for the repair, maintenance or operation of any pay parking garage, including but not limited to salaries and benefits of any attendants, electricity, insurance and taxes; expenses for the replacement of any item covered under warranty; cost to correct any penalty or fine incurred by Landlord due to Landlord's violation of any federal, state or local law or regulation and any interest or penalties due for late payment by Landlord of any of the Expenses; cost of repairs necessitated by Landlord's negligence or willful misconduct; cost of correcting any latent defects or original design defects in the Building construction, materials or equipment; expenses for any item or service, for the leased or leasable portions of the Building, which Tenant pays directly to a third party or separately reimburses Landlord with respect to the Premises; expenses for any item or service not provided to Tenant, but provided exclusively to certain other tenants in the Building; Landlord's general corporate overhead and administrative expenses; reserves; costs of sculptures, paintings and other objects of art; costs associated with the removal of substances considered to be detrimental to the environment or the health of occupants of the Building; and to the extent that the cost of steam or any other utility supplied to the Premises is billed directly to Tenant (by Landlord or by the utility provider), whether pursuant to Section 10(h) or otherwise, then the cost of such utility to individual tenant spaces in the Building shall be deducted from Expenses.
If the Building is not at least 95% occupied during any calendar year or if Landlord is not supplying services to at least 95% of the total Rentable Square Footage of the Building at any time during a calendar year, Expenses shall be determined as if the Building has been 95% occupied and Landlord had been supplying service to 95% of the Rentable Square Footage of the Building during that calendar year. The only costs that shall be adjusted in this manner shall be variable Expenses where the amount of such expense is directly related to the level of occupancy or the square footage area receiving a particular service. Fixed costs shall at all times be allocated as though the Property were 100% rented and occupied. (As an example of a gross-up: Assume (1) the Property consists only of 4 equal tenant spaces, all occupied, each of which then has a pro rata share of expenses of 25%; and (ii) the Landlord has life safety inspections performed in each space at a cost of $100.00 per space — for a total of $400.00 for all (it is a variable cost, not a fixed cost for the Building). Assume then that 2 tenants vacate and Landlord then conducts life safety only in the 2 remaining occupied spaces — still at $100.00 per space. Landlord's cost is now $200.00. If one tenant paid its pro rata share of 25%, it would pay only $50.00 and Landlord would be unable to recoup all of its cost. Landlord shall then "gross up" the cost to be $400.00 and the tenant will pay its 25% of such grossed up cost. Landlord shall not utilize the foregoing "gross-up" provision to recover fixed costs related to unleased space.” To the extent that Sublandlord, as tenant under the Prime Lease, audits Expenses under the Prime Lease, Subtenant will receive the benefit of any reduction in Expenses, and Sublandlord will share a copy of any such audit results, subject to Subtenant entering into a commercially reasonable confidentiality agreement with respect thereto.
Commencing with the Commencement Date for purposes of payments under subparagraphs (a) and (b) above Sublandlord shall provide Subtenant with estimates of the amounts which are payable thereunder, as received from Landlord under the Prime Lease. The amounts of said estimates shall be divided into equal monthly payments which shall be paid by Subtenant in advance, commencing on the Commencement Date, along with Subtenant's regular monthly rental payment. Sublandlord shall have the right to adjust such estimated amounts from time to time.
-4-
Within thirty (30) days from the date Sublandlord presents each annual bill to Subtenant for payments under subparagraphs (a) and (b), Subtenant will pay to Sublandlord in a lump sum that amount by which Subtenant's actual pro rata share exceeds the amount of Subtenant's estimated payments theretofore. Should the amount of Subtenant's estimated payments exceed Subtenant's pro rata share, then Sublandlord shall, at Sublandlord’s option, either refund such overpayment to Subtenant within said thirty (30) day period or credit such overpayment against subsequent payments of Operating Expenses and Real Estate Taxes that are due from Subtenant hereunder. A bill for Operating Expenses based on the bill for Expenses received by Sublandlord from Landlord and a real estate tax bill (or copy thereof) submitted by Sublandlord to Subtenant shall be sufficient evidence of the amount of Operating Expenses and Real Estate Taxes with respect to the property and improvements thereon. Subtenant's pro rata share of such payments hereunder shall be adjusted in the first and last years of the Sublease to take into consideration the fact that Subtenant may only be in possession for a partial year.
"Real Estate Taxes" shall mean and include the following (which Sublandlord represents and warrants is the definition of Taxes in the Prime Lease: “ "Taxes" shall mean: (1) all real estate taxes and other assessments on the Building and/or Property, including, but not limited to, assessments for special improvement districts and building improvement districts, taxes and assessments levied in substitution or supplementation in whole or in part of any such taxes and assessments; (2) all personal property taxes for property that is owned by Landlord and used in connection with the operation, maintenance and repair of the Property; and (3) all reasonable costs and fees incurred in connection with seeking reductions in any tax liabilities described in (1) and (2), including, without limitation, any costs incurred by Landlord for compliance, review and appeal of tax liabilities. Without limitation, Taxes shall not include any (i) income, capital levy, franchise, capital stock, gift, estate or inheritance tax; or (ii) taxes arising solely from tenant improvement work which is other than Landlord's Base Building Work, done on another tenant's premises and which exceeds a building standard build-out. If an assessment is payable in installments, Taxes for the year shall include the amount of the installment and any interest due and payable during the year, except for any interest due to Landlord's late payment of Taxes. For all other real estate taxes, Taxes for that year shall, at Landlord's election, include either the amount accrued, assessed or otherwise improved for the year or the amount due and payable for that year, provided that Landlord's election shall be applied consistently throughout the Term. If a change in Taxes is obtained for any year of the Term during which Tenant paid Tenant's Pro Rata Share of any Taxes, then Taxes for that year will be retroactively adjusted and Landlord shall provide Tenant with a refund, if any, based on the adjustment. Tenant shall pay Landlord the amount of Tenant's Pro Rata Share of any such increase in the Taxes within thirty (30) days after Tenant's receipt of a statement from Landlord.”
Subtenant shall pay for all ad valorem taxes on its personal property, if any, and on the value of leasehold improvements installed by Subtenant to the extent that same exceed building standard leasehold improvements (as determined by Sublandlord in its reasonable discretion), but only to the extent that the City of New Haven Tax Assessor attributes an increase in Real Estate Taxes to such above building standard leasehold improvements.
-5-
If Sublandlord shall receive a refund of Real Estate Taxes for any period during the term of this Sublease and applicable to the term of this Sublease, then Sublandlord shall credit to Subtenant the pro rata percentage of Real Estate Taxes paid by Subtenant as set forth above, to the extent Subtenant shall have borne any portion of such taxes so refunded, after deducting from any such taxes so refunded the fees and expenses incurred by Sublandlord in obtaining such refund.
Rent payable under this Paragraph shall be apportioned for any fraction of a year at the end of the term of this Sublease.
4.INTENTIONALLY OMITTED.
5.USE.
(a)The Premises shall be used for Subtenant's office purposes, as a research laboratory and all ancillary uses related thereto (collectively, the “Use”) and for no other purpose whatsoever.
(b)Subtenant shall not at any time use or occupy, or suffer or permit anyone to use or occupy, the Premises, or do or knowingly permit anything to be done in the Premises, in any manner (i) which violates the Certificate of Occupancy for the Premises or for the Building; (ii) which causes or is liable to cause injury to the Building or any equipment, facilities or systems therein; (iii) which constitutes a violation of the laws and requirements of any public authorities or the requirements of insurance bodies; (iv) which impairs or tends to impair the character, reputation or appearance of the Building as a first-class office Building; (v) which impairs or tends to impair the proper and economic maintenance, operation and repair of the Building and/or its equipment, facilities or systems; or (vi) which annoys or inconveniences or tends to annoy or inconvenience other tenants or occupants of the Building. Sublandlord acknowledges and agrees that the Use does not, per se, violate the provisions of this Section.
6.SERVICES. Sublandlord shall furnish the services to Subtenant which are furnished by Landlord to Sublandlord pursuant to the Prime Lease. Sublandlord represents and warrants that the Prime Lease requires Landlord to provide the following services, which are hereby incorporated into this Sublease to the extent applicable to the Premises and/or Subtenant’s use and enjoyment thereof:
“(1) water service for use in lavatories on each floor on which the Premises are located; (2) domestic cold water through the base Building system described in the Base Building MEP (as defined in Section 31 hereof); (3) condenser-water, pre-conditioned and delivered through the condenser loop as described in the Base Building MEP to supply the Tenant specific heating, ventilating and air-conditioning systems serving areas other than the Laboratory Space within the Premises and the refrigeration systems within the Laboratory Space. Tenant, upon such advance notice as is reasonably required by Landlord, shall have the right to receive such service in the areas other than Laboratory Space during hours other than Normal Business Hours. The condenser water shall be provided to the Laboratory Space 24 hours a day, 7 days a week, without Tenant requesting the delivery of the same for after hours. Tenant shall pay Landlord for all such services in accordance with the provisions of Section 10 of this Lease; (4) tempered fresh air delivered through the base Building system described in the Base Building MEP. Tenant, upon such advance notice as is reasonably required by Landlord, shall have the right to received tempered fresh air
-6-
service in the areas other than Laboratory Space during hours other than Normal Business Hours. The tempered fresh air service shall be provided to the Laboratory Space 24 hours a day, 7 days a week, without Tenant requesting the delivery of the same for after hours. Tenant shall pay Landlord for all such services in accordance with the provisions of this Section and Section 10 of this Lease; (5) drainage system for domestic water and sanitary waste at locations indicated in the Base Building MEP; (6) a back-up generator providing for emergency lighting of Common Areas; (7) Maintenance and repair of the Premises and Property, to the extent and as described in Section 9(b); (8) Elevator service (at least 1 elevator shall be operational at all times); (9) Electricity to the Premises, in accordance with and subject to the terms and conditions in Section 10 of this Lease; (10) access to the Premises 24 hours a day, 7 days a week (11) Security for the Building (which shall include security guards and/or electronic monitoring); and (12) such other services as Landlord reasonably determines are necessary or appropriate for the Property.”
7.UTILITIES. Sublandlord shall furnish to Subtenant the utilities which are furnished by Landlord to Sublandlord pursuant to the Prime Lease. Sublandlord represents and warrants that the Prime Lease contains the following provisions relating to the payment for utilities, which are hereby incorporated into this Sublease to the extent applicable to the Premises and/or Subtenant’s use and enjoyment thereof:
“(a)From and after the Commencement Date, Tenant shall pay to Landlord the cost of all electricity, gas, water and all other utilities used or consumed at the Premises, as Additional Rent.
(b)The Tenant shall pay for electric consumption for the Premises in equal monthly installments, in advance, together with Tenant's monthly payment of Base Rent. All of the Spaces leased under the Prior Leases have been provided with check meters to measure the consumption of electricity at the Premises. The cost of electricity shall be determined on the basis of the rate charged for such load and usage in the service classification in effect from time to time pursuant to which Landlord then purchases electric current for the entire Building (without any mark up), net of all discounts and rebates received by Landlord and applicable to the Building, and the usage as measured by the check meters. The Premises Electrical Charge shall be reconciled with the actual costs approximately every 6 months during the first 12 month period following the Commencement Date and not less than annually thereafter. The Premises Electrical Charge shall be adjusted, if necessary, from time to time, to appropriately reflect the cost of electricity delivered to and consumed at the Premises.
(c)Except, where applicable, for Grandfathered wsf Levels, the use of electrical service shall not exceed, either in voltage, rated capacity, or overall load the Base Building MEP, as the same may be increased by any Significant Capital Expense. If Tenant requests permission to consume excess electrical service, Landlord may refuse to consent or may condition consent upon conditions that Landlord reasonably elects (including, without limitation, the installation of utility service upgrades, meters, submeters, air handlers or cooling units), and the additional usage (to the extent permitted by Law), installation and maintenance costs shall be paid by Tenant.
-7-
(d)Electrical service to the Building may be furnished by one or more unaffiliated companies providing electrical generation, transmission and distribution services, and the cost of electricity may consist of several different components or separate charges for such services, such as generation, distribution and stranded cost charges. Landlord shall have the exclusive right to select any company providing electrical service to the Building, to aggregate the electrical service for the Building and Premises with other buildings, to purchase electricity through a broker and/or buyers group and to change the providers and manner of purchasing electricity. In the event Landlord or any affiliate of Landlord generates or co-generates electricity and supplies such electricity to the Building, then the rate charged by Landlord for such electricity shall not exceed the rates charged for comparable electric service by unaffiliated providers.
(e)If either the quantity or character of utility service is changed by the public utility corporation supplying such service to the Building or the Premises is no longer available or suitable for Tenant's requirements, no such change, unavailability or unsuitability shall constitute an actual or constructive eviction, in whole or in part, or entitle Tenant to any abatement or diminution of rent, or relieve Tenant from any of its obligations under this Lease, or impose any liability upon Landlord or Landlord's agents, except as may be otherwise specifically set forth herein. Notwithstanding the foregoing, Landlord covenants to use commercially reasonable efforts to obtain an alternate or substitute supplier of services.
(f)The water charge shall be payable in equal monthly installments, in advance, together with Tenant's monthly payment of Base Rent. Landlord shall, at Landlord's cost, install a flow meter and thereby measure the consumption of water for all purposes at the Premises. Tenant, at Tenant's sole cost and expense, shall keep any such meter and any such installation equipment in good working order and repair. The cost for water shall be determined on the basis of the cost to Landlord for water in effect from time to time from unaffiliated provider(s) (without any mark up), pursuant to which Landlord shall then have purchased water for the entire Building, net of all discounts and rebates received by Landlord and applicable to the Building. The water charge shall be reconciled with the actual cost approximately every six months during the first twelve-month period following the Commencement Date and not less than annually thereafter. The water charge shall be adjusted, if necessary, from time to time to appropriately reflect the cost of water delivered to and consumed at the Premises.
(g)The consumption and the delivery to the Premises, of heating, ventilation and air-conditioning will be separately monitored and the actual out-of-pocket costs incurred by Landlord, net of all discounts and rebates received by Landlord, in connection therewith shall, in accordance with provisions of this Lease, be billed to Tenant through the Building management system and payable by Tenant monthly, together with Tenant's payment of Base Rent.”
Subtenant shall be responsible, at its cost, for cleaning the Premises. Subtenant shall pay for the cost of gas, heat, air conditioning, water and sewer usage to Sublandlord, on a monthly basis, in a pro-rated amount based on the number of rentable square feet in the Premises compared to the total number of rentable square feet in the larger premises for which Sublandlord is paying for each such utility. Such payments shall be due within thirty (30) days after receipt of invoices from Sublandlord.
-8-
Subtenant shall pay Sublandlord for the cost of electricity consumed in the Premises in a pro-rated amount based on the number of rentable square feet in the Premises compared to the total number of rentable square feet in the larger premises for which Sublandlord is paying for such utility. Such payments shall be in monthly estimated amounts due on the first day of each month and shall be subject to annual reconciliation, consistent with the reconciliation procedures under the Prime Lease. In no event shall Subtenant be allowed to place a load on the electrical system that exceeds the safe capacity thereof.
Notwithstanding anything to the contrary herein, in no event shall there be any duplication as between amounts owed by Subtenant under this Section 7 and amounts owed by Subtenant under other Sections of this Sublease, including without limitation Section 3 hereof.
8.INTERRUPTION OF SERVICES AND UTILITIES. With respect to interruption of services and utilities to be provided pursuant to this Sublease, Subtenant shall have the remedies available to Sublandlord, as tenant, under the Prime Lease. In connection therewith, Sublandlord represents and warrants that the following provision is in the Prime Lease relating to interruption of services and utilities, which is hereby incorporated into this Sublease to the extent applicable to the Premises and/or Subtenant’s use and enjoyment thereof:
“Except as otherwise explicitly set forth herein, Landlord's failure to furnish, or any interruption or termination of, services or utilities due to the application of Laws, the failure of any equipment, the performance of repairs, improvements or alterations, or the occurrence of any event or cause beyond the reasonable control of Landlord (a "Service Failure") shall not render Landlord liable to Tenant, constitute a constructive eviction of Tenant, give rise to an abatement of Rent, nor relieve Tenant from the obligation to fulfill any covenant or agreement. In no event shall Landlord be liable to Tenant for any loss or damage, including the theft of Tenant's Property (defined in Article 15), arising out of or in connection with the failure of any security services, personnel or equipment. Notwithstanding anything to the contrary contained in this Section 7 or elsewhere in this Lease, in the event there is an interruption, curtailment or suspension of a Building System ("Service Interruption") and (i) if such Service Interruption shall continue for more than five (5) consecutive days; (ii) such Service Interruption shall materially affect the operation of Tenant's business in the Premises and Tenant's back-up generator (if any), has not functioned in such a manner as to permit Tenant to conduct business in a customary manner within all or the affected material part of the Premises and; (iii) such Service Interruption has not been caused by an act of Tenant or Tenant's servants, employees or contractors, then, Tenant shall be entitled to an equitable abatement of Base Rent and Additional Rent (based on the square footage of the Premises subject to the Service Interruption and the extent of the affect on Tenant's business) beginning on the sixth (6th) consecutive day of such Service Interruption and ending on the date such Service Interruption ceases. Similarly, if during the course of any particular Lease Year, there have occurred days of Service Interruptions which have been of a duration, in each instance, of less than five (5) consecutive days (and, therefore, the provisions of the preceding sentence have been inapplicable), but which, in the aggregate, have totaled thirty (30) days, then, Tenant shall be entitled to an abatement of Base Rent and Additional Rent (based on the square footage of the Premises subject to the Service Interruption) for each day thereafter on which a Service Interruption occurs and ending upon the date each such Service Interruption ceases. Landlord shall promptly take all action necessary to remedy the same and agrees to perform the work and repairs required to do so in a manner which will minimize, to the extent reasonably possible, interference with the conduct by Tenant of its business in Premises.”
-9-
Sublandlord shall not be liable for the interruption, curtailment, stoppage or suspension of services and utilities to be furnished to the Premises, provided that to the extent that Sublandlord is entitled to an abatement of rent under the Prime Lease with respect to the Premises under the provision cited above, Subtenant shall be entitled to the same abatement of rent.
9.EXTRA SERVICES AND UTILITIES. Subtenant shall reimburse Sublandlord for any requested additional services at the same rates charged to Sublandlord, as tenant, pursuant to the Prime Lease. In connection therewith, Sublandlord represents that the Prime Lease contains the following provisions relating to extra services and utilities, which is hereby incorporated into this Sublease to the extent applicable to the Premises and/or Subtenant’s use and enjoyment thereof:
“Notwithstanding the foregoing, if Tenant requests any additional or special services from Landlord, then Tenant shall pay to Landlord the standard reasonable charge for such service(s) (which standard charge shall reflect Landlord's costs incurred in providing such service(s)) with such after-hours charge being equitably prorated among all tenants (including Tenant) utilizing such services.”
Notwithstanding anything to the contrary herein, in no event shall there be any duplication as between amounts owed by Subtenant under this Section 9 and amounts owed by Subtenant under other Sections of this Sublease, including without limitation Section 3 hereof.
10.REPAIRS.
(a)Sublandlord shall use commercially reasonable efforts to obtain and/or have performed for Subtenant any and all services, repairs, alterations and other similar obligations which are the obligation of Landlord under the Prime Lease. In connection therewith, Sublandlord represents and warrants that the following sets forth Landlord’s repair obligations under the Prime Lease, which provision is hereby incorporated into this Sublease:
“Landlord shall maintain the Building as a Class A office and laboratory building (with reference to other Class A office buildings in the Market (as defined in Section 4(g)) and thereafter maintain the Building as such. The costs and expenses of doing so shall be deemed to be "Expenses", subject to the provisions of Section 4 of this Lease. During the entire Term of the Lease, Landlord shall keep and maintain in good repair and working order and make repairs to and perform maintenance upon: (1) structural elements of the Building; (2) the base Building Systems including the mechanical (including HVAC), electrical, plumbing and fire/life safety systems serving the Building in general but excluding those for which the Tenant is responsible, such as the tie-ins or point of connection with those systems which are located within or exclusively serving the Premises; (3) Common Areas; (4) the roof of the Building, including the roof membrane; (5) exterior windows of and all other exterior portions of the Building and common area doors; and (6) elevators serving the Building. Landlord shall promptly make repairs (considering the nature and urgency of the repair) for which Landlord is responsible.”
-10-
Subtenant shall maintain and repair the interior of the Premises and keep the same in a neat and orderly condition and Subtenant shall pay to Sublandlord all reasonable out-of-pocket costs incurred by Sublandlord in making any repairs necessitated by Subtenant's, its servants', agents', and employees' negligence as additional rent, payable within thirty (30) days from the date of rendition of a bill therefor. Subtenant covenants that it shall not make any repairs or in any way tamper with the heating, air-conditioning, ventilating, electrical, plumbing or mechanical systems of the Building outside of the Premises.
(b)Subtenant shall not place a load upon any floor of the Premises which exceeds the load per square foot which such floor was designed to carry and which is allowed by law.
(c)Business machines and mechanical equipment belonging to Subtenant which cause noise or vibration that may be transmitted to the structure of the Building or to the Premises to such a degree as to be objectionable to Sublandlord shall be placed and maintained by the party owning the machines or equipment at such party's expense, in setting of cork, rubber or spring type vibration eliminators sufficient to eliminate noise or vibration. In the event of any violation, Subtenant shall be obligated to make such repairs to the Premises and Building, resulting therefrom and to take all steps reasonably necessary to eliminate such noise or vibration.
(d)Except as otherwise expressly provided in this Sublease (including, without limitation, the incorporated portions of the Prime Lease), Sublandlord shall have no liability to Subtenant nor shall Subtenant's covenants and obligations under this Sublease be reduced or abated in any manner whatsoever by reason of any inconvenience, annoyance, interruption or injury to business arising from Sublandlord's making any repairs or changes which Sublandlord is required or permitted by this Sublease, or required by law, to make in or to any portion of the Building or the Premises, or in or to the fixtures, equipment or appurtenances of the Building of the Premises.
11.YIELD UP AND FIXTURES. Subtenant shall at the termination of this Sublease peaceably yield up the Premises and Subtenant's improvements and permitted Alterations (as defined below) in good order, repair and condition, fire, casualty and condemnation, and reasonable use and wear excepted, provided that if required by Sublandlord (pursuant to, and in accordance with, the terms and conditions of this Sublease), any Alterations made by Subtenant, including without limitation, any telephone or data wiring installed by Subtenant, shall be removed by Subtenant prior to the termination of this Sublease, in which event the Premises shall be restored to substantially their condition prior to the Alteration. If, when Subtenant requests Sublandlord’s consent to any Alterations, Subtenant requests, in all capital bold letters, that Sublandlord notify Subtenant, when it approves the Alterations, as to whether any of such Alterations will need to be removed, then Sublandlord will so advise Subtenant when it approves the Alterations, and if Sublandlord does not so advise Subtenant, then removal shall be required. Subtenant shall before the termination of this Sublease remove all furniture, fixtures, and personal property of Subtenant from the Premises and Subtenant shall repair any damage to the Premises or the common areas proximately caused by such removal including the filling in of all holes, and the patching or replacement of all floor areas or ceilings damaged by such removal.
-11-
(a)Subtenant shall not make any changes or alterations ("Alterations") in or to the Premises without Sublandlord's prior written consent (not to be unreasonably withheld, conditioned or delayed with regard to Alterations that do not affect the structure of the Building or Building systems outside of the Premises). Any approved Alterations shall be made on the following conditions: (i) before proceeding with any Alteration, Subtenant shall submit to Sublandlord for Sublandlord's approval plans and specifications for the work to be done, and Subtenant shall not proceed with such work until it obtains Sublandlord's approval, which approval shall not be unreasonably withheld, conditioned or delayed with regard to Alterations that do not affect the structure of the Building or Building systems outside of the Premises; (ii) Subtenant shall pay to Sublandlord, within fifteen (15) days following Sublandlord’s written notice, the reasonable out-of-pocket cost and expense actually incurred by Sublandlord in (A) reviewing said plans and specifications and (B) inspecting the Alterations to determine whether the same are being performed in accordance with the approved plans and specifications and all laws and requirements of public authorities, including, without limitation, the fees of any architect or engineer employed by Sublandlord for such purpose; (iii) Subtenant shall fully and promptly comply with and observe the applicable rules and regulations of Sublandlord then in force with respect to the making of Alterations; (iv) except for costs relating to Sublandlord’s negligence or willful misconduct, the entire cost of the Alterations shall be borne by Subtenant; and (v) Subtenant agrees that any review or approval by Sublandlord of any plans or specifications with respect to any Alterations is solely for Sublandlord's benefit, and without any representation or warranty whatsoever to Subtenant with respect to the adequacy, correctness or efficiency thereof or otherwise.
Notwithstanding anything to the contrary contained herein, Sublandlord agrees that its consent shall not be required to the extent that Landlord’s consent is not required under the Prime Lease. In connection therewith, Landlord represents that the following provision is in the Prime Lease and is hereby incorporated into this Sublease:
“Landlord's consent shall not be required for any Alteration that satisfies all of the following criteria (a "Cosmetic Alteration"): (1) is of a cosmetic nature such as painting, wallpapering, hanging pictures and/or installing carpeting; (2) is not readily visible from the streets around the Premises or Building; (3) will not affect the systems or structure of the Building; and (4) does not require work to be performed inside the walls or at, above or to the ceiling of the Premises.”
(b)Subtenant, at its expense, shall obtain all necessary governmental permits and certificates for the commencement and prosecution of Alterations and for final approval thereof upon completion, and shall cause Alterations to be performed in compliance therewith and with all applicable law and requirements of public authorities and with all applicable requirements of insurance bodies. Alterations shall be diligently performed in a good and workmanlike manner, using new materials and equipment at least equal in quality and class to the better of (i) the original installations of the Building, or (ii) the then standards for the Building established by Landlord. Alterations shall be performed by contractors first approved by Sublandlord (not to be unreasonably withheld, conditioned or delayed); provided, however, that any Alterations in or to the mechanical, electrical, sanitary, heating, ventilating, air-conditioning or other systems of the Building shall be performed only by contractors designated by Sublandlord. Alterations shall be performed in such manner as not to unreasonably interfere
-12-
with or delay and as not to impose an additional expense upon Sublandlord in the construction, maintenance, repair or operation of the larger premises leased by Sublandlord; and if any such additional expense shall be incurred by Sublandlord as a proximate result of Subtenant's performance of any Alterations, Subtenant shall pay such additional expense within fifteen (15) days following Sublandlord’s written notice. Throughout the performance of Alterations, Subtenant, at its expense, shall carry, or cause to be carried, worker's compensation insurance in statutory limits, employer's liability in a minimum amount of One Hundred Thousand and 00/100 Dollars ($100,000.00), comprehensive general liability insurance, including completed operation endorsement, and broad form general liability endorsement and comprehensive auto liability, including owned, non-owned and hired vehicles, for any occurrence in or about the Building, under which Sublandlord shall be named as an additional insured, in such limits as Sublandlord may reasonably require, with insurers reasonably satisfactory to Sublandlord. Subtenant shall furnish Sublandlord with reasonably satisfactory evidence that such insurance is in effect at or before the commencement of Alterations and, on request, at reasonable intervals thereafter during the continuance of Alterations. All insurance required by this subparagraph 12(b) must name Sublandlord and Landlord as additional insureds. If any Alterations shall involve the removal of any fixtures, equipment or other property in the Premises which are not Subtenant's Property, such fixtures, equipment or other property shall be promptly replaced at Subtenant's expense with new fixtures, equipment or other property of like utility and at least equal value unless Sublandlord shall otherwise expressly consent.
(c)Subtenant, at its expense, and with diligence and dispatch, shall procure the cancellation or discharge of all notices of violation arising from or otherwise connected with Alterations, or any other work, labor, services or materials done for or supplied to Subtenant, or any person claiming through or under Subtenant, which shall be issued by the City of New Haven, or any other public authority having or asserting jurisdiction. Subtenant shall defend, indemnify and save harmless Sublandlord from and against any and all mechanics' and other liens and encumbrances filed against the Building in connection with Alterations, or any other work, labor, services or materials done for or supplied to Subtenant, or any person claiming through or under Subtenant, including, without limitation, security interests in any materials, fixtures or articles so installed in and constituting part of the Premises and against all costs, expenses and liability incurred in connection with any such lien or encumbrance or any action or proceeding brought thereon. Subtenant, at its expense, shall procure the satisfaction or discharge or record of all such liens and encumbrances (by bonding or otherwise) within ten (10) days after written notice from Sublandlord of the filing thereof.
(d)Subject to the other provisions of this Paragraph 12, including without limitation the obligation to obtain Sublandlord’s approval of the plans and/or specifications for the same, Subtenant shall have the right to perform, and Sublandlord and Landlord hereby consent to, the work to the Premises as set forth on Exhibit B attached hereto and made a part hereof (collectively, “Subtenant’s Work”). Subtenant’s Work shall be performed promptly after the date of this Sublease. Sublandlord shall reimburse to Subtenant for up to $35,000.00 toward the cost of Subtenant’s Demising Work (as defined in Exhibit B) (the “Allowance”). Such reimbursement shall occur upon substantial completion of Subtenant’s Demising Work, in the amount of the cost of Subtenant’s Demising Work, as evidenced by contractor invoices, up to the amount of the Allowance, in one lump sum payment. Sublandlord shall reasonably cooperate with Subtenant in the pursuit of any governmental or agency approvals required in connection with Subtenant’s Work. Subtenant shall not be entitled to any cash payment, nor any credit against annual rent or additional rent, in the event that the cost of Subtenant’s Demising Work is
-13-
less than the Allowance. Sublandlord hereby agrees that Subtenant shall not be required to remove any portion of Subtenant’s Work at the end of the term of this Sublease; provided, however, Subtenant shall have the right to remove the Air Compressor (as defined in Exhibit B). To the extent that the Subtenant’s Demising Work is not completed prior to the Commencement Date, Subtenant will not occupy or use the space from which the Premises will be demised (i.e., the remaining portions of the larger premises from which the Premises forms a part) for any reason; provided, however, Subtenant shall have the right to occupy the Premises on the Commencement Date regardless of whether such Subtenant’s Demising Work has been completed. The fact that Subtenant’s Demising Work is not done prior to the Commencement Date will not affect any of Subtenant’s obligations under this Sublease on and after the Commencement Date, including without limitation, the obligation to pay annual rent.
13.INDEMNITY AND INSURANCE. Except to the extent caused by Sublandlord’s negligence or willful misconduct (but subject to Section 25 hereof), Subtenant shall indemnify, defend and hold harmless Sublandlord, its agents and employees from and against any and all liability (statutory or otherwise), claims, suits, demands, judgments, costs, interest and expense (including, but not limited to, reasonable attorneys' fees and disbursements) arising from any injury to, or death of, any person or persons or damage to property (including loss of use thereof) related to (a) Subtenant's use of the Premises or conduct of business therein, (b) any work or thing whatsoever done, or any condition created (other than by Sublandlord, its employees, agents or contractors) by or on behalf of Subtenant in or about the Premises, including during the period of time, if any, prior to the term commencement date, that Subtenant may have been given access to the Premises for the purpose of doing any work or making any installations, (c) any condition of the Premises due to or resulting from any default by Subtenant in the performance of Subtenant's obligations under this Sublease, or (d) any act, omission or negligence of Subtenant or its agents, contractors, employees, subtenants, licensees or invitees in or about the Building. In case any action or proceeding is brought against Sublandlord by reason of any one or more thereof, Subtenant shall pay all reasonable costs, attorneys' fees, expenses and liabilities resulting therefrom and shall resist such action or proceeding if Sublandlord shall so request, at Subtenant's expense, by counsel reasonably satisfactory to Sublandlord.
Sublandlord shall indemnify, defend and hold harmless Subtenant, its agents and employees from and against any and all liability (statutory or otherwise), claims, suits, demands, judgments, costs, interest and expense (including, but not limited to, reasonable attorneys' fees and disbursements) arising from any injury to, or death of, any person or persons or damage to property (including loss of use thereof) related to (a) any condition of the Building due to or resulting from any default by Sublandlord in the performance of Sublandlord's obligations under this Sublease and/or the Prime Lease, (b) any act, omission or negligence of Sublandlord or its agents, contractors or employees in or about the Building or (c) any material breach, misrepresentation, inaccuracy or incomplete disclosure regarding any Section of the Prime Lease (or portions thereof) which is expressly incorporated into, or excluded from, this Sublease. In case any action or proceeding is brought against Subtenant by reason of any one or more thereof, Sublandlord shall pay all reasonable costs, attorneys' fees, expenses and liabilities resulting therefrom and shall resist such action or proceeding if Subtenant shall so request, at Sublandlord's expense, by counsel reasonably satisfactory to Subtenant.
-14-
Subtenant shall at Subtenant's expense, obtain and keep in force at all times during the term of this Sublease, Commercial General Liability Insurance including broad form general liability endorsement and contractual liability on an occurrence basis and comprehensive auto liability, including owned, non-owned and hired vehicles with limits of not less than Two Million and 00/100 Dollars ($2,000,000.00) combined single limit insuring Sublandlord and Subtenant against any liability arising out of the use, occupancy or maintenance of the Premises, the Building and all areas appurtenant thereto. The limit of said insurance shall not, however, limit the liability of Subtenant hereunder. Subtenant may carry said insurance under a blanket policy provided an endorsement naming Sublandlord as an additional insured is attached thereto. Subtenant shall also obtain and keep in force at all time during the term of this Sublease, at its expense, all risk property/business interruption insurance, including flood and earthquake (to the extent available at commercially-reasonable rates), written at replacement cost value and with a replacement cost endorsement covering all of Subtenant’s trade fixtures, equipment, furniture and other personal property within the Premises. Subtenant shall maintain insurance against such other perils and in such amounts as Sublandlord may from time to time reasonably require in writing.
Sublandlord represents and warrants that, pursuant to the Prime Lease, Landlord maintains an all risk property insurance policy on the Building insuring the full replacement value thereof (excluding the value of Sublandlord's personal property and equipment) which policy includes coverage for, but not be limited to, fire and extended perils including flood and earthquake, (to the extent available) and including rental loss coverage.
Insurance required hereunder shall be in companies licensed in the State of Connecticut and have a "Bests' Insurance Guide" rating of A/12 or better. Mutual insurance companies may be used only if they are nonassessable. To the extent commercially practicable, Subtenant shall seek an endorsement to the insurance policies required hereunder stating that such policy shall not be cancellable or subject to reduction of coverage except after thirty (30) days' written notice to Sublandlord. All policies of insurance maintained by Subtenant shall be in form reasonably acceptable to Sublandlord with satisfactory evidence that all premiums have been paid. Subtenant agrees not to knowingly violate or permit to be violated any of the conditions or provisions of the insurance policies required to be furnished hereunder, and agrees to promptly notify Sublandlord of any fire or other casualty.
14.SUBLEASING AND ASSIGNMENT.
(a)Subtenant covenants and agrees that neither this Sublease nor the term and estate hereby granted, nor any interest herein or therein, will be assigned, mortgaged, pledged, encumbered or otherwise transferred, and that neither the Premises, nor any part thereof, will be sublet or encumbered in any manner by reason of any act or omission on the part of Subtenant, or used or occupied, or permitted to be used or occupied, or utilized for desk space or for mailing privileges, by anyone other than Subtenant, or for any use or purpose other than as stated in Paragraph 5, without the prior written consent of Sublandlord, which Sublandlord may withhold in its sole discretion. Sublandlord’s consent shall not be required with respect to an assignment of this Sublease to or a sublease of the Premises or any portion thereof with an Affiliate or Permitted Entity. An “Affiliate” shall mean any entity that Controls Subtenant, any entity that Subtenant Controls, and any entity that is under common Control with Subtenant. “Control” shall mean more than 50% ownership, with respect to any non-publicly traded company, and more than 10% ownership, plus management control, with respect to any publicly traded company. A “Permitted Entity” shall mean any entity that acquires all or substantially all of Subtenant’s stock or assets or with which Subtenant merges or consolidates.
-15-
(b)If Subtenant should desire to assign this Sublease or sublease the Premises or any portion thereof, Subtenant shall give Sublandlord written notice of such desire to make such assignment or effect such sublease. At the time of giving such notice, Subtenant shall provide Sublandlord with a copy of the proposed assignment or sublease document and, except for any assignment or sublease to an Affiliate or Permitted Entity, such information as Sublandlord may reasonably request concerning the proposed sublessee or assignee to assist Sublandlord in making an informed judgment regarding the financial condition, reputation, operation, and general desirability of the proposed sublessee or assignee. Sublandlord shall then have (other than with respect to assignments or subleases to an Affiliate or Permitted Entity) a period of thirty (30) days following receipt of such notice within which to notify Subtenant in writing of Sublandlord's election to:
(i)in the case of an assignment of this Sublease or a sublease of the entire Premises, terminate this Sublease as of the date specified by Subtenant, in which event Subtenant shall be relieved of all further obligations hereunder as to the Premises or said portion thereof, after paying all Rent due as of the termination date; or
(ii)permit Subtenant to assign or sublet the Premises or said portion thereof; or
(iii)refuse to consent to Subtenant's assignment or subleasing of the Premises or said portion thereof and to continue this Sublease in full force and effect as to the entire Premises.
If Sublandlord should fail to notify Subtenant of its election within said thirty (30) day period, Sublandlord shall have elected option 14(b)(iii) above.
(c)It is hereby expressly understood and agreed, however, if Subtenant is a corporation or a limited liability company, that the assignment or transfer of this Sublease, and the term and estate hereby granted, to any corporation or limited liability company into which Subtenant is merged or with which Subtenant is consolidated, which corporation or limited liability company shall have a net worth at least equal to that of Subtenant immediately prior to such merger or consolidation (such corporation or limited liability company being hereinafter called "Assignee") without the prior written consent of Sublandlord shall not be deemed to be prohibited hereby if, and upon the express condition that, Assignee and Subtenant shall promptly execute, acknowledge and deliver to Sublandlord an agreement in form and substance satisfactory to Sublandlord whereby Assignee shall agree to be bound by and upon all the covenants, agreements, terms, provisions and conditions set forth in this Sublease on the part of Subtenant to be performed, and whereby Assignee shall expressly agree that the provisions of this Paragraph 14 shall, notwithstanding such assignment of transfer, continue to be binding upon it with respect to all future assignments and transfers.
-16-
(d) If, at any time during the Term of this Sublease, Subtenant is:
(i)a corporation or a trust (whether or not having shares of beneficial interest) and there shall occur any change in the identity of 50% or more of the persons then having power to participate in the election or appointment of the directors, trustees or other persons exercising like functions and managing the affairs of Subtenant; or
(ii)a partnership, association, limited liability company or otherwise not a natural person (and is not a corporation or a trust) and there shall occur any change in the identity of 50% or more of the persons who then are members of such partnership, association, limited liability company or who comprise Subtenant;
The same shall constitute an assignment of this Sublease for purposes of this Paragraph 14. This Paragraph 14(d) shall not apply if the initial Subtenant named herein is a corporation and the outstanding voting stock thereof is listed on a recognized securities exchange.
(e)The listing of any name other than that of Subtenant, whether on the doors of the Premises or on the building directory, or otherwise, shall not operate to vest any right or interest in this Sublease or in the Premises or be deemed to be the written consent of Sublandlord mentioned in this Paragraph 14, it being expressly understood that any such listing is a privilege extended by Sublandlord revocable at will by written notice to Subtenant. If this Sublease be assigned, or if the Premises or any part thereof be sublet or occupied by anybody other than Subtenant, Sublandlord may, at any time and from time to time, collect rent and other charges from the assignee, subtenant or occupant, and apply the net amount collected to the rent and other charges herein reserved. No assignment, subletting, occupancy or collection shall be deemed a release of Subtenant or any guarantor of this Sublease from the further performance by Subtenant or such guarantor of covenants on the part of Subtenant contained in this Sublease. No assignment, subletting or use of the Premises by an Affiliate of Subtenant shall affect the purpose for which the Premises may be used as stated in Paragraph 5.
(f)No assignment or subletting shall be effective unless consented to in writing by Sublandlord (if and to the extent required hereunder) and until an instrument in form reasonably satisfactory to Sublandlord's counsel has been delivered to Sublandlord under the terms of which the assignee or sublessee, as the case may be, has effectively assumed and agreed to pay the rent and additional rent hereunder and to perform all the terms and conditions contained in this Sublease. The consent by Sublandlord to an assignment or subletting shall not in any way be construed to relieve Subtenant from obtaining the express consent in writing of Sublandlord to any further assignment or subletting.
(g)For the purposes of this Paragraph 14, the subletting for the remainder of the term of this Sublease shall be deemed to be a subletting and not an assignment. No subletting shall be allowed to more than one sublessee and no subletting shall be for less than the whole area of the Premises.
-17-
(h)If (i) the rent and other sums received by Subtenant on account of a sublease of all or any portion of the Premises (excluding sums received as part of any related transaction which sums are not consideration for this Sublease) exceeds the rent and additional rent allocable to the space subject to the sublease (in the proportion of the area of such space to the entire Premises) plus actual out-of-pocket expenses incurred by Subtenant in connection with Subtenant's subleasing of such space, including, without limitation, brokerage commissions to a licensed broker, legal costs and expenses, marketing expenses, and the cost of preparing such space for occupancy by the subtenant, Subtenant shall pay to Sublandlord, as an additional charge, fifty percent (50%) of such excess, monthly if and as received by Subtenant or (ii) any payment received by Subtenant on account of any assignment of this Sublease (excluding sums received as part of any related transaction) exceeds the actual out-of-pocket expenses including, without limitation, brokerage commissions to a licensed broker, legal costs and expenses, marketing expenses, and the cost of preparing space for the assignee, Subtenant shall pay to Sublandlord, as an additional charge, fifty percent (50%) of such excess if and when received by Subtenant.
(i)Subtenant shall, within thirty (30) days following Sublandlord’s written notice, reimburse Sublandlord for any reasonable out-of-pocket costs that Sublandlord actually incurs in connection with any assignment or sublease, including the reasonable costs of investigation, the acceptability of the proposed assignee or subtenant, and reasonable legal costs incurred in connection with the granting of any requested consent. Such costs shall not exceed $1,500.00 per request as long as there are no unusual legal issues involved and the documents presented do not have the effect of amending this Sublease.
15.SUBLANDLORD’S RIGHTS IN A SUBTENANT BANKRUPTCY. In the event any or all of Subtenant's interest in the Premises and/or this Sublease is transferred by operation of law to any trustee, receiver or other representative or agent of Subtenant, or to Subtenant as a debtor in possession, and subsequently any or all of Subtenant's interest in the Premises and/or this Sublease is offered or to be offered by Subtenant or any trustee, receiver, or other representative or agent of Subtenant as to its estate or property, (such person, firm or entity being hereinafter referred to as the "Grantor"), for assignment, conveyance, lease, or other disposition to a person, firm or entity other than Sublandlord, (each such transaction being hereinafter referred to as a "Disposition"), it is agreed that Sublandlord has and shall have a right of first refusal to purchase, take, or otherwise acquire the same upon the same terms and conditions as the Grantor thereof shall accept upon such Disposition to such other person, firm, or entity; and as to each such Disposition the Grantor shall give written notice to Sublandlord in reasonable detail of all of the terms and conditions of such Disposition within twenty (20) days next following its determination to accept the same but prior to accepting the same, and it shall not make the Disposition until and unless Sublandlord has failed or refused to accept such right of first refusal as to the Disposition, as set forth herein.
Sublandlord shall have sixty (60) days next following its receipt of the written notice as to such Disposition in which to exercise the option to acquire Subtenant's interest by such Disposition, and the exercise of the option by Sublandlord shall be effected by written notice to that effect sent to the Grantor by certified or registered mail; but nothing herein shall require Sublandlord to accept a particular Disposition or any Disposition, nor does the rejection of any one such offer of first refusal constitute a waiver or release of the obligation of the Grantor to submit other offers hereunder to Sublandlord. In the event Sublandlord accepts such offer of first refusal, the transaction shall be consummated pursuant to the terms and conditions of the
-18-
Disposition described in the notice to Sublandlord. In the event Sublandlord rejects such offer of first refusal, the Grantor may consummate the Disposition with such other person, firm, or entity; but any decrease in price of more than two percent (2%) of the price sought from Sublandlord or any change in the terms of payment for such Disposition shall constitute a new transaction requiring a further option of first refusal to be given to Sublandlord hereunder.
16.COMPLIANCE WITH LAWS. Subtenant shall, at its own cost and expense: (a) comply with all governmental laws, ordinances, orders and regulations relating to its particular manner of use (as distinguished from the Use generally) of the Premises, as opposed to compliance that applies to the Building as a whole now in force or which hereafter may be in force; (b) comply with and execute all rules, requirements and regulations of the Board of Fire Underwriters, Sublandlord's insurance companies and other organizations establishing insurance rates; (c) not suffer, permit, or commit any waste or nuisance; and (d) install fire extinguishers in the Premises in accordance with insurance requirements.
17.APPURTENANCES. The Premises include the right of ingress and egress thereto and therefrom; however, Sublandlord reserves the right to make changes and alterations to the Building, fixtures and equipment thereof, in the street entrances, doors, halls, corridors, lobbies, passages, elevators, escalators, stairways, toilets and other parts thereof which Sublandlord may deem necessary or desirable, as long as no changes or alterations made by Sublandlord affect Subtenant’s use and enjoyment of the Premises and/or Subtenant’s business operations. Landlord represents and warrants that the Prime Lease provides the following, which Subtenant shall be subject to: “Landlord also has the right to make such other changes to the Property and Building as Landlord deems appropriate, provided the changes do not materially affect Tenant's ability to use the Premises for the Permitted Use subject to the remaining terms of this Lease.” Except as otherwise set forth herein, neither this Sublease nor any use by Subtenant of the Building or any passage, door, tunnel, concourse, plaza or any other area connecting the garages or other buildings with the building in which the Premises are located, shall give Subtenant any right or easement of such use and the use thereof may, without notice to Subtenant, be regulated or discontinued at any time and from time to time by Sublandlord without liability of any kind to Subtenant and without affecting the obligations of Subtenant under this Sublease.
18.FIRE OR OTHER CASUALTY. If (i) by reason of a casualty the Premises is damaged, and the Prime Lease is terminated as a result thereof, then this Sublease shall automatically terminate. If this Sublease is not terminated as a result of a casualty, then any damage to the Premises shall be restored by Landlord under the Prime Lease. In connection therewith, Sublandlord represents and warrants that the following is incorporated into this Sublease from the Prime Lease:
“Casualty Damage.
(a)If all or any part of the Premises are damaged by fire or other casualty, Tenant shall immediately notify Landlord in writing. During any period of time that all or any portion of the Premises is rendered untenantable as a result of a fire or other casualty (including if there is no reasonable access to the Premises as a result of any such fire or other casualty), the Rent shall abate for the portion of the Premises that is untenantable and not used by Tenant. Landlord and Tenant shall each have the right to terminate this Lease if (1) the Building shall be damaged such that more than 50% of the Building that, in Landlord's reasonable judgment, substantial alteration or reconstruction of the Building shall be required (whether or not the Premises has been
-19-
damaged) and provided Landlord is using reasonable efforts to terminate all other leases in effect at the Building, provided that in no event shall Landlord have the right to terminate this Lease, under this Section 17(a)(1), if it intends to rebuild the Building and/or repair the damage so long as, on the date of the casualty, fifteen (15) years remain in the Term of this Lease, or, if fifteen (15) years do not remain in the Term of this Lease, if Tenant is willing to enter into an amendment extending the Term of this Lease so that fifteen (15) years remain in the Term of this Lease, and if properly presented with such an amendment executed by Landlord, executes and delivers such amendment; or (2) if more than 50% of the Premises have been materially damaged and there is less than fifteen (15) years of the Term remaining on the date of the casualty unless Tenant is willing to enter into an amendment extending the Term of this Lease so that fifteen (15) years remain in the Term of this Lease, and if properly presented with such an amendment executed by Landlord, executes and delivers such amendment. Landlord agrees it shall not discriminate against Tenant by electing to terminate this Lease alone, except in the event of a termination by Landlord under Subsection (2) above. Landlord may exercise its right to terminate this Lease by notifying Tenant in writing within ninety (90) days after the date of the casualty. If Landlord does not terminate this Lease, Landlord shall endeavor to commence to repair and restore the damage on the earlier to occur of the date of receipt of insurance proceeds or the date which is ninety (90) days after the date of the casualty. Landlord shall thereafter proceed with reasonable diligence to complete repair and restoration of the Building and the Leasehold Improvements (excluding any Alterations that were performed by Tenant in violation of this Lease). However, in no event shall Landlord be required to spend more than the insurance proceeds paid by the insurer in connection with the casualty plus the deductible under Landlord's insurance policy. In the event Landlord fails to complete repair or restoration to such an extent as to permit Tenant to use and occupy the Premises within (i) the earlier to occur of twelve (12) months from the date of casualty or six (6) months from the date of the commencement of repair or restoration, with respect to any damage to any Space or Spaces that together constitute less than 10,000 rentable square feet, or (ii) the earlier to occur of twenty four (24) months from the date of casualty or eight (8) months from the date of the commencement of repair or restoration, with respect to any damage to any Space or Spaces that together constitute 10,000 rentable square feet or more, then Tenant may, by giving notice to Landlord prior to the date such repair or restoration is so completed, as its sole remedy, terminate this Lease. In addition, Tenant shall have the right to terminate this Lease with respect to any one or more Spaces that are not restored within said time frames, and have this Lease continue in full force and effect for the balance of the Premises. Landlord shall not be liable for any loss or damage to Tenant's Property or to the business of Tenant resulting in any way from the fire or other casualty or from the repair and restoration of the damage. Landlord and Tenant hereby waive the provisions of any Law relating to the matters addressed in this Article, and agree that their respective rights for damage to or destruction of the Premises shall be those specifically provided in this Lease.
-20-
(b)If all or any portion of the Premises shall be made untenantable by fire or other casualty, Landlord shall, with reasonable promptness, cause an architect or general contractor selected by Landlord to provide Landlord and Tenant with a written estimate of the amount of time required to substantially complete the repair and restoration of the Premises and make the Premises tenantable again, using standard working methods ("Completion Estimate"). If the Completion Estimate indicates that the Premises cannot be made tenantable within 270 days from the date the repair and restoration is started, then regardless of anything in Section 17(a) above to the contrary, Tenant shall have the right to terminate this Lease by giving written notice to Landlord of such election within 10 days after receipt of the Completion Estimate. In addition, Tenant shall have the right to terminate this Lease with respect to any one or more Spaces that are not restored within said time frames by giving written notice to Landlord of such election within 10 days after receipt of the Completion Estimate, and have this Lease continue in full force and effect for the balance of the Premises.”
In that event, the rent shall be apportioned according to the part of the Premises which is useable by Subtenant, but restoration shall not be required to be performed except during business hours of business days. In the event that any damage to the Premises is not substantially restored within a period of time equal to half of the remaining term of this Sublease, then Subtenant shall have the right to terminate this Sublease by written notice to Sublandlord at any time before the damage is substantially restored.
19.CONDEMNATION.
(a)Landlord represents and warrants that the following provision is from the Prime Lease:
“Condemnation.
Either party may terminate this Lease if the whole or more than 50% of the Premises shall be taken or condemned for any public or quasi-public use under Law, by eminent domain or private purchase in lieu thereof (a "Taking"). Landlord shall also have the right to terminate this Lease if there is a Taking of any portion of the Building or Property which would leave the remainder of the Building unsuitable for use as an office/laboratory building in a manner comparable to the Building's use prior to the Taking and Landlord will, after the Taking, use the Building for other uses. In order to exercise its rights to terminate the Lease, Landlord or Tenant, as the case may be, must provide written notice of termination to the other within forty-five (45) days after the terminating party first receives notice of the Taking. Any such termination shall be effective as of the date the physical taking of the Premises or the portion of the Building or Property occurs. If this Lease is not terminated, the Rentable Square Footage of the Building, the Rentable Square Footage of the Premises and Tenant's Pro Rata Share shall, if applicable, be appropriately adjusted. In addition, Rent for any portion of the Premises taken or condemned shall be abated during the unexpired Term of this Lease effective when the physical taking of the portion of the Premises occurs. In addition, Tenant shall have the right to terminate this Lease with respect to any one or more Spaces that are so taken or condemned. All compensation awarded for a Taking, or sale proceeds, shall be the property of Landlord, any rights to receive compensation or proceeds being expressly waived by Tenant, except that Tenant shall be entitled to the value of its leasehold interest and to the unamortized cost of any leasehold improvements made by Tenant at Tenant's expense and not from the Initial Allowance of $4,000,000, the
-21-
Option Space Allowance or the Refurbishment Allowance. In addition, Tenant may file a separate claim at its sole cost and expense for Tenant's Property and Tenant's reasonable relocation expenses, provided the filing of the claim does not diminish the award which would otherwise be receivable by Landlord.”
(b)In the event that the Prime Lease is terminated as a result of a condemnation or in any other manner for any public or quasi-public use or purpose, this Sublease and the term and estate hereby granted shall forthwith terminate as of the date of vesting of title in such condemning authority (which date is hereinafter also referred to as the date of taking), and the rents shall be prorated and adjusted as of such date.
(c)In the event that more than 50% of the Premises is taken by condemnation or in any other manner for any public or quasi-public use or purpose, Subtenant shall have the right to terminate this Sublease by giving Sublandlord notice to that effect within ninety (90) days after the date of the taking, and thereupon the term and estate hereby granted shall forthwith terminate as of the date of vesting of title in such condemning authority (which date is hereinafter also referred to as the date of taking), and the rents shall be prorated and adjusted as of such date. Upon such partial taking and this Sublease continuing in force as to any part of the Premises, the rent and additional rent shall be adjusted according to the rentable area remaining.
(d)In the event of any taking, partial or whole, provided for in this Paragraph, all of the proceeds of any award, judgment or settlement payable by the condemning authority shall be and remain the sole and exclusive property of Sublandlord, and Subtenant shall not be entitled to any portion of such award, judgment or settlement received by Sublandlord from such condemning authority. Subtenant, however, may pursue its own claim against the condemning authority for any damage or award permitted under the laws of the State of Connecticut to be paid to Subtenant without diminishing or reducing the award, judgment or settlement receivable by Sublandlord.
20.INTENTIONALLY OMITTED.
21.ACCESS. Sublandlord shall have the right to show the Premises to prospective tenants during the last year of the term of this Sublease. In addition, Sublandlord's agents, employees, contractors and prospective purchaser shall have the right to enter the Premises at reasonable hours upon not less than 24 hours’ notice (except in an emergency) to Subtenant for the purpose of inspecting the same and, Sublandlord, its employees, agents and contractors shall have the right to enter the Premises at any time for the purpose of making repairs thereto and to the Building and its mechanical systems and for the purpose of performing the services to be performed by Sublandlord pursuant to the terms hereof and for the purpose of curing any violations of rules and regulations or defaults under this Sublease created by or suffered by Subtenant.
22.LIABILITY. Neither Sublandlord, nor any agent or employee of Sublandlord, shall be liable for (a) loss of or damage to any property of Subtenant, or of any other person, entrusted to any of Sublandlord's agents or employees, (b) loss of or damage to any property of Subtenant or of any other person by theft or otherwise, except to the extent caused by Sublandlord’s negligence or willful misconduct, subject to Section 25 hereof, (c) any injury or damage to any person or property resulting from fire, explosion, falling plaster, steam, gas, electricity, dust, water or snow, or leaks from any part of the Building or from the pipes,
-22-
appliances or plumbing system, or from the roof, street or subsurface or any other place or by dampness, or from any other cause whatsoever, except to the extent caused by Sublandlord’s negligence or willful misconduct, subject to Section 25 hereof, (d) any such damage caused by other occupants or persons in the Building or by construction of any private, public or quasi-public work, or (e) any latent defect in the Premises or the Building.
23.DEFAULT. In the event of any failure of Subtenant to pay the rent or additional rent due hereunder, for more than five (5) days after written notice from Sublandlord that the same is due (provided that if Sublandlord has provided Subtenant with 2 notices in any 12 month period of such default, then Sublandlord shall not be required to provide any further written notices if Subtenant’s subsequently fails to pay rent or additional rent when due), or if Subtenant abandons or vacates all of any portion of the Premises for any reason other than the occurrence of an alteration or a casualty or condemnation, unless Subtenant can and does pay all reasonable costs that Sublandlord may suffer or incur by reason of the abandonment or vacancy of the Premises, or any failure to commence and diligently pursue the performance of any of the other terms, covenants, and conditions of this Sublease to be observed and performed by Subtenant for more than thirty (30) days after written notice of such default (provided that if cure reasonably takes more than thirty (30) days, Subtenant shall have such additional time as is reasonably needed, as long as Subtenant commences the cure promptly after written notice of the default from Sublandlord and thereafter diligently pursues the cure to completion), or if the Subtenant's interest herein shall be sold under execution, then Sublandlord, at its option, may terminate this Sublease without further notice to Subtenant and upon such termination Subtenant shall quit and surrender the Premises to Sublandlord, but such termination shall not affect the Sublandlord's right, subject to the terms and conditions of this Sublease, to recover damages or exercise any other right hereinafter provided; however, in lieu of terminating this Sublease, Sublandlord may elect to recover possession of the Premises without terminating this Sublease and Sublandlord shall have the right to re-enter the Premises and to remove all persons or property therefrom and store any property in a public warehouse or elsewhere at the cost and for the account of Subtenant, all without service of notice, except as notice is in this Paragraph 23 required, or resort to legal process, and Sublandlord shall not be liable for any loss or damage resulting from such re-entry nor shall Sublandlord be deemed guilty of trespass therefor. In the event of termination of this Sublease or a re-entry of the Premises pursuant to this Paragraph 23, Sublandlord may re-let the whole or any part of the Premises on behalf of Subtenant for a period equal to, greater or less than the remainder of the then term of this Sublease, at such rental and upon such terms and conditions as Sublandlord shall deem reasonable. Sublandlord shall not be liable in any respect for the failure to relet the Premises or in the event of such reletting, for failure to collect the rent thereunder and any sums received by Sublandlord on a reletting shall belong to Sublandlord. In the event of a termination of this Sublease, Sublandlord shall forthwith be entitled to recover from Subtenant, as liquidated damages, the amount by which the sum of (a) rent and additional rent payable for the remainder of the term of this Sublease; and (b) all reasonable out-of-pocket expenses of Sublandlord actually incurred in recovering possession of the Premises and reletting the same including costs of repair and renovating the Premises, management agents' commissions and fees, Court costs and reasonable attorneys' fees, exceed the fair rental value of the Premises. Subtenant hereby expressly waives its right to any notice to quit under the statutes relating to summary process or any statutes which may be enacted for recovery of possession of Premises. If Subtenant vacates or abandons the Premises prior to the expiration of the term of this Sublease, the same shall not be a default by Subtenant as long as Subtenant complies with all of the terms of this Sublease, but in that event, Sublandlord may re-take possession of the Premises from Subtenant without affecting Subtenant’s obligations under this Sublease, in which event Subtenant shall have no further right to possess the Premises.
-23-
In no event shall Subtenant be liable to Sublandlord for any special, indirect, punitive or consequential damages under this Sublease except (i) to the extent covered by Subtenant’s liability insurance, or (ii) to the extent of damages incurred by Sublandlord as a result of any holdover by Subtenant. In no event shall Sublandlord be liable to Subtenant for any special, indirect, punitive or consequential damages under this Sublease, except to the extent covered by Sublandlord’s liability insurance.
Sublandlord shall also be entitled to a reasonable attorney's fee in the event that it shall retain an attorney for recovery of rent or additional rent or to otherwise enforce the provisions of this Sublease or if suit shall be brought for recovery of possession of the Premises or because of the breach of any other covenant herein contained on the part of Subtenant to be performed. In the event that Subtenant is in default of any provision of this Sublease requiring the payment of monies, then Subtenant shall pay to Sublandlord as additional rent the greater of (a) interest at the rate of eighteen percent (18%) per annum or the highest rate permitted by law, whichever is less, on the amount due Sublandlord hereunder, or (b) a late charge of five percent (5%) of the amount due.
In the event of a breach or threatened breach by Subtenant of any of its obligations under this Sublease, Sublandlord shall also have the right of injunction. The special remedies to which Sublandlord may resort hereunder are cumulative and are not intended to be exclusive of any other remedies to which Sublandlord may lawfully be entitled at any time and Sublandlord may invoke any remedy allowed at law or in equity as if specific remedies were not provided for herein. In addition to any remedies which Sublandlord may have under this Sublease, and without reducing or adversely affecting any of Sublandlord's rights and remedies under this Paragraph 23, if there shall be a default hereunder by Subtenant which shall not have been remedied within the applicable grace period, Sublandlord shall not be obligated during the continuance of such default to furnish to Subtenant or the Premises any heat, ventilation or air-conditioning services outside of Business Hours on Business Days, or any extra or additional cleaning services; and the discontinuance of any one or more such services shall be without liability by Sublandlord to Subtenant and shall not reduce, diminish or otherwise affect any of Subtenant's covenants and obligations under this Sublease.
24.BANKRUPTCY. To the full extent permissible under the Bankruptcy Reform Act of 1978, specifically Section 365 thereof (11 U.S.C. 365) or any successor thereto, if Subtenant shall file a voluntary petition in bankruptcy or take the benefit of any insolvency act or be dissolved or adjudicated a bankrupt, or if a receiver shall be appointed for its business or its assets and the appointment of such receiver is not vacated within sixty (60) days after such appointment, or if it shall make an assignment for the benefit of its creditors, then and forthwith thereafter the Sublandlord shall have all the rights provided in Paragraph 23 above in the event of nonpayment of rent.
25.WAIVER OF SUBROGATION. All fire and extended coverage insurance maintained by Sublandlord and Subtenant on the Premises, the property therein, and the Building and its appurtenances shall include a waiver by the insurer of all right of recovery against Sublandlord or Subtenant in connection with any loss or damage by fire or peril included within fire and extended coverage insurance and neither party shall be liable to the other for loss or damage resulting from such included peril and further, Sublandlord and Subtenant each release the other from any and all claims with respect to any such loss to the extent of the insurance proceeds paid with respect thereto.
-24-
26.SUBORDINATION. This Sublease shall, at Sublandlord's option, be subordinate to the lien of any first mortgage which may now or hereafter affect the real property of which the Premises form a part, and to all renewals, modifications, consolidations, replacements and extensions thereof. In confirmation of such subordination, Subtenant shall execute promptly any commercially reasonable subordination, non-disturbance and attornment agreement (each an “SNDA”) that Sublandlord may request. Subtenant shall attorn to any foreclosing first mortgagee, purchaser at a foreclosure sale or purchaser by deed in lieu of foreclosure, subject to the terms and conditions of the SNDA, but no such mortgagee or purchaser shall be (a) liable for any act or omission of Sublandlord, unless the same is of a continuing nature, (b) bound by any payment of rent, additional rent or other charge made more than thirty (30) days in advance of the due date thereof, or (c) bound by any material assignment, surrender, termination, cancellation, amendment or modification of this Sublease made without the express written consent of such mortgagee or purchaser.
27.DEFINITION OF SUBLANDLORD. The term, Sublandlord, as used in this Sublease means only the tenant under the Prime Lease, and in the event of any assignment of the Prime Lease, and the legally binding assumption of Sublandlord’s obligations thereunder by such assignee, then Sublandlord shall be and hereby is entirely freed and relieved of all its covenants, obligations and liability hereunder except liabilities which accrued prior to such assignment.
28.BROKERAGE. Subtenant represents it has not dealt with any real estate agent or broker in connection with this Sublease other than Cushman & Wakefield of Connecticut, Inc. (whose commission shall be paid by Sublandlord) and it shall indemnify Sublandlord and hold it harmless against the claims of any other broker(s) arising out of its actions. Sublandlord represents it has not dealt with any real estate agent or broker in connection with this Sublease other than Cushman & Wakefield of Connecticut, Inc. and it shall indemnify Subtenant and hold it harmless against the claims of any other broker(s) arising out of its actions.
29.RULES AND REGULATIONS. Subtenant covenants that Subtenant, Subtenant's employees, agents and licensees shall faithfully observe and strictly comply with such rules and regulations as Landlord may adopt. Nothing contained in this Sublease shall be construed to impose upon Sublandlord any duty or obligation to enforce the rules and regulations, or the provisions of any other lease, as against any other lessee, and Sublandlord shall not be liable to Subtenant for violation thereof by any other lessee or its employees, agents or licensees, or anyone else. Sublandlord represents that the current rules and regulations as promulgated by Landlord are attached hereto as Exhibit C.
-25-
31.FORCE MAJEURE. Sublandlord shall be excused for the period of any delay in the performance of any obligations hereunder, when prevented from so doing by cause or causes beyond Sublandlord's control which shall include, without limitation, all labor disputes, civil commotion, war, war-like operations, invasion, rebellion, hostilities, military or usurped power, sabotage, governmental regulations or controls, fire or other casualty, inability to obtain any material, services or financing or through acts of God. Subtenant shall similarly be excused for delay in the performance of obligations hereunder provided:
(a)nothing contained in this Paragraph or elsewhere in this Sublease shall be deemed to excuse or permit, by Sublandlord or Subtenant, any delay in the payment of any sums of money required hereunder, or any delay in the cure of any default which may be cured by the payment of money;
(b)no reliance by Subtenant upon this Paragraph shall limit or restrict in any way Sublandlord's right of self-help as provided in this Sublease; and
(c)Neither Sublandlord nor Subtenant shall be entitled to rely upon this Paragraph unless it shall advise the other party in writing, of the existence of any force majeure preventing the performance of an obligation within ten (10) days after the commencement of the force majeure.
32.NOTICES. Any notice required or permitted to be given hereunder must be in writing and may be given by personal delivery or by mail, and if given by mail shall be deemed sufficiently given if sent by registered or certified mail, or by recognized overnight courier service, addressed as follows:
| 
 | If to Sublandlord: | Yale University | 
| 
 | 
 | Office of University Properties | 
| 
 | 
 | 433 Temple Street | 
| 
 | 
 | New Haven, CT 06511 | 
| 
 | 
 | Attention: Sue Cascio | 
| 
 | With a copy to: | Yale University | 
| 
 | 
 | Office of the General Counsel | 
| 
 | 
 | 2 Whitney Avenue | 
| 
 | 
 | New Haven, CT 06511 | 
| 
 | 
 | Attention: General Counsel | 
| 
 | With a copy to: | Rogin Nassau LLC | 
| 
 | 
 | CityPlace I, 22nd Floor | 
| 
 | 
 | 185 Asylum Street | 
| 
 | 
 | Hartford, CT 06103-3460 | 
| 
 | 
 | Attention: Peter S. Sorokin, Esq. | 
-26-
| 
 | If to Subtenant: | Achillion Pharmaceuticals, Inc. | 
| 
 | 
 | 1777 Sentry Parkway West | 
| 
 | 
 | VEVA Building 14, Suite 200 | 
| 
 | 
 | Blue Bell, PA 19422 | 
| 
 | 
 | Attn: Ky Nam-Wortman, SVP & Head of HR/Facilities/IT | 
| 
 | With copy to: | Achillion Pharmaceuticals, Inc. | 
| 
 | 
 | 1777 Sentry Parkway West | 
| 
 | 
 | VEVA Building 14, Suite 200 | 
| 
 | 
 | Blue Bell, PA 19422 | 
| 
 | 
 | Attn: Martha Manning, General Counsel | 
| 
 | And to: | Wiggin and Dana LLP | 
| 
 | 
 | One Century Tower | 
| 
 | 
 | P.O. Box 1832 | 
| 
 | 
 | New Haven, Connecticut 06510 | 
| 
 | 
 | Attn: Merton Gollaher, Esq. | 
Either party may by written notice to the other specify a different address for notice purposes.
33.SELF HELP. In the event of any breach of this Sublease by Subtenant, beyond applicable notice, grace and cure periods, Sublandlord may, at Sublandlord's sole option, at any time, without notice, cure such breach for the account and at the expense of Subtenant. If Sublandlord at any time so elects, or is compelled, to cure any such breach and/or is compelled to incur any other expense because of any such breach of Subtenant (including, without limitation, reasonable attorneys' fees and disbursements in reasonable amounts in instituting, prosecuting or defending any suits, actions or proceedings to enforce Sublandlord's rights under this Sublease or otherwise), the reasonable out-of-pocket sum or sums so paid by Sublandlord, with all interest at the rate of eighteen percent (18%) per annum, costs and damages shall be paid by Subtenant to Sublandlord, as additional rent, within thirty (30) days following Sublandlord’s written demand.
34.ESTOPPEL CERTIFICATES. Subtenant shall, within ten (10) days after request by Sublandlord, execute and deliver to Sublandlord a written declaration in recordable form: (a) ratifying this Sublease; (b) expressing the commencement and termination dates thereof; (c) certifying that this Sublease is in full force and effect and has not been assigned, modified, supplemented or amended (except by such writings as shall be stated); (d) that, to the best of its knowledge, all conditions under this Sublease to be performed by Sublandlord have been satisfied; (e) that, to the best of its knowledge, there are no defenses or offsets against the enforcement of this Sublease by Sublandlord, or stating those claimed by Subtenant; (f) the amount of advance rental, if any, (or none if such is the case) paid by Subtenant; (g) the date to which rental has been paid; and (h) the amount of security deposited with Sublandlord. Such declaration shall be executed and delivered by Subtenant from time to time as may be requested by Sublandlord. Sublandlord's mortgage lenders and/or purchasers shall be entitled to rely upon same.
-27-
35.MECHANICS LIENS. Subtenant shall not permit any mechanic's or other lien or charge to be filed against the Premises or the Building by reason of any act of Subtenant or anyone holding the Premises through or under Subtenant. If any such mechanic's or other lien or charge shall at any time be filed against the Premises or the Building, Subtenant shall promptly cause the same to be discharged of record (by bonding or otherwise), in default of which Sublandlord may, on ten (10) days' notice to Subtenant, bond or insure over or discharge the same, and all reasonable out-of-pocket costs and expenses, including reasonable attorneys' fees, actually incurred by Sublandlord in procuring such discharge shall be payable by Subtenant to Sublandlord as additional rent within thirty (30) days following Sublandlord’s written demand.
36.CONDITION OF THE PREMISES.
(a)Except as otherwise set forth herein, Subtenant acknowledges that Sublandlord shall not be required to perform any work in or to the Premises, provided that Sublandlord shall remove from the Premises the furniture, fixtures and equipment in accordance with, and subject to, Section 49 of this Sublease.
(b)Subtenant represents that Subtenant has inspected the Premises and the Building and is thoroughly acquainted with their condition and, except as otherwise set forth herein, takes the Premises "as is," and the taking of possession of the Premises by Subtenant shall be conclusive evidence that the Premises and the Building were in good and satisfactory condition at the time possession was taken by Subtenant. Neither Sublandlord nor Sublandlord's agents have made any representations or promises with respect to the condition of the Building, the Premises, the land upon which the Building is constructed, or any other matter or thing affecting or related to the Building or the Premises, except as herein expressly set forth, and no rights, easements or licenses are acquired by Subtenant by implication or otherwise except as expressly set forth in this Sublease.
37.PREJUDGMENT REMEDY, REDEMPTION, COUNTERCLAIM AND JURY TRIAL. Subtenant, for itself and for all persons claiming through or under it, hereby acknowledges that this Sublease constitutes a commercial transaction as such term is used and defined in Public Act No. 431 of the Connecticut General Statutes, Revision of 1973, and hereby expressly waives any and all rights which are or may be conferred upon Subtenant by said Act to any notice or hearing prior to a prejudgment remedy, and by any present or future law to redeem the said Premises, or to any new trial in any action or ejection under any provisions of law, after reentry thereupon, or upon any part thereof, by Sublandlord, or after any warrant to dispossess or judgment in ejection. If Sublandlord shall acquire possession of the said Premises by summary proceedings, or in any other lawful manner without judicial proceedings, it shall be deemed a reentry within the meaning of that word as used in this Sublease. In the event that Sublandlord commences any summary proceedings or action for nonpayment of rent or other charges provided for in this Sublease, Subtenant shall not interpose any counterclaim of any nature or description in any such proceeding or action. Subtenant and Sublandlord both waive a trial by jury of any or all issues arising in any action or proceeding between the parties hereto or their successors, under or connected with this Sublease, or any of its provisions.
-28-
38.RECORDING. Subtenant shall not record this Sublease but will, at the request of Sublandlord, execute a memorandum or notice thereof in recordable form satisfactory to both the Sublandlord and Subtenant specifying the date of commencement and expiration of the term of this Sublease and other information required by statute. Either Sublandlord or Subtenant may then record said memorandum or notice of lease.
39.PARTIAL INVALIDITY. If any provision of this Sublease or application thereof to any person or circumstance shall to any event be invalid, the remainder of this Sublease or the application of such provision to persons or circumstances other than those as to which it is held invalid shall not be affected thereby and each provision of this Sublease shall be valid and enforced to the fullest extent permitted by law.
40.ENTIRE AGREEMENT.
(a)This Sublease and the Exhibits, Riders and/or Addenda if any attached, set forth the entire agreement between the parties. Any prior conversations or writings, including, without limitation, that certain Access Agreement dated August 8, 2019 by and between the Sublandlord and Subtenant (the “Access Agreement”), are merged herein and extinguished. No subsequent amendment to this Sublease shall be binding upon Sublandlord or Subtenant unless reduced to writing and signed. Submission of this Sublease for examination does not constitute an option for the Premises and becomes effective as a sublease only upon execution and delivery thereof by Sublandlord to Subtenant. If any provision contained in a rider or addenda is inconsistent with any other provision of this Sublease, the provision contained in said rider or addenda shall supersede said other provision, unless otherwise provided in said rider or addenda. The failure of Sublandlord of Subtenant to insist in any one or more instances upon the strict performance of any one or more of the other party’s obligations under this Sublease, or to exercise any election herein contained, shall not be construed as a waiver or relinquishment for the future of the performance of such one or more obligations of this Sublease or of the right to exercise such elections.
(b)No payment by Subtenant, or acceptance by Sublandlord, of a lesser amount than shall be due from Subtenant to Sublandlord shall be treated otherwise than as a payment on account. The acceptance by Sublandlord of a check for a lesser amount with an endorsement or statement thereon, or upon any letter accompanying such check, that such lesser amount is payment in full, shall be given no effect, and Sublandlord may accept such check without prejudice to any other rights or remedies which Sublandlord may have against Subtenant.
41.HEIRS, ASSIGNS, NUMBER AND GENDER. This Sublease shall be binding upon the parties hereto and their heirs, administrators, executors, successors and assigns. The use of the neuter singular pronoun to refer to Subtenant or Sublandlord shall be deemed a proper reference even though Subtenant or Sublandlord may be an individual, partnership, a corporation or a group of two (2) or more individuals or corporations. The necessary grammatical changes required to make the provisions of this Sublease apply in the plural number where there is more than one Subtenant or Sublandlord and to either corporations, associations, partnerships or individuals, males or females, shall in all instances be assumed as though in each case fully expressed.
-29-
42.MORTGAGEE PROTECTION. Subtenant agrees to give any Mortgagees and/or Trust Deed Holders, by Registered Mail, a copy of any Notice of Default served upon the Sublandlord, provided that prior to such notice Subtenant has been notified, in writing (by way of Notice of Assignment of Rents and Leases, or otherwise), of the address of such Mortgagees and/or Trust Deed Holders.
43.INTENTIONALLY OMITTED.
44.HOLDING OVER. Any holding over by Subtenant after the expiration of the term of this Sublease shall be treated as a daily tenancy at sufferance at a rate equal to one and one-half (1 ½) times the rent plus additional rent and other charges herein provided (prorated on a daily basis) and shall otherwise be on the terms and conditions set forth in this Sublease as far as applicable. In addition, Subtenant shall pay Sublandlord for all damages sustained by Sublandlord as a result of Subtenant's holding over. If Subtenant fails to remove any of its personal property from the Premises (if and as required by this Sublease) within 2 days after the termination of this Sublease or Subtenant’s right to possession, Sublandlord, at Subtenant’s sole cost and expense, shall be entitled (but not obligated) to remove and store Subtenant’s property. Sublandlord shall not be responsible for the value, preservation or safekeeping of Subtenant’s property. Subtenant shall pay to Sublandlord, within thirty (30) days following Sublandlord’s written demand, the reasonable expenses and storage charges for Subtenant’s property. In addition, if Subtenant fails to remove Subtenant’s property within 30 days after written notice, Sublandlord may deem all or any part of Subtenant’s property to be abandoned, and title to Subtenant’s property shall be deemed automatically vested in Sublandlord.
45.INTENTIONALLY OMITTED.
46.SHORING. If any excavation or construction is made adjacent to, upon or within the Building, or any part thereof, Subtenant shall afford to any and all persons causing or authorized to cause such excavation or construction license to enter upon the Premises for the purpose of doing such work as such persons shall deem necessary to preserve the Building or any portion thereof from injury or damage and to support the same by proper foundations, braces and supports, without any claim for damages or indemnity or abatement of rent, or of a constructive or actual eviction of Subtenant.
47.ENVIRONMENTAL CONDITION OF THE PROPERTY.
(a)Subtenant Covenants. Subtenant agrees (i) that Subtenant will not violate any present or future federal, state or local environmental or public health laws, rules, regulations and ordinances (hereinafter collectively referred to as the “Environmental Laws”); (ii) that Subtenant will not use, store, dispose, or generate any “hazardous materials”, “waste materials”, “solid waste”, “hazardous waste”, hazardous substances”, “medical waste”, “biomedical waste”, and including but not limited to oil and polychlorinated biphenyls, as those terms are defined in the Environmental Laws (hereinafter collectively referred to as the “Hazardous Materials”) at the Building, other than those Hazardous Materials used, stored, or generated by Subtenant in connection with its Use of the Premises; (iii) that Subtenant will not cause or permit any condition which would create Hazardous Materials contamination at the Building, excluding Hazardous Materials, if any, present in the Building prior to the commencement of the Term; (iv) that Subtenant will give notice to the Sublandlord promptly upon the Subtenant’s acquiring knowledge of the presence of any Hazardous Materials at the Building or of any Hazardous
-30-
Materials contamination, in each instance, in violation of applicable Environmental Laws, with a description of Subtenant’s knowledge thereof; (v) that Subtenant will give notice to the Sublandlord promptly of any notice of violation issued to Subtenant of applicable Environmental Laws regulating Hazardous Materials or any requests for information issued to Subtenant from any federal, state, county, regional or local governmental authority concerning Hazardous Materials and Hazardous Materials contamination at the Building; (vi) that Subtenant will promptly comply with applicable Environmental Laws requiring the removal or disposal of such Hazardous Materials or Hazardous Materials contamination caused by Subtenant and provide the Sublandlord with satisfactory evidence of compliance required under applicable Environmental Laws.
(b)Indemnification. Subtenant covenants and agrees at all times to indemnify, hold harmless and defend Sublandlord, its successors and assigns, as owner of the Building from and against any and all liability, loss, damage, cost, expense (including, without limitation, reasonable attorneys’ fees and expenses), cause of action, suit, claim, demand or judgment against the Subtenant and/or the Building of any nature pertaining to Hazardous Materials located or emanating from or relating to the Building, if and to the extent caused by Subtenant, including, but not limited to, liens or claims of any federal, state or municipal government or quasi-governmental agency or any third person, whether arising under any federal, state or municipal law or regulation or tort, contract or common law.
(c)Sublandlord’s Right to Remove Hazardous Materials. Sublandlord shall have the right, but not the obligation, and without in any way limiting the Sublandlord’s rights and remedies, to enter into the Premises or to take such other actions as it reasonably deems necessary to clean up, remove, resolve or minimize the impact of, or otherwise deal with, any Hazardous Materials contamination at the Building to comply with applicable Environmental Laws, following receipt of any notice from any person or entity asserting the existence of any Hazardous Materials or Hazardous Materials contamination, in each instance, in violation of applicable Environmental Laws, pertaining to the Building or any part thereof which, if true, could result in an order, suit, imposition of a lien on the Building. All reasonable costs and expenses paid or incurred by the Sublandlord in the exercise of any such rights relating to a violation of applicable Environmental Laws caused by Subtenant shall be payable by the Subtenant within 30 days following Sublandlord’s written notice; provided, however, that Subtenant shall not be responsible for any Landlord’s costs and expenses paid or incurred in connection with Hazardous Materials at the Building, the presence of which is not caused by Tenant. Sublandlord’s exercise of said right with respect to any violation of applicable Environmental Laws caused by Subtenant will not excuse or change Subtenant’s obligations as set forth in Section 47(a)(vi).
(d)Closure Obligations. Subtenant agrees that, if Subtenant is obligated pursuant to applicable Environmental Laws to close any hazardous waste storage area associated with Subtenant’s Use, if such required closure has not been fully completed as of the expiration date of this Sublease, despite Subtenant’s good faith efforts to do so, Subtenant shall, in connection therewith, and as security for Subtenant’s obligation, on Sublandlord’s request deposit with Sublandlord a reasonable sum, not to exceed $30,000, which Sublandlord shall be entitled to continue to hold as security until completion of the required closure of Subtenant’s hazardous waste storage area in accordance with applicable Environmental Laws (the “Closure Obligation”). In lieu of cash, Subtenant may provide Sublandlord with an unconditional, irrevocable, assignable letter of credit, (the “Letter of Credit”) for all or a portion of such
-31-
amount. In the event Subtenant furnishes the Letter of Credit, the Letter of Credit shall be on the following terms and conditions: (i) issued by a commercial bank acceptable to Sublandlord, which bank must have an office in Hartford, Connecticut, (ii) having a term which shall have an expiration date not sooner than the date which is five (5) years from the expiration date of this Sublease or sooner termination date, however, if the Letter of Credit has an earlier expiration date, it shall contain a so-called “evergreen clause”; (iii) available for negotiation by draft(s) at sight accompanied by a statement signed by Sublandlord stating that the amount of the draw represents funds due to Sublandlord (or its successors and assigns) due to the failure of Subtenant to perform its Closure Obligation or (iv) be otherwise on terms and conditions reasonably satisfactory to Sublandlord. It is agreed that in the event Subtenant fails to perform its Closure Obligation, Sublandlord may draw upon the Letter of Credit or upon the funds held on account as Security Deposit to the extent required to perform the same. In the event that Subtenant shall fully and faithfully perform its Closure Obligation (as evidenced by a sign off or other definitive communication from the applicable governmental authorities, to the extent that, pursuant to applicable Environmental Laws, closure is not self-executing), and shall have surrendered the Premises pursuant to the terms and conditions of this Sublease, the Letter of Credit and/or funds on deposit with Sublandlord shall be returned to Subtenant. Subtenant further covenants that it will not assign or encumber or attempt to assign or encumber the Letter of Credit or any funds on deposit and that neither Sublandlord nor its successors or assigns shall be bound by any such assignment, encumbrance, attempted assignment or attempted encumbrance.
48.INTENTIONALLY OMITTED.
49.FF&E. Subtenant shall be permitted to use the furniture, fixtures and equipment in the Premises on the Commencement Date (the “FF&E”) (which FF&E consists of a portion of the furniture, fixtures and equipment acquired by Sublandlord from the former occupant of the Premises). Sublandlord represents and warrants that all furniture, fixtures and equipment that it acquired from the former occupant of the Premises which Subtenant required to be removed from the Premises, has been, or will be, removed by Sublandlord from the Premises prior to the Effective Date. Subtenant shall maintain and repair the FF&E, but shall not be required to replace any FF&E if it wears out, and the FF&E shall remain Sublandlord’s property and shall remain in the Premises upon the expiration or sooner termination of this Sublease.
50.RENEWAL OPTION. Provided that this Sublease is in full force and effect and Subtenant is not in default hereunder, beyond applicable notice, grace and cure periods, Subtenant shall have the right to renew the term of this Sublease for one (1) period of one (1) year. In order to exercise such option, Subtenant must so notify Sublandlord, in writing, not less than six (6) months before the end of the initial term of this Sublease, time being of the essence. If Subtenant properly exercises such renewal option, then all of the terms and conditions of this Sublease shall apply to the renewal term, except that Subtenant shall have no remaining renewal options and annual rent shall be $551,176.50 per year ($24.50 per rentable square foot), payable in monthly installments of $45,931.38.
-32-
51.PRIME LEASE. This Sublease is subordinate to that certain Lease Agreement between WE 300 George Street, L.L.C. (“Landlord”) and Tenant dated as of May 1, 2006, as amended (the “Prime Lease”), provided that Sublandlord will obtain a non-disturbance agreement from Landlord upon the execution of this Sublease. Notwithstanding anything to the contrary contained herein, the parties agree that this Sublease shall only be subject to the provisions of the Prime Lease to the extent the same are expressly incorporated into this Sublease. In the event of a conflict between the terms and conditions of the Prime Lease and this Sublease, this Sublease shall control. The following provisions shall apply relating to the Prime Lease:
(a)In any case where the Sublandlord reserves the right to enter the Premises, said right shall inure to the benefit of the Landlord as well as to Sublandlord.
(b)With respect to work, services, repairs, replacements and restoration or the performance of other obligations required of the Sublandlord under this Sublease, which work, services, repairs, replacements or restoration is the obligation of Landlord under the Prime Lease (as incorporated in Section 10 of this Sublease), Sublandlord's sole obligation, with respect thereto, shall be to request the same, on request in writing by Subtenant, and to use reasonable efforts to obtain the same from Landlord. In the event that Sublandlord does not request any such services, repairs, replacements or restoration itself, Subtenant shall have the right to request the same directly from Landlord, and, to the extent that Sublandlord does not bring any proceedings to enforce the same itself, to conduct such proceedings (in court or elsewhere), as may be required, to obtain from Landlord any such work, services, repairs, replacements, and restoration or the performance of such obligations; such proceedings may be, at Sublandlord's option, in its own name or in Sublandlord's name, and Sublandlord agrees to cooperate with Subtenant in connection therewith and to execute such documents as may be required in connection therewith; Subtenant agrees to reimburse Sublandlord for any reasonable legal or other expenses incurred by Sublandlord in any such court or other proceeding.
(c)Except for those Sections of the Prime Lease that are expressly incorporated into this Sublease, the remaining Sections of the Prime Lease are excluded from and do not apply with respect this Sublease.
In addition, Sublandlord hereby represents, covenants, and agrees to the following to Subtenant regarding the Prime Lease:
(i)The expiration date of the Prime Lease is April 30, 2032.
(ii)To the best of Sublandlord’s knowledge, Landlord is not in default under the Prime Lease.
(iii)As of the Commencement Date, Sublandlord shall not be in default under the Prime Lease and the Prime Lease shall be in full force and effect.
(iv)Sublandlord shall not breach the Prime Lease.
(v)Other than the consent of Landlord, no other consents to the execution, effectiveness and delivery of this Sublease are required.
-33-
(vi)There are no terms or conditions in the Prime Lease which (A) have not been incorporated into this Sublease and (B) could (1) have a material adverse effect on Subtenant, Subtenant’s use or enjoyment of the Premises and/or Subtenant’s rights and remedies under this Sublease, (2) cause Tenant to incur out-of-pocket costs or expenses, and/or (3) expand Subtenant’s obligations beyond those expressly set forth in this Sublease.
(vii)The roof of the Building is in good condition, leak-free and the Building structure, and doors and windows of the Building and the Premises, are in good working order.
52.MISCELLENEOUS.
(a)This Sublease may be executed in one or more counterparts, each of which shall be deemed an original and all of which, when taken together, shall constitute a single instrument and may be delivered by e-mail or facsimile transmission, and any such e-mail or facsimile transmitted Sublease shall have the same force and effect as hardcopy originals.
(b)This Sublease shall be governed by and construed in accordance with the internal laws of the State of Connecticut.
[Remainder of page intentionally left blank; signature pages follow.]
-34-
IN WITNESS WHEREOF, the parties hereto have hereunto set their hands and seals the day and year first above written.
| Signed, Sealed, and Delivered | 
 | SUBLANDLORD: | ||
| in the Presence of: | 
 | YALE UNIVERSITY | ||
| 
 | 
 | 
 | 
 | 
 | 
| /s/ Karen King | 
 | By | 
 | /s/ Lauren Zucker | 
| Karen King | 
 | 
 | 
 | Lauren Zucker | 
| 
 | 
 | Its | 
 | AVP Office of New Haven & | 
| /s/ Marianne Scandone | 
 | & | 
 | University Properties | 
| Marianne Scandone | 
 | 
 | 
 | 
 | 
| 
 | 
 | 
 | 
 | 
 | 
| 
 | 
 | SUBTENANT: | ||
| 
 | 
 | 
 | ||
| 
 | 
 | ACHILLION PHARMACEUTICALS, INC. | ||
| 
 | 
 | 
 | 
 | 
 | 
| /s/ Ky Nam-Wortman | 
 | By | 
 | /s/ Joseph Truitt | 
| 
 | 
 | 
 | 
 | Joseph Truitt | 
| 
 | 
 | Its | 
 | CEO | 
| /s/ Paul E. Firuta | 
 | 
 | 
 | 
 | 
| 
 | 
 | 
 | 
 | 
 | 
| 
 | 
 | 
 | 
 | 
 | 
-35-
CONSENT TO SUBLEASE
WE 300 George Street, L.L.C. (the “Landlord”) hereby consents to the attached Sublease (the “Sublease”) dated as of September 13, 2019 between Yale University, as Sublandlord, and Achillion Pharmaceuticals, Inc., as Subtenant, for certain premises located at 300 George Street, New Haven, Connecticut, all as more particularly described in the Sublease.
Date of Consent: September 13, 2019
LANDLORD:
WE 300 George Street, L.L.C.
| By: | 
 | /s/ Carter Winstanley | 
| Name: | 
 | Carter Winstanley | 
| Title: | 
 | Manager | 
| 
 | 
 | Hereunto Duly Authorized | 
-36-
Floor Plan of Premises
-37-

Shared mechanical room available space 3,377 RFS L2 diagnostics suite 309 yale neurology suit 353 available space 22,496 rsf yale mother’s room suites 3f-3g (eligible) architects (logo) partners floor three (eligible)
Subtenant’s Work
| 
 | 1. | Data Center Prep: | 
| 
 | a. | Install wiring and cables | 
| 
 | b. | Install racks | 
| 
 | c. | Extend internet connectivity | 
| 
 | d. | Security to data center room | 
| 
 | 2. | Data Center Move: | 
| 
 | a. | Move servers, storage and networking gear | 
| 
 | b. | Need to ensure that the data center is secured to only Achillion IT and Facilities staff | 
| 
 | 3. | Conference Room Prep: | 
| 
 | a. | Run wiring to conference room areas to support AV | 
| 
 | b. | Mount TVs on walls | 
| 
 | c. | Install and test conference room Polycom phones | 
| 
 | 4. | End User Equipment: | 
| 
 | a. | Test wiring at user workstations | 
| 
 | 5. | Pre-Work: | 
| 
 | a. | Paint the entrance wall, reception area, admin areas, offices and hallways within the Premises. | 
| 
 | b. | Carpet reception, conference room, common areas and hallways and install new vinyl base within the Premises. | 
| 
 | c. | Install new vinyl plank flooring in the hallways within the Premises that have vinyl composite tile. | 
| 
 | d. | Install electrical circuits in locations in the labs to service lab equipment. | 
| 
 | e. | Install IT data rack and internet cabling for equipment in the existing server room at the Premises. | 
| 
 | f. | Install security system at entrances to the Premises | 
| 
 | g. | Install signage on the entrance wall in the elevator lobby on the third floor of the Building. | 
| 
 | h. | Demise the Premises in accordance with the Premises demising plans and specifications that have been approved by each of Sublandlord and Landlord as of the Effective Date (“Subtenant’s Demising Work”). | 
| 
 | i. | Install the air compressor for the labs (the “Air Compressor”). | 
| 
 | j. | HVAC Testing and verification | 
-37-
| 
 | l. | Move Labs supplies | 
| 
 | m. | Lab Equipment Move | 
| 
 | n. | Chemical Fume Hoods validated for use | 
| 
 | o. | Begin furniture move / install | 
| 
 | p. | Move lab freezers and remaining lab equipment | 
| 
 | q. | Install Bio Safety cabinets certified and validated for use | 
| 
 | r. | Move remaining furniture, desk contents and people | 
-38-
Rules and Regulations
Attached
-39-
BUILDING RULES AND REGULATIONS
The following rules and regulations shall apply, where applicable, to the Premises, the Building, the parking garage (if any), the Property and the appurtenances. Capitalized terms have the same meaning as defined in the Lease.
| 
 | 1. | Sidewalks, entrances and doorways, elevators, vestibules, common corridors and common halls, stairways and other similar areas shall not be obstructed by Tenant or used by Tenant for any purpose other than ingress and egress to and from the Premises and for delivery of merchandise and equipment in prompt and efficient manner. No rubbish, litter, trash, or material shall be placed, emptied, or thrown in those areas. At no time shall Tenant permit Tenant’s employees to loiter in Common Areas or elsewhere about the Building or Property. | 
| 
 | 2. | No showcases or other articles shall be put in front of or affixed to any part of the exterior of the Building, nor placed in common halls, corridors or vestibules, nor shall any article obstruct any air-conditioning supply or exhaust without the prior written consent of Landlord, such consent not to be unreasonably withheld, delayed or conditioned. | 
| 
 | 3. | Plumbing fixtures and appliances shall be used only for the purpose for which designed, and no sweepings, rubbish, rags, acids or other unsuitable material shall be thrown or placed in the fixtures or appliances. Damage resulting to fixtures or appliances by Tenant, its agents, employees or agents, shall be paid for by Tenant, and Landlord shall not be responsible for the damage. | 
| 
 | 4. | No signs, advertisements or notices shall be painted or affixed to windows, doors or other part of the Building, except those of such color, size, style and in such places as are first approved in writing by Landlord. All tenant identification and suite numbers at the entrance to the Premises shall be installed by Landlord, at Tenant’s cost and expense, using the standard graphics for the Building. Except in connection with the hanging of lightweight pictures and wall decorations, no nails, hooks or screws shall be inserted into any part of the Premises or Building except by the Building maintenance personnel. | 
| 
 | 5. | Landlord shall provide and maintain in the first floor (main lobby) of the Building a directory board or other directory device listing tenants, as well as signage at the entrance to its Premises and no other directory shall be permitted unless previously consented to by Landlord in writing. | 
| 
 | 6. | Tenant shall not place any lock(s) or electronic keys (collectively, “keys”) on any door in the Premises or Building without Landlord’s prior written consent and Landlord shall have the right to retain at all times and to use keys to all keys within and into the Premises (subject to any limitations on entry set forth in the Lease). A reasonable number of keys to the locks on the entry doors in the Premises shall be furnished by Landlord to Tenant at Tenant’s cost, and Tenant shall not make any duplicate keys. All keys shall be returned to Landlord at the expiration or early termination of this Lease. Any locks changed with Landlord’s permission will be changed back upon lease termination to the building master standard at Tenant’s cost. If applicable, Tenant shall provide key(s) and or access card(s) to be placed in fire Knox box. | 
| 
 | 7. | Corridor doors, when not in use, shall be kept closed. | 
| 
 | 9. | All contractors, contractor’s representatives and installation technicians performing work in the Building shall be subject to Landlord’s prior approval, not to be unreasonably withheld and shall be required to comply with Landlord’s standard rules, regulations, policies and procedures, which may be revised from time to time. | 
| 
 | 10. | Movement in or out of the Building of furniture or office equipment, or dispatch or receipt by Tenant of merchandise or materials requiring the use of elevators, stairways, lobby areas or loading dock areas, shall be restricted to reasonable hours designated by Landlord. Tenant shall obtain Landlord’s prior approval by providing a detailed listing of the activity. If approved by Landlord, the activity shall be under the supervision of Landlord and performed in the manner required by Landlord. Tenant shall assume all risk for damage to articles moved and injury to any persons resulting activity. If equipment, property, or personnel of Landlord or of any other party is damaged or injured as a result of or in connection with the activity, Tenant shall be solely liable for any resulting damage or loss. If building personnel are on-site during the move outside of normal business hours, Tenant shall reimburse Landlord for 1.25 times the costs incurred. | 
| 
 | 11. | Deliveries to and from the Premises shall be made only at the times, in the areas and through the entrances and exits designated by Landlord. Tenant shall not make deliveries to or from the Premises in a manner that might interfere with the use by any other tenant of its premises or of the Common Areas, any pedestrian use, or any use which is inconsistent with good business practice. | 
| 
 | 12. | There shall not be in used in any space, or in the public halls of the Building, either by Tenant or by jobbers or others, in the delivery or receipt of merchandise, any hand trucks, except those equipped with rubber tires and side guards. | 
| 
 | 13. | Landlord shall have the right to approve the weight, size, or location of heavy equipment or articles in and about the Premises. Damage to the Building by the installation, maintenance, operation, existence or removal of the property of Tenant shall be repaired at Tenant’s sole expense. | 
| 
 | 14. | Tenant shall not: (1) make or permit any improper, objectionable or unpleasant noises or odors in the Building, or otherwise interfere in any way with other tenants or persons having business with them; (2) solicit business or distribute, or cause to be distributed, in any portion of the Building, handbills, promotional materials or other advertising; or (3) conduct or permit other activities in the Building that might, in Landlord’s sole opinion, constitute a nuisance. | 
| 
 | 15. | No animals, except those assisting handicapped persons or those necessary for the conduct of Tenant’s business, shall be brought into the Building or kept in or about the Premises. | 
| 
 | 17. | Tenant shall not use, or permit any part of the Premises to be used, for lodging, sleeping or for any illegal purpose. | 
| 
 | 18. | Tenant shall not install, operate or maintain in the Premises or in any other area of the Building, electrical equipment that would overload the electrical system beyond its capacity for proper, efficient and safe operation as determined solely by Landlord. Tenant shall not furnish cooling or heating to the Premises, including, without limitation, the use of electronic or gas heating devices, without Landlord’s prior written consent. Tenant shall not use more than its proportionate share of telephone lines and other telecommunication facilities available to service the Building. | 
| 
 | 19. | Tenant shall not install, operate or permit to be operated a coin or token operated vending machine or similar device (including, without limitation, telephones, lockers, toilets, amusement devices and machines for sale of beverages, foods, candy, cigarettes and other goods), without Landlord’s written consent. | 
| 
 | 20. | Landlord shall have the right to prohibit the use of the name of the Building or any other publicity by Tenant that in Landlord’s sole opinion may impair the reputation of the Building or its desirability. Upon written notice from Landlord, Tenant shall refrain from and discontinue such publicity immediately. | 
| 
 | 21. | Tenant shall not canvas, solicit or peddle in or about the Building or the Property. | 
| 
 | 22. | Neither Tenant nor its agents, employees, contractors, guests or invitees shall smoke or permit smoking in the Premises or in Common Areas, unless the Common Areas have been declared a designated smoking area by Landlord. Landlord shall have the right to designate the entirety of the Building (including the Premises) as a non-smoking building. | 
| 
 | 23. | Landlord shall have the right to designate and approve standard window coverings for the Premises and to establish rules to assure that the Building presents a uniform exterior appearance. Landlord shall provide existing Building standard blinds on the exterior windows of the Premises. Tenant shall ensure, to the extent reasonably practicable, that window coverings are closed on windows in the Premises while they are exposed to the direct rays of the sun. | 
| 
 | 24. | The work of cleaning personnel in the common areas shall not be hindered by Tenant after 5:30 p.m., and cleaning work may be done at any time when the offices are vacant. Windows, doors and fixtures may be cleaned at any time. Tenant will comply with the Building’s recycling policies. | 
| 
 | 
 | 
Winstanley Construction Management
Winstanley Property Management
Building Rules and Regulations
WE George Street, L.L.C.
300 George Street New Haven, CT 06511
| Kasia Brown | WPM Senior Property Manager | 978-287-8690 | kbrown@winent.com | 
| Mike DeBiasi | WPM Facilities Manager | 203-889-3269 | mdebiasi@winent.com | 
| John Hudson | WCM Senior Project Manager | 203-8893266 | jhudson@winent.com | 
| 
 | 
 | 
 | 
 | 
| Construction Fax | 
 | 203-624-5326 | 
 | 
Normal Construction Hours: 7:00 AM to 5:00 PM, Monday – Friday.
Alternative requirements/arrangements should be coordinated through Property Manager. A 48 hour notice is required, except in the event of an emergency.
Rules
All general contractors, subcontractors, suppliers, vendors, etc., shall be immediately advised of the following rules and regulations concerning their proper conduct within the building. If you are a general contractor, it is your responsibility to ensure that your subcontractors read and understand these rules and regulations.
Access to jobsite
Contractor must inform the Winstanley Construction Project Manager’s office in writing of construction start and completion dates. They must also provide the Winstanley Construction Project Manager’s office with a construction schedule and list of subcontractors, contract names and phone numbers. In addition, contractor must supply the Winstanley Construction Project Manager’s office with current certificates of insurance, per the contract specifications, for all contractors and subcontractors PRIOR TO THE COMMENCEMENT OF ANY ONSITE ACTIVITY. Winstanley Construction Management will further coordinate applicable details such as providing Winstanley Property Management at least 24 hour notice for access to buildings.
1
| 
 | 1. | Construction crews shall park in areas designated by Property Manager or Senior Building Engineer. Any unauthorized vehicle in the loading dock or fire lane areas shall be ticketed and towed at owner’s expense. | 
| 
 | 2. | The freight elevators are to be used solely for the transportation of materials and are available for the contractor and general building use. Instructions on the use of the freight elevator will be given by the Facilities Manager prior to the initial use by any contractor. Use of the freight elevator will be limited to authorized contractor personnel only. After hours scheduling of the freight elevator must be coordinated with the Facilities Manager. Stocking and/or vertical movement through the building of materials and/or personnel and equipment for tenant finish work shall be facilitated by use of the freight elevators only. At no time shall the Contractor, its workmen or suppliers, transport equipment or supplies via the passenger elevators. The cost of repairs shall be assessed against Contractor if elevators are damaged by the use of contractor and contractor employees. It is mandatory that the Contractor clean the freight elevators after use. | 
| 
 | 3. | Stocking shall take place only at the scheduled time and only by use of the loading dock, unless special arrangements have been made in advance. Contractors will not be provided with exclusive use of the freight elevator at any time, though 48 hours advance notice will enhance scheduling opportunities. All material must be clearly identified prior to being hoisted. The maximum load allowed in the freight elevator shall not exceed their maximum rated capacity of 5,000 pounds. | 
| 
 | 4. | Proper floor, wall and door frame and other protections are expected to be provided and maintained for large deliveries of materials, for entrances to construction areas, and common areas located between the freight elevators and construction areas. Construction paths across common areas and/or lobbies must be kept clean at all times and such cleaning will be the responsibility of the construction contractor. Proper dust control measures must be utilized and maintained at all times, including installation of pre-filters on air handling units. | 
| 
 | 5. | All after hours work must be scheduled through Winstanley Construction Project Manager and is subject to further coordination with the Property Manager. If a contractor deems it necessary to perform work before 7:00 AM or after 5:00 PM Monday through Friday, or at any time during the weekend, it shall be that Contractor’s responsibility to submit a request accordingly to the Winstanley Construction Project Manager’s office 48 hours prior to the start of work, except in the event of an emergency. After hours work may not take place without Winstanley Construction Project Managers prior approval. | 
| 
 | 6 | After hour access to tenant spaces or secured floors will require authorization from the tenant and coordinated by Winstanley Property Management before access can be granted. Extra cost, if any, incurred by the Winstanley Construction Project Manager to facilitate Contractor’s after hours work, shall be reimbursed to the Winstanley Construction Management. All after hours work must be scheduled through Winstanley Construction Project Manager and is subject to further coordination with the Property Manager. | 
2
| 
 | 8 | No equipment or materials are to be stored outside the confines of the specific construction area without the consent of the Property Manager | 
| 
 | 9 | No changes to the fire system (including but not limited to sprinklers, fire alarm devices, signal and power supply boards) within the tenant premises or common areas shall be made without prior coordination, scope review and approval from Winstanley Property Management. | 
| 
 | 10 | All Fire System testing and inspections are to be scheduled through the Winstanley Construction Project Manager and Senior Building Engineers with no less than 48 hours’ notice, except in the event of an emergency. | 
Cooperation
| 
 | 1. | Winstanley Construction Project Manager may require that barriers be constructed around work areas and that all work be conducted and all tools and materials are kept behind such barriers and that all cutting, drilling or other noisy work is conducted outside the tenant’s normal business hours unless cleared through the Property Manager. | 
| 
 | 2. | The Contractor is responsible at all times for keeping work areas and all adjacent areas free from accumulation of waste material and/or rubbish caused by their subcontractors, workmen or suppliers. | 
| 
 | 3. | The Contractor is responsible for leaving the work area in a broom clean condition at the end of each work day. The Contractor is also responsible for the final clean-up which shall include but not limited to light fixtures, windows and trim, entries and public spaces affected by the work, janitorial rooms and mechanical rooms. Any repair or cleaning cost incurred by the Winstanley Construction Project Manager relative to the Contractor’s work, including but not limited to delinquency in attending to repairs or cleaning, shall be paid by the Contractor. | 
| 
 | 4. | Smoking is allowed in outside designated areas only and proper disposal of cigarettes is required. There is not a designated smoking area on the grounds. Contractors should verify locations with the Property Manager. | 
| 
 | 5. | Contractors, subcontractors, workmen and suppliers shall be required to use the restrooms located in the areas of construction. Use of the building restrooms other than those designated above are restricted and off limits to construction personnel. Designated restrooms will be identified upon commencement of project. | 
| 
 | 6. | The designated restroom facilities shall be maintained by the Contractor during the construction process. Any required repairs to the facilities during use by the Contractor shall be the responsibility of the Contractor. Winstanley Property Management reserves the right to appropriately bill back to the Contractor required repairs not addressed by the Contractor during their use. If one is not available, it is the sole responsibility of the contractor to provide a portable restroom. | 
3
Technical Procedures
| 
 | 1. | WE George Street, L.L.C. has a Notifier system fire/life safety system; therefore precautions need to be taken by the Contractor in order to avoid false alarms. These precautions will likely include covering smoke detectors and/or periodically disabling fire alarm zones. Any work that may impair the fire and life safety system must be coordinated through Winstanley Construction Project Manager and Facilities Manager. Cost incurred by WE George Street, L.L.C. for false alarms caused by the Contractor will be passed on to the Contractor. Methods employed to avoid false alarms must not compromise life safety in the building. | 
| 
 | 2. | Emergency lighting, life safety and energy management systems shall not be disconnected under any circumstance without prior approval of the Winstanley Construction Project Manager and Senior Building Engineers. No changes to the life safety and/or fire systems (including but not limited to sprinklers, fire alarm devices, signal and power supply boards) within the tenant premises or common areas shall be made without prior coordination, scope review and approval from Winstanley Property Management. Upon approval, the work shall be performed expeditiously and emergency systems shall be restored immediately upon completion. | 
| 
 | 3. | All abandoned equipment, cabling, ductwork, piping etc. shall be removed by the Contractor at the time it becomes abandoned or at the time it is discovered to be abandoned. Verification with the Winstanley Construction Project Manager and Senior Building Engineer prior to removal is required. | 
| 
 | 4. | No core drilling, concrete removal or structural steel alteration shall be performed without prior written consent from the Winstanley Construction Project Manager, Winstanley’s structural engineer of record for the project and Senior Building Engineer If building is occupied during the construction project, core drilling and other similar processes that may create disruption to tenant due to noise, vibration, etc. must be completed before 7:00 AM and properly coordinated with the Property Manager. | 
| 
 | 5. | The Contractor must take prudent precautions to ensure that no one (including occupants, visitors, building personnel, inspectors and workmen) will be exposed to potentially harmful construction activities. This includes use of power actuated tools, core drilling and certain types of demolition. These activities should be coordinated with the Winstanley Construction Project Manager and Senior Building Engineer to minimize conflicts with other tenants in adjacent spaces or floors. | 
| 
 | 6. | Temporary power is available at the electrical closets on each floor. Locations should be verified with the Property Manager prior to use. Additional power requirements beyond those provided shall be the responsibility of the Contractor and shall also be coordinated with the Property Manager. | 
4
| 
 | 8. | The Winstanley Construction Project Manager and Facilities Manager shall be notified 48 hours in advance before the Contractor cuts into any duct, sprinkler line, water meter, natural gas meter and lab gas meters or before moving any air handling equipment, heat pump, radiant panel, thermostat, etc. Additionally 48 hour notice is required prior to be giving approval to drain any sprinkler lines. Drainage of sprinkler lines must occur no later than 7:00 AM to avoid odors permeating the building during normal working hours. Additionally, the sprinkler work must be coordinated in such a manner that the sprinkler and fire protection system is back on line by 3:00 PM the same working day. | 
| 
 | 9. | Keying-All interior and exterior door locks are required to be keyed under the WPM Grand Master key system. The tenant will have a master key to their space in order for the tenant to access all doors; each door will then be keyed to separate sub-master keys. WCM contractor will utilize preferred WPM locksmith vendor for all keying. Once keying is completed, contractor will provide a key transmittal along with all copies of keys to the PM. | 
| 
 | 10. | Painting, varnishing and any processes that involve petroleum or solvent based chemicals may not be performed during normal business hours. Latex or water bases processes may be reviewed on a case by case application during normal business hours. | 
| 
 | 11. | The Winstanley Construction Project Manager or Facilities Manager reserves the right to withhold approval for the Contractor to use any material which the Winstanley Construction Project Manager, in its sole discretion, deems could be harmful to the building or its occupants. | 
| 
 | 12. | All fire alarm repairs that require tie in to the base building fire alarm system shall be performed by Monitor Controls and scheduled through Winstanley Property Management at the Contractor’s expense. No exceptions will be considered. | 
| 
 | 13. | All cabling (included but not limited to telephone and computer cabling) shall be plenum rated and independently supported: existing wire, pipes, conduits, ceiling grid, etc. shall not be used to support cable. Any required low voltage permits will be the responsibility of the Contractor. All unused cable will be completely removed from the project area to the point of origin. | 
| 
 | 14. | Prior to any demolition or remodeling, Contractor shall review with the Winstanley Construction Project Manager and Facilities Manager the location of all related wiring, sensors and thermostats and ensure they are not damaged in conjunction with the Contractor’s work. In the event temporary removal is necessary, Contractor shall obtain Winstanley Construction Project Manager and Senior Building Engineer prior approval, which shall require a plan for their relocation/reinstallation. Unapproved removal of any components in this system will result in a back charge to the Contractor for repairs, replacement and incidental cost. | 
5
| 
 | 16. | Contractor must have a minimum of one 10 lb. ABC fire extinguisher per 5,000 sf area on the construction site at all times. | 
| 
 | 17. | No Hot Work may be performed without a hot work permit issued by Winstanley Property Management or its agent. This includes welding, grinding, cutting, brazing, soldering, etc. The hot work permit procedure is available in the Property Manager’s office. Any project requiring welding shall be reviewed and approved by the Facilities Manager prior to any work commencing. A fire watch is required and must fulfill the role up to 24 hours after the hot work is completed. | 
| 
 | 18. | All flammable, combustible and toxic materials are to be stored in approved containers supplied by the Contractor at all times. No gasoline powered devices will be permitted within the building. All equipment will be electrically operated. All hazardous materials must be removed by the Contractor according to EPA and OSHA guidelines upon completion of the project. | 
| 
 | 19. | No one shall be allowed to endanger the building or its occupants in any manner whatsoever. Contractor shall immediately correct any hazardous conditions. If Contractor fails to correct the hazardous condition, Winstanley Construction Project Manager or Winstanley Property Management reserves the right to correct the situation at the Contractor's expense. | 
| 
 | 20. | Existing window treatments should be covered in plastic for the duration of the project. | 
| 
 | 21. | Tenant's telecommunication and telephone equipment may not be installed in the building telephone closets. Tenant telecommunication and telephone must be installed in the tenant's leased premises. | 
Safety
| 
 | 1. | All state, local and federal safety rules and regulations must be observed at all times. All contractors shall cooperate in every detail with any and all other safety requirements imposed by Winstanley Construction Project Manager, Winstanley Property Management or its agent. | 
| 
 | 2. | Each Contractor shall be responsible for providing and maintaining its own first aid kit. | 
| 
 | 3. | Contractor shall insure that proper working attire, including personal protective equipment is worn at all times while Contractor's workers are on site. Personal protective equipment shall include but not be limited to hard hat, safety glasses and yellow vests and work boots at all times. Shorts, sandals, open toed foot apparel are strictly prohibited. | 
6
| 
 | 5. | Winstanley Construction Project Manager reserves the right to restrict and/or deny the presence of toxic or flammable materials in the building. Information relative to any toxic or flammable material shall be provided to the Winstanley Construction Project Manager before such materials are brought into the building. If permitted into the building the Contractor shall maintain a binder with all the Material Safety Data Sheets. | 
| 
 | 6. | At no time shall the Contractors employ methods to prevent stairwell doors from closing and latching or otherwise block any fire egress routes within the construction area or elsewhere in the building. This is a code violation that would severely impact the building's fire safety system during and emergency. | 
| 
 | 7. | All reportable accidents occurring at the Building should be reported immediately to Winstanley Construction Management Project Manager and Winstanley Property Management. | 
Damage Prevention
| 
 | 1. | Contractors are only permitted access to the specific floors on which they are working and common area hallways. All other areas are considered off limits. This includes construction personnel using microwaves and other office equipment belonging to the tenants. Construction personnel are not to utilize the tenant's break/vending areas within tenant occupied spaces. | 
| 
 | 2. | Any access required into a finished area shall be coordinated with the Winstanley Construction Project Manager or Property Manager. The Contractors shall then assume complete responsibility for the area and shall bear all cost for repair of new or existing work. | 
| 
 | 3. | Each Contractor will be responsible for properly protecting and safeguarding its work. Winstanley Construction Manager and Winstanley Property Management or its agent shall not in any way be held liable for damage or loss to the Contractor's work. Damage shall, however, be paid for by the damaging contractor as determined solely by the Winstanley Construction Manager. | 
Other
| 
 | 1. | Dumpster locations for construction debris must be pre-approved by Winstanley Construction Manager or the Senior Building Engineer. All locations are subject to change at the discretion of Winstanley Construction Manager or the Senior Engineer. Contractors must arrange for removing trash from the building. | 
| 
 | 2. | Winstanley Construction Manager, the Senior Building Engineer or its agent may inspect construction areas at any time and stop work if Contractor is not in compliance with these rules and/or not performing work in accordance with plans and specifications approved by the Winstanley Construction Manager. Such work stoppages shall not relieve Contractor of its responsibility for timely completion of work pursuant to any contractual agreement. | 
7
| 
 | 3. | Winstanley Construction Manager does not provide for the Contractor's security. Security shall be the responsibility of the Contractor. | 
| 
 | 4. | Provisions for the Contractor's on site telephone shall be the Contractor's responsibility. | 
| 
 | 5. | At the completion of the job, deliver any warranty information, as-built drawings, balance reports and a certificate of compliance to the Winstanley Construction Manager's office and Winstanley Property Management. | 
| 
 | 6. | Where a Contractor is engaged directly by a tenant, all references to Winstanley Construction Manager herein shall be considered “Landlord”. The tenant is responsible for the performance of the Contractor, their subcontractors, workmen and suppliers, as well as any expenses incurred by the Contractor from the Winstanley Construction Project Manager. No work shall commence without Winstanley Construction Manager's advance written approval of plans. Any relative action detrimental to the building and/or its tenants shall become sole responsibility of that tenant. | 
| 
 | 7. | No radios, television sets or recorded music will be allowed on the construction site. | 
| 
 | 8. | The Contractor is responsible for filing and obtaining all required local building, fire and/or utility permits, as applicable, prior to commencement of any work and must be licensed or certified to perform all work where specified or required by law. The Contractor shall comply with all governmental inspection and fire department requirements related to the issuance of the building permit and shall display the building permit and inspection records as required by building code. Where applicable, permits are to be posted as directed by the Winstanley Construction Project Manager's office. No construction or alteration to the property may be started without the prior approval of the Winstanley Construction Project Manager. The Contractor must submit to the Winstanley Construction Project Manager a full set of stamped architectural drawings reflecting the full and completed scope of the project to be approved at least two weeks prior to the requested start of work and Winstanley Construction Project Manager to provide Winstanley Property Management. The Contractor will also insure their employees are fully trained in all areas of the work they undertake, including but not limited to the proper use of tools and equipment, and all safety equipment applicable to their assignment. | 
| 
 | 9. | Scope reviews must be performed by the Winstanley Construction Project Manager and Winstanley Property Management for any project requiring roof access. Once the review has been completed and approved access to the roof shall require coordination with and permission from the Property Manager. All Contractors with projects that include roof penetrations will be required to use only the roofing contractor authorized by the Building Owner. No exceptions will be made. Roofing conditions will be monitored at all times by the Building Owner and all Contractors will be held responsible for any damage that occurs as a result of vendor negligence. | 
| 
 | 10. | Regulations supplemental to those above may be incorporated as part of these Construction Rules if deemed appropriate by the Winstanley Construction Manager or Winstanley Property Management. | 
8