Please wait

EXHIBIT 10.1

SUBLEASE

THIS SUBLEASE (this “Sublease”) is dated for reference purposes as of August 4, 2023, and is made by and between ARSENAL BIOSCIENCES, INC., a Delaware corporation (“Sublessor”), and ASSEMBLY BIOSCIENCES, INC., a Delaware corporation (“Sublessee”). Sublessor and Sublessee hereby agree as follows:

1.
Recitals: This Sublease is made with reference to the fact that AP3-SF3 CT NORTH, LLC, as predecessor in interest to GNS NORTH TOWER, L.P., as landlord (“Master Lessor”), and Sublessor, as tenant, entered into that certain lease, dated as of October 29, 2019 (the “Master Lease”), with respect to premises consisting of approximately 39,973 rentable square feet of space, located on the sixth (6th) and seventh (7th) floors of Two Tower Place, South San Francisco, California (the “Premises”). A copy of the Master Lease is attached hereto as Exhibit A.
2.
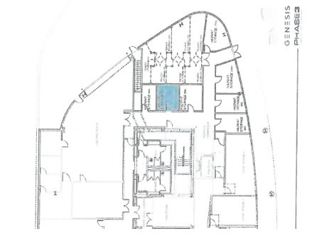
Premises: Sublessor hereby subleases to Sublessee, and Sublessee hereby subleases from Sublessor, the portion of the Premises consisting of approximately 19,983 rentable square feet of space located on the seventh (7th) floor (hereinafter, the “Subleased Premises”). The Subleased Premises are more particularly described on Exhibit B attached hereto. Together with its use of the Subleased Premises, Sublessee shall have the exclusive right to use the general storage area shown on Exhibit C attached hereto, and the exclusive right to use the chemical storage area shown on Exhibit C, on the terms of Section 5.2.10 of the Master Lease.
3.
Term:
A.
Term. The term (the “Term”) of this Sublease shall be for the period commencing on the date that is the last to occur of (i) November 1, 2023, (ii) the date on which Master Lessor consents to this Sublease and (iii) the date by which the Subleased Premises are delivered to Sublessee fully decommissioned with respect to Hazardous Materials used by Sublessor or its agents, employees, subtenants, licensees, contactors or invitees (other than Sublessee), as required by the local jurisdiction (“Fully Decommissioned”) and with the Internal Stairwell Work completed in accordance with Paragraph 7 below (the “Commencement Date”) and ending on the last day of the twenty-fourth (24th) full calendar month thereafter (the “Expiration Date”), unless this Sublease is sooner terminated pursuant to its terms or the Master Lease sooner expires pursuant to its terms and subject to the Extension Option in Paragraph 3.C below. For the avoidance of doubt, the Subleased Premises shall be deemed delivered when Sublessor has vacated the Subleased Premises and provides Sublessee keys or other means of access to the Subleased Premises with the work described in subpart (iii) of the first sentence of this Paragraph 3(A) completed.
B.
Early Possession. Sublessor shall permit Sublessee to enter the Subleased Premises prior to the Commencement Date (the “Early Access Period”) solely for the purpose of preparing the Subleased Premises for occupancy and not for the purpose of conducting business therein, commencing on the date by which (i) Master Lessor’s consent to this Sublease has been received, (ii) Sublessee has delivered to Sublessor the Security Deposit and first month’s Base Rent as required under Paragraph 4 and (iii) Sublessee has delivered to Sublessor evidence of all insurance required under this Sublease. Such entry shall be subject to all of the provisions of this Sublease, except for the obligation to pay Base Rent, Operating Expenses, Tax Expenses or Utilities Costs and shall not advance the Expiration Date of this Sublease. Sublessee acknowledges that Sublessor may be performing certain work in the Subleased Premises as provided in Paragraph 7 below during the Early Access Period.
C.
Option to Extend. If Sublessee is not and has not been in default under this Sublease and has not assigned this Sublease or subsublet any space covered thereby or agreed to do so in the future (except for an assignment or sublease or transfer of stock pursuant to Section 14.7 of the Master Lease or with respect to any pledge of Sublessee’s assets, as described in Paragraph 8 below), Sublessee shall have the option (the "Extension Option") to extend the Term with respect to the entirety of the Subleased Premises

 


 

through September 30, 2029, commencing when the initial Term expires (the "Extension Period"), subject to the following: (i) the Extension Option shall be exercised, if at all, by written notice of exercise delivered to Sublessor by Sublessee not less than six (6) months prior to the expiration of the initial Term; (ii) Sublessee shall accept the Subleased Premises during the Extension Period on an "AS-IS" basis; and (iii) if Sublessee is in default under this Sublease, at the time Sublessee exercises the Extension Option or at any time thereafter prior to or upon the commencement of the Extension Period, Sublessor shall have, in addition to all of its other rights and remedies, the right to terminate the Extension Option upon notice to Sublessee. If Sublessee exercises the Extension Option in a valid and timely fashion, the Term shall be extended for the Extension Period upon all of the terms and conditions of this Sublease, except that the Base Rent for the Extension Period shall be the lesser of the "Fair Market Rent" for the Subleased Premises for the Extension Term, as determined as set forth herein, and an amount equal to $6.25 per rentable square foot of the Subleased Premises per month, which Base Rent amount shall be increased on each anniversary of the first day of the Extension Period to an amount equal to 103.5% of the Base Rent for the preceding month. "Fair Market Rent" shall mean the then prevailing fair market monthly rental rate for the Subleased Premises based on a sublease of space of similar age, construction, size, level of improvement and location as the Subleased Premises. If Sublessee has properly exercised the Extension Option, Sublessor shall notify Sublessee of Sublessor’s estimate of the Fair Market Rent for the Extension Period within thirty (30) days thereafter. Within thirty (30) days after receipt of such estimate, Sublessee shall have the right either to (a) accept Sublessor’s estimate as the Fair Market Rent for the Extension Period; or (b) elect to determine the Fair Market Rent pursuant to an appraisal process to be conducted pursuant to the provisions of Exhibit D hereof. Failure on the part of Sublessee to elect such appraisal process within such period shall constitute acceptance of the Fair Market Rent as calculated by Sublessor. If Sublessee elects to determine the Fair Market Rent pursuant to the appraisal process, if the appraisal has not been completed prior to the expiration of the initial Term, Sublessee shall pay Base Rent at the rate calculated by Sublessor or $6.25 per rentable square foot of the Subleased Premises per month, whichever is less, with an adjustment to be made once Fair Market Rent is ultimately determined by such appraisal.
4.
Rent:
A.
Base Rent. Sublessee shall pay to Sublessor as base rent for the Subleased Premises for each month during the Term the following amounts per month (“Base Rent”).

 

 

Months

Monthly Rental

 

 

 

 

 

 

1 - 12

$109,906.50

 

 

 

 

 

 

13 – Expiration Date

$113,753.23

 

 

Base Rent shall be paid on or before the first (1st) day of each month. Base Rent and Additional Rent, as defined in Paragraph 4.B below, for any period during the Term hereof which is for less than one (1) month of the Term shall be a pro rata portion of the monthly installment based on a thirty (30) day month. If an increase in Base Rent becomes effective on a date other than the first day of a calendar month, the Base Rent for that month shall be the sum of the two applicable rates, each prorated for the portion of the month during which the rate is in effect. Base Rent and Additional Rent shall be payable without notice or demand and without any deduction, offset, or abatement, in lawful money of the United States of America. Base Rent and Additional Rent shall be paid directly to Sublessor by ACH pursuant to instructions provided by Sublessor, or such other address or via such other method as may be designated in writing by Sublessor.

 


 

B.
Additional Rent. All monies other than Base Rent required to be paid by Sublessor under the Master Lease, as incorporated herein, as to the Subleased Premises, including, without limitation, any amounts payable by Sublessor to Master Lessor as “Operating Expenses”, “Tax Expenses” and “Utilities Costs” as to the Subleased Premises (all as defined in Section 4.2 of the Master Lease), shall be paid by Sublessee hereunder as and when such amounts are due under the Master Lease, as incorporated herein. Sublandlord shall promptly forward the appropriate invoices received from Master Lessor. All such amounts shall be deemed additional rent (“Additional Rent”). Base Rent and Additional Rent hereinafter collectively shall be referred to as “Rent”.
C.
Payment of First Month’s Rent. Upon execution hereof by Sublessee, Sublessee shall pay to Sublessor the sum of One Hundred Nine Thousand Nine Hundred Six and 50/100 Dollars ($109,906.50) which shall constitute Base Rent for the first full calendar month of the Term following the Commencement Date.
5.
Security Deposit: Upon execution hereof by Sublessee, Sublessee shall deposit with Sublessor the sum of Two Hundred Nineteen Thousand Eight Hundred Thirteen Dollars ($219,813), as security for the performance by Sublessee of the terms and conditions of this Sublease (the “Security Deposit”). The Security Deposit shall be held and applied in accordance with the terms of Section 20.8.2 of the Master Lease, as incorporated herein.
6.
Holdover: In the event that Sublessee does not surrender the Subleased Premises by the Expiration Date in accordance with the terms of this Sublease, Sublessee shall indemnify, defend, protect and hold harmless Sublessor from and against all loss and liability resulting from Sublessee’s delay in surrendering the Subleased Premises and pay Sublessor holdover rent as provided in Section 16 of the Master Lease, as incorporated herein.
7.
Repairs: Sublessor shall deliver the Subleased Premises to Sublessee Fully Decommissioned and professionally cleaned, free of debris and personal property (other than the FF&E described in Exhibit E). In addition, prior to the Commencement Date, Sublessor shall secure with solid, opaque material in a commercially reasonable manner that includes insulation from sound and minimizes the reduction of the usable area of the Subleased Premises the internal stairwell that is currently providing access to the Subleased Premises from the remainder of the Premises (the “Internal Stairwell Work”). Sublessor shall deliver plans for the Internal Stairwell Work when they have been prepared and approved by Master Lessor. Sublessor represents and warrants that (a) the Premises Systems (as defined in the Master Lease) are in good, working order and repair, and (b) to Sublessor’s current, actual knowledge, without inquiry, the building systems serving the Subleased Premises for which Master Lessor is responsible for repairing and maintaining are in good, working order and repair. The parties acknowledge and agree that Sublessee is subleasing the Subleased Premises on an “as is” basis, and that Sublessor has made no representations or warranties with respect to the condition of the Subleased Premises, except as set forth in this paragraph. Except as expressly set forth in this paragraph, Sublessor shall have no obligation whatsoever to make or pay the cost of any alterations, improvements or repairs to the Subleased Premises, including, without limitation, any improvement or repair required to comply with any law. Master Lessor shall be solely responsible for performance of any repairs required to be performed by Master Lessor under the terms of the Master Lease. Sublessor shall, however, use Sublessor’s reasonable efforts (without requiring Sublessor to spend more than a nominal sum unless paid by Sublessee or engage in litigation) to obtain Master Lessor’s performance.
8.
Assignment and Subletting: Sublessee may not assign this Sublease, sublet the Subleased Premises, transfer any interest of Sublessee therein or permit any use of the Subleased Premises by another party (collectively, “Transfer”), without the prior written consent of Sublessor and Master Lessor; provided, however, subject to Master Lessor’s consent (unless such consent is granted or the requirement to obtain such consent is waived by Master Lessor, including in Master Lessor’s consent to this Sublease), Sublessor’s consent shall not be required with respect to any assignment or subletting by Subtenant or transfer of stock of Subtenant described in Section 14.7 of the Master Lease or with respect to any pledge of Sublessee’s assets (which, for the avoidance of doubt, shall not include this Sublease or any property of Sublessor or Master

 


 

Lessor) in connection with a financing of Sublessee. Sublessor’s waiver or consent to any assignment or subletting shall be ineffective unless set forth in writing. Any Transfer shall be subject to the terms of Article 14 of the Master Lease.
9.
Use: Sublessee may use the Subleased Premises only for the purposes permitted under Section 5.1 of the Master Lease.
10.
Delivery and Acceptance: Notwithstanding anything to the contrary herein, if Sublessor fails to deliver possession of the Subleased Premises to Sublessee on or before the dates set forth in Paragraph 3.A above for any reason whatsoever, then this Sublease shall not be void or voidable, nor shall Sublessor be liable to Sublessee for any loss or damage. Sublessor shall use reasonable efforts to deliver the Subleased Premises to Sublessee Fully Decommissioned and with the Internal Stairwell Work completed on or before November 5, 2023. Even if the Internal Stairwell Work is not yet completed, Sublessee may commence occupying the Subleased Premises for the conduct of business on November 5, 2023, provided the conditions in subparts (i)-(iii) of Paragraph 3(B) have been satisfied. Such early occupancy shall be subject to Sublessor’s reasonable security measures and all of the provisions of this Sublease, including the obligation to pay Base Rent, Operating Expenses, Tax Expenses and Utilities Costs, and shall not advance the Expiration Date of this Sublease. In the event Sublessor has not delivered the Subleased Premises to Sublessee fully decommissioned and with the Internal Stairwell Work completed on or before December 1, 2023, then Sublessee shall be entitled to one (1) day of Base Rent abatement (to commence on the Commencement Date) for each day Sublessor is delayed in so delivering the Subleased Premises beyond December 1, 2023.
11.
Improvements: No alteration or improvements shall be made to the Subleased Premises, except in accordance with the Master Lease, and with the prior written consent of both Master Lessor and Sublessor. Sublessor’s consent shall not be unreasonably withheld, conditioned or delayed (provided Master Lessor consents). Subject to the consent of Master Lessor, Sublessor approves Sublessee’s installation of a door (similar to other doors in the Subleased Premises) to divide the large open lab area into two (2) rooms (the “Door Installation”), and shall not require that such alterations be restored unless required by Master Lessor. Sublessee shall have the right, but not the obligation, to contract with the same contractor to perform the Door Installation as used by Sublessor to perform the Internal Stairwell Work.
12.
Insurance: Sublessee shall obtain and keep in full force and effect, at Sublessee’s sole cost and expense, during the Term and any early entry period, the insurance required under Section 10.3 of the Master Lease. Sublessee shall name Master Lessor and Sublessor as additional insureds under its liability insurance policy. The release and waiver of subrogation set forth in Section 10.4 of the Master Lease, as incorporated herein, shall be binding on the parties.
13.
Default: Sublessee shall be in default under this Sublease if Sublessee commits any act or omission which constitutes a default under the Master Lease, which has not been cured after delivery of any notice and passage of the applicable grace period provided in the Master Lease as modified, if at all, by the provisions of this Sublease. Sublessee shall provide Sublessor with prompt notice of any violation by Sublessee of such terms. In the event of any default by Sublessee, Sublessor shall have all remedies provided pursuant to Section 19.2 of the Master Lease and by applicable law, including damages that include the worth at the time of award of the amount by which the unpaid rent for the balance of the term after the time of award exceeds the amount of such rental loss that the lessee proves could be reasonably avoided and the remedy described in California Civil Code Section 1951.4 (lessor may continue lease in effect after lessee’s breach and abandonment and recover rent as it becomes due, if lessee has right to sublet or assign, subject only to reasonable limitations).
14.
Surrender: Prior to expiration of this Sublease, Sublessee shall remove all of its trade fixtures and shall surrender the Subleased Premises to Sublessor in the condition required under the terms of the Master Lease as incorporated herein; provided, however, if the Term of this Sublease is extended so that it includes substantially all of the remaining term of the Master Lease, Sublessee shall surrender the Subleased Premises in the condition required under the terms of the Master Lease. If the Subleased Premises are not so

 


 

surrendered, then Sublessee shall be liable to Sublessor for all liabilities Sublessor incurs as a result thereof, including costs incurred by Sublessor in returning the Subleased Premises to the required condition, plus interest thereon at the Interest Rate. Notwithstanding the foregoing, in no event shall Sublessee be required to remove or restore any alterations or improvements existing in the Subleased Premises as of the date this Sublease is executed by Sublessor and Sublessee and Master Lessor’s consent to this Sublease is obtained or the Internal Stairwell Work; provided, however, if the Term of this Sublease is extended so that it includes substantially all of the remaining term of the Master Lease, Sublessee shall (a) remove any telephone, data or other wiring or cabling if so required by Master Lessor pursuant to Section 15.2 of the Master Lease, and (b) allow Sublessor to enter the Subleased Premises in the last thirty (30) days of the term of the Master Lease to restore the Internal Stairwell Work, without reduction in rent or other liability to Sublessor. In so restoring the Internal Stairwell Work, Sublessor shall use commercially reasonable efforts to minimize disruption to Sublessee’s operations in the Subleased Premises.
15.
Broker: Sublessor and Sublessee each represents to the other that it has dealt with no real estate brokers, finders, agents or salesmen other than JLL, representing Sublessor, and Cushman & Wakefield, representing Sublessee, in connection with this transaction. Each party agrees to hold the other party harmless from and against all claims for brokerage commissions, finder’s fees or other compensation made by any other agent, broker, salesman or finder as a consequence of such party’s actions or dealings with such agent, broker, salesman, or finder. Sublessee shall not be responsible for payment of a broker commission to Jones Lang LaSalle or Cushman & Wakefield in connection with this Sublease.
16.
Notices: Unless at least five (5) days’ prior written notice is given in the manner set forth in this paragraph, the address of each party for all purposes connected with this Sublease shall be that address set forth below its signature at the end of this Sublease. All notices, demands or communications in connection with this Sublease shall be (a) personally delivered; or (b) properly addressed and (i) submitted to an overnight courier service, charges prepaid, or (ii) deposited in the mail (certified, return receipt requested, and postage prepaid), provided all notices to Sublessor must also be sent by email to legalnotices@arsenalbio.com and/or such other email addresses as may be designated by Sublessor, and all notices to Sublessee must also be sent by email to legalnotices@assemblybio.com and/or such other email addresses as may be designated by Sublessee. Notices shall be deemed delivered upon receipt, if personally delivered, one (1) business day after being submitted to an overnight courier service and three (3) business days after mailing, if mailed as set forth above. All notices given to Master Lessor under the Master Lease shall be considered received only when delivered in accordance with the Master Lease.
17.
Miscellaneous: This Sublease may be executed in any number of counterparts, each of which shall be deemed to be an original, and all of such counterparts shall constitute one document. To facilitate execution of this Sublease, the parties may execute and exchange, by electronic mail PDF, counterparts of the signature pages. Signature pages may be detached from the counterparts and attached to a single copy of this Sublease to physically form one document. In addition, the parties hereto consent and agree that this Sublease may be signed using electronic signature technology (e.g., via DocuSign or similar electronic signature technology), and that such signed electronic record shall be valid and as effective to bind the party so signing as a paper copy bearing such party's handwritten signature. Sublessor has not had an inspection of the Premises performed by a Certified Access Specialist as described in California Civil Code § 1938. A Certified Access Specialist (CASp) can inspect the Subleased Premises and determine whether the Subleased Premises complies with all of the applicable construction-related accessibility standards under state law. Although state law does not require a CASp inspection of the Subleased Premises, the commercial property owner or lessor may not prohibit the lessee or tenant from obtaining a CASp inspection of the Subleased Premises for the occupancy or potential occupancy of the lessee or tenant, if requested by the lessee or tenant. The parties shall mutually agree on the arrangements for the time and manner of the CASp inspection, the payment of the fee for the CASp inspection, and the cost of making any repairs necessary to correct violations of construction-related accessibility standards within the Subleased Premises. Capitalized terms used but not defined in this Sublease shall have the meanings ascribed to such terms in the Master Lease. Any costs incurred, and any improvements, alterations, modifications and/or repairs required to be

 


 

made, under the Master Lease pursuant to Section 1.2 thereof as a result of a CASp inspection requested by either Sublessor or Sublessee shall be at the requesting party’s sole cost and expense.
18.
Other Sublease Terms:
A.
Incorporation by Reference. Except as set forth below, the terms and conditions of this Sublease shall include all of the terms of the Master Lease and such terms are incorporated into this Sublease as if fully set forth herein, except that: (i) each reference in such incorporated sections to “Lease” and Base Rent shall be deemed a reference to “Sublease” and the Base Rent under this Sublease, respectively; (ii) each reference to the “Premises” shall be deemed a reference to the “Subleased Premises”; (iii) each reference to “Landlord” and “Tenant” shall be deemed a reference to “Sublessor” and “Sublessee”, respectively, except as otherwise expressly set forth herein; (iv) with respect to work, services, repairs, restoration, insurance, indemnities, representations, warranties or the performance of any other obligation of Master Lessor under the Master Lease, the sole obligation of Sublessor shall be to request the same in writing from Master Lessor as and when requested to do so by Sublessee, and to use Sublessor’s reasonable efforts (without requiring Sublessor to spend more than a nominal sum unless paid by Sublessee or engage in litigation) to obtain Master Lessor’s performance; (v) with respect to any obligation of Sublessee to be performed under this Sublease, wherever the Master Lease grants to Sublessor a specified number of days to perform its obligations under the Master Lease, except as otherwise provided herein, Sublessee shall have three (3) fewer days to perform the obligation, including, without limitation, curing any defaults, or one-half the time period permitted under the Master Lease (rounding up for partial days), which ever allows Sublessee the greater amount of time; (vi) with respect to any approval required to be obtained from the “Landlord” under the Master Lease, such consent must be obtained from both Master Lessor and Sublessor, and the approval of Sublessor may be withheld if Master Lessor’s consent is not obtained; (vii) in any case where the “Landlord” reserves or is granted the right to manage, supervise, control, repair, alter, regulate the use of, enter or use the Premises or any areas beneath, above or adjacent thereto, perform any actions or cure any failures, such reservation or right shall be deemed to be for the benefit of both Master Lessor and Sublessor; (viii) in any case where “Tenant” is to indemnify, release or waive claims against “Landlord”, such indemnity, release or waiver shall be deemed to cover, and run from Sublessee to, both Master Lessor and Sublessor; (ix) in any case where “Tenant” is to execute and/or deliver certain documents or notices to “Landlord”, such obligation shall be deemed to run from Sublessee to both Master Lessor and Sublessor; (x) all payments shall be made to Sublessor; (xi) Sublessee shall pay all consent and review fees set forth in the Master Lease (with respect to a further subsubleasing of the Subleased Premises, an assignment of the Sublease by Sublessee or alterations constructed by Sublessee and other actions under the Master Lease by Sublessee as to which consent or review fees are payable) to each of Master Lessor and Sublessor; (xii) Sublessee shall not have the right to terminate this Sublease due to casualty or condemnation unless Sublessor has such right under the Master Lease; (xiii) the Transfer Premium due to Master Lessor under the Master Lease for subleases and assignments by Sublessee shall be paid by Sublessee to Master Lessor and fifty percent (50%) of the remainder shall be paid to Sublessor as required under Section 14.3 of the Master Lease, as incorporated herein; (xiv) Sublessor’s obligations under Section 4.3 are limited to forwarding statements and refunds provided by Master Lessor, and Sublessee shall have no right to dispute or audit such statements; (xv) Tenant’s Share shall mean 50% of the Premises and 5.34% of the Building; and (xvi) Sublessee shall be entitled to use sixty (60) unreserved parking spaces, including no more than 50% of the EV parking spaces that Sublessor may use under the Master Lease. Under no circumstances shall rent abate under this Sublease except to the extent that rent correspondingly abates under the Master Lease as to the Subleased Premises.

Notwithstanding the foregoing, the following provisions of the Master Lease shall not be incorporated herein: Summary of Basic Lease Information (except Sections 6.2 and 12); all references to the Tenant Work Letter; introductory paragraph; Sections 1.1.1, 1.2 (first four sentences and subpart (A)), 1.4, 2, 3, 4.6 (provided Sublessor shall, upon Sublessee’s reasonable request and expense, exercise its audit right under the Master Lease), 5.2.5 (the last sentence, except with respect to Hazardous Materials Released by Sublessor and except that in no event shall Sublessee be liable for any Hazardous Materials existing in the Subleased Premises prior to the Commencement Date), 5.2.8 (except with respect to the Hazardous Materials Released by Sublessor and except that in no event shall Sublessee be liable for any Hazardous Materials not caused by

 


 

Tenant), 5.2.10 (the first sentence), 14.4, 14.7, 14.8, 18 (the last sentence), 20 (except Section 20.8.2), 24.8 (with respect to Landlord’s obligation to pay costs), 24.19, 24.25, 24.28 (with respect to Landlord’s obligation to pay costs), 24.36.1(b) (the last sentence only), and 24.38; Exhibits A, B, E, and F; and Rider 1. In addition, notwithstanding subpart (iii) above, (a) references in the following provisions to “Landlord” shall mean Master Lessor only: Sections 1.1.2 (except the first reference in subpart (1)), 1.1.3, 1.2 (the last four lines), 1.3 (the first sentence), 4.2.3, 4.2.5, 4.2.7, 4.3.4, 5.2.5 (the penultimate sentence), 5.2.9, 5.3.2, 5.3.3, 6.1, 6.5, 6.7, 7.1 (the first instance only), 7.2 (except the last three instances), 8.3 (the first sentence), 8.4 (the sixth sentence), 11.1, 11.2, 12.1, 14.2 (the third and fourth sentences only), 21, 23, 24.14, 24.28, 24.30, 24.33 (except last sentence), 24.36.2, and 24.37.2; and (b) references in the following provisions to “Landlord” shall mean Master Lessor and Sublessor: Sections 4.4, 5.2.5 (except the last two sentences), 5.2.6, 7.2 (the last three instances only), 8.2 (the references in the fifth and penultimate sentences), 9, 10.2, 10.3.7, 15.2 (the last sentence), 16 (the last sentence), and 24.7.

B.
Assumption of Obligations. This Sublease is and at all times shall be subject and subordinate to the Master Lease and the rights of Master Lessor thereunder. Sublessee hereby expressly assumes and agrees: (i) to comply with all provisions of the Master Lease that are incorporated hereunder; and (ii) to perform all the obligations on the part of the “Tenant” to be performed under the terms of the Master Lease during the Term of this Sublease that are incorporated hereunder. In the event the Master Lease is terminated for any reason whatsoever, this Sublease shall terminate simultaneously with such termination (unless Master Lessor or a successor tenant agrees to permit Sublessee to continue to occupy the Subleased Premises on the terms of this Sublease for the remainder of the Term), without any liability of Sublessor to Sublessee. Notwithstanding the foregoing, Sublessor shall not, without Sublessee’s prior written consent, enter into an agreement to terminate the Master Lease entirely or as to the Subleased Premises or, unless such violation is due to Sublessee, violate the Master Lease so as to cause a termination of the Master Lease (unless, in each of the foregoing cases, Master Lessor or a successor tenant agrees to allow Sublessee to continue to occupy the Subleased Premises for the remainder of the Term on substantially the same terms as this Sublease), or otherwise amend any provisions of the Master Lease that would adversely affect Sublessee’s use or occupancy of the Subleased Premises or increase Sublessee’s liability hereunder; provided, further, that Sublessor may exercise any express termination right in the Master Lease. In the event of a conflict between the provisions of this Sublease and the Master Lease, as between Sublessor and Sublessee, the provisions of this Sublease shall control. In the event of a conflict between the express provisions of this Sublease and the provisions of the Master Lease, as incorporated herein, the express provisions of this Sublease shall prevail.
19.
Conditions Precedent: This Sublease and Sublessor’s and Sublessee’s obligations hereunder are conditioned upon the written consent of Master Lessor in form and substance acceptable to Sublessee and Sublessor in their good faith determination. Each party shall use commercially reasonable efforts to obtain such consent. If Sublessor fails to obtain Master Lessor’s consent within thirty (30) days after execution of this Sublease by Sublessor, then Sublessor or Sublessee may terminate this Sublease by giving the other party written notice thereof prior to the date such consent is received, and Sublessor shall return to Sublessee its payment of Base Rent paid by Sublessee pursuant to Paragraph 4 hereof and the Security Deposit. Sublessor shall pay all consent and review fees set forth in the Master Lease in connection with this Sublease.
20.
Termination; Recapture: Notwithstanding anything to the contrary herein, Sublessee acknowledges that, under the Master Lease, both Master Lessor and Sublessor have certain termination and recapture rights, including, without limitation, in Sections 11.2, 12.1 and 14.4. Nothing herein shall prohibit Master Lessor or Sublessor from exercising any such rights and neither Master Lessor nor Sublessor shall have any liability to Sublessee as a result thereof. If Master Lessor or Sublessor exercise any such termination or recapture rights, this Sublease shall terminate without any liability to Master Lessor or Sublessor.

 


 

21.
Furniture, Fixtures and Equipment: Sublessee shall have the right to use during the Term the furniture, fixtures and equipment within the Subleased Premises that are identified on Exhibit E attached hereto (the “FF&E”) at no additional cost to Sublessee. Sublessee shall have the one-time right to require any items listed on Exhibit E to be removed from the Subleased Premises by delivering written notice thereof to Sublessor no later than September 1, 2023, in which case, Sublessor shall remove such items at its sole cost prior to the Commencement Date and such items shall no longer be considered FF&E hereunder. The FF&E is provided in its “AS IS, WHERE IS” condition, without representation or warranty whatsoever. Sublessee shall insure the FF&E under the property insurance policy required under the Master Lease, as incorporated herein, and pay all taxes with respect to the FF&E. Sublessee shall maintain the FF&E in the same condition and repair received, reasonable wear and tear excepted, and shall be responsible for any loss or damage to the same occurring during the Term. Sublessee shall surrender the FF&E to Sublessor upon the termination of this Sublease in the same condition as exists as of the Commencement Date, reasonable wear and tear excepted. Sublessee shall not remove any of the FF&E from the Subleased Premises. Notwithstanding the foregoing, provided (i) the Term of this Sublease has been extended to the expiration of the Master Lease, (ii) Sublessee has not defaulted under this Sublease and no event has occurred that with the passing of time or the giving of notice, would constitute a default by Sublessee under this Sublease and (iii) this Sublease has not terminated prior to the expiration of this Sublease, which conditions may be waived by Sublessor in its sole discretion, then upon the termination of this Sublease, at Sublessee’s option, the FF&E shall become the property of Sublessee, and Sublessee shall accept the same in its “AS IS, WHERE IS” condition, without representation or warranty whatsoever. Sublessee shall be deemed to have elected such option unless it provides Sublessor with written notice not less than thirty (30) days prior to the Expiration Date that it does not elect to take ownership of the FF&E, in which case Sublessor shall have the right to enter the Subleased premises in the last ten (10) days of the Term to remove the FF&E. In removing the FF&E, Sublessor shall use commercially reasonable efforts to minimize disruption to Sublessee’s operations in the Subleased Premises.
22.
Parking: Signage: During the Term, Sublessee shall be entitled to (a) parking rights as described in Section 23 of the Master Lease, as incorporated herein, and subject to the terms of subpart (xvi) of Paragraph 18.A and (b) signage rights as described in Sections 24.8 and 24.28 of the Master Lease, as incorporated herein.
23.
Sublessor Representations: Sublessor represents and warrants that (a) the Master Lease is in full force and effect, and there exists under the Master Lease no default beyond applicable notice and cure periods by either Sublessor, or to Sublessor’s knowledge, Master Lessor, nor, to Sublessor’s knowledge, has there occurred any event which, with the giving of notice or passage of time or both, could constitute such a default, and (b) the copy of the Master Lease attached hereto as Exhibit A is a true, correct and complete copy of the Master Lease.

[SIGNATURES ARE ON THE FOLLOWING PAGE]

 


 

IN WITNESS WHEREOF, the parties have executed this Sublease as of the day and year first above written.

 

SUBLESSOR:

 

SUBLESSEE:

 

 

 

 

 

ARSENAL BIOSCIENCES, INC.,

 

ASSEMBLY BIOSCIENCES, INC.,

a Delaware corporation

 

a Delaware corporation

 

 

 

 

 

 

 

 

 

 

By:

/s/ Ken Chow

 

By:

/s/ Jason A. Okazaki

 

 

 

 

 

Name:

Ken Chow

 

Name:

 Jason A. Okazaki

 

 

 

 

 

Its:

CFO

 

Its:

Chief Executive Officer and President

 

 

 

 

 

Address: 2 Tower Place

 

Address: Subleased Premises

South San Francisco, CA 94080

 

Attn: General Counsel

Attn: General Counsel

 

 

 

 

 

 

 

 

 

 

Prior to the Commencement Date:

 

 

 

331 Oyster Point Blvd., Fourth Floor

 

 

 

South San Francisco, CA 94080

 

 

 

Attn: General Counsel

 

 


 

EXHIBIT A

MASTER LEASE

 


 

 

 

 

 

 

 

 

 

 

 

 

 

 

 

 

 

 

 

TWO TOWER PLACE

 

LEASE

 

 

 

 

 

 

 

AP3-SF3 CT NORTH, LLC,

a Delaware limited liability company

 

as Landlord,

 

and

 

ARSENAL BIOSCIENCES, INC.,

a Delaware corporation

 

as Tenant

 

 

 

 

 

GENESIS SSF - TWO TOWER PLACE

Arsenal Biosciences, Inc.

[Execution Original]

 


 

SUMMARY OF BASIC LEASE INFORMATION

 

This Summary of Basic Lease Information (“Summary”) is hereby incorporated into and made a part of the attached Lease. Each reference in the Lease to any term of this Summary shall have the meaning as set forth in this Summary for such term. In the event of a conflict between the terms of this Summary and the Lease, the terms of the Lease shall prevail. Any capitalized terms used herein and not otherwise defined herein shall have the meaning as set forth in the Lease.

 

TERMS OF LEASE

 

(References are to the Lease)

DESCRIPTION

1.

Date:

October 29, 2019

2.

Landlord:

AP3-SF3 CT NORTH, LLC,

a Delaware limited liability company

3.

Address of Landlord (Section 24.19):

For notices to Landlord:

 

AP3-SF3 CT North, LLC

4380 La Jolla Village Drive, Suite 230

San Diego, CA 92122

Attention: W. Neil Fox, CEO

 

with a copy to:

 

Allen Matkins Leek Gamble Mallory & Natsis LLP

600 West Broadway, 27th Floor

San Diego, California 92101

Attention: Martin L. Togni, Esq.

 

For payment of Rent only:

 

AP3-SF3 CT North LLC

Dept. LA 24537

Pasadena, CA 91185-4537

 

 

 

4.

Tenant:

ARSENAL BIOSCIENCES, INC.

a Delaware corporation

 

 

 

5.

Address of Tenant (Section 24.19):

Arsenal Biosciences, Inc.

571 Eccles Avenue

South San Francisco, CA 94080

Attention: Ken Drazan

(Prior to Lease Commencement Date)

 

 

 

 

- i -

GENESIS SSF - TWO TOWER PLACE

Arsenal Biosciences, Inc.

[Execution Original]

 


 

 

TERMS OF LEASE

 

(References are to the Lease)

DESCRIPTION

 

 

and

 

Two Tower Place, Suite 700

South San Francisco, CA 94080

Attention: Ken Drazan

(After Lease Commencement Date)

 

And in either case with a copy to:

 

Cooley LLP

4401 Eastgate Mall

San Diego, CA 92121

Attention: Michael S. Levinson

 

 

 

6.

Premises (Article 1):

 

 

 

 

 

6.1

Premises:

39,973 rentable square feet of space consisting of (i) 19,990 rentable square feet of space located on the entirety of the sixth (6th) floor of the Building (as defined below) and (ii) 19,983 rentable square feet of space located on the entirety of the seventh (7th) floor of the Building, as depicted on Exhibit A attached hereto.

 

 

 

 

 

 

6.2

Building:

The Premises are located in the building whose address is Two Tower Place, South San Francisco, California (the “Building”).

 

 

 

 

7.

Term (Article 2):

 

 

 

 

 

 

7.1

Lease Term:

Nine (9) years and four (4) months.

 

 

 

 

 

7.2

Lease Commencement Date:

The date the Premises are Ready for Occupancy (as defined in the Tenant Work Letter attached hereto as Exhibit B), which Lease Commencement Date is anticipated to be March 31, 2020 (“Anticipated Lease Commencement Date”).

 

 

 

 

 

 

7.3

Lease Expiration Date:

The last day of the month in which the one hundred twelfth (112th) monthly anniversary of the Lease Commencement Date occurs.

 

8.

Base Rent (Article 3):

 

 

 

Lease Period

 

Annual

Base Rent *

 

Monthly Installment

of Base Rent *

 

Monthly Rental Rate per

Rentable Square Foot *

*** 1 -12

 

$2,758,137.00

 

$229,844.75

 

$5.75

13-24

 

$2,854,671.84

 

$237,889.32

 

$5.95 **

25-36

 

$2,954,585.40

 

$246,215.45

 

$6.16 **

37-48

 

$3,057,995 .88

 

$254,832.99

 

$6.38 **

 

 

 

- ii -

GENESIS SSF - TWO TOWER PLACE

Arsenal Biosciences, Inc.

[Execution Original]

 


 

 

TERMS OF LEASE

(References are to the Lease)

 

DESCRIPTION

 

 

49-60

 

$3,165,025.68

 

$263,752.14

 

$6.60 **

61 - 72

 

$3,275,801.52

 

$272,983.46

 

$6.83 **

73-84

 

$3,390,454.56

 

$282,537.88

 

$7.07 **

85-96

 

$3,509,120.52

 

$292,426.71

 

$7.32 **

97-108

 

$3,631,939.68

 

$302,661.64

 

$7.57 **

109-112

 

$3,759,057.60

 

$313,254.80

 

$7.84 **

 

*The initial monthly installment of Base Rent amount was calculated by multiplying the initial monthly Base Rent rate per rentable square foot amount by the number of rentable square feet of space in the Premises, and the annual Base Rent amount was calculated by multiplying the initial monthly installment of Base Rent amount by twelve (12). In all subsequent Base Rent payment periods during the Lease Term commencing on the first (1st) day of the full calendar month that is Lease month 13, the calculation of each monthly installment of Base Rent amount reflects an annual increase of three and one-half percent (3-1/2%) and each annual Base Rent amount was calculated by multiplying the corresponding monthly installment of Base Rent amount by twelve (12). Such Base Rent is subject to proration as provided in Article 3.

**The amount identified in the column entitled “Monthly Rental Rate per Rentable Square Foot” are rounded amounts provided for informational purposes only.

***Subject to abatement as provided in Article 3 of this Lease.

 

9.

Tenant’s Share of Operating Expenses, Tax

Expenses and Utilities Costs (Section 4.2.6):

10.68% (39,973 rentable square feet within the Premises/374,433 rentable square feet within the Building).

10.

Letter of Credit (Article 20):

$626,509.60

 

 

 

11.

Brokers (Section 24.25):

Newmark Knight Frank representing Landlord and Kidder Matthews representing Tenant.

 

 

 

12.

Parking (Article 23):

Total of one hundred twenty (120) unreserved parking spaces (3 unreserved parking spaces for every 1,000 rentable square feet of the Premises).

 

 

 

 

- iii -

GENESIS SSF - TWO TOWER PLACE

Arsenal Biosciences, Inc.

[Execution Original]

 


 

TABLE OF CONTENTS

 

 

 

Page

ARTICLE 1

PROJECT, BUILDING AND PREMISES

1

ARTICLE 2

LEASE TERM

4

ARTICLE 3

BASE RENT

5

ARTICLE 4

ADDITIONAL RENT

6

ARTICLE 5

USE OF PREMISES; HAZARDOUS MATERIALS; ODORS AND EXHAUST

13

ARTICLE 6

SERVICES AND UTILITIES

17

ARTICLE 7

REPAIRS

19

ARTICLE 8

ADDITIONS AND ALTERATIONS

20

ARTICLE 9

COVENANT AGAINST LIENS

21

ARTICLE 10

INDEMNIFICATION AND INSURANCE

22

ARTICLE 11

DAMAGE AND DESTRUCTION

24

ARTICLE 12

CONDEMNATION

25

ARTICLE 13

COVENANT OF QUIET ENJOYMENT

26

ARTICLE 14

ASSIGNMENT AND SUBLETTING

26

ARTICLE 15

SURRENDER; OWNERSHIP AND REMOVAL OF PERSONAL PROPERTY

29

ARTICLE 16

HOLDING OVER

30

ARTICLE 17

ESTOPPEL CERTIFICATES

30

ARTICLE 18

SUBORDINATION

31

ARTICLE 19

TENANT’S DEFAULTS; LANDLORD’S REMEDIES

31

ARTICLE 20

LETTER OF CREDIT

34

ARTICLE 21

COMPLIANCE WITH LAW

38

ARTICLE 22

ENTRY BY LANDLORD

38

ARTICLE 23

PARKING

39

ARTICLE 24

MISCELLANEOUS PROVISIONS

39

 

EXHIBITS:

 

 

 

Exhibit A

Outline of Floor Plan of Premises

 

Exhibit A-1

Site Plan of Project

 

Exhibit B

Tenant Work Letter

 

Exhibit C

Confirmation of Lease Terms/Amendment to Lease

 

Exhibit D

Rules and Regulations

 

Exhibit E

Form of Subordination, Non-Disturbance and Attornment Agreement

 

Exhibit F

Form of Letter of Credit

 

Exhibit G

Hazardous Materials Storage Areas

 

Exhibit H

General Storage Areas

 

Exhibit I

DAS Specifications

 

Rider

Extension Option Rider

 

 

 

 

(i)

GENESIS SSF - TWO TOWER PLACE

Arsenal Biosciences, Inc.

[Execution Original]

 


 

INDEX

 

 

Page(s)

Abated Rent

6

Accountant

13

Additional Rent

6

Adverse Condition

2

Affected Areas

15

Affiliate Assignee

29

Affiliates

28

Allowance

Exhibit B

Alterations

20

Anticipated Lease Commencement Date

Summary

Approved Working Drawings

Exhibit B

Bank Credit Threat

34

Bank’s Credit Rating Threshold

33

Bankruptcy Code

31

Base Rent

5

Base, Shell and Core

Exhibit B

Brokers

42

Building

ii

Calendar Year

6

CASp Reports

3

CC&Rs

14

Claims

22

Confirmation/Amendment

Exhibit C

Construction

43

Construction Drawings

Exhibit B

Contractor

Exhibit B

Coordinator

45

Corrective Action

15

Cost Pools

7

Cutoff Date

11

Deposit Period

37

Documents

15

Election Date

4

Eligibility Period

19

Emergency

38

Environmental Law

14

Environmental Permits

14

Estimate

11

Estimate Statement

11

Estimated Completion Date

24

Estimated Expenses

11

Excluded Changes

37

Excluded Claims

22

Excluded Costs

7

Exercise Date

Rider

Exercise Notice

Rider

Exit Survey

29

Expense Year

6

Extension Option

Rider

Extension Option L-C Condition

35

Extension Rider

Rider

Fair Market Rental Rate

Rider

FDIC

36

Final Space Plan

Exhibit B

 

 

 

(ii)

GENESIS SSF - TWO TOWER PLACE

Arsenal Biosciences, Inc.

[Execution Original]

 


 

 

 

Page(s)

First Offer Economic Terms

4

First Offer Notice

3

First Offer Space

3

Fitness Center

44

Force Majeure

41

Free Base Rent Day

5

Generator

19

Hazardous Materials

14

Hazardous Materials List

15

HVAC

17

Interest Notice

Rider

Interest Rate

12

Interim Cash Deposit

37

Labor Disruption

Exhibit D

Landlord

1

Landlord Parties

16

L-C

33

L-C Amount.

33

L-C Cure Period

34

L-C Draw Event

34

L-C Expiration Date

33

L-C FDIC Replacement Notice

34

LC Replacement Notice

36

Lease

1

Lease Commencement Date

5

Lease Expiration Date

5

Lease Term

5

Lease Year

5

Notices

41

Occupancy Agreements

29

OFAC

42

Official Records

14

Operating Expenses

6

Option Rent

Rider

Option Rent Notice

Rider

Option Term

Rider

Original Tenant

4

Other Buildings

12

Other Existing Building

1

Outside Agreement Date

Rider

Outside Date

5

Over-Allowance Amount

Exhibit B

PAC

43

Parking Facility

1

Parking Operator

39

Permits

Exhibit B

Premises

1

Premises Systems

19

Project

1

Proposition 13

10

Ready for Occupancy

Exhibit B

Receivership

36

Release

14

Rent

6

rentable square feet

3

Revenue Code

26

 

 

 

 

(iii)

GENESIS SSF - TWO TOWER PLACE

Arsenal Biosciences, Inc.

[Execution Original]

 


 

 

Page(s)

Review Period

13

Second Chance Economic Terms

4

Second Chance Notice

4

Security Deposit Laws

36

Statement

11

Subject Space

26

Subleasing Costs

27

Substantial Completion of the Premises

Exhibit B

Summary

i

Superior Rights

3

Systems and Equipment

9

Tax Expenses

9

Tenant

1

Tenant Delays

Exhibit B

Tenant Improvements

Exhibit B

Tenant Parties

16, 22

Tenant Work Letter

Exhibit B

Tenant’s Parties

14

Tenant’s Share

10

Transfer Notice

26

Transfer Premium

27

Transferee

26

Transfers

26

trash

44

Utilities Costs

10

Voluntary Improvements

2

Wi-Fi Network

21

Working Drawings

Exhibit B

 

 

 

(iv)

GENESIS SSF - TWO TOWER PLACE

Arsenal Biosciences, Inc.

[Execution Original]

 


 

LEASE

This Lease, which includes the preceding Summary and the exhibits attached hereto and incorporated herein by this reference (the Lease, the Summary and the exhibits to be known sometimes collectively hereafter as the “Lease”), dated as of the date set forth in Section l of the Summary, is made by and between AP3-SF3 CT NORTH, LLC, a Delaware limited liability company (“Landlord”), and ARSENAL BIOSCIENCES, INC., a Delaware corporation (“Tenant”).

ARTICLE 1

PROJECT, BUILDING AND PREMISES

1.1 Project, Building and Premises.

1.1.1 Premises. Upon and subject to the terms, covenants and conditions hereinafter set forth in this Lease, Landlord hereby leases to Tenant and Tenant hereby leases from Landlord the premises described in Section 6.1 of the Summary (the “Premises”), which Premises are located in the Building (as defined in Section 6.2 of the Summary) and located within the Project (as defined below). The floor plan of the Premises is attached hereto as Exhibit A.

1.1.2 Building and Project. The Building consists of twenty-one (21) floors with a total of 374,433 rentable square feet and is part of a multi-building commercial project known as “Genesis South San Francisco”, located on 8.4 acres of land in the City of South San Francisco. The term “Project” as used in this Lease, shall mean, collectively: (i) the Building; (ii) the other existing building located at One Tower Place within the site which is not owned by Landlord (the “Other Existing Building”); (iii) any outside plaza areas, walkways, driveways, courtyards, public and private streets, transportation facilitation areas and other improvements and facilities now or hereafter constructed surrounding and/or servicing the Building and/or the Other Existing Building, which are reasonably designated from time to time by Landlord (and/or any other owners of the Project) as common areas appurtenant to or servicing the Building, and any such other improvements; (iv) any additional buildings, improvements, facilities and common areas which Landlord (any other owners of the Project and/or any common area association formed by Landlord, Landlord’s predecessor-in-interest and/or Landlord’s assignee for the Project) may add thereto from time to time within or as part of the Project; and (v) the land upon which any of the foregoing are situated. The site plan depicting the current configuration of the Project is attached hereto as Exhibit A-1. The Building, as well as the Other Existing Building, contains a parking facility located at Three Tower Place (“Parking Facility”). Notwithstanding the foregoing or anything contained in this Lease to the contrary (other than Section 1.1.3 below), (1) Landlord has no obligation to expand or otherwise make any improvements within the Project, including, without limitation, any of the outside plaza areas, walkways, driveways, courtyards, public and private streets, transportation facilitation areas and other improvements and facilities which may be depicted on Exhibit A-1 attached hereto (as the same may be modified by Landlord (and/or any other owners of the Project) from time to time without notice to Tenant), other than Landlord’s obligations (if any) specifically set forth in the Tenant Work Letter attached hereto as Exhibit B, and (2) Landlord (and/or any other owners of the Project) shall have the right from time to time to include or exclude any improvements or facilities within the Project, at such party’s sole election, as more particularly set forth in Section 1.1.3 below.

1.1.3 Tenant’s and Landlord’s Rights. Tenant shall have the right to the nonexclusive use of the common corridors and hallways, stairwells, elevators (if any), restrooms and other public or common areas located within the Building, and the non-exclusive use of those areas (including any shared amenity areas) located on the Project that are reasonably designated by Landlord (and/or any other owners of the Project) from time to time as common areas for the Building; provided, however, that (i) Tenant’s use thereof shall be subject to (A) the provisions of any covenants, conditions and restrictions regarding the use thereof now or hereafter recorded against the Project, and (B) such reasonable, non-discriminatory rules and regulations as Landlord may make from time to time (which shall be provided in writing to Tenant), and (ii) Tenant may not go on the roof of Building or the Other Existing Building without Landlord’s prior consent (which may be withheld in Landlord’s sole and absolute discretion) and without otherwise being accompanied by a representative of Landlord. Landlord (and/or any other owners of the Project) reserves the right from time to time to use any of the common areas of the Project, and the roof, risers and conduits of the Building and the Other Existing Building for telecommunications and/or any other purposes, and to do any of the following: (1) make any changes, additions, improvements, repairs and/or replacements in or to the Project or any portion or elements thereof, including, without limitation, (x) changes in the location, size, shape and number of driveways, entrances, loading and unloading areas, ingress, egress, direction of traffic, landscaped areas, walkways, public and private streets, plazas, courtyards, transportation facilitation areas and common areas, and (y) expanding or decreasing the size of the Project and any common

 

 

 

- 1 -

GENESIS SSF - TWO TOWER PLACE

Arsenal Biosciences, Inc.

[Execution Original]

 


 

areas and other elements thereof, including adding, deleting and/or excluding buildings (including the Other Existing Building) thereon and therefrom; (2) close temporarily any of the common areas while engaged in making repairs, improvements or alterations to the Project; (3) retain and/or form a common area association or associations under covenants, conditions and restrictions to own, manage, operate, maintain, repair and/or replace all or any portion of the landscaping, driveways, walkways, public and private streets, plazas, courtyards, transportation facilitation areas and/or other common areas located outside of the Building and the Other Existing Building and, subject to Article 4 below, include the common area assessments, fees and taxes charged by the association(s) and the cost of maintaining, managing, administering and operating the association(s), in Operating Expenses or Tax Expenses; and (4) perform such other acts and make such other changes with respect to the Project as Landlord may, in the exercise of good faith business judgment, deem to be appropriate. Notwithstanding anything to the contrary in this Lease, (w) Landlord shall not permit or suffer any covenants, conditions and restrictions to be recorded against the Project that create an Adverse Condition, (x) with respect to any voluntary improvements or voluntary alterations (as opposed to improvements or alterations required by applicable laws (as defined below) or maintenance or repairs) (collectively, “Voluntary Improvements”), Landlord shall not cause an Adverse Condition (as defined below) during the course of the performance thereof or resulting therefrom, (y) with respect to any improvements or alterations required by applicable laws and with respect to maintenance, repairs and replacements, Landlord shall use commercially reasonable efforts to minimize any Adverse Conditions during the course of the performance thereof or resulting therefrom, and (z) except as may be required by applicable laws, Landlord shall not be permitted to change the configuration of the Building in a manner that results in an Adverse Condition. As used herein, an “Adverse Condition” shall mean (I) any unreasonable adverse interference with Tenant’s access to the Premises other than on a temporary basis during an on-going emergency, (II) any unreasonable adverse interference with Tenant’s use of the Premises as a first-class biotechnology project, and (III) any reduction in, or unreasonable adverse interference with Tenant’s access to, Tenant’s parking rights hereunder.

1.2 Condition of Premises. Except as expressly set forth in this Lease and in the Tenant Work Letter, Landlord shall not be obligated to provide or pay for any improvement, remodeling or refurbishment work or services related to the improvement, remodeling or refurbishment of the Premises, and Tenant shall accept the Premises in its “As Is” condition on the Lease Commencement Date. Notwithstanding anything to the contrary set forth in this Lease (except the following sentence), Landlord shall, at its sole expense, cause the Project, the Building and the Premises (and each system, component and part of the Project, the Building and/or the Premises), as of the Lease Commencement Date, to be in good working order, to be in good condition (other than routine repair and maintenance), and to be in compliance with all applicable laws, and any expenses incurred by Landlord to comply with the provisions of this sentence shall not be included in any Operating Expenses that may be charged to Tenant in any manner under this Lease. Notwithstanding the foregoing, if Tenant fails to give Landlord written notice of such good working order or good condition matters within twelve (12) months after the Lease Commencement Date, then the correction of any such matters shall, subject to Landlord’s repair obligations in Section 7.2 hereof (and to the extent such correction is a responsibility of Tenant pursuant to Section 7.1 hereof), be Tenant’s responsibility at Tenant’s sole cost and expense. Landlord hereby assigns to Tenant, on a non-exclusive basis, all warranties and guaranties by the contractor who constructs the Tenant Improvements relating to the Tenant Improvements, and Tenant hereby waives all claims against Landlord relating to or arising out of the design and construction of the Tenant Improvements. Tenant also acknowledges that, except as otherwise expressly set forth in this Lease, neither Landlord nor any agent of Landlord has made any representation or warranty with respect to the Premises, the Building, or the Project or their condition, or with respect to the suitability thereof for the conduct of Tenant’s business (including, but not limited to, any zoning/conditional use permit requirements which shall be Tenant’s responsibility and Tenant’s failure to obtain any such zoning/use permits (if any are required) shall not affect Tenant’s obligations under this Lease). The taking of possession of the Premises by Tenant shall conclusively establish that the Premises (including the Tenant Improvements therein), the Building and the Project were at such time complete and in good, sanitary and satisfactory condition (except for matters that could not be reasonably discovered by Tenant during its inspection thereof prior to taking possession) and without any obligation on Landlord’s part to make any alterations, upgrades or improvements thereto. For purposes of Section 1938(a) of the California Civil Code, Landlord hereby discloses to Tenant, and Tenant hereby acknowledges, that the Premises have not undergone inspection by a Certified Access Specialist (CASp). In addition, the following notice is hereby provided pursuant to Section 1938(€ of the California Civil Code:

“A Certified Access Specialist (CASp) can inspect the subject premises and determine whether the subject premises comply with all of the applicable construction-related accessibility standards under state law.

Although state law does not require a CASp inspection of the subject premises, the commercial property owner or lessor may not prohibit the lessee or tenant from obtaining a CASp inspection of the subject premises for the

 

 

 

- 2 -

GENESIS SSF - TWO TOWER PLACE

Arsenal Biosciences, Inc.

[Execution Original]

 


 

occupancy or potential occupancy of the lessee or tenant, if requested by the lessee or tenant. The parties shall mutually agree on the arrangements for the time and manner of the CASp inspection, the payment of the fee for the CASp inspection, and the cost of making any repairs necessary to correct violations of construction-related accessibility standards within the premises.”

In furtherance of and in connection with such notice: (i) Tenant, having read such notice and understanding Tenant’s right to request and obtain a CASp inspection and with advice of counsel, hereby elects not to obtain such CASp inspection and waives its rights to obtain a CASp inspection with respect to the Premises, Building and/or Project to the extent permitted by applicable laws now or hereafter in effect; and (ii) if the waiver set forth in clause (i) hereinabove is not enforceable pursuant to applicable laws, then Landlord and Tenant hereby agree as follows (which constitute the mutual agreement of the parties as to the matters described in the last sentence of the foregoing notice): (A) Tenant shall have the one-time right to request for and obtain a CASp inspection, which request must be made, if at all, in a written notice delivered by Tenant to Landlord on or before that date which is ten (10) days after the date hereof; (B) any CASp inspection timely requested by Tenant shall be conducted (1) between the hours of 9:00 a.m. and 5:00 p.m. on any business day, (2) only after ten (10) days’ prior written notice to Landlord of the date of such CASp inspection, (3) in a professional manner by a CASp designated by Landlord and without any testing that would damage the Premises, Building or Project in any way, and (4) at Tenant’s sole cost and expense, including, without limitation, Tenant’s payment of the fee for such CASp inspection, the fee for any reports prepared by the CASp in connection with such CASp inspection (collectively, the “CASp Reports”) and all other costs and expenses in connection therewith; (C) Tenant shall deliver a copy of any CASp Reports to Landlord within three (3) business days after Tenant’s receipt thereof; (D) Tenant, at its sole cost and expense, shall be responsible for making any improvements, alterations, modifications and/or repairs to or within the Premises to correct violations of construction-related accessibility standards including, without limitation, any violations disclosed by such CASp inspection; and (E) if such CASp inspection identifies any improvements, alterations, modifications and/or repairs necessary to correct violations of construction-related accessibility standards relating to those items of the Building and Project located outside the Premises that are Landlord’s obligation to repair under the Lease (as amended hereby), then Landlord shall perform such improvements, alterations, modifications and/or repairs as and to the extent required by applicable laws to correct such violations, and Tenant shall reimburse Landlord for the cost of such improvements, alterations, modifications and/or repairs within ten (10) business days after Tenant’s receipt of an invoice therefor from Landlord.

1.3 Rentable Square Feet. The rentable square feet of the Premises and the Building are as set forth in Section 6.1 of the Summary except that such rentable square feet of the Building shall be revised if and to the extent that the common areas of the Building are adjusted following the execution of this Lease, and such revision shall be reasonably determined by Landlord’s planner/designer consistent with the methods used to determine the rentable square feet of the Building prior to the execution of this Lease. Upon any such revision to the rentable square footage of the Building, and provided that such revised rentable square footage of the Building is used in a non-discriminatory manner for all tenants of the Building, then Tenant’s Share shall be modified in accordance with such determination. If such determination is made, it will be confirmed in writing by Landlord to Tenant; provided, however, that any such remeasurement shall be performed in a non-discriminatory manner vis-a-vis all tenants of the Building.

1.4 Right of First Offer. Commencing as of the Lease Commencement Date, Tenant shall have a onetime right of first offer with respect to available space located on the eighth (8th) floor of the Building (the “First Offer Space”), as such availability is determined by Landlord in Landlord’s good faith discretion. Notwithstanding the foregoing (i) the lease term for Tenant’s lease of the First Offer Space pursuant to Tenant’s exercise of such first offer right of Tenant shall commence only following the expiration or earlier termination of any existing lease pertaining to the First Offer Space, including any renewal or extension of any such existing lease, whether or not such renewal or extension is pursuant to an express written provision in such lease, and regardless of whether any such renewal or extension is consummated pursuant to a lease amendment or a new lease, and (ii) such first offer right shall be subordinate and secondary to all rights of expansion, first refusal, first offer or similar rights granted to (x) the tenant of any such existing lease and (y) any other tenant of the Project as of the date hereof (the rights described in items (i) and (ii), above to be known collectively as the “Superior Rights”). Tenant’s right of first offer shall be on the terms and conditions set forth in this Section 1.4.

1.4.1 Procedure for Offer. Landlord shall notify Tenant (the “First Offer Notice”) from time to time when Landlord determines, in Landlord’s good faith discretion, that the First Offer Space becomes or is expected to become available for lease to third parties (where no holder of a Superior Right desires to lease such space). The economic terms and conditions of Tenant’s lease of such First Offer Space shall be as provided in Landlord’s First Offer Notice (“First Offer Economic Terms”).

 

 

 

- 3 -

GENESIS SSF - TWO TOWER PLACE

Arsenal Biosciences, Inc.

[Execution Original]

 


 

1.4.2 Procedure for Acceptance. If Tenant wishes to exercise Tenant’s right of first offer with respect to the space described in the First Offer Notice, then within five (5) business days after delivery of the First Offer Notice to Tenant (“Election Date”), Tenant shall deliver an unconditional, irrevocable notice to Landlord of Tenant’s exercise of its right of first offer with respect to the entire space described in the First Offer Notice and on the First Offer Economic Terms contained therein. If Tenant does not exercise its right of first offer within such five (5) business day time period (on all of the First Offer Economic Terms), then Landlord shall be free to lease the space described in the First Offer Notice to anyone to whom Landlord desires on any terms Landlord desires and Tenant’s right of first offer shall, notwithstanding anything in this Lease to the contrary, automatically terminate and this Section 1. 4 shall be deemed null and void and of no further force or effect; provided, however, that if Landlord, within thirty (30) days after such five (5) day period, intends to enter into a lease upon First Offer Economic Terms which are, in the aggregate, materially more favorable to a prospective tenant than those First Offer Economic Terms proposed by Landlord in the First Offer Notice to Tenant, then Landlord shall first deliver written notice to Tenant (“Second Chance Notice”) providing Tenant with the opportunity to lease the First Offer Space on such more favorable First Offer Economic Terms (such more favorable terms in the Second Chance Notice are referred to herein as the “Second Chance Economic Terms”). For purposes hereof, Second Chance Economic Terms shall be materially more favorable to a third party if such Second Chance Economic Terms reflect a net effective rental rate (including any rent abatement and tenant improvement costs/allowance and any other economic concessions) less than ninety percent (90%) of the net effective rental rate for such First Offer Space as the First Offer Economic Terms initially proposed by Landlord in the First Offer Notice. Tenant’s failure to elect to lease the First Offer Space upon such Second Chance Economic Terms by written notice to Landlord within three (3) business days after Tenant’s receipt of such Second Chance Notice from Landlord shall be deemed to constitute Tenant’s election not to lease such space upon such Second Chance Economic Terms, in which case Landlord shall be entitled to lease such space to any third (3rd) party on any terms Landlord desires and Tenant shall have no further right to lease such First Offer Space set forth in the Second Chance Notice. Notwithstanding anything to the contrary contained herein, Tenant must elect to exercise its right of first offer, if at all, with respect to all of the space comprising the First Offer Space offered by Landlord to Tenant at any particular time, and Tenant may not elect to lease only a portion thereof or object to any of the First Offer Economic Terms.

1.4.3 Construction of First Offer Space. Tenant shall take the First Offer Space in its “As-Is” condition (except as otherwise provided in the First Offer Notice), and Tenant shall be entitled to construct improvements in the First Offer Space at Tenant’s expense, in accordance with and subject to the provisions of Article 8 of this Lease.

1.4.4 Lease of First Offer Space. If Tenant timely exercises Tenant’s right to lease the First Offer Space as set forth herein, Landlord and Tenant shall execute an amendment adding such First Offer Space to this Lease upon the First Offer Economic Terms set forth in Landlord’s First Offer Notice and upon the same non-economic terms and conditions as applicable to the Premises then leased by Tenant under this Lease. Tenant shall commence payment of rent for the First Offer Space and the Lease Term of the First Offer Space shall commence upon the date of delivery of such First Offer Space to Tenant. The Lease Term for the First Offer Space shall be as provided in the First Offer Economic Terms.

1.4.5 No Defaults. The rights contained in this Section 1.4 shall be personal to the original Tenant executing this Lease (“Original Tenant”) and any Affiliate Assignee, and may only be exercised by the Original Tenant or any Affiliate Assignee (and not any other assignee, sublessee or other transferee of the Original Tenant’s interest (or Affiliate Assignee’s interest) in this Lease) if the Original Tenant (or any Affiliate Assignee) actually occupies the entire Premises then leased by Original Tenant (or any Affiliate Assignee) as of the date of Tenant’s exercise of its right of first offer. In addition, at Landlord’s option and in addition to Landlord’s other remedies set forth in this Lease, at law and/or in equity, Tenant shall not have the right to lease the First Offer Space as provided in this Section 1.4 if, as of the date of the First Offer Notice, or, at Landlord’s option, as of the scheduled date of delivery of such First Offer Space to Tenant, Tenant is in default under this Lease beyond the expiration of all applicable notice and cure periods.

ARTICLE 2

LEASE TERM

Except as otherwise provided in this Lease, the terms and provisions of this Lease shall be effective as of the date of this Lease except for the provisions of this Lease relating to the payment of Rent. The term of this Lease (the “Lease Term”) shall be as set forth in Section 7.1 of the Summary and shall commence on the date (the “Lease Commencement

 

 

 

- 4 -

GENESIS SSF - TWO TOWER PLACE

Arsenal Biosciences, Inc.

[Execution Original]

 


 

Date”) set forth in Section 7.2 of the Summary (subject, however, to the terms of the Tenant Work Letter), and shall terminate on the date (the “Lease Expiration Date”) set forth in Section 7.3 of the Summary, unless this Lease is sooner terminated as hereinafter provided or if the Lease Term is renewed pursuant to the Extension Option Rider. Notwithstanding the foregoing, if the Lease Commencement Date falls on any day other than the first day of a calendar month then the Term of this Lease will be measured from the first day of the month following the month in which the Lease Commencement Date occurs. For purposes of this Lease, the term “Lease Year” shall mean each consecutive twelve (12) month period during the Lease Term, provided that the last Lease Year shall end on the Lease Expiration Date. If Landlord does not deliver possession of the Premises to Tenant Ready for Occupancy on or before that date which is thirty (30) days after the Anticipated Lease Commencement Date (“Outside Date”), as such Outside Date shall be extended due to Tenant Delays in accordance with Section 4.2 of the Work Letter) and Force Majeure delays (as defined in Section 24.17 hereof), then Tenant shall receive one(1) Free Base Rent Day (as hereinafter defined) for each day that elapses from and after the Outside Date (as such date may be extended as provided above) until and including the date on which Landlord delivers possession of the Premises to Tenant Ready for Occupancy. A “Free Base Rent Day” means a day for which Tenant has no obligation to pay Base Rent after the Lease Commencement Date, and Tenant shall apply all Free Base Rent Days to Base Rent as it becomes due.. Tenant’s early access rights are set forth in Section 5.1 of Exhibit B. If the Lease Commencement Date is a date which is other than the anticipated Lease Commencement Date set forth in Section 7.2 of the Summary, then, following the Lease Commencement Date, Landlord shall deliver to Tenant an amendment to lease in the form attached hereto as Exhibit C, attached hereto, setting forth, among other things, the Lease Commencement Date and the Lease Expiration Date, and Tenant shall (absent manifest error) execute and return such amendment to Landlord within five (5) business days after Tenant’s receipt thereof. If Tenant fails to execute and return (or provide reasonable objections to) the amendment within such 5-business day period, Tenant shall be deemed to have approved and confirmed the dates set forth therein, provided that such deemed approval shall not relieve Tenant of its obligation (absent manifest error) to execute and return the amendment (and such failure shall constitute a default by Tenant hereunder).

ARTICLE 3

BASE RENT

Tenant shall pay, without notice or demand, to Landlord at the address set forth in Section 3 of the Summary, or at such other place as Landlord may from time to time designate in writing, in currency or a check for currency which, at the time of payment, is legal tender for private or public debts in the United States of America, base rent (“Base Rent”) as set forth in Section 8 of the Summary, payable in equal monthly installments as set forth in Section 8 of the Summary in advance on or before the first day of each and every month during the Lease Term, without any setoff or deduction whatsoever. Landlord agrees to provide ACH information to Tenant. Concurrently with Tenant’s execution of this Lease, Tenant shall deliver to Landlord an amount equal to $280,610.46, which amount shall be comprised of the following: (i) the Base Rent payable by Tenant for the Premises for the eleventh (11th) full month of the Lease Term (i.e., $229,844.75); and (ii) the Estimated Expenses (as defined below) payable by Tenant for the Premises for the eleventh (11th) full month of the Lease Term (i.e., $50,765.71). If any rental payment date (including the Lease Commencement Date) falls on a day of the month other than the first day of such month or if any rental payment is for a period which is shorter than one month, then the rental for any such fractional month shall be a proportionate amount of a full calendar month’s rental based on the proportion that the number of days in such fractional month bears to the number of days in the calendar month during which such fractional month occurs. All other payments or adjustments required to be made under the terms of this Lease that require proration on a time basis shall be prorated on the same basis.

Notwithstanding anything to the contrary contained herein and so long as Tenant is not then in default under this Lease (beyond the expiration of all applicable notice and cure periods), Landlord hereby agrees to abate Tenant’s obligation to pay (i) one hundred percent (100%) of Tenant’s monthly Base Rent for the first (1st) ten (10) full calendar months of the initial Lease Term for the sixth (6th) floor portion of the Premises only and (ii) one hundred percent (100%) of Tenant’s obligation to pay for Tenant’s Share of Operating Expenses, Tax Expenses and Utilities Costs as well as Project management fees for the sixth (6th) floor portion of the Premises for the first five (5) full months of the initial Lease Term (collectively, the “Abated Rent”). During such abatement period, Tenant shall still be responsible for the payment of all of its other monetary obligations under this Lease. In the event of a default by Tenant under the terms of this Lease that results in early termination pursuant to the provisions of Article 19 of this Lease, then as part of the recovery set forth in Article 19 of this Lease, Landlord shall be entitled to the recovery of the unamortized amount (amortized over the 112 month Lease Term) of the Abated Rent that was abated under the provisions of this Article 3.

 

 

 

- 5 -

GENESIS SSF - TWO TOWER PLACE

Arsenal Biosciences, Inc.

[Execution Original]

 


 

ARTICLE 4

ADDITIONAL RENT

4.1 Additional Rent. In addition to paying the Base Rent specified in Article 3 above, Tenant shall pay as additional rent the sum of the following: (i) Tenant’s Share (as such term is defined below) of the annual Operating Expenses allocated to the Building (pursuant to Section 4.3.4 below); plus (ii) Tenant’s Share of the annual Tax Expenses allocated to the Building (pursuant to Section 4.3.4 below); plus (iii) Tenant’s Share of the annual Utilities Costs allocated to the Building (pursuant to Section 4.3.4 below). Such additional rent, together with any and all other amounts payable by Tenant to Landlord pursuant to the terms of this Lease (including, without limitation, pursuant to Article 6), shall be hereinafter collectively referred to as the “Additional Rent.” The Base Rent and Additional Rent are herein collectively referred to as the “Rent.” All amounts due under this Article 4 as Additional Rent shall be payable for the same periods and in the same manner, time and place as the Base Rent. Without limitation on other obligations of Tenant which shall survive the expiration of the Lease Term, the obligations of Tenant to pay the Additional Rent provided for in this Article 4 shall survive the expiration of the Lease Term.

4.2 Definitions. As used in this Article 4, the following terms shall have the meanings hereinafter set forth:

4.2.1 “Calendar Year” shall mean each calendar year in which any portion of the Lease Term falls, through and including the calendar year in which the Lease Term expires.

4.2.2 “Expense Year” shall mean each Calendar Year.

4.2.3 “Operating Expenses” shall mean all expenses, costs and amounts of every kind and nature which Landlord shall pay during any Expense Year because of or in connection with the ownership, management, maintenance, repair, restoration or operation of the Project, including, without limitation, any amounts paid for: (i) the cost of operating, maintaining, repairing, renovating and managing the utility systems, lab systems, central plant, mechanical systems, sanitary and storm drainage systems, any elevator systems (if applicable) and all other “Systems and Equipment” (as defined in Section 4.2.4 of this Lease), and the cost of supplies and equipment and maintenance and service contracts in connection therewith; (ii) the cost of licenses, certificates, permits and inspections, and the cost of contesting the validity or applicability of any governmental enactments which may affect Operating Expenses, and the costs incurred in connection with implementation and operation (by Landlord or any common area association(s) formed for the Project) of any transportation system management program or similar program; (iii) the cost of insurance carried by Landlord, in such amounts as Landlord may reasonably determine or as may be reasonably required by any mortgagees of any mortgage or the lessor of any ground lease affecting the Project; (iv) the cost of landscaping, relamping, supplies, tools, equipment and materials, and all fees, charges and other costs (including consulting fees, legal fees and accounting fees) incurred in connection with the management, operation, repair and maintenance of the Project; (v) any equipment rental agreements or management agreements (including the cost of any property management fee (to be equal to (and shall not exceed) three percent (3%) of Tenant’s then annual Base Rent) but excluding the rental of any office space provided thereunder); (vi) costs of operating amenities in and/or serving the Project and the wages, salaries and other compensation and benefits of all persons engaged in the operation, management, maintenance or security of the Project, and employer’s Social Security taxes, unemployment taxes or insurance, and any other taxes which may be levied on such wages, salaries, compensation and benefits; (vii) payments under any easement, license, operating agreement, declaration, restrictive covenant, underlying or ground lease (excluding rent), or instrument pertaining to the sharing of costs by the Project (including but not limited to, the CC&Rs described in Article 5 hereof); (viii) the cost of janitorial service, trash removal (provided, however, Operating Expenses shall not include the cost of janitorial services and trash removal services provided to the Premises or the premises of other tenants of the Building and/or the Project or the cost of replacing light bulbs, lamps, starters and ballasts for lighting fixtures in the Premises and the premises of other tenants in the Building and/or the Project to the extent such services are directly provided and paid for by Tenant pursuant to Section 6.6 below), alarm and security service, if any, window cleaning, replacement of wall and floor coverings, ceiling tiles and fixtures in lobbies, corridors, restrooms and other common or public areas or facilities, maintenance and replacement of curbs and walkways, repair to roofs and re-roofing; (ix) amortization (including interest on the unamortized cost) of the cost of acquiring or the rental expense of personal property used in the maintenance, operation and repair of the Project; (x) the cost of any capital improvements or other costs (I) which are intended as a labor-saving device or to effect other economies in the operation or maintenance of the Project or which are otherwise permitted hereunder, (II) made to the Project or any portion thereof after the Lease Commencement Date that are required under any governmental law or regulation, or (III) which are governmentally mandated Conservation Costs (as defined below) and/or which are reasonably determined by Landlord to be in the best interests of the Project; provided, however, that if any such cost described in (I), (II) or (III) above, is a

 

 

 

- 6 -

GENESIS SSF - TWO TOWER PLACE

Arsenal Biosciences, Inc.

[Execution Original]

 


 

capital expenditure, such cost shall be amortized (including interest on the unamortized cost) over the useful life of such expenditure, as Landlord shall reasonably determine; and (xi) the costs and expenses of complying with, or participating in, conservation, recycling, sustainability, energy efficiency, waste reduction or other governmentally mandated programs or practices implemented or enacted from time to time at the Building and/or Project, including, without limitation, in connection with any LEED (Leadership in Energy and Environmental Design) rating or compliance system or program, including that currently coordinated through the U.S. Green Building Council or Energy Star rating and/or compliance system or program (collectively, “Conservation Costs”). If Landlord is not furnishing any particular work or service (the cost of which, if performed by Landlord, would be included in Operating Expenses except to the extent prohibited in Article 4 hereof) to a tenant who has undertaken to perform such work or service in lieu of the performance thereof by Landlord, Operating Expenses shall be deemed to be increased by an amount equal to the additional Operating Expenses which would reasonably have been incurred during such period by Landlord if it had at its own expense furnished such work or service to such tenant. If any of (x) the Building, (y) the Other Existing Building (but only during the period of time the same are included by Landlord within the Project) and (z) any additional buildings are added to the Project pursuant to Section 1.1.3 above (but only during the period of time after such additional buildings have been fully constructed and ready for occupancy and are included by Landlord within the Project) are less than ninety-five percent (95%) occupied during all or a portion of any Expense Year, Landlord shall make an appropriate adjustment to the variable components of Operating Expenses for such year or applicable portion thereof, employing sound accounting and management principles, to determine the amount of Operating Expenses that would have been paid had the Building, such Other Existing Building and such additional buildings (if any) been ninety-five percent (95%) occupied; and the amount so determined shall be deemed to have been the amount of Operating Expenses for such year, or applicable portion thereof.

Subject to the provisions of Section 4.3.4 below, Landlord shall have the right, from time to time, to equitably allocate some or all of the Operating Expenses (and/or Tax Expenses and Utilities Costs) between the Building and the Other Existing Building and/or among different tenants of the Project and/or among the Other Buildings (as defined in Section 4.3.4 below, if any), as and when such different buildings are constructed and added to (and/or excluded from) the Project (the “Cost Pools”). Such Cost Pools may also include a reasonable allocation of certain Operating Expenses (and/or Tax Expenses and Utilities Costs) within or under covenants, conditions and restrictions affecting the Project. In addition, Landlord shall have the right from time to time, in its reasonable discretion, to include future buildings in the Project for purposes of determining Operating Expenses, Tax Expenses and Utilities Costs and/or the provision of various services and amenities thereto, including allocation of Operating Expenses, Tax Expenses and Utilities Costs in any such Cost Pools.

Notwithstanding the foregoing, Operating Expenses shall not, however, include: (A) costs of leasing commissions, attorneys’ fees and other costs and expenses incurred in connection with negotiations or disputes with present or prospective tenants or other occupants of the Project; (B) costs (including permit, license and inspection costs) incurred in renovating or otherwise improving, decorating or redecorating rentable space for other tenants or vacant rentable space; (C) costs incurred due to the violation by Landlord of the terms and conditions of any lease of space in the Project; (D) costs of overhead or profit increment paid to Landlord or to subsidiaries or affiliates of Landlord for services in or in connection with the Project to the extent the same exceeds the costs of overhead and profit increment included in the costs of such services which could be obtained from third parties on a competitive basis; (E) except as otherwise specifically provided in this Section 4.2.3, costs of interest on debt or amortization on any mortgages, and rent payable under any ground lease of the Project; (F) Utilities Costs; and (G) Tax Expenses and (H) any of the following (“Excluded Costs”):

(a) the original construction costs of the Premises, the Building or the Project and renovation prior to the date of this Lease and costs of correcting defects in such original construction or renovation;

(b) capital expenditures for expansion or reconfiguration of the Building or the Project;

(c) capital expenditures except as expressly set forth in Section 4.2.3(x) above;

(d) interest, principal or any other payments under any mortgage or similar debts of Landlord, financing costs and amortization of funds borrowed by Landlord, whether secured or unsecured and all payments of rent (but not taxes or operating expenses) under any ground lease or other underlying lease of all or any portion of the Building or the Project;

(e) reserves for or depreciation of the Building or the Project;

 

 

 

- 7 -

GENESIS SSF - TWO TOWER PLACE

Arsenal Biosciences, Inc.

[Execution Original]

 


 

(f) advertising, marketing, legal and space planning expenses and leasing commissions and other costs and expenses incurred in procuring and leasing space to tenants for the Building or the Project, including any leasing office maintained in the Building or the Project, free rent and construction allowances for tenants;

(g) legal and other expenses incurred in the negotiation or enforcement of leases;

(h) completing, fixturing, improving, renovating, painting, redecorating or other work, which Landlord pays for or performs for other tenants within their premises, and costs of correcting defects in such work;

(i) costs to be reimbursed by other tenants of the Building or the Project or Taxes to be paid directly by Tenant or other tenants of the Building or the Project, whether or not actually paid;

(j) salaries, wages, benefits and other compensation paid to officers and employees of Landlord who are not assigned in whole or in part (and, if in part, then on a pro rata basis based on the amount of time devoted to the Building or the Project) to the operation, management, maintenance or repair of the Building or the Project;

(k) general organizational, administrative and overhead costs relating to maintaining Landlord’s existence, either as a corporation, partnership, or other entity, including general corporate, legal and accounting expenses;

(l) costs (including attorneys’ fees and costs of settlement, judgments and payments in lieu thereof) incurred in connection with disputes with tenants, other occupants, or prospective tenants, and costs and expenses, including legal fees, incurred in connection with negotiations or disputes with employees, consultants, management agents, leasing agents, purchasers or mortgagees of the Building;

(m) costs incurred by Landlord due to the violation by Landlord, its employees, agents or contractors or any tenant of the terms and conditions of any lease of space in the Building or the Project or any legal requirement;

(n) penalties, fines or interest incurred as a result of Landlord’s inability or failure to make payment of Taxes and/or to file any tax or informational returns when due, or from Landlord’s failure to make any payment of Taxes required to be made by Landlord hereunder before delinquency;

(o) overhead and profit increment paid to Landlord or to subsidiaries or affiliates of Landlord for goods and/or services in or to the Building or the Project to the extent the same exceeds the costs of such goods and/or services rendered by unaffiliated third parties on a competitive basis;

(p) costs of Landlord’s charitable or political contributions, or of fine art maintained at the Building or the Project;

(q) costs in connection with services (including electricity), items or other benefits of a type which are not standard for the Building or the Project and which are not available to Tenant without specific charges therefor, but which are provided to another tenant or occupant of the Building or the Project, whether or not such other tenant or occupant is specifically charged therefor by Landlord;

(r) costs incurred in the sale or refinancing of the Building or the Project;

(s) items and services which Landlord offers selectively to one or more tenants of the Building or the Project (not including Tenant) without reimbursement;

(t) costs of repairs directly resulting from the gross negligence or willful misconduct of Landlord or its employees, officers, directors, contractors or agents;

(u) any costs incurred to remove, study, test or remediate Hazardous Materials that exist in or about the Building or the Project prior to the Lease Commencement Date;

 

 

 

- 8 -

GENESIS SSF - TWO TOWER PLACE

Arsenal Biosciences, Inc.

[Execution Original]

 


 

(v) the cost of installing or upgrading any utility metering for any part of the Building or the Project;

(w) net income taxes of Landlord or the owner of any interest in the Building or the Project, franchise, capital stock, gift, estate or inheritance taxes or any federal, state or local documentary taxes imposed against the Building or the Project or any portion thereof or interest therein;

(x) any expenses otherwise includable within Operating Expenses to the extent actually reimbursed by persons other than tenants of the Building or the Project under leases for space in the Building or the Project;

(y) any costs with respect to amenities that Tenant is prohibited from using under this Lease; and

(z) the costs and expenses of complying with, or participating in, non-government mandated conservation, recycling, sustainability, energy efficiency, waste reduction or other programs or practices implemented or enacted from time to time at the Building and/or Project, including, without limitation, in connection with any LEED (Leadership in Energy and Environmental Design) rating or compliance system or program, including that currently coordinated through the U.S. Green Building Council or Energy Star rating and/or compliance system or program (and only government mandated programs and policies shall be included in Operating Expenses).

4.2.4 “Systems and Equipment” shall mean any plant (including any central plant), machinery, transformers, duct work, cable, wires, and other equipment, facilities, and systems designed to supply heat, ventilation, air conditioning and humidity or any other services or utilities, or comprising or serving as any component or portion of the electrical, gas, steam, plumbing, sprinkler, communications, alarm, lab, security, or fire/life safety systems or equipment, or any other mechanical, electrical, electronic, computer or other systems or equipment which serve the Building and/or any other building in the Project in whole or in part.

4.2.5 “Tax Expenses” shall mean all federal, state, county, or local governmental or municipal taxes, fees, assessments, charges or other impositions of every kind and nature, whether general, special, ordinary or extraordinary, (including, without limitation, real estate taxes, general and special assessments, transit assessments, fees and taxes, child care subsidies, fees and/or assessments, job training subsidies, fees and/or assessments, open space fees and/or assessments, housing subsidies and/or housing fund fees or assessments, public art fees and/or assessments, leasehold taxes or taxes based upon the receipt of rent, including gross receipts or sales taxes applicable to the receipt of rent, personal property taxes imposed upon the fixtures, machinery, equipment, apparatus, systems and equipment, appurtenances, furniture and other personal property used in connection with the Project), which Landlord shall pay during any Expense Year because of or in connection with the ownership, leasing and operation of the Project or Landlord’s interest therein. For purposes of this Lease, Tax Expenses shall be calculated as if (i) the tenant improvements in the Building, the Other Existing Building and any additional buildings added to the Project pursuant to Section 1.1.3 above (but only during the period of time that such Other Existing Building and additional buildings are included by Landlord within the Project) were fully constructed, and (ii) the Project, the Building, such Other Existing Building and such additional buildings (if any) and all tenant improvements therein were fully assessed for real estate tax purposes.

4.2.5.1 Tax Expenses shall include, without limitation:

(i) Any tax on Landlord’s rent, right to rent or other income from the Project or as against Landlord’s business of leasing any of the Project;

(ii) Any assessment, tax, fee, levy or charge in addition to, or in substitution, partially or totally, of any assessment, tax, fee, levy or charge previously included within the definition of real property tax, it being acknowledged by Tenant and Landlord that Proposition 13 was adopted by the voters of the State of California in the June 1978 election (“Proposition 13”) and that assessments, taxes, fees, levies and charges may be imposed by governmental agencies for such services as fire protection, street, sidewalk and road maintenance, refuse removal and for other governmental services formerly provided without charge to property owners or occupants. It is the intention of Tenant and Landlord that all such new and increased assessments, taxes, fees, levies, and charges and all similar assessments, taxes, fees, levies and charges be included within the definition of Tax Expenses for purposes of this Lease;

 

 

 

- 9 -

GENESIS SSF - TWO TOWER PLACE

Arsenal Biosciences, Inc.

[Execution Original]

 


 

(iii) Any assessment, tax, fee, levy, or charge allocable to or measured by the area of the Premises or the rent payable hereunder, including, without limitation, any gross income tax upon or with respect to the possession, leasing, operating, management, maintenance, alteration, repair, use or occupancy by Tenant of the Premises, or any portion thereof;

(iv) Any assessment, tax, fee, levy or charge, upon this transaction or any document to which Tenant is a party, creating or transferring an interest or an estate in the Premises; and

(v) Any reasonable expenses incurred by Landlord in attempting to protest,
reduce or minimize Tax Expenses.

4.2.5.2 Notwithstanding anything to the contrary contained in this Section 4.2.5, there shall be excluded from Tax Expenses (i) all excess profits taxes, franchise taxes, gift taxes, capital stock taxes, inheritance and succession taxes, estate taxes, federal and state net income taxes, and other taxes to the extent applicable to Landlord’s net income (as opposed to rents, receipts or income attributable to operations at the Project), (ii) any items included as Operating Expenses, (iii) any items paid by Tenant under Section 4.4 below and (iv) the Excluded Costs.

4.2.6 “Tenant’s Share” shall mean the percentage set forth in Section 9 of the Summary. Tenant’s Share was calculated by dividing the number of rentable square feet of the Premises by the total rentable square feet in the Building (as set forth in Section 9 of the Summary), and stating such amount as a percentage. Landlord shall have the right from time to time to redetermine the rentable square feet of the Building (but only in accordance with Section 1.3), and Tenant’s Share shall be appropriately adjusted to reflect any such redetermination. If Tenant’s Share is adjusted pursuant to the foregoing, as to the Expense Year in which such adjustment occurs, Tenant’s Share for such year shall be determined on the basis of the number of days during such Expense Year that each such Tenant’s Share was in effect.

4.2.7 “Utilities Costs” shall mean all actual charges for utilities for the Building and the Project (including utilities for the Other Existing Building and additional buildings, if any, added to the Project during the period of time the same are included by Landlord within the Project) which Landlord shall pay during any Expense Year, including, but not limited to, the costs of water, sewer, gas and electricity, and the costs of HVAC and other utilities, including any lab utilities and central plant utilities (but excluding those charges for which tenants directly reimburse Landlord or otherwise pay directly to the utility company) as well as related fees, assessments and surcharges. Utilities Costs shall be calculated assuming the Building (and, during the period of time when such buildings are included by Landlord within the Project, the Other Existing Building and any additional buildings, if any, added to the Project) are at least ninety-five percent (95%) occupied. If, during all or any part of any Expense Year, Landlord shall not provide any utilities (the cost of which, if provided by Landlord, would be included in Utilities Costs) to a tenant (including Tenant) who has undertaken to provide the same instead of Landlord, Utilities Costs shall be deemed to be increased by an amount equal to the additional Utilities Costs which would reasonably have been incurred during such period by Landlord if Landlord had at its own expense provided such utilities to such tenant. Utilities Costs shall include any costs of utilities which are allocated to the Project under any declaration, restrictive covenant, or other instrument pertaining to the sharing of costs by the Project or any portion thereof, including any covenants, conditions or restrictions now or hereafter recorded against or affecting the Project.

4.3 Calculation and Payment of Additional Rent.

4.3.1 Payment of Operating Expenses, Tax Expenses and Utilities Costs. For each Expense Year ending or commencing within the Lease Term, Tenant shall pay to Landlord, as Additional Rent, the following, which payment shall be made in the manner set forth in Section 4.3.2 below: (i) Tenant’s Share of Operating Expenses allocated to the Building pursuant to Section 4.3.4 below; plus (ii) Tenant’s Share of Tax Expenses allocated to the Building pursuant to Section 4.3.4 below; plus (iii) Tenant’s Share of Utilities Costs allocated to the Building pursuant to Section 4.3.4 below.

4.3.2 Statement of Actual Operating Expenses. Tax Expenses and Utilities Costs and Payment by Tenant. Landlord shall give to Tenant on or before the first (1st) day of June following the end of each Expense Year (or as soon thereafter as reasonably possible), a statement (the “Statement”) which shall state the Operating Expenses, Tax Expenses and Utilities Costs incurred or accrued for such preceding Expense Year that are allocated to the Building pursuant to Section 4.3.4 below, and which shall indicate therein Tenant’s Share thereof. Within thirty (30) days after Tenant’s receipt of the Statement for each Expense Year ending during the Lease Term, Tenant shall pay to Landlord the full amount of

 

 

 

- 10 -

GENESIS SSF - TWO TOWER PLACE

Arsenal Biosciences, Inc.

[Execution Original]

 


 

the Tenant’s Share of Operating Expenses, Tax Expenses and Utilities Costs for such Expense Year, less the amounts, if any, paid during such Expense Year as the Estimated Expenses as defined in and pursuant to Section 4.3.3 below. If any Statement reflects that Tenant has overpaid Tenant’s Share of Operating Expenses and/or Tenant’s Share of Tax Expenses and/or Tenant’s Share of Utilities Costs for such Expense Year, then Landlord shall credit such overpayment toward the additional Rent next due and payable to Tenant under this Lease unless the overpayment is greater than the additional Rent next due or reasonably estimated to be due during the balance of the Lease Term, in which event Landlord shall remit such overpayment to Tenant within thirty (30) days after such applicable Statement is delivered to Tenant. Landlord’s failure to timely furnishing statement shall not prejudice Landlord from enforcing its rights under this Article 4; provided, however, that Tenant shall not be responsible for Tenant’s Share of any Operating Expenses, Tax Expenses or Utilities Costs attributable to any Expense Year which was first billed to Tenant more than twelve (12) months after the date (the “Cutoff Date”) which is the earlier of (i) the expiration of the applicable Expense Year or (ii) the Lease Expiration Date; and provided further, that Tenant shall be responsible for Tenant’s Share of Operating Expenses levied by any governmental authority or by any public utility company at any time following the applicable Cutoff Date which are attributable to any Expense Year occurring prior to such Cutoff Date, so long as Landlord delivers to Tenant a bill and supplemental Statement for such amounts within eighteen (18) months following the Cutoff Date. Even though the Lease Term has expired and Tenant has vacated the Premises, if the Statement for the Expense Year in which this Lease terminates reflects that Tenant has overpaid and/or underpaid Tenant’s Share of the Operating Expenses and/or Tenant’s Share of Tax Expenses and/or Tenant’s Share of Utilities Costs for such Expense Year, then within thirty (30) days after Landlord’s delivery of such Statement to Tenant, Landlord shall refund to Tenant any such overpayment, or Tenant shall pay to Landlord any such underpayment, as the case may be. Tenant’s failure to object any Statement within sixty (60) days after Tenant’s receipt thereof shall constitute Tenant’s irrevocable waiver to object to the same. The provisions of this Section 4.3.2 shall survive the expiration or earlier termination of the Lease Term.

4.3.3 Statement of Estimated Operating Expenses, Tax Expenses and Utilities Costs. Landlord shall endeavor to give Tenant a yearly expense estimate statement (the “Estimate Statement”) which shall set forth Landlord’s reasonable estimate (the “Estimate”) of the total amount of Tenant’s Share of the Operating Expenses, Tax Expenses and Utilities Costs allocated to the Building pursuant to Section 4.3.4 below for the then-current Expense Year shall be, and which shall indicate therein Tenant’s Share thereof (the “Estimated Expenses”). The failure of Landlord to timely furnish the Estimate Statement for any Expense Year shall not preclude Landlord from enforcing its rights to collect any Estimated Expenses under this Article 4. Following Landlord’s delivery of the Estimate Statement for the then-current Expense Year, Tenant shall pay, with its next installment of Base Rent due, a fraction of the Estimated Expenses for the then-current Expense Year (reduced by any amounts paid pursuant to the last sentence of this Section 4.3.3). Such fraction shall have as its numerator the number of months which have elapsed in such current Expense Year to the month of such payment, both months inclusive, and shall have twelve (12) as its denominator. Until a new Estimate Statement is furnished, Tenant shall pay monthly, with the monthly Base Rent installments, an amount equal to one-twelfth (1/12) of the total Estimated Expenses set forth in the previous Estimate Statement delivered by Landlord to Tenant.

4.3.4 Allocation of Operating Expenses, Tax Expenses and Utilities Costs to Building. The parties acknowledge that the Building is part of a multi-building commercial project consisting of the Building, and the Other Existing Building and such other buildings as Landlord (and/or any other owners of the Project) may elect to construct and include as part of the Project from time to time (the Other Existing Building and any such other buildings are sometimes referred to herein, collectively, as the “Other Buildings”), and that certain of the costs and expenses incurred in connection with the Project (i.e. the Operating Expenses, Tax Expenses and Utilities Costs) shall be shared among the Building and/or such Other Buildings (if any), while certain other costs and expenses which are solely attributable to the Building and such Other Buildings, as applicable, shall be allocated directly to the Building and the Other Buildings, respectively. Accordingly, as set forth in Sections 4.1 and 4.2 above, Operating Expenses, Tax Expenses and Utilities Costs are determined annually for the Project as a whole, and a portion of the Operating Expenses, Tax Expenses and Utilities Costs, which portion shall be determined by Landlord on an equitable basis, shall be allocated to the Building (as opposed to the tenants of the Other Buildings), and such portion so allocated shall be the amount of Operating Expenses, Tax Expenses and Utilities Costs payable with respect to the Building upon which Tenant’s Share shall be calculated. Such portion of the Operating Expenses, Tax Expenses and Utilities Costs allocated to the Building shall include all Operating Expenses, Tax Expenses and Utilities Costs which are attributable solely to the Building, and an equitable portion of the Operating Expenses, Tax Expenses and Utilities Costs attributable to the Project as a whole. As an example of such allocation with respect to Tax Expenses and Utilities Costs, it is anticipated that Landlord (and/or any other owners of the Project) may receive separate tax bills which separately assess the improvements component of Tax Expenses for each building in the Project and/or Landlord may receive separate utilities bills from the utilities companies identifying the Utilities Costs for

 

 

 

- 11 -

GENESIS SSF - TWO TOWER PLACE

Arsenal Biosciences, Inc.

[Execution Original]

 


 

certain of the utilities costs directly incurred by each such building (as measured by separate meters installed for each such building), and such separately assessed Tax Expenses and separately metered Utilities Costs shall be calculated for and allocated separately to each such applicable building. In addition, in the event Landlord (and/or any other owners of the Project) elect to subdivide certain common area portions of the Project such as landscaping, public and private streets, driveways, walkways, courtyards, plazas, transportation facilitation areas and/or accessways into a separate parcel or parcels of land (and/or separately convey all or any of such parcels to a common area association to own, operate and/or maintain same), the Operating Expenses, Tax Expenses and Utilities Costs for such common area parcels of land may be aggregated and then reasonably allocated by Landlord to the Building and such Other Buildings on an equitable basis as Landlord (and/or any applicable covenants, conditions and restrictions for any such common area association) shall provide from time to time.

4.4 Taxes and Other Charges for Which Tenant Is Directly Responsible. Tenant shall reimburse Landlord upon demand for all taxes or assessments required to be paid by Landlord (except to the extent included in Tax Expenses by Landlord), excluding state, local and federal personal or corporate income taxes measured by the net income of Landlord from all sources and estate and inheritance taxes, whether or not now customary or within the contemplation of the parties hereto, when:

4.4.1 said taxes are measured by or reasonably attributable to the cost or value of Tenant’s equipment, furniture, fixtures and other personal property located in the Premises, or by the cost or value of any leasehold improvements made in or to the Premises by or for Tenant, to the extent the cost or value of such leasehold improvements exceeds the cost or value of a building standard build-out as determined by Landlord regardless of whether title to such improvements shall be vested in Tenant or Landlord;

4.4.2 said taxes are assessed upon or with respect to the possession, leasing, operation, management, maintenance, alteration, repair, use or occupancy by Tenant of the Premises or any portion of the Project; or

4.4.3 said taxes are assessed upon this transaction or any document to which Tenant is a party creating or transferring an interest or an estate in the Premises.

4.5 Late Charges. If any installment of Rent or any other sum due from Tenant shall not be received by Landlord or Landlord’s designee by five (5) business days after the due date therefor, then Tenant shall pay to Landlord a late charge equal to five percent (5%) of the amount due; provided, however, that Landlord will waive the imposition of the late charge for the first late payment of rent in any one (1) calendar year. The late charge shall be deemed Additional Rent and the right to require it shall be in addition to all of Landlord’s other rights and remedies hereunder, at law and/or in equity and shall not be construed as liquidated damages or as limiting Landlord’s remedies in any manner. In addition to the late charge described above, any Rent or other amounts owing hereunder which are not paid on or before five (5) business days after the date that they are due shall thereafter bear interest until paid at a rate (the “Interest Rate”) equal to the lesser of (i) the “Prime Rate” or “Reference Rate” announced from time to time by the Bank of America (or such reasonable comparable national banking institution as selected by Landlord in the event Bank of America ceases to exist or publish a Prime Rate or Reference Rate), plus four percent (4%), or (ii) the highest rate permitted by applicable law.

4.6 Audit Rights. Tenant shall have the right, at Tenant’s cost, after reasonable notice to Landlord, to have Tenant’s authorized employees or agents inspect, at Landlord’s main corporate office during normal business hours, Landlord’s books, records and supporting documents concerning the Operating Expenses, Tax Expenses and Utilities Costs set forth in any Statement delivered by Landlord to Tenant for a particular Expense Year pursuant to Section 4.3.2 above and the twenty-four (24) months preceding any such Statement; provided, however, Tenant shall have no right to conduct such inspection or object to or otherwise dispute the amount of the Operating Expenses, Tax Expenses and Utilities Costs set forth in any such Statement, unless Tenant notifies Landlord of such inspection objection and dispute, completes such inspection within twelve (12) months immediately following Landlord’s delivery of a Statement (the “Review Period”); provided, further, that notwithstanding any such timely inspection, objection, dispute, and/or audit, and as a condition precedent to Tenant’s exercise of its right of inspection, objection, dispute, and/or audit as set forth in this Section 4.6, Tenant shall not be permitted to withhold payment of, and Tenant shall timely pay to Landlord, the full amounts as required by the provisions of this Article 4 in accordance with such Statement. However, such payment may be made under protest pending the outcome of any audit. In connection with any such inspection by Tenant, Landlord and Tenant shall reasonably cooperate with each other so that such inspection can be performed pursuant to a mutually acceptable schedule, in an expeditious manner and without undue interference with Landlord’s operation and management of the Project. If after such

 

 

 

- 12 -

GENESIS SSF - TWO TOWER PLACE

Arsenal Biosciences, Inc.

[Execution Original]

 


 

inspection and/or request for documentation, Tenant disputes the amount of the Operating Expenses, Tax Expenses and Utilities Costs set forth in the Statement, Tenant shall have the right, but not the obligation, within the Review Period, to cause an independent certified public accountant which is not paid on a contingency basis and which is mutually approved by Landlord and Tenant (the “Accountant”) to complete an audit of Landlord’s books and records to determine the proper amount of the Operating Expenses, Tax Expenses and Utilities Costs incurred and amounts payable by Tenant for the Expense Year which is the subject of such Statement. Such audit by the Accountant shall be final and binding upon Landlord and Tenant. If Landlord and Tenant cannot mutually agree as to the identity of the Accountant within thirty (30) days after Tenant notifies Landlord that Tenant desires an audit to be performed, then the Accountant shall be one of the “Big 4” accounting firms selected by Landlord, which is not paid on a contingency basis and is not, and has not been, otherwise employed or retained by Landlord. If such audit reveals that Landlord has over-charged Tenant, then within thirty (30) days after the results of such audit are made available to Landlord, Landlord shall reimburse to Tenant the amount of such over-charge. If the audit reveals that the Tenant was under-charged, then within thirty (30) days after the results of such audit are made available to Tenant, Tenant shall reimburse to Landlord the amount of such undercharge. Tenant agrees to pay the cost of such audit unless it is subsequently determined that Landlord’s original Statement which was the subject of such audit was in error to Tenant’s disadvantage by five percent (5%) or more of the total Operating Expenses, Tax Expenses and Utilities Costs which was the subject of the audit (in which case Landlord shall pay the cost of such audit). The payment by Tenant of any amounts pursuant to this Article 4 shall not preclude Tenant from questioning the correctness of any Statement provided by Landlord at any time during the Review Period, but the failure of Tenant to object thereto, conduct and complete its inspection and have the Accountant conduct and complete the audit as described above prior to the expiration of the Review Period shall be conclusively deemed Tenant’s approval of the Statement in question and the amount of Operating Expenses, Tax Expenses and Utilities Costs shown thereon, subject to Tenant’s right to review Statements for the prior twelve (12) months. In connection with any inspection and/or audit conducted by Tenant pursuant to this Section 4.6, Tenant agrees to keep, and to cause all of Tenant’s employees and consultants and the Accountant to keep, all of Landlord’s books and records and the audit, and all information pertaining thereto and the results thereof, strictly confidential, and in connection therewith, Tenant shall cause such employees, consultants and the Accountant to execute such reasonable confidentiality agreements as Landlord may require prior to conducting any such inspections and/or audits.

ARTICLE 5

USE OF PREMISES; HAZARDOUS MATERIALS; ODORS AND EXHAUST

5.1 Use. Tenant shall use the Premises solely for purposes consistent with the character of the Project as a first-class biotechnology project, including, without limitation, office and lab uses, and Tenant shall not use or permit the Premises to be used for any other purpose or purposes whatsoever. Tenant shall not use, or suffer or permit any person or persons to use, the Premises or any part thereof for any use or purpose contrary to the provisions of Exhibit D, attached hereto, or in violation of the laws of the United States of America, the state in which the Project is located, or the ordinances, regulations or requirements of the local municipal or county governing body or other lawful authorities having jurisdiction over the Project. Tenant shall comply with the Rules and Regulations and all recorded covenants, conditions, and restrictions, and the provisions of all ground or underlying leases, now or hereafter affecting the Project, including but not limited to, (i) that certain Declaration of Reciprocal Easements, Covenants and Restrictions of Centennial Towers, dated as of May 5, 2008, and recorded in the Official Records of San Mateo County, California (“Official Records”) on September 18, 2008 as Instrument No. 2008-105136, as amended by that certain First Amendment to Declaration of Reciprocal Easements, Covenants and Restrictions of Centennial Towers dated November 17, 2015 and recorded in the Official Records on November 18, 2015 as Instrument No. 2008-121410, and as further amended by that certain Second Amendment to Declaration of Reciprocal Easements, Covenants and Restrictions of Centennial Towers dated November 17, 2015 and recorded in the Official Records on November 18, 2015 as Instrument No. 2008-121417, and (ii) that certain Declaration of Covenants, Conditions and Restrictions of Centennial Towers, dated March 27, 2009 and recorded in the Official Records on April 3, 2009, as Instrument No. 2009-038658, as amended by that certain First Amendment to Declaration of Covenants, Conditions and Restrictions of Centennial Towers, dated as of April 20, 2010, and recorded in the Official Records on May 12, 2010, as Instrument No. 2010-051876, and as further amended by that certain Second Amendment to Declaration of Covenants, Conditions and Restrictions of Centennial Towers, dated as of November 17, 2015, and recorded in the Official Records on November 18, 2015 as Instrument No. 2015-121409 (collectively, the “CC&Rs”), as the same may be amended, amended and restated, supplemented or otherwise modified from time to time; provided that any such amendments, restatements, supplements or modifications do not materially modify Tenant’s rights or obligations hereunder.

 

 

 

- 13 -

GENESIS SSF - TWO TOWER PLACE

Arsenal Biosciences, Inc.

[Execution Original]

 


 

5.2 Hazardous Materials.

5.2.1 Definitions: As used in this Lease, the following terms have the following meanings:

(a) “Environmental Law” means any past, present or future federal, state or local statutory or common law, or any regulation, ordinance, code, plan, order, permit, grant, franchise, concession, restriction or agreement issued, entered, promulgated or approved thereunder, relating to (a) the environment, human health or safety, including, without limitation, emissions, discharges, releases or threatened releases of Hazardous Materials (as defined below) into the environment (including, without limitation, air, surface water, groundwater or land), or (b) the manufacture, generation, refining, processing, distribution, use, sale, treatment, receipt, storage, disposal, transport, arranging for transport, or handling of Hazardous Materials.

(b) “Environmental Permits” mean collectively, any and all permits, consents, licenses, approvals and registrations of any nature at any time required pursuant to, or in order to comply with, any Environmental Law or otherwise reasonably desired by Landlord including, but not limited to, any Spill Control Countermeasure Plan and any Hazardous Materials Management Plan.

(c) “Hazardous Materials” shall mean and include any hazardous or toxic materials, substances or wastes as now or hereafter (during the Lease Term) designated or regulated under any Environmental Law, including, without limitation, asbestos, petroleum, petroleum hydrocarbons and petroleum based products, urea formaldehyde foam insulation, polychlorinated biphenyls (“PCBs”), freon and other chlorofluorocarbons, “biohazardous waste,” “medical waste,” “infectious agent”, “mixed waste” or other waste under California Health and Safety Code §§ 117600 et, seq.

(d) Release” shall mean with respect to any Hazardous Materials, any release, deposit, discharge, emission, leaking, pumping, leaching, spilling, seeping, migrating, injecting, pumping, pouring, emptying, escaping, dumping, disposing or other movement of Hazardous Materials.

5.2.2 Tenant’s Obligations — Environmental Permits. Tenant will (i) obtain and maintain in full force and effect all Environmental Permits that may be required from time to time under any Environmental Laws applicable to Tenant’s operations or Tenant’s use of the Premises and (ii) be and remain in compliance with all terms and conditions of all such Environmental Permits and with all other limitations, restrictions, conditions, standards, prohibitions, requirements, obligations, schedules and timetables contained in all Environmental Laws applicable to Tenant’s operations or Tenant’s use of the Premises.

5.2.3 Tenant’s Obligations — Hazardous Materials. Except as expressly permitted herein, Tenant agrees not to cause or permit any Hazardous Materials to be brought upon, stored, used, handled, generated, released or disposed of on, in, under or about the Premises, or any other portion of the Property by Tenant, its agents, employees, subtenants, assignees, licensees, contractors or invitees (collectively, “Tenant’s Parties”), in violation of any Environmental Law without the prior written consent of Landlord, which consent Landlord may withhold in its sole and absolute discretion. Landlord acknowledges that it is not the intent of this Section 5.2 to prohibit or materially impair Tenant from operating its business for the uses permitted hereunder. Tenant may operate its business according to the custom of Tenant’s industry so long as the use or presence of Hazardous Materials is strictly and properly monitored in accordance with applicable Environmental Laws. As a material inducement to Landlord to allow Tenant to use Hazardous Materials in connection with its business, Tenant agrees to deliver to Landlord prior to the Lease Commencement Date a list identifying each type of Hazardous Material to be present at the Premises and setting forth any and all governmental approvals or permits required in connection with the presence of such Hazardous Material at the Premises (the “Hazardous Materials List”). Tenant shall deliver to Landlord an updated Hazardous Materials List on or prior to each annual anniversary of the Lease Commencement Date and shall also deliver an updated Hazardous Materials List before any new Hazardous Materials are brought to the Premises. Tenant shall deliver to Landlord (prior to the Lease Commencement Date or, if unavailable at the time, concurrently with the receipt from or submission to any Governmental Authority) true and correct copies of the following documents (hereinafter referred to as the “Documents”) relating to the handling, storage, disposal and emission of Hazardous Materials by Tenant at the Premises: permits; approvals; reports and correspondence; storage and management plans; notices of violations of applicable Environmental Laws; plans relating to the installation of any storage tanks to be installed in, on, under or about the Premises (provided that installation of storage tanks shall only be permitted after Landlord has given Tenant its written consent to do so, which consent Landlord may

 

 

 

- 14 -

GENESIS SSF - TWO TOWER PLACE

Arsenal Biosciences, Inc.

[Execution Original]

 


 

withhold in its sole and absolute discretion); and all closure plans or any other documents required by any and all governmental authorities for any storage tanks installed in, on, under or about the Premises for the closure of any such storage tanks. For each type of Hazardous Material listed, the Documents shall include (t) the chemical name, (u) the material state (e.g., solid, liquid, gas or cryogen), (v) the concentration, (w) the storage amount and storage condition (e.g., in cabinets or not in cabinets), (x) the use amount and use condition (e.g., open use or closed use), (y) the location (e.g., room number or other identification) and (z) if known, the chemical abstract service number. Tenant shall not be required, however, to provide Landlord with any portion of the Documents containing information of a proprietary nature, which Documents, in and of themselves, do not contain a reference to any Hazardous Materials or activities related to Hazardous Materials. Upon the expiration or earlier termination of this Lease, Tenant agrees to promptly remove from the Premises, the Building and the Project, at its sole cost and expense, any and all Hazardous Materials brought onto the Premises by Tenant, including any equipment or systems containing Hazardous Materials which are installed, brought upon, stored, used, generated or released upon, in, under or about the Premises, the Building and/or the Project or any portion thereof by Tenant or any of Tenant’s Parties during the Term of this Lease.

5.2.4 Landlord’s Right to Conduct Environmental Assessment. At any time during the Lease Term, Landlord shall have the right, at Landlord’s sole cost and expense, to conduct an environmental assessment of the Premises (as well as any other areas in, on or about the Project that Landlord reasonably believes may have been affected adversely by Tenant’s use of the Premises (collectively, the “Affected Areas”) in order to confirm that the Premises and the Affected Areas do not contain any Hazardous Materials in violation of applicable Environmental Laws or under conditions constituting or likely to constitute a Release of Hazardous Materials. Such environmental assessment shall be a so-called “Phase I” assessment or such other level of investigation which shall be the standard of diligence in the purchase or lease of similar property at the time, together with, at Landlord’s sole cost and expense, any additional investigation and report which would customarily follow any discovery contained in such initial Phase I assessment (including, but not limited to, any so-called “Phase II” report). Such right to conduct such environmental assessment shall not be exercised more than once per calendar year unless Tenant is in default under this Section 5.2. Landlord shall use its commercially reasonable efforts to minimize any disruption to Tenant’s business or use of the Premises from any such assessment. Notwithstanding anything above to the contrary, in the event that any such environmental assessment performed by Landlord reveals that Tenant is in breach of this Lease pertaining to Hazardous Materials, then the cost of any such environmental assessment shall be at Tenant’s sole cost and expense.

5.2.5 Tenant’s Obligations to Perform Corrective Action. If the data from any environmental assessment authorized and undertaken by Landlord pursuant to Section 5.2.4 supports a conclusion that Tenant has released Hazardous Materials on, under or emanating from the Premises and the Affected Areas that may require any investigation and/or active response action, including without limitation active or passive remediation and monitoring or any combination of these activities (“Corrective Action”), Tenant shall undertake Corrective Action with respect to contamination caused by Tenant if, and to the extent, required by the governmental authority exercising jurisdiction over the matter. Any Corrective Action performed by Tenant will be performed with Landlord’s prior written approval, not to be unreasonably withheld, and in accordance with applicable Environmental Laws, at Tenant’s sole cost and expense and by an environmental consulting firm (reasonably acceptable to Landlord). Tenant may perform the Corrective Action before or after the expiration or earlier termination of this Lease, to the extent permitted by governmental agencies with jurisdiction over the Premises, the Building and the Project (provided, however, that any Corrective Action performed after the expiration or earlier termination of this Lease shall be subject to the access fee provisions set forth below). Tenant or its consultant may install, inspect, maintain, replace and operate remediation equipment and conduct the Corrective Action as it considers necessary, subject to Landlord’s approval. Tenant and Landlord shall, in good faith, cooperate with each other with respect to any Corrective Action after the expiration or earlier termination of this Lease so as not to interfere unreasonably with the conduct of Landlord’s or any third party’s business on the Premises, the Building and the Project. It shall be reasonable for Landlord to require Tenant to deliver a “no further action” letter or substantially similar document from the applicable governmental agency and Landlord shall provide reasonable access until such time as such approval is obtained. Landlord’s “reasonableness” as used in the immediately preceding sentence shall be based on (i) the zoning of the Premises as of the date in question, and (ii) the logical uses of the Premises as of the date in question. If Landlord desires to situate a tenant in the Premises, the Building and the Project and remediation of the Premises and the Affected Areas is ongoing, Landlord shall be deemed to be unable to use the Premises, the Building and the Project in the way Landlord reasonably desires and Tenant shall be obligated to pay an access fee equal to the Monthly Rent which shall be prorated daily until such time as Landlord is able to situate said tenant in the Premises, the Building and/or the Project. Tenant agrees to install, at Tenant’s sole cost and expense, screening around its remediation equipment so as to protect the aesthetic appeal of the Premises, the Building and the Project. Tenant also agrees to use reasonable efforts to locate its

 

 

 

- 15 -

GENESIS SSF - TWO TOWER PLACE

Arsenal Biosciences, Inc.

[Execution Original]

 


 

remediation and/or monitoring equipment, if any (subject to the requirements of Tenant’s consultant and governmental agencies with jurisdiction over the Premises, the Building and the Project) in a location which will allow Landlord, to the extent reasonably practicable, the ability to lease the Premises, the Building and the Project to a subsequent user. Any Hazardous Materials contamination on, in, under or about the Premises and the Affected Areas existing prior to commencement of this Lease are solely Landlord’s responsibility and Tenant shall have no obligations whatsoever for any investigation or remediation associated with Hazardous Materials existing on the Premises prior to the Lease Commencement Date. Landlord will indemnify Tenant for any and all costs and expenses associated with Hazardous Materials existing on the Premises prior to the Lease Commencement Date; provided, however, that Landlord’s indemnity obligation shall not extend to loss of business, loss of profits or other consequential damages which may be suffered by Tenant.

5.2.6 Tenant’s Duty to Notify Landlord Regarding Releases. Tenant agrees to promptly notify Landlord of any Release of Hazardous Materials in the Premises, the Building or any other portion of the Project which Tenant becomes aware of during the Term of this Lease, whether caused by Tenant or any other persons or entities. In the event of any release of Hazardous Materials in violation of Environmental Laws caused or permitted by Tenant or any of Tenant’s Parties, Landlord shall have the right, but not the obligation, to cause Tenant, at Tenant’s sole cost and expense, to immediately take all legally required steps necessary to remediate such Release and prevent any similar future release. Tenant will, upon the reasonable and good faith request of Landlord at any time during which Landlord has a reasonable basis to conclude that Tenant is not in compliance with this Section 5.2 (and in any event no earlier than sixty (60) days and no later than thirty (30) days prior to the expiration of this Lease), cause to be performed a Phase I environmental assessment of the Premises at Tenant’s expense by an established environmental consulting firm reasonably acceptable to Landlord. In the event the assessment concludes that Tenant has caused conditions that require Corrective Action, then Tenant shall immediately perform the same at its sole cost and expense.

5.2.7 Tenant’s Environmental Indemnity. To the fullest extent permitted by law, Tenant agrees to promptly indemnify, protect, defend and hold harmless Landlord and Landlord’s members, partners, subpartners, independent contractors, officers, directors, shareholders, employees, agents, successors and assigns (collectively, “Landlord Parties”) from and against any and all claims, damages, judgments, suits, causes of action, losses, liabilities, penalties, fines, expenses and costs (including, without limitation, clean-up, removal, remediation and restoration costs, sums paid in settlement of claims, attorneys’ fees, consultant fees and expert fees and court costs) which arise or result from the presence of Hazardous Materials on, in, under or about the Premises, the Building or any other portion of the Project caused by Tenant or any of Tenant’s Parties during the Term of this Lease; provided, however, that Tenant’s indemnity obligations shall not extend to loss of business, loss of profits or other consequential damages which may be suffered by Landlord. Tenant’s obligations hereunder shall include, without limitation, and whether foreseeable or unforeseeable, all costs of any required or necessary repair, cleanup or detoxification or decontamination of the Premises, the Building and/or the Project, or the preparation and implementation of any closure, remedial action or other required plans in connection therewith. The provisions of this Section 5.2.7 will survive the expiration or earlier termination of this Lease.

5.2.8 Landlord’s Environmental Indemnity. To the fullest extent permitted by law, Landlord agrees to promptly indemnify, protect, defend and hold harmless Tenant and Tenant’s members, partners, subpartners, independent contractors, officers, directors, shareholders, employees, agents, successors and assigns (collectively, “Tenant Parties”) from and against any and all claims, damages, judgments, suits, causes of action, losses, liabilities, penalties, fines, expenses and costs (including, without limitation, clean-up, removal, remediation and restoration costs, sums paid in settlement of claims, attorneys’ fees, consultant fees and expert fees and court costs) which arise or result from the presence of Hazardous Materials on, in, under or about the Premises, the Building or any other portion of the Project not caused by Tenant; provided, however, that Landlord’s indemnity obligations shall not extend to loss of business, loss of profits or other consequential damages which may be suffered by Tenant.

5.2.9 Landlord’s Remediation. If Hazardous Materials are present at the Premises that are required by Environmental Law to be remediated and Tenant is not responsible therefor pursuant to Section 5.2, Landlord shall remediate such Hazardous Materials.

5.2.10 Storage Areas. Tenant shall be allowed to utilize the storage areas depicted on the attached Exhibit G for hazardous materials storage and the storage areas depicted on the attached Exhibit H for general storage. Tenant shall take such Storage Areas in their “as-is” condition and Landlord shall not be obligated to make any

 

 

 

- 16 -

GENESIS SSF - TWO TOWER PLACE

Arsenal Biosciences, Inc.

[Execution Original]

 


 

improvements or repairs to the same; such improvement/repair shall be Tenant’s responsibility at Tenant’s sole cost and expense. The Storage Areas shall be considered part of the Premises under this Lease except that no Rent shall be payable by Tenant for such Storage Areas.

5.3 Odors and Exhaust. Tenant acknowledges that Landlord would not enter into this Lease with Tenant unless Tenant assured Landlord that under no circumstances will the Premises be damaged by any exhaust from Tenant’s operations. Landlord and Tenant therefore agree as follows:

5.3.1 Tenant shall not cause or permit (or conduct any activities that would cause) any release of any odors or fumes of any kind from the Premises.

5.3.2 If the Building has a ventilation system that, in Landlord’s judgment, is adequate, suitable, and appropriate to vent the Premises in a manner that does not release odors affecting any indoor or outdoor part of the Premises, Tenant shall vent the Premises through such system. If Landlord at any time determines that any existing ventilation system is inadequate, or if no ventilation system exists, Tenant shall in compliance with applicable laws vent all fumes and odors from the Premises (and remove odors from Tenant’s exhaust stream) as Landlord reasonably requires consistent with practices at comparable buildings in the vicinity of the Project. The placement and configuration of all ventilation exhaust pipes, louvers and other equipment shall be subject to Landlord’s approval, not to be unreasonably withheld. Tenant acknowledges Landlord’s legitimate desire to maintain the Premises (indoor and outdoor areas) in an odor-free manner, and Landlord may require Tenant to abate and remove all odors in a manner that goes beyond the requirements of applicable laws.

5.3.3 Tenant shall, at Tenant’s sole cost and expense, provide odor eliminators and other devices (such as filters, air cleaners, scrubbers and whatever other equipment may in Landlord’s reasonable judgment be necessary or appropriate from time to time) to completely remove, eliminate and abate any odors, fumes or other substances in Tenant’s exhaust stream that, in Landlord’s judgment, emanate from the Premises. Any work Tenant performs under this Section 5.3 shall constitute Alterations.

5.3.4 Tenant’s responsibility to remove, eliminate and abate odors, fumes and exhaust shall continue throughout the Term.

5.3.5 If Tenant fails to install satisfactory odor control equipment within ten (10) business days after Landlord’s demand made at any time, then Landlord may, without limiting Landlord’s other rights and remedies, require Tenant to cease and suspend any operations in the Premises that, in Landlord’s determination, cause odors, fumes or exhaust.

ARTICLE 6

SERVICES AND UTILITIES

6.1 Standard Tenant Services. Landlord shall provide the following services on all days during the Lease Term, unless otherwise stated below.

6.1.1 Subject to all governmental rules and regulations applicable thereto, Landlord shall provide heating and air conditioning (“HVAC”) capacity to the office portions of the Premises for normal office and lab use on a 24/7 basis.

6.1.2 Landlord shall provide adequate electrical wiring and facilities for power for the Premises. Landlord shall designate the electricity utility provider from time to time.

6.1.3 Landlord shall provide nonexclusive automatic passenger elevator service at all times.

6.1.4 Landlord shall provide water in the Common Areas and Premises for lavatory, drinking, laboratory and landscaping purposes. Such cost shall be paid by Tenant as Additional Rent.

6.2 Overstandard Tenant Use. Tenant shall not overload the Systems and Equipment serving the Building nor use more than Tenant’s Share of available electric power, standby power or HVAC capacity serving the Building.

 

 

 

- 17 -

GENESIS SSF - TWO TOWER PLACE

Arsenal Biosciences, Inc.

[Execution Original]

 


 

6.3 Utilities. Tenant shall pay for all water (including the cost to service, repair and replace reverse osmosis, de-ionized and other treated water), gas, heat, light, power, telephone, internet service, cable television, other telecommunications and other utilities supplied to the Premises, together with any fees, surcharges and taxes thereon. If any such utility is not separately metered or submetered to Tenant, Tenant shall pay Tenant’s Share of all charges of such utility jointly metered with other premises as Additional Rent or, in the alternative, Landlord may, at its option, monitor the usage of such utilities by Tenant and charge Tenant with the cost of purchasing, installing and monitoring such metering equipment, which cost shall be paid by Tenant as Additional Rent. To the extent that Tenant uses more than Tenant’s Share of any utilities, then Tenant shall pay Landlord Tenant’s Share of Operating Expenses to reflect such excess.

6.4 Interruption of Use. Tenant agrees that Landlord shall not be liable for damages, by abatement of Rent or otherwise, for failure to furnish or delay in furnishing any service (including, but not limited to, any central plant or other lab system, telephone and telecommunication services), or for any diminution in the quality or quantity thereof, when such failure or delay or diminution is occasioned, in whole or in part, by repairs, replacements, or improvements, by any strike, lockout or other labor trouble, by inability to secure electricity, gas, water, or other fuel at the Building or Project after reasonable effort to do so, by any accident or casualty whatsoever, by act or default of Tenant or other parties, or by any other cause beyond Landlord’s reasonable control; and such failures or delays or diminution shall never be deemed to constitute an eviction or disturbance of Tenant’s use and possession of the Premises or relieve Tenant from paying Rent or performing any of its obligations under this Lease. Furthermore, Landlord shall not be liable under any circumstances for a loss of, or injury to, property (including scientific research and any intellectual property) or for injury to, or interference with, Tenant’s business, including, without limitation, loss of profits, however occurring, through or in connection with or incidental to a failure to furnish any of the services or utilities as set forth in this Article 6.

6.5 Additional Services. Landlord shall also have the exclusive right, but not the obligation, to provide any additional services which may be required by Tenant (which services are integral to the Building, as opposed to Tenant’s operation of its business or uses within the Premises, such as locksmithing, and additional repairs and maintenance), provided that Tenant shall pay to Landlord within ten (10) days after billing and as Additional Rent hereunder, the sum of all costs to Landlord of such additional services.

6.6 Janitorial Service. Landlord shall not be obligated to provide any janitorial services to the Premises or replace any light bulbs, lamps, starters and ballasts for lighting fixtures within the Premises. Tenant shall be solely responsible, at Tenant’s sole cost and expense, for (i) performing all janitorial services, trash removal and other cleaning of the Premises, and (ii) replacement of all light bulbs, lamps, starters and ballasts for lighting fixtures within the Premises, all as appropriate to maintain the Premises in a first-class manner consistent with the first-class nature of the Building and Project. Such services to be provided by Tenant shall be performed by contractors and pursuant to service contracts reasonably approved by Landlord. Tenant shall deposit trash as reasonably required in the area designated by Landlord from time to time. All trash containers must be covered and stored in a manner to prevent the emanation of odors into the Premises or the Project. Landlord shall have the right to inspect the Premises upon reasonable notice to Tenant and to require Tenant to provide additional cleaning, if necessary. In the event Tenant shall fail to provide any of the services described in this Section 6.6 to be performed by Tenant within five (5) days after notice from Landlord, which notice shall not be required in the event of an emergency, Landlord shall have the right to provide such services and any charge or cost incurred by Landlord in connection therewith shall be deemed Additional Rent due and payable by Tenant upon receipt by Tenant of a written statement of cost from Landlord.

6.7 Abatement of Rent When Tenant Is Prevented From Using Premises. Notwithstanding anything to the contrary in this Lease, if Tenant is prevented from using, and does not use, the Premises or any portion thereof, for five (5) consecutive business days (the “Eligibility Period”) as a result of (i) any repair, maintenance or alteration performed or failed to be performed by Landlord after the Lease Commencement Date, including any Construction (as defined in Section 24.30 below), or (ii) any failure to provide to the Premises any of the essential utilities and services required to be provided in Sections 16.1(a) or 16.1(b) above, or (iii) any failure to provide access to the Premises including Tenant’s access to the Parking Facility, then Tenant’s obligation to pay Rent shall be abated or reduced, as the case may be, from and after the first (1st) day of the Eligibility Period and continuing until such time that Tenant continues to be so prevented from using, and does not use, the Premises or a portion thereof, in the proportion that the rentable square feet of the portion of the Premises that Tenant is prevented from using, and does not use, bears to the total rentable square feet of the Premises. To the extent Tenant shall be entitled to abatement of rent because of a damage or destruction pursuant to Article 11 or a taking pursuant to Article 12, then the Eligibility Period shall not be applicable.

 

 

 

- 18 -

GENESIS SSF - TWO TOWER PLACE

Arsenal Biosciences, Inc.

[Execution Original]

 


 

6.8 Landlord’s Emergency Generator. Tenant shall have the right to draw power from the emergency generator serving the Project (“Generator”) at times when the emergency generator is in emergency operation; provided, however, that Tenant may only draw Tenant’s Share of available power for Tenant’s critical power requirements (i.e., certain portions of Tenant’s labs in the Premises).

ARTICLE 7

REPAIRS

7.1 Tenant’s Repairs. Subject to Landlord’s repair obligations in Sections 7.2 and 11.1 below, Tenant shall, at Tenant’s own expense, keep the Premises, including all improvements, fixtures and furnishings therein, in good order, repair and condition at all times during the Lease Term, which repair obligations shall include, without limitation, the obligation to promptly and adequately repair all damage to the Premises and replace or repair all damaged or broken fixtures and appurtenances, together with all portions (to the extent accessible to Tenant) of the HVAC, electrical, mechanical plumbing, life safety and lab systems from the point that such systems solely serves the Premises and all portions of all fume hoods and other exhaust systems (all such systems collectively being referred to as the “Premises Systems”), in a first-class condition. Tenant’s obligations shall include restorations, replacements or renewals, including capital expenditures for restorations, replacements or renewals which will have an expected life beyond the Term, when necessary to keep the Premises and all improvements thereon or a part thereof and the Premises Systems in first-class order, condition and repair and in compliance with all applicable laws. Except as expressly set forth in this Lease, it is intended by the parties hereto that Landlord shall have no obligation, in any manner whatsoever, to repair or maintain the Premises, the improvements located therein or the equipment therein, or the Premises Systems whether structural or nonstructural, all of which obligations are intended to be the expense of Tenant (whether or not such repairs, maintenance or restoration shall have an expected life extending beyond the Term). Tenant’s maintenance of the Premises Systems shall comply with the manufacturers’ recommended operating and maintenance procedures. Tenant shall enter into and pay for maintenance contracts (in forms reasonably satisfactory to Landlord, which may require, without limitation, that any third party contractor provide Landlord with evidence of insurance as reasonably required by Landlord) for the Premises Systems in accordance with the manufacturers’ recommended operating and maintenance procedures. Such maintenance contracts shall be with reputable contractors, reasonably satisfactory to Landlord, who shall have commercially reasonable experience in maintaining such systems in biotechnical facilities. Upon Landlord’s request, Tenant shall provide maintenance reports from any such contractors. Tenant shall be solely responsible for the cost of all improvements or alterations to the Premises or the Premises Systems required by law. Notwithstanding the foregoing, at Landlord’s option, or if Tenant fails to make such repairs, Landlord may, but need not, make such repairs and replacements, and Tenant shall pay Landlord the cost thereof, including a percentage of the cost thereof (to be uniformly established for the Building) sufficient to reimburse Landlord for all overhead, general conditions, fees and other costs or expenses arising from Landlord’s involvement with such repairs and replacements forthwith upon being billed for same. In addition, in the event Tenant has not provided Landlord with evidence that Tenant has entered into such service contracts, Landlord reserves the right, upon notice to Tenant, to procure and maintain any or all of such service contracts, and if Landlord so elects, Tenant shall reimburse Landlord, upon demand, for the costs thereof. Tenant shall, no later than January 31st of each calendar year during the Term, provide to Landlord a copy of the budget for maintenance, repairs and replacements at the Premises for the preceding calendar year, as well as a detailed summary of the amounts actually expended by Tenant during such period for maintenance, repairs and replacements at the Premises.

7.2 Landlord’s Repairs. Anything contained in Section 7.1 above to the contrary notwithstanding, and subject to Articles 11 and 12 below, Landlord shall repair and maintain the structural portions of the Building, including the mechanical, plumbing, elevator, HVAC and electrical systems serving the Building and not located in and exclusively serving the Premises; provided, however, to the extent such maintenance and repairs are caused by the act, neglect, fault of or omission of any duty by Tenant, its agents, servants, employees or invitees, Tenant shall pay to Landlord as Additional Rent, the reasonable cost of such maintenance and repairs. Except as expressly set forth in this Lease, Landlord shall not be liable for any failure to make any such repairs, or to perform any maintenance. Except as expressly set forth in this Lease, there shall be no abatement of rent and no liability of Landlord by reason of any injury to or interference with Tenant’s business arising from the making of any repairs, alterations or improvements in or to any portion of the Project, Building or the Premises or in or to fixtures, appurtenances and equipment therein. Tenant hereby waives and releases its right to make repairs at Landlord’s expense under Sections 1941 and 1942 of the California Civil Code; or under any similar law, statute, or ordinance now or hereafter in effect.

 

 

 

- 19 -

GENESIS SSF - TWO TOWER PLACE

Arsenal Biosciences, Inc.

[Execution Original]

 


 

ARTICLE 8

ADDITIONS AND ALTERATIONS

8.1 Landlord’s Consent to Alterations. Tenant may not make any improvements, alterations, additions or changes to the Premises (collectively, the “Alterations”) without first procuring the prior written consent of Landlord to such Alterations, which consent shall be requested by Tenant not less than thirty (30) days prior to the commencement thereof, and which consent shall not be unreasonably withheld by Landlord; provided, however, Landlord may withhold its consent in its sole and absolute discretion with respect to any Alterations which may materially adversely affect the structural components of the Building or the Systems and Equipment or which can be seen from outside the Premises. Tenant shall pay for all overhead, general conditions, fees and other costs and expenses of the Alterations, and shall pay to Landlord a Landlord supervision fee of three and one half percent (3.5%) of the cost of the Alterations. The construction of the initial improvements to the Premises shall be governed by the terms of the Tenant Work Letter and not the terms of this Article 8 and shall not be deemed “Alterations”. Notwithstanding the foregoing to the contrary, Landlord’s prior consent shall not be required with respect to any interior Alterations to the office portion of the Premises which (i) are cosmetic in nature (including, but not limited to, repair and/or replacement of paint and carpeting in the Premises), (ii) cost less than Fifty Thousand Dollars ($50,000.00) for any one (1) job, and (iii) do not require a permit; such cosmetic alterations shall not be subject to Landlord’s supervision fee.

8.2 Manner of Construction. Landlord may impose, as a condition of its consent to all Alterations or repairs of the Premises reasonable requirements, including, but not limited to, the requirement that Tenant utilize for such purposes only contractors, materials, mechanics and materialmen reasonably approved by Landlord. Tenant shall construct such Alterations and perform such repairs in compliance with any and all applicable rules and regulations of any federal, state, county or municipal code or ordinance and pursuant to a valid building permit, issued by the city in which the Building is located, and in conformance with Landlord’s reasonable construction rules and regulations. Landlord’s approval of the plans, specifications and working drawings for Tenant’s Alterations shall create no responsibility or liability on the part of Landlord for their completeness, design sufficiency, or compliance with all laws, rules and regulations of governmental agencies or authorities. All work with respect to any Alterations must be done in a good and workmanlike manner and diligently prosecuted to completion to the end that the Premises shall at all times be a complete unit except during the period of work. Tenant shall cause all Alterations to be performed in such manner as not to obstruct access by any person to the Building or Project or the common areas, and as not to obstruct the business of Landlord or other tenants of the Project, or interfere with the labor force working at the Project. If Tenant makes any Alterations, Tenant agrees to carry “Builder’s All Risk” insurance in an amount reasonably approved by Landlord covering the construction of such Alterations, and such other insurance as Landlord may reasonably require, it being understood and agreed that all of such Alterations shall be insured by Tenant pursuant to Article 10 below immediately upon completion thereof. If Landlord has reasonable cause therefor, then Landlord may require Tenant to obtain a lien and completion bond or some alternate form of security reasonably satisfactory to Landlord in an amount sufficient to ensure the lien-free completion of such Alterations and naming Landlord as a co-obligee. Upon completion of any Alterations, Tenant shall (i) cause a Notice of Completion to be recorded in the office of the Recorder of the county in which the Project is located in accordance with Section 3093 of the Civil Code of the State of California or any successor statute, (ii) deliver to the management office of the Building a reproducible copy of the “as built” drawings of the Alterations, and (iii) deliver to Landlord evidence of payment, contractors’ affidavits and full and final waivers of all liens for labor, services or materials.

8.3 Landlord’s Property. All Alterations, improvements, fixtures and/or equipment which may be installed or placed in or about the Premises (including, but not limited to, all floor and wall coverings, built-in cabinet work and paneling, sinks and related plumbing fixtures, laboratory benches, exterior venting fume hoods and walk-in freezers and refrigerators, ductwork, conduits, electrical panels and circuits), shall be at the sole cost of Tenant, and shall be and become the property of Landlord. Furthermore, Landlord may require that Tenant remove any Alterations, improvements, fixtures and/or equipment upon the expiration or early termination of the Lease Term, and repair any damage to the Premises and Building caused by such removal (provided that Landlord so designates at the time that Landlord consents to such Alteration (or at the time Tenant notifies Landlord of Alterations not requiring Landlord’s consent) but Landlord will only be required to so designate in the event Tenant requests, in Tenant’s request for such consent (or Tenant’s notice to Landlord with respect to Alterations not requiring Landlord’s consent), that Landlord make such determination). Notwithstanding anything above to the contrary, Tenant shall have the right to remove any fixtures or equipment (but not Alterations except for Alterations which are in the nature of equipment fixtures) from the Premises which have been paid solely by Tenant’s funds (and repair any damage to the Premises caused by such removal). If Tenant fails to complete such

 

 

 

- 20 -

GENESIS SSF - TWO TOWER PLACE

Arsenal Biosciences, Inc.

[Execution Original]

 


 

removal and/or to repair by the end of the Lease Term (plus a reasonable cure period not to exceed five (5) business days), Landlord may do so and may charge the cost thereof to Tenant. Notwithstanding any other provision of this Article 8 to the contrary, in no event shall Tenant remove any improvement from the Premises as to which Landlord contributed payment, including the Tenant Improvements, without Landlord’s prior written consent, which consent Landlord may withhold in its sole and absolute discretion.

8.4 Wi-Fi Network. Without limiting the generality of the foregoing, if Tenant desires to install wireless intranet, Internet and communications network (“Wi-Fi Network”) in the Premises for the use by Tenant and its employees, then the same shall be subject to the provisions of this Section 8.4 (in addition to the other provisions of this Article 8). In the event Landlord consents to Tenant’s installation of such Wi-Fi Network, Tenant shall, in accordance with Article 15 below, remove the Wi-Fi Network from the Premises prior to the termination of the Lease. Tenant shall use the Wi-Fi Network so as not to cause any interference to other tenants in the Building or to other tenants at the Project or with any other tenant’s communication equipment, and not to damage the Building or Project or interfere with the normal operation of the Building or Project, and Tenant hereby agrees to indemnify, defend and hold Landlord harmless from and against any and all claims, costs, damages, expenses and liabilities (including attorneys’ fees) arising out of Tenant’s failure to comply with the provisions of this Section 8.4, except to the extent same is caused by the gross negligence or willful misconduct of Landlord and which is not covered by the insurance carried by Tenant under this Lease (or which would not be covered by the insurance required to be carried by Tenant under this Lease). Should any interference occur, Tenant shall take all necessary steps as soon as reasonably possible and no later than three (3) calendar days following such occurrence to correct such interference. If such interference continues after such three (3) day period, Tenant shall immediately cease operating such Wi-Fi Network until such interference is corrected or remedied to Landlord’s satisfaction. Tenant acknowledges that Landlord has granted and/or may grant telecommunication rights to other tenants and occupants of the Building and Project and to telecommunication service providers and in no event shall Landlord be liable to Tenant for any interference of the same with such Wi-Fi Network; provided, however, that Landlord will use commercially reasonable efforts to assist Tenant in resolving such interference. Landlord makes no representation that the Wi-Fi Network will be able to receive or transmit communication signals without interference or disturbance. Tenant shall (i) be solely responsible for any damage caused as a result of the Wi-Fi Network, (ii) comply with all precautions and safeguards recommended by all governmental authorities, (iii) pay for all necessary repairs, replacements to or maintenance of the Wi-Fi Network, and (iv) be responsible for any modifications, additions or repairs to the Building or Project, including without limitation, Building or Project systems or infrastructure, which are required by reason of the installation, operation or removal of Tenant’s Wi-Fi Network. The mere appearance of Tenant’s Wi-Fi Network outside the Premises shall not be deemed interference or a violation of this Section.

ARTICLE 9

COVENANT AGAINST LIENS

Tenant has no authority or power to cause or permit any lien or encumbrance of any kind whatsoever, whether created by act of Tenant, operation of law or otherwise, to attach to or be placed upon the Project, Building or Premises, and any and all liens and encumbrances created by Tenant shall attach to Tenant’s interest only. Landlord shall have the right at all times to post and keep posted on the Premises any notice which it deems necessary for protection from such liens. Tenant shall not cause or permit any lien of mechanics or materialmen or others to be placed against the Project, the Building or the Premises with respect to work or services claimed to have been performed for or materials claimed to have been furnished to Tenant or the Premises, and, in case of any such lien attaching or notice of any lien, Tenant shall cause it to be immediately released and removed of record. If any such lien is not released and removed within five (5) business days after notice of such lien is delivered by Landlord to Tenant, then Landlord may, at its option, take all action necessary to release and remove such lien, without any duty to investigate the validity thereof, and all sums, costs and expenses, including reasonable attorneys’ fees and costs, incurred by Landlord in connection with such lien shall be deemed Additional Rent under this Lease and shall immediately be due and payable by Tenant. In the event that Tenant leases or finances the acquisition of equipment, furnishings or other personal property of a removable nature utilized by Tenant in the operation of Tenant’s business, Tenant warrants that any Uniform Commercial Code financing statement shall, upon its face or by exhibit thereto, indicate that such financing statement is applicable only to removable personal property of Tenant located within the Premises. In no event shall the address of the Premises be furnished on a financing statement without qualifying language as to applicability of the lien only to removable personal property located in an identified suite leased by Tenant. Should any holder of a financing statement record or place of record a financing statement that appears to constitute a lien against any interest of Landlord or against equipment that may be located other than within an identified

 

 

 

- 21 -

GENESIS SSF - TWO TOWER PLACE

Arsenal Biosciences, Inc.

[Execution Original]

 


 

suite leased by Tenant, Tenant shall, within ten (10) days after filing such financing statement, cause (a) a copy of the Lender security agreement or other documents to which the financing statement pertains to be furnished to Landlord to facilitate Landlord’s ability to demonstrate that the lien of such financing statement is not applicable to Landlord’s interest and (b) Tenant’s lender to amend such financing statement and any other documents of record to clarify that any liens imposed thereby are not applicable to any interest of Landlord in the Premises.

ARTICLE 10

INDEMNIFICATION AND INSURANCE

10.1 Indemnification and Waiver. Tenant hereby assumes all risk of damage to property and injury to persons, in, on, or about the Premises from any cause whatsoever and agrees that Landlord and the Landlord Parties shall not be liable for, and are hereby released from any responsibility for, any damage to property or injury to persons or resulting from the loss of use thereof, which damage or injury is sustained by Tenant or by other persons claiming through Tenant, except to the extent caused by the gross negligence or willful misconduct of Landlord or any Landlord Parties. Tenant shall indemnify, defend, protect, and hold harmless the Landlord Parties from any and all loss, cost, damage, expense and liability (including without limitation court costs and reasonable attorneys’ fees) (collectively, “Claims”) incurred in connection with or arising from any cause in, on or about the Premises (including, without limitation, Tenant’s installation, placement and removal of Alterations, improvements, fixtures and/or equipment in, on or about the Premises), due to the acts, omissions or negligence of Tenant or of any person claiming by, through or under Tenant, or of the contractors, agents, servants, employees, licensees or invitees of Tenant or any such person, in, on or about the Premises, the Building and Project, but only to the extent Tenant’s liability is not waived and released by Landlord pursuant to the terms of Section 10.4 of this Lease; provided, however, that Tenant’s indemnity shall, in no event, extend to loss of profits, loss of business or other consequential damages incurred by Landlord or any Landlord Parties. Notwithstanding anything in this Section 10.1 to the contrary, the foregoing assumption of risk, release and indemnity shall not apply to any Claims to the extent resulting from the gross negligence or willful misconduct of Landlord or any Landlord Parties (collectively, the “Excluded Claims”), and Landlord shall indemnify, protect, defend and hold harmless Tenant and Tenant’s officers, agents and employees (collectively, “Tenant Parties”) from and against any such Excluded Claims, but only to the extent Landlord’s liability is not waived and released by Tenant pursuant to the terms of Section 10.4 of this Lease (provided, however, that Landlord’s indemnity shall, in no event, extend to loss of profits, loss of business or other consequential damages incurred by Tenant or any Tenant Parties). Each party’s agreement to indemnify the other pursuant to this Section 10.1 is not intended and shall not relieve any insurance carrier of its obligations under policies required to be carried by the indemnifying party pursuant to the provisions of this Lease. The provisions of this Section 10.1 shall survive the expiration or sooner termination of this Lease. Notwithstanding anything in this Lease to the contrary but subject to Section 6.7 and Landlord’s indemnity obligations in this Lease, Landlord shall not be liable to Tenant for, and Tenant assumes all risk of, damage to personal property or scientific research or intellectual property, including loss of records kept by Tenant within the Premises and damage or losses caused by fire, electrical malfunction, gas explosion or water damage of any type (including broken water lines, malfunctioning fire sprinkler systems, malfunctioning lab systems including any malfunction of the central plant systems, roof leaks or stoppages of lines), except to the extent caused by the gross negligence or willful misconduct of Landlord or any Landlord Parties. Tenant further waives any claim for injury to Tenant’s business or loss of income relating to any such damage or destruction of personal property as described above.

10.2 Tenant’s Compliance with Landlord’s Fire and Casualty Insurance. Tenant shall, at Tenant’s expense, comply as to the Premises with all commercially reasonable insurance company requirements pertaining to the use of the Premises (provided they do not unreasonably interfere with Tenant’s use of the Premises as first-class biotechnology space). If Tenant’s conduct or use of the Premises (other than as first-class biotechnology space) causes any increase in the premium for such insurance policies, then Tenant shall reimburse Landlord for any such increase. Tenant, at Tenant’s expense, shall comply with all commercially reasonable rules, orders, regulations or requirements of the American Insurance Association (formerly the National Board of Fire Underwriters) and with any similar body.

 

 

 

- 22 -

GENESIS SSF - TWO TOWER PLACE

Arsenal Biosciences, Inc.

[Execution Original]

 


 

10.3 Tenant’s Insurance. Tenant shall maintain the following coverages in the following amounts.

10.3.1 Commercial General Liability Insurance covering the insured against claims of bodily injury, personal injury and property damage arising out of Tenant’s operations, assumed liabilities or use of the Premises, including a Broad Form Commercial General Liability endorsement covering the insuring provisions of this Lease and, to the extent consistent with insurance industry custom and practice, the performance by Tenant of the indemnity agreements set forth in Section 10.1 above (and liquor liability coverage if alcoholic beverages are served on the Premises) for limits of liability not less than:

 

Bodily Injury and

$5,000,000

 

each occurrence

Property Damage Liability

$5,000,000

 

annual aggregate

 

$5,000,000

 

each occurrence

Personal Injury Liability

$5,000,000

 

annual aggregate

 

10.3.2 Physical Damage Insurance covering (i) all furniture, trade fixtures, equipment, merchandise and all other items of Tenant’s property on the Premises installed by, for, or at the expense of Tenant, (ii) the Tenant Improvements, including any Tenant Improvements which Landlord permits to be installed above the ceiling of the Premises or below the floor of the Premises, and (iii) all other improvements, alterations and additions to the Premises, including any improvements, alterations or additions installed at Tenant’s request above the ceiling of the Premises or below the floor of the Premises. Such insurance shall be written on a “physical loss or damage” basis under a “special form” policy, for the full replacement cost value new without deduction for depreciation of the covered items and in amounts that meet any co-insurance clauses of the policies of insurance and shall include a vandalism and malicious mischief endorsement, sprinkler leakage coverage and earthquake sprinkler leakage coverage.

10.3.3 Workers’ compensation insurance as required by law.

10.3.4 Loss-of-income, business interruption and extra-expense insurance in such amounts as will reimburse Tenant for direct and indirect loss of earnings attributable to all perils commonly insured against by prudent tenants or attributable to prevention of loss of access to the Premises or to the Building as a result of such perils.

10.3.5 Intentionally omitted.

10.3.6 Environmental Liability insurance (in form and substance satisfactory to Landlord) with limits of coverage not less than Three Million Dollars ($3,000,000.00) combined per occurrence and in the aggregate insuring against any and all liability with respect to the Premises and all areas appurtenant thereto arising out of any death or injury to any person, damage or destruction of any property, other loss, cost or expense resulting from any release, spill, leak or other contamination of the Premises, or any other property surrounding the Premises attributable to the presence of Hazardous Materials. Upon Landlord’s request, Tenant shall also obtain (at Tenant’s sole cost and expense) environmental impairment liability insurance and environmental remediation liability insurance (in form and substance (including limits) acceptable to Landlord). If, at any time it reasonably appears to Landlord that Tenant is not maintaining sufficient insurance or other means of financial capacity to enable Tenant to fulfill its obligations to Landlord hereunder, whether or not then accrued, liquidated, conditional or contingent, Tenant shall procure and thereafter maintain in full force and effect such insurance or other form of financial assurance, with or from companies or persons and in form and substance reasonably acceptable to Landlord, as Landlord may from time to time reasonably request. Without limiting the generality of the foregoing, all such environmental liability insurance shall specifically insure the performance by Tenant of the indemnity provisions set forth in this Lease.

10.3.7 Form of Policies. The minimum limits of policies of insurance required of Tenant under this Lease shall in no event limit the liability of Tenant under this Lease. Such insurance shall: (i) name Landlord, and any other party it so specifies, as an additional insured; (ii) specifically cover the liability assumed by Tenant under this Lease, including, but not limited to, Tenant’s obligations under Section 10.1 above (to the extent generally available in such coverage); (iii) be issued by an insurance company having a rating of not less than A-/VII in Best’s Insurance Guide or which is otherwise acceptable to Landlord and licensed to do business in the state in which the Project is located; (iv) be primary insurance as to all claims thereunder and provide that any insurance carried by Landlord is excess and is non-contributing with any insurance requirement of Tenant; (v) to the extent reasonably available based on then insurance industry custom and practices, provide that said insurance shall not be canceled or coverage changed unless ten (10) days’ prior written notice shall have been given to Landlord and any mortgagee or ground or underlying lessor of Landlord

 

 

 

- 23 -

GENESIS SSF - TWO TOWER PLACE

Arsenal Biosciences, Inc.

[Execution Original]

 


 

(provided that such provision is commercially available); (vi) contain a cross-liability endorsement or severability of interest clause acceptable to Landlord; and (vii) with respect to the insurance required in Sections 10.3.1, 10.3.2 and 10.3.4 above, have deductible amounts not exceeding Fifty Thousand Dollars ($50,000.00). Tenant shall deliver such policies or certificates thereof to Landlord on or before the Lease Commencement Date and at least five (5) days before the expiration dates thereof. If Tenant shall fail to procure such insurance, or to deliver such policies or certificate, within such time periods, Landlord may, at its option, in addition to all of its other rights and remedies under this Lease, and without regard to any notice and cure periods set forth in Section 19.1, procure such policies for the account of Tenant, and the cost thereof shall be paid to Landlord as Additional Rent within ten (10) days after delivery of bills therefor. Tenant shall have the right to carry the insurance required hereunder in the form of blanket and/or umbrella policies.

10.4 Subrogation. Landlord and Tenant agree to have their respective insurance companies issuing property damage insurance waive any rights of subrogation that such companies may have against Landlord or Tenant, as the case may be. Landlord and Tenant hereby waive any right that either may have against the other on account of any loss or damage to their respective property to the extent such loss or damage is insurable under policies of insurance for fire and all risk coverage, theft, public liability, or other similar insurance.

ARTICLE 11

DAMAGE AND DESTRUCTION

11.1 Repair of Damage to Premises by Landlord. Tenant shall promptly notify Landlord of any damage to the Premises resulting from fire or any other casualty. If the Premises or any common areas of the Building or Project serving or providing access to the Premises shall be damaged by fire or other casualty within sixty (60) days after the damage, Landlord shall provide Tenant with a written notice providing Tenant with the estimated date of completion of the repairs (the “Estimated Completion Date”). Landlord shall promptly and diligently, subject to reasonable delays for insurance adjustment or other matters beyond Landlord’s reasonable control, and subject to all other terms of this Article 11, restore the base, shell, and core of the Premises and such common areas. Such restoration shall be to substantially the same condition of the base, shell, and core of the Premises and common areas prior to the casualty, except for modifications required by zoning and building codes and other laws or by the holder of a mortgage on the Project and/or the Building, or the lessor of a ground or underlying lease with respect to the Building, or any other modifications to the common areas deemed desirable by Landlord, provided access to the Premises and any common restrooms serving the Premises shall not be materially impaired. Upon the occurrence of any damage to the Premises, Tenant shall assign to Landlord (or to any party designated by Landlord) all insurance proceeds payable to Tenant under Tenant’s insurance required under Section 10.3 of this Lease, and Landlord shall repair any damage to the tenant improvements and alterations installed in the Premises and shall return such tenant improvements and alterations to their original condition; provided that if the costs of such repair of such tenant improvements and Alterations by Landlord exceeds the amount of insurance proceeds received by Landlord therefor from Tenant’s insurance carrier, as assigned by Tenant, the excess costs of such repairs shall be paid by Tenant to Landlord prior to Landlord’s repair of the damage. In connection with such repairs and replacements of any such tenant improvements and Alterations, Tenant shall, prior to Landlord’s commencement of such improvement work, submit to Landlord, for Landlord’s review and approval, all plans, specifications and working drawings relating thereto, and Landlord shall select the contractors to perform such improvement work. Landlord shall not be liable for any inconvenience or annoyance to Tenant or its visitors, or injury to Tenant’s business resulting in any way from such damage or the repair thereof; provided however, that if such fire or other casualty shall have damaged the Premises or common areas necessary to Tenant’s occupancy, and if such damage is not the result of the negligence or willful misconduct of Tenant or Tenant’s employees, contractors, licensees, or invitees, Landlord shall allow Tenant a proportionate abatement of Base Rent and Tenant’s Share of Operating Expenses, Tax Expenses and Utilities Costs to the extent Landlord is reimbursed from the proceeds of rental interruption insurance purchased by Landlord as part of Operating Expenses, during the time and to the extent the Premises are unfit for occupancy for the purposes permitted under this Lease, and not occupied by Tenant as a result thereof.

11.2 Landlord’s Option to Repair. Notwithstanding Section 11.1 above to the contrary, Landlord may elect not to rebuild and/or restore the Premises, the Building and/or any other portion of the Project and instead terminate this Lease by notifying Tenant in writing of such termination within sixty (60) days after the date Landlord becomes aware of such damage, such notice to include a termination date giving Tenant ninety (90) days to vacate the Premises, but Landlord may so elect only if the Building shall be damaged by fire or other casualty or cause, whether or not the Premises are affected, and one or more of the following conditions is present: (i) repairs cannot reasonably be substantially completed within one hundred eighty (180) days after the date of such damage (when such repairs are made without the payment of overtime or other premiums); (ii) the holder of any mortgage on the Project and/or the Building or ground or underlying lessor with

 

 

 

- 24 -

GENESIS SSF - TWO TOWER PLACE

Arsenal Biosciences, Inc.

[Execution Original]

 


 

respect to the Project and/or the Building shall require that the insurance proceeds or any portion thereof be used to retire the mortgage debt, or shall terminate the ground or underlying lease, as the case may be; or (iii) the damage is not fully covered, except for deductible amounts, by Landlord’s insurance policies. In addition, if the Premises or the Building is destroyed or damaged to any substantial extent during the last year of the Lease Term, then notwithstanding anything contained in this Article 11, Landlord shall have the option to terminate this Lease by giving written notice to Tenant of the exercise of such option within thirty (30) days after such damage, in which event this Lease shall cease and terminate as of the date of such notice. Upon any such termination of this Lease pursuant to this Section 11.2, Tenant shall pay the Base Rent and Additional Rent, properly apportioned up to such date of termination, and both parties hereto shall thereafter be discharged of all further obligations under this Lease, except for those obligations which expressly survive the expiration or earlier termination of the Lease Term. Tenant shall have the right to terminate this Lease due to a casualty if: (i) Landlord fails to restore the Premises within a period which is sixty (60) days longer than the Estimated Completion Date stated in Landlord’s notice to Tenant as the estimated rebuilding period (which sixty (60) day period shall be deemed extended due to Force Majeure delays and/or delays caused by Tenant); (ii) the Estimated Completion Date is more than one hundred eighty (180) days following the damage; or (iii) material damage occurs within the last year of the Term to the extent that in Tenant’s judgment it cannot effectively operate its business in the Premises.

11.3 Waiver of Statutory Provisions. The provisions of this Lease, including this Article 11, constitute an express agreement between Landlord and Tenant with respect to any and all damage to, or destruction of, all or any part of the Premises, the Building or any other portion of the Project, and any statute or regulation of the state in which the Project is located, including, without limitation, Sections 1932(2) and 1933(4) of the California Civil Code, with respect to any rights or obligations concerning damage or destruction in the absence of an express agreement between the parties, and any other statute or regulation, now or hereafter in effect, shall have no application to this Lease or any damage or destruction to all or any part of the Premises, the Building or any other portion of the Project.

ARTICLE 12

CONDEMNATION

12.1 Permanent Taking. If the whole or any part of the Premises, Building or Project shall be taken by power of eminent domain or condemned by any competent authority for any public or quasi-public use or purpose, or if any adjacent property or street shall be so taken or condemned, or reconfigured or vacated by such authority in such manner as to require the use, reconstruction or remodeling of any part of the Premises, Building or Project, or if Landlord shall grant a deed or other instrument in lieu of such taking by eminent domain or condemnation, Landlord shall have the option to terminate this Lease upon ninety (90) days’ notice, provided such notice is given no later than one hundred eighty (180) days after the date of such taking, condemnation, deed or other instrument. If more than twenty-five percent (25%) of the rentable square feet of the Premises is taken, or if access to the Premises is substantially impaired, Tenant shall have the option to terminate this Lease upon ninety (90) days’ notice, provided such notice is given no later than one hundred eighty (180) days after the date of such taking. Landlord shall be entitled to receive the entire award or payment in connection therewith, except that Tenant shall have the right to file any separate claim available to Tenant for any taking of Tenant’s personal property and fixtures belonging to Tenant and removable by Tenant upon expiration of the Lease Term pursuant to the terms of this Lease, and for moving expenses, so long as such claim does not diminish the award available to Landlord, or its ground lessor or mortgagee with respect to the Project, and such claim is payable separately to Tenant. All Rent shall be apportioned as of the date of such termination, or the date of such taking, whichever shall first occur. If any part of the Premises shall be taken, and this Lease shall not be so terminated, the Base Rent and Tenant’s Share of Operating Expenses, Tax Expenses and Utilities Costs shall be proportionately abated. Tenant hereby waives any and all rights it might otherwise have pursuant to Section 1265.130 of The California Code of Civil Procedure.

12.2 Temporary Taking. Notwithstanding anything to the contrary contained in this Article 12, in the event of a temporary taking of all or any portion of the Premises for a period of one hundred and eighty (180) days or less, then this Lease shall not terminate but the Base Rent and Tenant’s Share of Operating Expenses, Tax Expenses and Utilities Costs shall be abated for the period of such taking in proportion to the ratio that the amount of rentable square feet of the Premises taken bears to the total rentable square feet of the Premises. Landlord shall be entitled to receive the entire award made in connection with any such temporary taking.

 

 

 

- 25 -

GENESIS SSF - TWO TOWER PLACE

Arsenal Biosciences, Inc.

[Execution Original]

 


 

ARTICLE 13

COVENANT OF QUIET ENJOYMENT

Landlord covenants that Tenant, on paying the Rent, charges for services and other payments herein reserved and on keeping, observing and performing all the other terms, covenants, conditions, and agreements herein contained on the part of Tenant to be kept, observed and performed, shall, during the Lease Term, peaceably and quietly have, hold and enjoy the Premises subject to the terms, covenants, conditions, and agreements hereof without interference by any persons lawfully claiming by or through Landlord. The foregoing covenant is in lieu of any other covenant express or implied.

ARTICLE 14

ASSIGNMENT AND SUBLETTING

14.1 Transfers. Tenant shall not, without the prior written consent of Landlord, assign, mortgage, pledge, hypothecate, encumber, or permit any lien to attach to, or otherwise transfer, this Lease or any interest hereunder, permit any assignment or other such foregoing transfer of this Lease or any interest hereunder by operation of law, sublet the Premises or any part thereof, or permit the use of the Premises by any persons other than Tenant and its employees (all of the foregoing are hereinafter sometimes referred to collectively as “Transfers” and any person to whom any Transfer is made or sought to be made is hereinafter sometimes referred to as a “Transferee”). If Tenant shall desire Landlord’s consent to any Transfer, Tenant shall notify Landlord in writing, which notice (the “Transfer Notice”) shall include (i) the proposed effective date of the Transfer, which shall not be less than fifteen (15) days nor more than one hundred eighty (180) days after the date of delivery of the Transfer Notice, (ii) a description of the portion of the Premises to be transferred (the “Subject Space”), (iii) all of the terms of the proposed Transfer, the name and address of the proposed Transferee, and a copy of all existing and/or proposed documentation pertaining to the proposed Transfer, (iv) current financial statements of the proposed Transferee certified by an officer, partner or owner thereof (which Landlord shall treat as confidential and shall not disclose), (v) a list of Hazardous Materials, certified by the proposed Transferee to be true and correct, that the proposed Transferee intends to use or store in the Premises, and (vi) such other information as Landlord may reasonably require. Any Transfer made without Landlord’s prior written consent shall, at Landlord’s option, be null, void and of no effect, and shall, at Landlord’s option, constitute a default by Tenant under this Lease. Whether or not Landlord shall grant consent, within fifteen (15) days after written request by Landlord, Tenant shall pay to Landlord One Thousand Five Hundred Dollars ($1,500.00) to reimburse Landlord for its review and processing fees, and Tenant shall also reimburse Landlord for any reasonable legal fees incurred by Landlord in connection with Tenant’s proposed Transfer.

 

 

 

- 26 -

GENESIS SSF - TWO TOWER PLACE

Arsenal Biosciences, Inc.

[Execution Original]

 


 

14.2 Landlord’s Consent. Landlord shall not unreasonably withhold, condition or delay its consent to any proposed Transfer on the terms specified in the Transfer Notice and Landlord shall provide or withhold consent to the Transfer within ten (10) business days after receipt of the Transfer Notice. If Landlord does not respond to Tenant in writing of its decision within said ten (10) business day period and if such failure continues for an additional three (3) business days after Tenant’s second written request, Landlord’s consent shall be deemed granted. In no event shall Landlord be deemed to be unreasonable for declining to consent to a Transfer to a transferee jeopardizing directly or indirectly the status of Landlord or any of Landlord’s affiliates as a Real Estate Investment Trust under the Internal Revenue Code of 1986 (as the same may be amended from time to time, the “Revenue Code”) in accordance with the following sentence. Notwithstanding anything contained in this Lease to the contrary, (w) no Transfer shall be consummated on any basis such that the rental or other amounts to be paid by the occupant, assignee, manager or other transferee thereunder would be based, in whole or in part, on the income or profits derived by the business activities of such occupant, assignee, manager or other transferee; (x) Tenant shall not furnish or render any services to an occupant, assignee, manager or other transferee with respect to whom transfer consideration is required to be paid, or manage or operate the Premises or any capital additions so transferred, with respect to which transfer consideration is being paid; (y) Tenant shall not consummate a Transfer with any person in which Landlord owns an interest, directly or indirectly (by applying constructive ownership rules set forth in Section 856(d)(5) of the Revenue Code); and (z) Tenant shall not consummate a Transfer with any person or in any manner that could cause any portion of the amounts received by Landlord pursuant to this Lease or any sublease, license or other arrangement for the right to use, occupy or possess any portion of the Premises to fail to qualify as “rents from real property” within the meaning of Section 856(d) of the Revenue Code, or any similar or successor provision thereto or which could cause any other income of Landlord to fail to qualify as income described in Section 856(c)(2) of the Revenue Code. The parties hereby agree that it shall be reasonable under this Lease and under any applicable law for Landlord to withhold consent to any proposed Transfer where one or more of the following apply, without limitation as to other reasonable grounds for withholding consent:

14.2.1 The Transferee is of a character or reputation or engaged in a business which is not consistent with the quality of the Building or Project;

14.2.2 The Transferee intends to use the Subject Space for purposes which are not permitted under this Lease;

14.2.3 The Transferee is either a governmental agency or instrumentality thereof;

14.2.4 The Transfer will result in more than a reasonable and safe number of occupants per floor within the Subject Space;

14.2.5 The Transferee is not a party of reasonable financial worth and/or financial stability in light of the responsibilities involved under the Lease on the date consent is requested;

14.2.6 The proposed Transfer would cause Landlord to be in violation of another lease or agreement to which Landlord is a party, or would give an occupant of the Project a right to cancel its lease; provided that Landlord notified Tenant of such restrictions prior to the date of this Lease;

14.2.7 The terms of the proposed Transfer will allow the Transferee to exercise a right of renewal, right of expansion, right of first offer, or other similar right held by Tenant (or will allow the Transferee to occupy space leased by Tenant pursuant to any such right); or

14.2.8 Either the proposed Transferee, or any person or entity which directly or indirectly, controls, is controlled by, or is under common control with, the proposed Transferee, (i) occupies space in the Project at the time of the request for consent, or (ii) is negotiating with Landlord to lease space in the Project at such time.

 

 

 

- 27 -

GENESIS SSF - TWO TOWER PLACE

Arsenal Biosciences, Inc.

[Execution Original]

 


 

If Landlord consents to any Transfer pursuant to the terms of this Section 14.2 (and does not exercise any recapture rights Landlord may have under Section 14.4 below), Tenant may within six (6) months after Landlord’s consent, enter into such Transfer of the Premises or portion thereof, upon substantially the same terms and conditions as are set forth in the Transfer Notice furnished by Tenant to Landlord pursuant to Section 14.1 above, provided that if there are any changes in the terms and conditions from those specified in the Transfer Notice (i) such that Landlord would initially have been entitled to refuse its consent to such Transfer under this Section 14.2, or (ii) which would cause the proposed Transfer to be materially more favorable to the Transferee than the terms set forth in Tenant’s original Transfer Notice, Tenant shall again submit the Transfer to Landlord for its approval and other action under this Article 14 (including Landlord’s right of recapture, if any, under Section 14.4 of this Lease).

14.3 Transfer Premium. If Landlord consents to a Transfer, as a condition thereto which the parties hereby agree is reasonable, Tenant shall pay to Landlord fifty percent (50%) of any Transfer Premium received by Tenant from such Transferee. “Transfer Premium” shall mean all rent, additional rent or other consideration payable by such Transferee in excess of the Rent and Additional Rent payable by Tenant under this Lease on a per rentable square foot basis if less than all of the Premises is transferred, after deducting the reasonable expenses incurred by Tenant for (i) any reasonable changes, alterations and improvements to the Premises in connection with the Transfer (but only to the extent approved by Landlord), and (ii) any reasonable brokerage commissions, marketing expenses, legal fees, allowances or other reasonable costs in connection with the Transfer (collectively, the “Subleasing Costs”). Transfer Premium shall also include, but not be limited to, key money and bonus money paid by Transferee to Tenant as compensation for such Transfer, and any payment in excess of fair market value for services rendered by Tenant to Transferee.

14.4 Landlord’s Option as to Subject Space. Notwithstanding anything to the contrary contained in this Article 14, if the proposed Transfer is an assignment (to other than an Affiliate) or a sublessee with respect to the balance of the Lease Term, Landlord shall have the option, by giving written notice to Tenant within ten (10) days after receipt of any Transfer Notice, to recapture the Subject Space. Such recapture notice shall terminate this Lease with respect to the Subject Space as of the date stated in the Transfer Notice as the effective date of the proposed Transfer until the last day of the term of the Transfer as set forth in the Transfer Notice. If this Lease is terminated with respect to less than the entire Premises, the Rent reserved herein shall be prorated on the basis of the rentable square feet retained by Tenant in proportion to the rentable square feet contained in the Premises, and this Lease as so amended shall continue thereafter in full force and effect, and upon request of either party, the parties shall execute written confirmation of the same. If Landlord declines, or fails to elect in a timely manner to recapture the Subject Space under this Section 14.4, then, provided Landlord has consented to the proposed Transfer, Tenant shall be entitled to proceed to transfer the Subject Space to the proposed Transferee, subject to provisions of the last paragraph of Section 14.2 above.

14.5 Effect of Transfer. If Landlord consents to a Transfer: (i) the terms and conditions of this Lease shall in no way be deemed to have been waived or modified; (ii) such consent shall not be deemed consent to any further Transfer by either Tenant or a Transferee; (iii) Tenant shall deliver to Landlord, promptly after execution, an original executed copy of all documentation pertaining to the Transfer in form reasonably acceptable to Landlord; and (iv) no Transfer relating to this Lease or agreement entered into with respect thereto, whether with or without Landlord’s consent, shall relieve Tenant or any guarantor of the Lease from liability under this Lease. Landlord or its authorized representatives shall have the right at all reasonable times to audit the books, records and papers of Tenant relating to any Transfer, and shall have the right to make copies thereof, provided that Landlord executes a commercially reasonable non-disclosure agreement. If the Transfer Premium respecting any Transfer shall be found understated, Tenant shall, within thirty (30) days after demand, pay the deficiency and Landlord’s costs of such audit.

14.6 Additional Transfers. For purposes of this Lease but subject to Section 14.7 below, the term “Transfer” shall also include: (i) if Tenant is a partnership or limited liability company, the withdrawal or change, voluntary, involuntary or by operation of law, of more than fifty percent (50%) of the partners or members, or transfer of more than fifty percent (50%) of the partnership or membership interests, within a twelve (12)-month period, or the dissolution of the partnership without immediate reconstitution thereof; and (ii) if Tenant is a closely held corporation (i.e., whose stock is not publicly held and not traded through an exchange or over the counter), (A) the dissolution, merger, consolidation or other reorganization of Tenant, (B) the sale or other transfer of more than an aggregate of fifty percent (50%) of the voting shares of Tenant (other than to immediate family members by reason of gift or death), within a twelve (12)-month period, or (C) the sale, mortgage, hypothecation or pledge of more than an aggregate of fifty percent (50%) of the value of the unencumbered assets of Tenant within a twelve (12)-month period.

 

 

 

- 28 -

GENESIS SSF - TWO TOWER PLACE

Arsenal Biosciences, Inc.

[Execution Original]

 


 

14.7 Affiliated Companies/Restructuring of Business Organization. Neither (A) the assignment or subletting by Tenant of all or any portion of this Lease or the Premises to (i) a parent or subsidiary of Tenant, or (ii) any person or entity which controls, is controlled by or under common control with Tenant, or (iii) any entity which purchases all or substantially all of the assets of Tenant in one or a series of transactions, or (iv) any entity into which Tenant is merged or consolidated (all such persons or entities described in (i), (ii), (iii) and (iv) being sometimes hereinafter referred to as “Affiliates”), nor (B) any transfer of the stock of Tenant, shall be deemed a Transfer under this Article 14, provided that:

14.7.1 Any such Affiliate was not formed, nor was such financing intended, as a subterfuge to avoid the obligations of this Article 14;

14.7.2 Tenant gives Landlord prior written notice of any such assignment, sublease, financing or public offering, unless precluded by non-disclosure obligations, in which case Tenant shall notify Landlord promptly thereafter;

14.7.3 Tenant or any such Affiliate has, following the effective date of any such assignment, sublease, financing or public offering, a tangible net worth, in the aggregate, computed in accordance with generally accepted accounting principles, which is equal to or greater than Tenant as of the effective date of any such assignment, sublease, financing or public offering;

14.7.4 Any such Affiliate shall assume, in a written document reasonably satisfactory to Landlord and delivered to Landlord upon or prior to the effective date of such assignment or sublease, all the obligations of Tenant under this Lease; and

14.7.5 Tenant shall remain fully liable for all obligations to be performed by Tenant under this Lease.

An Affiliate that is an assignee of Original Tenant’s (or a prior Affiliate Assignee’s) entire interest in this Lease may be referred to as an “Affiliate Assignee.”

14.8 Special Transferees. Tenant shall be permitted, upon prior written notice to Landlord (but without otherwise triggering the other provisions of this Article 14) to enter into any license agreements of space (the “Occupancy Agreements”) within the Premises with business affiliates of Tenant; provided, however, that in no event shall the rentable square feet of space licensed to any one third party exceed 2,000 rentable square feet of space and in no event shall the total space leased to such business affiliates exceed 10,000 rentable square feet in the aggregate; provided that (a) Tenant shall give Landlord prior written notice of any such Occupancy Agreement and promptly supply Landlord with any documents or information requested by Landlord regarding such transferees (including, but not limited to, applicable certificates of insurance), (b) each licensee is consistent with the character of the Project as a first-class project, and (c) in no event shall such licensees be permitted to maintain a separate reception area in the Premises. Any proposed license which is greater than 2,000 rentable square feet of the Premises shall require Landlord’s prior written consent and shall be deemed a Transfer under this Article 14 (and shall be subject to all of the terms and conditions of this Article 14).

ARTICLE 15

SURRENDER; OWNERSHIP AND REMOVAL OF PERSONAL PROPERTY

15.1 Surrender of Premises. No act or thing done by Landlord or any agent or employee of Landlord during the Lease Term shall be deemed to constitute an acceptance by Landlord of a surrender of the Premises unless such intent is specifically acknowledged in a writing signed by Landlord. The delivery of keys to the Premises to Landlord or any agent or employee of Landlord shall not constitute a surrender of the Premises or effect a termination of this Lease, whether or not the keys are thereafter retained by Landlord, and notwithstanding such delivery Tenant shall be entitled to the return of such keys at any reasonable time upon request until this Lease shall have been properly terminated. The voluntary or other surrender of this Lease by Tenant, whether accepted by Landlord or not, or a mutual termination hereof, shall not work a merger, and at the option of Landlord shall operate as an assignment to Landlord of all subleases or subtenancies affecting the Premises.

15.2 Removal of Tenant Property by Tenant. Upon the expiration of the Lease Term, or upon any earlier termination of this Lease, Tenant shall, subject to the provisions of this Article 15, quit and surrender possession of the Premises to Landlord in as good order and condition as when Tenant took possession and as thereafter improved by Landlord and/or Tenant, reasonable wear and tear and repairs which are specifically made the responsibility of Landlord

 

 

 

- 29 -

GENESIS SSF - TWO TOWER PLACE

Arsenal Biosciences, Inc.

[Execution Original]

 


 

hereunder excepted. Tenant’s restoration obligations with respect to any Alterations may also include satisfying Landlord’s commercially reasonable procedures regarding the cleaning of any lab systems and sealing any connection points of any such lab systems to the Premises, all at Tenant’s sole cost and expense. At least ten (10) days prior to Tenant’s surrender of possession of any part of the Premises, Tenant shall provide Landlord with (a) a facility decommissioning and Hazardous Materials closure plan for the Premises (“Exit Survey”) prepared by an independent third party reasonably acceptable to Landlord, and (b) written evidence of all appropriate governmental releases obtained by Tenant in accordance with applicable laws, including laws pertaining to the surrender of the Premises. In addition, Tenant agrees to remain responsible after the surrender of the Premises for the remediation of any recognized environmental conditions set forth in the Exit Survey and compliance with any recommendations set forth in the Exit Survey. Tenant shall, upon the expiration or earlier termination of this Lease, furnish to Landlord evidence that Tenant has closed all governmental permits and licenses, if any, issued in connection with Tenant’s or Tenant’s Parties’ activities at the Premises. If any such governmental permits or licenses have been issued and Tenant fails to provide evidence of such closure on or before the expiration or earlier termination of this Lease, then until Tenant does so, the holdover provisions of Article 16 of this Lease shall apply. Upon such expiration or termination, Tenant shall, without expense to Landlord, remove or cause to be removed from the Premises all telephone, data, and other cabling and wiring (including any cabling and wiring associated with the Wi-Fi Network, if any) installed or caused to be installed by Tenant (including any cabling and wiring, installed above the ceiling of the Premises or below the floor of the Premises), all debris and rubbish, and such items of furniture, equipment, free-standing cabinet work, and other articles of personal property owned by Tenant or installed or placed by Tenant at its expense in the Premises, and such similar articles of any other persons claiming under Tenant, as Landlord may, in its sole discretion, require to be removed, and Tenant shall repair at its own expense all damage to the Premises and Building resulting from such removal. Tenant’s obligations under this Section 15.2 shall survive the expiration or earlier termination of this Lease.

ARTICLE 16

HOLDING OVER

If Tenant holds over after the expiration of the Lease Term hereof, with or without the express or implied consent of Landlord, such tenancy shall be from month-to-month only, and shall not constitute a renewal hereof or an extension for any further term, and in such case Base Rent shall be payable at a monthly rate equal to one hundred fifty percent (150%) of the Base Rent applicable during the last rental period of the Lease Term under this Lease. Such month-to-month tenancy shall be subject to every other term, covenant and agreement contained herein. Landlord hereby expressly reserves the right to require Tenant to surrender possession of the Premises to Landlord as provided in this Lease upon the expiration or other termination of this Lease. The provisions of this Article 16 shall not be deemed to limit or constitute a waiver of any other rights or remedies of Landlord provided herein or at law. If Tenant fails to surrender the Premises upon the termination or expiration of this Lease, in addition to any other liabilities to Landlord accruing therefrom, Tenant shall protect, defend, indemnify and hold Landlord harmless from all loss, costs (including reasonable attorneys’ fees) and liability resulting from such failure, including, without limiting the generality of the foregoing, any claims made by any succeeding tenant founded upon such failure to surrender, and any lost profits to Landlord resulting therefrom; provided, however, that Tenant’s obligation to indemnify and hold Landlord harmless with respect to such claims shall be conditioned upon Landlord providing Tenant with not less than thirty (30) days’ prior written notice that Landlord has entered into a lease for the Premises or has received a bona fide offer to lease the Premises, and that Landlord will be unable to deliver possession, or perform improvements, due to Tenant’s holdover.

ARTICLE 17

ESTOPPEL CERTIFICATES

Within ten (10) days following a request in writing by Landlord, Tenant shall execute and deliver to Landlord an estoppel certificate, which, as submitted by Landlord, shall be in the form as may be required by any prospective mortgagee or purchaser of the Project (or any portion thereof), indicating therein any exceptions thereto that may exist at that time, and shall also contain any other information reasonably requested by Landlord or Landlord’s mortgagee or Landlord’s prospective mortgagees. Tenant shall execute and deliver whatever other instruments may be reasonably required for such purposes. Upon request from time to time, Tenant agrees to provide to Landlord, within ten (10) days after Landlord’s delivery of written request therefor, current financial statements for Tenant, dated no earlier than one (1) year prior to such written request, certified as accurate by Tenant or, if available, audited financial statements prepared by an independent certified public accountant with copies of the auditor’s statement; provided that Landlord executed Tenant’s customary

 

 

 

- 30 -

GENESIS SSF - TWO TOWER PLACE

Arsenal Biosciences, Inc.

[Execution Original]

 


 

and commercially reasonable non-disclosure agreement. Landlord from time to time shall, within twenty (20) business days after written request by Tenant, execute, acknowledge and deliver to Tenant a written statement certifying that the Lease is unmodified and in full force and effect (or that the same is in full force and effect as modified, listing the instruments of modification), the dates to which rent and the other charges have been paid; and that to the actual knowledge of Landlord, without having made independent investigation, Tenant is not in default hereunder (or specifying the nature of any default(s) Landlord claims to exist at the time of such certification).

ARTICLE 18

SUBORDINATION

This Lease is subject and subordinate to all present and future ground leases of the Project and to the lien of any mortgages or trust deeds, now or hereafter in force against the Project, if any, and to all renewals, extensions, modifications, consolidations and replacements thereof, and to all advances made or hereafter to be made upon the security of such mortgages or trust deeds, unless the holders of such mortgages or trust deeds, or the lessors under such ground lease, require in writing that this Lease be superior thereto. Tenant covenants and agrees in the event any proceedings are brought for the foreclosure of any such mortgage, or if any ground lease is terminated, to attorn, without any deductions or set-offs whatsoever, to the purchaser upon any such foreclosure sale, or to the lessor of such ground lease, as the case may be, if so requested to do so by such purchaser or lessor, and to recognize such purchaser or lessor as the lessor under this Lease. Tenant shall, within five (5) days of request by Landlord, execute such further instruments or assurances as Landlord may reasonably deem necessary to evidence or confirm the subordination or superiority of this Lease to any such mortgages, trust deeds, or ground leases. Tenant waives the provisions of any current or future statute, rule or law which may give or purport to give Tenant any right or election to terminate or otherwise adversely affect this Lease and the obligations of the Tenant hereunder in the event of any foreclosure proceeding or sale. Within sixty (60) days after the execution of this Lease, Landlord shall obtain a non-disturbance agreement from the holder of any pre-existing mortgage encumbering the Building in the form attached hereto as Exhibit E, which Tenant agrees to promptly execute.

ARTICLE 19

TENANT’S DEFAULTS; LANDLORD’S REMEDIES

19.1 Events of Default by Tenant. All covenants and agreements to be kept or performed by Tenant under this Lease shall be performed by Tenant at Tenant’s sole cost and expense and without any reduction of Rent. Tenant shall only be deemed to be in default or breach of this Lease upon the occurrence of any of the following:

19.1.1 Any failure by Tenant to pay any Rent, Additional Rent or any other charge required to be paid under this Lease, or any part thereof, within five (5) days after delivery of written notice that the same was not paid when due; provided, however, that any such notice shall be in lieu of, and not in addition to, any notice required under California Code of Civil Procedure Section 1161 or any similar or successor law; or

19.1.2 Any failure by Tenant to observe or perform any other provision, covenant or condition of this Lease to be observed or performed by Tenant (other than the payment of Rent or Additional Rent) where such failure continues for fifteen (15) days after written notice thereof from Landlord to Tenant; provided however, that any such notice shall be in lieu of, and not in addition to, any notice required under California Code of Civil Procedure Section 1161 or any similar or successor law; and provided further that if the nature of such default is such that the same cannot reasonably be cured within a fifteen (15)-day period, Tenant shall not be deemed to be in default if it diligently commences such cure within such period and thereafter diligently proceeds to rectify and cure said default as soon as possible; or

19.1.3 Permanent abandonment of the Premises by Tenant.

19.1.4 Tenant makes an assignment for the benefit of creditors.

19.1.5 A receiver, trustee or custodian is appointed to or does take title, possession or control of all or substantially all of Tenant’s assets and Tenant does not cure same within one hundred twenty (120) days.

 

 

 

- 31 -

GENESIS SSF - TWO TOWER PLACE

Arsenal Biosciences, Inc.

[Execution Original]

 


 

19.1.6 Tenant files a voluntary petition under the United States Bankruptcy Code or any successor statute (as the same may be amended from time to time, (the “Bankruptcy Code”) or an order for relief is entered against Tenant pursuant to a voluntary or involuntary proceeding commenced under any chapter of the Bankruptcy Code and is not dismissed within one hundred twenty (120) days.

19.1.7 Any involuntary petition is filed against Tenant under any chapter of the Bankruptcy Code and is not dismissed within one hundred twenty (120) days.

19.1.8 Intentionally blank.

19.1.9 Tenant fails to deliver an estoppel certificate in accordance with Article 17 following a second request from Landlord and the passage of five (5) business days.

19.1.10 Tenant’s interest in this Lease is attached, executed upon or otherwise judicially seized and such action is not released within one hundred twenty (120) days of the action.

19.2 Landlord’s Remedies Upon Default. Upon the occurrence of any such default by Tenant, Landlord shall have, in addition to any other remedies available to Landlord at law or in equity, the option to pursue any one or more of the following remedies, each and all of which shall be cumulative and nonexclusive, without any notice or demand whatsoever.

19.2.1 Terminate this Lease, in which event Tenant shall immediately surrender the Premises to Landlord, and if Tenant fails to do so, Landlord may, without prejudice to any other remedy which it may have for possession or arrearages in rent, enter upon and take possession of the Premises and expel or remove Tenant and any other person who may be occupying the Premises or any part thereof, without being liable for prosecution or any claim for damages therefor; and Landlord may recover from Tenant the following:

(i) the worth at the time of award of any unpaid rent which has been earned at the time of such termination; plus

(ii) the worth at the time of award of the amount by which the unpaid rent which would have been earned after termination until the time of award exceeds the amount of such rental loss that Tenant proves could have been reasonably avoided; plus

(iii) the worth at the time of award of the amount by which the unpaid rent for the balance of the Lease Term after the time of award exceeds the amount of such rental loss that Tenant proves could have been reasonably avoided; plus

(iv) any other amount necessary to compensate Landlord for all the detriment proximately caused by Tenant’s failure to perform its obligations under this Lease or which in the ordinary course of things would be likely to result therefrom, specifically including but not limited to, brokerage commissions and advertising expenses incurred, expenses of remodeling the Premises or any portion thereof for a new tenant, whether for the same or a different use, and any special concessions made to obtain a new tenant; plus

(v) at Landlord’s election, such other amounts in addition to or in lieu of the foregoing as may be permitted from time to time by applicable law.

The term “rent” as used in this Section 19.2 shall be deemed to be and to mean all sums of every nature required to be paid by Tenant pursuant to the terms of this Lease, whether to Landlord or to others. As used in Sections 19.2.1(i) and (ii), above, the “worth at the time of award” shall be computed by allowing interest at the Interest Rate set forth in Section 4.5 above. As used in Section 19.2.1(iii) above, the “worth at the time of award” shall be computed by discounting such amount at the discount rate of the Federal Reserve Bank of San Francisco at the time of award plus one percent (1%).

19.2.2 Landlord shall have the remedy described in California Civil Code Section 1951.4 (lessor may continue lease in effect after lessee’s breach and abandonment and recover rent as it becomes due, if lessee has the right to sublet or assign, subject only to reasonable limitations). Accordingly, if Landlord does not elect to terminate this

 

 

 

- 32 -

GENESIS SSF - TWO TOWER PLACE

Arsenal Biosciences, Inc.

[Execution Original]

 


 

Lease on account of any default by Tenant, Landlord may, from time to time, without terminating this Lease, enforce all of its rights and remedies under this Lease, including the right to recover all rent as it becomes due.

19.2.3 Landlord may, but shall not be obligated to, make any such payment or perform or otherwise cure any such obligation, provision, covenant or condition on Tenant’s part to be observed or performed (and may enter the Premises for such purposes). In the event of Tenant’s failure to perform any of its obligations or covenants under this Lease, and such failure to perform poses a material risk of injury or harm to persons or damage to or loss of property, then Landlord shall have the right to cure or otherwise perform such covenant or obligation at any time after such failure to perform by Tenant, whether or not any such notice or cure period set forth in Section 19.1 above has expired. Any such actions undertaken by Landlord pursuant to the foregoing provisions of this Section 19.2.3 shall not be deemed a waiver of Landlord’s rights and remedies as a result of Tenant’s failure to perform and shall not release Tenant from any of its obligations under this Lease.

19.3 Payment by Tenant. Tenant shall pay to Landlord, within ten (10) days after delivery by Landlord to Tenant of statements therefor: (i) sums equal to expenditures reasonably made and obligations incurred by Landlord in connection with Landlord’s performance or cure of any of Tenant’s obligations pursuant to the provisions of Section 19.2.3 above; and (ii) sums equal to all expenditures made and obligations incurred by Landlord in collecting or attempting to collect the Rent or in enforcing or attempting to enforce any rights of Landlord under this Lease or pursuant to law, including, without limitation, all legal fees and other amounts so expended. Tenant’s obligations under this Section 19.3 shall survive the expiration or sooner termination of the Lease Term.

19.4 Sublessees of Tenant. Whether or not Landlord elects to terminate this Lease on account of any default by Tenant, as set forth in this Article 19, Landlord shall have the right to terminate any and all subleases, licenses, concessions or other consensual arrangements for possession entered into by Tenant and affecting the Premises or may, in Landlord’s sole discretion, succeed to Tenant’s interest in such subleases, licenses, concessions or arrangements. If Landlord elects to succeed to Tenant’s interest in any such subleases, licenses, concessions or arrangements, Tenant shall, as of the date of notice by Landlord of such election, have no further right to or interest in the rent or other consideration receivable thereunder.

19.5 Waiver of Default. No waiver by Landlord of any violation or breach by Tenant of any of the terms, provisions and covenants herein contained shall be deemed or construed to constitute a waiver of any other or later violation or breach by Tenant of the same or any other of the terms, provisions, and covenants herein contained. Forbearance by Landlord in enforcement of one or more of the remedies herein provided upon a default by Tenant shall not be deemed or construed to constitute a waiver of such default. The acceptance of any Rent hereunder by Landlord following the occurrence of any default, whether or not known to Landlord, shall not be deemed a waiver of any such default, except only a default in the payment of the Rent so accepted.

19.6 Efforts to Relet. For the purposes of this Article 19, Tenant’s right to possession shall not be deemed to have been terminated by efforts of Landlord to relet the Premises, by its acts of maintenance or preservation with respect to the Premises, or by appointment of a receiver to protect Landlord’s interests hereunder. The foregoing enumeration is not exhaustive, but merely illustrative of acts which may be performed by Landlord without terminating Tenant’s right to possession.

19.7 Bankruptcy. In the event a debtor, trustee or debtor in possession under the Bankruptcy Code, or another person with similar rights, duties and powers under any other applicable laws, proposes to cure any default under this Lease or to assume or assign this Lease and is obliged to provide adequate assurance to Landlord that (a) a default shall be cured, (b) Landlord shall be compensated for its damages arising from any breach of this Lease and (c) future performance of Tenant’s obligations under this Lease shall occur, then such adequate assurances shall include any or all of the following, as designated by Landlord in its sole and absolute discretion:

(i) Those acts specified in the Bankruptcy Code or other applicable laws as included within the meaning of “adequate assurance,” even if this Lease does not concern a shopping center or other facility described in such applicable laws;

(ii) A prompt cash payment to compensate Landlord for any monetary defaults or actual damages arising directly from a breach of this Lease;

 

 

 

- 33 -

GENESIS SSF - TWO TOWER PLACE

Arsenal Biosciences, Inc.

[Execution Original]

 


 

(iii) A cash deposit in an amount at least equal to the then-current amount of the Security Deposit; or

(iv) The assumption or assignment of all of Tenant’s interest and obligations under this Lease.

ARTICLE 20

LETTER OF CREDIT

20.1 Delivery of Letter of Credit. Tenant shall deliver to Landlord, concurrently with Tenant’s execution of this Lease, an unconditional, clean, irrevocable letter of credit (the “L-C”) in the amount set forth in Section 20.3 below (the “L-C Amount”), which L-C shall be issued by Silicon Valley Bank or other bank reasonably acceptable to Landlord (such approved, issuing bank being referred to herein as the “Bank”), which Bank must have a long-term rating from Moody’s Professional Rating Service of “A3” (the “Bank’s Credit Rating Threshold”), and which L-C shall be in the form of Exhibit F, attached hereto. Tenant shall pay all expenses, points and/or fees incurred by Tenant in obtaining the L-C. The L-C shall (i) be “callable” at sight, irrevocable and unconditional (other than as set forth in the L-C), (ii) be maintained in effect, whether through renewal or extension, for the period commencing on the date of this Lease and continuing until the date (the “L-C Expiration Date”) that is no less than forty-five (45) days after the expiration of the Lease Term as the same may be extended (provided that the Bank shall have the right, annually, not to renew by providing the notice to Landlord described herein), and, if the L-C shall expire (without auto-renewal) prior to L-C Expiration Date, Tenant shall deliver a new L-C or certificate of renewal or extension to Landlord at least fifteen (15) days prior to such expiration prior to the L-C Expiration Date of the L-C then held by Landlord, without any action whatsoever on the part of Landlord, (iii) be fully assignable by Landlord, its successors and assigns, (iv) permit partial draws and multiple presentations and drawings, and (v) be otherwise subject to the International Standby Practices-ISP 98, International Chamber of Commerce Publication #590. Landlord, or its then managing agent, shall have the right to draw down an amount up to the face amount of the L-C if any of the following shall have occurred or be applicable: (A) such amount is due to Landlord under the terms and conditions of this Lease, beyond any L-C Cure Period (as defined below), or (B) Tenant has filed a voluntary petition under the U. S. Bankruptcy Code or any state bankruptcy code (collectively, “Bankruptcy Code”), or (C) an involuntary petition has been filed against Tenant under the Bankruptcy Code (and the same has not been vacated within sixty (60) days thereafter), or (D) the Lease has been rejected, or is deemed rejected, under Section 365 of the U.S. Bankruptcy Code, following the filing of a voluntary petition by Tenant under the Bankruptcy Code, or the filing of an involuntary petition against Tenant under the Bankruptcy Code, or (E) the Bank has notified Landlord that the L-C will not be renewed or extended through the L-C Expiration Date and Tenant has not provided a replacement L-C within the applicable time period above, or (F) Tenant is placed into receivership or conservatorship, or becomes subject to similar proceedings under Federal or State law, or (G) Tenant executes an assignment for the benefit of creditors, or (H) if (1) any of the Bank’s Moody’s ratings (or other comparable ratings to the extent the Moody’s ratings are no longer available) have been reduced below the Bank’s Credit Rating Threshold, or (2) there is otherwise a material adverse change in the financial condition of the Bank (each a “Bank Credit Threat”), and Tenant has failed to provide Landlord with a replacement letter of credit, conforming in all respects to the requirements of this Article 20 (including, but not limited to, the requirements placed on the issuing Bank more particularly set forth in this Section 20.1 above), in the amount of the applicable L-C Amount or, if applicable, provide Landlord with the Interim Cash Deposit (as provided in Section 20.8.1. below), all within ten (10) days following Landlord’s written demand therefor (with no other notice or cure or grace period being applicable thereto, notwithstanding anything in this Lease to the contrary) (each of the foregoing being an “L-C Draw Event”). The L-C shall be honored by the Bank regardless of whether Tenant disputes Landlord’s right to draw upon the L-C. In addition, in the event the Bank is placed into receivership or conservatorship by the Federal Deposit Insurance Corporation or any successor or similar entity, then, effective as of the date such receivership or conservatorship occurs, said L-C shall be deemed to fail to meet the requirements of this Article 21, and, within ten (10) days following Landlord’s notice to Tenant of such receivership or conservatorship (the “L-C FDIC Replacement Notice”), Tenant shall replace such L-C with a substitute letter of credit from a different issuer (which issuer shall meet or exceed the Bank’s Credit Rating Threshold and shall otherwise be acceptable to Landlord in its reasonable discretion) and that complies in all respects with the requirements of this Article 20. If Tenant fails to replace such L-C with such conforming, substitute letter of credit pursuant to the terms and conditions of this Article 20, then, notwithstanding anything in this Lease to the contrary, Landlord shall have the right to declare Tenant in default of this Lease for which there shall be no notice or grace or cure periods being applicable thereto (other than the aforesaid ten (10) day period). Tenant shall be responsible for the payment of any and all costs incurred with the review of any replacement L-C (including without limitation Landlord’s reasonable attorneys’ fees), which replacement is required pursuant to this Section or is otherwise requested by Tenant. In the event of an assignment by Tenant of its interest in this Lease (and irrespective of whether Landlord’s consent is required for such

 

 

 

- 34 -

GENESIS SSF - TWO TOWER PLACE

Arsenal Biosciences, Inc.

[Execution Original]

 


 

assignment), the acceptance of any replacement or substitute letter of credit by Landlord from the assignee shall be subject to Landlord’s prior written approval, in Landlord’s sole and absolute discretion, and the attorney’s fees incurred by Landlord in connection with such determination shall be payable by Tenant to Landlord within ten (10) days of billing. “L-C Cure Period” shall mean any applicable notice and cure period expressly set forth in this Lease except that there shall be no L-C Cure Period if Landlord is not permitted for any legal reason from providing written notice of a default.

20.2 Application of L-C. Tenant hereby acknowledges and agrees that Landlord is entering into this Lease in material reliance upon the ability of Landlord to draw upon the L-C upon the occurrence of any L-C Draw Event. In the event of any L-C Draw Event, Landlord may, but without obligation to do so, and without notice to Tenant (except in connection with an L-C Draw Event under Section 20.1(H) above), draw upon the L-C, in part or in whole, to cure any such L-C Draw Event and/or to compensate Landlord for any and all damages of any kind or nature sustained or which Landlord reasonably estimates that it will sustain resulting from Tenant’s breach or default of the Lease, beyond any applicable notice and cure period expressly set forth in this Lease, or other L-C Draw Event and/or to compensate Landlord for any and all damages arising out of, or incurred in connection with, the termination of this Lease, including, without limitation, those specifically identified in Section 1951.2 of the California Civil Code. The use, application or retention of the L-C, or any portion thereof, by Landlord shall not prevent Landlord from exercising any other right or remedy provided by this Lease or by any applicable law, it being intended that Landlord shall not first be required to proceed against the L-C, and such L-C shall not operate as a limitation on any recovery to which Landlord may otherwise be entitled. Tenant agrees not to interfere in any way with payment to Landlord of the proceeds of the L-C, either prior to or following a “draw” by Landlord of any portion of the L-C, regardless of whether any dispute exists between Tenant and Landlord as to Landlord’s right to draw upon the L-C; provided that nothing in this Section 20.2 shall in any way limit Tenant’s rights under Section 20.7. No condition or term of this Lease shall be deemed to render the L-C conditional to justify the issuer of the L-C in failing to honor a drawing upon such L-C in a timely manner. Tenant agrees and acknowledges that (i) the L-C constitutes a separate and independent contract between Landlord and the Bank, (ii) Tenant is not a third party beneficiary of such contract, (iii) Tenant has no property interest whatsoever in the L-C or the proceeds thereof, and (iv) in the event Tenant becomes a debtor under any chapter of the Bankruptcy Code, Tenant is placed into receivership or conservatorship, and/or there is an event of a receivership, conservatorship or a bankruptcy filing by, or on behalf of, Tenant, neither Tenant, any trustee, nor Tenant’s bankruptcy estate shall have any right to restrict or limit Landlord’s claim and/or rights to the L-C and/or the proceeds thereof by application of Section 502(b)(6) of the U.S. Bankruptcy Code or otherwise.

20.3 L-C Amount; Maintenance of L-C by Tenant; Liquidated Damages.

20.3.1 L-C Amount. The L-C Amount shall be equal to the amount set forth in Section 10 of the Summary. The L-C Amount shall, at any and all times during the Lease Term (including any Option Term), be equal to Six Hundred Twenty-Six Thousand Five Hundred Nine and 60/100 Dollars ($626,509.60).

20.3.2 In General. If, as a result of any drawing by Landlord of all or any portion of the L-C, the amount of the L-C shall be less than the L-C Amount, Tenant shall, within ten (10) days thereafter, provide Landlord with additional letter(s) of credit in an amount equal to the deficiency, and any such additional letter(s) of credit shall comply with all of the provisions of this Article 20, and if Tenant fails to comply with the foregoing, the same shall be subject to the terms of Section 20.3.3 below. Tenant further covenants and warrants that it will neither assign nor encumber the L-C or any part thereof and that neither Landlord nor its successors or assigns will be bound by any such assignment, encumbrance, attempted assignment or attempted encumbrance. Without limiting the generality of the foregoing, if the L-C expires earlier than the L-C Expiration Date, Landlord will accept a renewal thereof (such renewal letter of credit to be in effect and delivered to Landlord, as applicable, not later than sixty (60) days prior to the expiration of the L-C), which shall be irrevocable and, subject to the annual right of the Bank not to renew, automatically renewable as above provided through the L-C Expiration Date upon the same terms as the expiring L-C or such other terms as may be acceptable to Landlord in its sole discretion. As an express condition to Tenant’s right to extend the Term of this Lease pursuant to the Extension Option Rider, Tenant shall, not later than fifteen (15) days prior to the commencement of the Option Term, deliver to Landlord a new L C or certificate of renewal or extension evidencing the L-C Expiration Date as forty-five (45) days after the expiration of the Option Term (the “Extension Option L-C Condition”). However, if the L-C is not timely renewed, or if Tenant fails to maintain the L-C in the amount and in accordance with the terms set forth in this Article 20, Landlord shall have the right to present the L-C to the Bank in accordance with the terms of this Article 20, and the proceeds of the L-C may be applied by Landlord against any Rent payable by Tenant under this Lease that is not paid when due, beyond any applicable notice and cure period expressly set forth in this Lease, and/or to pay for all losses and damages

 

 

 

- 35 -

GENESIS SSF - TWO TOWER PLACE

Arsenal Biosciences, Inc.

[Execution Original]

 


 

that Landlord has suffered or that Landlord reasonably estimates that it will suffer as a result of any breach or default by Tenant under this Lease, beyond any applicable notice and cure period expressly set forth in this Lease. In the event Landlord elects to exercise its rights under the foregoing sentence, (I) any unused proceeds shall constitute the property of Landlord (and not Tenant’s property or, in the event of a receivership, conservatorship, or a bankruptcy filing by, or on behalf of, Tenant, property of such receivership, conservatorship or Tenant’s bankruptcy estate) and need not be segregated from Landlord’s other assets, and (II) Landlord agrees to pay to Tenant within thirty (30) days after the L-C Expiration Date the amount of any proceeds of the L-C received by Landlord and not applied against any Rent payable by Tenant under this Lease that was not paid when due or used to pay for any losses and/or damages suffered by Landlord (or reasonably estimated by Landlord that it will suffer) as a result of any breach or default by Tenant under this Lease, beyond any applicable notice and cure period expressly set forth in this Lease; provided, however, that if prior to the L-C Expiration Date a voluntary petition is filed by Tenant, or an involuntary petition is filed against Tenant by any of Tenant’s creditors, under the Bankruptcy Code, then Landlord shall not be obligated to make such payment in the amount of the unused L-C proceeds until either all preference issues relating to payments under this Lease have been resolved in such bankruptcy or reorganization case or such bankruptcy or reorganization case has been dismissed.

20.3.3 Intentionally omitted.

20.4 Transfer and Encumbrance. The L-C shall provide that Landlord, its successors and assigns, may, at any time and without notice to Tenant and without first obtaining Tenant’s consent thereto, transfer (one or more times) all or any portion of its interest in and to any party, person or entity, provided such transfer is part of the assignment by Landlord of its rights and interests in and to this Lease or is a transfer by Landlord to its lender. In the event of a transfer of Landlord’s interest in the Building, Landlord shall transfer the L-C, in whole or in part, to the transferee and thereupon Landlord shall, without any further agreement between the parties, be released by Tenant from all liability therefor, and it is agreed that the provisions hereof shall apply to every transfer or assignment of the whole or any portion of said L-C to a new landlord. In connection with any such transfer of the L-C by Landlord, Tenant shall, at Tenant’s sole cost and expense, execute and submit to the Bank such applications, documents and instruments as may be necessary to effectuate such transfer, and Tenant shall be responsible for paying the Bank’s transfer and processing fees in connection therewith.

20.5 L-C Not a Security Deposit. Landlord and Tenant (1) acknowledge and agree that in no event or circumstance shall the L-C or any renewal thereof or substitute therefor or any proceeds thereof be deemed to be or treated as a “security deposit” under any law applicable to security deposits in the commercial context, including, but not limited to, Section 1950.7 of the California Civil Code, as such Section now exists or as it may be hereafter amended or succeeded (the “Security Deposit Laws”), (2) acknowledge and agree that the L-C (including any renewal thereof or substitute therefor or any proceeds thereof) is not intended to serve as a security deposit, and the Security Deposit Laws shall have no applicability or relevancy thereto, and (3) waive any and all rights, duties and obligations that any such party may now, or in the future will, have relating to or arising from the Security Deposit Laws. Tenant hereby irrevocably waives and relinquishes the provisions of Section 1950.7 of the California Civil Code and any successor statute, and all other provisions of law, now or hereafter in effect, which (x) establish the time frame by which a landlord must refund a security deposit under a lease, and/or (y) provide that a landlord may claim from a security deposit only those sums reasonably necessary to remedy defaults in the payment of rent, to repair damage caused by a tenant or to clean the premises, it being agreed that Landlord may, in addition, claim those sums specified in this Article 20 and/or those sums reasonably necessary to (a) compensate Landlord for any loss or damage caused by Tenant’s breach of this Lease, including any damages Landlord suffers following termination of this Lease, and/or (b) compensate Landlord for any and all damages arising out of, or incurred in connection with, the termination of this Lease, including, without limitation, those specifically identified in Section 1951.2 of the California Civil Code.

20.6 Non-Interference By Tenant. Tenant agrees not to interfere in any way with any payment to Landlord of the proceeds of the L-C, either prior to or following a “draw” by Landlord of all or any portion of the L-C, regardless of whether any dispute exists between Tenant and Landlord as to Landlord’s right to draw down all or any portion of the L-C. No condition or term of this Lease shall be deemed to render the L-C conditional and thereby afford the Bank a justification for failing to honor a drawing upon such L-C in a timely manner. Tenant shall not request or instruct the Bank of any L-C to refrain from paying sight draft(s) drawn under such L-C.

20.7 Remedy for Improper Drafts. Tenant’s sole remedy in connection with the improper presentment or payment of sight drafts drawn under any L-C shall be the right to obtain from Landlord a refund of the amount of any sight draft(s) that were improperly presented or the proceeds of which were misapplied, together with interest at the Interest

 

 

 

- 36 -

GENESIS SSF - TWO TOWER PLACE

Arsenal Biosciences, Inc.

[Execution Original]

 


 

Rate and reasonable actual out-of-pocket attorneys’ fees, provided that at the time of such refund, Tenant increases the amount of such L-C to the amount (if any) then required under the applicable provisions of this Lease. Tenant acknowledges that the presentment of sight drafts drawn under any L-C, or the Bank’s payment of sight drafts drawn under such L-C, could not under any circumstances cause Tenant injury that could not be remedied by an award of money damages, and that the recovery of money damages would be an adequate remedy therefor. In the event Tenant shall be entitled to a refund as aforesaid and Landlord shall fail to make such payment within ten (10) business days after demand, Tenant shall have the right to deduct the amount thereof together with interest thereon at the Interest Rate from the next installment(s) of Base Rent.

20.8 Bank Placed Into Receivership.

20.8.1 Bank Placed Into Receivership. In the event the Bank is placed into receivership or conservatorship (any such event, a “Receivership”) by the Federal Deposit Insurance Corporation or any successor or similar entity (the “FDIC”) or in the event of a Bank Credit Threat then, effective as of the date such Receivership or Bank Credit Threat occurs, the L-C shall be deemed to not meet the requirements of this Article 20, and, within ten (10) days following Landlord’s notice to Tenant of such Receivership (the “LC Replacement Notice”), Tenant shall (i) replace the L-C with a substitute L-C from a different issuer reasonably acceptable to Landlord and that complies in all respects with the requirements of this Article 20 or (ii), in the event Tenant demonstrates to Landlord that Tenant is reasonably unable to obtain a substitute L-C from a different issuer reasonably acceptable to Landlord and that complies in all respects with the requirements of this Article 20 within the foregoing ten (10) day period, deposit with Landlord cash in the L-C Amount (the “Interim Cash Deposit”); provided, however, that, in the case of the foregoing sub-clause (ii), Tenant shall, within sixty (60) days after the LC Replacement Notice, replace the L-C with a substitute L-C from a different issuer reasonably acceptable to Landlord and that complies in all respects with the requirements of this Article 20, and upon Landlord’s receipt and acceptance of such replacement L-C, Landlord shall return to Tenant the Interim Cash Deposit, with no obligation on the part of Landlord to pay any interest thereon. If Tenant fails to comply in any respect with the requirements of this Section 20.8.1, then, notwithstanding anything in this Lease to the contrary, Landlord shall have the right to (a) declare Tenant in default of this Lease for which there shall be no notice or grace or cure periods being applicable thereto other than the aforesaid ten (10) day and sixty (60) day periods, (b) if applicable, retain such Interim Cash Deposit until such time as such default is cured by Tenant, which retention shall not constitute a waiver of any right or remedy available to Landlord under the terms of this Lease or at law, and (c) pursue any and all remedies available to it under this Lease and at law, including, without limitation, if Tenant has failed to provide the Interim Cash Deposit, treating any Receivership as a Bank Credit Threat and exercising Landlord’s remedies under Section 20.8.1 above, to the extent possible pursuant to then existing FDIC policy. Tenant shall be responsible for the payment of any and all costs incurred with the review of any replacement L-C (including without limitation Landlord’s reasonable attorneys’ fees), which replacement is required pursuant to this Section or is otherwise requested by Tenant.

20.8.2 Interim Cash Deposit. During any period that Landlord remains in possession of the Interim Cash Deposit (any such period, a “Deposit Period”), it is understood by the parties that such Interim Cash Deposit shall be held by Landlord as security for the full and faithful performance of Tenant’s covenants and obligations under this Lease. The Interim Cash Deposit shall not constitute an advance of any Rent, an advance payment of any other kind, nor a measure of Landlord’s damages in case of Tenant’s default. If, during any such Deposit Period, Tenant defaults with respect to any provisions of this Lease beyond any applicable notice and cure period expressly set forth in this Lease, including, but not limited to, the provisions relating to the payment of Rent, the removal of property and the repair of resultant damage, then Landlord may but shall not be required to, from time to time, without notice to Tenant and without waiving any other remedy available to Landlord, use the Interim Cash Deposit, or any portion of it, to the extent necessary to cure or remedy such default or failure or to compensate Landlord for all damages sustained by Landlord or which Landlord reasonably estimates that it will sustain resulting from Tenant’s default or failure to comply fully and timely with its obligations pursuant to this Lease, in each case beyond any applicable notice and cure period expressly set forth in this Lease. Tenant shall immediately pay to Landlord on demand any amount so applied in order to restore the Interim Cash Deposit to its original amount, and Tenant’s failure to immediately do so shall constitute a default under this Lease. In the event Landlord is in possession of the Interim Cash Deposit at the expiration or earlier termination of this Lease, and Tenant is in compliance with the covenants and obligations set forth in this Lease at the time of such expiration or termination, then Landlord shall return to Tenant the Interim Cash Deposit, less any amounts deducted by Landlord to reimburse Landlord for any sums to which Landlord is entitled under the terms of this Lease, within sixty (60) days following both such expiration or termination and Tenant’s vacation and surrender of the Premises. Landlord’s obligations with respect to the Interim Cash Deposit are those of a debtor and not a trustee. Landlord shall not be required to maintain the Interim Cash Deposit separate and apart from Landlord’s general or other funds, and Landlord may commingle the

 

 

 

- 37 -

GENESIS SSF - TWO TOWER PLACE

Arsenal Biosciences, Inc.

[Execution Original]

 


 

Interim Cash Deposit with any of Landlord’s general or other funds. Tenant shall not at any time be entitled to interest on the Interim Cash Deposit. In the event of a transfer of Landlord’s interest in the Building, Landlord shall transfer the Interim Cash Deposit, in whole or in part, to the transferee (including the Ground Lessor) and thereupon Landlord shall, without any further agreement between the parties, be released by Tenant from all liability therefor, and it is agreed that the provisions hereof shall apply to every transfer or assignment of the whole or any portion of said Interim Cash Deposit to a new landlord. Tenant hereby waives the provisions of Section 1950.7 of the California Civil Code, or any successor statute.

ARTICLE 21

COMPLIANCE WITH LAW

Tenant shall not do anything or suffer anything to be done in or about the Premises which will in any way conflict with any law, statute, ordinance or other governmental rule, regulation or requirement now in force or which may hereafter be enacted or promulgated. At its sole cost and expense, Tenant shall promptly comply with all such governmental measures, other than the making of structural changes or changes to the Building’s life safety system (collectively the “Excluded Changes”); provided, however, to the extent such Excluded Changes are required due to or triggered by Tenant’s improvements or alterations to and/or manner of use of the Premises, Landlord shall perform such work, at Tenant’s cost (which shall be paid by Tenant to Landlord within ten (10) days after Tenant’s receipt of invoice therefor from Landlord). In addition, Tenant shall fully comply with all present or future programs intended to manage parking, transportation or traffic in and around the Project, and in connection therewith, Tenant shall take responsible action for the transportation planning and management of all employees located at the Premises by working directly with Landlord, any governmental transportation management organization or any other transportation-related committees or entities. The judgment of any court of competent jurisdiction or the admission of Tenant in any judicial action, regardless of whether Landlord is a party thereto, that Tenant has violated any of said governmental measures, shall be conclusive of that fact as between Landlord and Tenant.

ARTICLE 22

ENTRY BY LANDLORD

Landlord reserves the right at all reasonable times and upon reasonable notice (no less than 24 hours’ notice to Tenant except in the event of an Emergency (as defined below)) to enter the Premises to: (i) inspect them; (ii) show the Premises to prospective purchasers, mortgagees or tenants, or to the ground lessors; (iii) to post notices of nonresponsibility; or (iv) alter, improve or repair the Premises or the Building if necessary to comply with current building codes or other applicable laws, or for structural alterations, repairs or improvements to the Building, or as Landlord may otherwise reasonably desire or deem necessary. Notwithstanding anything to the contrary contained in this Article 22, Landlord may enter the Premises at any time, without notice to Tenant, in emergency situations and/or to perform janitorial or other services required of Landlord pursuant to this Lease. Any such entries shall be without the abatement of Rent and shall include the right to take such reasonable steps as required to accomplish the stated purposes; provided, however, that Landlord shall use commercially reasonable efforts to minimize any disruption to Tenant’s business operations in the Premises during any such entry. Subject to Section 6.7 and Landlord’s indemnity obligations in this Lease, Tenant hereby waives any claims for damages or for any injuries or inconvenience to or interference with Tenant’s business operations. Tenant hereby waives any claims for damages or for any injuries or inconvenience to or interference with Tenant’s business, lost profits, any loss of occupancy or quiet enjoyment of the Premises, and any other loss occasioned thereby. For each of the above purposes, Landlord shall at all times have a key with which to unlock all the doors in the Premises, excluding Tenant’s vaults, safes and special security areas designated in advance by Tenant. In an emergency, Landlord shall have the right to enter without notice and use any means that Landlord may deem proper to open the doors in and to the Premises. Any entry into the Premises in the manner hereinbefore described shall not be deemed to be a forcible or unlawful entry into, or a detainer of, the Premises, or an actual or constructive eviction of Tenant from any portion of the Premises. For purposes of this Article 22, an “Emergency” shall mean an event threatening immediate and material danger to people located in the Building or immediate, material damage to the Building, or creates a realistic possibility of an immediate and material interference with, or immediate and material interruption of a material aspect of, Tenant’s business operations at the Premises.

 

 

 

- 38 -

GENESIS SSF - TWO TOWER PLACE

Arsenal Biosciences, Inc.

[Execution Original]

 


 

ARTICLE 23

PARKING

Throughout the Lease Term, Tenant shall have the right to use, on a “first-come, first-serve” basis, in common with other tenants of the Building and free of parking charges, the number of unreserved parking spaces set forth in Section 12 of the Summary and any EV parking spaces serving the Project. The unreserved parking spaces are located in the Parking Facility servicing the Building as shall be reasonably designated by Landlord from time to time for unreserved parking for the tenants of the Building. Tenant’s continued right to use the parking spaces is conditioned upon (i) Tenant abiding by (A) the Parking Rules and Regulations which are in effect on the date hereof, as set forth in the attached Exhibit D and all reasonable modifications and additions thereto which are prescribed from time to time for the orderly operation and use of the Parking Facility by Landlord, and/or Landlord’s Parking Operator (as defined below), and (B) all recorded covenants, conditions and restrictions affecting the Building, and (ii) upon Tenant’s cooperation in seeing that Tenant’s employees and visitors also comply with the Parking Rules and Regulations (and all such modifications and additions thereto, as the case may be), any such other rules and regulations and covenants, conditions and restrictions. So long as Tenant’s parking rights are not adversely affected (including Tenant being provided with the number of parking spaces to which Tenant is entitled to under this Lease), (a) Landlord (and/or any other owners of the Project) specifically reserve the right to change the size, configuration, design, layout, location and all other aspects of the Parking Facility (including without limitation, implementing paid visitor parking), and (b) Tenant acknowledges and agrees that Landlord may, without incurring any liability to Tenant and without any abatement of Rent under this Lease, from time to time, close-off or restrict access to the Parking Facility. Landlord may delegate its responsibilities hereunder to a parking operator (the “Parking Operator”) in which case the Parking Operator shall have all the rights of control attributed hereby to Landlord. Any parking tax or other charges imposed by governmental authorities in connection with the use of such parking shall be paid directly by Tenant or the parking users, or, if directly imposed against Landlord, Tenant shall reimburse Landlord for all such taxes and/or charges within ten (10) days after Landlord’s demand therefor. The parking rights provided to Tenant pursuant to this Article 23 are provided solely for use by Tenant’s own personnel and such rights may not be transferred, assigned, subleased or otherwise alienated by Tenant without Landlord’s prior approval, except in connection with an assignment of this Lease or sublease of the Premises made in accordance with Article 14 above. All visitor parking by Tenant’s visitors shall be subject to availability, as reasonably determined by Landlord (and/or the Parking Operator, as the case may be), parking in such visitor parking areas as may be designated by Landlord (and/or the Parking Operator from time to time, and payment by such visitors of the prevailing visitor parking rate (if any) charged by Landlord (and/or the Parking Operator) from time to time.

ARTICLE 24

MISCELLANEOUS PROVISIONS

24.1 Terms; Captions. The necessary grammatical changes required to make the provisions hereof apply either to corporations or partnerships or individuals, men or women, as the case may require, shall in all cases be assumed as though in each case fully expressed. The, captions of Articles and Sections are for convenience only and shall not be deemed to limit, construe, affect or alter the meaning of such Articles and Sections.

24.2 Binding Effect. Each of the provisions of this Lease shall extend to and shall, as the case may require, bind or inure to the benefit not only of Landlord and of Tenant, but also of their respective successors or assigns, provided this clause shall not permit any assignment by Tenant contrary to the provisions of Article 14 above.

24.3 No Waiver. No waiver of any provision of this Lease shall be implied by any failure of a party to enforce any remedy on account of the violation of such provision, even if such violation shall continue or be repeated subsequently, any waiver by a party of any provision of this Lease may only be in writing, and no express waiver shall affect any provision other than the one specified in such waiver and that one only for the time and in the manner specifically stated. No receipt of monies by Landlord from Tenant after the termination of this Lease shall in any way alter the length of the Lease Term or of Tenant’s right of possession hereunder or after the giving of any notice shall reinstate, continue or extend the Lease Term or affect any notice given Tenant prior to the receipt of such monies, it being agreed that after the service of notice or the commencement of a suit or after final judgment for possession of the Premises, Landlord may receive and collect any Rent due, and the payment of said Rent shall not waive or affect said notice, suit or judgment.

 

 

 

- 39 -

GENESIS SSF - TWO TOWER PLACE

Arsenal Biosciences, Inc.

[Execution Original]

 


 

24.4 Modification of Lease. If any current or prospective mortgagee or ground lessor for the Project requires modifications to this Lease, which modifications will not cause an increased cost or expense to Tenant or in any other way adversely (other than adversely in a non-material manner) change the rights and obligations of Tenant hereunder, then and in such event, Tenant agrees that this Lease may be so modified and agrees to execute whatever commercially reasonable documents are required therefor and deliver the same to Landlord within ten (10) days following the request therefor. If Landlord or any such current or prospective mortgagee or ground lessor require execution of a short form of Lease for recording, containing, among other customary provisions, the names of the parties, a description of the Premises and the Lease Term, Tenant shall execute such short form of Lease (provided that such form is in a commercially reasonable form) and to deliver the same to Landlord within ten (10) days following the request therefor.

24.5 Transfer of Landlord’s Interest. Landlord has the right to transfer all or any portion of its interest in the Project, the Building and/or in this Lease, and upon any such transfer, Landlord shall automatically be released from all liability under this Lease for matters arising after such transfer and Tenant shall look solely to such transferee for the performance of Landlord’s obligations hereunder after the date of transfer. The liability of any transferee of Landlord shall be limited to the interest of such transferee in the Project and such transferee shall be without personal liability under this Lease, and Tenant hereby expressly waives and releases such personal liability on behalf of itself and all persons claiming by, through or under Tenant. Landlord may also assign its interest in this Lease to a mortgage lender as additional security but such assignment shall not release Landlord from its obligations hereunder and Tenant shall continue to look to Landlord for the performance of its obligations hereunder. None of the Landlord, partners, shareholders, directors, officers, employees, members or agents shall be personally liable for Landlord’s obligations or any deficiency under this Lease, and service of process shall not be made against any shareholder, member, director, officer, employee or agent of Landlord or any of Landlord’s affiliates. No partner, shareholder, director, officer, employee, member or agent of Landlord or any of its affiliates shall be sued or named as a party in any suit or action, and service of process shall not be made against any partner or member of Landlord except as may be necessary to secure jurisdiction of the partnership, joint venture or limited liability company, as applicable. No partner, shareholder, director, officer, employee, member or agent of Landlord or any of its affiliates shall be required to answer or otherwise plead to any service of process, and no judgment shall be taken or writ of execution levied against any partner, shareholder, director, officer, employee, member or agent of Landlord or any of its affiliates.

24.6 Prohibition Against Recording. Except as provided in Section 24.4 of this Lease, neither this Lease, nor any memorandum, affidavit or other writing with respect thereto, shall be recorded by Tenant or by anyone acting through, under or on behalf of Tenant, and the recording thereof in violation of this provision shall make this Lease null and void at Landlord’s election.

24.7 Landlord’s Title; Air Rights. Landlord’s title is and always shall be paramount to the title of Tenant. Nothing herein contained shall empower Tenant to do any act which can, shall or may encumber the title of Landlord. No rights to any view or to light or air over any property, whether belonging to Landlord or any other person, are granted to Tenant by this Lease.

24.8 Tenant’s Signs. Tenant shall be entitled, at Landlord’s initial cost and expense, to one (1) identification sign on or near the entry doors of the Premises and for multi-tenant floors (if any) on which the Premises are located; provided, however, that any Landlord approved changes to such signage shall be at Tenant’s sole cost and expense. Such signs shall be installed by a signage contractor designated by Landlord. The location, quality, design, style, lighting and size of such signs shall be consistent with the Landlord’s Building standard signage program and shall be subject to Landlord’s prior written approval, in its reasonable discretion. Upon the expiration or earlier termination of this Lease, Tenant shall be responsible, at its sole cost and expense, for the removal of such signage and the repair of all damage to the Building caused by such removal. Except for such identification signs, Tenant may not install any signs on the exterior or roof of the Building, the Other Existing Building or the common areas of the Building or the Project. Any signs, window coverings, or blinds (even if the same are located behind the Landlord approved window coverings for the Building), or other items visible from the exterior of the Premises or Building are subject to the prior approval of Landlord, in its sole and absolute discretion.

24.9 Relationship of Parties. Nothing contained in this Lease shall be deemed or construed by the parties hereto or by any third party to create the relationship of principal and agent, partnership, joint venturer or any association between Landlord and Tenant, it being expressly understood and agreed that neither the method of computation of Rent nor any act of the parties hereto shall be deemed to create any relationship between Landlord and Tenant other than the relationship of landlord and tenant.

 

 

 

- 40 -

GENESIS SSF - TWO TOWER PLACE

Arsenal Biosciences, Inc.

[Execution Original]

 


 

24.10 Application of Payments. Landlord shall have the right to apply payments received from Tenant pursuant to this Lease, regardless of Tenant’s designation of such payments, to satisfy any obligations of Tenant hereunder, in such order and amounts as Landlord, in its sole discretion, may elect.

24.11 Time of Essence. Time is of the essence of this Lease and each of its provisions.

24.12 Partial Invalidity. If any term, provision or condition contained in this Lease shall, to any extent, be invalid or unenforceable, the remainder of this Lease, or the application of such term, provision or condition to persons or circumstances other than those with respect to which it is invalid or unenforceable, shall not be affected thereby, and each and every other term, provision and condition of this Lease shall be valid and enforceable to the fullest extent possible permitted by law.

24.13 No Warranty. In executing and delivering this Lease, Tenant has not relied on any representation, including, but not limited to, any representation whatsoever as to the amount of any item comprising Additional Rent or the amount of the Additional Rent in the aggregate or that Landlord is furnishing the same services to other tenants, at all, on the same level or on the same basis, or any warranty or any statement of Landlord which is not set forth herein or in one or more of the Exhibits attached hereto.

24.14 Landlord Exculpation. Notwithstanding anything in this Lease to the contrary, and notwithstanding any applicable law to the contrary, the liability of Landlord and the Landlord Parties under this Lease (including any successor landlord) and any recourse by Tenant against Landlord or the Landlord Parties shall be limited solely and exclusively to an amount which is equal to the ownership interest of Landlord in the Project (excluding any proceeds thereof), and neither Landlord, nor any of the Landlord Parties shall have any personal liability therefor, and Tenant hereby expressly waives and releases such personal liability on behalf of itself and all persons claiming by, through or under Tenant.

24.15 Entire Agreement. There are no oral agreements between the parties hereto affecting this Lease and this Lease supersedes and cancels any and all previous negotiations, arrangements, brochures, agreements and understandings, if any, between the parties hereto or displayed by Landlord to Tenant with respect to the subject matter thereof, and none thereof shall be used to interpret or construe this Lease. This Lease and any side letter or separate agreement executed by Landlord and Tenant in connection with this Lease and dated of even date herewith contain all of the terms, covenants, conditions, warranties and agreements of the parties relating in any manner to the rental, use and occupancy of the Premises, shall be considered to be the only agreement between the parties hereto and their representatives and agents, and none of the terms, covenants, conditions or provisions of this Lease can be modified, deleted or added to except in writing signed by the parties hereto. All negotiations and oral agreements acceptable to both parties have been merged into and are included herein. There are no other representations or warranties between the parties, and all reliance with respect to representations is based totally upon the representations and agreements contained in this Lease.

24.16 Right to Lease. Landlord reserves the absolute right to effect such other tenancies in the Building, the Other Existing Building and/or in any other building and/or any other portion of the Project as Landlord in the exercise of its sole business judgment shall determine to best promote the interests of the Project. Tenant does not rely on the fact, nor does Landlord represent, that any specific tenant or type or number of tenants shall, during the Lease Term, occupy any space in the Building, the Other Existing Building or Project.

24.17 Force Majeure. Any prevention, delay or stoppage due to strikes, lockouts, labor disputes, acts of God, inability to obtain services, labor, or materials or reasonable substitutes therefor, governmental actions, civil commotions, fire or other casualty, and other causes beyond the reasonable control of the party obligated to perform, except with respect to the obligations imposed with regard to Rent and other charges to be paid by Tenant pursuant to this Lease and except with respect to Tenant’s obligations under the Tenant Work Letter (collectively, the “Force Majeure”), notwithstanding anything to the contrary contained in this Lease, shall excuse the performance of such party for a period equal to any such prevention, delay or stoppage and, therefore, if this Lease specifies a time period for performance of an obligation of either party, that time period shall be extended by the period of any delay in such party’s performance caused by a Force Majeure.

24.18 Waiver of Redemption by Tenant. Tenant hereby waives for Tenant and for all those claiming under Tenant all right now or hereafter existing to redeem by order or judgment of any court or by any legal process or writ, Tenant’s right of occupancy of the Premises after any termination of this Lease.

 

 

 

- 41 -

GENESIS SSF - TWO TOWER PLACE

Arsenal Biosciences, Inc.

[Execution Original]

 


 

24.19 Notices. All notices, demands, statements or communications (collectively, “Notices”) given or required to be given by either party to the other hereunder shall be in writing, shall be (A) sent by United States certified or registered mail, postage prepaid, return receipt requested, (B) delivered by a nationally recognized overnight courier, or (C) delivered personally or sent by overnight courier services that provides for proof of delivery (i) to Tenant at the appropriate address set forth in Section 5 of the Summary, or to such other place as Tenant may from time to time designate in a Notice to Landlord; or (ii) to Landlord at the addresses set forth in Section 3 of the Summary, or to such other firm or to such other place as Landlord may from time to time designate in a Notice to Tenant. Any Notice will be deemed given on the date it is mailed as provided in this Section 24.19, the date overnight courier delivery is made or upon the date personal delivery is made or rejected. If Tenant is notified of the identity and address of Landlord’s mortgagee or ground lessor, Tenant shall give to such mortgagee or ground lessor written notice of any default by Landlord under the terms of this Lease by registered or certified mail, and such mortgagee or ground lessor shall be given a reasonable opportunity to cure such default prior to Tenant’s exercising any remedy available to Tenant.

24.20 Joint and Several. If there is more than one person or entity executing this Lease as Tenant, the obligations imposed upon such persons and entities under this Lease are and shall be joint and several.

24.21 Representations. Tenant guarantees, warrants and represents that (a) Tenant is duly incorporated or otherwise established or formed and validly existing under the laws of its state of incorporation, establishment or formation, (b) Tenant has and is duly qualified to do business in the state in which the Project is located, (c) Tenant has full corporate, partnership, trust, association or other appropriate power and authority to enter into this Lease and to perform all Tenant’s obligations hereunder, (d) each person (and all of the persons if more than one signs) signing this Lease on behalf of Tenant is duly and validly authorized to do so and (e) neither (i) the execution, delivery or performance of this Lease nor (ii) the consummation of the transactions contemplated hereby will violate or conflict with any provision of documents or instruments under which Tenant is constituted or to which Tenant is a party. In addition, Tenant guarantees, warrants and represents that none of (x) it, (y) its affiliates or partners nor (z) to the best of its knowledge, its members, shareholders or other equity owners or any of their respective employees, officers, directors, representatives or agents is a person or entity with whom U.S. persons or entities are restricted from doing business under regulations of the Office of Foreign Asset Control (“OFAC”) of the Department of the Treasury (including those named on OFAC’s Specially Designated and Blocked Persons List) or under any statute, executive order (including the September 24, 2001, Executive Order Blocking Property and Prohibiting Transactions with Persons Who Commit, Threaten to Commit, or Support Terrorism) or other similar governmental action.

24.22 Jury Trial; Attorneys’ Fees. IF EITHER PARTY COMMENCES LITIGATION AGAINST THE OTHER FOR THE SPECIFIC PERFORMANCE OF THIS LEASE, FOR DAMAGES FOR THE BREACH HEREOF OR OTHERWISE FOR ENFORCEMENT OF ANY REMEDY HEREUNDER, THE PARTIES HERETO AGREE TO AND HEREBY DO WAIVE ANY RIGHT TO A TRIAL BY JURY. In the event of any such commencement of litigation, the prevailing party shall be entitled to recover from the other party such costs and reasonable attorneys’ fees as may have been incurred, including any and all costs incurred in enforcing, perfecting and executing such judgment.

24.23 Governing Law. This Lease shall be construed and enforced in accordance with the laws of the state in which the Project is located.

24.24 Submission of Lease. Submission of this instrument for examination or signature by Tenant does not constitute a reservation of or an option for lease, and it is not effective as a lease or otherwise until execution and delivery by both Landlord and Tenant.

24.25 Brokers. Landlord and Tenant each hereby represents and warrants to the other party that it (i) has had no dealings with any real estate broker or agent in connection with the negotiation of this Lease, excepting only the real estate brokers or agents specified in Section 11 of the Summary (collectively, the “Brokers”), whose commissions shall be paid by Landlord pursuant to separate agreements, and (ii) knows of no other real estate broker or agent who is entitled to a commission in connection with this Lease. Each party agrees to indemnify and defend the other party against and hold the other party harmless from any and all claims, demands, losses, liabilities, lawsuits, judgments, and costs and expenses (including without limitation reasonable attorneys’ fees) with respect to any leasing commission or equivalent compensation alleged to be owing on account of the indemnifying party’s dealings with any real estate broker or agent in connection with this Lease other than the Brokers.

 

 

 

- 42 -

GENESIS SSF - TWO TOWER PLACE

Arsenal Biosciences, Inc.

[Execution Original]

 


 

24.26 Independent Covenants. This Lease shall be construed as though the covenants herein between Landlord and Tenant are independent and not dependent and Tenant hereby expressly waives the benefit of any statute to the contrary and agrees that if Landlord fails to perform its obligations set forth herein, Tenant shall not be entitled to make any repairs or perform any acts hereunder at Landlord’s expense or to any setoff of the Rent or other amounts owing hereunder against Landlord; provided, however, that the foregoing shall in no way impair the right of Tenant to commence a separate action against Landlord for any violation by Landlord of the provisions hereof so long as notice is first given to Landlord and any holder of a mortgage or deed of trust covering the Building, Project or any portion thereof, of whose address Tenant has theretofore been notified, and an opportunity is granted to Landlord and such holder to correct such violations as provided above.

24.27 Building Name and Signage. Landlord shall have the right at any time to change the name(s) of the Building, the Other Existing Building and Project and to install, affix and maintain any and all signs on the exterior and on the interior of the Building, the Other Existing Building and any portion of the Project as Landlord may, in Landlord’s sole discretion, desire. Tenant shall not use the names of the Building, the Other Existing Building or Project or use pictures or illustrations of the Building, the Other Existing Building or Project in advertising or other publicity, without the prior written consent of Landlord.

24.28 Building Directory. If the Building contains a tenant name directory, Landlord shall include Tenant’s name and location in the Building on one (1) line on the Building directory. The initial cost of such directory signage shall be paid for by Landlord, but any subsequent charges thereto shall be at Tenant’s cost.

24.29 Confidentiality. Tenant acknowledges that the content of this Lease and any related documents are confidential information. Tenant shall keep such confidential information strictly confidential and shall not disclose such confidential information to any person or entity other than Tenant’s financial, legal, construction, space planning consultants, lenders and investors, or in connection with effectuating Transfers to subtenants or assignees, or as required to comply with applicable local, state or federal laws, including the rules and regulations of the Securities and Exchange Commission or as necessary to enforce the provisions of this Lease.

24.30 Landlord’s Construction. Except as specifically set forth in this Lease or in the Tenant Work Letter: (i) Landlord has no obligation to alter, remodel, improve, renovate, repair or decorate the Premises, the Building, the Other Existing Building, the Project, or any part thereof; and (ii) no representations or warranties respecting the condition of the Premises, the Building, the Other Existing Building or the Project have been made by Landlord to Tenant. Tenant acknowledges that prior to and during the Lease Term, Landlord (and/or any common area association) will be completing construction and/or demolition work pertaining to various portions of the Building, the Other Existing Building, the Premises, and/or the Project, including without limitation, landscaping and tenant improvements for premises for other tenants and, at Landlord’s sole election, such other buildings, improvements, landscaping and other facilities within or as part of the Project as Landlord (and/or such common area association) shall from time to time desire (collectively, the “Construction”); provided that, notwithstanding anything to the contrary in this Lease, such Construction does not cause any Adverse Condition. In connection with such Construction, Landlord may, among other things, erect scaffolding or other necessary structures in the Building and/or the Other Existing Building, limit or eliminate access to portions of the Project, including portions of the common areas, or perform work in the Building, the Other Existing Building and/or the Project, which work may create noise, dust or leave debris in the Building, the Other Existing Building and/or the Project. Subject to Section 6.7 above, and Landlord’s indemnity obligations in this Lease, Tenant hereby agrees that such Construction and Landlord’s actions in connection with such Construction shall in no way constitute a constructive eviction of Tenant nor entitle Tenant to any abatement of Rent. Landlord reserves full control over the Project to the extent not inconsistent with Tenant’s enjoyment the same as provided in this Lease. This reservation includes Landlord’s right to subdivide the Project and convert portions of the Project to condominium units, change the size of the Project by selling all or a portion of the Project or adding real property and any improvements thereon to the Project; grant easements and licenses to third parties and maintain or establish ownership of the Buildings separate from the fee title to the Project; provided, however, in each instance that it has no adverse effect on Tenant or Tenant’s use of the Premises, parking or any other right sunder this Lease.

24.31 Intentionally Omitted.

 

 

 

- 43 -

GENESIS SSF - TWO TOWER PLACE

Arsenal Biosciences, Inc.

[Execution Original]

 


 

24.32 Net Lease. This Lease shall be deemed and construed to be an “absolute net lease” and, except as herein expressly provided, Landlord shall receive all payments required to be made by Tenant free from all charges, assessments, impositions, expenses and deductions of any and every kind or nature whatsoever. Landlord shall not be required to furnish any services or facilities or to make any repairs, replacements or alterations of any kind in or on the Premises except as specifically provided herein.

24.33 Access Control. Landlord shall provide certain access control services for the Building on a 24 hours a day, 7 days a week and 365 days a year basis. Tenant recognizes that any access control services provided by Landlord at the Building is for the protection of Landlord’s property and under no circumstances shall Landlord be responsible for, and Tenant waives any rights with respect to, providing security or other protection for Tenant or its employees, invitees or property in or about the Premises or the Project. Except to the extent caused by the gross negligence or willful misconduct of Landlord, Landlord shall not be liable to Tenant, and Tenant hereby waives any claim against Landlord, for, and expressly assumes the risk of (i) any unauthorized or criminal entry of third parties into the Premises or the Building, (ii) any damage to persons in or about the Premises or the Project, or (iii) any loss of property in and about the Premises or the Building, by or from any unauthorized or criminal acts of third parties, regardless of any action, inaction, failure, breakdown, malfunction and/or insufficiency of the security services provided by Landlord or any actual or alleged passive or active negligence of Landlord.

24.34 Performing Arts Center. The Project includes an approximately 235-seat performing arts center (the “PAC”), located in the adjacent building at One Tower Place. Booking of the PAC shall be subject to availability on a shared basis with all other tenants in the Project. Tenant shall follow those procedures promulgated by Landlord from time to time to schedule use of the PAC. Tenant shall have the right to use the PAC so long as Tenant has scheduled such use of the PAC in advance in accordance with Landlord procedures.

24.35 Fitness Center. There is a fitness center in the Building located on the second floor (the “Fitness Center”) for the non-exclusive use by Landlord, Tenant and other tenants of the Building, subject to the reasonable non-discriminatory rules adopted from time to time by Landlord for such usage. The costs of operating and maintaining the Fitness Center shall be included in Operating Expenses. Use of the Fitness Center by Tenant shall be at the sole risk of Tenant and Landlord assumes no liability or risk associated with Tenant’s use of the Fitness Center. Tenant acknowledges that use of the Fitness Center is unsupervised and unattended. Tenant acknowledges that each officer or employee of Tenant who desires to use the Fitness Center will be required to sign and deliver to Landlord, a commercially reasonable release of liability agreement in such form as is customary in the industry and as may be revised by Landlord from time to time. Landlord shall be permitted to charge any individual user of the Fitness Center a fee for the cost of such user’s access card and expenses relating to recording keeping for the individual user. Tenant shall be responsible for payment of such access card for each of Tenant’s employees who requests access to the Fitness Center. The current fee for such access card is $30.00 per user. Landlord shall have the right to hereafter increase such fee to the extent necessary to reimburse Landlord for increases in the cost to Landlord to supply and administer the access cards. The administrative fee payable by Tenant to Landlord for each of Tenant’s officers and employees shall be deemed Additional Rent hereunder. Landlord shall have the right to relocate the fitness center in the Project.

 

 

 

- 44 -

GENESIS SSF - TWO TOWER PLACE

Arsenal Biosciences, Inc.

[Execution Original]

 


 

24.36 Sustainability.

24.36.1 Sustainable Building Operations.

(a) This Building is or may become in the future certified under the Green Building Initiative’s Green GlobesTM for Continual Improvement of Existing Buildings (Green GlobesTM-CIEB), the U.S. Green Building Council’s Leadership in Energy and Environmental Design (LEED) rating system, or operated pursuant to Landlord’s sustainable building practices. Landlord’s sustainability practices address whole-building operations and maintenance issues including chemical use; indoor air quality; energy efficiency; water efficiency; recycling programs; exterior maintenance programs; and systems upgrades to meet green building energy, water, Indoor Air Quality, and lighting performance standards. Notwithstanding the foregoing, Tenant shall not be required to comply with any Green Building Initiatives or other rating systems as set forth above (or in Section 23.34.1(b) below) until the Building is certified as such, and Tenant shall only be required to comply with such Green Building Initiatives with respect to any upgrades, alterations or improvements made by Tenant after the Building is certified as set forth above. In no event shall Tenant be required to make changes, improvements and/or other repairs or replacements to the Premises in order to make the Premises compliant with the above stated initiatives and rating systems.

(b) Tenant shall use proven energy and carbon reduction measures, including energy efficient bulbs in task lighting; use of lighting controls; daylighting measures to avoid over-lighting interior spaces; closing shades on the south side of the Building to avoid over heating the space; turning off lights and equipment at the end of the work day; and purchasing, with respect to any new equipment that Tenant purchases for the Premises, ENERGY STAR® qualified equipment including but not limited to lighting, office equipment, commercial and residential quality kitchen equipment, vending and ice machines; purchasing products certified by the U.S. EPA’s Water Sense® program. Tenant shall not be required to replace any existing equipment used by Tenant as of the Lease Commencement Date which Tenant intends to install in the Premises in order to comply with this provision of this Section 24.34(b).

24.36.2 Recycling and Waste Management. Tenant covenants and agrees, at its sole cost and expense: (a) to comply with all present and future laws, orders and regulations of the Federal, State, county, municipal or other governing authorities, departments, commissions, agencies and boards regarding the collection, sorting, separation, and recycling of garbage, trash, rubbish and other refuse (collectively, “trash”); (b) to comply with Landlord’s non-discriminatory commercially reasonable recycling policy as part of Landlord’s sustainability practices where it may be more stringent than applicable law; (c) to sort and separate its trash and recycling into such categories as are provided by law or Landlord’s non-discriminatory commercially reasonable sustainability practices; (d) that each separately sorted category of trash and recycling shall be placed in separate receptacles as directed by Landlord; (e) that Landlord reserves the right to refuse to collect or accept from Tenant any waste that is not separated and sorted as required by law, and to require Tenant to arrange for such collection of Tenant’s sole cost and expense, utilizing a contractor satisfactory to Landlord; and (f) that Tenant shall pay all costs, expenses, fines, penalties or damages that may be imposed on Landlord or Tenant by any governmental authority by reason of Tenant’s failure to comply with the provisions of this Section.

24.37 Transportation Management.

24.37.1 Tenant shall fully comply with all present or future mandatory government programs intended to manage parking, transportation or traffic in and around the Building. Such programs may include, without limitation: (i) restrictions on the number of peak-hour vehicle trips generated by Tenant; (ii) increased vehicle occupancy; (iii) implementation of an in-house ridesharing program and an employee transportation coordinator; (iv) working with employees and any Building or area-wide ridesharing program manager; (v) instituting employer-sponsored incentives (financial or in-kind) to encourage employees to rideshare; and (vi) utilizing flexible work shifts for employees.

 

 

 

- 45 -

GENESIS SSF - TWO TOWER PLACE

Arsenal Biosciences, Inc.

[Execution Original]

 


 

24.37.2 Pursuant to the Conditions of Approval for this project a draft Transportation Demand Management Plan was adopted by the South San Francisco City Council in October 2006. A final Transportation Demand Management Plan is under development that satisfies the requirement of the City of South San Francisco’s transportation demand management goals and also the San Mateo County Transportation Demand Management guidelines. The plan is to be provided to tenants of the Building to participate in a program designed to coordinate commute alternatives. During the term of the Tenant’s tenancy, Landlord agrees to provide transportation brokerage and commute assistance services, as part of Operating Expenses to assist the Tenant in meeting the transportation needs of its employees. Tenant agrees to cooperate with and assist the Landlord’s transportation management coordinator (the “Coordinator”), through designation of a responsible employee, to distribute to Tenant’s employees written materials promoting and encouraging the use of public transit and/or ridesharing, and distribute and return to the Coordinator transportation survey questionnaire forms. Tenant may agree, at its option, to participate in other activities required of Landlord and/or ridesharing by employees in the Building.

24.38 Distributed Antennae System. Commencing on the date of the full execution and delivery of this Lease by Landlord and Tenant (or as soon thereafter as reasonably possible), Landlord shall, at its sole cost and not an Operating Expense, commence to install a distributed antennae system (“DAS”) throughout the Parking Facility serving the Building, the specifications of which are attached hereto as Exhibit I; such specifications are subject to reasonable changes in Landlord’s reasonable discretion to accommodate the Parking Facility and/or the requirements of applicable laws. Subject to Force Majeure events, Landlord shall install the DAS no later than the Lease Commencement Date.

[Remainder of Page Intentionally Left Blank; Signatures on Next Page]

 

 

 

- 46 -

GENESIS SSF - TWO TOWER PLACE

Arsenal Biosciences, Inc.

[Execution Original]

 


 

IN WITNESS WHEREOF, Landlord and Tenant have caused this Lease to be executed the day and date first above written.

 

“Landlord”:

 

AP3-SF3 CT NORTH, LLC,

a Delaware limited liability company

 

 

 

By:

 

/s/ W. Neil Fox, III

Name:

 

W. Neil Fox, III

Its:

 

Chief Executive Officer

 

 

 

 

“Tenant”:

 

ARSENAL BIOSCIENCES, INC.,

a Delaware corporation

 

By:

 

/s/ Ken Drazan

 

 

Name:

Ken Drazan

 

 

Its:

Chief Executive Officer

 

 

 

 

 

By:

 

 

 

 

 

Name:

 

 

 

Its:

 

 

*** If Tenant is a CORPORATION, the authorized officers must sign on behalf of the corporation and indicate the capacity in which they are signing. The Lease must be executed by the president or vice president and the secretary or assistant secretary, unless the bylaws or a resolution of the board of directors shall otherwise provide, in which event, the bylaws or a certified copy of the resolution, as the case may be, must be attached to this Lease.

 

 

 

- 47 -

GENESIS SSF - TWO TOWER PLACE

Arsenal Biosciences, Inc.

[Execution Original]

 


 

EXHIBIT A

OUTLINE OF FLOOR PLAN OF PREMISES

 

img33231229_0.jpg 

 

 

EXHIBIT A

- 1 -

GENESIS SSF - TWO TOWER PLACE

Arsenal Biosciences, Inc.

[Execution Original]

 


 

img33231229_1.jpg 

 

 

EXHIBIT A

- 2 -

GENESIS SSF - TWO TOWER PLACE

Arsenal Biosciences, Inc.

[Execution Original]

 


 

EXHIBIT A-1

SITE PLAN OF PROJECT

 

img33231229_2.jpg 

 

 

EXHIBIT A - 1

- 1 -

GENESIS SSF - TWO TOWER PLACE

Arsenal Biosciences, Inc.

[Execution Original]

 


 

EXHIBIT B

TENANT WORK LETTER

This Tenant Work Letter (“Tenant Work Letter”) sets forth the terms and conditions relating to the construction of improvements for the Premises. All references in this Tenant Work Letter to the “Lease” shall mean the relevant portions of the Lease to which this Tenant Work Letter is attached as Exhibit B.

SECTION 1

BASE, SHELL AND CORE

Landlord has previously constructed the base, shell and core (i) of the Premises and (ii) of the floor(s) of the Building on which the Premises are located (collectively, the “Base, Shell and Core”), and, except as expressly set forth in the Lease, Tenant shall accept the Base, Shell and Core in its current “As-Is” condition existing as of the date of the Lease and the Lease Commencement Date (except for matters that could not be reasonably discovered by Tenant during its inspection thereof prior to taking possession). A description of the Base, Shell and Core is attached hereto as Schedule 2; provided, however, that Landlord and Tenant agree that each floor of the Premises shall contain one (1) 75 kVA transformer described in the electrical section of Schedule 2. Except for the Allowance set forth below, Landlord shall not be obligated to make or pay for any alterations or improvements to the Premises, the Building or the Project.

SECTION 2

CONSTRUCTION DRAWINGS FOR THE PREMISES

Prior to the execution of the Lease, Landlord and Tenant have approved a detailed space plan for the construction of certain improvements in the Premises, which space plan has been prepared by McFarlane Architects, dated August 13, 2019 (the “Final Space Plan”), which Final Space Plan is attached hereto as Schedule 1. Based upon and in conformity with the Final Space Plan, Landlord shall cause its architect and engineers to prepare and deliver to Tenant, for Tenant’s approval, detailed specifications and engineered working drawings for the tenant improvements shown on the Final Space Plan (the “Working Drawings”). The Working Drawings shall incorporate modifications to the Final Space Plan as necessary to comply with the floor load and other structural and system requirements of the Building. To the extent that the finishes and specifications are not completely set forth in the Final Space Plan for any portion of the tenant improvements depicted thereon, the actual specifications and finish work shall be in accordance with the specifications for the Building’s standard tenant improvement items, as set forth on Schedule 3 and otherwise determined by Landlord. Within three (3) business days after Tenant’s receipt of the Working Drawings, Tenant shall approve or disapprove the same, which approval shall not be unreasonably withheld; provided, however, that Tenant may only disapprove the Working Drawings to the extent such Working Drawings are inconsistent with the Final Space Plan and only if Tenant delivers to Landlord, within such three (3) business day period, specific changes proposed by Tenant which are consistent with the Final Space Plan and do not constitute changes which would result in any of the circumstances described in items (i) through (iv) hereinbelow. If any such revisions are timely and properly proposed by Tenant, Landlord shall cause its architect and engineers to revise the Working Drawings to incorporate such revisions and submit the same for Tenant’s approval in accordance with the foregoing provisions, and the parties shall follow the foregoing procedures for approving the Working Drawings until the same are finally approved by Landlord and Tenant. Upon Landlord’s and Tenant’s approval of the Working Drawings, the same shall be known as the “Approved Working Drawings”. The tenant improvements shown on the Approved Working Drawings shall be referred to herein as the “Tenant Improvements”. Once the Approved Working Drawings have been approved by Landlord and Tenant, Tenant shall make no changes, change orders or modifications thereto without the prior written consent of Landlord, which consent may be withheld in Landlord’s sole discretion if such change or modification would: (i) delay the Substantial Completion of the Premises (as defined below); (ii) increase the costs of the design, permitting or construction of the Tenant Improvements above the costs of the design, permitting and construction of those tenant improvements depicted in the Final Space Plan; (iii) be of a quality lower than the quality of the standard tenant improvement items for the Building; and/or (iv) require any changes to the Base, Shell and Core or structural improvements or systems of the Building. The Final Space Plan, Working Drawings and Approved Working Drawings shall be collectively referred to herein as, the “Construction Drawings”. During the design of the Construction Drawings, Tenant shall have the right to approve the budget for the Tenant Improvements as such budget is formulated and finalized during such design process.

 

 

EXHIBIT B

- 1 -

GENESIS SSF - TWO TOWER PLACE

Arsenal Biosciences, Inc.

[Execution Original]

 


 

SECTION 3

CONSTRUCTION AND COSTS OF TENANT IMPROVEMENTS

Landlord shall cause a general contractor designated by Landlord (the “Contractor”) to (i) obtain all applicable building permits for construction of the Tenant Improvements (collectively, the “Permits”), and (ii) construct the Tenant Improvements as depicted on the Approved Working Drawings, in compliance with such Permits and all applicable laws in effect at the time of construction, and in good workmanlike manner. Landlord shall pay for the costs of the design, permitting and construction of the Tenant Improvements in an amount up to, but not exceeding, Thirty-Two Dollars ($32.00) per rentable square foot of the Premises (i.e., up to One Million Two Hundred Seventy-Nine Thousand One Hundred Thirty-Six Dollars ($1,279,136.00), based on 39,973 rentable square feet of the Premises) (the “Allowance”). The cost of the design, permitting and construction of the Tenant Improvements shall include Landlord’s construction supervision and management fee in an amount equal to the product of (i) three and a half percent (3.5%) and (ii) the amount equal to the sum of the Allowance and the Over-Allowance Amount (as such term is defined below). Tenant shall pay for all costs of the design, permitting and construction of the Tenant Improvements in excess of the Allowance (“Over-Allowance Amount”), which payments shall be made to Landlord in cash in installments within five (5) days after Tenant’s receipt of an invoice thereof from Landlord (which may be made no more often than monthly) as Landlord incurs such expenses in an amount equal to a fraction of such expenses, the numerator of which is the Over-Allowance Amount and the denominator of which is the sum of the Allowance and the Over-Allowance Amount. If Tenant requests any changes, change orders or modifications to the Approved Working Drawings (which Landlord approves pursuant to Section 1 above) which increase the costs of the design, permitting and construction of the Tenant Improvements, Tenant shall pay such increased cost to Landlord within five (5) days after Tenant’s receipt of an invoice thereof from Landlord and shall be payable in the same manner as any Over-Allowance Amount is paid. In no event shall Landlord be obligated to pay for, nor shall the Tenant Improvement Allowance be used to pay for, the costs of any of Tenant’s furniture, computer systems, telephone systems, equipment or other personal property which may be depicted on the Construction Drawings; the costs of such items shall be paid for by Tenant from Tenant’s own funds. Tenant shall not be entitled to receive in cash or as a credit against any rental or otherwise, any portion of the Allowance not used to pay for the costs of the design, permitting and construction of the Tenant Improvements and/or not used by Landlord or on or before the date which is two hundred seventy (270) days after the Lease Commencement Date.

SECTION 4

READY FOR OCCUPANCY;

SUBSTANTIAL COMPLETION OF THE TENANT IMPROVEMENTS

4.1 Ready for Occupancy; Substantial Completion. For purposes of the Lease, including for purposes of determining the Lease Commencement Date (as set forth in Section 7.2 of the Summary): (i) the Premises shall be “Ready for Occupancy” upon Substantial Completion of the Premises; and (ii) “Substantial Completion of the Premises” shall occur upon the completion of construction of the Tenant Improvements in the Premises pursuant to the Approved Working Drawings, (a) such that Landlord has obtained for Tenant a (temporary) certificate of occupancy (or its functional equivalent) and (b) with the exception of any Punch List Items (as defined below) and any tenant fixtures, work-stations, built-in furniture, or equipment to be installed by Tenant or under the supervision of the Contractor. “Punch List Items” means only commercially reasonable punchlist items, the non-completion of which does not unreasonably interfere with Tenant’s use or occupancy of the Premises, and which punchlist items shall be corrected promptly by Landlord (within thirty (30) days following Landlord’s receipt of written notice thereof from Tenant) without unreasonable interference with Tenant’s use of or access to or from the Premises.

4.2 Delay of the Substantial Completion of the Premises. If there shall be a delay or there are delays in the Substantial Completion of the Premises as a result of any of the following, provided that in each case Tenant received written notice from Landlord of such delay as soon as reasonably possible after Landlord is aware of the same (collectively, “Tenant Delays”):

4.2.1 Tenant’s failure to timely approve the Working Drawings or any other matter requiring Tenant’s approval;

4.2.2 a breach by Tenant of the terms of this Tenant Work Letter or the Lease;

 

 

EXHIBIT B

- 2 -

GENESIS SSF - TWO TOWER PLACE

Arsenal Biosciences, Inc.

[Execution Original]

 


 

4.2.3 Tenant’s request for changes in any of the Construction Drawings;

4.2.4 Tenant’s requirement for materials, components, finishes or improvements which are not available in a commercially reasonable time given the estimated date of Substantial Completion of the Premises, as set forth in the Lease, or which are different from, or not included in, Landlord’s standard tenant improvement items for the Building;

4.2.5 changes to the Base, Shell and Core, structural components or structural components or systems of the Building required by Tenant’s changes approved by Landlord pursuant to the penultimate sentence of Section 2 above; or

4.2.6 any other acts or omissions of Tenant, or its agents, or employees;

then, notwithstanding anything to the contrary set forth in the Lease and regardless of the actual date of Substantial Completion of the Premises, the Lease Commencement Date (as set forth in Section 7.2 of the Summary) shall be deemed to be the date the Lease Commencement Date would have occurred if no Tenant Delay or Delays, as set forth above, had occurred.

SECTION 5

MISCELLANEOUS

5.1 Tenant’s Entry Into the Premises Prior to Substantial Completion. Subject to the terms hereof and provided that Tenant and its agents do not interfere with the Contractor’s work in the Project, the Building and the Premises, at Landlord’s reasonable discretion, Landlord shall use good faith efforts to (i) allow Tenant access to the Premises at least thirty (30) days prior to the Substantial Completion of the Premises for the purpose of Tenant installing equipment and/or fixtures (including Tenant’s data and telephone equipment) in the Premises and (ii) allow Tenant to occupy the office portion of the seventh (7th) floor portion of the Premises on or before December 1, 2019. Prior to Tenant’s entry into the Premises as permitted by the terms of this Section 5.1, Tenant shall submit a schedule to Landlord and the Contractor, for their approval, which schedule shall detail the timing and purpose of Tenant’s entry. In connection with any such entry, Tenant acknowledges and agrees that Tenant’s employees, agents, contractors, consultants, workmen, mechanics, suppliers and invitees shall fully cooperate, work in harmony and not, in any manner, interfere with Landlord or Landlord’s contractors (including the Contractor), agents or representatives in performing work in the Project, the Building and the Premises, or interfere with the general operation of the Building and/or the Project. If at any time any such person representing Tenant shall not be cooperative or shall otherwise cause or threaten to cause any such disharmony or interference, including, without limitation, labor disharmony, and Tenant fails to immediately institute and maintain corrective actions as directed by Landlord, then Landlord may revoke Tenant’s entry rights upon twenty-four (24) hours’ prior written notice to Tenant. Tenant acknowledges and agrees that any such entry into and occupancy of the Premises or any portion thereof by Tenant or any person or entity working for or on behalf of Tenant shall be at Tenant’s sole cost and expense and shall be deemed to be subject to all of the terms, covenants, conditions and provisions of the Lease, excluding only the covenant to pay Rent (until the occurrence of the Lease Commencement Date). Such requirements shall include, without limitation, that Tenant and any other parties allowed access to the Premises shall provide Landlord with evidence of insurance as required by Landlord. Tenant further acknowledges and agrees that Landlord shall not be liable (except to the extent of gross negligence or intentional conduct) for any injury, loss or damage which may occur to any of Tenant’s work made in or about the Premises in connection with such entry or to any property placed therein prior to the Lease Commencement Date, the same being at Tenant’s sole risk and liability. Tenant shall be liable to Landlord for any damage to any portion of the Premises, including the Tenant Improvement work, caused by Tenant or any of Tenant’s employees, agents, contractors, consultants, workmen, mechanics, suppliers and invitees. If Tenant’s breach of this Section 5.1 causes extra costs to be incurred by Landlord or requires the use of any Building services, Tenant shall promptly reimburse Landlord for such extra costs and/or shall pay Landlord for such Building services at Landlord’s standard rates then in effect. In addition, Tenant shall hold Landlord harmless from and indemnify, protect and defend Landlord against any loss or damage to the Premises or Project and against injury to any persons caused by Tenant’s breach of this Section 5.1.

5.2 Tenant’s Representative. Tenant has designated Ken Drazan as its sole representative with respect to the matters set forth in this Tenant Work Letter, who shall have full authority and responsibility to act on behalf of the Tenant as required in this Tenant Work Letter.

 

 

EXHIBIT B

- 3 -

GENESIS SSF - TWO TOWER PLACE

Arsenal Biosciences, Inc.

[Execution Original]

 


 

5.3 Landlord’s Representative. Landlord has designated John Evans as its sole representative with respect to the matters set forth in this Tenant Work Letter, who, until further notice to Tenant, shall have full authority and responsibility to act on behalf of the Landlord as required in this Tenant Work Letter.

5.4 Time of the Essence in This Tenant Work Letter. Unless otherwise indicated, all references herein to a “number of days” shall mean and refer to calendar days. In all instances where Tenant is required to approve or deliver an item, if no written notice of approval is given or the item is not delivered within the stated time period, at Landlord’s sole option, at the end of said period the item shall automatically be deemed approved or delivered by Tenant and the next succeeding time period shall commence.

5.5 Tenant’s Lease Default. Notwithstanding any provision to the contrary contained in the Lease, if an event of default by Tenant as described in Section 19.1 of the Lease or any default by Tenant under this Tenant Work Letter (following prior written notice from Landlord and a reasonable opportunity for Tenant to cure such default) has occurred at any time on or before the Substantial Completion of the Premises, then (i) in addition to all other rights and remedies granted to Landlord pursuant to the Lease, at law or in equity, Landlord shall have the right to withhold payment of all or any portion of the Allowance and/or Landlord may cause the Contractor to cease the construction of the Premises (in which case, Tenant shall be responsible for any delay in the Substantial Completion of the Premises caused by such work stoppage as a Tenant Delay as set forth in Section 5.2 above), and (ii) all other obligations of Landlord under the terms of this Tenant Work Letter shall be forgiven until such time as such default is cured pursuant to the terms of the Lease (in which case, Tenant shall be responsible for any delay in Substantial Completion of the Premises caused by such inaction by Landlord as a Tenant Delay). In addition, if the Lease is terminated prior to the Lease Commencement Date, for any reason due to a default by Tenant as described in Section 19.1 of the Lease or under this Tenant Work Letter, in addition to any other remedies available to Landlord under the Lease, at law and/or in equity, Tenant shall pay to Landlord, as Additional Rent under the Lease, within five (5) business days after Tenant’s receipt of a statement therefor, any and all costs incurred by Landlord (including any portion of the Allowance disbursed by Landlord) and not reimbursed or otherwise paid by Tenant through the date of such termination in connection with the Tenant Improvements to the extent planned, installed and/or constructed as of such date of termination, including, but not limited to, any costs related to the removal of all or any portion of the Tenant Improvements and restoration costs related thereto.

 

 

EXHIBIT B

- 4 -

GENESIS SSF - TWO TOWER PLACE

Arsenal Biosciences, Inc.

[Execution Original]

 


 

SCHEDULE 1

FINAL SPACE PLAN

img33231229_3.jpg 

 

 

 

GENESIS SSF - TWO TOWER PLACE

 

SCHEDULE 2

Arsenal Biosciences, Inc.

 

-1-

[Execution Original]

 


 

img33231229_4.jpg 

 

 

 

GENESIS SSF - TWO TOWER PLACE

 

SCHEDULE 2

Arsenal Biosciences, Inc.

 

-2-

[Execution Original]

 


 

SCHEDULE 2

BASE, SHELL AND CORE

[See attached]

 

 

 

 

 

 

img33231229_5.jpg 

BASE BUILDING “WARM SHELL” DELIVERY CONDITION

GENESIS SOUTH SAN FRANCISCO - 2 TOWER PLACE (NORTH TOWER)

 

Sitework

Exterior hardscape and landscape, including site lighting, sidewalks, site curbs, miscellaneous site furnishings Foundation and enclosure for Landlord provided emergency generator

At-grade shipping/receiving area

 

Structure

Steel superstructure consisting of steel columns, beams, brace frames and concrete slab on composite metal deck, with live load capacity of 100 psf (non-reducible) + 17 psf partitions at lab areas and 80 psf (reducible) + 17 psf at office areas.

Type 1A construction; code required fireproofing with firesafing at the edge of slab of each floor

Lateral seismic system utilizing brace frames and perimeter moment frames. Importance factor 1.0

Roof Screen

Floor-to-floor height 13’-0” typical for floors 2-20; 18’-0” at 1st floor and 14’-0” at 21st floor

Structural Bay varies: 29’-6” x 35’-0” average

Stairs and stair enclosures per code requirements

Roof penthouse access

Window washing system

 

Roofing

Single ply thermoplastic roof membrane (Sika Sarnafil G410 Energysmart Roof Membrane) with walking pads Rigid insulation, flashing, and sealants

 

Exterior

Glazed aluminum curtain wall system with aluminum sunshade fins and aluminum louvers Plaster finish at first floor service areas and roof penthouse

Building entrances and openings

 

Common Areas

Main Lobby with reception/security desk, seating area, and enhanced fireplace design First floor common conference rooms. Various sizes: 12 seat, 14 seat, 18 seat 20 seat First floor Fire Command Room, Mail Room, Building Security Room

Main Electrical room and Main Emergency Electrical Room

First floor at-grade shipping and receiving loading dock and service entry

Telecommunications Main Point of Entry (Tel/MPOE) room

Telecom room on each tenant floor for house providers.

Passenger elevator service room and elevator control panel room

Plumbing equipment (Lab Utilities) room

 

Elevators

Six (6) passenger elevators. Capacity: 3,500 lbs.: Speed 350 fpm

One (1) service elevators. Capacity: 5,000 lbs.: Speed 350 fpm

No elevator access to Roof

 

 

 

GENESIS SSF - TWO TOWER PLACE

 

SCHEDULE 2

Arsenal Biosciences, Inc.

 

-1-

[Execution Original]

 


 

 

Base Building Core

Restroom Cores: one (1) set per floor including Men’s and Women’s Restrooms with ceramic tiles floors and wet walls, solid surface countertops, toilet partitions, hard lid ceiling with downlights, and low-flow plumbing fixtures

Janitor Closet: one (1) per floor

Full height, sound attenuated wall construction at restroom core to underside of slab

Emergency Power Electrical Rooms: two (2) per floor

Normal Power Electrical Room: one (1) per floor

Telecomm / Base Building IDF Room: one (1) per floor

Shaft enclosures for Base Building system risers

 

Fire Protection

Wet fire protection system (risers, distribution piping and sprinkler heads throughout)

Fire extinguishers in semi-recessed wall cabinets at core areas

Fire safing at Base Building vertical penetrations per code requirement, including penetrations for mechanical, electrical, and plumbing systems

Fire Alarm

 

Plumbing

Building supplied lab air compressors on Emergency Power with branch lines to each floor

Building supplied lab vacuum pumps on Emergency Power with branch lines to each floor

Building supplied domestic water heaters

Natural gas for building boilers only, not available for Tenant use

Domestic hot and cold water service provided at each floor with water meter

Lab waste and lab waste vent provided for each floor with capped branches

Sanitary waste and vent systems provided at each floor

Code compliant core restrooms: (2) water closets. (2) urinals and (2) lavatories in Men’s restroom. (4) water closets and (2) lavatories in Women’s restroom

Janitor’s closet with housekeeping service sink on each floor

 

HVAC

Two (2) 700 Ton water cooled chillers

One (1) two-cell open cooling tower

Three (3) 4,000 MBH heating hot water boilers

Secondary mechanical equipment includes, pumps, valves, piping and ductwork to support base building mechanical systems Three (3) 80,000 CFM laboratory exhaust fans

(2) Laboratory exhaust subduct stub outs on each floor, each capable of 6,000 CFM lab exhaust

Heating hot water piping stub outs on each floor allow for zone reheat coils.

(1) 21,000 CFM air handler per floor on standby powerserving both office and lab spaces

Secondary condenser water loop with stub outs on each floor to allow for connection of a water source heat pump Ventilation for base building electrical rooms

Restroom exhaust for base building restrooms

Building Management System (BMS) for core area and landlord infrastructure

Smoke Control System

 

Electrical

Two (2) 4.000A, 480/277V Building Services

Two (2) 1500kW Generators

75 kVA transformer dedicated for normal power plug loads at office and lab spaces 45 kVA transformer dedicated for standby power plug loads at lab and IT spaces

Means and capacity for installation of additional 30 kVA transformer to supplement standby power Separate lighting, power, and mechanical panelboards at each floor to serve tenant loads

 

 

 

GENESIS SSF - TWO TOWER PLACE

 

SCHEDULE 2

Arsenal Biosciences, Inc.

 

-2-

[Execution Original]

 


 

 

Telecommunications

Site conduits and service provider/carrier fiber and copper cabling to MPOE room Service provider copper and fiber terminations in MPOE

Ten (10) 4” Conduits from MPOE to Distributed Antenna System (DAS) room Eight (8) 4” Conduits from level 1 DAS room to IDF riser stack starting on level 2 Core space equivalent to (8) 4” conduits in each IDF room for backbone cabling Two (2) 4” Conduits from MPOE to Facilities Telecom Room

2” Conduits to roof for DAS GPS unit

Fiber and copper termination equipment installed in base building IDFs for tenant connection

Pathway (firestopping assemblies and conduits from building IDF into tenant space for tenant connection to backbone cabling Cellular carrier fiber from MPOE to DAS room

Cellular carrier equipment installed in DAS room (by carriers)

DAS headend equipment installed in DAS room

DAS remotes installed in specified IDF rooms

 

 

 

GENESIS SSF - TWO TOWER PLACE

 

SCHEDULE 2

Arsenal Biosciences, Inc.

 

-3-

[Execution Original]

 


 

SCHEDULE 3

TENANT IMPROVEMENT BUILDING STANDARDS

Genesis North

2 Tower Place,
South San Francisco, CA 94080
Tenant Improvement Building Standards

1.0 PARTITIONS

1.1.
DEMISING WALL - ONE HOUR FIRE RESISTIVE CONSTRUCTION

One Hour Fire Resistive Wall will be constructed to demise tenant spaces with 3 5/8” x 20 gauge metal studs at 16” O.C. Wall is to extend full height from floor to underside of structure above with 5/8” Type “X” gypsum wallboard on each side of studs. Gypsum wallboard shall be taped and finished with joint compound to a Level 4 finish and painted. The stud cavity shall be filled with sound attenuation insulation.

1.2.
INTERIOR PARTITIONS

Interior partitions will be constructed with 3 5/8” x 20 gauge metal studs at 16” O.C. Walls are to extend 6” above adjacent ceilings with 5/8” gypsum wallboard placed on each side of studs. Gypsum wallboard shall be taped and finished with joint compound to a Level 4 finish, with the stud cavity being filled with sound attenuation insulation in partitions between offices and conference rooms. Where no ceilings occur, partitions to extend full height to underside of structure above. Exceptions:

1.2.1.
Lab: Interior Partitions separating lab from lab; or lab from office; or lab from corridor shall extend full height from floor to underside of structure above with 5/8” Type “X” gypsum wallboard on each side of studs. Gypsum wallboard shall be taped and finished with joint compound to a Level 4 finish and painted. The stud cavity shall be filled with sound attenuation insulation.
1.2.2.
Private Offices: Interior Partitions will be constructed similar to above but shall extend full height from floor to underside of structure above with 5/8” Type “X” gypsum wallboard on each side of studs. Gypsum wallboard shall be taped and finished with joint compound to a Level 4 finish and painted. The stud cavity shall be filled with sound attenuation insulation.
1.2.3.
Conference Rooms: Interior Partitions separating conference rooms from private offices shall extend full height from floor to underside of structure above with (2) layers of 5/8” Type “X” gypsum wallboard on each side of studs. Gypsum wallboard shall be taped and finished with joint compound to a Level 4 finish and painted. The stud cavity shall be filled with sound attenuation insulation.
1.2.4.
Glazing within interior partitions shall be at locations as identified within Test Fit / approved Concept Plan.

2.0 WOOD DOORS AND FRAMES

2.1.
INTERIOR DOORS
2.1.1.
Main suite entry doors (if main entry is from elev. lobby) are to be 60 minute rated, 1 3/4” x 3’-0” x 8’0” Solid core. VT Industries, Face: plain sliced slip walnut; Finish: TR-6 Clear or equivalent. Other suite entry doors are to be 60 minute rated, 1 3/4” x 3-0” x 8’-0” Solid core. VT Industries, Face: plain sliced slip walnut; Finish: TR-6 Clear or equivalent.
2.1.2.
Office and Conference Room Doors are to be 1 3/4” x 3’-0” x 8’-0” solid core. VT Industries, Face: plain sliced slip walnut; Finish: TR-6 Clear or equivalent. Common Area and Support Room Doors are to be 1 3/4” x 3’-0” x 8’-0” solid core. VT Industries, Face: plain sliced slip walnut: Finish: TR-6 Clear or equivalent.

 

 

 

GENESIS SSF - TWO TOWER PLACE

 

SCHEDULE 3

Arsenal Biosciences, Inc.

 

-1-

[Execution Original]

 


 

2.1.3.
Laboratory Suite Doors are to be rated where required by code, non-rated elsewhere, 1 3/4” x 3’-0” x 8’-0”. Solid core. VT Industries, Face: plain sliced slip walnut: Finish: TR-6 Clear or Equivalent. Each lab will have a pair of doors for large equipment access. Rated doors shall have a narrow lite vision panel not exceeding 100 sq. inches (typical 1/4” tempered 4” wide x 25” tall). Nonrated doors shall have a half-lite vision panel consisting of 1/4” thick tempered safety glass. Armor plates and kick plates will be provided on Lab doors at appropriate locations.
2.1.4.
Lab Support Doors, where provided, are to be rated as required by code, non-rated elsewhere, 1 3/4” x 3’-6” x 8’-0”. Solid core. VT Industries, Face: plain sliced slip walnut; Finish: TR-6 Clear or equivalent. Rated doors shall have a narrow lite vision panel not exceeding 100 sq. inches (typical 1/4” tempered 4” wide x 25” tall). Non-rated doors shall have a half-lite vision panel consisting of 1/4” thick tempered safety glass. Armor plates and kick plates will be provided on Lab Support Doors at appropriate locations.
2.2.
DOOR AND WINDOW FRAMES
2.2.1.
Door and Window frames will be extruded aluminum alloy as manufactured by Western Integrated Materials Inc. Frames will be pre-punched for factory installed 14-gauge butt reinforcement, door strike, and closer hardware. Prefinished frame color to be: CLEAR ANODIZED ALUMINUM.
2.2.2.
Rated doors and window frames shall be as required by code, with label ratings for smoke and fire resistance meeting the requirements established by the Underwriters Laboratory (UL). Doors will include smoke seals. Door frames will be extruded aluminum alloy as manufactured by Western Integrated Materials Inc. Frames will be pre-punched for factory installed 14-gauge butt reinforcement, door strike, and closer hardware. Prefinished frame color to be: Clear anodized aluminum.
2.3.
FINISH HARDWARE
2.3.1.
SUITE ENTRY

For solid core wood doors:

Hinges: Three-knuckle, concealed bearing hinges.

a.
Manufactures: Ives 3CB Series; Hager AB series, or McKinney TA series
b.
Doors up to 36 inches wide: Standard weight, 4-1/2 inches high
c.
Doors over 36 inches wide: Heavy weight, 5 inches high
d.
Finish: ANSI A8112 steel with steel pin.

Locksets & Security hardware:

a.
Passenger Elevator Lobby doors: Electrified door hardware for card reader and electrified door hold open for receipt of TFTI security system.
b.
Service Elevator Lobby doors: Electrified door hardware for card reader for receipt of TFTI security system.

Closers: LCN 4040XP series or equivalent conforming with ANSI/BHMA A156.4 Grade 1 requirements.

Floor stop: IVES FS439, Finish: US26D Satin chrome plated.

2.3.2.
INTERIOR DOORS

For solid core wood doors:

Hinges: Three-knuckle, concealed bearing hinges.

a.
Manufactures: Ives 3CB Series; Hager AB series, or McKinney TA series
b.
Doors up to 36 inches wide: Standard weight, 4-1/2 inches high
c.
Doors over 36 inches wide: Heavy weight, 5 inches high
d.
Finish: ANSI A8112 steel with steel pin.

Locksets:

a.
Private Office Doors: Office entry lock set: MORTISE LEVER SCHLAGE L 9000 SERIES. FINISH: 630, US32D, Satin Stainless steel.
b.
Conference Room Doors: Passage Set. SCHLAGE L SERIES MORTISE L9010 17A. FINISH: 630, US32D, Satin Stainless steel. REVISIONS TO LOCKSET TFTI.

 

 

 

GENESIS SSF - TWO TOWER PLACE

 

SCHEDULE 3

Arsenal Biosciences, Inc.

 

-2-

[Execution Original]

 


 

Floor stop: IVES FS439, Finish: US26D Satin chrome plated.

3.0 CEILINGS

3.1.
ACOUSTICAL CEILINGS

Private Offices & Conference Rooms: Ceilings will be 2” x 2” x 3/4ARMSTRONG, ULTIMA TEGULAR FINE TEXTURE, COLOR: WHITE, GLASS-FIBER BASED PANELS TO BE TYPE IV MINERAL BASED WITH MEMBRANE-I ACED OVERLAY; FORM 2. WATER FELTED WITH VINYL OVERLAY ON FACE AND BACK OF PANEL. PERFORMANCE CHARACTERISTIC TO MEET THE FOLLOWING:

a.
LR: Not less than 0.90.
b.
NRC: Not less than 0.70.

ACOUSTICAL PANELS ARE TRLAIED WITH MANUFACTURE’S STANDARD ANTIMICROBIAL FORMULATION THAT INHIBITS FUNGUS, MOLD, MILDEW, AND GRAM-POSITIVE AND GRAM-NEGATIVE BACTERIA.

SUSPENSION SYSTEM: ARMSTRONG SILHOUETTE NARROW 9/16” WITH 1/4 REVEAL: COI OR. WHITE.

3.2.
VINYL-FACED CEILINGS

Lab Areas: Ceilings will be 2” x 4” x V2” Certainteed Saint-Gobain V1NYLROCK (#1140 CRF- 1), COLOR: WHITE WINYI -FACED PANELS SHALL BE TYPE XX: HIGH DENSITY, CERAMIC AND MINERAL BASE PANELS WITH SCRUBBABLE FINISH, RESISTAN TO HEAT, MOISTURE. AND CORROSIVE FUMES.

Suspension system: Certainteed Saint-Gobain 15/16” trim edge (square); Color: White

3.3.
GYPSUM WALLBOARD SOFFITS

Break Areas: Gypsum wallboard soffits will be constructed with 3 5/8” x 20 gauge metal studs at 16” O.C., with 5/8” gypsum wallboard placed on exterior side of studs. Gypsum wallboard shall be taped and finished with joint compound to a Level 4 finish.

3.4.
WOOD CEILING GRILLE

Reception / Lobby Areas: Wood ceiling grill will be 9WOOD Crosspiece wood) ceiling 1100 grille or architect’s approved equivalent.

4.0 LIGHTING FIXTURES

4.1.
Office and Lab area light fixtures shall be min. 6” wide recessed linear LED type by finelite or equivalent.
4.2.
Lab Support rooms shall have recessed 2’x4’ LED fixtures.
4.3.
All lighting shall have Title 24 compliant lighting controls and sensors.

5.0 FINISHES

5.1.
CARPET
a.
Manufactures: Manningion, Tandas Cenhva, or article approved equivalent
b.
Product Size: As indicated on drawings. 6” Roll Power-bond, “24 x 24” carpet tile, 12’’ x 48” carpet plank; varies per Finish Option
c.
Backing: Per manufacture’s recommendation
d.
Face Weight: 24 oz./sq. yd. may vary per Finish Option
e.
Pile Height Average: 0.106 inch may vary per Finish Option
f.
Fiber System: Textured Pattern Loop. Invista Antron Lumena Type 6 Hollow Fillament Nylon with Permenant Stain and Bleach Protection, Static Control
g.
Soil/Stain Protection: Suratech or Equivalent

 

 

 

GENESIS SSF - TWO TOWER PLACE

 

SCHEDULE 3

Arsenal Biosciences, Inc.

 

-3-

[Execution Original]

 


 

5.2.
CERAMIC TILE
a.
Manufactures
1.
Fiandre
2.
Dai tile
3.
Emil Ceramica
4.
American Olean
5.
Or architect approved equivalent
b.
Composition: Vitreous, impervious natural clay or porcelain
c.
Face Size: Per Drawings
d.
Face Size Variation: Calibrated or rectified
e.
Thickness: Manufacturers standard
f.
Dynamic Coefficient of Friction: Not less than 0.42.
g.
Trim Units: Coordinated with sizes and coursing of adjoining flat tile: where applicable and matching characteristics of adjoining flat tile. Architect to select from manufacturer’s full range.
5.3.
VINYL COMPOSITION TILE
a.
Manufacturers:
1.
Armstrong World Industries, Inc.
2.
Johnsonite (Tarkett Group)
3.
Mannington Commercial
b.
Tile Standard: ASTM F 1066, Class 1, solid-color
c.
Thickness: 0.125 inches
d.
Size: 12 by 12 inches and 12 by 24 inches. As indicated on Drawings.
5.4.
LUXURY VINYL TILE
a.
Manufacturers:
1.
Tandus-Centiva
2.
Johnsonite (Tarkett Group)
3.
Mannington Commercial
b.
Tile Standard: ASTM F 1700, Class 3, Type B
c.
Thickness: 0.100 to 0.120 inches
d.
Size: As indicated on drawings
5.5.
HOMOGENOUS VINYL SHEET
a.
Manufacturers:
1.
Johnsonite (Tarkett Group); Or architect approved equivalent
b.
Classification: ASTM F193, Class 1, Type A
c.
Thickness: Wear Layer Thickness ASTM F386 0.80” Gauge; Polyurethane reinforced per ASTM F410
d.
Chemical Resistance: Per ASTM F-925
e.
Size: Roll length: 75’-9”; Roll width: 6’-6”
5.6.
BASE
a.
Manufacturers:
1.
Armstrong World Industries, Inc.
2.
Johnsonite (Tarkett Group)
3.
VPI Corporation
b.
Product Standard: ASTM F 1861, Type TP (rubber, thermoplastic).
1.
Group: I (solid, homogeneous).
2.
Style and Location: As indicated.
c.
Thickness: 0.125 inch
d.
Height: 4” high
e.
Lengths: Coils in manufacturer’s standard length. Pre-cut lengths are not acceptable.
f.
Outside Corners: Job formed or preformed.
g.
Inside Corners: Job formed or preformed.

 

 

 

GENESIS SSF - TWO TOWER PLACE

 

SCHEDULE 3

Arsenal Biosciences, Inc.

 

-4-

[Execution Original]

 


 

5.7.
PAINT

Lab and Lab Support Areas: All walls will receive primer coat plus (2) coats of Sherwin Williams, Semi-Gloss Finish; Color: As indicated on drawings. Designated walls shall receive accent paints, choice of Sherwin Williams, Semi-Gloss Finish, Color: As indicated on drawings.

Office Areas: All walls will receive primer coat plus (2) coats of Sherwin Williams, Eggshell Finish; Color: As indicated on drawings. Designated walls shall receive accent paints, choice of Sherwin Williams, Eggshell Finish, Color: As indicated on drawings.

All ceilings and open to structure areas to receive (2) coats of Sherwin Williams, Flat Finish; Color: As indicated on drawings.

6.0 WINDOW TREATMENT

Window Shades at building exterior perimeter windows: Where provided, will be manual-type roller shades by Mechoshade in recessed factory housing accessible within tenant space. Shade Material shall be Thermoveil 1500, Color: 1504 Black/Brown; Density: 3% Open.

7.0 MISCELLANEOUS

7.1.
SIGNAGE

One standard building directory sign with suite number and tenant name. Restroom and code required signage.

7.2.
ILLUMINATED EXIT SIGNS

Lithonia (or Isolite equal) ceiling mounted illuminated Edge Lit Series with single face universal mount, with universal arrows & green letters.

8.0 BREAKROOM CABINETRY

Cabinetry: Plastic laminate base cabinetry with base cabinets and upper cabinets. Plastic laminated base and uppers: Wilsonart, Designer white #D354-01 (gloss finish). Provide PVC edge banding (0.018 to match plastic laminate)

Solid surface counter tops and splash: Livingstone L104 Brisk with glass mosaic tile back splash

Plumbing Fixtures: Sink is to be stainless steel, undercounter mount, ADA depth, with a ADA single handle deck mounted kitchen faucet with gooseneck spout.

9.0 LABORATORY CASEWORK AND FUME HOODS

12.1.
Casework: Labs will be furnished with modular, mobile metal laboratory casework manufactured by iLab, Inc. Countertops will be chemical resistant epoxy/phenolic resin. Island benches shall be pre-piped for Compressed Air and Lab Vacuum with quick disconnect connections located above the ceiling. Benches with sinks will have a single basin epoxy sink (21” x 15” x 10” deep). Sink cabinets shall have a hot and cold water mixing faucet with a counter mounted eyewash. Sinks at island benches will have a stainless-steel glassware pegboard with drip tray and drain hose. Benches will be pre-wired with factory installed single channel raceways for power. Receptacles will be GFI at wet benches and color coded for normal (grey) and emergency (red) power uses.
12.2.
Fume Hoods: Fume Hoods will be 6’ wide, bench top hoods with a combination sash. Hoods will be factory pre-piped and pre-wired for Vacuum, Compressed Air and normal power on each fume hood post. Hoods will be provided with self-closing acid and flammable storage cabinet bases.

 

 

 

GENESIS SSF - TWO TOWER PLACE

 

SCHEDULE 3

Arsenal Biosciences, Inc.

 

-5-

[Execution Original]

 


 

NOTES:

1.
Each prospective build-out, including but not limited to electrical, mechanical and plumbing design shall be reviewed and verified prior to commencement of Construction Documents and is subject to Landlord’s review and approval.
2.
Upgraded items beyond Building Standards include, but are not limited to, the following:
1.
Cabinetry beyond that shown in drawings
2.
Upgraded Carpet.
3.
Interior Windows (beyond approved side light window)
4.
Gypsum Board and Acoustical Ceilings
5.
Additional sound attenuation insulation above acoustical ceiling tiles
6.
Plumbing, beyond stainless steel standard
7.
Architectural Features (i.e. Light Soffit, Curved Walls, etc., not shown on spec plan)
8.
Wallcoverings
9.
Dedicated or Higher Voltage Electrical Outlets
10.
24 Hour Cooling
11.
Interior design and drawings for above noted upgrades
12.
Customized lab design
3.
The following items are responsibility of the Tenant and are excluded from the Owner’s scope of work to be provided:
1.
Security/Access Control within the Tenant Suite.
2.
Signage beyond Code required egress signage.
3.
Audio/Visual systems
4.
Data distribution within the Tenant Suite
5.
Server Room HVAC / Dedicated system

UPS systems for Tenant Equipment.

[To be provided]

 

 

 

GENESIS SSF - TWO TOWER PLACE

 

SCHEDULE 3

Arsenal Biosciences, Inc.

 

-6-

[Execution Original]

 


 

EXHIBIT C

CONFIRMATION OF LEASE TERMS/AMENDMENT TO LEASE

This CONFIRMATION OF LEASE TERMS/AMENDMENT TO LEASE (“Confirmation/Amendment”) is made and entered into effective as of _______________________________, 20 ___, by and between AP3-SF3 CT NORTH, LLC, a Delaware limited liability company (“Landlord”) and ___________________, a ______________ (“Tenant”).

R E C I T A L S:

A. Landlord and Tenant entered into that certain Lease dated as of _______________________ (the “Lease”) pursuant to which Landlord leased to Tenant and Tenant leased from Landlord certain “Premises”, as described in the Lease, in that certain building located at _____________________, ____________________, California ___________.

B. Except as otherwise set forth herein, all capitalized terms used in this Amendment shall have the same meaning as such terms have in the Lease.

C. Landlord and Tenant desire to amend the Lease to confirm the commencement and expiration dates of the term, as hereinafter provided.

NOW, THEREFORE, in consideration of the foregoing Recitals and the mutual covenants contained herein, and for other good and valuable consideration, the receipt and sufficiency of which are hereby acknowledged, the parties hereto agree as follows:

1. Confirmation of Dates. The parties hereby confirm that (a) the Premises are Ready for Occupancy, and (b) the term of the Lease commenced as of __________________ for a term of ____________________ ending on ________________________ (unless sooner terminated as provided in the Lease.

2. No Further Modification. Except as set forth in this Amendment, all of the terms and provisions of the Lease shall remain unmodified and in full force and effect.

IN WITNESS WHEREOF, this Amendment has been executed as of the day and year first above written.

 

“Landlord”:

 

AP3-SF3 CT NORTH, LLC,

a Delaware limited liability company

 

By:

 

Name:

 

Its:

 

 

“Tenant”:

                                                                                               ,

a

 

By:

 

Name:

 

Its:

 

 

 

By:

 

Name:

 

Its:

 

 

 

 

 

 

GENESIS SSF - TWO TOWER PLACE

 

EXHIBIT C

Arsenal Biosciences, Inc.

 

-1-

[Execution Original]

 


 

EXHIBIT D

RULES AND REGULATIONS

Tenant shall faithfully observe and comply with the following Rules and Regulations and the Parking Rules and Regulations. Landlord shall not be responsible to Tenant for the nonperformance of any of said Rules and Regulations and/or the Parking Rules and Regulations by or otherwise with respect to the acts or omissions of any other tenants or occupants of the Building and/or the Project.

1. Tenant shall not place any lock(s) on any door, or install any security system (including, without limitation, card key systems, alarms or security cameras), in the Premises without Landlord’s prior written consent, which consent shall not be unreasonably withheld, and Landlord shall have the right to retain at all times and to use keys or other access codes or devices to all locks and/or security systems within and to the Premises. A reasonable number of keys to the locks on the entry doors of the Premises shall be furnished by Landlord to Tenant at Tenant’s cost, and Tenant shall not make any duplicate keys. All keys shall be returned to Landlord at the expiration or earlier termination of the Lease. Further, if and to the extent Tenant re-keys, re-programs or otherwise changes any locks in or for the Premises, all such locks and key systems must be consistent with the master lock and key system at the Building, all at Tenant’s sole cost and expense.

2. All doors opening to public corridors shall be kept closed at all times except for normal ingress and egress to the Premises, unless electrical hold backs have been installed. Sidewalks, doorways, passages, entrances, vestibules, halls, stairways and other Common Areas shall not be obstructed by Tenant or used by Tenant for any purpose other than ingress and egress to and from the Premises, and Tenant, its employees and agents shall not loiter in the entrances or corridors.

3. Landlord reserves the right to close and keep locked all entrance and exit doors of the Building during such hours as are customary for comparable buildings in the vicinity of the Building. Tenant and its employees and agents shall ensure that the doors to the Building are securely closed and locked when leaving the Premises if it is after the normal hours of business for the Building. Any tenant, its employees, agents or any other persons entering or leaving the Building at any time when it is so locked, or any time when it is considered to be after normal business hours for the Building, may be required to sign the Building register when so doing. After-hours access by Tenant’s authorized employees may be provided by hard-key, card-key access or other procedures adopted by Landlord from time to time; Tenant shall pay for the costs of all access cards provided to Tenant’s employees and all replacements thereof for lost, stolen and/or damaged cards. Access to the Building and/or the Project may be refused unless the person seeking access has proper identification or has a previously arranged pass for such access. Landlord and its agents shall in no case be liable for damages for any error with regard to the admission to or exclusion from the Building and/or the Project of any person. In case of invasion, mob, riot, public excitement, or other commotion, Landlord reserves the right to prevent access to the Building and/or the Project during the continuance of same by any means it deems appropriate for the safety and protection of life and property.

4. Landlord shall have the right to prescribe the weight, size and position of all safes and other heavy property brought into the Building. Safes and other heavy objects shall, if considered necessary by Landlord, stand on supports of such thickness as is necessary to properly distribute the weight. Landlord will not be responsible for loss of or damage to any such safe or property in any case. All damage done to any part of the Building, its contents, occupants and/or visitors by moving or maintaining any such safe or other property shall be the sole responsibility of Tenant and any expense of said damage or injury shall be borne by Tenant.

5. No furniture, freight, packages, supplies, equipment or merchandise will be brought into or removed from the Building or carried up or down in the elevators, except upon prior notice to Landlord, and in such manner, in such specific elevator, and between such hours as shall be designated by Landlord. Tenant shall provide Landlord with not less than 24 hours’ prior notice of the need to utilize an elevator for any such purpose, so as to provide Landlord with a reasonable period to schedule such use and to install such padding or take such other actions or prescribe such procedures as are appropriate to protect against damage to the elevators or other parts of the Building. Tenant shall assume all risk for damage to articles moved and injury to any persons resulting from such activity described herein. If equipment, property, or personnel of Landlord or of any other party is damaged or injured as a result of or in connection with such activity described herein, Tenant shall be solely liable for any resulting damage or loss.

6. Landlord shall have the right to control and operate the public portions of the Building and Project, the public facilities, the heating and air conditioning, and any other facilities furnished for the common use of tenants, in such manner as is customary for comparable buildings in the vicinity of the Building.

7. No signs, advertisements or notices shall be painted or affixed to windows, doors or other parts of the Building, except those of such color, size, style and in such places as are first approved in writing by Landlord. Landlord shall have the right to remove any signs, advertisements, and notices not approved in writing by Landlord without notice to and at the expense of Tenant. Landlord

 

 

 

GENESIS SSF - TWO TOWER PLACE

 

EXHIBIT D

Arsenal Biosciences, Inc.

 

-1-

[Execution Original]

 


 

may provide and maintain in the first floor (main lobby) of the Building an alphabetical directory board or other directory device listing tenants, and no other directory shall be permitted unless previously consented to by Landlord in writing.

8. The requirements of Tenant will be attended to only upon application at the management office of the Project or at such office location designated by Landlord. Employees of Landlord shall not perform any work or do anything outside their regular duties unless under special instruction from Landlord.

9. Tenant shall not disturb (by use of any television, radio or musical instrument, making loud or disruptive noises, creating offensive odors or otherwise), solicit, or canvass any occupant of the Building and/or the Project and shall cooperate with Landlord or Landlord’s agents to prevent same.

10. The toilet rooms, urinals, wash bowls and other apparatus shall not be used for any purpose other than that for which they were constructed, and no foreign substance of any kind whatsoever shall be thrown therein. The expense of any breakage, stoppage or damage resulting from the violation of this rule shall be borne by the tenant who, or whose employees or invitees, shall have caused it.

11. Tenant shall not overload the floor of the Premises. Tenant shall not mark, drive nails or screws, or drill into the partitions, woodwork or plaster or in any way deface the Premises or any part thereof without Landlord’s consent first had and obtained; provided, however, Landlord’s prior consent shall not be required with respect to Tenant’s placement of pictures and other normal office wall hangings on the interior walls of the Premises (but at the end of the Lease Term, Tenant shall repair any holes and other damage to the Premises resulting therefrom).

12. Except for vending machines intended for the sole use of Tenant’s employees and invitees, no vending machine or machines of any description other than fractional horsepower office machines shall be installed, maintained or operated upon the Premises without the written consent of Landlord. Tenant shall not install, operate or maintain in the Premises or in any other area of the Building, electrical equipment that would overload the electrical system beyond its capacity for proper, efficient and safe operation as determined solely by Landlord.

13. Tenant shall not use any method of heating or air conditioning other than that which may be supplied by Landlord, without the prior written consent of Landlord. Tenant shall not furnish cooling or heating to the Premises, including, without limitation, the use of electronic or gas heating devices, portable coolers (such as “move n cools”) or space heaters, without Landlord’s prior written consent, and any such approval will be for devices that meet federal, state and local code.

14. No inflammable, explosive or dangerous fluids or substances shall be used or kept by Tenant in the Premises, Building and/or about the Project, except for those substances as are typically found in similar premises used for general office and/or laboratory purposes and are being used by Tenant in a safe manner and in accordance with all applicable Laws, rules and regulations. Tenant shall not, without Landlord’s prior written consent, use, store, install, spill, remove, release or dispose of, within or about the Premises or any other portion of the Project, any asbestos-containing materials or any solid, liquid or gaseous material now or subsequently considered toxic or hazardous under the provisions of 42 U.S.C. Section 9601 et seq. or any other applicable environmental Laws which may now or later be in effect. Tenant shall comply with all Laws pertaining to and governing the use of these materials by Tenant, and shall remain solely liable for the costs of abatement and removal.

15. Tenant shall not use, keep or permit to be used or kept, any foul or noxious gas or substance in or on the Premises, or permit or allow the Premises to be occupied or used in a manner offensive or objectionable to Landlord or other occupants of the Building and/or the Project by reason of noise, odors, or vibrations, or interfere in any way with other tenants or those having business therewith.

16. Tenant shall not bring into or keep within the Project, the Building or the Premises any animals (except those assisting handicapped persons), birds, fish tanks, bicycles or other vehicles.

17. Tenant shall not use or occupy the Premises in any manner or for any purpose which might injure the reputation or impair the present or future value of the Premises, the Building and/or the Project. Tenant shall not use, or permit any part of the Premises to be used, for lodging, sleeping or for any illegal purpose.

18. No cooking shall be done or permitted by Tenant on the Premises, nor shall the Premises be used for the storage of merchandise or for any improper, objectionable or immoral purposes. Notwithstanding the foregoing, Underwriters’ laboratory-approved equipment and microwave ovens may be used in the Premises for heating food and brewing coffee, tea, hot chocolate and similar beverages, provided that such use is in accordance with all applicable federal, state and city laws, codes, ordinances, rules and

 

 

 

GENESIS SSF - TWO TOWER PLACE

 

EXHIBIT D

Arsenal Biosciences, Inc.

 

-2-

[Execution Original]

 


 

regulations, and does not cause odors which are objectionable to Landlord and other tenants. Whenever possible, Tenant shall utilize and purchase Energy Star products in their suites. Tenant understands the importance of energy conservation and sustainability to both the Landlord and the Project, and will assist in conserving energy in their suite with regards to practices and equipment.

19. Landlord will approve where and how telephone and telegraph wires and other cabling are to be introduced to the Premises. No boring or cutting for wires shall be allowed without the consent of Landlord. The location of telephone, call boxes and other office equipment and/or systems affixed to the Premises shall be subject to the approval of Landlord. Tenant shall not use more than its proportionate share of telephone lines and other telecommunication facilities available to service the Building.

20. Landlord reserves the right to exclude or expel from the Building and/or the Project any person who, in the judgment of Landlord, is intoxicated or under the influence of liquor or drugs, or who shall in any manner do any act in violation of any of these Rules and Regulations or cause harm to Building occupants and/or property.

21. All contractors, contractor’s representatives and installation technicians performing work in the Building or at the Project shall be subject to Landlord’s prior approval, which approval shall not be unreasonably withheld, and shall be required to comply with Landlord’s standard rules, regulations, policies and procedures, which may be revised from time to time.

22. Tenant shall not employ any person other than the janitor of Landlord for the purpose of cleaning the Premises without prior written consent of Landlord, and without Landlord’s consent, no person or persons shall be permitted to enter the Building for the purpose of cleaning the same. Tenant shall not cause any unnecessary labor by reason of Tenant’s carelessness or indifference in the preservation of good order and cleanliness.

23. Tenant shall only employ persons from a list of exclusive vendors selected by Landlord for the removal of hazardous waste materials from the Building and the Project.

24. Tenant at all times shall maintain the entire Premises in a neat and clean, first class condition, free of debris. Tenant shall not place items, including, without limitation, any boxes, files, trash receptacles or loose cabling or wiring, in or near any window to the Premises which would be visible anywhere from the exterior of the Premises.

25. Tenant shall not waste electricity, water or air conditioning and agrees to cooperate fully with Landlord to ensure the most effective operation of the Building’s heating and air conditioning system, including, without limitation, the use of window blinds to block solar heat load, and shall refrain from attempting to adjust any controls. Tenant shall comply with and participate in any program for metering or otherwise measuring the use of utilities and services, including, without limitation, programs requiring the disclosure or reporting of the use of any utilities or services. Tenant shall also cooperate and comply with, participate in, and assist in the implementation of (and take no action that is inconsistent with, or which would result in Landlord, the Building and/or the Project failing to comply with the requirements of) any conservation, sustainability, recycling, energy efficiency, and waste reduction programs, environmental protection efforts and/or other programs that are in place and/or implemented from time to time at the Building and/or the Project, including, without limitation, any required reporting, disclosure, rating or compliance system or program (including, but not limited to, any LEED [Leadership in Energy and Environmental Design] rating or compliance system, including those currently coordinated through the U.S. Green Building Council).

26. Tenant shall store all its recyclables, trash and garbage within the interior of the Premises. No material shall be placed in the trash boxes or receptacles if such material is of such nature that it may not be disposed of in the ordinary and customary manner of removing and disposing of recyclables, trash and garbage in the city in which the Project is located without violation of any law or ordinance governing such disposal. All trash, garbage and refuse disposal shall be made only through entry-ways and elevators provided for such purposes at such times as Landlord shall designate.

27. Tenant shall comply with all safety, fire protection and evacuation procedures and regulations established by Landlord or any governmental agency.

28. Tenant shall assume any and all responsibility for protecting the Premises from theft, robbery and pilferage, which includes keeping doors locked and other means of entry to the Premises closed, when the Premises are not occupied, or when the entry to the Premises is not manned by Tenant on a regular basis.

29. No awnings or other projection shall be attached to the outside walls of the Building without the prior written consent of Landlord. No curtains, blinds, shades or screens shall be attached to or hung in, or used in connection with, any window or door of the Premises without the prior written consent of Landlord. The sashes, sash doors, skylights, windows, and doors that reflect or admit light and air into the halls, passageways or other public places in the Building shall not be covered or obstructed by Tenant, nor shall

 

 

 

GENESIS SSF - TWO TOWER PLACE

 

EXHIBIT D

Arsenal Biosciences, Inc.

 

-3-

[Execution Original]

 


 

any bottles, parcels or other articles be placed on the windowsills. All electrical ceiling fixtures hung in offices or spaces along the perimeter of the Building must be fluorescent and/or of a quality, type, design and bulb color approved by Landlord.

30. The washing and/or detailing of or, the installation of windshields, radios, telephones in or general work on, automobiles shall not be allowed on the Project, except under specific arrangement with Landlord.

31. Food vendors shall be allowed in the Building upon receipt of a written request from Tenant delivered to Landlord. The food vendor shall service only the tenants that have a written request on file in the management office of the Project. Under no circumstance shall the food vendor display their products in a public or Common Area including corridors and elevator lobbies. Any failure to comply with this rule shall result in immediate permanent withdrawal of the vendor from the Building. Tenant shall obtain ice, drinking water, linen, barbering, shoe polishing, floor polishing, cleaning, janitorial, plant care or other similar services only from vendors who have registered in the management office of the Project and who have been approved by Landlord for provision of such services in the Premises.

32. Tenant must comply with requests by the Landlord concerning the informing of their employees of items of importance to the Landlord.

33. Tenant shall comply with any non-smoking ordinance adopted by any applicable governmental authority. Neither Tenant nor its agents, employees, contractors, guests or invitees shall smoke or permit smoking in the Premises and/or the Common Areas, unless the Common Areas have been declared a designated smoking area by Landlord, nor shall the above parties allow smoke from the Premises to emanate into the Common Areas or any other part of the Building. Landlord shall have the right to designate the Building (including the Premises) as a non-smoking building.

34. Tenant shall not take any action which would violate Landlord’s labor contracts or which would cause a work stoppage, picketing, labor disruption or dispute, or interfere with Landlord’s or any other tenant’s or occupant’s business or with the rights and privileges of any person lawfully in the Building (“Labor Disruption”). Tenant shall take the actions necessary to resolve the Labor Disruption, and shall have pickets removed and, at the request of Landlord, immediately terminate any work in the Premises that gave rise to the Labor Disruption, until Landlord gives its written consent for the work to resume, and Tenant shall have no claim for damages against Landlord or any of its trustees, members, principals, beneficiaries, partners, officers, directors, employees, mortgagees, or agents in connection therewith.

35. No tents, shacks, temporary or permanent structures of any kind shall be allowed on the Project. No personal belongings may be left unattended in any Common Areas.

36. Landlord shall have the right to prohibit the use of the name of the Building or Project or any other publicity by Tenant that in Landlord’s sole opinion may impair the reputation of the Building or Project or the desirability thereof. Upon written notice from Landlord, Tenant shall refrain from and discontinue such publicity immediately.

37. Landlord shall have the right to designate and approve standard window coverings for the Premises and to establish rules to assure that the Building presents a uniform exterior appearance. Tenant shall ensure, to the extent reasonably practicable, that window coverings are closed on windows in the Premises while they are exposed to the direct rays of the sun.

38. The work of cleaning personnel shall not be hindered by Tenant after 5:30 P.M., and cleaning work may be done at any time when the offices are vacant. Windows, doors and fixtures may be cleaned at any time. Tenant shall provide adequate waste and rubbish receptacles to prevent unreasonable hardship to the cleaning service.

39. Tenant shall comply with all Building security procedures as Landlord may effectuate.

40. Tenant shall at all times cooperate with Landlord in preserving a first-class image for the Building.

PARKING RULES AND REGULATIONS

1. Landlord reserves the right to establish and reasonably change the hours for the Parking Facility, on a non-discriminatory basis, from time to time. Tenant shall not store or permit its employees to store any automobiles in the Parking Facility without the prior written consent of Landlord (and/or the Parking Operator, as the case may be). Except for emergency repairs, Tenant and its employees shall not perform any work on any automobiles while located in the Parking Facility or on the Project. The Parking Facility may not be used by Tenant or its agents for overnight parking of vehicles. If it is necessary for Tenant or its employees to leave an automobile in the Parking Facility overnight, Tenant shall provide Landlord (or the Parking Operator as the case may be) with prior notice thereof designating the license plate number and model of such automobile.

 

 

 

GENESIS SSF - TWO TOWER PLACE

 

EXHIBIT D

Arsenal Biosciences, Inc.

 

-4-

[Execution Original]

 


 

2. Tenant (including Tenant’s employees and agents) will use the parking spaces solely for the purpose of parking passenger model cars, small vans and small trucks and will comply in all respects with any rules and regulations that may be promulgated by Landlord and/or the Parking Operator from time to time with respect to the Parking Facility.

3. Vehicles must be parked entirely within the stall lines painted on the floor, and only small cars may be parked in areas reserved for small cars.

4. All directional signs and arrows must be observed.

5. The speed limit shall be 5 miles per hour.

6. Parking spaces reserved for handicapped persons must be used only by vehicles properly designated.

7. Parking is prohibited in all areas not expressly designated for parking, including without limitation:

(a) areas not striped for parking;

(b) aisles;

(c) where “no parking” signs are posted;

(d) ramps; and

(e) loading zones.

8. Parking stickers, key cards and any other devices or forms of identification or entry supplied by Landlord or the Parking Operator shall remain the property of Landlord (or the Parking Operator as the case may be). Such device must be displayed as requested and may not be mutilated in any manner. The serial number of the parking identification device may not be obliterated. Parking passes and devices are not transferable and any pass or device in the possession of an unauthorized holder will be void.

9. Parking managers or attendants are not authorized to make or allow any exceptions to these Parking Rules and Regulations.

10. Every parker is required to park and lock his/her own car.

11. Loss or theft of parking passes, identification, key cards or other such devices must be reported to Landlord (and/or to the Parking Operator as the case may be) immediately. Any parking devices reported lost or stolen found on any authorized car will be confiscated and the illegal holder will be subject to prosecution. Lost or stolen passes and devices found by Tenant or its employees must be reported to Landlord (and to the Parking Operator, as the case may be) immediately.

12. Washing, waxing, cleaning or servicing of any vehicle by the customer and/or its agents is prohibited.

13. Tenant agrees to acquaint all persons to whom Tenant assigns a parking space with these Parking Rules and Regulations.

14. Neither Landlord nor the Parking Operator (as the case may be), from time to time will be liable for loss of or damage to any vehicle or any contents of such vehicle or accessories to any such vehicle, or any property left in any of the Parking Facility, resulting from fire, theft, vandalism, accident, conduct of other users of the Parking Facility and other persons, or any other casualty or cause. Further, Tenant understands and agrees that: (i) Landlord will not be obligated to provide any traffic control, security protection or Parking Operator for the Parking Facility; (ii) Tenant uses the Parking Facility at its own risk; and (iii) Landlord will not be liable for personal injury or death, or theft, loss of or damage to property. Tenant indemnifies and agrees to hold Landlord, any Parking Operator and their respective agents and employees harmless from and against any and all claims, demands, and actions arising out of the use of the Parking Facility by Tenant and its employees and agents, whether brought by any of such persons or any other person.

15. Tenant will ensure that any vehicle parked in any of the parking spaces will be kept in proper repair and will not leak excessive amounts of oil or grease or any amount of gasoline. If any of the parking spaces are at any time used (i) for any purpose other than parking as provided above, (ii) in any way or manner reasonably objectionable to Landlord, or (iii) by Tenant after default by Tenant under the Lease, Landlord, in addition to any other rights otherwise available to Landlord, may consider such default an event of default under the Lease.

16. Tenant’s right to use the Parking Facility will be in common with other tenants of the Building and with other parties permitted by Landlord to use the Parking Facility. Landlord reserves the right to assign and reassign, from time to time, particular parking spaces for use by persons selected by Landlord, provided that Tenant’s rights under the Lease are preserved. Landlord will not be liable to Tenant for any unavailability of Tenant’s designated spaces, if any, nor will any unavailability entitle Tenant to any refund, deduction, or allowance. Tenant will not park in any numbered space or any space designated as: RESERVED, HANDICAPPED, VISITORS ONLY, or LIMITED TIME PARKING (or similar designation).

 

 

 

GENESIS SSF - TWO TOWER PLACE

 

EXHIBIT D

Arsenal Biosciences, Inc.

 

-5-

[Execution Original]

 


 

17. If the Parking Facility is damaged or destroyed, or if the use of the Parking Facility is limited or prohibited by any governmental authority, or the use or operation of the Parking Facility is limited or prevented by strikes or other labor difficulties or other causes beyond Landlord’s reasonable control, Tenant’s inability to use the parking spaces will not subject Landlord (and/or the Parking Operator, as the case may be) to any liability to Tenant and will not relieve Tenant of any of its obligations under the Lease and the Lease will remain in full force and effect. Tenant will pay to Landlord upon demand, and Tenant indemnifies Landlord against, any and all loss or damage to the Parking Facility, or any equipment, fixtures, or signs used in connection with the Parking Facility and any adjoining buildings or structures caused by Tenant or any of its employees and agents.

18. Tenant has no right to assign or sublicense any of its rights in the parking passes, except as part of a permitted assignment or sublease of the Lease; however, Tenant may allocate the parking passes among its employees.

Tenant shall be responsible for the observance of all of the Rules and Regulations and Parking Rules and Regulations in this Exhibit D by Tenant’s employees, agents, clients, customers, invitees and guests. Landlord may waive any one or more of the Rules and Regulations and/or Parking Rules and Regulations for the benefit of any particular tenant or tenants, but no such waiver by Landlord shall be construed as a waiver of such Rules and Regulations and/or Parking Rules and Regulations in favor of any other tenant or tenants, nor prevent Landlord from thereafter enforcing any such Rules or Regulations and/or Parking Rules and Regulations against any or all tenants of the Building and/or the Project. Landlord reserves the right at any time to change or rescind any one or more of these Rules and Regulations and/or the Parking Rules and Regulations, or to make such other and further reasonable Rules and Regulations and/or Parking Rules and Regulations as in Landlord’s judgment may from time to time be necessary for the management, safety, care and cleanliness of the Premises, Building and Project, and for the preservation of good order therein, as well as for the convenience of other occupants and tenants therein. Tenant shall be deemed to have read these Rules and Regulations and Parking Rules and Regulations and to have agreed to abide by them as a condition of its occupancy of the Premises. Notwithstanding anything to the contrary in this Exhibit D, in the event of a conflict between the Rules and Regulations and the other terms and provisions of the Lease, the other terms and provisions of the Lease shall control.

COMMON AREA AMENITIES

1. Tenant understands that Landlord may provide certain common area amenities for Tenant’s nonexclusive use. Such amenities are for the use of tenants during regular business hours and shall be reserved through the management office in advance. Tenant and Tenant’s agents, employees and invitees shall adhere to all rules Landlord sets forth in respect to use of the amenities, which may change from time to time.

2. Tenant understands and agrees that: (i) Tenant uses the amenities at its own risk; and (ii) Landlord will not be liable for personal injury or death, or theft, loss of or damage to property. Tenant indemnifies and agrees to hold Landlord and its agents and employees harmless from and against any and all claims, demands, and actions arising out of the use of the amenities by Tenant and its agents, employees and invitees, whether brought by any of such persons or any other person.

3. All amenities offered shall remain at the locations designated by Landlord all times. Tenant must use the equipment only in the manner intended. Landlord reserves the right to limit Tenant’s use of any equipment or amenities to ensure the equitable use of the equipment and amenities by all tenants. Tenant shall not move or modify the equipment in any manner whatsoever. If Tenant has reason to believe that any equipment is malfunctioning, Tenant shall notify Landlord immediately.

4. Tenant shall be responsible for the cost of repairs or replacements of any amenities that are not returned to management after use or are damaged during the use of any such amenity by Tenant or Tenant’s agents, employees or invitees and Tenant shall reimburse Landlord for any such cost within thirty (30) days after receipt of an invoice therefor.

5. Tenant shall conduct themselves in a quiet and well-mannered fashion when on or about the amenities and not cause any disturbances or interfere with the use or enjoyment of the amenities by other tenants.

6. Tenant shall not bring any food or beverages into any amenity area.

7. No alcoholic beverages shall be permitted at the amenities at any time.

8. Neither Tenant nor its agents, employees or invitees shall smoke or permit smoking in the amenity
areas at any time.

 

 

 

GENESIS SSF - TWO TOWER PLACE

 

EXHIBIT D

Arsenal Biosciences, Inc.

 

-6-

[Execution Original]

 


 

EXHIBIT E

FORM OF SUBORDINATION, NON-DISTURBANCE AND ATTORNMENT AGREEMENT

RECORDING REQUESTED BY

AND WHEN RECORDED MAIL TO:

 

Cox, Castle & Nicholson LLP

2029 Century Park East, 21st Floor

Los Angeles, California 90067

Attention: Adam B. Weissburg, Esq.

APN: 007-650-190 and 007-650-170

SUBORDINATION, NON-DISTURBANCE AND ATTORNMENT AGREEMENT

Loan No. 18601

Massachusetts Mutual Life Insurance Company

c/o Barings

One Financial Plaza

Hartford, Connecticut 06103

Attention: Structured Real Estate Loan Servicing

Re: ___________________________________________ [Insert Property name and location]

The undersigned, __________________________________________, a _________________________ (“Tenant”), understands that Massachusetts Mutual Life Insurance Company, a Massachusetts corporation (“Lender”) has made or will be making a loan (the “Loan”) to AP3-SF3 CT North LLC, a Delaware limited liability company (“Landlord”), secured by a mortgage or deed of trust (the “Mortgage”) encumbering the real property (the “Property”) described on Exhibit A, attached hereto and made a part hereof. Tenant and Landlord entered into an unrecorded lease agreement (the “Lease”) dated ______________ by which Tenant leased from Landlord certain premises commonly known as______________(the “Leased Premises”), and constituting a portion of the Property. Tenant desires to be able to obtain the advantages of the Lease and occupancy thereunder in the event of foreclosure of the Mortgage and Lender wishes to have Tenant confirm the priority of the Mortgage over the Lease.

NOW, THEREFORE, in consideration of the mutual covenants and conditions set forth herein, the parties hereto agree as follows:

1.
Subject to the terms of this agreement, Tenant hereby subordinates all of its right, title and interest under the Lease to the lien of the Mortgage and any other mortgages (as the same may be modified and/or extended from time to time) now or hereafter in force against the Property, and to any and all existing and future advances made under such Mortgage and any other mortgages.
2.
In the event that Lender becomes the owner of the Property by foreclosure, deed in lieu of foreclosure, or otherwise, Tenant agrees to unconditionally attorn to Lender and to recognize it as the owner of the Property and the Landlord under the Lease. The Lender agrees not to terminate the Lease or disturb or interfere with Tenant’s possession of the Leased Premises during the term of the Lease, or any extension or renewal thereof, so long as Tenant is not in default under the Lease beyond applicable notice, grace and cure periods, if any.
3.
Tenant will not terminate or seek to terminate the Lease by reason of any act or omission of the Landlord thereunder until Tenant shall have given written notice, by certified mail, return receipt requested, or overnight delivery by a nationally recognized carrier, of said act or omission to Lender, which notice shall be addressed to Massachusetts Mutual Life Insurance Company, c/o Barings, One Financial Plaza, Hartford, Connecticut 06103, Attention: Structured Real Estate Loan Servicing, with a copy sent to Barings, One Financial Plaza, Hartford, Connecticut 06103, Attention: Legal Department, and the cure period provided to Landlord, if any, shall have elapsed following the giving of such notice, during which period Lender shall have the right, but not the obligation, to remedy such act or omission. Lender will have 10 days after its receipt of such notice to cure any Landlord monetary default and will have 30 days after its receipt of such notice to cure any Landlord non-monetary

 

 

 

GENESIS SSF - TWO TOWER PLACE

 

EXHIBIT E

Arsenal Biosciences, Inc.

 

-1-

[Execution Original]

 


 

default. If such non-monetary cure is not possible within 30 days, Lender will be afforded additional time not to exceed an additional 60 days to cure such non-monetary default, so long as Lender commences such cure within such initial 30 day period and continues to diligently to pursue the same to completion.
4.
Lender and any other subsequent owner of the Property, whether through foreclosure, deed in lieu of foreclosure, or any other means, or any other transfer or means after a foreclosure or a deed in lieu of foreclosure (a “Subsequent Owner”) shall not be:
(a)
Liable for any act or omission of any prior landlord, including Landlord, except for any ongoing, non-monetary maintenance, repair or replacement obligation set forth in the Lease;
(b)
Subject to any offsets or defenses which Tenant might have against any prior landlord, including Landlord, except for offsets or defenses related to a continuing default, so long as Tenant (i) notifies Subsequent Owner in writing of such continuing default on or after the date Subsequent Owner succeeds to the interest of Landlord under the Lease and (ii) provides Subsequent Owner with the same opportunity to cure such continuing default as provided to Landlord under the Lease (it being understood that Landlord shall remain liable for such damages until Subsequent Owner is liable for the same hereunder);
(c)
Bound by any prepayment of rent made more than one month in advance or deposit, rental security or any other sums deposited with any prior lessor, including Landlord, under the Lease, unless actually received by Lender or Subsequent Owner;
(d)
Bound by any amendment or modification of the Lease made without Lender’s or Subsequent Owner’s prior written consent, except for amendments or modifications specifically contemplated by the Lease; and
(e)
Bound to commence or complete any construction or to make any contribution toward construction or installation of any improvements upon the Leased Premises or the Property required under the Lease, including, without limitation, for any expansion or rehabilitation of existing improvements thereon; or for the payment of any tenant allowance or incentive, or for restoration of improvements following any casualty not required to be insured under the Lease or for the costs of any restorations in excess of any proceeds recovered under any insurance required to be carried under the Lease.
5.
Tenant agrees to commence paying all rents, revenues and other payments due under the Lease directly to Lender after Lender notifies Tenant that Lender is the owner and holder of the Loan and is invoking Lender’s rights under the Loan documents to directly receive from Tenant all rents, revenues and other payments due under the Lease. By making such payments to Lender, Tenant shall be deemed to have satisfied all such payment obligations to Landlord under the Lease.
6.
This Agreement shall inure to the benefit of Lender’s affiliates, agents, lenders, co-lenders and participants, and each of their respective successors and assigns.

[Remainder of page intentionally left blank; signature pages follow]

 

 

 

GENESIS SSF - TWO TOWER PLACE

 

EXHIBIT E

Arsenal Biosciences, Inc.

 

-2-

[Execution Original]

 


 

IN WITNESS WHEREOF, the parties hereto have caused this Subordination, Non-Disturbance and Attornment Agreement to be duly executed as of the _________ day of _______, 201___.

 

TENANT:

 

 

 

 

,

a

 

 

 

 

 

 

By:

 

 

Name:

 

 

Its:

 

 

 

[Signatures continue on following page]

 

 

 

GENESIS SSF - TWO TOWER PLACE

 

EXHIBIT E

Arsenal Biosciences, Inc.

 

-3-

[Execution Original]

 


 

 

LANDLORD:

 

AP3-SF3 CT NORTH LLC,

a Delaware limited liability company

 

 

By:

 

Name:

W. Neil Fox, III

Its:

Chief Executive Officer

 

[Signatures continue on following page]

 

 

 

GENESIS SSF - TWO TOWER PLACE

 

EXHIBIT E

Arsenal Biosciences, Inc.

 

-4-

[Execution Original]

 


 

 

LENDER:

 

MASSACHUSETTS MUTUAL LIFE INSURANCE COMPANY,

a Massachusetts corporation

 

By:

Barings Real Estate Advisers Inc.,

 

a Delaware corporation,

 

its Authorized Agent

 

 

 

By:

 

 

Name:

 

 

Its:

 

 

[End of signatures]

 

 

 

GENESIS SSF - TWO TOWER PLACE

 

EXHIBIT E

Arsenal Biosciences, Inc.

 

-5-

[Execution Original]

 


 

TENANT’S ACKNOWLEDGMENT

 

 

A notary public or other officer completing this certificate verifies only the identity of the individual who signed the document to which this certificate is attached, and not the truthfulness, accuracy, or validity of that document.

 

STATE OF

 

 

)

 

 

 

 

) ss:

 

COUNTY OF

 

 

)

 

On

 

, 201_____,

before me,

 

 

 

 

(insert name and title of the officer),

 

personally appeared ______________________________________, who proved to me on the basis of satisfactory evidence to be the person(s) whose name(s) is/are subscribed to the within instrument and acknowledged to me that he/she/they executed the same in his/her/their authorized capacity(ies), and that by his/her/their signature(s) on the instrument the person(s), or the entity upon behalf of which the person(s) acted, executed the instrument.

I certify under PENALTY OF PERJURY under the laws of the State of ______________________ that the foregoing paragraph is true and correct.

WITNESS my hand and official seal.

Signature:

 

 

 

[Seal]

 

 

 

GENESIS SSF - TWO TOWER PLACE

 

EXHIBIT E

Arsenal Biosciences, Inc.

 

-6-

[Execution Original]

 


 

LANDLORD’S ACKNOWLEDGMENT

 

 

A notary public or other officer completing this certificate verifies only the identity of the individual who signed the document to which this certificate is attached, and not the truthfulness, accuracy, or validity of that document.

 

STATE OF

 

 

)

 

 

 

 

) ss:

 

COUNTY OF

 

 

)

 

On

 

, 201_____,

before me,

 

 

 

 

(insert name and title of the officer),

 

personally appeared ______________________________________, who proved to me on the basis of satisfactory evidence to be the person(s) whose name(s) is/are subscribed to the within instrument and acknowledged to me that he/she/they executed the same in his/her/their authorized capacity(ies), and that by his/her/their signature(s) on the instrument the person(s), or the entity upon behalf of which the person(s) acted, executed the instrument.

I certify under PENALTY OF PERJURY under the laws of the State of ______________________ that the foregoing paragraph is true and correct.

WITNESS my hand and official seal.

Signature:

 

 

 

[Seal]

 

 

 

 

GENESIS SSF - TWO TOWER PLACE

 

EXHIBIT E

Arsenal Biosciences, Inc.

 

-7-

[Execution Original]

 


 

LENDER’S ACKNOWLEDGMENT

 

A notary public or other officer completing this certificate verifies only the identity of the individual who signed the document to which this certificate is attached, and not the truthfulness, accuracy, or validity of that document.

 

STATE OF

 

 

)

 

 

 

 

) ss:

 

COUNTY OF

 

 

)

 

On

 

, 201_____,

before me,

 

 

 

 

(insert name and title of the officer),

 

personally appeared ______________________________________, who proved to me on the basis of satisfactory evidence to be the person(s) whose name(s) is/are subscribed to the within instrument and acknowledged to me that he/she/they executed the same in his/her/their authorized capacity(ies), and that by his/her/their signature(s) on the instrument the person(s), or the entity upon behalf of which the person(s) acted, executed the instrument.

 

I certify under PENALTY OF PERJURY under the laws of the State of ______________________ that the foregoing paragraph is true and correct.

WITNESS my hand and official seal.

Signature:

 

 

 

[Seal]

 

 

 

GENESIS SSF - TWO TOWER PLACE

 

EXHIBIT E

Arsenal Biosciences, Inc.

 

-8-

[Execution Original]

 


 

EXHIBIT A

LEGAL DESCRIPTION

Real property in the City of South San Francisco, County of San Mateo, State of California, described as follows:

PARCEL A:

PARCEL 2 AS SHOWN ON THAT CERTAIN MAP ENTITLED, “PARCEL MAP 08-0001, BEING A RESUBDIVISION OF PARCEL 1 AS SAID PARCEL IS SHOWN ON THAT CERTAIN MAP ENTITLED ‘PARCEL MAP 01-020’ FILED FOR RECORD ON MAY 19, 2006 IN BOOK 76 OF PARCEL MAPS AT PAGES 94 AND 95”, WHICH MAP WAS FILED FOR RECORD IN THE OFFICE OF THE RECORDER OF THE CITY OF SOUTH SAN FRANCISCO, COUNTY OF SAN MATEO, STATE OF CALIFORNIA ON SEPTEMBER 18, 2008 IN BOOK 78 OF PARCEL MAPS, AT PAGES 67-68, INCLUSIVE.

PARCEL B:

PARCEL 2, AS SHOWN ON THE MAP ENTITLED, “PARCEL MAP 01-020, BEING A RESUBDIVISION OF A PORTION OF LOT D AS SAID LOT IS SHOWN ON THAT CERTAIN MAP ENTITLED ‘TERRABAY PHASE III - MANDALAY POINTE’ FILED FOR RECORD ON NOVEMBER 18, 2002 IN BOOK 132 OF MAPS AT PAGES 49 THROUGH 53, A PORTION OF LOT 395 AS SAID LOT SHOWN ON THAT CERTAIN MAP ENTITLED “TERRABAY” FILED FOR RECORD ON JULY 2, 1990 AND ALL OF ADJUSTED LOT 396 AS DESCRIBED IN THAT CERTAIN LOT LINE ADJUSTMENT NO. 25, RECORDED MARCH 3, 2002 AS DOCUMENT NO. 2002-043342, SAN MATEO COUNTY RECORDS, CITY OF SOUTH SAN FRANCISCO, SAN MATEO COUNTY, CALIFORNIA WHICH PARCEL MAP WAS FILED FOR RECORD ON THE 19TH DAY OF MAY, 2006 IN BOOK 76 OF PARCEL MAPS, AT PAGES 94-95, AND WHICH PARCEL MAP WAS AMENDED BY THOSE CERTAIN CERTIFICATE OF CORRECTIONS RECORDED (A) OCTOBER 23, 2006 AS DOCUMENT NUMBER 2006-159188 OF OFFICIAL RECORDS, SAN MATEO COUNTY RECORDS, STATE OF CALIFORNIA, AND (B) RECORDED JUNE 19, 2015 AS DOCUMENT NUMBER 2015-064090 OF OFFICIAL RECORDS, SAN MATEO COUNTY RECORDS, STATE OF CALIFORNIA.

PARCEL C:

NON-EXCLUSIVE EASEMENTS AS DESCRIBED AND GRANTED TO MYERS PENINSULA VENTURE, LLC, IN THAT CERTAIN AGREEMENT GRANTING EASEMENT RECORDED MARCH 1, 2007 AS INSTRUMENT NO. 2007-031676 OF OFFICIAL RECORDS, IN THE OFFICE OF THE COUNTY RECORDER OF SAN MATEO COUNTY, CALIFORNIA.

PARCEL D:

A NON-EXCLUSIVE EASEMENTS AS DESCRIBED AND AS GRANTED TO MYERS PENINSULA VENTURE, LLC IN THAT CERTAIN DECLARATION OF EASEMENTS RECORDED SEPTEMBER 18, 2008, AS INSTRUMENT NO. 105133 OF OFFICIAL RECORDS; AND THAT CERTAIN FIRST AMENDMENT TO DECLARATION OF EASEMENTS RECORDED NOVEMBER 18, 2015 AS INSTRUMENT NO. 2015-121411, ALL IN THE OFFICE OF THE COUNTY RECORDER OF SAN MATEO COUNTY, CALIFORNIA.

PARCEL E:

NON-EXCLUSIVE EASEMENTS AS SET FORTH IN THAT CERTAIN DECLARATION OF RECIPROCAL EASEMENTS, COVENANTS AND RESTRICTIONS OF CENTENNIAL TOWERS DATED MAY 5, 2008 AND RECORDED ON SEPTEMBER 18, 2008 AS INSTRUMENT NO. 2008-105136; AND THAT CERTAIN FIRST AMENDMENT TO DECLARATION OF RECIPROCAL EASEMENTS, COVENANTS AND RESTRICTIONS OF CENTENNIAL TOWERS RECORDED NOVEMBER 18, 2015 AS INSTRUMENT NO. 2015-121410; AND THAT CERTAIN SECOND AMENDMENT TO DECLARATION OF RECIPROCAL EASEMENTS, COVENANTS AND RESTRICTIONS OF CENTENNIAL TOWERS RECORDED NOVEMBER 18, 2015 AS INSTRUMENT NO. 2015-121417, ALL OF OFFICIAL RECORDS, IN THE OFFICE OF THE COUNTY RECORDER OF SAN MATEO COUNTY, CALIFORNIA.

 

 

 

GENESIS SSF - TWO TOWER PLACE

 

EXHIBIT E

Arsenal Biosciences, Inc.

 

-9-

[Execution Original]

 


 

PARCEL F:

A NON-EXCLUSIVE EASEMENT AS SET FORTH IN THAT CERTAIN AGREEMENT GRANTING EASEMENT DATED JANUARY 22, 2009 AND RECORDED ON FEBRUARY 3, 2009 AS INSTRUMENT NO. 2009-010537 OF OFFICIAL RECORDS, IN THE OFFICE OF THE COUNTY RECORDER OF SAN MATEO COUNTY, CALIFORNIA.

PARCEL G:

NON-EXCLUSIVE EASEMENTS AS SET FORTH IN THAT CERTAIN DECLARATION OF COVENANTS CONDITIONS AND RESTRICTIONS OF CENTENNIAL TOWERS DATED MARCH 27, 2009 AND RECORDED ON APRIL 3, 2009 AS INSTRUMENT NO. 2009-038658; AS AMENDED BY THAT CERTAIN FIRST AMENDMENT TO DECLARATION OF COVENANTS, CONDITIONS AND RESTRICTIONS OF CENTENNIAL TOWERS DATED APRIL 20, 2010 AND RECORDED MAY 12, 2010 AS INSTRUMENT NO. 2010-051876; AND AMENDED BY THAT CERTAIN SECOND AMENDMENT TO DECLARATION OF COVENANTS, CONDITIONS AND RESTRICTIONS OF CENTENNIAL TOWERS DATED NOVEMBER 17, 2015 AND RECORDED NOVEMBER 18, 2015 AS INSTRUMENT NO. 2015-121409 ALL OF OFFICIAL RECORDS, IN THE OFFICE OF THE COUNTY RECORDER OF SAN MATEO COUNTY, CALIFORNIA.

APN: 007-650-190 (Parcel A) and 007-650-170 (Parcel B)

 

 

 

GENESIS SSF - TWO TOWER PLACE

 

EXHIBIT E

Arsenal Biosciences, Inc.

 

-10-

[Execution Original]

 


 

EXHIBIT F

FORM OF LETTER OF CREDIT

 

IRREVOCABLE STANDBY LETTER OF CREDIT NUMBER ______________

ISSUE DATE: ________________

ISSUING BANK:

SILICON VALLEY BANK

3003 TASMAN DRIVE

2ND FLOOR, MAIL SORT HF210

SANTA CLARA, CALIFORNIA 95054

 

BENEFICIARY:

 

 

 

 

 

APPLICANT:

ARSENAL BIOSCIENCES, INC.

571 ECCLES AVENUE

SOUTH SAN FRANCISCO, CA 94080

 

AMOUNT: US$626,509.60 (SIX HUNDRED TWENTY-SIX THOUSAND FIVE HUNDRED NINE AND 60/100 U.S. DOLLARS)

 

EXPIRATION DATE: ________________ (SVB WILL PUT A SPECIFIC DATE HERE THAT’S 1 YEAR ISSUANCE HERE)

 

LOCATION:

SANTA CLARA, CALIFORNIA

DEAR SIR/MADAM:

 

 

WE HEREBY ESTABLISH OUR IRREVOCABLE STANDBY LETTER OF CREDIT NO. SVBSF _____ IN YOUR FAVOR AVAILABLE BY PAYMENT AGAINST YOUR PRESENTATION TO US OF THE FOLLOWING DOCUMENT:

 

1.BENEFICIARY’S SIGNED AND DATED STATEMENT STATING AS FOLLOWS:

 

(A)
“AN EVENT OF DEFAULT (AS DEFINED IN THE LEASE) HAS OCCURRED UNDER THAT CERTAIN LEASE AGREEMENT BETWEEN ARSENAL BIOSCIENCES, INC., AS TENANT, AND BENEFICIARY, AS LANDLORD, AS AMENDED, SUPPLEMENTED OR OTHERWISE MODIFIED TO DATE. THE UNDERSIGNED HEREBY CERTIFIES THAT: (I) THE UNDERSIGNED IS AN AUTHORIZED REPRESENTATIVE OF LANDLORD; (II) SVBSF _____________ ISSUED BY SILICON VALLEY

 

ALL THE DETAILS SET FORTH HEREIN IN THIS LETTER OF CREDIT DRAFT IS APPROVED BY APPLICANT. IF THERE IS ANY DISCREPANCY BETWEEN THE DETAILS OF THIS LETTER OF CREDIT DRAFT AND THE LETTER OF CREDIT APPLICATION, BETWEEN APPLICANT AND SILICON VALLEY BANK, THE DETAILS HEREOF SHALL PREVAIL.”

 

 

 

 

APPLICANT’S SIGNATURE(S)

 

DATE

 

 

 

 

GENESIS SSF - TWO TOWER PLACE

 

EXHITBIT F

Arsenal Biosciences, Inc.

 

-1-

[Execution Original]

 


 

 

BANK; (III) LANDLORD HAS GIVEN WRITTEN NOTICE TO TENANT TO CURE THE DEFAULT PURSUANT TO THE TERMS OF THE LEASE; (IV) SUCH DEFAULT HAS NOT BEEN CURED UP TO THIS DATE OF DRAWING UNDER THE LETTER OF CREDIT; (V) LANDLORD IS AUTHORIZED TO DRAW DOWN ON THE LETTER OF CREDIT; AND (VI) LANDLORD WILL HOLD THE FUNDS DRAWN UNDER THE LETTER OF CREDIT AS SECURITY DEPOSIT FOR TENANT OR APPLY SAID FUNDS TO TENANT’S OBLIGATION UNDER THE LEASE. THE AMOUNT HEREBY DRAWN UNDER THE LETTER OF CREDIT IS US$ , WITH PAYMENT TO BE MADE TO THE FOLLOWING ACCOUNT: [INSERT WIRE INSTRUCTIONS (TO INCLUDE NAME AND ACCOUNT NUMBER OF THE BENEFICIARY)]”

OR

(B)
"THE UNDERSIGNED HEREBY CERTIFIES THAT WE HAVE RECEIVED A WRITTEN NOTICE OF SILICON VALLEY BANK'S ELECTION NOT TO EXTEND ITS STANDBY LETTER OF CREDIT NO. SVBSF AND HAVE NOT RECEIVED A REPLACEMENT LETTER OF CREDIT WITHIN AT LEAST THIRTY (30) DAYS PRIOR TO THE PRESENT EXPIRATION DATE. THE AMOUNT HEREBY DRAWN UNDER THE LETTER OF CREDIT IS US$ , WITH PAYMENT TO BE MADE TO THE FOLLOWING ACCOUNT: [INSERT WIRE INSTRUCTIONS (TO INCLUDE NAME AND ACCOUNT NUMBER OF THE BENEFICIARY)]”

OR

(C)
"THE UNDERSIGNED HEREBY CERTIFIES THAT BENEFICIARY IS ENTITLED TO DRAW DOWN THE FULL AMOUNT OF LETTER OF CREDIT NO. SVBSF AS THE RESULT OF THE FILING OF A VOLUNTARY PETITION UNDER THE U.S. BANKRUPTCY CODE OR A STATE BANKRUPTCY CODE BY THE TENANT UNDER THAT CERTAIN OFFICE LEASE DATED [Insert Lease Date], AS THE SAME MAY HAVE BEEN AMENDED (COLLECTIVELY, THE "LEASE"), WHICH FILING HAS NOT BEEN DISMISSED AT THE TIME OF THIS DRAWING. THE AMOUNT HEREBY DRAWN UNDER THE LETTER OF CREDIT IS US$ , WITH PAYMENT TO BE MADE TO THE FOLLOWING ACCOUNT: [INSERT WIRE INSTRUCTIONS (TO INCLUDE NAME AND ACCOUNT NUMBER OF THE BENEFICIARY)]"

OR

(D)
"THE UNDERSIGNED HEREBY CERTIFIES THAT BENEFICIARY IS ENTITLED TO DRAW DOWN THE FULL AMOUNT OF LETTER OF CREDIT NO. SVBSF AS THE RESULT OF AN INVOLUNTARY PETITION HAVING BEEN FILED UNDER THE U.S. BANKRUPTCY CODE OR A STATE BANKRUPTCY CODE AGAINST THE TENANT UNDER THAT CERTAIN OFFICE LEASE DATED [Insert Lease Date], AS THE SAME MAY HAVE BEEN AMENDED (COLLECTIVELY, THE "LEASE"), WHICH FILING HAS NOT BEEN DISMISSED AT THE TIME OF THIS DRAWING. THE AMOUNT HEREBY DRAWN UNDER THE LETTER OF CREDIT IS US$ , WITH PAYMENT TO BE MADE TO THE FOLLOWING ACCOUNT: [INSERT WIRE INSTRUCHONS (TO INCLUDE NAME AND ACCOUNT NUMBER OF THE BENEFICIARY)]"

OR

(E)
“THE UNDERSIGNED HEREBY CERTIFIES THAT BENEFICIARY IS ENTITLED TO DRAW DOWN THE FULL AMOUNT OF LETTER OF CREDIT NO. SVBSF AS THE RESULT OF THE

 

ALL THE DETAILS SET FORTH HEREIN IN THIS LETTER OF CREDIT DRAFT IS APPROVED BY APPLICANT. IF THERE IS ANY DISCREPANCY BETWEEN THE DETAILS OF THIS LETTER OF CREDIT DRAFT AND THE LETTER OF CREDIT APPLICATION, BETWEEN APPLICANT AND SILICON VALLEY BANK, THE DETAILS HEREOF SHALL PREVAIL.”

 

 

 

 

APPLICANT’S SIGNATURE(S)

 

DATE

 

 

 

 

GENESIS SSF - TWO TOWER PLACE

 

EXHITBIT F

Arsenal Biosciences, Inc.

 

-2-

[Execution Original]

 


 

REJECTION, OR DEEMED REJECTION, OF THAT CERTAIN OFFICE LEASE DATED [Insert Lease Date], AS THE SAME MAY HAVE BEEN AMENDED, UNDER SECTION 365 OF THE U.S. BANKRUPTCY CODE. THE AMOUNT HEREBY DRAWN UNDER THE LETTER OF CREDIT IS US$____________, WITH PAYMENT TO BE MADE TO THE FOLLOWING ACCOUNT: [INSERT WIRE INSTRUCTIONS (TO INCLUDE NAME AND ACCOUNT NUMBER OF THE BENEFICIARY)]”

PARTIAL DRAWS AND MULTIPLE PRESENTATIONS ARE ALLOWED.

THIS LETTER OF CREDIT SHALL BE AUTOMATICALLY EXTENDED FOR AN ADDITIONAL PERIOD OF ONE YEAR, WITHOUT AMENDMENT, FROM THE PRESENT OR EACH FUTURE EXPIRATION DATE UNLESS AT LEAST 60 DAYS PRIOR TO THE THEN CURRENT EXPIRATION DATE WE SEND TO YOU A NOTICE BY REGISTERED OR CERTIFIED MAIL OR OVERNIGHT COURIER SERVICE AT THE ABOVE ADDRESS THAT THIS LETTER OF CREDIT WILL NOT BE EXTENDED BEYOND THE THEN CURRENT EXPIRATION DATE. IN NO EVENT SHALL THIS LETTER OF CREDIT BE AUTOMATICALLY EXTENDED BEYOND ________________[INSERT FINAL EXPIRY DATE]. IN THE EVENT WE SEND SUCH NOTICE OF NON-EXTENSION, YOU MAY DRAW HEREUNDER BY YOUR PRESENTATION TO US OF YOUR SIGNED AND DATED STATEMENT SET FORTH AS (B) ABOVE.

ALL DEMANDS FOR PAYMENT SHALL BE MADE BY PRESENTATION OF THE REQUIRED DOCUMENTS ON A BUSINESS DAY AT OUR OFFICE (THE “BANK’S OFFICE”) AT: SILICON VALLEY BANK, 3003 TASMAN DRIVE, MAIL SORT HF 210, SANTA CLARA, CA 95054, ATTENTION: GLOBAL TRADE FINANCE. AS USED IN THIS LETTER OF CREDIT, ‘‘BUSINESS DAY” SHALL MEAN ANY DAY OTHER THAN A SATURDAY, SUNDAY OR A DAY ON WHICH BANKING INSTITUTIONS IN THE STATE OF CALIFORNIA ARE AUTHORIZED OR REQUIRED BY LAW TO CLOSE.

FACSIMILE PRESENTATIONS ARE ALSO PERMITTED. SHOULD BENEFICIARY WISH TO MAKE A PRESENTATION UNDER THIS LETTER OF CREDIT ENTIRELY BY FACSIMILE TRANSMISSION IT NEED NOT TRANSMIT THE ORIGINAL OF THIS LETTER OF CREDIT AND AMENDMENTS, IF ANY. EACH FACSIMILE TRANSMISSION SHALL BE MADE AT: (408) 496-2418 OR (408) 969-6510; AND UNDER CONTEMPORANEOUS TELEPHONE ADVICE TO: (408) 450-5001 OR (408) 654-7176, ATTENTION: GLOBAL TRADE FINANCE. ABSENCE OF THE AFORESAID TELEPHONE ADVICE SHALL NOT AFFECT OUR OBLIGATION TO HONOR ANY DRAW REQUEST.

THIS LETTER OF CREDIT IS TRANSFERABLE ONE OR MORE TIMES, BUT IN EACH INSTANCE ONLY TO A SINGLE BENEFICIARY AS TRANSFEREE AND ONLY UP TO THE THEN AVAILABLE AMOUNT, ASSUMING SUCH TRANSFER TO SUCH TRANSFEREE WOULD BE IN COMPLIANCE WITH THEN APPLICABLE LAWS AND REGULATIONS, INCLUDING BUT NOT LIMITED TO THE REGULATIONS OF THE U. S. DEPARTMENT OF TREASURY AND U. S. DEPARTMENT OF COMMERCE. AT THE TIME OF TRANSFER, THE ORIGINAL LETTER OF CREDIT AND ORIGINAL AMENDMENTS), IF ANY MUST BE SURRENDERED TO US AT OUR ADDRESS INDICATED IN THIS LETTER OF CREDIT TOGETHER WITH OUR TRANSFER FORM ATTACHED HERETO AS EXHIBIT “B” DULY EXECUTED. THE CORRECTNESS OF THE SIGNATURE AND TITLE OF THE PERSON SIGNING THE TRANSFER FORM MUST BE VERIFIED BY BENEFICIARY’S BANK. PROVIDED THAT IN LIEU OF SUCH BANK AUTHENTICATION, BENEFICIARY MAY PROVIDE THE ISSUING BANK WITH ALTERNATIVE DOCUMENTATION TO EVIDENCE THE SIGNER’S AUTHORITY TO EXECUTE THE TRANSFER INSTRUMENT ON BEHALF OF THE BENEFICIARY, SUCH AS AN INCUMBENCY CERTIFICATE OR OTHER DOCUMENTATION AS MAY BE REASONABLY SATISFACTORY TO THE ISSUING BANK. APPLICANT SHALL PAY OUR TRANSFER FEE OF 1/4 OF 1% OF THE TRANSFER AMOUNT (MINIMUM OF US$250.00) UNDER THIS LETTER OF CREDIT. PAYMENT OF ANY TRANSFER FEES AND/OR ANY TRANSFER COST SHALL NOT BE A CONDITION PRECEDENT TO TRANSFER. EACH TRANSFER SHALL BE EVIDENCED BY OUR

ALL THE DETAILS SET FORTH HEREIN IN THIS LETTER OF CREDIT DRAFT IS APPROVED BY APPLICANT. IF THERE IS ANY DISCREPANCY BETWEEN THE DETAILS OF THIS LETTER OF CREDIT DRAFT AND THE LETTER OF CREDIT APPLICATION, BETWEEN APPLICANT AND SILICON VALLEY BANK, THE DETAILS HEREOF SHALL PREVAIL.”

 

 

 

 

APPLICANT’S SIGNATURE(S)

 

DATE

 

 

 

 

GENESIS SSF - TWO TOWER PLACE

 

EXHITBIT F

Arsenal Biosciences, Inc.

 

-3-

[Execution Original]

 


 

ENDORSEMENT ON THE REVERSE OF THE LETTER OF CREDIT AND WE SHALL FORWARD THE ORIGINAL OF THE LETTER OF CREDIT SO ENDORSED TO THE TRANSFEREE. IN CASE OF ANY TRANSFER UNDER THIS LETTER OF CREDIT, THE DRAFT AND ANY REQUIRED STATEMENT MUST BE EXECUTED BY THE TRANSFEREE AND WHERE THE BENEFICIARY’S NAME APPEARS WITHIN THIS STANDBY LETTER OF CREDIT, THE TRANSFEREE’S NAME IS AUTOMATICALLY SUBSTITUTED THEREFOR.

IF ANY INSTRUCTIONS ACCOMPANYING A DRAWING UNDER THIS LETTER OF CREDIT REQUEST THAT PAYMENT IS TO BE MADE BY TRANSFER TO YOUR ACCOUNT WITH ANOTHER BANK, WE WILL ONLY EFFECT SUCH PAYMENT BY FED WIRE TO A U.S. REGULATED BANK, AND WE AND/OR SUCH OTHER BANK MAY RELY ON AN ACCOUNT NUMBER SPECIFIED IN SUCH INSTRUCTIONS EVEN IF THE NUMBER IDENTIFIES A PERSON OR ENTITY DIFFERENT FROM THE INTENDED PAYEE.

THIS LETTER OF CREDIT IS SUBJECT TO THE INTERNATIONAL STANDBY PRACTICES (ISP98), INTERNATIONAL CHAMBER OF COMMERCE, PUBLICATION NO. 590.

IF YOU HAVE ANY QUESTIONS REGARDING THIS TRANSACTION, PLEASE CONTACT EVELIO BARAIRO AT (408) 654-3035, ALWAYS QUOTING OUR LETTER OF CREDIT NO. SVBSF_____.

 

SILICON VALLEY BANK,

(FOR SVB USE)

 

(FOR SVB USE)

 

 

 

AUTHORIZED SIGNATURE

 

AUTHORIZED SIGNATURE

 

ALL THE DETAILS SET FORTH HEREIN IN THIS LETTER OF CREDIT DRAFT IS APPROVED BY APPLICANT. IF THERE IS ANY DISCREPANCY BETWEEN THE DETAILS OF THIS LETTER OF CREDIT DRAFT AND THE LETTER OF CREDIT APPLICATION, BETWEEN APPLICANT AND SILICON VALLEY BANK, THE DETAILS HEREOF SHALL PREVAIL.”

 

 

 

 

APPLICANT’S SIGNATURE(S)

 

DATE

 

IRREVOCABLE STANDBY LETTER OF CREDIT NUMBER __________________

 

 

 

GENESIS SSF - TWO TOWER PLACE

 

EXHITBIT F

Arsenal Biosciences, Inc.

 

-4-

[Execution Original]

 


 

EXHIBIT A

FORM OF TRANSFER FORM

 

 

DATE: ______________________

 

 

TO: SILICON VALLEY BANK

 

 

3003 TASMAN DRIVE

RE: IRREVOCABLE STANDBY LETTER OF CREDIT

SANTA CLARA, CA 95054

NO. ________

ISSUED BY

ATTN: GLOBAL TRADE FINANCE

SILICON VALLEY BANK, SANTA CLARA

STANDBY LETTERS OF CREDIT

L/C AMOUNT: ______________

 

GENTLEMEN:

FOR VALUE RECEIVED, THE UNDERSIGNED BENEFICIARY HEREBY IRREVOCABLY TRANSFERS TO:

 

(NAME OF TRANSFEREE)

 

(ADDRESS)

 

ALL RIGHTS OF THE UNDERSIGNED BENEFICIARY TO DRAW UNDER THE ABOVE LETTER OF CREDIT UP TO ITS AVAILABLE AMOUNT AS SHOWN ABOVE AS OF THE DATE OF THIS TRANSFER.

BY THIS TRANSFER, ALL RIGHTS OF THE UNDERSIGNED BENEFICIARY IN SUCH LETTER OF CREDIT ARE TRANSFERRED TO THE TRANSFEREE. TRANSFEREE SHALL HAVE THE SOLE RIGHTS AS BENEFICIARY THEREOF, INCLUDING SOLE RIGHTS RELATING TO ANY AMENDMENTS, WHETHER INCREASES OR EXTENSIONS OR OTHER AMENDMENTS, AND WHETHER NOW EXISTING OR HEREAFTER MADE. ALL AMENDMENTS ARE TO BE ADVISED DIRECTLY TO THE TRANSFEREE WITHOUT NECESSITY OF ANY CONSENT OF OR NOTICE TO THE UNDERSIGNED BENEFICIARY.

THE ORIGINAL OF SUCH LETTER OF CREDIT IS RETURNED HEREWITH, AND WE ASK YOU TO EITHER (1) ENDORSE THE TRANSFER ON THE REVERSE THEREOF, AND FORWARD IT DIRECTLY TO THE TRANSFEREE WITH YOUR CUSTOMARY NOTICE OF TRANSFER OR (2) ISSUE A REPLACEMENT LETTER OF CREDIT TO THE TRANSFEREE ON SUBSTANTIALLY THE SAME TERMS AND CONDITIONS AS THE TRANSFERRED LETTER OF CREDIT (IN WHICH EVENT THE TRANSFERRED LETTER OF CREDIT SHALL HAVE NO FURTHER EFFECT).

 

SINCERELY,

 

 

 

SIGNATURE AUTHENTICATED

 

 

 

 

 

The name(s), title(s), and signature(s) conform to that/those on file with us for the company and the signature(s) is/are authorized to execute this instrument.

 

(BENEFICIARY’S NAME)

 

 

 

 

 

 

 

 

 

 

 

(SIGNATURE OF BENEFICIARY)

 

 

 

(Name of Bank)

 

 

 

 

 

 

 

 

 

 

 

(Address of Bank)

 

(NAME AND TITLE)

 

 

 

 

 

 

 

 

 

(City, State, ZIP Code)

 

 

 

 

 

 

 

 

 

 

 

(Authorized Name and Title)

 

 

 

 

 

 

 

 

 

 

 

 

 

 

 

 

 

(Authorized Signature)

 

 

 

 

 

 

 

 

 

 

 

(Telephone number)

 

 

ALL THE DETAILS SET FORTH HEREIN IN THIS LETTER OF CREDIT DRAFT IS APPROVED BY APPLICANT. IF THERE IS ANY DISCREPANCY BETWEEN THE DETAILS OF THIS LETTER OF CREDIT DRAFT AND THE LETTER OF CREDIT APPLICATION, BETWEEN APPLICANT AND SILICON VALLEY BANK, THE DETAILS HEREOF SHALL PREVAIL.”

 

 

 

 

APPLICANT’S SIGNATURE(S)

 

DATE

 

 

 

 

GENESIS SSF - TWO TOWER PLACE

 

EXHITBIT F

Arsenal Biosciences, Inc.

 

-5-

[Execution Original]

 


 

EXHIBIT G

HAZARDOUS MATERIALS STORAGE AREAS

 

img33231229_6.jpg 

 

 

 

 

GENESIS SSF - TWO TOWER PLACE

 

EXHIBIT G

Arsenal Biosciences, Inc.

 

-1-

[Execution Original]

 


 

 

img33231229_7.jpg 

 

 

 

 

GENESIS SSF - TWO TOWER PLACE

 

EXHIBIT G

Arsenal Biosciences, Inc.

 

-2-

[Execution Original]

 


 

EXHIBIT H

GENERAL STORAGE AREAS

 

img33231229_8.jpg 

 

 

 

 

GENESIS SSF - TWO TOWER PLACE

 

EXHIBIT H

Arsenal Biosciences, Inc.

 

-1-

[Execution Original]

 


 

 

img33231229_9.jpg 

 

 

 

GENESIS SSF - TWO TOWER PLACE

 

EXHIBIT H

Arsenal Biosciences, Inc.

 

-2-

[Execution Original]

 


 

EXHIBIT I

DAS SPECIFICATIONS

 

DESIGN SERVICES

Design Development (DD) for Cell Coverage - Carrier (Design)

Initial Design to present to the carriers for feedback and approval. To include pathways, riser diagram, ROM and iBwave.

Construction Documents (CD) for Cell Coverage - Carrier (Design)

After approval of the DD package, the final construction set will be prepared. All mounting details, calculations and details needed for construction will be included

Design Administration - Carrier (Design)

HetNet will provide ongoing support during the design process to provide necessary info for the carriers and end user to ensure a design that can be accepted by both. To include: conference calls, EMF reports, carrier requirements and changes to the iBwave design, iBwave Certification.

CONSTRUCTION ADMINISTRATION

Construction Administration - Carrier (Engineering)

To ensure success of the deployed system, HetNet will coordinate with the involved parties on a regular basis. During this time, any installation issues will be addressed and HetNet will support the installation team with any questions regarding the bill of materials, design or requirements of the pertinent carriers involved with the project. HetNet will provide FCC and manufacturer certifications for lead installer requirements as needed.

Construction administration to include contract negotiations for Verizon, AT&T and TMO to extend their network coverage to include the garage.

Installation Scope of Work

 

49 antennas in a large garage. 6189ft coax. In 1.5” conduit. 3 remotes on a fiber system

 

1.

Provide and install all equipment in BOM

2.

One day to modify headend equipment

3.

Assist Hemet with CX

4.

One day for FM test

 

TAPOI-AWSE-F-4

Teko Active POI for AWS-3 band- Flexi, 4.3-10

2

TAPOI-PCS-F-4

Teko Active POI for PCS band- Flexi, 4.3-10

2

TESA5-UW-L

Esaplexer LTE700, AMPS+SMR800commercial, Extended PCS, Extended AWS, WCS2300, Low L

1

TSC2W-U

2 Ways Combiner/Splitter Ultra-wide band (7TE)

2

TTRU4W-S-M

Optical Tx/Rx for Master Unit, 1 Tx, 4 Rx, WDM, SC-APC, Ultra-wide Band, with Monitor ports

1

SUB-TRX-PSU5N

19” Subrack for the Optical Modules (with 5 connector Vdc, New gen)

2

TPSU/AC

Power Supply Unit AC

2

TRU19AWEWE/AC-W

RU Dual Band PCS1900-AWS3, 31dBm, AC powered, WDM, SMF, 4.3-10

3

AL4RPV-S0

1/2’’ Coax cable

6189

JMA-4MI4MT-14F1-3

Jumper, 4.3-10 Male - 4.3-10 Male, FSJ1 cable, 3feet

30

UXP-4MT-12

4.3-10 Male Connector for 1/2” Annular Cables

130

RF splitter

Low power splitter or x-dB directional coupler

46

Optical fiber [ft]

Single mode optical fiber SC-APC

691

TRU-OMNI-R727-F

Recess Mount Omni Antenna, V-Pol, 698-2700MHz, 4.3-10 Female Connector

49

 

 

 

 

GENESIS SSF - TWO TOWER PLACE

 

EXHIBIT I

Arsenal Biosciences, Inc.

 

-1-

[Execution Original]

 


 

RIDER

EXTENSION OPTION RIDER

This Extension Option Rider (“Extension Rider”) is attached to and made a part of the Lease by and between Landlord and Tenant. The agreements set forth in this Extension Rider shall have the same force and effect as if set forth in the Lease. To the extent the terms of this Extension Rider are inconsistent with the terms of the Lease, the terms of this Extension Rider shall control.

1. Extension Option. Landlord hereby grants Tenant one (1) option (the “Extension Option”) to extend the Lease Term for a period of five (5) years (the “Option Term”), which option shall be exercisable only by written Exercise Notice (as defined below) delivered by Tenant to Landlord as provided below. Upon the proper exercise of the Extension Option, the Lease Term shall be extended for the Option Term. Notwithstanding the foregoing, at Landlord’s option, in addition to any other remedies available to Landlord under the Lease, at law or in equity, the Extension Option shall not be deemed properly exercised if as of the date of delivery of the Exercise Notice (as defined below) by Tenant: Tenant is in default under the Lease beyond all applicable notice and cure periods. The Extension Option is personal to the Original Tenant (or any Affiliate Assignee) and may only be exercised by the Original Tenant (or any Affiliate Assignee but not any other assignee, sublessee or other transferee of Tenant’s interest in the Lease) if the Original Tenant (or any Affiliate Assignee) occupies the entire Premises as of the date of Tenant’s delivery of the Exercise Notice.

2. Option Rent. The annual Base Rent payable by Tenant during the Option Term (the “Option Rent”) shall be equal to the greater of: (i) the annual Base Rent payable by Tenant during the last year of the initial Lease Term; or (ii) the Fair Market Rental Rate for comparable office/laboratory space in the South San Francisco market. As used herein, the “Fair Market Rental Rate” shall mean the annual base rent at which tenants, as of the commencement of the Option Term, will be leasing non-sublease space comparable in size, location (including views) and quality to the Premises for a comparable term as the Option Term, which comparable space is located in the Building, the Other Existing Building in the Project and in other comparable first-class biotechnology buildings in the South San Francisco area, taking into consideration all free rent and other out-of-pocket concessions generally being granted at such time for such comparable space for the Option Term (including, without limitation, any tenant improvement allowance provided for such comparable space, with the amount of such tenant improvement allowance to be provided for the Premises during the Option Term to be determined after taking into account the age, quality and layout of the tenant improvements in the Premises as of the commencement of the Option Term with consideration given to the fact that the improvements existing in the Premises are specifically suitable to Tenant). All other terms and conditions of the Lease shall apply throughout the Option Term; however, Tenant shall, in no event, have the option to extend the Lease Term beyond the Option Term described in Section 1 above.

3. Exercise of Option. The Extension Option shall be exercised by Tenant, if at all, only in the following manner: (i) Tenant shall deliver written notice (“Interest Notice”) to Landlord not more than fifteen (15) months nor less than twelve (12) months prior to the expiration of the initial Lease Term stating that Tenant may be interested in exercising the Extension Option; (ii) Landlord, after receipt of Tenant’s notice, shall deliver notice (the “Option Rent Notice”) to Tenant not less than ten (10) months prior to the expiration of the initial Lease Term setting forth the Option Rent; and (iii) if Tenant wishes to exercise the Extension Option, Tenant shall, on or before the date (the “Exercise Date”) which is 60 days after Tenant’s receipt of the Option Rent Notice, exercise the Extension Option by delivering written notice (“Exercise Notice”) thereof to Landlord. Tenant’s failure to deliver the Interest Notice or Exercise Notice on or before the applicable delivery dates therefore specified hereinabove shall be deemed to constitute Tenant’s waiver of the Extension Option.

4. Determination of Option Rent. If Tenant timely and appropriately objects in its Exercise Notice to Landlord to the Fair Market Rental Rate for the Option Term initially determined by Landlord, then Landlord and Tenant shall attempt in good faith to agree upon the Fair Market Rental Rate. If Landlord and Tenant fail to reach agreement within thirty (30) days following Tenant’s delivery of such Exercise Notice (the “Outside Agreement Date”), then each party shall submit to the other party a separate written determination of the Fair Market Rental Rate within fifteen (15) business days after the Outside Agreement Date, and such determinations shall be submitted to arbitration in accordance with the provisions of Sections 4.1 through 4.6 below. The failure of Tenant or Landlord to submit a written determination of the Fair Market Rental Rate within such fifteen (15) business day period shall conclusively be deemed to be such party’s approval of the Fair Market Rental Rate submitted within such fifteen (15) business day period by the other party.

4.1 Landlord and Tenant shall each appoint one (1) arbitrator who shall by profession be an independent real estate broker who shall have no ongoing relationship with Tenant or Landlord and who shall have been active over the five (5) year period ending on the date of such appointment in the leasing of first class office buildings in the Market Area. The determination of the arbitrators shall be limited solely to the issue of whether Landlord’s or Tenant’s submitted Fair Market Rental Rate is the closer to the actual Fair Market Rental Rate as determined by the arbitrators, taking into account the requirements with respect thereto set forth in Section 2 above. Each such arbitrator shall be appointed within fifteen (15) days after the Outside Agreement Date.

 

 

 

GENESIS SSF - TWO TOWER PLACE

 

RIDER

Arsenal Biosciences, Inc.

 

-1-

[Execution Original]

 


 

4.2 The two (2) arbitrators so appointed shall, within thirty (30) days of the date of the appointment of the last appointed arbitrator, agree upon and appoint a third arbitrator who shall be qualified under the same criteria set forth hereinabove for qualification of the initial two (2) arbitrators.

4.3 The three (3) arbitrators shall, within thirty (30) days of the appointment of the third arbitrator, reach a decision as to which of Landlord’s or Tenant’s submitted Fair Market Rental Rate is closer to the actual Fair Market Rental Rate and shall select such closer determination as the Fair Market Rental Rate and notify Landlord and Tenant thereof.

4.4 The decision of the majority of the three (3) arbitrators shall be binding upon Landlord and Tenant.

4.5 If either Landlord or Tenant fails to appoint an arbitrator within the time period specified in Section 4.1 hereinabove, the arbitrator appointed by one of them shall reach a decision, notify Landlord and Tenant thereof, and such arbitrator’s decision shall be binding upon Landlord and Tenant.

4.6 If the two (2) arbitrators fail to agree upon and appoint a third arbitrator, within the time period provided in Section 4.2 above, then the parties shall mutually select the third arbitrator. If Landlord and Tenant are unable to agree upon the third arbitrator within ten (10) business days after the fifteen (15) day period described in Section 4.2 above, then either party may, upon at least five (5) days’ prior written notice to the other party, request the Presiding Judge of the San Mateo County Superior Court, acting in his private and nonjudicial capacity, to appoint the third arbitrator. Following the appointment of the third arbitrator, the panel of arbitrators shall within thirty (30) days thereafter reach a decision as to whether Landlord’s or Tenant’s submitted Fair Market Rental Rate shall be used and shall notify Landlord and Tenant thereof.

 

 

 

GENESIS SSF - TWO TOWER PLACE

 

RIDER

Arsenal Biosciences, Inc.

 

-2-

[Execution Original]

 


 

EXHIBIT B

SUBLEASED PREMISES

 

img33231229_10.jpg 

 


 

EXHIBIT C

 

STORAGE

 

HAZARDOUS MATERIALS STORAGE AREA

img33231229_11.jpg 

 

GENERAL STORAGE AREA

img33231229_12.jpg 

 


 

EXHIBIT D

APPRAISAL PROCESS

If Sublessee elects to determine the Fair Market Rent for the Extension Period pursuant to an appraisal process, the appraisal shall be conducted as follows:

A. Sublessee shall make a demand for an appraisal in writing within thirty (30) days after delivery of Sublessor’s determination of Fair Market Rent given under Paragraph 3.C of the Sublease, specifying therein the name and address of the person to act as the appraiser on its behalf. The appraiser shall be qualified as a real estate appraiser (and shall be a member of the Appraisal Institute (MAI) or any comparable successor organization) with at least ten (10) years professional experience and shall be familiar with the rental value of first-class life science space in South San Francisco, California. Failure on the part of Sublessee to make a proper demand and appointment in a timely manner for such appraisal shall constitute a waiver of the right thereto. Within fifteen (15) days after the service of the demand for such appraisal, Sublessor shall give notice to Sublessee, specifying the name and address of the person designated by Sublessor to act as the appraiser on its behalf who shall be similarly qualified.

B. Sublessor’s appraiser and Sublessee’s appraiser shall meet not later than fifteen (15) days following the selection of Sublessor’s appraiser. At such meeting, the two (2) appraisers shall attempt to determine the Fair Market Rent for the Subleased Premises for the Extension Period. If the two (2) appraisers agree on the Fair Market Rent at the initial meeting, such agreement shall be determinative and binding upon the parties hereto and the appraisers shall, in simple letter form executed by both appraisers, forthwith notify both parties of the amount set by such agreement. If the two (2) appraisers are unable to agree on the Fair Market Rent, they shall each submit to both parties an independent appraisal of the Fair Market Rent in simple letter form within ten (10) days following the meeting of the appraisers.

C. The appraisers shall appoint a third appraiser, who shall be a competent and impartial person with qualifications similar to those required of the first two appraisers pursuant to subpart (A) above. If they are unable to agree upon such appointment within seven (7) days after expiration of such fifteen (15) day period, the third appraiser shall be appointed by the then presiding judge of San Mateo County upon application by either party.

D. The three (3) appraisers shall meet not later than fifteen (15) days following the selection of the last appraiser. At such meeting, the three (3) appraisers shall attempt to determine the Fair Market Rent by the agreement of at least two (2) of the appraisers. If two (2) or more of the appraisers agree on the Fair Market Rent at the initial meeting, such agreement shall be determinative and binding upon the parties hereto and the agreeing appraisers shall, in simple letter form executed by the agreeing appraisers, forthwith notify both parties of the amount set by such agreement. If two (2) appraisers are unable to agree on the Fair Market Rent, all appraisers shall submit to both parties an independent appraisal of the Fair Market Rent in simple letter form within thirty (30) days following appointment of the final appraiser. The parties shall then determine the Fair Market Rent by averaging the three (3) appraisals; provided that any high or low appraisal, differing from the middle appraisal by more than ten percent (10%) of the middle appraisal, shall be disregarded in calculating the average.

E. In the event of a failure, refusal or inability of any appraiser to act, his or her successor shall be appointed by the party that appointed such appraiser, but in the case of the third appraiser, his or her successor shall be appointed in the same manner as provided for appointment of the third appraiser. Each party shall pay the fee and expenses of its respective appraiser and both shall share the fee and expenses of the third appraiser.

 


 

EXHIBIT E

 

FF&E

 

ID

Item

Number

Description

Notes

1

Office Desks

49

Sit/Stand office desks with integrated power and data cabling

 

2

Picnic lunch tables

4

Pinic style lunch tables, seating for 4

 

3

Dual-sided bench

4

Blue Fabric Benches for picnic tables 002-AB, seating for four

 

5

Cafeteria Tables

4

Tables with seating for 8

 

6

Cafeteria Chairs

15

White chairs for seating at tables 005-AB

 

7

High Wooden Work Table

2

Natural Wood work table with power outlet

 

8

High Stools

8

Black Stools Leather with back support for working at 007-AB

 

9

High Stools

5

Stools without back support

 

10

Refrigerator/Freezer

2

Bosch Model B26FT50SNS Combination Refrigerator/Freezer

Refrigerator on left side has a broken ice maker

11

Conference Room Table

1

Table in room labeled Mauna Kea

 

12

Conference Room Chair

13

Chairs in Mauna Kea

 

13

Conference Room Table

1

Table in room labeled Shasta

 

014-AB

Conference Room Chair

9

Chairs in Shasta

 

015-AB

Conference Room Table

1

Table in room labeled Whitney

 

016-AB

Conference Room Chair

13

Chairs in Whitney

 

14.363636

Whiteboards, small

6

Wall-mounted whiteboards in conference rooms

 

15.458042

Whiteboards, large

6

Wall-mounted whiteboards in conference rooms

 

16.552448

High Natural Wooden Cafeteria Table

1

Natural Wood work table

 

17.646853

High Stools

10

White Stools Plastic with back support for working at 016-AB