Exhibit 10.1
CERTAIN CONFIDENTIAL INFORMATION CONTAINED IN THIS DOCUMENT, MARKED BY [***], HAS BEEN OMITTED BECAUSE IT IS BOTH (I) NOT MATERIAL AND (II) IS THE TYPE THAT THE REGISTRANT TREATS AS PRIVATE OR CONFIDENTIAL
SUBLEASE
This SUBLEASE (“Sublease”), dated as of the 13 day of March, 2025 (“Effective Date”), is between Siemens Medical Solutions USA, Inc., a Delaware corporation, having an office at 40 Liberty Blvd., Malvern, Pennsylvania 19355 (“Sublandlord”), and Knightscope, Inc., a Delaware corporation, having an office at 1070 Terra Bella Avenue, Mountain View, California 94043 (“Subtenant”).
RECITALS
WHEREAS, Sublandlord is the tenant of certain premises (the “Demised Premises”) in the building located at 305 N. Mathilda Avenue, Sunnyvale, California 94085 (the “Building”), pursuant to a lease dated as of June 21, 2022, with 305 N Mathilda LLC, a Delaware limited liability company, as landlord (“Prime Landlord”) (such lease being referred to as the “Prime Lease”). A copy of the Prime Lease (with certain terms, such as rentals, deleted therefrom) is annexed hereto as Exhibit A; and
WHEREAS, Subtenant wishes to sublet from Sublandlord the entire Demised Premises, containing approximately 33,355 rentable square feet and being more particularly described on the floor plan annexed hereto as Exhibit B and being referred to as the “Subleased Premises”.
NOW, THEREFORE, for good and valuable consideration, the receipt and sufficiency of which are hereby acknowledged, Sublandlord and Subtenant agree as follows:
[***]
[Signatures on the following page(s)]
IN WITNESS WHEREOF, Sublandlord and Subtenant have executed this Sublease as of the Effective Date.
Sublandlord:
SIEMENS MEDICAL SOLUTIONS USA, INC.,
a Delaware corporation
By: /s/ Lisa Linnell
Name: Lisa Linnell
Title: Head’ SHS RE NAM
By: /s/ Donna Colona
Name: Donna Colona
Title: Head, SHS RE NAM FI LM
Subtenant:
KNIGHTSCOPE, INC.,
a Delaware corporation
By: /s/ William Santana Li
Name: William Santana Li
Title: Chairman and CEO
By: /s/ Apoorv Dwivedi
Name: Apoorv Dwivedi
Title: CFO
EXHIBIT A
PRIME LEASE
15
LEASE
BETWEEN
305 N MATHILDA LLC
AND
SIEMENS MEDICAL SOLUTIONS USA, INC.
LEASE
THIS LEASE is made as of June 21, 2022 by and between 305 N MATHILDA LLC, a Delaware limited liability company, hereafter called “Landlord,” and SIEMENS MEDICAL SOLUTIONS USA, INC., a Delaware corporation, hereafter called “Tenant.”
Each reference in this Lease to the “Basic Lease Provisions” shall mean and refer to the following collective terms, the application of which shall be governed by the provisions in the remaining Articles of this Lease.
1. | Tenant’s Trade Name: Intentionally Omitted. |
2. | Premises: 305 N. Mathilda Ave., Sunnyvale, CA 94085 (The Premises are more particularly described in Section 2.1.) |
Address of Building: 305 N. Mathilda Ave., Sunnyvale, CA 94085
Project: 305 N. Mathilda Ave, Sunnyvale, CA 94085 (as shown on Exhibit Y to this Lease)
3. | Permitted Use: General office, research and development, testing, storage and other ancillary uses permitted by applicable laws, regulations and ordinances. |
4. | Commencement Date: as defined in Section 3.1 of this Lease |
5. | Lease Term: 89 months, plus such additional days as may be required to cause this Lease to expire on the final day of the calendar month. |
6. | Basic Rent: |
7. | Expense Recovery Period: Every twelve month period during the Term (or portion thereof during the first and last Lease years) ending June 30. |
8. | Floor Area of Premises: approximately 33,355 rentable square feet |
Floor Area of Building: approximately 33,355 rentable square feet
9. | Security Deposit: None. |
10. | Broker(s): Irvine Management Company, CBRE/San Jose and Cushman & Wakefield/San Jose (collectively, “Landlord’s Broker”) is the agent of Landlord exclusively and Newmark Knight Frank/San Jose, Newmark Knight Frank/San Francisco, Newmark Knight Frank/ Dallas (collectively, “Tenant’s Broker”) is the agent of Tenant exclusively. |
Parking: Tenant shall have exclusive rights for use of the parking areas of the Project, which currently contain 122 parking spaces in accordance with the provisions set forth in Exhibit F to this Lease.
-1-
11. | Address for Payments and Notices: |
LANDLORD | TENANT |
Payment Registration Address: | Notice Address: |
Email tenantportal@irvinecompany.com to request an account for the Tenant Payment Portal. | SIEMENS MEDICAL SOLUTIONS USA, INC. |
| 40 Liberty Boulevard |
| Malvern, PA 19355 |
| Attn: Corporate Real Estate Dept. |
Notice Address: | With a required copy to: |
305 N. Mathilda LLC\ | SIEMENS MEDICAL SOLUTIONS USA, INC. |
5451 Great America Parkway, Suite 201 | 40 Liberty Boulevard |
Santa Clara, CA 95054 | Malvern, PA 19355 |
Attn:Property Manager | Attn: General Counsel - NAM |
| |
with a copy of notices to: | |
| |
IRVINE MANAGEMENT COMPANY | |
550 Newport Center Drive | |
Newport Beach, CA 92660 | |
Attn: Senior Vice President, Property Operations Office Properties | |
LIST OF LEASE EXHIBITS (All exhibits, riders and addenda attached to this Lease are hereby incorporated into and made a part of this Lease):
Exhibit ADepiction of the Building and Premises
Exhibit BOperating Expenses
Exhibit CUtilities and Services
Exhibit DTenant’s Insurance
Exhibit ERules and Regulations
Exhibit FParking
Exhibit GAdditional Provisions
Exhibit G-1Preapproved Signage
Exhibit HLandlord’s Disclosures
Exhibit JSurvey Form
Exhibit KCommencement Memorandum
Exhibit LEnvironmental Addendum
Exhibit XWork Letter
Exhibit YProject Description
-2-
-3-
-4-
-5-
This Section 5.4 shall be subject to the terms and conditions of the Environmental Addendum attached hereto as Exhibit L.
-6-
-7-
-8-
-9-
Except as otherwise provided herein, Landlord’s temporary inability to furnish any services or utilities required to be furnished by Landlord under this Lease shall not entitle Tenant to any damages, relieve Tenant of the obligation to pay rent or constitute a constructive or other eviction of Tenant, except that Landlord shall diligently attempt to restore the service or utility promptly. Tenant shall comply with all rules and regulations which Landlord may reasonably establish for the provision of services and utilities, and shall cooperate with all reasonable conservation practices established by Landlord. Landlord shall at all reasonable times have free access to all electrical and mechanical installations of Landlord, subject to Landlord’s access and entry requirements under this Lease.
-10-
Notwithstanding any language to the contrary, if (i) (A) Landlord enters the Premises pursuant to Section 7.5 below, (B) Landlord performs any construction or demolition work on or about the Project, (C) Landlord fails to provide any services required of Landlord under this Lease, (D) Landlord fails to perform any of Landlord’s repair obligations required under this Lease, and/or (E) an interruption or cessation in the provision of electricity or other utilities or services to the Premises results from the negligence or acts or omissions of Landlord or Landlord’s agents, employees or contractors, (ii) the same causes all or a material portion of the Premises to be untenantable by Tenant and Tenant actually ceases to use all or such material portion of the Premises, and (iii) such failure is reasonably within Landlord’s ability to cure, then in order to be entitled to receive the benefits of this Section 6.1, Tenant must give Landlord notice (the “Initial Abatement Notice”), specifying such circumstances described above (the “Abatement Event”). If Landlord has not commenced to cure such Abatement Event within three (3) business days after the receipt of the Initial Abatement Notice and is not otherwise excused from such performance by this Lease, then prior to any abatement, Tenant must deliver an additional notice to Landlord (the “Additional Abatement Notice”), specifying such Abatement Event and Tenant’s intention to abate the payment of Rent under this Lease. If Landlord does not commence to cure such Abatement Event within three (3) business days of receipt of the Additional Abatement Notice and thereafter diligently pursue the cure to completion, Tenant may, upon written notice to Landlord, immediately abate Basic Rent and Tenant’s Share of Operating Expenses payable under this Lease for that portion of the Premises rendered untenantable and not actually used by Tenant, for the period beginning on the date that is three (3) business days prior to delivery of the Additional Abatement Notice to the earlier of the date Landlord cures such Abatement Event or the date Tenant recommences the use of such portion of the Premises. Such right to abate Rent shall be a Tenant remedy for an Abatement Event, provided Tenant shall continue to have the right to claim a Landlord default for any Abatement Event and pursue remedies for such default under this Lease. In addition, if Landlord has not cured any such Abatement Event within one hundred fifty (150) days after the Landlord’s receipt of written notice of the Abatement Event from Tenant, Tenant shall additionally have the right to terminate this Lease upon written notice to Landlord until such time as Landlord shall have cured the Abatement Event. Except as otherwise provided in this Lease, nothing contained herein shall be interpreted to mean that Tenant is excused from paying Rent due hereunder.
-11-
Except as otherwise provided in this Lease, including Section 6.1 above and Section 11.1 and Article 12 below, there shall be no abatement of rent and no liability of Landlord by reason of any injury to or interference with Tenant’s business arising from the making of any repairs, alterations or improvements to any portion of the Building, including repairs to the Premises, nor shall any related activity by Landlord constitute an actual or constructive eviction; provided, however, that in making repairs, alterations or improvements, Landlord shall not materially and adversely interfere with the conduct of Tenant’s business in the Premises. Tenant hereby waives any and all rights under and benefits of subsection 1 of Section 1932, and Sections 1941 and 1942 of the California Civil Code, or any similar or successor statutes now or hereafter in effect.
-12-
-13-
[Intentionally omitted]
-14-
-15-
-16-
-17-
-18-
-19-
Either party may terminate this Lease if any material part of the Premises or Project is taken or condemned for any public or quasi-public use under Law, by eminent domain or private purchase in lieu thereof (a “Taking”). The termination shall be effective as of the effective date of any order granting possession to, or vesting legal title in, the condemning authority. If this Lease is not terminated, Basic Rent and Tenant’s Share of Operating Expenses shall be appropriately adjusted to account for any reduction in the square footage of the Building or Premises, or loss of parking spaces in the Project. All compensation awarded for a Taking shall be the property of Landlord and the right to receive compensation or proceeds in connection with a Taking are expressly waived by Tenant; provided, however, Tenant may file a separate claim for Tenant’s personal property and Tenant’s reasonable relocation expenses, provided the filing of the claim does not diminish the amount of Landlord’s award. If only a part of the Premises or Project is subject to a Taking and this Lease is not terminated, Landlord, with reasonable diligence, will restore the remaining portion thereof as nearly as practicable to the condition immediately prior to the Taking. Tenant agrees that the provisions of this Lease shall govern any Taking and shall accordingly supersede any contrary statute or rule of law.
-20-
-21-
The notice periods provided herein are in lieu of, and not in addition to, any notice periods provided by law, and Landlord shall not be required to give any additional notice under California Code of Civil Procedure Section 1161, or any successor statute, in order to be entitled to commence an unlawful detainer proceeding in the event of an uncured Default by Tenant.
-22-
-23-
-24-
Except as otherwise expressly provided in this Lease, all sums payable by Tenant to Landlord shall be paid, without deduction or offset, in lawful money of the United States to Landlord at its address set forth in Item 12 of the Basic Lease Provisions, or at any other place as Landlord may designate in writing. Unless this Lease expressly provides otherwise, as for example in the payment of rent pursuant to Section 4.1, all payments shall be due and payable within 30 days after demand with reasonable supporting documentation. All payments requiring proration shall be prorated on the basis of the number of days in the pertinent calendar month or year, as applicable. Any notice, election, demand, consent, approval or other communication to be given
-25-
or other document to be delivered by either party to the other shall be delivered to the other party, at the address set forth in Item 12 of the Basic Lease Provisions, by personal service, or by any nationally recognized courier or “overnight” express mailing service. Either party may, by written notice to the other, served in the manner provided in this Article, designate a different address. The refusal to accept delivery of a notice, or the inability to deliver the notice (whether due to a change of address for which notice was not duly given or other good reason), shall be deemed delivery and receipt of the notice as of the date of attempted delivery.
Tenant agrees to comply with the Rules and Regulations attached as Exhibit E, and any reasonable and nondiscriminatory amendments, modifications and/or additions as may be adopted and published by written notice to tenants by Landlord for the safety, care, security, good order, or cleanliness of the Premises, Building, and/or Project; provided that any such amendments, modifications and/or additions shall not materially adversely impact Tenant’s permitted use of the Premises nor result in any material increase in cost to Tenant hereunder. In the case of any conflict between the Rules and Regulations and this Lease, this Lease shall be controlling.
The parties recognize as the broker(s) who negotiated this Lease the firm(s) whose name(s) is (are) stated in Item 10 of the Basic Lease Provisions, and agree that Landlord shall be responsible for the payment of all brokerage commissions due to Landlord’s Broker and Tenant’s Broker in connection with this Lease. It is understood that Landlord’s Broker represents only Landlord in this transaction and Tenant’s Broker represents only Tenant. Each party represents and warrants that it has had no dealings with any other real estate broker or agent in connection with the negotiation of this Lease, and agrees to indemnify and hold the other party harmless from any cost, expense or liability (including reasonable attorneys’ fees) for any compensation, commissions or charges claimed by any other real estate broker or agent employed or claiming to represent or to have been employed by the indemnifying party in connection with the negotiation of this Lease. The foregoing agreement shall survive the termination of this Lease.
In the event of any transfer of Landlord’s interest in the Premises, the transferor shall be automatically relieved of all obligations on the part of Landlord accruing under this Lease from and after the date of the transfer, provided that Tenant is duly notified of the transfer and the transferee has agreed in writing to assume all such obligations of Landlord. Any funds held by the transferor in which Tenant has an interest, including without limitation, the Security Deposit, shall be turned over, subject to that interest, to the transferee. No Mortgagee to which this Lease is or may be subordinate shall be responsible in connection with the Security Deposit unless the Mortgagee actually receives the Security Deposit. It is intended that the covenants and obligations contained in this Lease on the part of Landlord shall, subject to the foregoing, be binding on Landlord, its successors and assigns, only during and in respect to their respective successive periods of ownership.
-26-
-27-
-28-
-29-
(Signatures follow on next page)
-30-
IN WITNESS WHEREOF, the parties have executed this Lease as of the day and year first above written.
LANDLORD: | TENANT: |
305 N MATHILDA LLC, | SIEMENS MEDICAL SOLUTIONS USA, INC., a Delaware corporation |
By:/s/ Charles H. Fedalen, Jr. | By:/s/ Lisa Linnell |
Charles H. Fedalen, Jr. | Printed Name: Lisa Linnell |
President and Chief Financial Officer, Office Properties | Title: Head of SHS RE NAM |
| |
By:/s/ Jonathan Brinsden | By:/s/ Jay Appian |
Jonathan Brinsden | Printed Name: Jay Appian |
President, Office Properties | Title: Head of SHS RE NAM FI |
| |
| By:/s/ David Pacitti |
| Printed Name: David Pacitti |
| Title: Head of SHS NAM FI |
| |
| By:/s/ Sebastian Funk |
| Printed Name: Sebastian Funk |
| Title: Head of SHS NAM FI |
| |
31
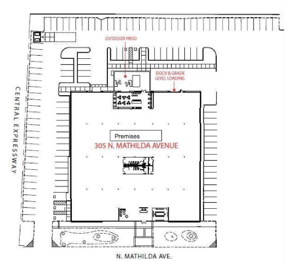
EXHIBIT A
DEPICTION OF THE BUILDING AND PREMISES
305 N. MATHILDA AVENUE

EXHIBIT A
-1-
EXHIBIT B
OPERATING EXPENSES
(Net)
(a)From and after the Commencement Date, Tenant shall pay to Landlord, as additional rent, Tenant’s Share of all Operating Expenses, as defined in Section (f) below, incurred by Landlord in the operation of the Building and the Project. The term “Tenant’s Share” means that portion of any Operating Expenses determined by multiplying the cost of such item by a fraction, the numerator of which is the Floor Area of Premises and the denominator of which is the total rentable square footage of the Building. In the event that any management and/or overhead fee payable or imposed by Landlord for the management of Tenant’s Premises is calculated as a percentage of the rent payable by Tenant and other tenants of Landlord, then the full amount of such management and/or overhead fee which is attributable to the rent paid by Tenant shall be additional rent payable by Tenant, in full, provided, however, that Landlord may elect to include such full amount as part of Tenant’s Share of Operating Expenses.
(b)Commencing prior to the start of the first full “Expense Recovery Period” of the Lease (as defined in Item 7 of the Basic Lease Provisions), and prior to the start of each full or partial Expense Recovery Period thereafter, Landlord shall give Tenant a written estimate of the amount of Tenant’s Share of Operating Expenses for the applicable Expense Recovery Period. Tenant shall pay the estimated amounts to Landlord in equal monthly installments, in advance, concurrently with payments of Basic Rent. If Landlord has not furnished its written estimate for any Expense Recovery Period by the time set forth above, Tenant shall continue to pay monthly the estimated Tenant’s Share of Operating Expenses in effect during the prior Expense Recovery Period; provided that when the new estimate is delivered to Tenant, Tenant shall, at the next monthly payment date, pay any accrued estimated Tenant’s Share of Operating Expenses based upon the new estimate. Landlord may from time to time change the Expense Recovery Period to reflect a calendar year or a new fiscal year of Landlord, as applicable, in which event Tenant’s Share of Operating Expenses shall be equitably prorated for any partial year.
(c)Within 180 days after the end of each Expense Recovery Period, Landlord shall furnish to Tenant a statement (a “Reconciliation Statement”) showing in reasonable detail, and general major categories, the actual or prorated Tenant’s Share of Operating Expenses incurred by Landlord during such Expense Recovery Period, and the parties shall within 30 days thereafter make any payment or allowance necessary to adjust Tenant’s estimated payments of Tenant’s Share of Operating Expenses, if any, to the actual Tenant’s Share of Operating Expenses as shown by the Reconciliation Statement. Upon Tenant’s request within 90 days of receipt of a Reconciliation Statement, Landlord shall provide copies of original invoices and other reasonable documentation substantiating the Reconciliation Statement. Any delay or failure by Landlord in delivering any Reconciliation Statement shall not constitute a waiver of Landlord’s right to require Tenant to pay Tenant’s Share of Operating Expenses pursuant hereto (provided that in the event that such failure continues for a period of six (6) months following receipt of notice from Tenant, Tenant may elect to seek specific performance). Any amount due Tenant shall be credited against installments next coming due under this Exhibit B, and any deficiency shall be paid by Tenant together with the next installment. Should Tenant fail to object in writing to Landlord’s determination of Tenant’s Share of Operating Expenses, or fail to give written notice of its intent
EXHIBIT B
-1-
to audit Landlord’s Operating Expenses pursuant to the provisions of this Exhibit B, within 180 days following delivery of Landlord’s Reconciliation Statement, Landlord’s determination of Tenant’s Share of Operating Expenses for the applicable Expense Recovery Period shall be conclusive and binding on Tenant for all purposes and any future claims by Tenant to the contrary shall be barred.
Provided Tenant is not then in Default hereunder, Tenant shall have the right to cause a certified public accountant, engaged on a non-contingency fee basis, to audit Operating Expenses by inspecting Landlord’s general ledger of expenses not more than once during any Expense Recovery Period. However, to the extent that insurance premiums or any other component of Operating Expenses is determined by Landlord on the basis of an internal allocation of costs utilizing information Landlord in good faith deems proprietary, such expense component shall not be subject to audit so long as it does not exceed the amount per square foot typically imposed by landlords of other first class office projects in Santa Clara County, California. Tenant shall give notice to Landlord of Tenant’s intent to audit within 365 days after Tenant’s receipt of Landlord’s expense statement which sets forth Landlord’s actual Operating Expenses. Such audit shall be conducted at a mutually agreeable time during normal business hours at the office of Landlord or its management agent where such accounts are maintained. If Tenant’s audit determines that actual Operating Expenses have been overstated by more than 5%, then subject to Landlord’s right to review and/or contest the audit results, Landlord shall reimburse Tenant for the reasonable out-of-pocket costs of such audit. Tenant’s rent shall be appropriately adjusted to reflect any overstatement in Operating Expenses. All of the information obtained by Tenant and/or its auditor in connection with such audit, as well as any compromise, settlement, or adjustment reached between Landlord and Tenant as a result thereof, shall be held in strict confidence and, except as may be required pursuant to litigation, shall not be disclosed to any third party, directly or indirectly, by Landlord or Tenant or their auditor or any of their officers, agents or employees. Landlord may require Tenant’s auditor to execute a separate confidentiality agreement affirming the foregoing as a condition precedent to any audit.
(d) Even though this Lease has terminated and the Tenant has vacated the Premises, when the final determination is made of Tenant’s Share of Operating Expenses for the Expense Recovery Period in which this Lease terminates, Tenant shall within 30 days of written notice pay the entire increase over the estimated Tenant’s Share of Operating Expenses already paid. Conversely, any overpayment by Tenant shall be rebated by Landlord to Tenant not later than 30 days after such final determination. However, in lieu thereof, Landlord may deliver a reasonable estimate of the anticipated reconciliation amount to Tenant prior to the Expiration Date of the Term, in which event the appropriate party shall fund the amount by the Expiration Date.
(e)If, at any time during any Expense Recovery Period, any one or more of the Operating Expenses are increased to a rate(s) or amount(s) in excess of the rate(s) or amount(s) used in calculating the estimated Tenant’s Share of Operating Expenses for the year, then the estimate of Tenant’s Share of Operating Expenses may be increased by written notice from Landlord for the month in which such rate(s) or amount(s) becomes effective and for all succeeding months by an amount equal to the estimated amount of Tenant’s Share of the increase. Landlord shall give Tenant written notice of the amount or estimated amount of the increase, the month in which the increase will become effective, Tenant’s Share thereof and the months for which the payments are due. Tenant shall pay the increase to Landlord as part of the Tenant’s monthly
EXHIBIT B
-2-
payments of estimated expenses as provided in paragraph (b) above, commencing with the month in which effective.
(f)The term “Operating Expenses” shall mean and include all Project Costs, as defined in Section (g) below, and Property Taxes, as defined in Section (h) below.
(g)The term “Project Costs” shall mean all expenses of operation, management, repair, replacement and maintenance of the Building and the Project, and shall include the following charges by way of illustration but not limitation: water and sewer charges; insurance premiums, deductibles, or reasonable premium equivalents or deductible equivalents should Landlord elect to self-insure any risk that Landlord is authorized to insure hereunder; license, permit, and inspection fees; light; power; window washing; trash pickup; heating, ventilating and air conditioning; supplies; materials; equipment; tools; reasonable fees for consulting services; access control/security costs, inclusive of the reasonable cost of improvements made to enhance access control systems and procedures; establishment of reasonable reserves for replacement of the roof of the Building (not to exceed not to exceed $0.02 per rentable square foot of the Premises per month for the Term); costs incurred in connection with compliance with any laws or changes in laws applicable to the Building or the Project enacted after the Effective Date except to the extent the same are a Capital Expenditure not permitted to be charged to Tenant pursuant to the terms of this Lease; the cost of any capital improvements or replacements (other than tenant improvements for specific tenants) to the extent of the amortized amount thereof over the useful life of such capital improvements or replacements (or, if such capital improvements or replacements are anticipated to achieve a cost savings as to the Operating Expenses, any shorter estimated period of time over which the cost of the capital improvements or replacements would be recovered from the estimated cost savings) calculated at a market cost of funds, all as determined using sound and consistently applied accounting and real estate management practices, for each year of useful life or shorter recovery period of such capital expenditure for capital expenditures occurring during the Term, except that capital expenditures that may be included in Operating Expenses shall be limited to (1) improvements which are reasonably intended to increase or enhance building security and/or safety (such as lighting, life/fire safety systems, etc.), (2) repairs or replacements of the Building structure, Building systems or other portions of the Project when the same have become obsolete, reached the end of their useful lives, or become damaged or worn out such that they are, in Landlord’s reasonable determination, inconsistent with the first-class quality and character of the Project, (3) improvements required to comply with any law or change in law becoming effective as to the Building after the Commencement Date, and/or (4) expenditures incurred as a cost or labor saving measure or to effect other economies in the operation or maintenance of the Building or other portions of the Project provided that Landlord, based on expert third party advice, reasonably believes that such improvements will reduce operating expense costs (collectively, “Permitted Capital Items”); costs associated with the maintenance of an air conditioning, heating and ventilation service agreement, and maintenance of any communications or networked data transmission equipment, conduit, cabling, wiring and related telecommunications facilitating automation and control systems, remote telecommunication or data transmission infrastructure within the Building and/or the Project, and any other maintenance, repair and replacement costs associated with such infrastructure; capital costs associated with a requirement related to demands on utilities by Project tenants, including without limitation the cost to obtain additional voice, data and modem connections; labor; reasonably allocated wages and salaries, fringe benefits, and payroll taxes for administrative and
EXHIBIT B
-3-
other personnel directly applicable to the Building and/or Project, including both Landlord’s personnel and outside personnel; any expense incurred and permitted pursuant to Sections 6.1, 6.2, 7.2, and 10.2, and Exhibits C and F of the Lease; and reasonable overhead and/or management fees for the professional operation of the Project (provided that Tenant’s Share of management fees shall not exceed 3% of Basic Rent). It is understood and agreed that Project Costs may include competitive charges for direct services (including, without limitation, management and/or operations services) provided by any subsidiary, division or affiliate of Landlord. Except for a management fee, Landlord shall not collect more from Tenant in Operating Expenses than Landlord actually incurs for such Operating Expenses.
Notwithstanding the foregoing, in any given Expense Recovery Period earthquake insurance deductibles included in Project Costs shall be limited to an amount (the “Annual Limit”) not to exceed 0.5% of the total insurable value of the Project per occurrence (provided, however, that, notwithstanding anything else herein to the contrary, if, for any occurrence, the earthquake insurance deductible exceeds the Annual Limit, then, after such deductible is included (up to the Annual Limit) in Project Costs for the applicable Expense Recovery Period, such excess may be included (up to the Annual Limit) in Project Costs for the immediately succeeding Expense Recovery Period, and any portion of such excess that is not so included in Project Costs for such immediately succeeding Expense Recovery Period may be included (up to the Annual Limit) in Project Costs for the next succeeding Expense Recovery Period, and so on with respect to each subsequent Expense Recovery Period; provided further, however, that in no event shall the portions of such deductible that are included in Project Costs for any one or more Expense Recovery Periods exceed, in the aggregate, 5.0% of the total insurable value of the Project).
(h)The term “Property Taxes” shall include any form of federal, state, county or local government or municipal taxes, fees, charges or other impositions of every kind (whether general, special, ordinary or extraordinary) related to the ownership, leasing or operation of the Premises, Building or Project, including without limitation, the following: (i) all real estate taxes or personal property taxes levied against the Premises, the Building or Project, as such property taxes may be reassessed from time to time; and (ii) other taxes, charges and assessments which are levied on this Lease or to the Building and/or the Project, and any improvements, fixtures and equipment and other property of Landlord located in the Building and/or the Project, (iii) all assessments and fees levied upon the Building or the Project for public improvements, services, and facilities and impacts thereon, including without limitation arising out of any Community Facilities Districts, “Mello Roos” districts, similar assessment districts, and any traffic impact mitigation assessments or fees; (iv) any tax, surcharge or assessment which shall be levied upon the Building or the Project in addition to or in lieu of real estate or personal property taxes, and (v) taxes based on the receipt of rent (including gross receipts or sales taxes applicable to the receipt of rent), and (vi) costs and expenses incurred in contesting the amount or validity of any Property Tax by appropriate proceedings. Notwithstanding the foregoing, general net income or franchise taxes imposed against Landlord shall be excluded.
If Landlord appeals Property Taxes assessed against the Building for any fiscal year during the Term and receives any refund as a result of such appeal, Landlord shall credit Tenant for Tenant’s pro rata share of such refund (after deducting all expenses incurred in connection with the appeal), or if the Term has expired, Landlord shall reimburse Tenant for Tenant’s pro rata share
EXHIBIT B
-4-
of such refund allocable to fiscal years during the Term (after deducting all expenses incurred in connection with the appeal).
(i)Notwithstanding the foregoing or any language in the Lease to the contrary, Operating Expenses shall exclude the following:
(1)Any ground lease or master lease rental;
(2)Costs incurred by Landlord with respect to goods and services (including utilities sold and supplied to tenants and occupants of the Building) to the extent that Landlord is reimbursed for such costs other than through the Operating Expense pass-through provisions of such tenants’ lease;
(3)Costs incurred by Landlord for repairs, replacements and/or restoration to or of the Building to the extent that Landlord is reimbursed by insurance (or would have been reimbursed by insurance had Landlord carried the insurance required under this Lease) or condemnation proceeds or by tenants (other than through Operating Expense pass throughs), warrantors or other third persons;
(4)Costs, including permit, license and inspection costs, incurred with respect to the installation of tenant improvements made for other tenants in the Building or incurred in renovating or otherwise improving, decorating, painting or redecorating vacant space for tenants or other occupants of the Building;
(5)Costs arising from Landlord’s charitable, civic or political contributions or donations;
(6)The cost of remediation, testing, cleanup, containment, removal, and storage of Hazardous Materials, including, asbestos removal or encapsulation;
(7)Capital expenditures as determined in accordance with generally accepted accounting principles, consistently applied, and as generally practiced in the real estate industry (“GAAP”), except for Permitted Capital Items;
(8)Brokers’ commissions, finders’ fees, marketing, advertising and promotional expenditures, accountants’, consultants’, auditors’ or attorneys’ fees, cost and disbursements and other expenses incurred in connection with negotiations or disputes with other tenants or prospective tenants or other occupants, entertainment and travel expenses and other costs incurred by Landlord in leasing or attempting to lease space in the Building;
(9)Expenses in connection with services or other benefits which are not offered to Tenant or for which Tenant is charged for directly;
(10)Costs, fines and fees incurred by Landlord due to the violation by Landlord of any law, code, regulation, or ordinance;
(11)Overhead and profit increments paid to subsidiaries or affiliates of Landlord for services provided to the Building to the extent the same exceeds the costs that would generally
EXHIBIT B
-5-
be charged for such services if rendered on a competitive basis (based upon a standard of similar office buildings in the general market area of the Premises) by unaffiliated third parties capable of providing such service;
(12)Interest on debt or amortization on any mortgage or mortgages encumbering the Building or any other borrowings, and costs incurred by Landlord in connection with any financing affecting the Project or Landlord’s interest therein;
(13)Landlord’s general corporate overhead, except as it relates to the specific management, operation, repair, replacement and maintenance of the Building or Project;
(14)Costs of installing the initial landscaping and the initial sculpture, paintings and objects of art for the Building and Project;
(15)Advertising expenditures;
(16)Any bad debt loss, rent loss, or reserves for bad debts or rent loss;
(17)Costs associated with the operation of the business of the partnership or entity which constitutes the Landlord, as the same are distinguished from the costs of the operation, management, repair, replacement and maintenance of the Project, including partnership accounting and legal matters, costs of defending any lawsuits with any mortgagee (except as the actions of Tenant may be in issue), costs of selling, syndicating, financing, mortgaging or hypothecating any of Landlord’s interest in the Project, and costs incurred in connection with any disputes between Landlord and its employees, between Landlord and Project management, or between Landlord and other tenants or occupants;
(18)The wages and benefits of any employee who does not devote substantially all of his or her employed time to the Project unless such wages and benefits are prorated to reflect time spent on operating and managing the Project vis-a-vis time spent on matters unrelated to operating and managing the Project; provided that in no event shall Operating Expenses include wages and/or benefits attributable to personnel above the level of portfolio property manager or chief engineer;
(19)Any compensation paid to clerks, attendants or other persons in commercial concessions operated by Landlord, including any “pay for” parking facilities;
(20)Legal fees and costs, settlements, judgments or awards paid or incurred because of disputes between Landlord and other tenants or prospective occupants or prospective tenants/occupants or providers of goods and services to the Project, and costs and expenses associated with the enforcement of any leases or the defense of Landlord’s title to or interest in the real property or any part thereof;
(21)Depreciation and amortization;
(22)Any inheritance, estate, succession, documentary transfer, gift, franchise, corporation, net income or profit tax or capital levy that is or may be imposed upon Landlord;
EXHIBIT B
-6-
(23)Costs incurred in the original construction of the Building or incurred in the performance of Landlord’s Work;
(24)Any insurance policy premium in excess of those customarily carried on similar buildings in the general vicinity of the Project.
EXHIBIT B
-7-
EXHIBIT C
UTILITIES AND SERVICES
Tenant shall be responsible for and shall pay promptly, directly to the appropriate supplier, all charges for electricity metered to the Premises, telephone, telecommunications service, janitorial service, interior landscape maintenance, if any, and all other utilities, materials and services furnished directly to Tenant or the Premises or used by Tenant in, on or about the Premises during the Term, together with any taxes thereon. Landlord shall make a reasonable determination of Tenant’s proportionate share of the cost of water, gas, sewer, refuse pickup and any other utilities and services for the Project that are not separately metered to the Premises, and Tenant shall pay such amount to Landlord, as an item of additional rent, within 30 days after delivery of Landlord’s statement or invoice therefor together with reasonable supporting documentation. Alternatively, Landlord may elect to include such cost in the definition of Project Costs in which event Tenant shall pay Tenant’s proportionate share of such costs in the manner set forth in Section 4.2.
EXHIBIT C
-1-
EXHIBIT D
TENANT’S INSURANCE
The following requirements for Tenant’s insurance shall be in effect during the Term, and Tenant shall also cause any subtenant to comply with the requirements. Landlord reserves the right to adopt reasonable nondiscriminatory modifications and additions to these requirements.
1.Tenant shall maintain, at its sole cost and expense, during the entire Term: (i) commercial general liability insurance with respect to the Premises and the operations of Tenant in, on or about the Premises, on a policy form that is at least as broad as Insurance Service Office (ISO) CGL 00 01 (if alcoholic beverages are sold on the Premises, liquor liability shall be explicitly covered), which policy(ies) shall be written on an “occurrence” basis and for not less than $2,000,000 combined single limit per occurrence for bodily injury, death, and property damage liability; (ii) workers’ compensation insurance coverage as required by law, together with employers’ liability insurance coverage of at least $1,000,000 each accident and each disease; (iii) with respect to Alterations constructed by Tenant under this Lease, builder’s risk insurance, in an amount equal to the replacement cost of the work; and (iv) insurance against fire, vandalism, malicious mischief and such other additional perils as may be included in a standard “special form” policy, insuring all Alterations, trade fixtures, furnishings, equipment and items of personal property in the Premises, in an amount equal to not less than 90% of their replacement cost (with replacement cost endorsement), which policy shall also include business interruption coverage in an amount sufficient to cover 1 year of loss. In no event shall the limits of any policy be considered as limiting the liability of Tenant under this Lease.
2.All policies of insurance required to be carried by Tenant pursuant to this Exhibit D shall be written by insurance companies authorized to do business in the State of California and with a general policyholder rating of not less than “A-” and financial rating of not less than “VIII” in the most current Best’s Insurance Report. The deductible or other retained limit under any policy carried by Tenant shall be commercially reasonable, and Tenant shall be responsible for payment of such deductible or retained limit with waiver of subrogation in favor of Landlord. Any insurance required of Tenant may be furnished by Tenant under any blanket policy carried by it or under a separate policy. A certificate of insurance, certifying that the policy has been issued, provides the coverage required by this Exhibit and contains the required provisions, together with endorsements acceptable to Landlord evidencing the waiver of subrogation and additional insured provisions required below, shall be delivered to Landlord prior to the date Tenant is given the right of possession of the Premises. Proper evidence of the renewal of any insurance coverage shall also be delivered to Landlord not less than 30 days prior to the expiration of the coverage.
3.Tenant’s commercial general liability insurance shall contain a provision that the policy shall be primary to and noncontributory with any policies carried by Landlord, together with a provision including Landlord and any other parties in interest designated by Landlord as additional insureds. Tenant’s policies described in Subsections 1(ii), (iii) and (iv) above shall each contain a waiver by the insurer of any right to subrogation against Landlord, its agents, employees, contractors and representatives. Tenant also waives its right of recovery for any deductible or retained limit under same policies enumerated above. All of Tenant’s policies shall contain a provision that the insurer will not cancel or change the coverage provided by the policy without
EXHIBIT D
-1-
first giving Landlord 30 days’ prior written notice. Tenant shall also name Landlord as an additional insured on any excess or umbrella liability insurance policy carried by Tenant.
NOTICE TO TENANT: IN ACCORDANCE WITH THE TERMS OF THIS LEASE, TENANT MUST PROVIDE EVIDENCE OF THE REQUIRED INSURANCE TO LANDLORD’S MANAGEMENT AGENT PRIOR TO BEING AFFORDED ACCESS TO THE PREMISES.
EXHIBIT D
-2-
EXHIBIT E
RULES AND REGULATIONS
The following Rules and Regulations shall be in effect at the Building.
1.The sidewalks, halls, passages, elevators, stairways, and other areas of ingress and egress shall not be obstructed by Tenant or used by it for storage, for depositing items, or for any purpose other than for ingress to and egress from the Premises. Should Tenant have access to any balcony or patio area, Tenant shall not place any furniture in such area without the prior written approval of Landlord.
2.Except as provided in the Lease, neither Tenant nor any employee or contractor of Tenant shall go upon the roof of the Building without the prior written consent of Landlord.
3.Intentionally deleted.
4.Except as provided in the Lease, no antenna or satellite dish shall be installed by Tenant without the prior written agreement of Landlord.
5.The sashes, sash doors, windows, glass lights, solar film and/or screen, and any lights or skylights that reflect or admit light into the halls or other places of the Building shall not be covered or obstructed. If Landlord, by a notice in writing to Tenant, shall reasonably object to any curtain, blind, tinting, shade or screen attached to, or hung in, or used in connection with, any window or door of the Premises, the use of that curtain, blind, tinting, shade or screen shall be immediately discontinued and removed by Tenant. Interior of the Premises visible from the exterior must be maintained in a visually professional manner and consistent with a first class office building. Tenant shall not place any unsightly items (as determined by Landlord in its reasonable discretion) along the exterior glass line of the Premises including, but not limited to, boxes, and electrical and data cords. No awnings shall be permitted on any part of the Premises.
6.The installation and location of any unusually heavy equipment in the Premises, including without limitation file storage units, safes and electronic data processing equipment, shall require the prior written approval of Landlord.
7.Any pipes or tubing used by Tenant to transmit water to an appliance or device in the Premises must use materials that are compliant with applicable laws.
8.Tenant shall not place any lock(s) on any door in the Premises or Building without Landlord’s prior written consent, which consent shall not be unreasonably withheld. Upon the termination of its tenancy, Tenant shall deliver to Landlord all the keys to offices, rooms and toilet rooms and all access cards which shall have been furnished to Tenant or which Tenant shall have had made.
9.Tenant shall not install equipment requiring electrical or air conditioning service in excess of that to be provided by Landlord under the Lease without prior written approval from Landlord.
EXHIBIT E
-1-
10.Tenant shall not use space heaters within the Premises.
11.Tenant shall not do or permit anything to be done in the Premises, or bring or keep anything in the Premises, which shall in any way increase the insurance on the Building, or on the property kept in the Building, or conflict with any government rule or regulation.
12.Tenant shall not use or keep any foul or noxious gas or substance in the Premises.
13.Tenant shall not permit the Premises to be occupied or used in a manner offensive or objectionable to Landlord by reason of noise, odors and/or vibrations.
14.Tenant shall not permit any pets or animals in or about the Building. Bona fide service animals are permitted provided such service animals remain under the direct control of the individual they serve at all times, and do not disturb or threaten others.
15.Neither Tenant nor its employees, agents, contractors, invitees or licensees shall bring any firearm, whether loaded or unloaded, into the Project at any time.
16.Smoking tobacco, including via personal vaporizers or other electronic cigarettes, anywhere within the Premises, Building or Project is strictly prohibited except that smoking tobacco shall be permitted outside the Building and within the Project only in areas reasonably designated by Landlord. Smoking, vaping, distributing, growing or manufacturing marijuana or any marijuana derivative anywhere within the Premises, Building or Project is strictly prohibited.
17.Tenant shall not install an aquarium of any size in the Premises unless otherwise approved by Landlord. Notwithstanding the foregoing, Tenant shall be permitted to install and use water tanks on the Premises in connection with Tenant’s business operations, and subject to Landlord’s approval as an Alteration or Tenant Improvement.
18.Tenant shall not utilize any name selected by Landlord from time to time for the Building and/or the Project as any part of Tenant’s corporate or trade name. Landlord shall have the right to change the name, number or designation of the Building or Project without liability to Tenant. Tenant shall not use any picture of the Building in its advertising, stationery or in any other manner.
19.Tenant shall, upon request by Landlord, supply Landlord with the names and telephone numbers of personnel designated by Tenant to be contacted on an after-hours basis should circumstances warrant.
EXHIBIT E
-2-
EXHIBIT F
PARKING
Tenant shall be entitled to exclusive parking rights for the entire Project, including the number of vehicle parking spaces set forth in Item 11 of the Basic Lease Provisions. Such parking shall be at no additional charge to Tenant. All parking spaces shall be used only for parking of vehicles no larger than full size passenger automobiles, sport utility vehicles or pickup trucks. Tenant shall not permit or allow any vehicles that belong to or are controlled by Tenant or Tenant’s employees, suppliers, shippers, customers or invitees to be loaded, unloaded or parked in areas other than those areas suitable for such activities. Parking within the Project parking facilities shall be limited to striped parking stalls, and no parking shall be permitted in any driveways, access ways or in any area which would prohibit or impede the free flow of traffic within the Project parking facilities. There shall be no parking of any vehicles other than Tenant’s company vehicles for longer than a 48 hour period unless otherwise authorized by Landlord, and vehicles which have been abandoned or parked in violation of the terms hereof may be towed away at the owner’s expense. Notwithstanding any language to the contrary, Landlord hereby approves and agrees that Tenant may place and use a cargo container or earthquake trailer in the parking lot of the Project in the location generally shown on the Site Plan in Schedule 1 attached hereto or in another location reasonably designated by Tenant and Landlord, and in compliance with applicable laws. Nothing contained in this Lease shall be deemed to create liability upon Landlord for any damage to motor vehicles of visitors or employees, for any loss of property from within those motor vehicles, or for any injury to Tenant, its visitors or employees, unless determined to be caused by the sole negligence or willful misconduct of Landlord. Provided that Tenant’s access to, use of, and parking rights for the Premises are not diminished (other than to a deminimis effect), Landlord shall have the right to establish, and from time to time amend, and to enforce against all users all reasonable rules and regulations that Landlord may deem necessary and advisable for the proper and efficient operation and maintenance of parking within the Project parking facilities. Provided that Tenant’s access to, use of, and parking rights for the Premises are not diminished (other than to a deminimis effect), Landlord shall have the right to construct, maintain and operate lighting facilities within the parking areas; to change the area, level, location and arrangement of the parking areas and improvements therein; and to do and perform such other acts in and to the parking areas and improvements therein as, in the use of good business judgment, Landlord shall determine to be advisable. Any person using the parking area shall observe all directional signs and arrows and any posted speed limits. Except as otherwise provided herein, Parking areas shall be used only for parking vehicles. Washing, waxing, cleaning or servicing of vehicles, or the storage of vehicles for longer than 48-hours, is prohibited unless permitted hereunder or otherwise authorized by Landlord. Tenant shall be liable for any damage to the parking areas to the extent caused by Tenant or Tenant’s employees, suppliers, shippers, customers or invitees, including without limitation damage from excess oil leakage. Except as otherwise provided herein, Tenant shall have no right to install any fixtures, equipment or personal property in the parking areas unless approved by Landlord, which approval shall not be unreasonably withheld, conditioned or delayed. Tenant shall not assign or sublet any of the vehicle parking spaces, either voluntarily or by operation of law, without the prior written consent of Landlord, except in connection with an authorized assignment of this Lease or subletting of the Premises.
EXHIBIT F
-1-
SCHEDULE 1 TO EXHIBIT F
LOCATION OF CONTAINER

SCHEDULE 1 TO
EXHIBIT F
-1-
EXHIBIT G
ADDITIONAL PROVISIONS
1.EXTERIOR SIGNAGE
1.1MONUMENT SIGNAGE. Prior to the Commencement Date, Landlord shall construct a monument sign for the Project in the approximate location shown on Exhibit G-1. Provided Tenant is not in Default of this Lease, Tenant shall have the right to install non-exclusive signage on one slot of the Building monument in the general location shown on Exhibit G-1. Tenant shall use Landlord’s designated contractor for installing the monument signage.
1.2.Intentionally Deleted.
1.3GENERAL SIGNAGE TERMS. The size, design, graphics, material, style, color and other physical aspects of all Exterior Signage shall be subject to the prior written approval of Landlord (such approval not to be unreasonably withheld) and the City of Sunnyvale, and shall be consistent with Landlord’s reasonable signage criteria for the Project, as in effect from time to time and approved by the City in which the Premises are located (“Signage Criteria”). Prior to installation, Tenant shall provide Landlord with a copy of any applicable municipal or other governmental permits and approvals and evidence that the Exterior Signage is in compliance with any covenants, conditions or restrictions encumbering the Premises and the Signage Criteria. Tenant shall be responsible for all costs of any Exterior Signage, including, without limitation, the fabrication, installation, maintenance and removal thereof and the cost of any permits therefor. If Tenant fails to maintain any Exterior Signage in good condition, or if Tenant fails to remove same upon termination of this Lease and repair and restore any damage caused by the sign or its removal, Landlord may do so at Tenant’s expense. Landlord shall have the right to temporarily remove any signs in connection with any necessary repairs or maintenance in or upon the Building. Tenant shall use Landlord’s designated contractor for installing the Exterior Signage. The Exterior Signage shall consist only of the name “Siemens” or “Siemens Healthineers” or a similar derivation of either of the foregoing, and may not be transferred or assigned without Landlord’s prior written consent, which may be withheld by Landlord in Landlord’s sole discretion; provided, however, (a) Landlord agrees not to withhold its consent to an assignment of Tenant’s signage rights under this Section in connection with an assignment of all of Tenant’s interest in the Lease which is permitted under this Lease or otherwise approved by Landlord, and (b) such signage right shall be deemed to be assignable to any applicable Permitted Transferee. Notwithstanding anything to the contrary in this Section 1 above, in no event shall any “Objectionable Name” (as defined below) be placed on such signage. The term “Objectionable Name” shall mean any name which relates to an entity which is of a character or reputation, or is associated with a political orientation or faction, which is inconsistent with the quality of the Building as a first-class office building, or which would otherwise reasonably offend a landlord of comparable buildings. Notwithstanding the foregoing, the logo and color for Siemens Healthineers shown on Exhibit G-1 is hereby approved by Landlord for Tenant’s signage. Tenant shall also remove all Exterior Signage promptly following the expiration or earlier termination of the Lease. Any such removal shall be at Tenant’s sole expense, and Tenant shall bear the cost of any resulting repairs to the Building that are reasonably necessary due to the removal.
EXHIBIT G
-1-
2.RIGHT TO EXTEND. Provided that Tenant is not in Default under any provision of this Lease at the time of exercise of the extension right granted herein, and provided further that Tenant and/or a Permitted Transferee is occupying the entire Premises and Tenant has not assigned or sublet any of its interest in this Lease (except in connection with a Permitted Transfer of this Lease to a Permitted Transferee as described in Section 9.1(e) hereof), Tenant may extend the Term of this Lease for one additional period of 60 months.
The Basic Rent and additional rent payable under the Lease during the extension of the Term shall be at the prevailing fair market rental rate (including applicable periodic adjustments) for comparable and similarly improved office space being leased in comparable buildings in Sunnyvale, California, as of the commencement of the extension period (the “Prevailing Rate”). The Prevailing Rate shall take into account (i) the quality of improvements and age of the Building (based on the date of construction or major renovation), (ii) the amount of applicable operating expenses charged in connection with the space, (ii) the level of leasehold improvements and improvement allowances, (iii) the value of rent credits and other concessions (but excluding construction periods), and (iv) any other relevant and generally applicable monetary considerations affecting the proper determination of the fair market value rental rate.
Tenant shall exercise its right to extend the Term by and only by the following procedure: Tenant may (but is not obligated to) deliver to Landlord, not less than 12 months nor more than 15 months prior to the expiration date of the Term, Tenant’s written notice of its interest to extend (the “Interest Notice”). Provided that an Interest Notice has been timely delivered, not later than 11 months prior to the expiration date of the Term, Landlord shall advise Tenant of the proposed Prevailing Rate for the Extension Term. Following receipt of Landlord’s proposed Prevailing Rate, Tenant, may deliver to Landlord, not later than 9 months prior to the expiration date of the Term (but not sooner than 30 days after receipt of Landlord’s proposed Prevailing Rate), notice of its irrevocable exercise of its right to extend this Lease (the “Commitment Notice”), which Commitment Notice shall include either Tenant’s acceptance of Landlord’s proposed Prevailing Rate or Tenant’s rejection of Landlord’s proposed Prevailing Rate. If Tenant fails to timely provide Landlord with a Commitment Notice, the extension right shall become null and void. If Tenant provides Landlord with a Commitment Notice, and accepts Landlord’s proposed Prevailing Rate, Landlord and Tenant shall enter into an appropriate amendment to this Lease for the extension period (as provided below) upon the terms and conditions set forth herein. If Tenant provides a Commitment Notice, but rejects Landlord’s proposed Prevailing Rate, then the parties shall meet and confer and attempt to agree upon the Prevailing Rate. In the event that the parties are not able to agree on the Prevailing Rate within 120 days prior to the expiration date of the Term, then either party may elect, by written notice to the other party, to cause said rental, including subsequent adjustments, to be determined by appraisal as follows.
Within 10 days following receipt of such appraisal election, the parties shall attempt to agree on an appraiser to determine the Prevailing Rate. If the parties are unable to agree in that time, then each party shall designate an appraiser within 10 days thereafter. Should either party fail to so designate an appraiser within that time, then the appraiser designated by the other party shall determine the Prevailing Rate. Should each of the parties timely designate an appraiser, than the two appraisers so designated shall appoint a third appraiser who shall, acting alone, determine the fair market rental value of the Premises. Any appraiser designated hereunder shall have an M.A.I. certification or equivalent with not less than 5 years’ experience in the valuation of
EXHIBIT G
-2-
commercial office, research and development and life science buildings in Santa Clara County, California.
Within 10 days following the selection of the appraiser, Landlord and Tenant shall each submit in writing to the appraiser its determination of the rental rate for the extension period (respectively, the “Landlord’s Determination” and the “Tenant’s Determination”). Should either party fail timely to submit its rental determination, then the determination of the other party shall be conclusive and binding on the parties. The appraiser shall not disclose to either party the rental determination of the other party until the expiration of that 10 day period or, if sooner, the appraiser’s receipt of both the Landlord’s Determination and the Tenant’s Determination.
Within 30 days following the selection of the appraiser and such appraiser’s receipt of the Landlord’s Determination and the Tenant’s Determination, the appraiser shall determine whether the rental rate determined by Landlord or by Tenant more accurately reflects Prevailing Rate for the Premises, as reasonably extrapolated to the commencement of the extension term. Accordingly, either the Landlord’s Determination or the Tenant’s Determination shall be selected by the appraiser as the fair market rental rate for the extension period. In determining such value, the appraiser shall first consider comparable rentals for the Building and the Project, provided that if adequate comparables do not exist then the appraiser may consider transactions involving similarly improved space in comparable buildings in Sunnyvale with appropriate adjustments for differences in location and quality of project. In no event shall the appraiser attribute factors for brokerage commissions to reduce said fair market rental. At any time before the decision of the appraiser is rendered, either party may, by written notice to the other party, accept the rental terms submitted by the other party, in which event such terms shall be deemed adopted as the agreed fair market rental. The fees of the appraiser(s) shall be shared equally by both parties.
Within 20 days after the determination of the Prevailing Rate, Landlord shall prepare a reasonably appropriate and mutually and reasonably acceptable amendment to this Lease for the extension period and Tenant shall execute and return same to Landlord within 10 days. Should the Prevailing Rate not be established by the commencement of the extension period, then Tenant shall continue paying rent at the rate in effect during the last month of the initial Term, and a lump sum adjustment shall be made promptly upon the determination of such new rental.
If Tenant fails to timely comply with any of the provisions of this paragraph, Tenant’s right to extend the Term may, at Landlord’s election and in addition to any other remedies that may be available to Landlord, be extinguished, in which event the Lease shall automatically terminate as of the initial expiration date of the Term. Any attempt to assign or transfer any right or interest created by this Section to another party other than a Permitted Transferee shall be void from its inception. Tenant shall have no other right to extend the Term beyond the single 60 month extension created by this Section.
3.RIGHT TO TERMINATE. Provided Tenant is not then in Default under any provision of this Lease, Tenant shall have a one-time right to terminate this Lease effective as of the expiration of the 60th month of the initial Term. Tenant shall exercise such termination right by giving written notice thereof to Landlord (the “Termination Notice”) at least 12 months prior to the effective date of termination. All Rent and other costs due under this Lease for the Premises shall be due and payable by Tenant to Landlord through the effective date of termination. In
EXHIBIT G
-3-
addition, should Tenant exercise the foregoing right to terminate, Tenant shall pay to Landlord, within 45 days of its delivery of the Termination Notice (and as a condition subsequent to the effectiveness thereof), a separate termination fee, as reasonably computed by Landlord, comprised of the following: (i) 5 months of Basic Rent at the rate payable in effect as of 60th month of the initial Term; plus (ii) the unamortized portion (based upon a constant, straight line amortization over an 89 month period with 8% interest) as of the effective date of termination of (A) brokerage commissions paid by Landlord in connection with the Lease, (B) tenant improvement allowance funded by Landlord (but not including any supervision/administrative fee collected by Landlord in connection therewith); plus (iii) unamortized Abated Basic Rent (i.e. based upon the amortization of the Abated Basic Rent in equal monthly amounts during the initial Term, without interest), if any. Tenant’s rights under this Section shall be personal to the original Tenant named in this Lease and may not be assigned or transferred (except in connection with a Permitted Transfer of this Lease to an Affiliate as described in Section 9.1(e) hereof). Any other attempted assignment or transfer shall be void and of no force or effect.
4.SATELLITE DISH; ROOFTOP EQUIPMENT. Tenant shall have the right to maintain and operate within an area or areas reasonably designated by Landlord on the roof of the Building (the “Rooftop Area”), during the Term of this Lease, reasonable quantities and sizes of satellite dishes up to 24 inches in diameter (of which the height, appearance and installation procedures must be approved in writing by Landlord), antennas and related communications equipment and/or supplemental HVAC equipment (collectively the “Rooftop Equipment”) in accordance with and subject to the following terms. Landlord may impose a reasonable architectural review fee in connection with its approval of the Dish, and Tenant shall pay same promptly following demand. Tenant shall utilize a contractor acceptable to Landlord to install the Rooftop Equipment, which contractor shall comply with Landlord’s construction rules for the Building, including without limitation Landlord’s standard insurance requirements. Tenant shall use the Rooftop Area only for the operation and maintenance of the Rooftop Equipment and the necessary mechanical and electrical equipment to service the Rooftop Equipment. The right to utilize the Rooftop Equipment and Rooftop Area shall be limited solely to Tenant, and in no event may Tenant assign or sublicense such right (except in connection with an approved assignment of this Lease or a permitted assignment to an Affiliate as described in Section 9.1(e) hereof). Tenant shall not use or permit any other person to use the Rooftop Area for any improper use or for any operation which would constitute a nuisance, and Tenant shall at all times conform to and cause all persons using any part of the Rooftop Area to comply with all public laws, ordinances and regulations from time to time applicable thereto and to all operations thereon. In the event a pre-existing cable television system is operating in the area, Tenant shall at all times conduct its operations so as to ensure that the cable television system shall not be subject to harmful interference as a result of such operations by Tenant. Upon notification from Landlord of any such interference, Tenant agrees to immediately take the necessary steps to correct such situation. During the Lease Term, Tenant shall comply with any standards promulgated by applicable governmental authorities or otherwise reasonably established by Landlord regarding the Tenant’s generation of electromagnetic fields in relation to the Rooftop Equipment. Should Landlord determine in good faith at any time that the Rooftop Equipment poses a health or safety hazard to occupants of the Building or the proper functioning of the Building systems, Landlord may require Tenant to remove the Rooftop Equipment or make other arrangements satisfactory to Landlord. Any claim or liability resulting from the use of the Rooftop Equipment shall be subject to Tenant’s indemnification obligation as set forth in Section 10.3 of the Lease. Upon the expiration or earlier
EXHIBIT G
-4-
termination of this Lease, Tenant shall remove the Rooftop Equipment and all other equipment installed by it and shall restore the Rooftop Area to its original condition.
EXHIBIT G
-5-
EXHIBIT G-1
PREAPPROVED SIGNAGE
[***]
EXHIBIT G-1
-1-
EXHIBIT H
LANDLORD’S DISCLOSURES
| o | Figure 1, Indoor Air, Outdoor Air, Sub-Slab and Groundwater Sample Locations issued by West Environmental Services & Technology, dated October 2021, 305 N. Mathilda Avenue, Sunnyvale, California. |
| o | Table 1, Summary of Groundwater Sample Results, 305 N. Mathilda Avenue, Sunnyvale, California |
| o | Table 2, Summary of Indoor-Outdoor Air Sample Results, 305 N. Mathilda Avenue, Sunnyvale, California |
| o | Table 3, Summary of Soil Gas and Sub-Slab Gas Sample Results, 305 N. Mathilda Avenue, Sunnyvale, California |
EXHIBIT H
-1-
EXHIBIT J
SURVEY FORM
[***]
EXHIBIT J
-1-
EXHIBIT K
COMMENCEMENT MEMORANDUM
COMMENCEMENT | | | ||||
Date: | | Floor: | | |||
Building ID: | | Suite#: | | |||
Address: | | Lease ID: | | |||
City: | | | | |||
| | | ||||
We hereby acknowledge and agree to the following:
(a)The date of tender of possession by Landlord of the Premises is
(b)Rent will commence on
(c)The lease term will commence on and expire on .
Insurance Certificate Received: | | ||
Tenant signature | | Landlord signature | |
Print Name | | Print Name | |
Tenant signature | | | |
Print Name | | | |
A copy of the fully executed form must be sent to the Tenant, Accounting, Construction, and Leasing with the original maintained in the Lease file.
EXHIBIT K
-1-
EXHIBIT L
ENVIRONMENTAL ADDENDUM
1.Tenant Obligation. Any obligation, liability, or responsibility of Tenant or any Tenant Party under the Lease, including but not limited to any indemnification, will extend only to such Hazardous Materials (as defined in Section 5.4 of the Lease) which Tenant or a Tenant Party introduces onto, generates from, or exacerbates at the Premises or Project (“Tenant Hazardous Substances”). Notwithstanding anything to the contrary set forth in the Lease, neither Tenant nor the Tenant Parties shall have any responsibility or liability whatsoever resulting from or related to:
(i)any Hazardous Materials existing at, on, under, or in the Project prior to Tenant’s occupation thereof or that migrate onto the Project from outside the Project thereafter, except to the extent such responsibility or liability directly arises from any act by Tenant or any Tenant Parties (including, without limitation, any exacerbation of any such Hazardous Materials by Tenant or any Tenant Parties); provided that Tenant’s liability in any such instance is strictly limited to the incremental cost of response to such exacerbation directly caused by Tenant or any Tenant Parties;
(ii)the investigation, remediation, mitigation, cleanup, closure, and/or removal of any sumps, drains, above or under ground tanks, pipes or other structures or devices existing at the Project (other than those installed by Tenant under this Lease, if any) which contained, handled, or were otherwise used in connection with Hazardous Materials, except to the extent required as a result of Tenant or any Tenant Party’s use of Tenant Hazardous Substances; or
(iii)the presence or contamination of Hazardous Materials or any investigation or cleanup or mitigation resulting directly therefrom to the extent arising from Hazardous Materials deposited by any contractors, agents or representatives controlled by Landlord or any unrelated third-parties.
2.Landlord Representation. Landlord represents that, to Landlord’s actual knowledge, (i) there are no Hazardous Materials at the Building or Project, except as set forth in the information provided to Tenant as part of Landlord’s Disclosures, and (ii) the Landlord’s Disclosures include the most recent Phase I environmental site assessment applicable to the Project and Building. For purposes of this Section, “Landlord’s actual knowledge” shall be deemed to mean and limited to the current actual knowledge of the property manager for the Building at the time of execution of this Lease and not any implied, imputed, or constructive knowledge of said individual or of Landlord or any parties related to or comprising Landlord and without any independent investigation or inquiry having been made or any implied duty to investigate or make any inquiries; it being understood and agreed that such individual shall have no personal liability in any manner whatsoever hereunder or otherwise related to the transactions contemplated hereby.
3.Landlord Indemnification. Landlord shall indemnify, defend, and hold Tenant and any successors harmless from and against any and all losses, claims, demands, actions, suits, damages, liabilities, expenses and costs (including, without limitation, reasonable attorneys’ fees and court costs), whether foreseeable or unforeseeable, to the extent arising directly or indirectly
EXHIBIT L
-1-
out of (i) any breach of the representation set forth by Landlord in the immediately preceding paragraph, (ii) the actual, out of pocket cost of any investigation, remediation and removal arising from any Hazardous Materials that exist at, on, in, under or about the Building or the Project as of the Delivery Date, to the extent any applicable regulatory requirement, governmental entity or regulatory agency actually requires the investigation, remediation, and/or removal of the same or related alterations or improvements to the Building or Project, and (iii) Hazardous Materials released onto the Building or Project by Landlord or its contractors, agents, or representatives; provided, however, that in no event shall Landlord’s financial obligation with respect to the indemnity set forth in clause (i) of this Section 3 exceed $500,000.00 in the aggregate (it being acknowledged that such cap shall not apply with respect to Landlord’s indemnity of the matters described in clauses (ii) and (iii) of this Section 3). The obligations of Landlord under this paragraph shall survive termination of the Lease. In addition, Landlord covenants that Landlord shall be responsible, at Landlord’s sole cost, and not as an Operating Expense or otherwise, for the costs of remediating or encapsulating any Hazardous Materials in, on, or under the Project in violation of any Environmental Laws to the extent required to comply with Environmental Laws, and which are not Tenant’s obligation under Section 5.4 of the Lease and Section 1 above.
4.Normal Use Of Substances: Tenant may introduce onto, and handle, service, repair, store and use, in the normal course of Tenant’s business, any substances, materials or equipment consistent with ordinary office activities; provided, that Tenant will be responsible for the transportation, handling, storage, use, and disposal of such substances or materials (and any waste generated therefrom) in compliance with all applicable laws, rules, and regulations.
5.Conflict. In the event of any conflict between the terms of this Environmental Addendum and the terms of the Lease, the terms of this Environmental Addendum shall control.
EXHIBIT L
-2-
EXHIBIT X
WORK LETTER
[TENANT BUILD]
I.TENANT IMPROVEMENTS
The tenant improvement work (“Tenant Improvements”) shall consist of any work, except for the Landlord’s Work, required by Tenant to complete the Premises so that it is suitable for the Tenant’s use pursuant to approved plans and specifications. Tenant shall employ its own architect and general contractor in constructing the Tenant Improvements; it being understood that Tenant’s preferred architect shall be one of the following: Gordon Prill, ArcTec or CAS Architects. Tenant shall engage a reputable and licensed contractor selected by Tenant and reasonably approved by Landlord to construct the Tenant Improvements pursuant to the approved plans, specifications and drawings. Tenant shall provide to Landlord, no later than 45 days following the full and final execution of this Lease, the name(s) of Tenant’s preferred contractor(s). The work shall be undertaken and prosecuted in accordance with the following requirements:
A. | As soon as such items become available following the full execution of the Lease, construction drawings and specifications for all improvements and finishes, together with any changes thereto, shall be submitted to Landlord (with samples as appropriate) for review and approval by Landlord and its architect for the Project. Unless otherwise specified in the space plans, construction drawings and specifications, to the extent applicable, the build-out of the Tenant Improvements shall include Landlord’s building standard tenant improvements, materials and specifications for the Project. Should Tenant require and Landlord approve work that would necessitate any ancillary Building modification or other expenditure by Landlord, then except to the extent of any remaining balance of the “Landlord Contribution” as described below, Tenant shall, in addition to its other obligations herein, promptly pay the actual cost thereof to Landlord, provided that the scope and costs of such work has been approved by Tenant prior to the start of construction thereof. Landlord hereby consents to and approves the Tenant’s preliminary space plan attached to the Lease as Schedule 2 to Exhibit X (the “Space Plan”). |
B. | Intentionally deleted. |
C. | Landlord shall, subject to the foregoing, approve or disapprove any submittal of plans or specifications by Tenant within 5 business days following receipt thereof by Landlord. |
D. | Tenant shall use engineers and subcontractors designated by Tenant and reasonably acceptable to Landlord that do not vitiate or void any of Landlord’s warranties or guarantees for the Building. |
EXHIBIT X
-1-
E. | Tenant shall deliver to Landlord a copy of the final application for permit and issued permit for the construction work. |
F. | Tenant’s general contractor and each of its subcontractors shall comply with Landlord’s reasonable requirements as generally imposed on third party contractors, including without limitation all insurance coverage requirements and the obligation to furnish appropriate certificates of insurance to Landlord prior to commencement of construction. |
G. | A projected construction schedule shall be provided to Landlord prior to commencement of the construction work, and regular updates shall be supplied during the progress of the work. |
H. | Tenant shall give Landlord 10 days prior written notice of the commencement of construction so that Landlord may cause an appropriate notice of non-responsibility to be posted. |
I. | Tenant and its general contractor shall attend regular job meetings with Landlord’s construction manager for the Project. |
J. | Upon completion of the work, Tenant shall cause to be provided to Landlord, to the extent applicable, (i) as built drawings of the Premises signed by Tenant’s architect, (ii) CAD files of the improved space, (iii) a final punch list signed by Tenant, (iv) final and unconditional lien waivers from all contractors and subcontractors, (v) a duly recorded Notice of Completion of the improvement work, and (vi) a certificate of occupancy for the Premises (collectively, the “Close-out Package”). Should Tenant fail to provide complete CAD files as required herein, Landlord may cause its architect to prepare same and the cost thereof shall be reimbursed to Landlord by Tenant within 30 days of invoice therefor. |
K. | The work shall be prosecuted at all times in accordance with all state, federal and local laws, regulations and ordinances, including without limitation all OSHA and other safety laws. |
L. | All of the provisions of this Lease shall apply to any activity of Tenant, its agents and contractors, in the Premises prior to the Commencement Date, except for the obligation of Tenant to pay rent. |
M. | It is understood that the Tenant Improvements shall be done during Tenant’s occupancy of the Premises and, in this regard, Tenant agrees to assume any risk of injury, loss or damage which may result from Tenant’s performance of its work on the Tenant Improvements. Tenant further agrees that it shall be solely responsible for relocating its office equipment and furniture in the Premises in order for the foregoing Tenant Improvements to be completed in the Premises. |
Landlord shall not be liable in any way for any injury, loss or damage which may occur due to any work performed by Tenant, nor shall Landlord be responsible for repairing any defective condition therein, except for Landlord’s Warranty. In no
EXHIBIT X
-2-
event shall Tenant’s failure to complete the Tenant Improvements extend the Commencement Date of the Lease, subject to Commencement Date Delays (defined below).
II.COST OF THE WORK
A. | Landlord shall provide to Tenant a tenant improvement allowance in the amount of (the “Landlord Contribution”), with any excess cost for Tenant’s work on the Tenant Improvements to be borne solely by Tenant. The Landlord Contribution may also be utilized to fund space planning and other architectural, engineering and design costs (including the reasonable cost charged by Landlord’s architect to review Tenant’s drawings and CAD files), hard and soft construction costs, labor, materials, contractor’s fees and overhead, and plan check and permit fees; provided that Landlord Contribution shall not be applied to “soft costs” exceeding per rentable square foot of the Premises. It is understood that Landlord shall be entitled to a supervision/administrative fee equal to of the amount of the Landlord Contribution, which fee shall be paid from the Landlord Contribution. If the actual cost of completion of the Tenant Improvements is less than the maximum amount provided for the Landlord Contribution or remains unused after December 31, 2023, such savings shall inure to the benefit of Landlord and Tenant shall not be entitled to any credit or payment or to apply the savings toward additional work. |
B. | Landlord shall fund the Landlord Contribution (less deductions for the above-described supervision fee and charges of Landlord’s architect) in installments as and when costs are incurred and a payment request therefor is submitted by Tenant. Each payment request shall include, as applicable, a copy of all supporting invoices, conditional progress payment lien waivers (in the form prescribed by the California Civil Code) for labor and materials incorporated in such payment request, unconditional lien waivers (in the form prescribed by the California Civil Code) for labor and materials on the basis of which payment has previously been by Landlord, and pertinent back-up (including copies of Tenant’s payment checks to its contractors and suppliers). Landlord shall fund the payment request within 30 days following receipt of the application and supporting materials; provided that a 10% retention shall be held on payments to Tenant until Landlord receives the complete Close-out Package. The remaining balance of the Landlord Contribution shall be funded when Landlord receives the complete Close-out Package. Prior to any payment by Landlord hereunder, Tenant shall provide to Landlord in writing the address to which such payment is to be delivered. |
III.MISCELLANEOUS
A. | The Commencement Date shall occur as provided in Section 3.1 of the Lease, provided that the Commencement Date shall be extended by the number of days of actual delay of the Substantial Completion of the Tenant Improvements to the extent caused by a “Commencement Date Delay,” as that term is defined, below, but only to the extent such Commencement Date Delay causes the Substantial Completion of the Tenant Improvements to be delayed and, as a result, to occur |
EXHIBIT X
-3-
after November 1, 2022. As used herein, the term “Commencement Date Delay” shall mean only a “Force Majeure Delay” or a “Landlord Caused Delay,” as those terms are defined below in this Section III.A of this Work Letter. As used herein, the term “Force Majeure Delay” shall mean an actual delay not known to the party claiming such delay or otherwise existing as of the date hereof resulting from strikes, lockouts or other industrial disturbance, fire, wind, damage or destruction to the Building, explosion, casualty, flood, hurricane, tornado, the elements, acts of God or the public enemy, pandemic (but only to the extent an actual delay results from Tenant’s inability to complete construction of the Tenant Improvements (or Landlord’s inability to complete construction of the Landlord’s Work) due to a government mandated cessation of construction activity), sabotage, embargo, war, terrorist acts, invasion, insurrection, rebellion, civil unrest, riots, or earthquakes. As used in this Work Letter, “Landlord Caused Delay” shall mean actual delays to the extent resulting from (i) the failure of Landlord to timely approve or disapprove any Tenant submittals; (ii) interference (when judged in accordance with industry custom and practice) by Landlord or its agents (except as otherwise allowed under this Work Letter) with the Substantial Completion of the Tenant Improvements and which objectively preclude or delay the construction of Tenant Improvements, which interference relates to access by Tenant, or Tenant’s agents and contractors to the Building; (iii) Landlord’s breach of its obligations under the Lease; or (iv) delays resulting from the negligence or willful misconduct of Landlord, or any of its agents, employees, contractors, or subcontractors in connection with the Tenant Improvements.
B. | If Tenant contends that a Commencement Date Delay has occurred, Tenant shall notify Landlord in writing of the event which constitutes such Commencement Date Delay. If such actions, inaction or circumstance described in the notice set forth in the preceding sentence of this Section III.A. of this Work Letter (the “Delay Notice”) constitute a Landlord Caused Delay and are not cured by Landlord within two (2) business days of Landlord’s receipt of the Delay Notice and if such action, inaction or circumstance otherwise qualify as a Landlord Caused Delay, then a Commencement Date Delay shall be deemed to have occurred commencing as of the date of Landlord’s receipt of the Delay Notice and ending as of the date such delay ends. For purposes of this Section III.A., “Substantial Completion of the Tenant Improvements” shall mean completion of construction of the Tenant Improvements pursuant to the approved construction drawings, with the exception of any punch list items that do not materially impair Tenant’s normal business operations in the Premises and the Premises is ready for occupancy by Tenant. |
IV.LANDLORD’S WORK.
Landlord will, at its sole cost and expense, complete the following work in a good and workmanlike manner, in conformance with Landlord’s standard specifications for the Building, and in compliance with applicable laws to the extent necessary to receive a signed off permit or similar work sign off from the City of Sunnyvale (“Landlord’s Work”):
EXHIBIT X
-4-
| ● | New glass exterior on front and sides of the Building with expanded glass line and new entry |
| ● | New lobby |
| ● | New restroom cores with 5 fixtures and showers |
| ● | New interior breakroom with roll up door to an adjacent patio with furniture New HVAC equipment serving the Building totaling 75 tons |
The Landlord’s Work is more particularly described on Schedule 1 hereto. The Landlord’s Work shall be deemed to be “substantially complete(d)”, on the date that (i) all the Landlord’s Work (other than Punch List Items as defined below) have been performed, (ii) if applicable, Landlord shall have received a signed off permit or similar work sign off from the City of Sunnyvale, (iii) Landlord’s architect or engineer certifies that the Landlord’s Work is substantially complete in accordance with the final approved plans, and (v) Landlord has delivered the Building to Tenant in accordance with the Lease. Within five (5) business days after the Landlord’s architect or engineer certifies that the Landlord’s Work is substantially complete, Tenant and Landlord, shall jointly conduct a walk-through of the Premises and shall jointly prepare a punch list of items needing additional work (“Punch List Items”). Punch List Items shall be those items which are a part of the Landlord’s Work which are details of construction, decoration and mechanical and electrical adjustments which (i) in the aggregate, are minor in character and do not adversely affect Tenant’s use or enjoyment of the Premises or Tenant’s ability to perform its work on the Tenant Improvements, and (ii) the completion or correction of which, will not materially interfere with Tenant’s use or occupation of the Premises or Tenant’s ability to perform its work on the Tenant Improvements. Landlord shall promptly begin and diligently pursue until completion the correction of Punch List items after delivery of the punch list.
EXHIBIT X
-5-
SCHEDULE 1 TO EXHIBIT X
DESCRIPTION OF LANDLORD’S WORK
Drawings prepared by Studios, Inc., entitled “305 Mathilda Improvements” for 305 N. Mathilda Ave., Sunnyvale, California, Project Number 19531.00, dated October 8, 2021, and consisting of 122 pages as amended on May 9, 2022 in response to ASI 1.
SCHEDULE 1 TO
EXHIBIT X
-1-
SCHEDULE 2 TO EXHIBIT X
SPACE PLAN
[***]
SCHEDULE 2 TO
EXHIBIT X
-1-
EXHIBIT Y
PROJECT DESCRIPTION
Real property in the City of Sunnyvale, County of Santa Clara, State of California, described as follows:
PARCEL ONE:
PARCEL 1, AS DESIGNATED ON THAT CERTAIN MAP ENTITLED, “PARCEL MAP BEING AN AMENDED MAP OF THE LANDS OF GULF OIL CORPORATION, AS SHOWN ON THAT CERTAIN PARCEL MAP RECORDED IN BOOK 286 OF MAPS, AT PAGE 4, SANTA CLARA COUNTY RECORDS, CITY OF SUNNYVALE, CALIFORNIA”, SAID PARCEL MAP BEING RECORDED IN BOOK 328 OF MAPS, AT PA E 11.
PARCEL TWO:
A PERPETUAL NON-EXCLUSIVE EASEMENT AND RIGHT-OF-WAY FOR PEDESTRIAN AND VEHICULAR INGRESS AND EGRESS, IN, ON, OVER AND ACROSS THAT PORTION OF PARCEL 2, AS DESIGNATED ON THE ABOVE DESCRIBED PARCEL MAP LYING WITHIN 12.5 FEET MEASURED AT RIGHT ANGLES OF THE COMMON BOUNDARY LINE OF PARCELS 1 AND 2 AS DESIGNATED ON SAID PARCEL MAP.
EXHIBIT Y
-1-
EXHIBIT B
SUBLEASED PREMISES
EXHIBIT B
DEPICTION OF THE SUBLEASED PREMISES
305 N. MATHILDA AVENUE

EXHIBIT B
-1-
EXHIBIT C
COMMENCEMENT MEMORANDUM
THIS COMMENCEMENT MEMORANDUM (the “Agreement”) is dated as of , 2025, by and between SIEMENS MEDICAL SOLUTIONS USA, INC. (the “Sublandlord”), and KNIGHTSCOPE, INC. (the “Subtenant”).
W I T N E S S E T H:
Sublandlord and Subtenant are parties to a sublease dated , 2025 (the “Sublease”) covering certain premises located at 305 N. Mathilda Avenue, Sunnyvale, California. The capitalized terms used in this Agreement shall have the meanings set forth in the Sublease, unless otherwise defined in this Agreement.
The Prime Landlord has consented to the Sublease, and Sublandlord and Subtenant now desire to enter into an agreement to confirm the Sublease Commencement Date, the Sublease Expiration Date, and the Base Rent schedule.
NOW, THEREFORE, intending to be legally bound, Sublandlord and Subtenant agree as follows:
l.The Sublease Commencement Date of the Term is
2.The Sublease Expiration Date of the Term is June 30, 2030.
3.The Base Rent Schedule is as follows:
[***]
[SIGNATURES ON THE FOLLOWING PAGE]
IN WITNESS WHEREOF, Sublandlord and Subtenant, intending to be legally bound hereby, have executed this Agreement as of the date written above.
Sublandlord:
SIEMENS MEDICAL SOLUTIONS USA, INC.,
a Delaware corporation
By: /s/ Lisa Linnell
Name: Lisa Linnell
Title: Head, SHS RE NAM
By: /s/ Donna Colona
Name: Donna Colona
Title: Head, SHS RE NAM FI LM
Subtenant:
KNIGHTSCOPE, INC.,
a Delaware corporation
By: /s/ William Santana Li
Name: William Santana Li
Title: Chairman and CEO

By: /s/ Apoorv Dwivedi
Name: Apoorv Dwivedi
Title: CFO