Please wait
Krystal Biotech September 23, 2024 TWELFTH AMENDMENT TO LEASE AGREEMENT THIS TWELFTH AMENDMENT TO LEASE AGREEMENT (this Twelfth Amendment is made as of the _____ day of September 2024, by and between Wharton Lender Associates, LP, a Pennsylvania limited partnership Landlord Krystal Biotech, Inc., a Delaware corporation Tenant WITNESSETH: WHEREAS, by Lease dated May 26, 2016 Original Lease as amended by First Amendment to Lease Agreement dated July 26, 2016 First Amendment , Second Amendment to Lease Agreement dated February 27, 2017, Third Amendment to Lease Agreement dated May 31, 2018, Fourth Amendment to Lease Agreement dated October 22, 2018, Fifth Amendment to Lease Agreement dated December 10, 2018, Sixth Amendment to Lease Agreement/First Amendment to Storage Space Agreement dated January 13, 2021 (the Sixth Amendment , Seventh Amendment to Lease Agreement dated May 11, 2021 (the , Reimbursement Agreement dated June 3, 2021, Eighth Amendment to Lease Agreement dated July 21, 2021, Ninth Amendment to Lease Agreement dated January 4, 2022 Ninth Amendment , Tenth Amendment to Lease Agreement dated September 30, 2022, and Eleventh Amendment to Lease Agreement dated September 18, 2023 Eleventh Amendment (the Original Lease as amended, collectively, the Lease ), Landlord currently leases to Tenant and Tenant currently leases from Landlord certain premises consisting of a total of 53,885 rentable square feet Current Premises of office, lab, manufacturing and warehouse space located in that certain building known as 2100 Wharton Street, Pittsburgh, Building ) being comprised of 18,556 rentable square feet on the 7th floor of the Building, 16,892 rentable square on the 3rd floor of the Building, 11,780 rentable square feet on the 6th floor of the Building (the ) and 6,657 rentable square feet on the 5th floor of the Building Temporary Fifth Floor Space , use of the Current Premises as specifically set forth in the Original Lease and the prior amendments to the Original Lease; and WHEREAS, Landlord and Tenant now desire to amend the Lease to: (i) lease to Tenant an additional 9,933 rentable square feet of office space located on the 5th floor of the Building, as outlined on attached hereto and made a part hereof (the Fifth Floor Expansion Premises ), and 9,735 rentable square feet of office, and manufacturing support space located on the 7th floor of the Building, as outlined on A-1 attached hereto and made a part hereof, combined office, lab, manufacturing, warehouse, and manufacturing support space in the Building to a total of 66,896 rentable square feet (after ; and (ii) modify certain other terms of the Lease, all in accordance with the terms and provisions hereof. NOW THEREFORE, the parties hereto, in consideration of the mutual premises contained herein, and intending to be legally bound hereby, do covenant and agree as follows: 1. Recitals. The foregoing preamble is incorporated by reference herein as if set forth at length. Capitalized terms not otherwise defined herein shall have the meaning given to


 
2 such terms in the Lease. All references herein to the Lease shall include this Twelfth Amendment, unless otherwise stated. 2. Fifth Floor Expansion Premises; Fifth Floor Expansion Premises Commencement Date; Expiration Date. (a) Commencing as of the Fifth Floor Expansion Premises Commencement Date (as include the Fifth Floor Expansion Premises. Accordingly, effective as of the Fifth Floor Expansion Premises Commencement Date, Premises shall mean: (i) approximately 63,818 rentable square feet prior to Temporary Fifth Floor Space Vacate Date (as defined below) and prior to the Seventh Floor Expansion Premises Commencement Date (as defined below); and (ii) 57,161 rentable square feet after the Temporary Fifth Floor Space Vacate Date and prior to the Seventh Floor Expansion Premises Commencement Date. (b) The term of the lease obligation to pay Fixed Rent and additional rent for the Fifth Floor Expansion Premises shall commence on the earlier of (i) the date that is one hundred fifty (150) days after Landlord has Substantially Completed (as defined in Paragraph 9.(b) below) Landlord's Fifth Floor Expansion Premises Base Building Work (as defined below); or (ii) the date Tenant first occupies all or part of the Fifth Floor Expansion Premises for the purpose of conducting business Fifth Floor Expansion Premises Commencement Date . The expiration date of the Term of the Lease for the Fifth Floor Expansion Premises shall be October 31, 2031. 3. Vacation of the Temporary Fifth Floor Space. Pursuant to the Eleventh Amendment, the term of the lease for the Temporary Fifth Floor Space expires on September 30, 2024. Notwithstanding the foregoing, upon prior written notice to Landlord, Tenant shall have the right to extend its lease for the Temporary Fifth Floor Space portion of the Premises only, on a day-for-day basis, if necessary, and pay on a pro rata basis all Fixed Rent and additional rent for the Temporary Fifth Floor Space as set forth in the Eleventh Amendment, until the Temporary Fifth Floor Space Vacate Date. Notwithstanding anything to the contrary contained in the Lease, Tenant shall vacate the Temporary Fifth Floor Space on the date that Tenant commences conducting business in the Fifth Floor Expansion Premises and leave it in the Temporary Fifth Floor Space Vacate Date the Temporary Fifth Floor Space Vacate Date, the Lease shall be terminated solely as to the Temporary Fifth Floor Space, and Landlord shall take possession of the Temporary Fifth Floor Space, and Landlord may subsequently lease or otherwise utilize the Temporary Fifth Floor Space on such terms and conditions as Landlord shall deem proper, in its sole and absolute discretion, without obtaining the consent of Tenant.


 
3 4. Seventh Floor Office Expansion Premises; Seventh Floor Office Expansion Premises Commencement Date; Seventh Floor Manufacturing Support Expansion Premises; Seventh Floor Expansion Premises; Seventh Floor Manufacturing Support Expansion Premises Commencement Date; Seventh Floor Expansion Premises Commencement Date; Expiration Date. (a) Commencing as of the Seventh Floor Office Expansion Premises Commencement Date (as defined below), the Premises shall include approximately 5,000 rentable square feet of office space located on the 7th Floor of the Building, as outlined on - (the Seventh Floor Office Expansion Premises . The term of the lease for the Seventh Floor Office Seventh Floor Office Expansion Premises shall commence on the earlier to occur of (i) the date that is one hundred fifty (150) days after Landlord has Substantially Completed (as defined in Paragraph 10.(b) below) Landlord's Seventh Floor Office Expansion Premises Base Building Work (as defined below); or (ii) the date Tenant first occupies all or part of the Seventh Floor Office Expansion Premises for the purpose of conducting business ( Seventh Floor Office Expansion Premises Commencement Date ). (b) Commencing as of the Seventh Floor Manufacturing Support Expansion Premises Commencement Date (as defined below), the Premises shall include approximately 4,735 rentable square feet of locker room and manufacturing support space located on the 7th Floor of the Building, as outlined on - (the Seventh Floor Manufacturing Support Expansion Premises and together with the Seventh Floor Office Expansion Premises, Seventh Floor Expansion Premises ). The term of the lease for the Seventh Floor Manufacturing Support to pay Fixed Rent and additional rent for the Seventh Floor Manufacturing Support Expansion Premises shall commence on the earlier to occur of (i) the date that is one hundred fifty (150) days after Landlord has Substantially Completed (as defined in Paragraph 11.(b) below) Landlord s Seventh Floor Manufacturing Support Expansion Premises Base Building Work (as defined below); or (ii) the date Tenant first occupies all or part of the Seventh Floor Manufacturing Support Expansion Premises for the purpose of conducting business (the Seventh Floor Manufacturing Support Expansion Premises Commencement Date . The earlier of (i) the Seventh Floor Office Expansion Premises Commencement Date, or (ii) the Seventh Floor Manufacturing Support Expansion Premises Commencement Date, is the Seventh Floor Expansion Premises Commencement Date (c) The expiration date of the Term of the Lease for the Seventh Floor Expansion Premises shall be October 31, 2031. 5. Sixth Floor Space. (a) Pursuant to the Seventh Amendment, Tenant leased 6,003 square feet of space on Initial Sixth Floor Space February 28, 2027. Effective as of the date of this Twelfth Amendment, the Term of the Initial Sixth Floor Lease will be extended through October 31, 2031.


 
4 (b) Pursuant to the Eighth Amendment, Tenant leased 2,270 square feet of space on the sixth floor of the Building (together with the Initial Sixth Floor Space 6. Premises and Term. Based on the foregoing Paragraphs 1.-5., after the occurrence of all of the following: (i) the Fifth Floor Expansion Premises Commencement Date, (ii) the Temporary Fifth Floor Space Vacate Date, (iii) the Seventh Floor Office Expansion Premises Commencement Date, and (iv) the Seventh Floor Manufacturing Support Expansion Premises Commencement Date: (1) The Premises shall mean approximately 66,896 rentable square feet of combined office, lab, manufacturing, warehouse, and manufacturing support space in the Building, consisting of 28,291 rentable square feet on the 7th floor of the Building, 16,892 rentable square feet on the 3rd floor of the Building, 11,780 rentable square feet on the 6th floor of the Building, and 9,933 rentable square feet on the 5th floor of the Building; and (2) The Term of the Lease for the Premises shall terminate on October 31, 2031. For the sake of clarity, the use of the Premises shall be as specifically set forth in the Original Lease and prior amendments thereto for the Current Premises and as set forth below for the Seventh Floor Expansion Premises. 7. Fixed Rent. (a) Fixed Rent for the Temporary Fifth Floor Space. Until the Temporary Fifth Floor Space Vacate Date, Tenant shall continue to pay Fixed Rent (and additional rent) for the Temporary Fifth Floor Space as set forth in the Eleventh Amendment on a monthly basis and for portion of a month, if applicable, on a pro-rated basis. Effective as of the Temporary Fifth Floor Space Vacate Date, Tenant will cease paying Fixed Rent and any additional rent for the Temporary Fifth Floor Space. Notwithstanding the foregoing, Tenant shall pay all Fixed Rent and additional rent up through the Temporary Fifth Floor Space Vacate Date including any unpaid Fixed Rent and any additional rent for the Temporary Fifth Floor Space due up through the Temporary Fifth Floor Space Vacate Date. (b) Fixed Rent for the Fifth Floor Expansion Premises. Commencing on the Fifth Floor Expansion Premises Commencement Date and thereafter until the Seventh Floor Manufacturing Support Expansion Premises Commencement Date, Tenant shall pay Landlord Fixed Rent for the Fifth Floor Expansion Premises pursuant to the terms of the Lease and in accordance with the following table.


 
5 LEASE PERIOD PORTION OF PREMISES $PER RENTABLE SQ FT MONTHLY FIXED RENT INSTALLMENT ANNUAL FIXED RENT AMOUNT Fifth Floor Expansion Premises Commencement Date 2/28/2025 9,933 rsf Fifth Floor Expansion Premises 26.50 $21,935.38 $263,224.50 3/1/25 Seventh Floor Manufacturing Support Expansion Premises Commencement Date 9,933 rsf Fifth Floor Expansion Premises 27.03 $22,374.08 $268,488.99 Notwithstanding the above, so long as Tenant is not in default under the terms of the Lease, Tenant shall receive an abatement to its Fixed Rent as set forth in the table above for the Fifth Floor Expansion Premises for each of the first four (4) full months on and after the Fifth Floor Expansion Premises Commencement Date. For example, if the Fifth Floor Expansion Premises Commencement Date is January 1, 2025, the abatement would be in the total amount of $88,618.92 applied as a credit of $21,935.38 for each of January 2025 and February 2025 and a credit of $22,374.08 for each of March 2025 and April 2025. Such abatement of Fixed Rent with respect to the other leased space that is part of the Premises, additional rent or any other sums payable by Tenant as and when due under the terms of the Lease. (c) Fixed Rent for the Sixth Floor Space. Commencing on the date of this Twelfth Amendment and continuing through October 31, 2031, Tenant shall pay Fixed Rent for the Sixth Floor Space pursuant to the terms of the Lease and in accordance with the following table: LEASE PERIOD PORTION OF PREMISES $PER RENTABLE SQ FT MONTHLY FIXED RENT INSTALLMENT ANNUAL FIXED RENT AMOUNT Date of Twelfth Amendment 2-28-25 8,273 Sixth Floor Space 21.23 $14,636.32 $175,635.79 3/1/25 2/28/26 8,273 Sixth Floor Space 21.65 $14,925.87 $179,110.45 3/1/26 2/28/27 8,273 Sixth Floor Space 22.08 $15,222.32 $182,667.84 3/1/27 2/28/28 8,273 Sixth Floor Space 22.52 $15,525.66 $186,307.96 3/1/28 2/28/29 8,273 Sixth Floor Space 22.97 $15,835.90 $190,030.81 3/1/29 2/28/30 8,273 Sixth Floor Space 23.43 $16,153.03 $193,836.39 3/1/30 2/28/31 8,273 Sixth Floor Space 23.90 $16,477.06 $197,724.70 3/1/31 10/31/31 8,273 Sixth Floor Space 24.38 $16,807.98 $201,695.74


 
6 (d) Fixed Rent for the Seventh Floor Office Expansion Premises. Commencing on the Seventh Floor Office Expansion Premises Commencement Date, Tenant shall pay Landlord Fixed Rent for the Seventh Floor Office Expansion Premises and until the Seventh Floor Manufacturing Support Expansion Premises Commencement Date pursuant to the terms of the Lease and in accordance with the following table. LEASE PERIOD PORTION OF PREMISES $PER RENTABLE SQ FT MONTHLY FIXED RENT INSTALLMENT ANNUAL FIXED RENT AMOUNT Seventh Floor Office Expansion Premises Commencement Date 2/28/2025 5,000 rsf 26.50 $11,041.67 $132,500.00 3/1/25 Seventh Floor Manufacturing Support Expansion Premises Commencement Date 5,000 rsf 27.03 $11,262.50 $135,150.00 Notwithstanding the above, so long as Tenant is not in default under the terms of the Lease, commencing on the Seventh Floor Manufacturing Support Expansion Premises Commencement Date, Tenant shall receive an abatement to its Fixed Rent for the Seventh Floor Expansion Premises as set forth in the table above under this Paragraph 7.(d) for each of the first four (4) full months on an after the Seventh Floor Manufacturing Support Expansion Premises Commencement Date. For example, if the Seventh Floor Manufacturing Support Expansion Premises Commencement Date is March 1, 2025, the abatement would be in the total amount of $87,712.35 (based on four (4) months of Seventh Floor Expansion Premises of 9,735 square feet and Fixed Rent of $27.03) applied as a credit of $21,928.09 per month. Such abatement of Fixed with respect to the other leased space that is part of the Premises, additional rent or any other sums payable by Tenant as and when due under the terms of Lease. (e) Fixed Rent for the Premises, excluding the Sixth Floor Space. Commencing on the Seventh Floor Manufacturing Support Expansion Premises Commencement Date, Tenant shall pay Landlord Fixed Rent for 58,623 rentable square feet of space in the Building (comprised of 28,291 rentable square feet on the 7th floor of the Building, 16,892 rentable square feet on the 3rd floor of the Building, 3,507 rentable square feet on the 6th floor of the Building and 9,933 rentable square feet on the 5th floor of the Building) as set forth in the table below.


 
7 LEASE PERIOD PORTION OF PREMISES $PER RENTABLE SQ FT MONTHLY FIXED RENT INSTALLMENT ANNUAL FIXED RENT AMOUNT Seventh Floor Manufacturing Support Expansion Premises Commencement Date 2-28-25 58,623 rsf (being 28,291 rsf on the 7th Floor, 16,892 rsf on the 3rd floor, 3,507 rsf on the 6th floor and 9,933 rsf on the 5th floor) 28.83 $140,841.76 $1,690,101.09 3/1/25 2/28/26 58,623 rsf (being 28,291 rsf on the 7th Floor, 16,892 rsf on the 3rd floor, 3,507 rsf on the 6th floor and 9,933 rsf on the 5th floor) 29.41 $143,675.20 $1,724,102.43 3/1/26 2/28/27 58,623 rsf (being 28,291 rsf on the 7th Floor, 16,892 rsf on the 3rd floor, 3,507 rsf on the 6th floor and 9,933 rsf on the 5th floor) 30.00 $146,557.50 $1,758,690.00 3/1/27 2/29/28 58,623 rsf (being 28,291 rsf on the 7th Floor, 16,892 rsf on the 3rd floor, 3,507 rsf on the 6th floor and 9,933 rsf on the 5th floor) 30.60 $149,488.65 $1,793,863.80 3/1/28 2/28/29 58,623 rsf (being 28,291 rsf on the 7th Floor, 16,892 rsf on the 3rd floor, 3,507 rsf on the 6th floor and 9,933 rsf on the 5th floor) 31.21 $152,468.65 $1,829,623.83 3/1/29 2/28/30 58,623 rsf (being 28,291 rsf on the 7th Floor, 16,892 rsf on the 3rd floor, 3,507 rsf on the 6th floor and 9,933 rsf on the 5th floor) 31.84 $155,546.36 $1,866,556.32 3/1/30 2/28/31 58,623 rsf (being 28,291 rsf on the 7th Floor, 16,892 rsf on the 3rd floor, 3,507 rsf on the 6th floor and 9,933 rsf on the 5th floor) 32.48 $158,672.92 $1,904,075.04 3/1/31 10/31/31 58,623 rsf (being 28,291 rsf on the 7th Floor, 16,892 rsf on the 3rd floor, 3,507 rsf on the 6th floor and 9,933 rsf on the 5th floor) 33.13 $161,848.33 $1,942,179.99 Notwithstanding anything to the contrary contained in the foregoing, Tenant shall continue to pay all Fixed Rent for the 53,885 rentable square feet of the Current Premises pursuant to the Fixed Rent tables and sections set forth in the Original Lease, as amended by the First through Eleventh Amendments, until the Fifth Floor Expansion Premises Commencement Date, the Seventh Floor Office Expansion Premises Commencement Date and the Seventh Floor Manufacturing Support Expansion Premises Commencement Date have all occurred; provided, however, that notwithstanding that the Temporary Fifth Floor Space is included in the Current Fixed Rent (and additional rent) for the Temporary Fifth Floor Space shall be governed exclusively by Paragraph 7.(a).


 
8 (f) Payment of Fixed Rent. All Fixed Rent shall be payable in equal monthly installments in advance on the first day of each month during the Term without demand, notice, offset or deduction and will be pro-rated for any partial month(s) of the Term. 8. ; Base Year for the Fifth Floor Expansion Premises only; Base Year for the Seventh Floor Expansion Premises only. (a) If the Fifth Floor Expansion Premises Commencement Date occurs before the Seventh Floor Office Expansion Premises Commencement Date, then (i) commencing as of the Fifth Floor Expansion Premises Commencement Date and continuing until the Seventh Floor Office Expansion Premises Commencement Date, and provided that Tenant has vacated the Temporary Fifth Floor Space, 25.27 25.27 , (ii) commencing as of the Fifth Floor Expansion Premises Commencement Date and continuing until the Seventh Floor Office Expansion Premises Commencement Date, and for the entire time period that Tenant has not vacated the Temporary Fifth Floor Space, as defined in Paragraph 4.A.(ii) of the Original Lease shall mean 28.22 , (iii) commencing as of the Seventh Floor Office Expansion Premises Commencement Date, and provided that Tenant has vacated the Temporary Fifth Floor Space, defined in Paragraph 1.L. of the Original Lease and Tenant s Share , as defined in Paragraph 27.48 Tenant s Percentage 27.48% ommencing as of the Seventh Floor Office Expansion Premises Commencement Date, and for the entire time period that Tenant has not vacated the Temporary Fifth Floor Space, Paragraph 1.L. of the Original Lease and Tenant s Share , as defined in Paragraph 4.A.(ii) of 30.43 Tenant's Percentage 30.43% , and (v) commencing as of the Seventh Floor Office Expansion Premises Commencement Date and the Seventh Floor Manufacturing Support Expansion Premises Commencement Date, of the Original Lease and Tenant s Share , as defined in Paragraph 4.A.(ii) of the Original Tenant's Percentage . (b) If the Seventh Floor Office Expansion Premises Commencement Date occurs before the Fifth Floor Expansion Premises Commencement Date, then (i) commencing as of the Seventh Floor Office Premises Commencement Date and continuing until the Fifth Floor Expansion Premises Commencement Date, and provided that Tenant has vacated the Temporary Fifth Floor Space, 23.09 mean 23.09 ommencing as of the Seventh Floor Office Premises Commencement Date and continuing until the Fifth Floor Expansion Premises Commencement Date, and for the entire


 
9 time period that Tenant has not vacated the Temporary Fifth Floor Space, 26.04 26.04 , (iii) commencing as of the Fifth Floor Expansion Premises Commencement Date, and provided that Tenant has vacated the Temporary Fifth Floor Space, Tenant s Share 27.48 Tenant's Percentage shall mean 27.48% commencing as of the Fifth Floor Expansion Premises Commencement Date, and for the entire time period that Tenant has not vacated the Temporary Fifth Floor Space, Tenant's Share , 30.43 Tenant's Percentage 30.43% and (v) commencing as of the Fifth Floor Expansion Premises Commencement Date and the Seventh Floor Manufacturing Support Expansion Premises Commencement Date, as defined in Paragraph 1.L. of the Original Lease and Tenant's Share , as defined in Paragraph Tenant's Percentage . (c) Commencing as of the Fifth Floor Expansion Premises Commencement Date, 2024. (d) Commencing as of the Seventh Floor Expansion Premises Commencement Date, solely for the Seventh Floor Expansion Premises only shall mean calendar year 2024. 9. . (a) Notwithstanding anything to the contrary contained in the Lease, the Fifth Floor - agrees to do or otherwise perform that work in or relating to the Fifth Floor Expansion Premises necessary to complete the work described in attached hereto and made a part hereof entail or will Landlord be obliged to perform any work or supply any materials in excess of the work and materials necessary to complete the work described with particularity in . Except as otherwise specifically provided in this Twelfth Amendment or the Lease, all work in Base Building Work, shall be (b) Fifth Floor Expansion Premises Base Building Work shall be deemed to be Substantially Completed when the work necessary to complete the work described on Exhibit B attached hereto and made a part hereof has been completed except for (i) the Excluded Landlord Work Items (as defined in Paragraph 9.(c) below); (ii) any improvements or work to be performed by Tenant, including, but not limited to, (as defined below); (iii) items of ng Work that are


 
10 not completed within the expected time frame agreed upon by Landlord and Tenant in writing solely because of: (a) delay by Tenant in furnishing those certain drawings or approvals to Landlord within the times set forth in in writing between Landlord and Tenant; or (b) changes in the which are requested by Tenant; or (c) delays, not caused by Landlord, in obtaining materials required for Fifth Floor Expansion Premises Base Building Work, provided that Landlord will promptly notify Tenant in writing of Landlord's good faith estimate of the anticipated delay after discovery thereof by Landlord, and Landlord shall give Tenant an opportunity to specify alternative materials to enable to be completed within the expected time frame agreed upon by Landlord and Tenant in writing; or (d) interference by Tenant or any of its employees, agents, or contractors that prevent Landlord from completing . (c) Notwithstanding anything to the contrary in the foregoing, Tenant specifically Excluded Landlord Work Items for purposes of : all work items that (i) need (ii) are contingent upon the completion of , . (d) Base Building Work will not be sufficient to allow the Fifth Floor Expansion Premises to be used (e) Landlord agrees that except as otherwise agreed in this Twelfth Amendment, Landlord shall provide and all plans or specifications related thereto, at sole cost and expense. Floor Expansion Premises Base Building Work shall comply and be performed in all respects in accordance with all applicable laws, statutes, and ordinances (including building codes and zoning regulations and ordinances). 10. Office Expansion Premises Base Building Work. (a) Notwithstanding anything to the contrary contained in the Lease, the Seventh Floor Office - Landlord agrees to do or otherwise perform that work in or relating to the Seventh Floor Office Expansion Premises necessary to complete the work described in C attached hereto Office Expansion Premises Base Building Work Office Expansion Premises Base Building Work entail or will Landlord be obliged to perform any work or supply any materials in excess of the work and materials necessary to complete the work described with particularity in C . Except as otherwise specifically provided in this Twelfth Amendment or the Lease, all Office Expansion Premises Base Building cost and expense.


 
11 (b) Seventh Floor Office Expansion Premises Base Building Work shall be deemed to be Substantially Completed when the work necessary to complete the work described on Exhibit "C" attached hereto and made a part hereof has been completed except for (i) the Excluded Landlord Work Items (as defined in Paragraph 10.(c) below); (ii) any improvements or work to be performed by Tenant, i) items of Seventh Floor Office Expansion Premises Base Building Work that are not completed within the expected time frame agreed upon by Landlord and Tenant in writing solely because of: (a) delay by Tenant in furnishing those certain drawings or approvals to Landlord within the times set forth in writing between Landlord and Tenant; (b) changes in the Seventh Floor Office Expansion Premises Base Building Work to be performed by Landlord which are requested by Tenant; (c) delays, not caused by Landlord, in obtaining materials required for Seventh Floor Office Expansion Premises Base Building Work, provided that Landlord will promptly notify Tenant in writing of Landlord's good faith estimate of the anticipated delay after discovery thereof by Landlord, and Landlord shall give Tenant an opportunity to specify alternative materials Seventh Floor Office Expansion Premises Base Building Work to be completed within the expected time frame agreed upon by Landlord and Tenant in writing; or (d) interference by Tenant or any of its employees, agents, or contractors that prevents Landlord from completing Seventh Floor Office Expansion Premises Base Building Work. (c) Notwithstanding anything to the contrary in the foregoing, Tenant specifically Excluded Landlord Work Items for purposes of Seventh Floor Office Expansion Premises Base Building Work: all work items that (i) (ii) are contingent upon the , or (iii) are not included in Exhibit C . (d) Office Expansion Premises Base Building Work will not be sufficient to allow the Seventh Floor Office Expansion expense. (e) Landlord agrees that except as otherwise agreed in this Twelfth Amendment, Landlord shall provide Seventh Floor Office Expansion Premises Base Building Work and all plans or specifications related thereto, at sole cost and expense, and Seventh Floor Office Expansion Premises Base Building Work shall comply and be performed in all respects in accordance with all applicable laws, statutes, and ordinances (including building codes and zoning regulations and ordinances). 11. Manufacturing Support Expansion Premises Base Building Work. (a) Notwithstanding anything to the contrary contained in the Lease, the Seventh Floor Manufacturing Support - condition except that Landlord agrees to do or otherwise perform that work in or relating to the Seventh Floor Manufacturing Support Expansion Premises necessary to complete the work


 
12 described in Manufacturing Support Expansion Premises Base Building Work Manufacturing Support Expansion Premises Base Building Work entail or will Landlord be obliged to perform any work or supply any materials in excess of the work and materials necessary to complete the work described with particularity in . Except as otherwise specifically provided in this Twelfth Amendment or the Lease, a Manufacturing Support Expansion (b) Manufacturing Support Expansion Premises Base Building Work shall be deemed to be Substantially Completed when the work necessary to complete the work described on Exhibit C attached hereto and made a part hereof has been completed except for (i) the Excluded Landlord Work Items (as defined in Paragraph 11.(c) below); (ii) any improvements or work that to be performed by Tenant, including, but not limited to, i) items of Seventh Floor Manufacturing Support Expansion Premises Base Building Work that are not completed within the expected time frame agreed upon by Landlord and Tenant in writing solely because of: (a) delay by Tenant in furnishing those certain drawings or approvals to Landlord within the times set forth in writing between Landlord and Tenant; or (b) changes in the Seventh Floor Manufacturing Support Expansion Premises Base Building Work to be performed by Landlord which are requested by Tenant; or (c) delays, not caused by Landlord, in obtaining materials required for Seventh Floor Manufacturing Support Expansion Premises Base Building Work, provided that Landlord will promptly notify Tenant in writing of Landlord's good faith estimate of the anticipated delay after discovery thereof by Landlord, and Landlord shall give Tenant an opportunity to specify alternative materials Seventh Floor Manufacturing Support Expansion Premises Base Building Work to be completed within the expected time frame agreed upon by Landlord and Tenant in writing; or (d) interference by Tenant or any of its employees, agents, or contractors that prevents Landlord from completing Seventh Floor Manufacturing Support Expansion Premises Base Building Work. (c) Notwithstanding anything to the contrary in the foregoing, Tenant specifically Excluded Landlord Work Items for purposes of Seventh Floor Manufacturing Support Expansion Premises Base Building Work: all work items that (i) or (ii) are ; or (iii) not included in Exhibit C . (d) Manufacturing Support Expansion Premises Base Building Work will not be sufficient to allow the Seventh Floor Manufacturing Support understands that additional work will be required, and Tenant agrees to perform all such (e) Landlord agrees that except as otherwise agreed in this Twelfth Amendment, Landlord shall provide Seventh Floor Manufacturing Support Expansion Premises Base Building Work and all plans or specifications related thereto, at sole cost and expense, and Seventh Floor Manufacturing Support Expansion Premises Base


 
13 Building Work shall comply and be performed in all respects in accordance with all applicable laws, statutes, and ordinances (including building codes and zoning regulations and ordinances). 12. . (a) work that is necessary in order for Tenant to open and conduct its business in the Fifth Floor Landlord shall not charge any security fees, construction management fees, project management fees, or supervisory fees in connection with the Landlord shall not charge Tenant for use of loading docks, freight elevators, water, or electrical service during the Work or any move-in periods for the Fifth Floor Expansion Premises and the Seventh Floor Expansion Premises that are performed during normal business hours but Tenant shall pay Landlord for all the foregoing fees after normal business hours, provided that Landlord provides Tenant with written evidence that such fees are being performed after normal business hours. The current rate for freight elevators after normal business hours is $125.00 per hour. Tenant will be charged $125.00 per hour for the entire solely as a result of for up to one eight (8) hour shift. In addition, Tenant shall reimburse Landlord for any third party that is required to be engaged by Landlord to assist ; provided that Landlord will notify Tenant prior to engaging such third party and the parties agree in writing that Landlord should engage such third party. (b) Tenant shall provide, at Tenant's sole cost and expense, all of the plans, required mechanical, electrical and plumbing drawings, the location and installation of all equipment, risers, disconnects, ducts, utility and HVAC distribution, and other Tenant installations (collectively, the Tenant s Plans . shall be subject to the prior written approval of Landlord, which approval will not be unreasonably withheld, conditioned, or delayed, and Tenant may not commence Work written . Landlord shall provide within five (5) business days and if such third party review is needed, Landlord shall promptly inform Tenant and engage such third party after receipt of (the actual reasonable costs of such third party as documented by Landlord shall be paid by Tenant) . Plans shall not impose any obligation or liability on Landlord, its agents or representatives, and representation or warranty as to the , or ordinances. in accordance with all applicable laws, statutes, and ordinances (including building codes and zoning regulations and ordinances).


 
14 (c) fide general contractor and bona fide subcontractors, architects and engineers selected by Tenant. All contractors and subcontractors performing Work, shall comply in all respects with all applicable laws, codes and regulations and with the terms of Paragraph 12 of the Original L . shall not interfere with or affect the common areas or structural components of the Building or any Building mechanical systems, HVAC, electrical, plumbing, gas, elevator or other Building operating systems serving other tenants and occupants of the Building. For clarity, ordinary general contractor or subcontractors in connection with performing causes material noise that is over 75 dBA outside the Premises or odor disturbances to other tenants, including drilling, concrete cutting and breaking, coring, screw guns on partitions of walls separating occupied areas from construction, use of mechanical type fasteners, polymix bonding, and oil painting, shall be conducted during non-business hours. Tenant and Landlord shall discuss in good faith and agree upon in writing the commencement Floor Expansion Premises and the Seventh Floor Expansion Premises. 13. Tenant Improvement Allowance. (a) Landlord shall provide Tenant with a construction improvement allowance of Forty-five and 00/100 Dollars ($45.00) per rentable square foot of space in the Fifth Floor Expansion Premises and the Seventh Floor Expansion Premises being the total sum of Eight Hundred Eighty-five Thousand Sixty and 00/100 Dollars ($885,060 Tenant Improvement Allowance Premises and for no other purpose whatsoever. Portions of the Tenant Improvement Allowance shall be paid by Landlord on a monthly basis directly to Tenant as a reimbursement within thirty (30) days after receipt by Landlord of paid invoices to the general contractor, subcontractors, or other persons or entities . No credit shall be given to Tenant for any unused amount of the Tenant Improvement Allowance. Under no circumstances shall the Tenant Improvement Allowance exceed the total amount of Eight Hundred Eighty-five Thousand Sixty and 00/100 Dollars ($885,060.00). (b) Notwithstanding anything contained herein, Tenant shall be solely responsible for (i) furniture, (ii) cables, data and computer wiring, (iii) telephone, computer, telecommunication, and related equipment, and (iv) all associated work (except only for the Tenant Improvement Allowance). 14. Vehicle Parking. (a) Tenant shall continue to be entitled to parking pursuant to the terms and conditions of the Original Lease as amended by the First Amendment and subsequent amendments through and including the Eleventh Amendment until the earliest of (i) the Fifth


 
15 Floor Expansion Premises Commencement Date, and (ii) the Seventh Floor Expansion Premises Commencement Date. (b) On and after the earliest of the (i) Fifth Floor Expansion Premises Commencement Date, and (ii) Seventh Floor Expansion Premises Commencement Date until the Seventh Floor Manufacturing Support Expansion Premises Commencement Date, all provisions in the Original Lease as amended by the First Amendment and subsequent amendments through and including the Eleventh Amendment shall be deleted in their entirety and Landlord and Tenant agree to the terms set forth in the following paragraph as the : Subject to the Parking Rules set forth in Exhibit B to the Original Lease, as modified by Landlord from time to time, Landlord shall make available for Tenant one hundred and sixty (160) unreserved parking spaces in the parking facilities of the Building. For clarity, of the one hundred and sixty (160) parking spaces, thirty (30) of the parking spaces are free of charge, and the other one hundred and thirty (130) parking spaces are at the rate of One Hundred Forty and 00/Dollars ($140.00) per space used, per month. (c) Commencing on the Seventh Floor Manufacturing Support Expansion Premises Commencement Date, and continuing for the remainder of the Term, all provisions in the Original Lease as amended by the First Amendment and subsequent amendments through and including the Eleventh Amendment shall be deleted in their entirety and Landlord and Tenant agree to the terms set forth in the following paragraph as the During the Term (as may be extended by any future amendments to the Lease) and subject to the Parking Rules set forth in Exhibit B to the Original Lease, as modified by Landlord from time to time (the Rules ), Landlord shall make available for Tenant one hundred fifty (150) parking spaces in the parking facilities of the Building. Of the one hundred fifty (150) parking spaces, one hundred and forty-four (144) are unreserved parking spaces and six (6) are reserved parking spaces at the front of the main parking facility of the Building. Landlord will clearly mark the six (6) use. The cost of one hundred and seventeen (117) of the foregoing one hundred fifty (150) parking spaces is included in the Fixed Rent for the Premises, excluding the Sixth Floor Space as set forth in Paragraph 7.(e) above. For clarity, (i) of the one hundred fifty (150) parking spaces, thirty three (33) parking spaces are free of charge, and (ii) of the one hundred and seventeen (117) parking spaces included in the Fixed Rent for the Premises, excluding the Sixth Floor Space as set forth in Paragraph 7.(e), (a) one hundred and eleven (111) are at an initial rate of One Hundred Forty and 00/Dollars ($140.00) per space, per month, and (b) the six (6) reserved spaces are at an initial rate of Two Hundred and 00/Dollars ($200.00) per space, per month. Landlord guarantees that at any time during the to secure up to an additional sixty (60) parking spaces in the parking facilities of


 
16 the Building. Tenant will provide written notice to Landlord of its desire to use any or all of the sixty (60) additional parking spaces referenced in the preceding Tenant shall pay Landlord, as additional rent, without demand, notice, offset or deduction, One Hundred Forty and 00/Dollars ($140.00) per month for each month of the Term for each of the sixty (60) additional parking spaces used by Tenant. Further, Landlord shall use commercially reasonable efforts to promptly accommodate any future additional parking spaces (in addition to the two hundred and ten (210) parking spaces Landlord guarantees pursuant to this Paragraph 14.(c)) that Tenant may require Additional Spaces in the parking facility of the Building at the then current prevailing rate per month, per each such parking space. Tenant shall pay Landlord, as additional rent, without demand, notice, offset or deduction, the then current prevailing rate(s) per parking space, per month for each month of the Term for each of the Additional Spaces used by Tenant. 15. Right to Audit. During each year of the Term, within ninety (90) days from set forth in Paragraph 4.E. of the Original Lease, and upon ten (10) days advance written notice to Landlord, Tenant or its authorized employee or representative (provided, however, that such representative is an auditor from a national or regional firm authorized and licensed to do business in Pennsylvania that is being compensated by Tenant strictly on an hourly basis) shall have the right to inspect the books maintained by Landlord or business hours of Landlord or and written notice to Tenant, at such other location in Pittsburgh, PA that Landlord may specify for the purpose of auditing information in such compensated on a contingency basis. Any audit will be performed in an expeditious manner and completed as soon as possible after commencement. Unless Tenant asserts specific error(s) within ninety (90) days after receipt of the Operating Expense and Tax Statement, the statement shall be deemed correct. If following completion of such audit by Tenant or its representative, it is finally determined or the parties agree that Landlord's statement overstated Operating Expenses or Taxes for the period in question by five percent (5%) or more, then Landlord shall reimburse Tenant within thirty (30) days after the date Tenant provides written notice to Landlord requesting reimbursement of the finally determined or agreed upon amount overcharged by Landlord and the actual reasonable costs of the audit paid by Tenant, as documented by Tenant. If following completion of such audit by Tenant or its representative, it is finally determined or the parties agree that Landlord's statement understated Operating Expenses or Taxes for the period in question by five percent (5%) or more, then Tenant shall reimburse Landlord within thirty (30) days after Tenant receives written notice from Landlord requesting reimbursement of the finally determined or agreed upon amount undercharged by Landlord. For clarity, Tenant (i) shall have the audit rights set forth in this Paragraph 15. with respect to any and all of the Premises leased by Tenant in the Building; and (ii) to audit the Base Year Operating Expenses and/or Taxes the first year it audits a comparative operating year.


 
17 16. Condition of Premises , Elevator, and Other Work. Except as otherwise provided in this Twelfth Amendment, the Premises shall be in its - where is condition. On or before December 1, 2026, Landlord shall, sole cost and expense and using Building standard materials, replace the carpet and paint the lobbies and corridors on the 3rd, 5th and 6th floors of the Building. Prior to entering into this Twelfth Amendment, Landlord provided Tenant a detailed written description, including expected timing for completion of work, of its contract with Industrial Commercial Elevator company concerning modernizing all of the passenger Landlord has entered into the contract with Industrial Commercial Elevator company substantially consistent with the detailed written description provided to Tenant. Landlord shall (i) enter into a contract within seven (7) days of the execution of this Twelfth Amendment to replace the air handling unit at the back of the third floor and expense, which, subject to Force Majeure, will be scheduled to be completed on or about May 31, 2025 (the parties there is an approximate 30 week lead time for the air handling equipment, and that it will take approximately 2 weeks to install the same once it has been received. Landlord agrees to keep Tenant updated on the progress of this equipment as it receives additional information from its vendors), (ii) at sole cost and expense, install a new secured sealed door to the roof of the Building with secured access (including Landlord controlled card access device) which, subject to Force Majeure will be completed by December 31, 2024 and Landlord expressly agrees that Tenant may install cameras near the equipment , (iii) at sole cost and expense, remove the existing cooling tower and replace it with a new cooling tower, which, subject to Force Majeure will be installed by April 30, 2025, (iv) acquire and install a new roof-top 30-ton roof top air cooled unit to feed the seventh floor of the Building, which, subject to Force Majeure will be installed by April 30, 2025, and (v) cost and expense, remove the air handling unit on the 7th floor of the Building that is non- functional and move the second / functioning air handling unit on the seventh floor of the Building which, subject to Force Majeure will be completed by March 31, 2025. lobby, roof, elevator, and other work described in this Paragraph 16. entail or will Landlord be obliged to perform any work or supply any materials in excess of the work and materials described with particularity in this Paragraph 16. Tenant specifically acknowledges and agrees that described in this Paragraph 16. will not affect the Seventh Floor Office Expansion Premises Commencement Date, and Landlord may perform those described in this Paragraph 16. above that are to be completed after the Seventh Floor Office Expansion Premises Commencement Date while Tenant is occupying the Seventh Floor Office Expansion Premises. Upon execution of this Twelfth Amendment and upon prior written notice during the Term, the parties agree to provide to each other a list of individuals who have access to the roof of the Building. 17. Renewal Option. The Renewal Option set forth in Paragraph 8. of the Sixth commencing on the day immediately following the Expiration Date of the Term (October 31,


 
18 2031) and terminating on the date that is five (5) years after the Expiration Date of the Term (October 31, 2036) time being of the essence; and the Base Year for the Renewal Term shall mean calendar year 2031. 18. Expansion Option. (a) So long as no event of default by Tenant has occurred under the terms of the Lease, and no event has occurred, which with the passage of time or the giving of notice or both, would constitute a default under the terms of the Lease, then, solely for the time period up to the date that is 365 days after the earliest of (i) the Fifth Floor Expansion Premises Commencement Date, or (ii) the Seventh Floor Expansion Premises Commencement Date (such earliest period Notice Period , time being of the essence, subject to availability, Tenant shall have the right to expand its space by up to 5,000 rentable square feet of additional space in the Building Expansion Space . Such right of expansion shall be upon the terms and conditions of this Paragraph 18. If Tenant notifies Landlord in writing that it will commit to lease Expansion Space during the Notice Period Additional Space Notice the Expansion Space lease terms will be at the same lease terms as for the Premises at the then current rental rate in effect for the Premises (at the time of expansion) as set forth in Paragraph 7.(e) above with pro-rated Tenant improvement allowances, pro-rated rent abatements and pro-rated parking spaces. The Base Year for the Expansion Space shall be 2025 be adjusted to include the total amount of rentable square feet of the Expansion Space. The Expansion Space lease term shall be coterminous with the Term of the Lease of the Premises, including any extension of the Term of the Lease in accordance with Paragraph 17. above. (b) Notwithstanding anything contained above, if Tenant fails to provide Landlord with the Additional Space Notice on or before the last date of the Notice Period, time being of the essence, Tenant shall have no further expansion rights whatsoever as to the Building, except for the Right of First Refusal, as described in Paragraph 19. below, and Landlord shall have the right to lease any space in the Building that is not leased to Tenant to any third parties. 19. Right of First Refusal. (a) So long as no event of default by Tenant has occurred under the terms of the Lease, and no event has occurred, which with the passage of time or the giving of notice or both, would constitute a default under the terms of the Lease, then during the Term of the Lease (including any extension of the Term pursuant to Paragraph 17. above) Refusal Period Tenant shall have a one-time right of first refusal to lease the entire 4,295 rentable square feet of office space on the 5th Floor of the Building a part hereof Refusal Space ). Such right of first refusal to be on the terms and conditions as set forth in this Paragraph 19. (b) If Landlord receives an offer that Landlord is willing to accept from an independent third party during the Refusal Period to lease all the Refusal Space, Landlord will provide written notice to Tenant of such offer (including the principal terms and conditions of such offer) before leasing such Refusal Space to such independent third party. Tenant will then have a right to lease all (but not less than all) of the space included in such independent third


 
19 this right of first refusal shall be on the same terms and conditions as provided for in the offer of the independent third party. (c) Time shall be of the essence with regard to this right of first refusal, and in the event that Tenant fails to reply in writing within the aforesaid ten (10) business day period, such failure to reply shall be deemed a waiver by Tenant of its right of first refusal as to the Refusal to the Refusal Space, and this right of first refusal, as provided in this Paragraph 19., shall be deemed extinguished, null and void, and of no further force or effect and Landlord shall be free to lease such Refusal Space to any third party. (d) hereunder shall be subject to any existing rights granted to other tenants of the Building. lease renewals or lease extensions of any tenants in the Building or the leasing of space by any existing sub-tenants. 20. Storage Space. As of the date of this Twelfth Amendment, Landlord has approximately six hundred (600) square feet of storage space available in the lower level of the Storage Space ). During the Term of this Lease (including any extension of the Term pursuant to Paragraph 17. above) and subject to availability, Landlord shall lease to Tenant up to the full amount of the Storage Space. If Tenant requires Storage Space, Tenant shall provide Landlord with a minimum of thirty (30) prior notice of the amount of Storage Space Tenant requires. Landlord may relocate such Storage Space upon thirty (30) days notice to Tenant, but the cost per square foot will not be increased. The rate for the foregoing Storage Space is $10.00 per square foot and such Storage Space will be leased to Tenant on a month-to- month basis. Notwithstanding anything contained herein, Tenant will accept any Storage Space it leases in an -is where is condition and specifically acknowledges that Landlord has made no representation, express or implied with respect to the condition of the Storage Space. If the Storage Space is not available to lease when Tenant provides Landlord notice of its desire to lease Storage Space or if Tenant requires storage space in addition to the Storage Space, Landlord will lease to Tenant other storage space in the Building, if available, on terms and conditions to be negotiated in good faith by Landlord and Tenant. 21. Signs. (a) Landlord shall include Tenant on the Building directories in the lobby and include suite identification and directional signage on the 3rd, 5th, 6th, and 7th floors of the Building at no cost to Tenant. (b) or signage within the Premises withheld.


 
20 (c) So long as no event of default by Tenant has occurred and is continuing under the terms of the Lease, and no event has occurred, which with the passage of time or the giving of notice or both, would constitute a default under the terms of the Lease, then Tenant shall have approval (which will not be unreasonably withheld, conditioned, or delayed) and all applicable laws and regulations including all building department regulations and codes, pursuant to the terms and conditions set forth in this Paragraph 21., a Building- Exterior Sign (d) Notwithstanding anything contained herein, any and all costs associated with the sole cost and expense. Not by way of limitation of the preceding sentence, Tenant shall be responsible for any and all costs associated with the design, permitting, construction, fabrication, installation, maintenance, cleaning, power, utilities, structural issues, restoration, and eventual Landlord will permit Tenant and its contractors or agents access to the roof of the Building upon reasonable advance notice to Landlord and, at sole cost and expenses during normal business hours, reasonable power and other reasonable utilities necessary for the installation and maintenance of an Exterior Sign that Landlord has approved in writing. Landlord makes no representation whatsoever concerning the Sign. Tenant is solely responsible for ensuring that the Exterior Sign is suitable for its intended use. Tenant, at its sole cost, expense, and diligence, shall obtain all required permits, approvals, and shall comply with all laws, regulations, rules, and ordinances in connection with use, condition, or repair of the Exterior Sign. (e) All signs set forth in this Paragraph 21. are subject to all required governmental approvals, laws, codes, permits, rules and regulations. Notwithstanding anything contained herein, signage rights shall be non-transferable to a sub-tenant or to any other party without Nothing in this Paragraph 21. shall be deemed to preclude or limit Landlord from placing or installing signage of any kind or anywhere else in or on the Building but excluding the Premises Other Signage 21. provide Tenant any rights whatsoever in relation to the Other Signage. Notwithstanding anything to the contrary in the foregoing, in the event that Tenant has not completed installation of the Exterior Sign by March 1, 2026, then Tenant shall not have the right to install the Exterior Sign and Paragraph 21.(c) above shall be deemed deleted, null and void and of no further force or effect. 22. Broker. Landlord and Tenant each hereby represents and warrants to the other that it has not dealt with any real estate broker, sales person, or finder in connection with this Twelfth Amendment except for Landlord's broker, CBRE, Inc. Jones Lang LaSalle Brokerage, Inc. (collectively the Brokers . Unless otherwise agreed by the parties, Landlord shall be responsible for the payment of any commission owed to the Brokers based upon Landlord's separate agreement with such Brokers. Landlord and Tenant each agree to indemnify and hold harmless the other party and their respective agents and employees, from and


 
21 against any and all liabilities and claims for commissions and fees arising out of a breach of the foregoing representation (including without limitation, any other broker claiming to have been engaged by such indemnifying party in connection with this Twelfth Amendment). 23. . Landlord represents and warrants to Tenant that (i) Landlord shall, at its sole cost and expense (except as otherwise provided in the Lease) keep, repair, operate, and maintain the Building and its systems in compliance with all applicable laws, rules, regulations, and codes, including but not limited to the ; (ii) the Base Building HVAC system complies with the most current ASHRAE standards and was certified and approved by a third-party HVAC consultant as to its ability to effectively serve the Tenant and other tenants in the Building; (iii) Landlord will meet with Tenant promptly after execution of this Twelfth Amendment, to discuss the fire emergency alerts and any fire alarm code practices in the Building; (iv) other than as disclosed to Tenant, there are no encumbrances on, and any rights currently existing in favor of other tenants or persons or entities to, the Fifth Floor Expansion Premises and the Seventh Floor Expansion Premises, and Landlord will not permit any such encumbrances or grant any such rights during the Term; and (v) Landlord has engaged a structural consultant to review cracks Landlord shall have the foundation evaluated cost and expense, and will share the annual report from the structural consultant with Tenant promptly after the annual report is made available to Landlord. 24. Additional Modifications to Lease. Paragraph 11. of the Ninth Amendment is hereby deleted in its entirety, null and void and of no further force or effect. Paragraph 9. of the Seventh Amendment is deleted in its entirety, null and void and of no further force or effect. 25. Full Force and Effect. Except as specifically set forth herein, the terms, covenants and conditions of the Lease shall remain in full force and effect. The Lease shall not be further modified or amended, except in writing signed by both Landlord and Tenant. This Twelfth Amendment sets forth the entire understanding of the parties with respect to the matters set forth herein and there are no other rights, including but not limited to, any renewals, extensions, expansions, purchases, rights of first refusal, allowances, etc., granted to Tenant other than those expressly set forth in the Lease that have not been deleted or otherwise nullified by this Twelfth Amendment. Landlord and Tenant hereby ratify and affirm all of the remaining terms and conditions of the Lease not modified or supplemented by this Twelfth Amendment. 26. Provisions Binding. All rights and liabilities herein given to or imposed upon the parties to this Twelfth Amendment shall extend to, and be binding upon and inure to the benefit of, the parties hereto and their respective successors and permitted assigns. 27. Confidentiality. Tenant agree to maintain in confidence and not divulge to any third party (except to employees, brokers, attorneys, accountants or other professional service providers as needed in connection with performing obligations under the Lease, or as may otherwise be required by the Securities and Exchange Commission or applicable law) any of the items, covenants and conditions of the Lease, including without limitation, any information related to the rental rate, the length of the Term, and any other terms and conditions thereof. Tenant further agrees to take commercially reasonable precautions to prevent the unauthorized


 
22 disclosure of any such information to any third parties. The parties obligations under this Paragraph 27. shall survive the termination or expiration of the Lease. 28. Counterparts; Delivery. This Twelfth Amendment may be executed in any number of counterparts, and by each of the parties on separate counterparts, each of which, when so executed, shall be deemed an original, but all of which shall constitute but one and the same instrument provided that all parties execute and deliver a counterpart to the other party. Either party may sign this Twelfth Amendment with an electronic signature by (i) providing a scanned image of a handwritten signature that is attached to an electronic document, or (ii) through the use of e-signature software such as DocuSign. Delivery of an executed counterpart of this Twelfth Amendment by electronic delivery shall be equally as effective as delivery of a manually executed counterpart of this Twelfth Amendment. 29. Landlord Defaults. Landlord shall be in default in the performance of any obligation required to be performed by Landlord pursuant to the Lease if Landlord fails to perform such obligation within thirty (30) days after the receipt of notice from Tenant specifying in detail Landlord s failure to perform; provided, however, if the nature of Landlord s obligation is such that more than thirty (30) days are required for its performance, then Landlord shall not be in default under this Lease if it shall commence such performance within such thirty (30)-day period and thereafter diligently pursues the same to completion, provided, subject to Force Majeure, such cure shall be completed within a total of ninety (90) days after the receipt of notice from Tenant. Upon any such default by Landlord under the Lease, Tenant may exercise any of its rights provided for under this Lease, including self-help, or seek any remedy allowed by law or in equity. Tenant shall further have the right to cure such default and, if such default involves the expenditure of money, Tenant shall have the right to deduct the cost of curing such Landlord Default together with an administrative fee of 10% of the cost thereof from any Fixed Rent due or accruing under the Lease Fixed Rent shall in no way be an admission by Landlord that Landlord has not complied with its assertion that the Landlord is in fact in default of its obligations under this Lease. Any award from a court or arbitrator in favor of Tenant requiring payment by Landlord which is not paid by Landlord within the time period directed by such award, may be offset by Tenant from any Fixed Rent next due and payable under the Lease. [SIGNATURE PAGE FOLLOWS]


 
Signature Page to Twelfth Amendment IN WITNESS WHEREOF, the parties hereto have executed this Twelfth Amendment to Lease Agreement on the day and year set forth below. LANDLORD: WHARTON LENDER ASSOCIATES, LP, a Pennsylvania Limited Partnership By: WHARTON LENDER PROPERTIES, LLC, a Pennsylvania Limited Liability Company, its General Partner By: Name: Title: Date: September ___, 2024 TENANT: KRYSTAL BIOTECH, INC., a Delaware corporation By: Name: Title: Date: September ___, 2024


 
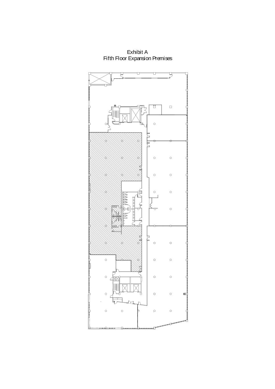
Exhibit A Fifth Floor Expansion Premises


 
Exhibit A-1 Seventh Floor Expansion Premises


 
Exhibit B Landlord shall perform demolition to the Fifth Floor Expansion Premises to include: 1. Dashed lines indicate walls/ doors/ frames to be demolished. Other walls, ceilings, ductwork, electrical, lighting, etc. shall remain. 2. Existing flooring and base shall be removed. 3. Existing lighting, ceiling tile and grid shall be removed. 4. Existing main ductwork shall remain. Branches, flex, diffusers, fan powered boxes and VAVs shall be removed along with associated feeds. 5. Existing sprinkler mains and branches shall remain. 6. Phone/ Data/ AV cabling feeding this space shall be removed. Cabling feeding in other spaces that cross this space shall remain and be labeled. 7. Existing electrical feeding partitions, lighting, etc. shall be removed back to junction boxes within space.


 
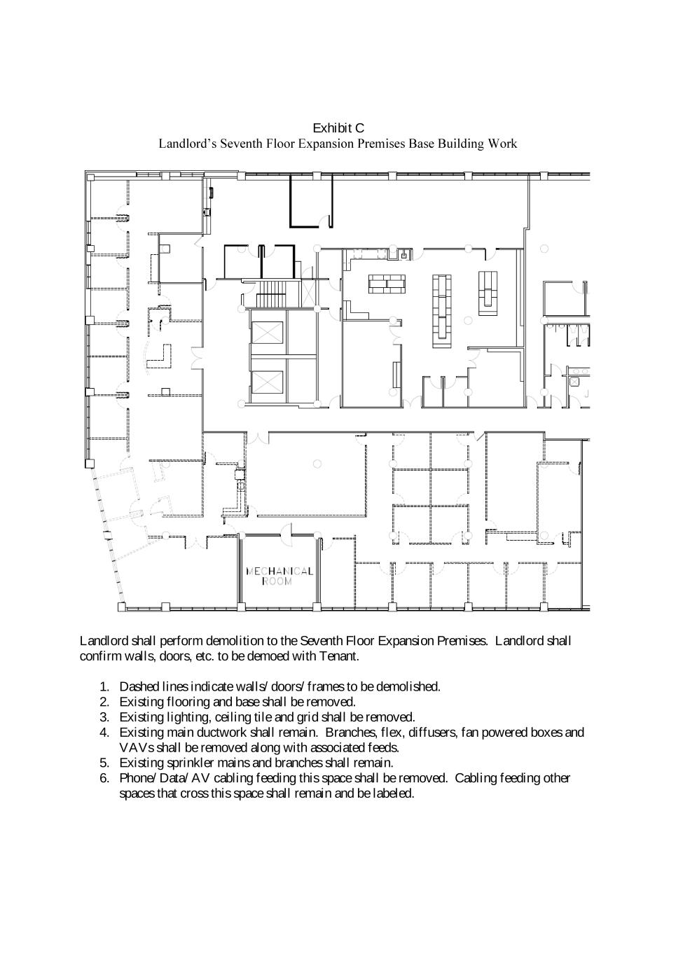
Exhibit C Landlord shall perform demolition to the Seventh Floor Expansion Premises. Landlord shall confirm walls, doors, etc. to be demoed with Tenant. 1. Dashed lines indicate walls/ doors/ frames to be demolished. 2. Existing flooring and base shall be removed. 3. Existing lighting, ceiling tile and grid shall be removed. 4. Existing main ductwork shall remain. Branches, flex, diffusers, fan powered boxes and VAVs shall be removed along with associated feeds. 5. Existing sprinkler mains and branches shall remain. 6. Phone/ Data/ AV cabling feeding this space shall be removed. Cabling feeding other spaces that cross this space shall remain and be labeled.


 
Exhibit D Refusal Space


 
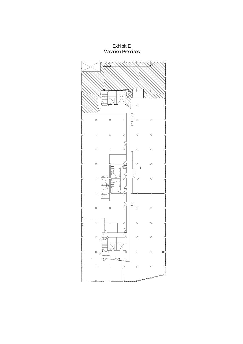
Exhibit E Vacation Premises