Please wait

Exhibit 10.8

LEASE

between

THE CONNELL COMPANY

Landlord

and

KALARIS THERAPEUTICS, INC.

Tenant

400 Connell Drive

 


TABLE OF CONTENTS

 

     PAGE  

ARTICLE I BASIC LEASE INFORMATION

     1  

Section 1.01

  Building and Land; Real Estate      1  

Section 1.02

  Demised Premises      1  

Section 1.03

  Base Rent      1  

Section 1.04

  Letter of Credit:      2  

Section 1.05

  Term      3  

Section 1.06

  Tenant’s Pro Rata Share      3  

Section 1.07

  Intentionally Deleted      3  

ARTICLE II DEFINITIONS

     3  

ARTICLE III PREPARATION OF THE DEMISED PREMISES

     6  

Section 3.01

  Tenant Work      6  

Section 3.02

  Tenant’s Early Access      8  

Section 3.03

  No Representation      8  

ARTICLE IV OPTION TO RENEW; TERMINATION OPTION

     8  

Section 4.01

  Option to Renew      8  

Section 4.02

  Termination Option      9  

ARTICLE V RENT

     9  

Section 5.01

  Base Rent      9  

Section 5.02

  Tax Increase Amount      9  

Section 5.03

  Building Operating Costs; Adjustments      10  

Section 5.04

  Payment of Rent      14  

ARTICLE VI SIGNS

     15  

Section 6.01

  Directory      15  

Section 6.02

  Signs      15  

ARTICLE VII REPAIRS, ALTERATIONS, COMPLIANCE, SURRENDER

     15  

Section 7.01

  Repairs by Landlord      15  

Section 7.02

  Repairs, Maintenance and Improvements by Tenant      15  

Section 7.03

  Approval by Landlord of Improvements      16  

Section 7.04

  Emergency Repairs      18  

Section 7.05

  Electrical Lines      18  

Section 7.06

  Surrender of Premises      18  

ARTICLE VIII SERVICES AND UTILITIES

     19  

Section 8.01

  Landlord’s Services      19  

Section 8.02

  Electricity      19  

 

i


ARTICLE IX USE AND OPERATION

     20  

Section 9.01

  Use      20  

Section 9.02

  Rules and Regulations Established by Landlord      20  

Section 9.03

  Restriction on Tenant’s Activities      20  

Section 9.04

  Illegal Purposes      21  

ARTICLE X TRANSFER OF INTEREST; PRIORITY OF LIEN

     21  

Section 10.01

  Assignment, Subletting, etc.      21  

Section 10.02

  Subordination      23  

Section 10.03

  Attornment      23  

Section 10.04

  Transfer of Landlord’s Interest      23  

Section 10.05

  Mortgagee’s Rights      24  

ARTICLE XI COMMON AREA

     24  

Section 11.01

  Use of Common Area      24  

Section 11.02

  Landlord’s Rights      24  

Section 11.03

  License Numbers      25  

Section 11.04

  Landlord’s Obligation with Respect to Parking Area:      25  

ARTICLE XII DESTRUCTION OR DAMAGE

     25  

Section 12.01

  Rent Abatement      25  

Section 12.02

  Option to Terminate      25  

Section 12.03

  Landlord’s Obligation to Rebuild      26  

Section 12.04

  Landlord’s Liability:      26  

ARTICLE XIII CONDEMNATION

     26  

Section 13.01

  Definitions      26  

Section 13.02

  Taking of Demised Premises      26  

Section 13.03

  Taking for Temporary Use:      26  

Section 13.04

  Disposition of Awards:      27  

ARTICLE XIV TENANT’S INSURANCE

     27  

Section 14.01

  General Insurance      27  

Section 14.02

  Liability Insurance      27  

Section 14.03

  Property Insurance      28  

Section 14.04

  Worker’s Compensation Insurance      28  

Section 14.05

  Other Insurance      28  

Section 14.06

  Waiver of Subrogation      28  

Section 14.07

  Insurance Rate      28  

ARTICLE XV INDEMNIFICATION AND LIABILITY

     28  

Section 15.01

  Indemnification      28  

Section 15.02

  Waiver and Release      29  

Section 15.03

  Liability of Landlord      29  

ARTICLE XVI DEFAULT; REMEDIES

     30  

Section 16.01

  Default      30  

Section 16.02

  Landlord’s Remedy      31  

 

ii


Section 16.03

  Landlord’s Re-Entry      31  

Section 16.04

  Landlord’s Additional Remedies      31  

Section 16.05

  Agreed Final Damages      32  

Section 16.06

  Waiver of Right of Redemption      32  

Section 16.07

  Landlord’s Right to Perform for Account of Tenant;   
  Letter of Credit:      32  

Section 16.08

  Additional Remedies, Waivers, etc.      33  

Section 16.09

  Intentionally Deleted      34  

ARTICLE XVII TENANT’S ESTOPPEL CERTIFICATE

     34  

ARTICLE XVIII RIGHT OF ACCESS

     34  

ARTICLE XIX COVENANT OF QUIET ENJOYMENT

     34  

ARTICLE XX MISCELLANEOUS

     34  

Section 20.01

  Interpretation      34  

Section 20.02

  Construction of Words and Phrases      35  

Section 20.03

  Written Agreement Required      35  

Section 20.04

  Notice:      36  

Section 20.05

  Survival of Provisions upon Termination of Lease      36  

Section 20.06

  Successors and Assigns      36  

Section 20.07

  Intentionally Deleted      36  

Section 20.08

  Tenant at Sufferance      36  

Section 20.09

  Interest      37  

Section 20.10

  Late Charge      37  

Section 20.11

  Non-Waiver      37  

Section 20.12

  Broker      37  

Section 20.13

  Short Form Lease      37  

Section 20.14

  Mechanics’ Liens      37  

Section 20.15

  Corporate Authority      38  

Section 20.16

  Force Majeure      38  

Section 20.17

  Governing Law      38  

Section 20.18

  Financial Statements      38  

Section 20.19

  Flood Risk Notice      38  

ARTICLE XXI ENVIRONMENTAL MATTERS

     39  

Section 21.01

  Industrial Site Recovery Act      39  

Section 21.02

  Spill Act      41  

Section 21.03

  Toxic and Hazardous Materials      42  

Section 21.04

  Other Environmental Laws:      42  

Section 21.05

  Survival of Environmental Terms and Conditions.      42  

Section 21.06

  Landlord Representation.      42  

EXHIBITS

 

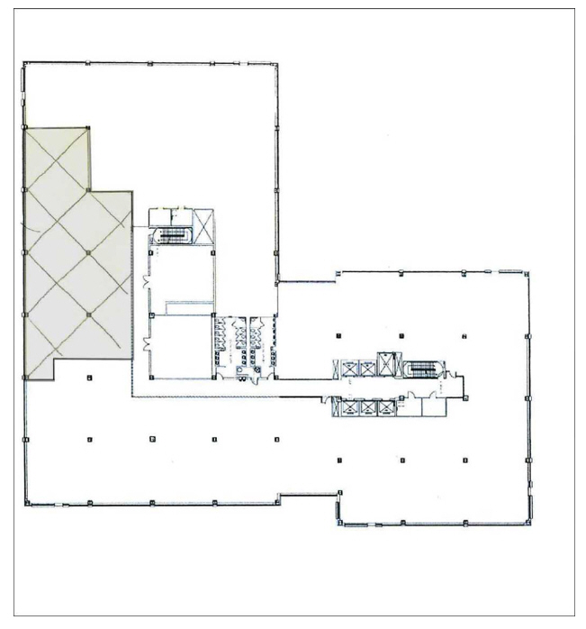
Exhibit A    Legal Description of the Land and Site Layout
Exhibit B    Rental Plan showing the Demised Premises
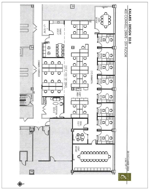
Exhibit C-1    Space Plan
Exhibit C-2    Tenant Workletter
Exhibit D    Rules and Regulations
Exhibit E    Building Janitorial Specifications
Exhibit F    Commencement Date Addendum
Exhibit G    Form of Letter of Credit
Exhibit G-1    Approved Form of Letter of Credit

 

iii


THIS IS A CONFIDENTIAL DOCUMENT

LEASE

THIS AGREEMENT OF LEASE (together with all Exhibits and Schedules attached or to be attached hereto, this “Lease”) is dated as of February 4, 2025 between THE CONNELL COMPANY, a New Jersey corporation, whose address is 300 Connell Drive, Berkeley Heights, New Jersey 07922 (subject to Section 10.04 hereof, “Landlord”) and KALARIS THERAPEUTICS, INC., Delaware corporation whose address is 628 Middlefield Road, Palo Alto, California 94301 (“Tenant”).

Landlord hereby leases to Tenant and Tenant hereby leases from Landlord the Demised Premises (hereinafter defined) for the Term (hereinafter defined) at the rent and subject to all of the terms and conditions set forth herein. Intending to be legally bound hereunder and in consideration of $1.00 and other good and valuable consideration, the receipt and sufficiency of which are hereby acknowledged, Landlord and Tenant hereby agree with each other as follows:

ARTICLE I. BASIC LEASE INFORMATION.

Section 1.01 Building and Land; Real Estate:

The “Building” is 400 Connell Drive, Berkeley Heights, New Jersey 07922. The “Land” shall mean all that real property which is more particularly described in Exhibit A attached hereto and made a part hereof (such Exhibit A containing both a legal description of the Land and a site layout thereof). The Building and the Land are sometimes referred to collectively herein as the “Real Estate.”

Section 1.02 Demised Premises:

The Demised Premises is the portion of the Building leased to Tenant, consisting of 5,201 usable square feet of floor area converted to 6,371 rentable square feet of floor area by multiplying the usable square feet by 122.5%, and located on the fifth (5th) floors and designated as “Demised Premises” on the “Rental Plan” (which is attached hereto as Exhibit B). The Demised Premises includes any alterations, additions, improvements or repairs of any nature made thereto. This computation of rentable square footage shall be binding and conclusive on the parties and their successors and assigns.

Section 1.03 Base Rent:

“Base Rent” in the applicable period of the Term of this Lease shall equal the applicable amount set forth below.

 

  (i)

Months 1 through 4: $0.00 per month;

 

  (ii)

Months 5 through 16: $27,873.13 per month ($52.50 per rentable square foot of the Demised Premises per annum);

 

  (iii)

Months 17 through 28: $28,430.59 per month ($53.55 per rentable square foot of the Demised Premises per annum);

 

  (iv)

Months 29 through 40: $28,998.67 per month ($54.62 per rentable square foot of the Demised Premises per annum);

 

  (v)

Months 41 through 52: $29,577.37 per month ($55.71 per rentable square foot of the Demised Premises per annum);


  (vi)

Months 53 through 64: $30,166.69 per month ($56.82 per rentable square foot of the Demised Premises per annum);

 

  (vii)

Months 65 through 76: $30,771.93 per month ($57.96 per rentable square foot of the Demised Premises per annum);

In all cases, Base Rent during any renewal term shall be governed by Section 4.01 hereof. Base Rent shall be payable per Section 5.01 hereof (it being understood that payment for electricity per Section 8.02 hereof is an amount in addition to Base Rent).

The parties agree that in the event Tenant receives any days of free Base Rent pursuant to Section 3.01(f) hereof, then the month references set forth above in clauses (i) through (vii) of this Section 1.03 shall be calculated with reference to the period starting immediately after the conclusion of the Free Base Rent Period (as defined in Section 3.01(f)); by way of example, if Tenant were entitled under Section 3.01(f) to a Free Base Rent Period of ten (10) days starting at the Commencement Date, then the Month 1 through 4 period set forth in clause (i) above would start immediately after the conclusion of such ten (10) day Free Base Rent Period.

Section 1.04 Letter of Credit:

(a) Tenant shall cause an irrevocable, transferable letter of credit, substantially in the form of Exhibit G attached hereto (the “Letter of Credit”), to be issued and outstanding in favor of Landlord, at all times from the date this Lease is fully executed and delivered by Landlord and Tenant until sixty (60) days after the expiration or earlier termination of this Lease. Each Letter of Credit shall, unless otherwise agreed by Landlord in a signed writing, (i) be issued by a domestic United States financial institution with a credit rating of at least A1 by Moody’s Investors Service, Inc. (“Moody’s”) (or upon modification or replacement of such financial rating system, its then equivalent rating) (the “Required Credit Rating”) and otherwise reasonably acceptable to Landlord (the “Letter of Credit Provider”), (ii) have an expiration date of not earlier than one calendar year following the date of issue, (iii) at all times be in an available amount of not less than the Required Letter of Credit Amount (as defined in Section 1.04(c) hereof), and (iv) provide that during the Term it shall be automatically extended for an additional period of one year from the scheduled expiration date unless at least thirty (30) days prior to such date Landlord receives from the Letter of Credit Provider thereof notice in writing that such Letter of Credit Provider elects not to renew such Letter of Credit for such additional period. If the Letter of Credit Provider elects not to renew such Letter of Credit for such additional period, then Tenant shall cause a new Letter of Credit to be issued in replacement thereof from a Letter of Credit Provider at least fifteen (15) days prior to the expiration date of the existing Letter of Credit. Landlord hereby approves (i) First Citizen’s Bank & Trust Company, which is rated BBB+ by S&P, as the issuer of the Letter of Credit, and (ii) the form of letter of credit attached hereto as Exhibit G-1.

(b) If, while a Letter of Credit is required to be outstanding hereunder, the financial rating of the Letter of Credit Provider providing the Letter of Credit is less than the Required Credit Rating, then Landlord may require Tenant to provide, and Tenant shall provide, a replacement Letter of Credit issued by a Letter of Credit Provider with a credit rating that meets the Required Credit Rating within thirty (30) days of demand therefor by Landlord, which replacement Letter of Credit shall comply with the terms of Section 1.04(a) hereof, provided that nothing in this Section 1.04(b) shall affect the obligations of Tenant under Section 1.04(a) hereof. Promptly following receipt of such replacement Letter of Credit, Landlord shall surrender the Letter of Credit being replaced to the Letter of Credit Provider thereof. Notwithstanding anything to the contrary contained herein, this paragraph 1.04(b) shall not apply to (x) First Citizen’s Bank & Trust Company, so long as its credit rating remains at or above the BBB+ S&P rating stated in Section 1.04(a) or (y) any issuer of a Letter of Credit approved by Landlord in writing pursuant to this Lease, so long as such issuer’s credit rating remains at or above its credit rating at the time of Landlord’s approval of the applicable Letter of Credit.

 

2


(c) “Required Letter of Credit Amount” shall mean an amount equal to $500,000.00, as adjusted pursuant to the following sentence. So long as no Event of Default has occurred and is then continuing, the Required Letter of Credit Amount may be reduced to the following amounts (on the applicable dates set forth below):

(i) On the first day of the twenty-ninth (29th) full calendar month after the Commencement Date: $425,000.00;

(ii) On the first day of the fortieth (40th) full calendar month after the Commencement Date: $350,000.00;

(iii) On the first day of the fifty-second (52nd) full calendar month after the Commencement Date: $275,000.00; and

(iv) On the first day of the sixty-fourth (64th) full calendar month after the Commencement Date: $200,000.00.

The Required Letter of Credit shall not be further reduced below $200,000.00; provided that the foregoing sentence shall not in any manner limit the rights of Landlord as provided in Section 16.07 of this Lease.

Section 1.05 Term:

The “Term” of this Lease shall commence on the Commencement Date and shall continue for six (6) years and four (4) months, or seventy six (76) months in the aggregate, thereafter (provided that if the Commencement Date is not the first day of a month, then in addition to such seventy six (76) month period, the Term shall include an additional number of days equal to the number of days in the period from and including the Commencement Date to and including the last day of the month (of the same year) on which the Commencement Date occurred), unless sooner terminated or renewed in accordance with the provisions of this Lease.

Section 1.06 Tenants Pro Rata Share:

For purposes of this Lease, Tenant’s Pro Rata Share shall be the ratio of the total rentable square footage of the Demised Premises to the total rentable square footage of the Building. Landlord and Tenant have determined that Tenant’s Pro Rata Share is 2.429%, calculated as follows: Demised Premises of 6,371 rentable sq. ft. divided by the rental Area of Building of 262,294 sq. ft. = 0.02429 x 100 = 2.429%. This determination of Tenant’s Pro Rata Share shall be binding and conclusive on the parties, and their successors and assigns.

Section 1.07 Intentionally Deleted:

ARTICLE II. DEFINITIONS.

Section 2.01 As used herein, the terms below shall have the following meanings:

(a) “Appraisal Procedure” shall mean the following: within ten (10) days after the expiration of the fifteen (15) day period specified in Section 4.01(b) hereof, each party shall appoint a disinterested, independent appraiser who is a member of the American Institute of Real Estate Appraisers (or a successor organization or, if none exists, the closest similar organization) and has at least five years experience appraising rental properties in New Jersey of the general location, type and character as the Demised Premises (an “Appraiser”). Within twenty (20) days after their appointment, the two Appraisers so appointed shall appoint a third Appraiser. If no such third Appraiser is appointed within thirty (30) days after the appointment of the two Appraisers, then either party may apply to the American Arbitration Association (“AAA”) to make such appointment, and both parties shall be bound by such appointment.

 

3


Each Appraiser appointed pursuant to the foregoing procedure shall be instructed to determine the amount of Market Rent within twenty (20) days after his or her appointment. Each of the three Appraisers shall determine the value of Market Rent applying the parameters set forth in Section 4.01(b). The values of the Market Rent determined by each of the three Appraisers shall then be averaged, the determination which differs most from such average shall be excluded, the remaining two values shall then be averaged, and such average shall be the Market Rent, which shall be final and binding on the parties. The expenses and fees of all such Appraisers shall be shared equally between Landlord and Tenant.

(b) “Assessed Valuation” shall mean (i) the assessed valuation of the Building plus (ii) one-third (1/3) of the assessed valuation of the Land, in each case including any added and/or omitted assessments, and in each case as determined by the real estate tax records of the Township of Berkeley Heights.

(c) “Base Rent” shall have the meaning set forth in Section 1.03 of this Lease.

(d) “Base Tax Rate” shall mean the real estate tax rate in effect for the calendar year 2025.

(e) “Building” shall have the meaning set forth in Section 1.01 of this Lease.

(f) “Building 300” shall mean the building located at 300 Connell Drive, Berkeley Heights, New Jersey 07922, as designated on Exhibit A attached hereto. For purposes of clarification, any parking lots, roadways or courtyards located anywhere on the Land are not included within the definition of Building 300.

(g) “Building 500” shall mean the building previously anticipated to be located at 500 Connell Drive, Berkeley Heights, New Jersey 07922 as designated on Exhibit A attached hereto (it being understood that only the foundations of Building 500 previously were constructed). For purposes of clarification, any parking lots, roadways or courtyards located anywhere on the Land are not included within the definition of Building 500.

(h) “Building Operating Costs” shall have the meaning set forth in Section 5.03(c),(d) and (e) of this Lease.

(i) The “Commencement Date” of this Lease shall be the earliest of (i) the day on which Landlord, having substantially completed the Tenant Work, obtains a Certificate of Occupancy or Temporary Certificate of Occupancy for the Demised Premises and delivers the Demised Premises to Tenant, provided that with respect to a Temporary Certificate of Occupancy, (x) Tenant can operate its business under such Temporary Certificate of Occupancy and (y) Landlord covenants not to let the Temporary Certificate of Occupancy lapse prior to issuance of a permanent Certificate of Occupancy; or (ii) the day on which Tenant commences to do business in the Demised Premises. Notwithstanding the foregoing, if and to the extent that there is any delay in the completion of the Tenant Work which is attributable to the act(s) or omission(s) of Tenant or Tenant’s Agents (each, a “Tenant Delay”), then the “Commencement Date” for all purposes under this Lease shall be deemed to be the day on which the Commencement Date would have occurred but for such Tenant Delay. The parties agree that, without limiting the generality of what constitutes a Tenant Delay, any of the following events that delay the Commencement Date shall be treated as a Tenant Delay: (I) special equipment, fixtures or materials requested by Tenant; (II) changes, alterations or additions to the Tenant Work after the parties have agreed on the Plans and Specifications, or (III) the delay or failure of Tenant in supplying information or approving or authorizing any applicable plans, specifications, or other matters as required under this Lease or any other act or omission of Tenant not in compliance with this Lease. Promptly following the Commencement Date, Landlord and Tenant shall execute a Commencement Date Addendum in the form attached hereto as Exhibit F which shall confirm the Commencement Date (it being agreed that the failure of either party to execute the Commencement Date Addendum shall not in any way affect the Commencement Date or any other terms of this Lease).

 

4


(j) The “Common Area” shall mean, collectively, without limitation, the hallways, entryways, stairs, cafeteria (in Building 300), elevators, driveway, sidewalks, parking areas, loading areas, trash facilities, and all other areas and facilities of the Building and the Land provided from time to time by Landlord for the general use and convenience of Tenant with other tenants and their respective employees, servants, invitees, licensees or other visitors; provided, however, that for purposes of clarification, Common Area (i) shall not include Building 300 (other than the cafeteria located therein and reasonable accessways thereto) or Building 500 but (ii) shall include any parking lots, roadways or courtyards located anywhere on the Land.

(k) “Connell Park” shall mean the corporate park located in Berkeley Heights, New Jersey which is commonly known as “The Park” (f/k/a “Connell Park” and “Connell Corporate Park”).

(l) “Demised Premises” shall have the meaning set forth in Section 1.02 of this Lease.

(m) “Expiration Date” shall be the last day of the Term. If this Lease shall have been renewed, the Expiration Date shall be the last day of the Term as so renewed.

(n) “Extra Taxes” shall have the meaning set forth in Section 5.02(b) of this Lease.

(o) “Land” shall have the meaning set forth in Section 1.01 of this Lease.

(p) “Letter of Credit” shall have the meaning set forth in Section 1.04 of this Lease.

(q) “Letter of Credit Provider” shall have the meaning set forth in Section 1.04 of this Lease.

(r) “Mortgage” shall mean any mortgage, deed to secure debt, trust indenture, deed of trust or other security document or instrument which may now or hereafter affect, encumber or be a lien upon the Demised Premises, the Building, the Land, and any spreading agreements, including, without limitation, any renewals, modifications, consolidations, replacements and extensions thereof.

(s) “Mortgagee” shall mean the holder of any Mortgage at any time.

(t) “Operating Increase Amount” shall have the meaning set forth in Section 5.03(a) of this Lease.

(u) “Operating Year” shall mean any calendar year. The “First Operating Year” is the calendar year 2025.

(v) “Parking Area” shall mean those portions of the Land which are designated for parking by Landlord, from time to time. Up to 10% of the parking spaces may be designated reserved by the Landlord; it being understood that Section 8.01(c) hereof sets forth the number of parking spaces designated as reserved for Tenant and the parking ratio for Tenant’s access to parking spaces.

(w) “Plans and Specifications” shall have the meaning set forth in Section 3.01 hereof.

(x) “Real Estate” shall have the meaning set forth in Section 1.01 hereof.

(y) “Real Estate Tax Base” shall mean the dollar amount of real estate tax payable with respect to the Real Estate on an annual basis, determined by multiplying the Assessed Valuation by the Base Tax Rate plus any charges or assessments imposed upon the Real Estate which are reasonably anticipated to continue thereafter (it being understood that the Real Estate Tax Base shall not include any real estate tax which may be imposed on the building value (as opposed to the land value) of Building 300 or Building 500 (if and when such building is constructed).

 

5


(z) “Rent” shall mean the aggregate of Base Rent, Tax Increase Amount, Extra Taxes, Operating Increase Amount (each as defined herein) and any other charges payable to Landlord hereunder, including utility charges.

(aa) “Security Deposit” shall have the meaning set forth in Section 16.07 hereof.

(bb) “Tax Increase Amount” shall have the meaning set forth in Section 5.02(a) of this Agreement.

(cc) “Tax Year” shall mean any calendar year.

(dd) “Taxes” shall mean all real estate taxes, charges and assessments imposed upon the Real Estate (it being understood that (i) Taxes shall not include any real estate taxes, charges and assessments imposed upon the building portion, as opposed to the land portion, of Building 300 or Building 500 if and when such building is constructed and (ii) subject to any Extra Taxes, in determining Taxes attributable to the Land (as opposed to the Building) which shall be allocated to this Lease, one-third (1/3) of the assessed valuation of the Land (times the applicable real estate tax rate), as determined by the real estate tax records of the Township of Berkeley Heights, shall be allocated to this Lease). If any franchise, capital stock, capital gains, rent, income, profit or any other tax or charge of any nature whatsoever shall be substituted in whole or in part for the current ad valorem taxes now or hereafter imposed upon the Real Estate due to a change in the method of taxation or assessment, such franchise, capital stock, capital gains, rent, income, profit or other tax or charge shall be deemed included as Taxes.

(ee) “Tenant’s Agents” shall mean, without limitation Tenant’s employees, servants, representatives, agents, licensees, permitted subtenants and assignees, contractors, heirs, successors, legatees, and devisees.

(ff) “Tenant’s Pro Rata Share” shall have the meaning set forth in Section 1.06 of this Lease.

(gg) “Tenant Work” shall have the meaning set forth in Section 3.01 of this Lease.

(hh) “Term” shall have the meaning set forth in Section 1.05 of this Lease.

ARTICLE III. PREPARATION OF THE DEMISED PREMISES.

Section 3.01 Tenant Work:

(a) The parties agree that the space plan attached hereto as Exhibit C-1 (the “Space Plan”) shall form the starting point for the design and construction of the Tenant Work. The parties agree that Landlord shall retain an architect (the “Architect”) to design the interior of the Demised Premises and prepare complete interior construction drawings, including layouts and interior specifications and, as necessary, mechanical, electrical, plumbing and fire protection drawings for the preparation of the Demised Premises, in each case substantially consistent with the Space Plan (the “Plans and Specifications”). Tenant shall cooperate as necessary in connection with the preparation of the Plans and Specifications, in a complete and timely manner and as reasonably requested by Landlord, and without limiting the foregoing, Tenant shall provide to Landlord all reasonable information as shall be reasonably required for the preparation of mechanical drawings and other Plans and Specifications.

(b) Landlord shall cause the Plans and Specifications to be delivered to Tenant for Tenant’s review and consideration as soon as reasonably practicable. Tenant shall inform Landlord of any requested changes as soon as possible, but in no event later than ten (10) business days following Tenant’s receipt of the Plans and Specifications. Any requested changes must be acceptable to Landlord, and the

 

6


final Plans and Specifications must be mutually agreed upon by Landlord and Tenant. Tenant shall act in a reasonable manner in approving or objecting to the Plans and Specifications. The parties agree that once Tenant shall have approved the Plans and Specifications Landlord shall not have any responsibility for such Plans and Specifications (including the functionality thereof), other than to have the construction performed in accordance with such Plans and Specifications pursuant to the terms of this Lease. For purposes of clarification, it is agreed that Tenant shall be responsible, at its own cost, for all furniture and for the installation of any data cabling, telecommunications wiring, and any access control systems (including, without limitation, any card readers or other access control features at the entrance of the Demised Premises) within the Demised Premises (and any such installations must be done by Tenant in compliance with the terms of this Lease). With respect to all aspects of the Tenant Work, Tenant agrees to reasonably cooperate with Landlord in an effort to have the Tenant Work completed as soon as possible. Any material change or modification of the Plans and Specifications shall not be valid or binding unless consented to by Landlord in writing.

(c) The Tenant Workletter, annexed hereto as Exhibit C-2, sets forth in detail the parties’ understanding regarding building standards, Tenant Work and certain other aspects of Tenant Work in the Building (including, without limitation, the respective responsibilities of the parties with respect to the cost of the Tenant Work).

(d) Construction, according to the Plans and Specifications (“Tenant Work” and sometimes referred to herein as “initial Tenant Work”) shall be carried out and pursued to completion by Landlord with the cooperation of Tenant. In that connection:

(i) Landlord shall have the sole right to designate general contractors and subcontractors for the Tenant Work; provided, however, that Landlord will competitively bid the Tenant Work to at least three (3) qualified general contractors selected by Landlord. Landlord will provide Tenant with appropriate information concerning bids received from such general contractors and shall, prior to selecting a general contractor to perform the Tenant Work, reasonably consult with Tenant concerning such decision.

(ii) Landlord shall apply for all approvals and permits legally required in connection with the performance of initial Tenant Work. If necessary, Tenant shall join in the execution of the applications, and at Landlord’s request, shall cooperate with the prosecution of the application. Landlord shall be responsible for the actual fees and costs of any such applications, it being understood for purposes of clarification that any such fees and costs shall be part of the total cost of the construction of the Tenant Work for purposes of calculating any allowances to Tenant (and reimbursement obligations of Tenant) described in Exhibit C-2 this Lease.

(e) Unless otherwise specifically stated in the Plans and Specifications, all materials for the Tenant Work shall be in accordance with Building standards. Landlord shall cause the Tenant Work to be completed in a good and workman-like manner and in conformance with applicable building codes and laws.

(f) The parties anticipate that the Tenant Work, as described in this Section 3.01, will be substantially complete and that the Commencement Date shall have occurred within one hundred twenty (120) days from the date construction permits for the Tenant Work are issued by the Township of Berkeley Heights (the “Target Commencement Date”), and Landlord agrees to use reasonable good faith efforts to cause the Tenant Work to be substantially complete and the Commencement Date to occur by the Target Commencement Date. In the event that the Tenant Work is not substantially complete and the Commencement Date has not occurred by the Target Commencement Date, then Landlord shall continue to use reasonable good faith efforts to cause the Tenant Work to be substantially complete and the Commencement Date to occur promptly thereafter; provided, however, that Landlord shall not have any liability for the failure of the Tenant Work to be substantially complete and the Commencement Date to have occurred by any particular date, except as expressly set forth in this Section 3.01(f). Notwithstanding

 

7


the foregoing, the parties agree that if the Commencement Date shall not have occurred by the date which is sixty (60) days immediately following the Target Commencement Date (the last day of such sixty (60) day period being referred to as the “Completion End Date”), then as Tenant’s exclusive remedy for such failure, Tenant shall receive for each day beyond the Completion End Date until the Commencement Date occurs, one (1) day of free Base Rent (the number of days of free Base Rent that Tenant receives pursuant to this sentence is referred to as the “Free Base Rent Period”), with such Free Base Rent Period starting on the Commencement Date; provided, however, that: (A) Tenant shall not be entitled to receive any given day of such free Base Rent to the extent that the Commencement Date did not occur by the Completion End Date or any date thereafter, by reason of any Tenant Delay or Force Majeure; and (B) the Term of this Lease shall be extended by the number of days equal to the Free Base Rent Period.

(g) Tenant acknowledges that the Building is a multi-tenant building, and that Landlord and other tenants in the Building and their respective contractors will be performing tenant fit-up work and other construction in the Building from time to time, during both Business Hours and non-Business Hours.

Section 3.02 Tenants Early Access:

(a) Landlord shall permit Tenant to enter the Demised Premises before Tenant Work is substantially completed for the purposes of inspection and, during the period which is thirty (30) days immediately prior to the date the Tenant Work is substantially completed, for the purposes of installation of Tenant’s furniture, fixtures, equipment and data/telephone cabling (including, without limitation, security, audio/visual equipment and white noise), in each case during normal Business Hours. All of the foregoing work and installations (including the contractors selected by Tenant to perform such work) are subject to the terms of, and shall be performed by Tenant, at Tenant’s cost, in accordance with the terms of this Lease (including Section 7.03 hereof).

(b) If Tenant is permitted access to the Demised Premises prior to the Commencement Date (including, without limitation, pursuant to Section 3.02(a) hereof), it shall be at Tenant’s sole risk. The foregoing license is conditioned upon Tenant and Tenant’s Agents not interfering with Landlord or Landlord’s completion of the Tenant Work, Landlord’s employees, agents, servants, representatives or licensees, or the workmen of any other tenant. This license may be withdrawn by Landlord at any time, upon written notice to Tenant. Landlord shall not be liable in any way for any injury, loss or damage of any nature whatsoever occurring as a result of early access to the Demised Premises by Tenant or any employee, agent, servant, contractor or representative thereof. Landlord shall have the right to impose such additional conditions on tenant’s early entry as Landlord, in its reasonable discretion, deems appropriate.

Section 3.03 No Representation

Landlord has made and makes no representations, covenants or warranties with respect to the Demised Premises, the Building or the Land, except as expressly set forth in this Lease. Notwithstanding the foregoing, Landlord represents that there are no title encumbrances on or affecting the Demised Premises which prevent Landlord from leasing the Demised Premises to Tenant in accordance with, and subject to, the terms and conditions of this Lease.

ARTICLE IV. OPTION TO RENEW; TERMINATION OPTION.

Section 4.01 Option to Renew:

(a) Tenant shall have two (2) options to renew this Lease (each, a “Renewal Option”) for all (but not less than all) of the Demised Premises on the same terms and conditions of this Lease and in the manner provided below, each for a term of three (3) years (the first three (3) year renewal being sometimes referred to herein as the “First Renewal Term” and the second three (3) year renewal being sometimes referred to herein as the “Second Renewal Term”), provided that there has been no Event of Default (or event or condition which, with the passage of time or giving of notice, or both, would constitute an Event

 

8


of Default) that has occurred and is continuing at the time of exercise of a Renewal Option or as of the commencement of the applicable renewal term and that there have not been repeated recurring Events of Default (whether or not previously cured) during the Term. In the event Tenant desires to elect to exercise the first Renewal Option, Tenant shall give Landlord written notice of its exercise of the first Renewal Option no more than fifteen (15) and no less than twelve (12) months prior to the Expiration Date of the Term. Assuming the first Renewal Option is exercised, and in the event Tenant desires to elect to exercise the second Renewal Option, Tenant shall give Landlord written notice of its exercise of the second Renewal Option no more than fifteen (15) and no less than twelve (12) months prior to the expiration date of the First Renewal Term. If Tenant fails to timely notify Landlord of its exercise of a Renewal Option, then all Renewal Options shall expire.

(b) Base Rent during a renewal term shall equal the prevailing market rental rate for office space of comparable quality, design and location for tenants occupying an amount of space comparable to the amount then leased by Tenant, taking into consideration any concessions (e.g., rent abatement, tenant improvement and other allowances) then being offered by landlords to prospective tenants for comparable space (“Market Rent”), but in no case less than the then existing Base Rent. The parties shall negotiate in good faith to establish the Market Rent. If the parties are unable to agree on Market Rent within fifteen (15) days after Tenant gives Landlord its notice exercising the Renewal Option (the “Notice Date”), then the Appraisal Procedure (as defined in Section 2.01) shall be utilized.

Section 4.02 Termination Option:

Tenant shall have one (1) option to terminate this Lease (the “Termination Option”) with respect to all (but not less than all) of the Demised Premises, with such termination being effective on the date which is four (4) years and four (4) months after the Commencement Date (the “Termination Date”), provided that (i) there has been no Event of Default that has occurred and is continuing at the time of exercise of the option or as of the effective date of the termination, and (ii) Tenant pays Landlord, at least thirty (30) days before the Termination Date, an amount equal to the Termination Amount (as defined below). In the event Tenant desires to elect the Termination Option, Tenant shall give Landlord written notice of its exercise of the Termination Option at least twelve (12) months prior to the Termination Date (the date which is twelve (12) months prior to the Termination Date is referred to herein as the “Termination Notice Final Date”). If Tenant fails to timely notify Landlord of its exercise of the Termination Option by the Termination Notice Final Date, then the Termination Option shall immediately expire and Tenant shall have no further right to exercise same. The termination of this Lease pursuant to this Section 4.02 shall have the same force and effect as if the Termination Date were the originally scheduled Expiration Date of this Lease (it being understood for purposes of clarification that, if Tenant exercises the Termination Option, Tenant’s obligation to pay Landlord the Termination Amount shall survive the early termination and expiration of this Lease). The term “Termination Amount” means $339,019.50.

ARTICLE V. RENT.

Section 5.01 Base Rent:

Tenant shall pay Base Rent to Landlord, in the amount set forth in Section 1.03, without notice or demand, in monthly installments in advance beginning on the Commencement Date. Each subsequent installment shall be due to and received by the Landlord on or before the first day of each month during the Term. Notwithstanding the foregoing, in the event the Commencement Date is not the first day of the month, on the first day of the first month of the Term in which Base Rent is not $0.00, Tenant shall pay Landlord an amount equal to $929.10 for each day of such first “partial” month of the Term. Base Rent for all other partial months shall be pro-rated.

Section 5.02 Tax Increase Amount:

(a) In addition to Base Rent and all other charges Tenant is required to pay hereunder, Tenant shall pay the Tax Increase Amount (as hereinafter defined) to Landlord as follows:

 

9


(i) If the Taxes for any Tax Year during the Term of this Lease shall be greater than the Real Estate Tax Base, then Tenant shall pay to Landlord, as a component of Rent and as provided in Section 5.02(a)(ii) below, the amount (the “Tax Increase Amount”) determined by multiplying the difference between the Taxes for the applicable Tax Year and the Real Estate Tax Base by Tenant’s Pro Rata Share.

(ii) Within one hundred and eighty (180) days after the commencement of each Tax Year after and including the year in which the Assessed Valuation has been established, or as soon as practicable thereafter, Landlord shall submit to Tenant a copy of the bill(s) for the Taxes for such Tax Year and a statement (the “Tax Statement”), which shall indicate: (i) any annual increase in the Taxes, (ii) the effective date of such increase, (iii) the Tax Increase Amount due, if any, and (iv) any Extra Taxes due as set forth below. Tenant shall pay the Tax Increase Amount to Landlord within thirty (30) days after the issuance of the Tax Statement. Any Tax Increase Amount for a period of less than a full Tax Year shall be ratably apportioned.

(b) Tenant shall be liable for any portion of the Taxes, charges and assessments imposed upon the Real Estate during the Term of this Lease which are attributable to extraordinary improvements in the Demised Premises or the Building constructed at Tenant’s expense or for Tenant’s specific benefit and for which the taxing authority has assigned a distinguishable increase in valuation in computing the Assessed Valuation (“Extra Taxes”). Tenant shall pay to Landlord such Extra Taxes within thirty (30) days after issuance of the Tax Statement as set forth above. Any Extra Taxes due for a period of less than a full year shall be ratably apportioned. Tenant shall not be liable for any Extra Taxes attributable to the improvements of any other tenant in the Building.

(c) Tenant’s obligations for payment of Tax Increase Amount or Extra Taxes during the Term shall survive the expiration or early termination of this Lease.

Section 5.03 Building Operating Costs; Adjustments:

(a) Tenant hereby agrees that for each Operating Year during the Term of this Lease for which the Building Operating Costs (as hereinafter defined) budgeted for such Operating Year exceeds the Building Operating Costs for the First Operating Year, Tenant shall pay to Landlord as a component of Rent and in the manner further provided in this Section 5.03, an amount (the “Operating Increase Amount”) determined by multiplying the difference between the budgeted Building Operating Costs for the applicable Operating Year and the Building Operating Costs in the First Operating Year by Tenant’s Pro Rata Share. Within one hundred and eighty (180) days after the commencement of each Operating Year, or as soon as practicable thereafter, except for the First Operating Year, Landlord shall present to Tenant a statement (the “Operating Statement”) showing, inter alia, the Operating Increase Amount, if any, due hereunder (the date upon which the Operating Statement is presented to Tenant being hereinafter referred to as the “Billing Date”). Tenant shall pay the Operating Increase Amount no less frequently than monthly in advance in an amount determined by multiplying the Operating Increase Amount for the applicable Operating Year by one-twelfth (1/12). These monthly payments of the Operating Increase Amount shall be added to and paid simultaneously with the Base Rent. If the total of such monthly payments made by Tenant during any Operating Year is less than the Operating Increase Amount, as shown on the next Operating Statement presented to Tenant, Tenant shall pay the difference to Landlord within thirty (30) days after the Billing Date. If the total of such monthly payments made by Tenant during any year is greater than the Operating Increase Amount, as shown on the next Operating Statement presented to Tenant, Landlord shall refund the excess amount to Tenant within thirty (30) days after the Billing Date. Each Operating Statement shall indicate (i) the Operating Increase Amount for the current year; (ii) the difference between the actual dollar amount of Building Operating Costs and the budgeted Building Operating Costs for the preceding Operating Year; (iii) the total of the monthly payments made by Tenant hereunder for the account of the preceding Operating Year, if applicable; and (iv) the amount of any overpayment or underpayment by Tenant on account of the Operating Increase Amount for the preceding year.

 

10


(b) If Tenant disputes the amount or characterization of any item contained in the Operating Statement by giving written notice thereof to Landlord within ninety (90) days of the Billing Date, Tenant shall have the right, provided that there has been no Event of Default (or event or condition which, with the passage of time or giving of notice, or both, would constitute an Event of Default) that has occurred and is continuing at such time, to designate a firm of independent certified public accountants reasonably acceptable to Landlord (and whose compensation is not, directly or indirectly, contingent in whole or in part on the results of the audit) to audit Landlord’s records upon which the Operating Statement is based, provided Tenant first pays all sums due as shown on the Operating Statement first and such notice identifies with specificity the particular item(s) in the Operating Statement that Tenant believes is/are incorrect. Such audit shall be conducted promptly after Tenant’s notice of dispute is given to Landlord and, unless otherwise specified by Landlord, shall be conducted during regular business hours at the office where Landlord maintains its books and records. The fee for any audit conducted on Tenant’s behalf shall be borne solely by Tenant (subject to the last sentence of this Section 5.03(b)). Landlord shall have the right, at its sole expense (subject to the last sentence of this Section 5.03(b)), to have Tenant’s audit reviewed by a mutually agreed upon third party nationally recognized certified public accountant, whose determination shall be conclusive and binding on both Landlord and Tenant. If, as a result of Tenant’s inspection of Landlord’s books or the audit of Landlord’s records and review by independent certified public accountants, an error is discovered in the Operating Statement, Landlord shall revise the Operating Statement accordingly and any overpayment by Tenant shall be refunded by Landlord to Tenant forthwith and any underpayment shall be paid by Tenant on demand. Any audit and subsequent adjustment in payment shall be deemed to be conclusive of settlement of the dispute. If Tenant does not notify Landlord of a dispute within ninety (90) days of receipt of any Operating Statement, Tenant shall be deemed to have accepted such Operating Statement. Landlord’s records and any information provided by Landlord to auditors pursuant to this Section 5.03(b), and the results of any such audit, shall be and remain confidential and shall not be made available by the auditors or Tenant to any other person or entity. If requested by Landlord, Tenant and its auditor shall, prior to any such audit, execute and deliver to Landlord a confidentiality agreement prepared by Landlord, in favor of Landlord. Notwithstanding anything to the contrary contained in this Section 5.03(b), (i) if the final audit discloses an error in Landlord’s determination of the Building Operating Costs in excess of five percent (5%) in Landlord’s favor, then all costs of the audits shall be borne by Landlord and (ii) if the final audit discloses that Landlord’s determination of the Building Operating Costs was not in error in excess of five percent (5%) in Landlord’s favor, then all costs of the audits shall be borne by Tenant.

(c) The “Building Operating Costs” shall include each and every expense incurred in connection with the ownership, administration, management, operation, insurance, maintenance and repair of the Real Estate, or reasonably charged by Landlord if Landlord performs management services in connection with the Real Estate, including management, consulting, reasonable legal and accounting fees, and, further, including but not limited to, wages, salaries and fees paid to persons either employed by Landlord or engaged as independent contractors in performing or managing the services related to the Real Estate, and such other typical items of expense as indicated in Subsection (d) below. If any person or independent contractor is employed with respect to more properties than the Real Estate, the wages, salaries or fees paid therefor shall be allocated based on time spent by such person or Contractor on matters relating to the Real Estate or the degree of responsibility for the Real Estate compared to the other properties involved.

(d) Some of the typical items of expense which comprise or may comprise the Building Operating Costs are or may be the following, but only to the extent that they relate solely or are properly allocated to the Real Estate:

(i) Repairs and maintenance;

(ii) Utility costs (including meter reading and certification service fees), including but not limited to the cost of electricity to power HVAC units and to heat the Building (both Tenant premises and Common Area) and to light the Common Area;

 

11


(iii) Cleaning costs, including but not limited to windows, tenant premises and Common Areas;

(iv) Service contracts including but not limited to elevator, HVAC, janitorial and window cleaning, rubbish removal, exterminating and towel service;

(v) Costs of landscaping and snow removal;

(vi) Cost of redecorating Common Area;

(vii) Wages, salaries and other compensation, including taxes, insurance, retirement, fringe benefits, uniforms payable to employees performing services related to the Real Estate;

(viii) Reasonable fees and other compensation payable to independent contractors or other agents of Landlord performing services related to the Real Estate;

(ix) Cost of Landlord’s insurance, including but not limited to, fire and extended coverage, public liability and property, rental value insurance (including Base Rent, estimated Tax Increase Amount and estimated Operating Increase Amount), elevator, worker’s compensation, boiler and machinery insurance;

(x) Reasonable auditing, accounting, attorneys’ and consultants’ fees and disbursements incurred in connection with the maintenance and operation of the Real Estate;

(xi) A reasonable management fee to compensate Landlord for management services, if Landlord, its employees, agents or servants, perform same, or reasonable and customary fees for management services provided by an independent management company; provided, however, that any such management fees shall be comparable to management fees charged by landlords of office space of comparable quality, design, and location;

(xii) Any other expenses of any kind whatsoever reasonably incurred in managing, operating, maintaining and repairing the Real Estate;

(xiii) The cost, if any, of non-Tenant area capital improvements installed by Landlord after the completion of the Building as amortized over the useful life of such improvements, with only the annual amortized amount attributable to any Operating Year to be included in the Building Operating Costs for that Operating Year; and

(xiv) The costs, charges and expenses, if any, incurred by Landlord in connection with any change of any company providing electric service to the Real Estate, including, without limitation, maintenance, repair, installation, and service costs associated therewith.

(e) The term “Building Operating Costs” shall not include or be deemed or construed to include:

(i) Costs incurred in connection with the construction of the Building or the initial development of the Real Estate;

(ii) Costs for which Landlord is reimbursed by its insurer, any tenant’s insurer or any tenant;

 

12


(iii) Costs attributable to leasing of and improvements to the premises of other tenants in the Building;

(iv) Costs, expenses or expenditures relating to the duties, liabilities or obligations of other tenants in the Building;

(v) Interest, principal or other payments on mortgages or other debt costs, if any;

(vi) Depreciation on the Building;

(vii) Taxes;

(viii) marketing costs, including leasing commissions, attorneys’ fees (in connection with the negotiation and preparation of letters, deal memos, letters of intent, leases, subleases and/or assignments), space planning costs, and other costs and expenses incurred, in any of the foregoing cases, in connection with the lease, sublease and/or assignment negotiations with present or prospective tenants or other occupants of the Building;

(ix) Costs which are paid directly by any tenant;

(x) Costs incurred in connection with the construction, if applicable, of Building 500;

(xi) Rents paid by Landlord under any ground lease of the Land;

(xii) Expenditures that would properly be categorized as capital expenditures under generally accepted accounting principles applied to commercial office properties, except as so permitted by Section 5.03(d)(xiii) hereof;

(xiii) Legal, accounting, and other professional fees with paid in connection with Landlord’s negotiation of, or disputes arising out of, any lease with a tenant or prospective tenant for space in the Building;

(xiv) Wages, salaries, and other compensation paid to any executive employee of Landlord or Landlord’s managing agent that is above the grade of property manager;

(xv) Rent for any office space occupied by Building management personnel to the extent the size or rental rate for of such office space exceeds the size or fair market rental value of office space occupied by management personnel of comparable buildings in the vicinity of the Building;

(xvi) Costs incurred due solely to the gross negligence or willful misconduct of Landlord, and costs incurred as a result of breaches by other tenants in the Building under their respective leases to the extent such costs are recoverable from such tenants in accordance with the terms of the applicable leases;

(xvii) Landlord’s general corporate overhead and administrative expenses, including accounting fees, in each case which are not directly attributable to the operation and management of the Real Estate;

 

13


(xviii) Costs of constructing improvements, replacements, and other installations necessary to comply with any fire, safety or other laws or regulations imposed by any governmental authority applicable to the Building or Common Area during the Term, but only to the extent that such laws or regulations were in existence, and applicable to the Building and/or Common Areas (as applicable), on and as of the effective date of this Lease;

(xix) Costs, fees, dues, contributions or similar expenses for Landlord’s voluntary participation in, or contributions to, political, charitable, or industry organizations;

(xx) Acquisition costs for sculptures, paintings, and other objects of fine art in the Building; provided that the cost oof routine maintenance of such art may be included within Building Operating Costs; and

(xxi) Costs associated with the operation of the business of the entity which constitutes Landlord as the same are distinguished from the costs of operation of the Real Estate, including costs of defending any lawsuits with any mortgagee (except as the actions of Tenant may be in issue), costs of selling, syndicating, financing, mortgaging or hypothecating any of Landlord’s interest in the Building, costs incurred in connection with any disputes between Landlord and its employees, between Landlord and Building management, or between Landlord and other tenants or occupants.

(f) Landlord and Tenant agree that with respect to all Building Operating Costs, the actual costs thereof for the First Operating Year and for each Operating Year thereafter shall be adjusted to reflect all Building Operating Costs for a full year. Landlord and Tenant further agree that in the event occupancy in the Building during the First Operating Year or any Operating Year thereafter is less than ninety five percent (95%), then Building Operating Costs for the First Operating Year or any other Operating Year, as applicable, shall be “grossed up” to the amount of Building Operating Costs that, using Landlord’s reasonable projections, would normally be expected to be incurred during the First Operating Year or other Operating Year, as applicable, if the Building were 95% occupied during such First Operating Year or other Operating Year.

(g) Tenant’s obligations for payment of Building Operating Costs during the Term shall survive the expiration or early termination of this Lease for costs incurred during the Term.

(h) The amounts due with respect to any Operating Year pursuant to Sections 5.02 and 5.03 of this Lease shall be aggregated or netted, as applicable, so that only one payment is made, if any, with respect to such amounts.

Section 5.04 Payment of Rent:

(a) Rent shall be paid without notice, demand, counterclaim, offset, deduction, defense, or, except as expressly provided herein, abatement.

(b) Unless otherwise directed by Landlord to Tenant in writing, all Rent payable under this Lease shall be payable to Landlord by wire transfer in immediately available funds in U.S. Dollars, to the following account: Wells Fargo Bank, N.A., 190 River Road, Summit, NJ 07901, Attn: Ms. Kathy Murphy, Senior Vice President; ABA: 121000248; For Credit to the A/C of: The Connell Company; Account Number: 2000010817252.

(c) If Tenant shall fail to pay any Tax Increase Amount, Operating Increase Amount, Extra Taxes, or any other charges payable hereunder, whether or not the same are called Rent, Landlord shall have all remedies provided for in the Lease or at law as in the case of nonpayment of Base Rent. Tenant’s obligations (accruing during the Term) under Article V and Article XXI hereof shall survive the expiration or earlier termination of this Lease.

 

14


ARTICLE VI. SIGNS.

Section 6.01 Directory:

If Landlord provides a directory of tenants in the first floor lobby area of the Building, then such directory shall display Tenant’s name.

Section 6.02 Signs:

(a) Tenant shall have no right to install and maintain a sign on the entrance doorway of the Demised Premises without Landlord’s prior written consent which shall not be unreasonably withheld or delayed. Landlord may permit Tenant to identify its business name by lettering on the exterior of the Demised Premises with Landlord’s prior written consent as to dimensions, material, content, location and design.

(b) Tenant shall obtain and pay for all required permits and licenses relating to such sign, if same are required. Copies of all such permits and licenses shall be delivered to Landlord within a reasonable time after they are issued.

(c) Tenant shall not have the right to install or maintain any signs in or at the Real Estate or visible from the outside of the Demised Premises.

(d) Landlord shall have the right to temporarily remove any sign in order to paint, or to make repairs, alterations or improvements in or upon the Building or Demised Premises, at its expense. At the expiration of the Term, Tenant shall, at Tenant’s sole cost and expense, remove all signs and restore the area in which they were affixed to its prior condition.

ARTICLE VII. REPAIRS, ALTERATIONS, COMPLIANCE, SURRENDER.

Section 7.01 Repairs by Landlord:

Landlord shall make or cause to be made necessary repairs to the Common Area. Landlord shall make or cause to be made necessary repairs to the roof of the Building and structural repairs to the foundation, exterior walls, windows, electrical, HVAC, plumbing and mechanical systems of the Building (other than the electrical, HVAC, plumbing, and mechanical systems serving solely the Demised Premises), and any load-bearing interior walls of the Demised Premises; provided, however that Landlord’s obligations shall exclude anything caused by (a) any act, omission or negligence of Tenant, Tenant’s Agents or invitees; (b) the failure of Tenant to perform or comply with any terms, conditions or covenants in this Lease; or (c) any alterations, installations, additions or improvements made or to be made by Tenant. Damage set forth in clauses (a), (b) and (c) in this Section 7.01 will be repaired by Landlord at Tenant’s expense.

Section 7.02 Repairs, Maintenance and Improvements by Tenant:

(a) Tenant shall maintain and take good care of the Demised Premises. Except for repairs Landlord is specifically obligated to make, Tenant, at its expense, shall be responsible for all repairs, maintenance and replacements within the Demised Premises. Notwithstanding the foregoing, Landlord shall make all repairs required by the occurrence of fire and other casualty as more particularly set forth in Section 12.03 hereof; provided, however, that Tenant shall be responsible for the repair and restoration of Tenant’s improvements to the Demised Premises. Tenant shall notify Landlord in advance of all repairs to

 

15


be made by Tenant exceeding an amount equal to Twenty Thousand Dollars ($20,000) in cost. Tenant shall not remove blinds from windows. In making repairs, Tenant shall observe and comply with the insurance and other requirements of Section 7.03 hereof and all requirements, laws or regulations of any applicable public authority and the terms and conditions of all insurance policies required by Article XIV relating to or affecting the Real Estate.

(b) Tenant shall be responsible and liable for all damages to the Demised Premises the Building or the Land or any part thereof attributable to the fault, negligence, or misuse of Tenant, Tenant’s Agents, or Tenant’s guests or invitees.

Section 7.03 Approval by Landlord of Improvements:

(a) Tenant may not make repairs, alterations, additions or improvements to the Demised Premises, or any part thereof, without the prior written consent of Landlord, if the reasonable cost of such repairs, alterations, additions or improvements are estimated to exceed an amount equal to Twenty Thousand Dollars ($20,000) or are structural in nature or require a building permit, provided such consent shall not be unreasonably withheld, conditioned or delayed. Any permitted alterations shall be performed in a good and workmanlike manner in accordance with all requirements of any applicable governmental authority, the terms and conditions of all required insurance policies and any other provisions of this Lease relating to repairs, alterations, additions, or improvements by Tenant. In no event shall Tenant make any alterations of the outside dimensions of the Building or the existing load-bearing walls and columns, exterior walls, roof, structural ceiling or foundations. Landlord shall have the right to require Tenant to restore the Demised Premises (at the expiration or earlier termination of the Term) to the conditions existing prior to any alterations or as of the Commencement Date or completion of Tenant Work, provided, if Tenant so requests in writing at the time of Tenant’s request for Landlord’s approval of such alterations, Landlord shall confirm in writing if Tenant is required to remove some or all such alterations at the expiration or earlier termination of the Term; provided further, however, that notwithstanding Landlord’s statement that Tenant will be required to remove a particular alteration (in response to a request from Tenant as provided in the preceding clause), Landlord shall have the right to notify Tenant in writing at any time at least sixty (60) days prior to the expiration of the Term that an alteration which Landlord previously determined must be removed shall remain in the Demised Premises, and in such event Tenant shall not remove such alteration.

(b) Without limiting anything contained in Section 7.03(a) hereof, any permitted repairs, alterations, additions or improvements described in Section 7.03(a) that require Landlord’s consent shall be on the terms and conditions set forth below (and at Tenant’s cost and expense) and otherwise in compliance with the terms and conditions set forth in Exhibit C-2, attached hereto for Tenant Work (including, without limitation, compliance with Item 3 of such Exhibit C-2) and such other terms and conditions set forth by Landlord for its approval of any such work:

(i) Tenant shall be responsible for the design of such work and the plans and specifications for the same, and such plans and specification must comply with the same requirements applicable to the Plans and Specifications for the Tenant Work set forth in this Lease, including those set forth in Exhibit C-2. Such plans and specifications must be approved by Landlord, and Tenant shall not commence any such work until such plans and specifications have been approved by Landlord.

(ii) Prior to commencing any such work, Tenant shall furnish to Landlord a written list of general contractors who are proposed to perform such work. Such general contractors (and all contractors) shall be first-class union contractors and shall maintain current licenses with applicable governmental and/or other enforcement authorities. Tenant shall furnish to Landlord copies of such general contractors’ and other contractors’ insurance policies, including workers compensation, public liability and property damage, all in amounts and with companies acceptable to Landlord. Landlord shall have the right to reject such proposed general contractors by written notice to Tenant within ten days of Landlord’s receipt of the above information. Such contractor must coordinate all final connections to any Building systems with Landlord and must use the Building maintenance subcontractors for the final connections to the Building management system, fire alarm system and security system.

 

16


(iii) Tenant shall promptly apply for all approvals and permits legally required in connection with the performance of such work. If necessary, Landlord shall join in the execution of the applications, and at Tenant’s request, shall cooperate with the prosecution of the application. Tenant shall bear all fees, costs and expenses in connection with the applications including any legal or other expenses incurred by Landlord. Tenant shall prosecute the applications diligently and use its best efforts to seek the approvals and permits applied for and shall provide Landlord with copies of all permits and approvals upon receipt thereof. Tenant shall advise Landlord of its progress from time to time and upon request by Landlord.

(iv) Promptly after all requisite approvals and permits have been granted, Tenant shall commence the performance of such work and shall diligently prosecute such work to completion.

(v) Tenant shall perform or cause to be performed all of such work in accordance with the plans and specifications, all requirements of regulations of any applicable public authority and in accordance with all applicable building codes and all other applicable laws and regulations, all other terms set forth in this Lease, all building design rules and construction rules reasonably required by Landlord and the terms and conditions of all insurance policies, and shall do so in a good and workmanlike manner. Such work shall in no event interfere with building systems or with any other tenant’s use and quiet enjoyment of such tenant’s leased space in the Building. Notwithstanding any failure by Landlord to object to any such work (or drawings or specifications relating thereto), Landlord shall have no responsibility therefor (and any approval of or consent to the same by Landlord shall not relieve Tenant from its obligation to construct the work in compliance with the terms of this Lease). Tenant agrees to save and hold Landlord harmless as provided in the Lease for said work.

(vi) Tenant shall provide Landlord with “as built drawings” upon completion of such work.

(vii) If any governmental authority requires that a certificate of occupancy be issued with respect to the Demised Premises as a result of such work, Tenant shall apply for, obtain such certificate of occupancy and provide a copy thereof to Landlord prior to Tenant’s occupancy of the Demised Premises.

(viii) Tenant shall not make or cause to be made any alterations, repairs or installations, or perform any other work to or on the Demised Premises or otherwise in connection with this Lease unless Tenant shall obtain, and shall require all its contractors to obtain, and have in force during the performance of such work, public liability and worker’s compensation insurance to cover every contractor to be employed as set forth in this Section 7.03. Such policies shall be in such amounts and on such terms as Landlord deems appropriate; they shall be non-cancellable without thirty (30) days’ prior notice to Landlord by the insurance company. In accordance with Section 7.03 hereof, Tenant shall supply Landlord with copies of the insurance policies prior to commencing any work and Landlord shall be named as an additional insured on any such policy.

(c) The parties agree that all permitted alterations and improvements made to the Demised Premises (including, without limitation, any alterations or improvements made in connection with the Tenant Work) shall become the property of Landlord upon their installation without compensation to Tenant.

 

17


Section 7.04 Emergency Repairs:

If, in an emergency, it shall become necessary to make any repairs or replacements otherwise required to be made by Tenant, Landlord may enter the Demised Premises, and proceed to make or cause such repairs or replacements to be made at Tenant’s expense. Landlord shall give Tenant telephone notice of such emergency. Within thirty (30) days after Landlord renders a bill for such repairs or replacements, Tenant shall reimburse Landlord for the cost of making such repairs.

Section 7.05 Electrical Lines:

(a) Tenant may not install any electrical equipment that overloads the lines in the Demised Premises, the Building or the Real Estate or which will interfere with the use thereof by other tenants of the Building unless Landlord approves same in the Plans and Specifications or as provided for in Section 7.03 above. If Tenant makes such installation, Landlord may require Tenant, at Tenant’s sole cost and expense, to make whatever alterations and/or repairs are necessary and which are in compliance with the terms and conditions of all required insurance policies and all requirements of applicable governmental authorities. Tenant shall be responsible or liable for all damages anywhere in the Building or with respect to the Real Estate caused by any electrical overload attributable to Tenant.

(b) At all times, Tenant shall provide access for Landlord to trench headers provided that Landlord’s work shall not prevent the conduct of Tenant’s business.

Section 7.06 Surrender of Premises:

On the Expiration Date, Tenant shall quit and surrender the Demised Premises together with all alterations, fixtures (except trade fixtures, it being understood that, if Tenant removes trade fixtures, Tenant shall exercise reasonable care in doing so, and the Demised Premises shall be restored to the condition it was in prior to the installation of the trade fixtures, reasonable wear and tear excepted), installations, additions and improvements which may have been made in, annexed or otherwise attached thereto, broom clean, and in good condition and repair, ordinary wear and tear excepted, and except for damage by fire or other casualty which Landlord is required to repair hereunder, unless Landlord provides otherwise in writing. Notwithstanding anything contained in this Lease, unless otherwise requested by Landlord to Tenant in writing at least sixty (60) days prior to the end of the Term, Tenant shall be required, on or before the end of the Term and at Tenant’s cost and expense, to remove all Atypical Alterations (as defined below) made in connection with the initial Tenant Work for any of the Demised Premises and to restore such portion of the Demised Premises affected by such Atypical Alterations, and the removal thereof, to the condition prior to such initial Tenant Work and otherwise in the condition required under this Lease; provided, however, that if Tenant so requests in writing, Landlord shall confirm in writing whether any particular alterations or improvements constitute Atypical Alterations which Tenant will be required to remove (unless otherwise directed by Landlord in writing as provided in this Section 7.06). Any personal property of Tenant, or any subtenant or occupant, which shall remain in or on the Demised Premises after the termination of this Lease and the removal of such Tenant, subtenant or occupant from the Demised Premises, may, at the option of Landlord and without notice, be deemed to have been abandoned by such Tenant, subtenant or occupant, and may either be retained by Landlord as its property or be disposed of, without accountability, in such manner as Landlord may see fit (it being understood that nothing contained in this sentence shall be construed as giving Tenant any right to leave such personal property in the Demised Premises). Tenant shall reimburse Landlord for any reasonable cost or expense incurred by Landlord in carrying out the foregoing which obligation shall survive the Expiration Date. Landlord shall not be responsible for any loss or damage occurring to any such property owned by Tenant or any subtenant or occupant. An “Atypical Alteration” means, collectively, any alterations, additions or improvements to the Demised Premises which are not typical alterations, additions or improvements found in similar, Class A office buildings occupied by more than one tenant, including by way of illustration only and not of limitation, (i) any wet laboratories or (ii) anything which could materially adversely affect the Robertson underfloor duct system installed in the Building.

 

18


ARTICLE VIII. SERVICES AND UTILITIES.

Section 8.01 Landlords Services:

(a) Landlord shall furnish: (i) during Business Hours, base building heat and air conditioning required for the Demised Premises and the electricity to power same; (ii) access and elevator service including one weekend elevator; (iii) restroom supplies; (iv) cleaning services as set forth in the “Building Janitorial Specifications” (hereinafter so called), annexed hereto as Exhibit E, on weekdays, excluding Holidays and weekends, and (v) such other services as Landlord may set forth from time to time. Landlord shall have the right to reasonably modify the terms and/or frequency of the services so long as Landlord gives at least five (5) days’ notice of any changes.

(b) Upon notice to Landlord (in the event Tenant desires access to or use of Building services), Tenant shall have the right to use the Demised Premises beyond Business Hours and on weekends and Holidays upon the express condition that Tenant shall be responsible, at its sole cost and expense, for any and all building services required and attributable to such excess use charged at the rates set forth in Landlord’s Rules and Regulations; provided, however, that notwithstanding anything contained in the Rules and Regulations, Tenant shall not be charged for any such excess use of building services during the period between 9:00 a.m. and 1:00 p.m. on Saturdays. Payment for excess use of services shall be deemed Rent and shall be paid to Landlord monthly, together with Base Rent.

(c) Landlord shall maintain and provide services for the Land and Common Area, including lobbies, stairs, elevators, corridors, restrooms, and Parking Area. Access to the parking in the Parking Area shall be granted 4 cars per each 1,000 rentable square feet (i.e. 25 cars for 6,371 rentable square feet). Landlord will designate ten percent (10%) of the number of parking spaces to which Tenant is granted access pursuant to the preceding sentence (i.e., 3 spaces) as “reserved” for Tenant.

(d) Landlord shall not be liable for any losses or damages caused by interruption of services due to repair, inspection or causes beyond its reasonable control. Tenant shall continue to be responsible for payment of Rent during any period of such interruption. Landlord shall use its best efforts to restore services after interruption. Notwithstanding the foregoing, if the Demised Premises is rendered totally untenantable for five (5) consecutive business days after written notice thereof from Tenant to Landlord due to an interruption of services, the Rent shall be abated during the period of such interruption of services unless such interruption was caused by (i) Tenant, or (ii) by circumstances beyond Landlord’s reasonable control.

Section 8.02 Electricity:

(a) The Demised Premises shall be submetered to measure the electricity actually consumed in the Demised Premises (including in connection with any supplemental HVAC system for the Demised Premises under this Lease), and Tenant shall pay to Landlord, as a component of Rent at all times during the Term (including, for purposes of emphasis, during any period during the Term, if any, where Base Rent is $0.00), for its electric usage based upon such submetering on a monthly basis, at the rate applicable to Landlord (including any meter certification and meter reading service fees charged by any third party engaged by Landlord to measure and invoice Tenant for such electric usage; it being understood that it is contemplated that Landlord shall have a third party measure and invoice Tenant for such electric usage). This sum shall represent the cost of all electricity furnished to Tenant at the Demised Premises.

(b) Landlord currently uses a certain company to provide electricity for the Real Estate (the “Current Energy Provider”). Notwithstanding the foregoing, if permitted by applicable law, Landlord shall have the right at any time and from time to time during the Term of this Lease to either contract for services from a different company or companies providing electricity (each such company being referred to as an “Alternate Energy Provider”) or continue to contract for service from the Current Energy Provider. Landlord currently uses a local distribution company (the “Utility”) to deliver electricity and other services

 

19


for the Real Estate. Tenant shall cooperate with Landlord, the Utility, the Current Electric Service Provider, and any Alternate Service Provider at all times and, as reasonably necessary, shall allow Landlord and such other entities reasonable access to the Building’s electric lines, feeders, risers, wiring, and any other Landlord machinery within the Demised Premises; provided, Landlord shall provide Tenant with at least twenty four (24) hours prior notice of such access (which may be via email), except in the case of an emergency, in which case Landlord shall provide only such notice (if any) as is reasonable under the circumstances. In any event, Landlord shall use commercially reasonable efforts to not to materially interrupt Tenant’s business operations.

ARTICLE IX. USE AND OPERATION.

Section 9.01 Use:

Tenant shall use the Demised Premises for general, administrative and executive offices \and for no other purpose (it being agreed that Tenant may install microwave ovens (for the heating of food), coffee pots and similar appliances in employee break areas within the Demised Premises). Tenant shall comply with all applicable zoning regulations or requirements and all other laws, rules, regulations and ordinances of any governmental entity having jurisdiction over the Real Estate (including, without limitation, environmental laws and regulations), as well as all the requirements set forth in Article XXI.

Notwithstanding the foregoing or any other provision of this Lease, however, and except where necessary due to the unique nature of Tenant’s business or particular manner of use (as opposed to office use generally), Tenant shall not be responsible for compliance with any such laws, regulations, or the like to the extent such compliance would require: (a) repairs (including structural repairs), installations or modifications of the Building otherwise constituting Landlord obligations pursuant to Section 7.01 of this Lease; or (b) the installation of new Building service equipment in the Demised Premises, such as fire detection or suppression equipment, unless the applicable requirement, law, rule, regulation and/or ordinance requiring same took effect after the date of this Lease.

Subject to the terms, conditions, and provisions of this Lease, Tenant shall have access to and the right to use the Demised Premises at all times, twenty-four (24) hours per day and three hundred sixty-five (365) days per year during the Term of this Lease.

Section 9.02 Rules and Regulations Established by Landlord:

The rules and regulations of the Landlord in effect as of this date are set forth in Exhibit D annexed hereto. Tenant shall observe all such rules and regulations, and all other reasonable rules and regulations established by Landlord from time to time for the Building and the Real Estate (collectively, the “Rules and Regulations”). Tenant shall be given at least five (5) days’ prior written notice of any changes therein. In the event of any conflict between the terms of this Lease and the Rules and Regulations (or any other Exhibit attached hereto), this Lease shall control.

Section 9.03 Restriction on Tenants Activities:

(a) Garbage:

(i) Tenant shall handle and dispose of all rubbish and garbage in accordance with the Rules and Regulations established by Landlord.

(ii) Landlord shall provide rubbish and garbage removal in accordance with the cleaning specifications incorporated as part of Exhibit E.

 

20


(iii) Tenant shall arrange for the prompt removal of any rubbish and garbage in excess of the quantity to be disposed of by Landlord pursuant to the cleaning specifications set forth in Exhibit E at Tenant’s sole expense.

(b) Plumbing Facility Use: Tenant shall not use the plumbing facilities of the Demised Premises or the Building for any purpose other than those for which they are intended. Tenant may not dispose of any substances therein which may clog, erode or damage the pipelines and conduits of the Demised Premises, the Building or the Land.

(c) Floor Load: Tenant shall not install, operate of maintain in the Demised Premises any heavy item of equipment which exceeds the floor load of one hundred (100) pounds per square foot without Landlord’s written consent.

(d) Exterior Walls or Roof: Tenant shall not use all or any portion of the roof or exterior walls of the Demised Premises or the Building for any purpose.

Section 9.04 Illegal Purposes:

Tenant shall not use or permit the use of the Demised Premises for any illegal trade, manufacture, or other business, or for any other illegal purpose.

ARTICLE X. TRANSFER OF INTEREST; PRIORITY OF LIEN.

Section 10.01 Assignment, Subletting, etc.:

(a) Tenant may sublet the Demised Premises or assign this Lease to its parent corporation or any affiliate or subsidiary of Tenant without Landlord’s consent so long as Tenant continues to be primarily liable and responsible for the performance of all obligations under this Lease. Notwithstanding anything to the contrary contained in this Lease, Tenant may, without Landlord’s prior written consent, but upon written notice to Landlord, (i) sublet all or any portion of the Demised Premises or assign Tenant’s interest in this Lease to (A) a subsidiary, affiliate, or parent to Tenant which controls, is controlled by, or is under common control with, Tenant; or (B) a purchaser of all or substantially all of Tenant’s assets or (ii) undergo or assign this Lease to a successor entity resulting from merger, consolidation, non-bankruptcy reorganization, or government action; provided, however, that in each of the foregoing cases, Tenant shall continue to be primarily liable and responsible for the performance of all obligations under this Lease.

(b) Tenant shall not sublet the Demised Premises or any part thereof, nor assign, transfer, mortgage or hypothecate, or otherwise encumber this Lease or any interest therein, nor grant concessions or licenses for the occupancy of the Demised Premises or any part thereof to any unaffiliated company without Landlord’s prior written consent, which consent shall not be unreasonably withheld condition or delayed, and any unauthorized subletting, assignment, transfer or other similar such action shall be deemed null and void and of no effect. Except as set forth in Section 10.01(a) above, for purposes of this Article X, the transfer by sale, assignment, operation of law or other disposition of any part or all of the ownership of the Tenant so as to result in a change in the effective voting control of Tenant that had existed on the date of this Lease shall be deemed to be an “assignment” of this Lease. Upon the return of the Demised Premises, all terms and conditions of this Lease shall be null and void, except for those provisions of the Lease which shall survive the Expiration Date, as herein provided.

(c) Without limiting the foregoing, Landlord may, in its sole determination, withhold approval to a transfer, assignment or subletting under Paragraph (b) above, under the following conditions:

(i) The financial condition of the subtenant or other user is unsatisfactory.

 

21


(ii) The proposed use of the Demised Premises by the subtenant or other user would be prejudicial to the safety, character, reputation and interests of the Building and its tenants or contrary to any zoning ordinance or law, rule, regulatory or ordinance promulgated by any governmental authority.

(iii) The subtenant’s or other user’s occupancy of the Demised Premises will cause excessive demands on the Real Estate.

(iv) The subtenant or other user is already a Tenant in the Building.

(d) Tenant shall remain primarily liable for all obligations of this Lease in the event it sublets or assigns all or any portion of the Demised Premises.

(e) A subtenant or assignee shall not have the rights to renewal of the Lease of the Demised Premises provided herein.

(f) Any Excess Assignment Consideration (as defined below) or Excess Sublease Rentals (as defined below) in connection with an assignment or sublease permitted under this Lease shall be shared equally between Tenant and Landlord. For purposes of this Section 10.10(f), (i) “Excess Assignment Consideration” shall mean all consideration paid or to be paid by the assignee of Tenant to Tenant after deducting actual out-of-pocket expenses incurred by Tenant in connection with such assignment (including but not limited to third party leasing commissions, concessions, outside attorneys’ fees and tenant improvements) and (ii) “Excess Sublease Rentals” shall mean all consideration paid or to be paid by the sublessee of Tenant in excess of all Rent paid or to be paid by the Tenant for the Demised Premises subleased for the same period, after deducting expenses incurred by Tenant in connection with such sublease (including but not limited to third party leasing commissions, concessions, outside attorneys’ fees and tenant improvements), it being understood that if only a portion of the Demised Premised are sublet, then only the portion of the space so sublet shall be taken into account for purposes of such calculation. Notwithstanding anything to the contrary contained herein, this Section 10.01(f) shall not apply if Landlord’s consent to such assignment or sublease is not required under the terms of this Lease.

(g) In the event Tenant requests Landlord’s consent to assign this Lease or sublease the entire Demised Premises, then Landlord shall have the right, to be exercised by Landlord in its sole discretion by giving written notice to Tenant within fifteen (15) days after receipt of Tenant’s notice, to recapture the entire Demised Premises and terminate this Lease. For the avoidance of doubt, this Section 10.01(g) shall not apply if Landlord’s consent to such assignment or sublease is not required under the terms of this Lease.

(h) Notwithstanding anything contained in Section 10.01 hereof, any subtenancy arrangement permitted under this Section 10.01 shall be pursuant to a written agreement in form and substance reasonably satisfactory to the Landlord and subject to Landlord’s written approval (the “Sublease”) containing terms not inconsistent with the terms of this Lease and complying with the following requirements:

(i) The Sublease shall be subject and subordinate to the terms of this Lease. Subtenant shall acknowledge that it has reviewed and agreed to all of the terms of this Lease, and shall agree in the Sublease not to do, or fail to do, anything that would cause Tenant to violate any of its obligations under this Lease.

(ii) The Sublease shall contain a waiver of subrogation against Landlord and shall require the subtenant’s insurance policies to acknowledge such waiver of subrogation.

(iii) The Sublease shall prohibit a sub-sublease of the Demised Premises or the assignment of the Sublease by subtenant, without first obtaining Landlord’s written consent, which consent may be granted or withheld in Landlord’s sole discretion.

 

22


(iv) The Sublease shall provide that, at Landlord’s option, the Sublease shall not terminate in the event that this Lease terminates prior to its scheduled expiration date. The Sublease shall require subtenant to execute an attornment agreement, if Landlord, in its sole discretion, shall elect to have the Sublease continue beyond the date of termination this Lease. Such attornment agreement shall be in form and content acceptable to Landlord.

(v) The Sublease shall provide that unless and until such time as an attornment agreement is executed by subtenant pursuant to clause (iv) above, nothing contained in the Sublease shall create or shall be construed or deemed to create privity of contract of privity of estate between Landlord and subtenant.

(vi) The Sublease shall provide that (x) nothing in the Sublease shall amend or shall be construed or deemed to amend this Lease and (y) Tenant and subtenant shall not amend the Sublease without Landlord’s written consent.

(vii) The Sublease shall contain such other terms as Landlord may reasonably require.

Section 10.02 Subordination:

(a) At Landlord’s election, this Lease shall be subordinate or superior to the lien of any present or future mortgage irrespective of the time of recording of such mortgage. Landlord may exercise such election by giving notice thereof to Tenant. At the election of Landlord, this clause shall be self-operative and no further instrument shall be required. Upon Landlord’s request, at any time and from time to time, Tenant shall (a) confirm in writing and in recordable form that this Lease is so subordinate or so paramount to the lien of any mortgage and/or (b) execute an instrument making this Lease so subordinate or so paramount (as Landlord may elect) to the lien of any mortgage, in such form as may be required by an applicable mortgagee. The exercise of any of the elections provided in this Section shall not exhaust Landlord’s right to elect differently thereafter, from time to time.

(b) Landlord shall endeavor to obtain from any Mortgagee a non-disturbance agreement in favor of the Tenant for so long as the Tenant is not in default under this Lease, and provided the Tenant agrees to attorn to the said Mortgagee in the event it comes into possession of the premises. In the event Tenant requests any changes to the form of non-disturbance agreement provided by the applicable Mortgagee, then Tenant shall reimburse Landlord for all amounts charged by such Mortgagee to Landlord in connection with the negotiation of such non-disturbance agreement.

(c) Landlord shall have the right to assign Tenant’s Rent payments to any Mortgagee. Upon prior written notice from Landlord, Tenant shall make payments directly to such assignee.

Section 10.03 Attornment:

If the Demised Premises, the Building or the Land are encumbered by a Mortgage and such Mortgage is foreclosed, or if same are sold pursuant to such foreclosure or by reason of a default under said Mortgage, (a) Tenant shall not disaffirm this Lease or any of its obligations hereunder, and (b) at the request of the applicable Mortgagee or purchaser at such foreclosure or sale, Tenant shall attorn to such Mortgagee or purchaser and may execute a new lease for the Demised Premises setting forth all of the provisions of this Lease except that the term of such new lease shall be for the balance of the Term.

Section 10.04 Transfer of Landlords Interest:

The term “Landlord” as used in this Lease means only the owner or the mortgagee in possession of the Demised Premises, the Building or the Real Estate for the time being. In the event of any sale (including any sale-leaseback) of the Demised Premises, the Building or the Real Estate, Landlord shall be and hereby is entirely freed and relieved of all of its covenants, obligations and liability hereunder, provided the transferee assumes all of Landlord’s obligations hereunder. This subsection shall be applicable to each owner from time to time, and shall not be limited to the first owner of the Demised Premises, the Building or the Real Estate.

 

23


Section 10.05 Mortgagees Rights:

If Landlord shall notify Tenant that the Demised Premises, the Building or the Land are encumbered by a Mortgage and in such notice set forth the name and address of the Mortgagee thereof, then, notwithstanding anything to the contrary contained herein, no notice of a Landlord default under this Lease intended for Landlord shall be deemed properly given unless a copy thereof is simultaneously sent to such Mortgagee by certified or registered mail, return receipt requested. If any Mortgagee shall perform any obligation that Landlord is required to perform hereunder, such performance by Mortgagee, insofar as Tenant is concerned, shall be deemed performance on behalf of Landlord and shall be accepted by Tenant as if performed by Landlord.

ARTICLE XI. COMMON AREA.

Section 11.01 Use of Common Area:

During the Term, the following privileges to use certain portions of the Real Estate in common with Landlord and any designee of Landlord, subject to the terms of this Lease and Landlord’s Rules and Regulations, are hereby granted to Tenant:

(a) the non-exclusive license to permit its employees, agents and invitees to use the Common Area as defined under 2.01; and

(b) the non-exclusive privilege to permit its employees, agents and invitees to use the entrance and exit ways designated by Landlord from time to time for access to the Demised Premises from a public street or highway adjacent to the Real Estate through the appropriate entrances and exits so designated.

Section 11.02 Landlords Rights:

Notwithstanding anything to the contrary contained herein, Landlord shall have the right:

(a) to close all or any portion of the Common Area including the Parking Area to such extent as may, in the opinion of Landlord’s counsel, be necessary to prevent a dedication thereof or the accrual of any rights of any person or the public therein;

(b) to close all or any portion of the Common Area, provided such closure does not prevent Tenant’s access to or use of the Demised Premises;

(c) to prohibit parking or passage of motor vehicles in areas previously designated for such and to change the location of exclusively marked parking spaces provided Landlord provides substitute parking on the Land, if required;

(d) to temporarily close any of the Common Area for repair, maintenance, alteration or improvements;

(e) to build additions to the Building or erect additional buildings on the Common Area or the Land;

(f) to build new improvements or modify or demolish existing improvements within the Building or the Land;

 

24


(g) to create paths, walks or other means of cross access through the Land

Section 11.03 License Numbers:

In order to restrict the use by Tenant’s employees of areas designated or which may be designated by Landlord as handicapped, reserved or restricted Parking Areas, Tenant agrees that it will, at any time requested by Landlord, furnish Landlord with the License numbers of any vehicle of Tenant and Tenant’s employees or agents.

Section 11.04 Landlords Obligation with Respect to Parking Area:

Throughout the Term, Landlord shall keep the Parking Area properly paved and in good order and repair, properly drained and shall provide painted stripes to designated parking spaces. After the end of a snowfall, Landlord will commence to remove accumulated snow and ice from the Parking Area and diligently prosecute the same to completion so that, to the extent practicable, the Parking Area shall be reasonably free of snow and ice. Landlord may deposit accumulated snow on such portions of the Common Area as may be necessary under the circumstances. If any ice cannot be removed with reasonable effort on the part of Landlord, it will be sufficient for Landlord to spread sand and other abrasive substances over the ice.

ARTICLE XII. DESTRUCTION OR DAMAGE.

Section 12.01 Rent Abatement:

If the Demised Premises shall be partially damaged or destroyed by fire or other casualty not attributable to the fault, negligence or misuse of Tenant, its agents or employees, the Rent payable hereunder shall be abated to the extent that the Demised Premises shall have been rendered untenantable and for the period from the date Tenant shall have provided Landlord with written notice of such damage or destruction to the date the Demised Premises is rendered tenantable. Should Tenant reoccupy a portion of the Demised Premises during the period any restoration work is taking place and prior to the date same is made completely tenantable, Rent allocable to such portion shall be payable by Tenant from the date of such partial occupancy.

Section 12.02 Option to Terminate:

If the Building or the Demised Premises shall be damaged or destroyed by fire or other casualty (in the former case, whether or not the Demised Premises are damaged or destroyed) so as to require an expenditure in Landlord’s reasonable opinion of more than 40% of the full insurable value (determined prior to the casualty) of the Building or Demised Premises as the case may be, then in either such case, Landlord may terminate this Lease by giving Tenant written notice within ninety (90) days after the date of the casualty, specifying the date of termination of this Lease, provided, Landlord shall only be permitted to terminate this Lease in such case if Landlord similarly terminates all other leases in the Building that are for similarly sized spaces that were affected by the applicable fire or other casualty. In such event, Tenant shall forthwith quit, surrender and vacate the premises without prejudice, however, to Landlord’s rights and remedies against Tenant as of the date of termination or as to those rights which survive such termination. In the event of termination, the Rent payable hereunder shall be abated from the date of damage or destruction.

 

25


Section 12.03 Landlords Obligation to Rebuild:

If all or any portion of the Demised Premises or access thereto is damaged by fire or other casualty and if Landlord has not elected to terminate this Lease, Landlord shall, within a reasonable time after such occurrence, use reasonable efforts to repair or rebuild the Demised Premises, such portion or access thereto to substantially its condition immediately prior to the Commencement Date to the extent permitted by applicable laws. Tenant may terminate this Lease by giving written notice to Landlord, if Landlord has not commenced the required repairs within one hundred twenty (120) days or has not restored and rebuilt the Demised Premises as herein provided within twelve (12) months from the date of such damage or destruction and such delay is due to Landlord’s fault. Landlord shall not be obligated to expend in such repair or rebuilding any sums greater than the proceeds of any insurance policy carried by Landlord or for Landlord’s benefit.

Section 12.04 Landlords Liability:

Landlord shall not be obligated to pay any damages, compensation or claim for inconvenience, loss of business or annoyance arising from any casualty, or repair or restoration of any portion of the Demised Premises or of the Building pursuant to this Article.

ARTICLE XIII. CONDEMNATION.

Section 13.01 Definitions:

As used herein, the following words have the following meanings:

(a) Taking: The deprivation of or damage to the Demised Premises, the Building or the Land or any portion thereof, as the result of the exercise by a governmental authority of any power of eminent domain, condemnation, or the purchase by purchaser under threat thereof.

(b) Taking Date: With respect to any Taking, the date on which the condemning authority or purchaser under threat shall have the right to possession of the Demised Premises, the Building or the Land or any portion thereof.

(c) Award: The proceeds of any Taking, less all expense in connection therewith, including reasonable attorneys’ fees.

Section 13.02 Taking of Demised Premises:

(a) In the event of a Taking of the whole of the Building, Land or Demised Premises, other than a Taking for temporary use, this Lease shall automatically terminate as of the Taking Date.

(b) In the event of a Taking of 40% of the Building, 40% of the Land or 50% of the Demised Premises, Landlord, at its sole option, may terminate this Lease by giving written notice to the other party anytime between the period three (3) months prior to the Taking Date and three months after such date. The termination of the Lease shall be effective three months after such notice is received.

In the event this Lease is not terminated by Landlord pursuant to this Section 13.02(b), and the Taking at issue involved 50% or more of the Demised Premises, then in such event Tenant shall have the right, exercisable upon written notice to Landlord delivered not more than thirty (30) days after Landlord’s election (or deemed election) not to terminate the Lease, which termination shall be effective three months after such notice is received.

Section 13.03 Taking for Temporary Use:

If there is a Taking of the Demised Premises for temporary use, this Lease shall continue in full force and effect, and Tenant shall continue to comply with all the provisions thereof, except as such compliance shall be rendered impossible or impracticable by reason of such Taking. Rent shall be abated during the course of such Taking to the extent and for the period of time that the Demised Premises shall have been rendered untenantable.

 

26


Section 13.04 Disposition of Awards:

All Awards shall belong to Landlord without any participation by Tenant; provided, however, Tenant may prosecute in any condemnation proceedings a claim for the value of any of Tenant’s removable property installed by Tenant at Tenant’s expense and for relocation expenses, provided such action shall not affect the amount of compensation otherwise recoverable by Landlord from the taking authority.

ARTICLE XIV. TENANT’S INSURANCE.

Section 14.01 General Insurance:

(a) At all times during the Term of this Lease, Tenant shall carry and maintain, at Tenant’s expense, the insurance required hereunder, in the amounts specified in this Article (and without any deductible) or such other amounts and in form and substance as Landlord may from time to time reasonably request, issued by an insurance company reasonably satisfactory to Landlord. Upon the execution of this Lease, and from time to time as requested by Landlord, Tenant shall deliver to Landlord certificates of all insurance policies required to be carried hereunder with evidence of payment of applicable premium. All policies shall include an additional insured endorsement naming Landlord, Landlord’s direct and indirect subsidiaries, divisions and affiliates, Landlord’s members, if applicable, and all mortgagees, as additional insureds.

(b) Each policy so issued shall include a notice of cancellation endorsement stating that the insurance carrier shall send a cancellation notice to Landlord at least thirty (30) days prior to the policy being cancelled or otherwise terminated. Each policy so issued shall expressly provide: (i) that the insurance company shall not fail to renew the policy without thirty (30) days’ advance written notice to Landlord; (ii) that no material change may be made in the policy; (iii) that it is not subject to invalidation as to Landlord’s interest by reason of any act or omission of Tenant; and (iv) that it is primary without right of contribution.

(c) The term “insurance policy” shall include any extensions or renewals of such insurance policy.

(d) Landlord shall maintain insurance coverage for the Building and Land as it deems necessary, and Tenant shall not do or permit to be done any act or thing upon the Real Estate which would (i) jeopardize or be in conflict with property insurance policies covering the Building and fixtures and property on the Land, (ii) increase the rate of property or other casualty insurance applicable to the Real Estate to a rate higher than it otherwise would be for general office use of the Building, or (iii) subject Landlord to any liability or responsibility for injury to any person or persons or to property by reason of any business or operation Tenant carries on upon the Real Estate.

Section 14.02 Liability Insurance:

Tenant shall provide on or before it enters the Demised Premises for any reason and shall keep in force during the Term for the benefit of Landlord and Tenant, liability insurance naming Landlord and any designee of Landlord as additional insureds. The policy shall protect Landlord, Tenant and any designee of Landlord against any liability occasioned by any occurrence on or about the Demised Premises or any appurtenance thereto or arising from any of the items indicated in Section 15.01 against which Tenant is required to indemnify Landlord. Such policy is to be at least $1,000,000 per occurrence, $1,000,000 personal and advertising injury and bodily injury and property damage and $3,000,000 in the general aggregate, per location. In addition, Tenant shall maintain and provide a $10,000,000/per location umbrella policy on terms Landlord specifies.

 

27


Section 14.03 Property Insurance:

Tenant shall insure and keep its equipment, personal property and all leasehold improvements benefiting the Demised Premises or elsewhere on the Real Estate insured at replacement cost against damage by fire, water, terrorism and other casualties and risks covered by “All Risk” property insurance. Landlord will not carry insurance of any kind on Tenant’s equipment or personal property, and, except as provided by law or by reason of its sole negligence or its breach of any of its obligations hereunder, shall not be obligated to repair any damage thereto or replace the same.

Section 14.04 Workers Compensation Insurance:

Tenant shall maintain worker’s compensation insurance insuring against and satisfying Tenant’s obligations and liabilities under the applicable worker’s compensation laws, including without limitation, employer’s liability insurance in the amounts of $1,000,000 each accident/$1,000,000 disease per person/$1,000,000 disease policy limit.

Section 14.05 Other Insurance:

Tenant shall carry insurance against such other hazards and in such amounts as may be customarily carried by tenants of similar properties, as Landlord may reasonably require for its protection from time to time.

Section 14.06 Waiver of Subrogation:

Landlord and Tenant each hereby releases the other, its officers, directors, employees and agents from liability or responsibility (to the other or anyone claiming through or under them by way of subrogation or otherwise) for any loss or damage to property covered by valid and collectible special form property insurance policy with standard extended coverage endorsement, even if such loss or damage shall have been caused by the fault or negligence of the other party, or anyone for, whom such party may be responsible to the extent of insurance proceeds. Landlord and Tenant each agrees that any special form property insurance policies carried by each of them respectively and covering the Demised Premises or their contents will include such a clause or endorsement.

Section 14.07 Insurance Rate:

If, as a result of (a) any act or omission by Tenant or violation of any terms of this Lease; (b) the use to which Tenant has put Demised Premises; or (c) Tenant’s failure to comply with Landlord’s insurance requirements, Landlord’s insurance rates applicable to the Real Estate are raised, Tenant shall reimburse Landlord, on demand, for the increased cost of Landlord’s insurance premiums, which comprise part of Rent. For the purposes of this Section, any finding or schedule of the fire insurance rating organization having jurisdiction over the Real Estate shall be deemed to be conclusive.

ARTICLE XV. INDEMNIFICATION AND LIABILITY.

Section 15.01 Indemnification:

(a) Except to the extent arising out of Landlord’s (or an Indemnified Party’s) gross negligence or willful misconduct, Tenant hereby indemnifies and agrees to defend and hold Landlord, its affiliates and each of their respective shareholders, members, officials, directors, employees, representatives, servants and agents, and any Mortgagee (each, an “Indemnified Party”, and collectively, the “Indemnified Parties”) harmless from and against any and all claims, suits, proceedings, fees, penalties, actions, causes of action, responsibilities, liabilities, payments, demands and expenses (including attorneys’ fees and disbursements) of any nature whatsoever relating to or arising from:

 

28


(i) Tenant’s (or Tenant’s Agents, invitees or visitors) possession, use, occupation, management, repair, maintenance or control of the Demised Premises, the Building or the Land (including, without limitation, use of any helistops at Connell Park or any fitness center, locker room or game room area which may be located in the Building), or any portion thereof (including, without limitation, any injury or damages to person(s) or property or loss of life sustained in or about the Demised Premises, the Building or the Land);

(ii) any act, omission or negligence of Tenant, Tenant’s Agents, invitees or visitors;

(iii) any default, breach, violation or nonperformance of this Lease or any provision therein by Tenant.

Tenant shall defend any actions, suits and proceedings which may be brought against any Indemnified Party with respect to the foregoing or in which they may be impleaded. Tenant shall pay, satisfy and discharge any judgments, orders and decrees which may be recovered against any Indemnified Party in connection with the foregoing.

(b) The rights to indemnification set forth in this Section 15.01 shall be in addition to and not in lieu of any other rights to indemnification set forth in this Lease, and shall survive the Expiration Date or other termination hereof. Landlord (on behalf of itself and any applicable Indemnified Party) shall notify Tenant of any claims for which Landlord seeks indemnification pursuant to this Section 15.01.

Section 15.02 Waiver and Release:

(a) Tenant hereby waives and releases all claims against Landlord with respect to all matters for which Landlord has disclaimed liability pursuant to the provisions of this Lease.

(b) Tenant will not be entitled to make, nor will Tenant make, any claim, and Tenant waives any claim, for money damages (nor will Tenant claim any money damages by way of setoff, counterclaim or defense) based upon any claim or assertion by Tenant that Landlord has unreasonably withheld or unreasonably delayed its consent or providing for such consent or approval. Tenant’s sole remedy will be an action or proceeding to enforce any such provision, or for specific performance, injunction or declaratory judgment.

Section 15.03 Liability of Landlord:

(a) Neither Landlord nor any agent or employee of Landlord shall be liable to Tenant for (i) any injury or damage to Tenant or to any other person or (ii) any damage to, or loss (by theft or otherwise) of, any property of Tenant or any other person, irrespective of the cause of such injury, damage, or loss, unless caused by or due to the willful misconduct or gross negligence of Landlord, its agents or employees without contributory negligence on the apart of Tenant.

(b) Landlord, and (in case Landlord shall be a joint venture, limited liability company, partnership, tenancy-in-common, association or other form of joint ownership) the members of any joint venture, limited liability company, partnership, tenancy-in-common, association or other form of joint ownership shall have absolutely no personal liability with respect to any provision of this Lease, or any obligation or liability arising therefrom or in connection therewith. Tenant shall look solely to the equity of the owner in the Real Estate or to any insurance which Landlord is obligated to provide under the terms of this Lease for the satisfaction of any remedies of Tenant in the event of a breach by Landlord of any of its obligations. Such exculpation of liability shall be absolute and without any exception whatsoever.

(c) All property (whether real, personal or mixed) at any time located in or upon the Demised Premises shall be at the risk of Tenant only, and Landlord shall not become liable for any damage

(d)

 

29


to said property or to Tenant, or to any other property, caused by water, leakage, steam, sewerage, gas or odors or for any damage whatsoever done or occasioned by or from any boiler, plumbing, gas, water, steam or other pipes, or any fixtures or equipment or appurtenances whatsoever, or for any damage arising from any act or neglect or arising by reason of the use of, or any defect in, the Demised Premises or any of the fixtures, equipment or appurtenances therein contained, or by the Act or neglect of any other person or caused in any other manner whatsoever or occasioned by theft, Act of God, riot, strike or other labor difficulty.

(e) Except as otherwise expressly provided herein, this Lease and the obligations of Tenant hereunder shall be in no way affected, impaired or excused because Landlord is unable to fulfill, or is delayed in fulfilling, any of its obligations under this Lease.

ARTICLE XVI. DEFAULT; REMEDIES.

Section 16.01 Default:

Each of the following shall constitute an Event of Default:

(a) the filing by Tenant of a bankruptcy petition, or the commencement of a proceeding under the insolvency laws of any State naming Tenant as the debtor;

(b) the filing by anyone other than Tenant of a bankruptcy petition or a proceeding under the insolvency laws of any State naming Tenant as the debtor, which case shall not have been discharged within 60 days of the commencement thereof;

(c) the making by Tenant of any assignment for the benefit of creditors or any other arrangement involving all or substantially all of its assets under any state statute;

(d) the appointment of a receiver or trustee for the Tenant or for all or any portion of the property of Tenant in any proceeding, which receivership shall not have been set aside within 30 days of such appointment;

(e) the refusal by Tenant to take possession of the Demised Premises upon completion of Tenant Work or the abandonment of the Demised Premises by Tenant, permitting the same to remain unoccupied and unattended (provided Tenant’s vacating the Premises shall not be deemed an abandonment of the Demised Premises if Tenant maintains the Demised Premises and performs all other obligations of Tenant under this Lease, including without limitation all monetary obligations);

(f) an assignment, sublease, or other transfer by Tenant in violation of Article X of this Lease;

(g) the failure of Tenant to pay: (i) any Base Rent when the same shall become due and payable; provided, however that with respect to the first time during any calendar year in which Tenant fails to pay Base Rent when due and payable, such failure to pay shall not constitute an Event of Default under this clause (g)(i) until such failure to pay continues for a period of five (5) days after written notice from Landlord to Tenant that such payment has not been received; and/or (ii) the failure of Tenant to pay any Rent (other than Base Rent), or any other charge required to be paid by Tenant hereunder, when the same shall become due and payable, and such failure shall continue for five (5) days after written notice from Landlord to Tenant that such payment has not been received;

 

30


(h) the failure of Tenant to maintain insurance in force in full compliance with and to the extent required by Article XIV hereof;

(i) the Letter of Credit shall for any reason whatsoever cease to be in full force and effect, or Tenant shall otherwise be in breach of Section 1.04 hereof, or the Letter of Credit Provider (or any party on behalf of the Letter of Credit Provider) shall contest the obligation to pay under the Letter of Credit in accordance with its terms; and

(j) the failure by Tenant to perform or observe any requirement of this Lease not specifically referred to in this Section, and such failure continuing for thirty (30) days after written notice from Landlord to Tenant specifying the items in default; provided, however, that if the failure reasonably requires more than thirty (30) days to cure, is capable of being cured, and Tenant has commenced such cure within such initial thirty (30) day period, then so long as Tenant is prosecuting the cure to completion with due diligence and in good faith, Tenant shall be permitted an additional ninety (90) days to cure before such failure constitutes an Event of Default under this clause (i).

Section 16.02 Landlords Remedy:

At any time after the occurrence of an Event of Default, Landlord may give written notice to Tenant specifying such Event(s) of Default and stating that the Lease and Term shall terminate upon the giving of such written notice, at which time this Lease and the Term and all of the right, title and interest of Tenant hereunder shall wholly cease and expire, and Tenant shall quit and surrender the Demised Premises to Landlord. Notwithstanding such termination, surrender, and the expiration of Tenant’s right, title, and interest, Tenant’s liability and responsibility under all of the provisions of this Lease shall continue.

Section 16.03 Landlords Re-Entry:

If this Lease shall be terminated as provided in Section 16.02, above, Landlord, or its agents or employees, may re-enter the Demised Premises at any time and remove therefrom Tenant, Tenant’s Agents, and any subtenants, licensees, concessionaires or invitees, together with any of its or their property, either by summary dispossession proceedings or by any suitable action or proceeding at law or otherwise. In the event of such termination, Landlord may repossess and enjoy the Demised Premises. Landlord shall be entitled to the benefits of all provisions of law respecting the speedy recovery of lands and tenements, or proceedings in forcible entry and detainer. Tenant waives any rights to the service of any notice of Landlord’s intention to re-enter provided for by any present or future law. Landlord shall not be liable in any way in connection with any action it takes pursuant to the foregoing. Notwithstanding any such re-entry, repossession, dispossession or removal, Tenant’s liability and responsibility under all of the provisions of this Lease shall continue.

Section 16.04 Landlords Additional Remedies:

(a) In case of re-entry, repossession or termination of this Lease, whether the same is the result of the institution of summary or other proceedings, Tenant shall remain liable (in addition to accrued liabilities) to the extent legally permissible for: (i) the Rent, and all other charges provided for herein until the date this Lease would have expired had such termination, re-entry or repossession not occurred; and all commercially reasonable expenses which Landlord may have incurred in re-entering the Demised Premises, repossessing the same; making good any Event of Default; painting, altering or dividing the Demised Premises; combining or placing the same in proper repair; protecting and preserving the same

 

31


by placing therein watchmen and caretakers; re-letting the same (including attorneys’ fees and disbursements, marshall’s fees, brokerage fees, in so doing; less (ii) the net proceeds of any re-letting. Tenant agrees to pay to Landlord the difference between items (i) and (ii) hereinabove with respect to each month, at the end of such month. Any suit brought by Landlord to enforce collection of such difference for any one month shall not prejudice Landlord’s right to enforce the collection of any difference for any subsequent month. In addition to the foregoing, Tenant shall pay to Landlord such sums as the court may adjudge reasonable as attorneys’ fees with respect to any successful lawsuit or action instituted by Landlord to enforce the provisions hereof.

(b) Landlord may re-lease the whole or any part of the Demised Premises for the whole of the unexpired period of this Lease, or longer, or from time to time for shorter periods, for any rental then obtainable, giving such commercially reasonable concessions of rent and making such special repairs, alterations, decorations and paintings for any new tenant as it may reasonably deem advisable and may collect and receive the rents therefor. Landlord agrees to take commercially reasonable steps to re-let the Demised Premises.

Section 16.05 Agreed Final Damages:

If Landlord so elects, Tenant shall pay Landlord, on demand, as liquidated and agreed final damages, the Rent and all other charges which would have been payable by Tenant from the date of such demand to the date when this Lease would have expired if it had not been terminated as aforesaid. Upon payment of such liquidated and agreed final damages, Tenant shall be under no further liability with respect to the period after the date of such demand. In the event Landlord makes the election under this Section 16.05 and Tenant has paid all amounts required under this Section 16.05, Landlord’s duty to take commercially reasonable steps to re-let the Demised Premises (to mitigate its damages), as provided in Section 16.04(b) hereof, shall continue, and if Landlord shall succeed in such efforts to re-let the Demised Premises, Landlord shall return to Tenant the net proceeds of any re-letting of the Demised Premises during such period under this Section 16.05 (but in no event for any period beyond the originally scheduled expiration of the base Term of this Lease) that are recovered by Landlord; provided, however, that the amounts so returned to Tenant shall in no event exceed the amounts paid by Tenant to Landlord under this Section 16.05.

Section 16.06 Waiver of Right of Redemption:

Tenant hereby expressly waives (to the extent legally permissible), for itself and all persons claiming by, through, or under it, any right of redemption or for the restoration of the operation of this Lease under any present or future law in case Tenant shall be dispossessed for any cause, or in case Landlord shall obtain possession of the Demised Premises as herein provided.

Section 16.07 Landlords Right to Perform for Account of Tenant; Letter of Credit:

(a) If an Event of Default shall occur hereunder, Landlord may, at any time, cure said Event of Default for the account and at the expense of Tenant. Tenant shall pay, on demand, to Landlord, with interest as required by Section 20.09 hereof, the amount so paid, expended, or incurred by Landlord and any expense of Landlord, including reasonable attorneys’ fees, incurred in connection with such Event of Default; and all of the same shall be deemed to be Additional Rent.

(b) If an Event of Default shall occur hereunder, without limiting any other remedy Landlord otherwise may have under this Lease, Landlord shall be entitled to draw upon all or any portion of the Letter of Credit in order to satisfy any obligations of Tenant owing under this Lease.

(c) In the event (i) Landlord shall have received notice that an existing Letter of Credit has not been renewed and Tenant shall not have provided a replacement Letter of Credit as required by Section 1.04 hereof or (ii) Tenant is in breach of Section 1.04(b) hereof, then in each case, without limiting any other remedy Landlord otherwise may have under this Lease, Landlord shall also be entitled to draw upon all or any portion of the Letter of Credit and hold such amounts drawn as security for Tenant’s

 

32


obligations under the Lease. Any amount drawn as provided in the immediately preceding sentence shall be held by Landlord as security for the full and faithful performance by Tenant of all of its obligations under this Lease or in connection with this Lease, and such amount shall be referred to herein as the “Security Deposit.” If an Event of Default has occurred, Landlord may use, apply or retain the whole or any part of the Security Deposit for the payment of (i) Rent or any other sums of money which Tenant may not have paid or which may become due after the occurrence of the Event of Default; (ii) any sum expended by Landlord on Tenant’s behalf in accordance with the provisions of this Lease; or (iii) any sum which Landlord may expend or be required to expend by reason of such Event of Default, including any damages or deficiency in the re-letting of the Demised Premises in connection with Article XVI hereof. Landlord may use, apply or retain the whole or any part of the Security Deposit for the repair of damage to the Demised Premises upon Tenant’s surrender of the Demised Premises on Expiration Date. The use, application or retention of the Security Deposit or portion thereof by Landlord shall not prevent Landlord from exercising any other right or remedy provided for hereunder or at law shall not operate as a limitation on any recovery to which Landlord may otherwise be entitled. The Security Deposit shall bear no interest; and if legally permissible, Landlord shall be entitled to commingle the Security Deposit with Landlord’s other funds. If Tenant shall fully and faithfully comply with all of the provisions of this Lease, the Letter of Credit and the Security Deposit or any balance thereof (including interest earned thereon) shall be returned to Tenant within sixty (60) days after the Expiration Date or upon any later date after which Tenant has vacated the Demised Premises. In the absence of evidence satisfactory to Landlord of any assignment of the right to receive the Security Deposit or the remaining balance thereof (including interest earned thereon), Landlord may return the Security Deposit to the original Tenant regardless of one or more assignments of Tenant’s interest in such Security Deposit. In such event, upon the return of such Security Deposit or balance thereof to the original Tenant, Landlord shall be completely relieved of liability hereunder. Tenant covenants and agrees that it shall not assign, pledge, hypothecate, mortgage or otherwise encumber the Security Deposit during the Term of the Lease. The Security Deposit may be transferred to any purchaser of Landlord’s interest in the Building or the Real Estate, provided as a condition of such transfer, the transferee assumes, in writing, the obligation to hold the same pursuant to this Section 16.07 and upon such transfer, Landlord shall be relieved of any obligation with respect thereto.

Section 16.08 Additional Remedies, Waivers, etc.:

With respect to the rights and remedies of and waivers by Landlord:

(a) The rights and remedies of Landlord set forth herein shall be in addition to any other right and remedy now and hereafter provided by law. All such rights and remedies shall be cumulative and not exclusive of each other. Landlord may exercise such rights and remedies at such times, in such order, to such extent, and as often as Landlord deems advisable without regard to whether the exercise of one right or remedy proceeds, concurs with or succeeds the exercise of another.

(b) A single or partial exercise of a right or remedy shall not preclude (i) a further exercise thereof, or (ii) the exercise of another right or remedy, from time to time.

(c) No delay or omission by Landlord in exercising a right or remedy shall exhaust or impair the same or constitute a waiver of, or acquiescence to an Event of Default.

(d) No waiver of an Event of Default shall extend to or affect any other Event of Default or impair any right or remedy with respect thereto.

(e) No action or inaction by Landlord shall constitute a waiver of an Event of Default.

(f) No waiver of an Event of Default shall be effective unless it is in writing and signed by Landlord.

 

33


Section 16.09 Intentionally Deleted:

ARTICLE XVII. TENANT’S ESTOPPEL CERTIFICATE.

At any time within thirty (30) days after written request by Landlord, Tenant shall certify to Landlord, any mortgagee, assignee of a mortgagee, any purchaser, or any other person, specified by Landlord, by written instrument, duly executed and acknowledged, (a) whether or not Tenant is in possession of the Demised Premises; (b) whether or not this Lease is unmodified and in full force and effect (or if there has been modification, that the same is in full force and effect as modified and setting forth such modification); (c) whether or not there are then existing set-offs or defenses against the enforcement of any right or remedy of Landlord, or any duty or obligation of Tenant (and if so, specifying the same); (d) the dates, if any, to which any Rent or other charges have been paid in advance; and (e) such other factual matters relating to this Lease as may be reasonably requested by Landlord, any mortgagee or any of their designees.

ARTICLE XVIII. RIGHT OF ACCESS.

Landlord, its employees, agents, representatives, may enter upon the Demised Premises, or any portion thereof (with people and materials, if required), with not less than 24 hours prior notice to Tenant (except in the case of emergency, in which event Landlord shall provide such advance notice, and in such form, as is reasonable under the circumstances) and at reasonable times, for the purpose of: (a) inspecting same; (b) making such repairs, replacements or alterations which it may be required to perform as herein provided or which it may deem desirable for the Demised Premises; (c) showing the Demised Premises to prospective purchasers; and (d) at any time within the twelve (12) months immediately preceding the expiration of the Term (provided Tenant has not exercised its next ensuing Renewal Option, if any) showing the Demised Premises to prospective tenants.

ARTICLE XIX. COVENANT OF QUIET ENJOYMENT.

Landlord covenants that if Tenant pays the Rent and all other fees, charges and expenses provided for herein in a timely manner as and when due, duly performs all of its other obligations provided for hereunder, and observes all of the other provisions hereof, Tenant shall, at all times during the Term, peaceably and quietly have, hold and enjoy the Demised Premises, without any interruption or disturbance from Landlord, subject to the terms hereof.

ARTICLE XX. MISCELLANEOUS.

Section 20.01 Interpretation:

(a) Every term, condition, agreement or provision contained in this Lease which imposes an obligation on Tenant shall be deemed to be also a covenant by Tenant.

(b) Any reference herein to subtenants or licensees shall not be deemed to imply that any subtenants or licensees are permitted hereunder. Any reference herein to any extension or renewal of the Term or any period during which Tenant may be in possession after the Expiration Date shall not be deemed to imply that any extension or renewal of the Term is contemplated hereby or that Tenant shall be permitted to remain in possession after the expiration of the Term.

(c) If any provision of this Lease or the application thereof to any person or circumstance shall to any extent be invalid or unenforceable, the remainder of this Lease, or the application of such provision to persons or circumstances other than those to which it is invalid or unenforceable, shall not be affected thereby, and each provision of this Lease shall be valid and be enforced to the fullest extent permitted by law.

 

34


(d) The captions and headings used throughout this Lease are for convenience of reference only and shall not affect the interpretation of this Lease.

(e) Anything in this Lease to the contrary notwithstanding:

(i) Any provision which permits or requires a party to take any particular action shall also be deemed to permit or require a party to cause such action to be taken; and

(ii) Any provision which requires any party not to take any particular action shall be deemed to require the party not to permit such action to be taken by any person or by operation by law.

(f) This Lease may be executed in several counterparts; and in such case the counterparts shall constitute but one and the same instrument.

(g) Wherever a requirement is imposed on any party hereto, it shall be deemed that such party shall be required to perform such requirement at its own expense unless it is specifically otherwise provided herein.

(h) The singular includes the plural and the plural includes the singular.

(i) All Exhibits and Schedules hereto are hereby incorporated by reference in and form an integral part of this Lease, and all references to the Lease shall be deemed to include such Exhibits and Schedules.

Section 20.02 Construction of Words and Phrases:

(a) Wherever it is provided herein that a party may perform an act or do anything, it shall be construed that such party may, but shall not be obligated to, so perform or so do.

(b) The words “re-enter” and “re-entry” as used herein are not restricted to their technical legal meaning.

(c) The word “person” shall be construed as an individual, fiduciary, estate, trust, partnership, firm, association, corporation, other organization, or a government or governmental authority.

(d) The following words and phrases shall be construed as follows:

(i) “At any time” shall be construed as, “at any time or from time to time.”

(ii) “Any” shall be construed as “any and all.”

(iii) “Including” shall be construed as “including but not limited to.”

Section 20.03 Written Agreement Required:

This Lease contains the entire agreement between the parties hereto concerning the subject matter hereof, and supercedes all other agreements, written or oral, with respect thereto. No amendment, alteration, modification of or addition to the Lease will be valid or binding unless expressed in writing and signed by Landlord and Tenant.

 

35


Section 20.04 Notice:

Every notice, request, consent, approval, waiver or other communication under this Lease shall be deemed to have been given if in writing and upon mailing by registered, overnight express/courier service, or certified mail, return receipt requested, postage prepaid, addressed:

(a) If to Landlord, to the address designated as Landlord’s Notice Address, or such other address as Landlord designates, with a copy thereof to such other person or party as Landlord shall designate;

(b) If to Tenant, to the address designated as Tenant’s Notice Address, or such other address as Tenant designates, with a copy thereof to the address designated as Tenant’s Notice Copy Address or to such other person or party as Tenant shall designate.

 

  (i)

Landlord’s Notice Address:

The Connell Company 300

Connell Drive Berkeley

Heights, New Jersey 07922

Attention: President

 

  (ii)

Tenant’s Notice Address:

Kalaris Therapeutics

628 Middlefield Rd.

Palo Alto, CA 94301

Section 20.05 Survival of Provisions upon Termination of Lease:

This Lease shall survive the expiration or termination of the Term to the extent necessary that any term, covenant or condition of this Lease requires the performance of obligations or the forbearance of an act by either party hereto after the expiration or termination of the Lease. Such survival shall be to the extent reasonably necessary to fulfill the intent thereof, or if specified, to the extent of such specification, as same is reasonably necessary to perform the obligations and/or forbearance of an act set forth in such term, covenant or condition.

Section 20.06 Successors and Assigns:

Subject to the provisions hereof, this Lease shall bind and inure to the benefit of the parties and their respective successors, representatives, heirs and permitted assigns.

Section 20.07 Intentionally Deleted:

Section 20.08 Tenant at Sufferance:

If Tenant shall remain in possession of the Demised Premises after the end of the Term (including if the Demised Premises have not been surrendered in accordance with the terms of this Lease), such holding over shall cause the Tenant to be deemed a tenant-at-sufferance, subject to all of the provisions, conditions and obligations of this Lease, except that the Rent to be charged Tenant during such hold over period shall be two times the monthly Rent in effect for the last month of the Term or any renewal periods. Any acceptance of hold over Rent by Landlord shall not be deemed a waiver of any rights or remedies available to Landlord arising out of Tenant’s failure to have vacated the Demised Premises upon the end of the Term, or an acquiescence to Tenant’s tenant-at-sufferance period.

 

36


Section 20.09 Interest:

Any payment required to be made by Tenant under the provisions of this Lease not made by Tenant when and as due shall be payable by Tenant to Landlord on demand with interest thereon at three (3%) percent over the rate designated by the Bank of New York, New York (or its successor) from time to time as the prime rate, but not to exceed the highest legal rate, computed from the date said sum became due to and including the date of payment thereof to Landlord.

Section 20.10 Late Charge:

In order to cover the extra expense involved in handling delinquent payments, Tenant, at Landlord’s option, shall pay a “late charge” of five (5%) percent of the amount due when any payment of Rent hereunder is received by Landlord more than five (5) days after the due date thereof. It is understood and agreed that this charge is for additional expense incurred by Landlord, shall not be considered interest, and shall be due in addition to the interest required under Section 20.09 hereof. Notwithstanding the foregoing, before assessing a late charge for the first time in any calendar year, Landlord shall notify Tenant in writing of the delinquent payment and if Tenant pays such delinquent amount within five (5) days of such notice, Landlord shall waive such late charge.

Section 20.11 Non-Waiver:

The failure of Landlord to insist upon strict performance of any covenants or conditions of this Lease or Landlord’s failure to exercise any option herein conferred in any one or more instances shall not be construed as a waiver or relinquishment of any such covenants, conditions or options, but the same shall be and remain in full force and effect. If Landlord pursues any remedy granted by the terms of this Lease or pursuant to applicable law, it shall not be construed as a waiver or relinquishment of any other remedy afforded thereby.

Section 20.12 Broker:

Each party hereto represents and warrants that there was no broker other than CBRE, Inc. (the “Broker”) responsible for bringing about or negotiating this Lease. Each party agrees to defend, indemnify, and hold the other party harmless against any and all claims for brokerage commission or compensation with regard to the Demised Premises by any other broker claiming or alleging to have acted on behalf of or to have dealt with such party. Landlord will pay any fees or commissions due the Broker pursuant to a separate written agreement between Landlord and Broker.

Section 20.13 Short Form Lease:

Landlord and Tenant agree that neither party shall record the Lease. Upon request of either party the other shall execute a document in recordable form, or a short form lease or memorandum of lease in proper form for recording, setting forth the Commencement Date and any provision hereof other than Sections 5.01, 5.02, 5.03 and 5.05. The requesting party shall pay all recording fees and costs in connection with any such short form or memorandum of lease.

Section 20.14 Mechanics Liens:

Tenant shall not do or cause anything to be done whereby the Demised Premises may be encumbered by a mechanic’s lien. If any mechanic’s or materialman’s lien is filed against the Demised Premises, the Building or the Land as a result of any Tenant Work being performed by Tenant or any additions, alterations, repairs, installations, improvements or any other work or act of Tenant, Tenant shall discharge or bond same within twenty days from the date of filing of the lien. If Tenant shall fail to discharge or bond the lien, Landlord may bond or pay the lien or claim for the account of Tenant without inquiring into the validity of the lien or claim and Tenant shall reimburse Landlord upon demand.

 

37


Section 20.15 Corporate Authority:

(a) Tenant represents that the undersigned officer(s) has (have) been duly authorized to enter into this Lease and that the execution and consummation of this Lease by Tenant does not and shall not violate any provision of any bylaws, certificate of incorporation, agreement, order, judgment, governmental regulation or any other obligations to which Tenant is a party or is subject.

(b) Landlord represents that the undersigned officer of Landlord has been duly authorized to enter into this lease and that the execution and consummation of this Lease by Landlord does not and shall not violate any provision of any bylaw, certificate of incorporation, agreement, order judgment, governmental regulation or any other obligation to which Landlord is a party or is subject.

Section 20.16 Force Majeure:

Except as otherwise provided herein, Landlord shall not be liable for any delays and other events beyond the reasonable control of a party (each, a “Force(s) Majeure)” including, without limitation: acts of God; strikes, lock-outs or other labor difficulties; explosion, sabotage, accident, riot or civil commotion; act of war; fire or other casualty; requirements of governing authorities or inability to obtain necessary governmental permits and approvals.

Section 20.17 Governing Law:

This Lease shall be governed by and construed pursuant to the laws of the State of New Jersey.

Section 20.18 Financial Statements:

If requested by Landlord, Tenant shall, within 120 days after the close of each of its fiscal years, deliver to Landlord Tenant’s balance sheet and profit and loss statement certified to by a recognized firm of certified public accountants; provided, however, that this Section 20.18 shall not be applicable so long as Tenant is a publicly traded company and the financial statements of Tenant are otherwise publicly available to Landlord. Except to the extent same are publicly available, the foregoing financial statements and information shall be treated by Landlord as confidential information belonging to Tenant.

Section 20.19 Flood Risk Notice:

In accordance with N.J.S.A. 46:8-50 (“Flood Risk Notice Law”), Landlord hereby notifies Tenant of the following matters (collectively, the “Flood Risk Notice”): (1) portions of the Land (not including the Building footprint), on or to the south of the east-bound traffic lane of Connell Drive, are located in the 100-year floodplain (a “Special Flood Hazard Area”) as determined by the Federal Emergency Management Agency (“FEMA”); and (2) portions of the Land (not including the Building footprint), on or to the south of the east-bound traffic lane of Connell Drive, are located in the 500-year floodplain (a “Moderate Risk Flood Hazard Area”) as determined by FEMA. Further, to Landlord’s actual knowledge, prior to the date of this Lease, neither the Building nor any portion of the adjacent parking areas on the Land have been subjected to or experienced any flooding, including any material flood damage, water seepage, or pooled water, as a result of a natural flood event; provided, however, that portions of the Land (primarily to the south of the east-bound traffic lane of Connell Drive, as noted above) that are adjacent to the existing Green Brook waterway, which traverses the southern part of the Land in an easterly direction and forms the municipal boundary between Berkeley Heights and Watchung Borough, are sometimes subjected to natural flooding. Because any natural flooding which occurs in these areas of the Land is both

 

38


expected and inconsequential from Landlord’s property maintenance perspective, Landlord has not tracked the frequency of such flooding and therefore cannot, as the Flood Risk Notice Law anticipates, advise Tenant concerning the precise number of times such flooding has occurred prior to the date of this Lease. Tenant acknowledges receipt of this Flood Risk Notice, which shall satisfy Landlord’s obligations of notice as set forth in N.J.S.A. 46:8-50. Tenant further acknowledges that it has had the opportunity to independently review available information concerning the contents of the Flood Risk Notice and of the flood risks associated with the Land generally and has elected to enter into this Lease based on such independent investigations, and not based on Landlord’s representations contained in this Flood Risk Notice. Tenant hereby waives, to the fullest extent permitted by law, any and all rights and remedies available to Tenant under N.J.S.A. 46:8-50 as a consequence of any failure or purported failure by Landlord to provide Tenant notice of the matters contained therein.

ARTICLE XXI. ENVIRONMENTAL MATTERS.

Section 21.01 Industrial Site Recovery Act:

(a) Tenant represents and warrants that it is not an “Industrial Establishment” as that term is defined in the Industrial Site Recovery Act, formerly known as the Environmental Cleanup Responsibility Act, N.J.S.A. 13:1K-6 et seq., as same may be amended from time to time (together with all rules, regulations, ordinances, opinions, orders and directives issued or promulgated pursuant to or in connection with said Act by the New Jersey Department of Environmental Protection (“DEP”), or any subdivision or bureau thereof or any other governmental or quasi-governmental agency, authority or body having jurisdiction thereof, referred to herein as the “Act” or “ISRA”). Tenant shall not do or suffer anything that will cause it to become an Industrial Establishment under the Act during the Term of this Lease. Landlord may from time to time require Tenant at Tenant’s sole expense to provide proof satisfactory to Landlord that Tenant is not an Industrial Establishment. In the event that Tenant now is or hereafter becomes an Industrial Establishment or is required by the DEP, Tenant shall comply with all conditions as set forth in subparagraphs (b) and (d) of this Section 21.01. It is understood and agreed that reference herein to an “Industrial Establishment” under this Lease shall mean with respect to the Demised Premises.

(b) Tenant agrees that it shall, at its sole cost and expense, fulfill, observe and comply with all of the terms and provisions of the Act. Without limiting the foregoing, upon Landlord’s request therefor, and in all events no later than sixty (60) days prior to “closing, terminating or transferring operations” (as said terms are defined and used in the Act) out of the Demised Premises, Tenant at its sole cost and expense, shall provide Landlord with a true copy of:

(i) a letter of non-applicability from DEP (or such other agency or body which shall then have jurisdiction over ISRA matters), stating that ISRA does not apply to Tenant, Tenant’s use and occupancy of the Demised Premises and to the closing, terminating or transferring of operations at the Demised Premises; or

(ii) a Negative Declaration (as said term is defined in ISRA) duly approved by DEP or such other agency or body then having jurisdiction over ISRA matters; or

(iii) a Cleanup Plan (as said term is defined in ISRA) duly approved by DEP (or such other agency or body which shall then have jurisdiction over ISRA matters), the intent of which will be to obtain from the DEP a “No Further Action” (“NFA”) determination with respect to the Demised Premises.

(c) Nothing in this Section shall be construed as limiting Tenant’s obligation to comply with ISRA.

 

39


(d) In the event Tenant complies with paragraph (b) (iii) of this Section by obtaining an approved Cleanup Plan, Tenant agrees that it shall, at its sole cost and expense:

(i) post any financial guarantee or other bond required to secure implementation and completion of such Cleanup Plan; and

(ii) promptly and diligently implement and prosecute to completion said Cleanup Plan by obtaining an NFA determination, in accordance with the schedules contained therein or as may otherwise be ordered or directed by DEP or such other agency or body which shall then have jurisdiction over such Cleanup Plan. Tenant expressly understands, acknowledges and agrees that Tenant’s compliance with the provisions of subparagraphs (b) and (d) may require Tenant to expend funds or do acts after the expiration or termination of the Lease Term and Tenant shall not be excused therefrom.

(e) Within thirty (30) days after a written request by Landlord or any mortgagee of Landlord (or sooner, if required by the DEP), Tenant shall deliver to Landlord and Landlord’s Mortgagee, if any, a duly executed and acknowledged affidavit of Tenant’s chief executive officer, certifying:

(i) the proper classification under the North American Industry Classification System relating to Tenant’s then current use of the Demised Premises; and

(ii) (A) that Tenant’s then current use of the Demised Premises does not involve the generation, manufacture, refining, transportation treatment, storage, handling or disposal of hazardous substances or waste (as hazardous substances and hazardous waste are defined in ISRA) on site, above ground or below ground (all of the foregoing are hereinafter collectively referred to as the “Presence of Hazardous Substances”; it being understood that the “Presence of Hazardous Substances” does not, subject to Tenant’s compliance with the express terms and conditions of Section 21.03, include de minimis quantities of Hazardous materials contained in ordinary cleaning solutions and ordinary office supplies to the extent used and stored in compliance with all applicable laws), or, (B) that Tenant’s then current use does involve the Presence of Hazardous Substances, in which event, said affidavit shall describe in complete detail that portion of Tenant’s operations which involves the Presence of Hazardous Substances. Such description shall, inter alia, identify each hazardous substance and describe the manner in which Tenant generated, handled, manufactured, refined, transported, treated, stored and/or disposed of same. Tenant shall supply Landlord and Landlord’s mortgagee, if any, with such additional information relating to the Presence of Hazardous Substances as Landlord or Landlord’s mortgagee requests.

(f) Without limiting the foregoing, Tenant agrees:

(i) at its sole cost and expense, to promptly discharge and remove any lien or encumbrance against the Demised Premises, the Building, the Real Estate or any other property owned or controlled, in whole or in part, by Tenant imposed due to Tenant’s failure to comply with ISRA, and

 

40


(ii) to defend, indemnify and hold Landlord harmless from and against any and all liability, penalty, loss, expenses, damages, costs, claims, causes of action, judgments and/or the like, of whatever nature, including but not limited to attorneys’ fees and disbursements and other costs of litigation or preparation therefor, to the extent such costs arise from or in connection with Tenant’s failure or inability, for any reason whatsoever, to observe or comply with ISRA and/or the provisions of this Section 21.01.

Section 21.02 Spill Act:

(a) Tenant agrees in connection with Tenant’s use of, or presence in, the Demised Premises or any other part of the Real Estate, that it shall, at its sole cost and expense, observe, comply and fulfill all of the terms and provisions of the Spill Compensation and Control Act, N.J.S.A. 58:10-23.11 et. seq., as the same may be amended from time to time and all rules, regulations, ordinances, opinions, orders and directives issued or promulgated pursuant to or in connection with said Act by DEP, any subdivision or bureau thereof or governmental or quasi-governmental agency or body having jurisdiction thereof. (Said act and all said rules, regulations, ordinances, opinions, orders and directives are hereinafter in this Section 21.02 collectively referred to as “Spill Act”).

(b) Without limiting the foregoing, Tenant agrees:

(i) that it shall not do, omit to do or suffer the commission or omission of any act which is prohibited by or may result in any liability under the Spill Act, including without limitation the discharge of petroleum products or other hazardous substances (as said terms are defined in the Spill Act); and

(ii) whenever the Spill Act requires the “owner or operator” to do any act in connection with Tenant’s use of, or presence in, the Demised Premises or any other part of the Real Estate, or otherwise in connection with any act by Tenant or any other party acting on Tenant’s behalf or at Tenant’s direction in connection with Tenant’s use of, or presence in, the Demised Premises or any other part of the Real Estate, Tenant shall do such act and fulfill, all such obligations at its sole cost and expense, it being the intention of the parties hereto that Landlord shall be free of all expense and obligations arising from or in connection with such compliance with the Spill Act.

(c) Without limiting the foregoing, Tenant agrees:

(i) at its sole cost and expense, to promptly discharge and remove any lien or any encumbrance against the Demised Premises, the Building, the Real Estate or any other property owned or controlled, in whole or in part, by Tenant, imposed by Tenant’s failure to comply with the Spill Act; and

(ii) to defend, indemnify and hold Landlord harmless from and against any and all liabilities, penalties, losses, expenses, damages, costs, claims, causes of action, judgments, suits and/or the like, of whatever nature, (including but not limited to attorneys’ fees and other expenses of litigation or preparation therefor) which may at any time be imposed on, incurred by or asserted against any Indemnified Party and which in any way relate to or arise from or in connection with Tenant’s failure or inability, for any reason whatsoever, to observe or comply with the Spill Act and/or the provisions of this Section 21.02.

 

41


Section 21.03 Toxic and Hazardous Materials:

Without limiting any of its other obligations hereunder, Tenant agrees that it shall not store, use, generate, manufacture, produce, release, discharge or dispose of any toxic or Hazardous Materials in, on, or about the Demised Premises or the Real Estate (and Tenant shall notify Landlord in writing immediately upon any violation of this sentence); provided, however, that Tenant may, in compliance with all applicable laws, use and store reasonable quantities of ordinary cleaning solutions and office supplies containing de minimis amounts of Hazardous Materials in the Demised Premises to the extent reasonably necessary for the conduct of Tenant’s ordinary business therein. Tenant will be solely responsible for and will defend, indemnify and hold Indemnified Parties (as defined in Section 15.01(a) of this Lease) from and against all claims, judgments, actions, costs, penalties, damages and liabilities, including attorneys’ fees and costs, arising out of or in connection with Tenant’s (and Tenant’s Agents, invitees or visitors) storage, use and disposal of toxic material or Hazardous Materials. Tenant will be solely responsible for and will defend, indemnify and hold Indemnified Parties harmless from and against any and all claims, costs and liabilities, including attorneys’ fees and costs, arising out of or in connection with the removal, clean-up and restoration work and materials necessary to return the Demised Premises and any other property of whatever nature located on the Real Estate to the condition existing prior to such storage, use, generation, manufacture, production, release, discharge or disposal of toxic materials or Hazardous Materials by Tenant.

For purposes of this Lease, the term “Hazardous Materials” includes but is not limited to: (a) those substances included within the definitions of “hazardous substances,” “hazardous materials,” “toxic substances,” “hazardous wastes,” “solid waste” or similar terms in any Environmental Law; (b) petroleum products and petroleum byproducts; (c) polychlorinated biphenyls; and (d) chlorinated solvents. The term “Environmental Law” includes any federal, state, municipal or local law, statute, ordinance, regulation, order, rule or requirement (in each case as may be amended from time to time) pertaining to health, industrial hygiene, environmental conditions (including, without limitation, air, ground, water pollution and protection and/or preservation of the environment), or hazardous materials or substances.

Section 21.04 Other Environmental Laws:

Without limiting any of its other obligations hereunder, Tenant agrees that with respect to the Demised Premises and/or to any conditions or matters introduced, caused or created by Tenant (or by anyone acting by, through, or on behalf of Tenant), Tenant shall, at its sole cost and expense, promptly comply and keep continually in full compliance with all federal, state and local laws, ordinances, rules, regulations and requirements relating to air, ground and water pollution and protection and/or preservation of the environment. Notwithstanding anything to the contrary, Tenant shall not have responsibility or liability for any Hazardous Materials to the extent existing on or in the Demised Premises or the Real Estate prior to the date of this Lease (“Pre-Existing Hazardous Materials”).

Landlord shall defend, indemnify, and hold Tenant harmless from and against any claims, damages, penalties, costs, or liabilities imposed against Tenant by any third party to the extent arising out of any Pre-Existing Hazardous Materials.

Section 21.05 Survival of Environmental Terms and Conditions:

Tenant and Landlord agree that each and every provision of this Article XXI shall survive the termination of this Lease. The parties hereto expressly acknowledge and agree that Landlord would not enter into this Lease but for the provisions of this Article XXI and the aforesaid survival thereof.

Section 21.06 Landlord Representation:

Landlord represents and warrants that as of the date of this Lease, to Landlord’s knowledge, the Demised Premises are free from Hazardous Materials (other than standard office products and construction materials, otherwise defined as hazardous, which are used in compliance with applicable law).

[The remainder of this page is intentionally left blank.]

 

42


IN WITNESS WHEREOF, Landlord and Tenant have caused this Lease to be executed as of the day and year first above written.

 

LANDLORD:
THE CONNELL COMPANY
By:  

/s/ Duane Connell

Name:   Duane Connell
Title:   Executive Vice President
TENANT:
KALARIS THERAPEUTICS, INC.
By:  

/s/ Andrew Oxtoby

Name:   Andrew Oxtoby
Title:   President & CEO

 

43


EXHIBIT A

LEGAL DESCRIPTION OF LAND

LEGAL DESCRIPTION

LOT 1, BLOCK 4102”

TOWNSHIP OF BERKELEY HEIGHTS

UNION COUNTY, NEW JERSEY

A parcel of land described herein, being known and designated as Lot 1, Block 4102, Township of Berkeley Heights, Union County, New Jersey (and formerly being known and designated as Lots 1 & 2.01, Block 4102, Lots 1 & 2, Block 4103, and Old Colonial Road, Township of Berkeley Heights, Union County, New Jersey, as shown on a certain map entitled, “Minor Subdivision Plan, Minor Subdivision for Block 4101 Lot 2, Block 4102 - Lots 1 & 2, Block 4103 - Lots 1 & 2 and Block 4301 - Lot 1.01, Township of Berkeley Heights, Union County, New Jersey,” prepared by Schoor DePalma, dated March 29, 2007 and revised to June 25, 2007) and being more particularly described as follows:

Beginning at a point in the easterly sideline of Plainfield Avenue (50 ft. wide right-of-way) distant 885.28 feet the various courses along said sideline from the northerly sideline of Valley Road, said point being the beginning point of a description of land described as Tract II, in a deed recorded in the Union County Clerk’s Office in Deed Book 4260, Page 6 and running; thence,

Along said easterly sideline of Plainfield Avenue, the following eleven (11) courses;

 

1.

North 70 degrees 34 minutes 47 seconds West, 76.51 feet to a point of non-tangent curvature; thence,

 

2.

Along a curve to the right having a radius of 611.79 feet, a central angle of 10 degrees 32 minutes 59 seconds and an arc length of 112.65 feet to a point of tangency; thence,

 

3.

North 60 degrees 01 minutes 47 seconds West, 94.58 feet; thence,

 

4.

North 58 degrees 58 minutes 16 seconds West, 168.11 feet to a point of curvature; thence,

 

5.

Along a curve to the right having a radius of 622.00 feet, a central angle of 20 degrees 32 minutes 28 seconds and an arc length of 222.99 feet to a point of tangency; thence,

 

6.

North 38 degrees 25 minutes 48 seconds West, 592.47 feet to a point of curvature; thence,

 

7.

Along a curve to the right having a radius of 1005.09 feet, a central angle of 06 degrees 28 minutes 36 seconds and an arc length of 113.61 feet to a point of tangency; thence,

 

8.

North 31 degrees 57 minutes 12 seconds West, 137.31 feet to a point of curvature; thence,

 

9.

Along a curve to the left having a radius of 373.00 feet, a central angle of 47 degrees 00 minutes 06 seconds and an arc length of 305.98 feet to a point of tangency; thence,

 

10.

North 78 degrees 57 minutes 18 seconds West, 18.43 feet; thence,

 

A-1


11.

North 79 degrees 08 minutes 40 seconds West, 7.56 feet to a point of intersection with the southerly sideline of Interstate Highway Route 78; thence,

Along said southerly sideline, the following five (5) courses;

 

12.

North 88 degrees 10 minutes 39 seconds East, 15.23 feet; thence,

 

13.

North 62 degrees 14 minutes 02 seconds East, 274.69 feet; thence,

 

14.

North 66 degrees 41 minutes 45 seconds East, 606.26 feet; thence,

 

15.

North 64 degrees 53 minutes 46 seconds East, 665.08 feet; thence,

 

16.

North 56 degrees 06 minutes 40 seconds East, 63.13 feet to the northwest corner of Lot 1.012, Block 4301 as shown on the aforementioned map; thence,

Along the southwesterly line of said Lot 1.012, the following four (4) courses;

 

17.

South 30 degrees 37 minutes 11 seconds East, 813.47 feet to a point of curvature; thence,

 

18.

Along a curve to the left having a radius of 40.00 feet, a central angle of 82 degrees 38 minutes 32 seconds, an arc length of 57.70 feet and a chord bearing and distance of South 71 degrees 56 minutes 27 seconds East, 52.82 feet to a point of tangency; thence,

 

19.

North 66 degrees 44 minutes 17 seconds East, 79.10 feet to a point of curvature; thence,

 

20.

Along a curve to the left having a radius of 388.00 feet, a central angle of 19 degrees 37 minutes 13 seconds, an arc length of 132.87 feet and a chord bearing and distance of North 56 degrees 55 minutes 40 seconds East, 132.22 feet to a point of non-tangency at an intersection with the southwesterly line of Lot 1.011, Block 4301; thence,

 

21.

Along said line, South 42 degrees 47 minutes 56 seconds East, 252.35 feet to a point in the municipal boundary line dividing the Township of Berkeley Heights, Union County and the Borough of Watchung, Somerset County; thence,

Along said municipal boundary line, being the approximate centerline of Green Brook, the following twenty-three (23) courses;

 

22.

North 79 degrees 30 minutes 47 seconds West, 9.38 feet; thence,

 

23.

North 40 degrees 03 minutes 25 seconds West, 12.12 feet; thence,

 

24.

North 84 degrees 27 minutes 53 seconds West, 96.00 feet; thence,

 

25.

South 80 degrees 42 minutes 06 seconds West, 25.14 feet; thence,

 

26.

South 55 degrees 25 minutes 02 seconds West, 40.43 feet; thence,

 

27.

South 56 degrees 58 minutes 39 seconds West, 119.85 feet; thence,

 

28.

South 56 degrees 34 minutes 30 seconds West, 41.59 feet; thence,

 

A-2


29.

South 42 degrees 12 minutes 02 seconds West, 61.20 feet; thence,

 

30.

South 39 degrees 24 minutes 33 seconds West, 161.37 feet; thence,

 

31.

South 17 degrees 49 minutes 34 seconds West, 20.59 feet; thence,

 

32.

South 18 degrees 05 minutes 48 seconds East, 16.55 feet; thence,

 

33.

South 33 degrees 44 minutes 50 seconds East, 98.31 feet; thence,

 

34.

South 04 degrees 08 minutes 49 seconds West, 107.56 feet; thence,

 

35.

South 03 degrees 17 minutes 01 seconds West, 58.00 feet; thence,

 

36.

South 27 degrees 40 minutes 25 seconds West, 69.89 feet; thence,

 

37.

South 52 degrees 30 minutes 14 seconds West, 61.29 feet; thence,

 

38.

South 45 degrees 14 minutes 25 seconds West, 174.07 feet; thence,

 

39.

South 39 degrees 07 minutes 16 seconds West, 22.20 feet; thence,

 

40.

South 37 degrees 43 minutes 26 seconds West, 31.40 feet; thence,

 

41.

South 59 degrees 58 minutes 42 seconds West, 44.15 feet; thence,

 

42.

South 49 degrees 38 minutes 04 seconds West, 250.29 feet; thence,

 

43.

South 49 degrees 12 minutes 28 seconds West, 74.06 feet; thence,

 

44.

South 19 degrees 25 minutes 13 seconds West, 46.21 feet to the point or place of beginning.

Containing 2,077,363 square feet more or less / 47.6897 acres of land more or less as described herein.

Subject to all existing easements, rights-of-way and reservations of record.

 

A-3


LOGO

 

 

A-4


EXHIBIT B

RENTAL PLAN

(SHOWING DEMISED PREMISES)

 

LOGO

 

 

B-1


EXHIBIT C-1

Space Plan

 

LOGO

 

 

C-1-1


EXHIBIT C-2

400 Connell Drive

Berkeley Heights, New Jersey

TENANT WORKLETTER

The Connell Company (subject to Section 10.04 of the Lease, “Landlord”) and Tenant are simultaneously executing a lease of the space mentioned therein (the “Demised Premises”). To induce Tenant to enter into the Lease (which is hereby incorporated by reference to the extent that the provisions of this agreement apply thereto) and in consideration of the covenants hereinafter contained, Landlord and Tenant mutually agrees as follows:

 

1.

All terms defined in the Lease shall have the same meaning when used herein. The term “Usable Square Feet” shall refer to the square footage of the floor of the Demised Premises computed by measuring the area enclosed by: the finished surface of the office side of corridor and other permanent walls; the dominant portion or a major vertical penetration; and the center of partitions that separate the area being measured from adjoining office areas, store areas and/or Building Common Areas. No deductions shall be made for columns and projections necessary to the Building, and the above computation shall be made as if alcoves, recessed entrances or similar deviations from the corridor line were not present.

 

2.

Landlord shall provide Tenant an allowance of up to $70.00 per rentable square foot of the Demised Premises (the “Tenant Work Allowance”) against the total cost of the Tenant Work requested by Tenant in, and in connection with, the Demised Premises. The total cost of the Tenant Work shall include, without limitation, all demolition costs, all hard construction costs, all costs to connect new or newly constructed equipment to existing Building systems, as well as costs of the architects, mechanical and electrical engineers, consultants and contractors, special consultants, the solicitation and securing (including, without limitation, applications and inspections thereof) of all building permits, and all other out-of-pocket costs and expenses incurred by Landlord in connection with the Tenant Work. In the event that the total cost of Tenant Work exceeds $70.00 per rentable square foot of the Demised Premises, Landlord shall invoice Tenant for the difference, and Tenant shall pay such amount to Landlord within thirty (30) days of receipt of such invoice. The parties agree that for federal income tax purposes, with respect to all portions of the Tenant Work for which the Tenant Work Allowance was utilized, Landlord holds the depreciable interest therein and Landlord (and not Tenant) shall be entitled to take depreciation deductions in respect of the same.

 

3.

Tenant shall cause to be prepared: (i) all interior architectural design and engineering drawings, layouts and material specifications and schedules for the Demised Premises,; (ii) an estimate of the total cost of Tenant Work; (iii) all working, finished, detailed architectural and engineering construction drawings (including “as-built” drawings) and specifications for the Tenant Work and any revisions thereto (and for purposes of clarification, to the extent not encompassed by any of the foregoing, the Plans and Specifications), all to be in compliance with all applicable building codes and all other applicable laws and regulations. Except for “as-built” drawings, a copy of the foregoing shall be submitted to Landlord (prior to submission for application for construction permits) for general review and consent (which consent will not be unreasonably withheld), and Tenant shall not commence the Tenant Work until it shall have received Landlord’s consent and all required construction permits. All Tenant Work will be completed in accordance with these approved drawings and specifications, but in all cases such work

 

C-2-1


  will be completed in accordance with all applicable building codes and all other applicable laws and regulations, all other terms set forth in this Lease (including, without limitation, those set forth in this Exhibit C-2), and all building design rules and construction rules reasonably required by Landlord. The Tenant Work shall in no event interfere with building systems or with any other tenant’s use and quiet enjoyment of such tenant’s leased space in the Building. Notwithstanding any failure by Landlord to object to any such Tenant Work (or drawings or specifications relating thereto, including without limitation the Plans and Specifications), Landlord shall have no responsibility therefor (and any approval of or consent to the same by Landlord shall not relieve Tenant from its obligation to construct the Tenant Work in compliance with the terms of this Lease). Tenant agrees to save and hold Landlord harmless as provided in the Lease for said Tenant Work. At the request of Landlord, Tenant shall (i) furnish, in writing, Landlord with both the estimate and actual cost of the Tenant Work and the various components thereof, and (ii) instruct the various contractors to furnish, in writing, such information to Landlord. Tenant shall, at its own expense (but which cost can be included within the Tenant Work Allowance), provide Landlord with (a) one electronic set of drawings on a CD (preferably in AutoCAD) of 50% and/or 75% progress drawings, if issued, (b) three signed and sealed sets of drawings, one unsealed set of drawings and one electronic set of drawings on a CD (preferably in AutoCAD) when such drawings are issued for construction permits, (c) one unsealed set of drawings and one electronic set of drawings on a CD (preferably in AutoCAD) when such drawings are issued for each of (i) bid, (ii) construction and (iii) any revision or addition, and (d) one signed set and one electronic set of drawings on a CD (preferably in AutoCAD) when such drawings are as-built drawings. In connection with the Tenant Work, upon Landlord’s request, Tenant shall also provide Landlord with a copy of each payment requisition/application and all supporting documentation (including, without limitation, schedules of values, continuation sheets, evidence of progress of work and prior payments, lien waivers/releases and downstream requisitions).

Notwithstanding anything contained in this Section 3, the parties understand that with respect to the initial Tenant Work contemplated in Section 3.01 of the Lease, the design and construction thereof shall be carried out by Landlord as described in Section 3.01 of the Lease and the provisions of Section 3.01 of the Lease shall govern the preparation of such Tenant Work (and Tenant shall not be required to provide Landlord with the drawings referenced in the immediately preceding paragraph with respect to the initial Tenant Work).

 

4.   (a)

Subject to subparagraph (b) below and the other provisions hereof, Tenant shall have the right to perform its Tenant Work, provided that the Tenant uses a first- class union general contractor. Said contractor must coordinate all final connections to any Building systems with Landlord and must use the Building maintenance subcontractors for the final connections to the Building management system, fire alarm system and security system.

 

  (b)

Tenant will obtain all permits and arrange for all inspections required for occupancy, in connection with all Tenant Work. The cost of all such permits and inspections shall be included in determining the cost of Tenant Work.

 

  (c)

Notwithstanding anything contained in this Section 4, the parties understand that with respect to the initial Tenant Work contemplated in Section 3.01 of Lease, the design and construction thereof shall be carried out by Landlord as described in Section 3.01 of the Lease.

 

C-2-2


5.

The Building shall be made available by Landlord, as is, for Tenant Work with the following improvements as part of the base building construction contract. The cost of any changes required by Tenant in said improvements shall be a portion of the cost of Tenant Work.

 

  a.

Electric Load/Wattage:

 

  (i)

The Building is designed for a capacity of 2.5 watts per square foot for lights and 4 watts per square foot for business machines.

 

  (ii)

Tenant will be responsible for construction and obtaining all necessary approval for all special wiring and power distribution for Tenant’s equipment including but not limited to computer equipment and separate air conditioning related thereto.

 

  b.

Floor Decking:

Robertson Under-Floor Duct Systems for electrical and telephone/computers with presets at one per 6.25 square feet is provided in all Tenant areas.

 

  c.

Window Coverings:

The Building is supplied with installed thin line blinds on all exterior windows. Tenant shall not remove these blinds.

 

  d.

Sprinklers:

Sprinkler heads are provided in all Tenant areas in accordance with Code.

 

  e.

Heating, Ventilating and Air Conditioning:

The Building design provides sufficient capacity to maintain the following conditions in all occupied areas occupied for typical office occupancy: Indoor summer temperature of 75 degrees F.D.B., at an outside temperature of 94 degrees F.D.B.; Indoor winter temperatures of 72 degrees F.D.B. at outside temperature of 10 degrees F.D.B. Any special or supplemental exhaust or air conditioning required due to Tenant’s equipment or abnormally high occupant density will be installed only at Tenant’s expense and subject to the prior written approval of the Landlord.

 

6.

The Tenant’s interior design shall provide for at least the following Landlord minimum standards for Tenant Work:

 

  a.

Partitions:

 

  (i)

Interior partitions - Such partitions shall be 3 5/8 inch metal studs @ 24 inches o.c. with 1/2 inch gypsum wall board on each side, ceiling height.

 

  (ii)

Demising partitions - Such partitions shall be 3 5/8 inch metal studs @ 16 inches o.c. with sound-deadening insulation and 1/2 inch gypsum wallboard.

 

  b.

Doors:

All doors are to be set in 16 ga hollow metal frames.

 

C-2-3


  (i)

Tenant interior doors to be solid core, flush, birch stain grade.

 

  (ii)

Suite entry door(s) to be solid core, wood flush, stain grade veneer and/or glass entrance doors. The number of doors will be in accordance with Code.

 

  c.

Door Hardware:

All hardware shall be Schlage or equal. Locksets shall be keyed with the Building master system.

 

  d.

Flooring:

Carpeting shall be an 18” x 18” module over the trench headers in areas not requiring tile, due to the Building’s Robertson Under-Floor Duct System. Carpet in balance of space may be at Tenant’s option.

 

  e.

Painting:

(i) Walls - two coats of paint.

(ii) Doors and Frames - two coats of paint.

 

7.

Tenant shall also comply with each of the following:

(a) As of the date of this Lease, the Building is controlled by a Honeywell XL-5000 Direct Digital Control (DDC) Building Management System that allows facility personnel to monitor and control the environmental HVAC systems. Unless otherwise directed by Landlord to Tenant in writing, all mechanical systems, including, without limitation, central and supplemental heating and cooling plants, air handlers and cooling exhaust fans and VAV boxes must be networked together to optimize system operation and environmental comfort.

(b) Each of the following must be properly wired back to the Building’s fire alarm panel: alarms, strobe speakers, security card readers, electronic locks to any door, HVAC systems, and any other items which building code requires to be wired to such panel or is required by the Berkeley Heights Township inspector or fire marshall. Additional/auxiliary fire suppression devices may (subject to the terms of this Lease) be installed by Tenant but must be compatible and match existing Building fire alarm panel/system manufacturer and be wired to the Building’s main fire alarm panel. Final test/device function verification shall be performed and certified by the current building alarm system vendor and billed to Tenant.

(c) The Building has a Robertson Under-Floor electrical system. No fastenings or hard connections shall be made to the trench header or to the system that exists on each floor. The bolts and steel beams must be used for the connections referenced above. Carpet tiles must be used and trench cover plates covered to allow access.

(d) No core boring through floors shall be permitted unless authorized by Landlord.

 

C-2-4


(e) All other tenant design specifications and construction rules that Landlord may from time to time furnish to Tenant.

 

C-2-5


EXHIBIT D

400 Connell Drive

Rules and Regulations

1. Landlord reserves the right to control and operate the Common Area.

2. Tenant shall not obstruct the entrances, exits, corridors, elevators and stairways of the Building and Tenant shall not use or permit their use for any purpose other than ingress to or egress from the Demised Premises. Fire exits are for emergency use only.

3. Landlord may, from time to time, adopt appropriate procedures for the security or safety of the Building and Tenant shall comply with such procedures. Landlord may refuse admission to the Building to any person not properly identified, or to any person whose presence, in Landlord’s judgment, would be prejudicial to the safety, character, reputation and interests of the Building or its tenants. Landlord may limit or restrict access to the Building outside Business Hours (as herein defined) and Tenant shall comply with such off-hours procedures as Landlord may establish. Landlord shall in no way be liable to any Tenant for damages or loss arising from the admission, exclusion or ejection of any person to or from the Building or the Demised Premises.

4. Tenant shall not install awnings, shades or other coverings on or in any window of the Building or on any terrace. Tenant shall use only such window blinds as Landlord has supplied and Tenant shall not remove them. Tenant shall cooperate with Landlord in the efficient operation of the Building’s air conditioning system by lowering the window blinds in the Demised Premises, as required. Tenant shall keep window sills in the Demised Premises in a neat and orderly appearance and shall not hang items from the ceilings so as to be visible from the exterior of the Building.

5. The Building “Business Hours” (hereinafter so called), excluding the cafeteria, shall be 8 AM to 6 PM on all days except weekends and Holidays. The following days shall be considered Building Holidays:

New Year’s Day

Presidents’ Day

Martin Luther King Jr. Day

Memorial Day

Fourth of July

Labor Day

Thanksgiving Day

Day after Thanksgiving

Christmas Day

Landlord reserves the right to modify the list of Building Holidays.

Landlord shall not furnish janitorial and other services on Building Holidays. At Tenant’s request, Landlord shall provide such services on Building Holidays at Tenant’s sole expense.

6. During Business Hours, Landlord shall provide, at Landlord’s expense and as part of the Rent, electricity for Tenant’s HVAC and Common Area usage. On weekends and Holidays, the Building will be heated or cooled for Tenant only upon special request of Tenant. If Tenant requires electricity for HVAC or Common Area usage outside Business Hours or on weekends or Holidays, Landlord shall furnish same at Tenant’s request and at Tenant’s expense as follows. Each

 

D-1


hour or fraction thereof shall be charged to Tenant at the rate of seventy-five dollars ($75.00) per hour for Tenant premises of 40,000 square feet or less and an additional seventy-five dollars ($75.00) per hour for each additional 40,000 rentable square feet or fraction thereof, with a minimum charge of four (4) hours. Tenant shall pay such charges to Landlord monthly together with Rent. The hourly rate may be adjusted if the utility’s charge to Landlord is increased. If Tenant does not notify Landlord prior to its usage of electricity as set forth in this paragraph, Landlord shall estimate Tenant’s usage and shall charge Tenant accordingly.

7. Tenant shall not use or permit the use of hand trucks in the Common Area unless they are equipped with rubber tires and side guards.

8. The entrance doors to the Demised Premises shall not be left open at any time and shall be locked when Tenant is not in the Demised Premises.

9. Tenant shall not make or permit to be made any noise, including the playing of musical instruments, radio or television, which in the Landlord’s judgment may disturb other tenants. Tenant shall not bring into or keep in the Demised Premises anything which may impair or interfere with any of the Building services, heating or cleaning of the Building, including, without limitation, ventilating, air conditioning, electrical or other equipment. Tenant shall not bring any dangerous, inflammable, combustible or explosive objects or materials into the Building or any Common Area.

10. Tenant shall not permit any cooking on the Demised Premises.

11. Tenant shall not discharge or permit any acids, vapors or other materials to be discharged into the waste lines, vents or flues of the Building. Tenant shall not use the water, wash closets and other plumbing fixtures in or servicing the Demised Premises for any purpose other than for which they were designed and constructed nor shall Tenant deposit any sweepings, rubbish, rags, acids or other foreign substances therein. Tenant shall be liable for any damage resulting from negligence or misuse by Tenant, its agents, employees, servants, permitted subtenants and assignees, contractors or subcontractors, visitors or licensees.

12. Tenant may not install or maintain any sign, advertisement or notice in or at the Real Estate or visible from the outside of the Real Estate without the prior written consent of the Landlord. If Tenant installs such sign, advertisement or notice, Landlord may remove same at Tenant’s expense. Tenant may identify its business name by lettering on the entrance door to the Demised Premises pursuant to the terms of the Lease. Tenant may display its name, location and such reasonable number of the principal officers and employees of Tenant as Landlord in its sole discretion may approve in the Building directory provided by Landlord in the first-floor Lobby of the Building.

13. Neither the Demised Premises, nor the Common Areas shall be used by Tenant, any affiliates thereof or any of their respective employees, representatives, agents or servants, at any time, as a store, restaurant, shoe-shine or other stand, or for manufacturing or other similar purposes or otherwise in any manner prohibited by the Lease.

14. Tenant’s requirements will be attended to upon application at Landlord’s offices. Landlord’s employees shall not perform any work or do anything outside their regular duties for Tenant unless under special instructions from Landlord’s office and at the expense of Tenant.

15. Tenant shall be responsible for providing electricity and other utility services (excluding HVAC) for Landlord’s agents, employees, representatives, servants or contractors who are performing janitorial and cleaning services or repairs or alterations to the Demised Premises.

 

D-2


16. Tenant’s employees, representatives, agents or servants shall not loiter in and around the Parking Area, halls, stairways, elevators, entrances, roof or any other part of the Building or Common Areas.

17. Landlord shall provide periodic extermination services throughout the Building, and Tenant shall provide Landlord with access to the Demised Premises during Business Hours upon reasonable prior notice for the purpose of performing such services. If, in the sole opinion of the Landlord additional extermination is required in the Demised Premises, Landlord shall arrange for exterminators, at Tenant’s expense.

18. Landlord shall provide, at its expense, those cleaning services set forth in the Building Janitorial Specifications during weekdays (excluding Holidays) between the hours of 6 PM and 11 PM. Upon Tenant’s request, Landlord shall provide cleaning services on weekends, Holidays or at other hours, at Tenant’s sole expense.

19. Tenant shall not in any way deface any part of the Building or the Demised Premises. Tenant shall not install linoleum or other similar floor covering without affixing an interlining of builder’s deadening felt to the floor by paste or other water soluble material; the use of cement or similar adhesive is expressly prohibited. Tenant shall not place equipment, desks, files or other heavy objects on any trench header in the floor in the Demised Premises.

20. Tenant shall not place any additional locks or bolts on the doors of the Demised Premises nor shall Tenant change or replace any existing locks. Upon Tenant’s request, new locks will be installed or changed by Landlord at Tenant’s expense; any new locks will remain operable by Landlord’s Master Key. Upon termination of the tenancy, Tenant shall deliver to Landlord all keys to the Demised Premises and Building which Landlord has furnished to Tenant. In the event of loss, Tenant shall pay to Landlord the cost of replacing the keys.

21. Canvassing, peddling, soliciting and distributing handbills or other written materials are prohibited in the Building.

22. Landlord may designate certain places in the Parking Area for visitor, reserved, handicapped or emergency parking.

23. Landlord may create paths, walks or other means of cross access through the Real Estate to other properties of the Landlord.

24. Tenant, its employees, agents or servants, shall not conduct itself in any manner inconsistent with the character of the Building or which will impair the comfort and convenience of other tenants in the Building.

25. The following apply to use of the fitness center, locker rooms, game room area, and related amenity areas located in the Building (the “Fitness Area”):

 

  (i)

BY HIS/HER USE OF THE FITNESS AREA, THE USER (A) ACKNOWLEDGES THAT USE OF THE FITNESS AREA MAY INVOLVE THE RISK OF SERIOUS BODILY INJURY OR EVEN DEATH, AND THAT THE USER HAS HAD SUCH PHYSICAL EXAMINATIONS AS DEEMED NECESSARY AND THAT THE USER HAS DETERMINED THAT HE/SHE IS IN SUCH PHYSICAL CONDITION AS TO PERMIT HIS/HER SAFE USE OF THE FITNESS AREA AND (B) ACKNOWLEDGES THAT HIS/HER USE OF THE FITNESS AREA IS AT HIS/HER OWN RISK.

 

D-3


  (ii)

The Fitness Area may be used only by employees of tenants and subtenants of the Building and Building 300 who, in either case, work in the Building or Building 300 and who have executed a Release and Waiver Form described below. Guests are not permitted to use the Fitness Area, nor are independent contractors of a tenant or subtenant. No persons under the age of 18 may use the Fitness Area. For purposes of emphasis, and notwithstanding anything to the contrary in the foregoing, nothing in these Rules and Regulations shall limit Landlord’s right to allow persons who are not tenants (or employees of tenants) at either the Building or Building 300 from using the Fitness Center on terms determined by Landlord in its sole discretion.

 

  (iii)

Access to the Fitness Area is via access card. Card access for a particular employee of a tenant in the Building and/or Building 300 will be enabled when the office manager of such tenant advises Landlord of such employee’s name and provides such employee’s existing building access card number (or, if they do not have an existing key card, Landlord will furnish one), but only if and after such employee has executed the release and waiver form furnished by Landlord to Tenant (the “Release and Waiver Form”). Tenant is responsible for retaining all the Release and Waiver Forms executed by its employees. If Landlord requests a copy of any executed Release and Waiver Form, Tenant shall promptly furnish the same to Landlord. If any employee of a Tenant who has received card access to the Fitness Area as provided above thereafter is no longer employed by Tenant or no longer works in either the Building or Building 300, Tenant shall be responsible for informing Landlord of such termination to ensure that card access to the Fitness Area can be revoked.

 

  (iv)

Users of the Fitness Area must check in at the membership scan located in the Fitness Area before each use.

 

  (v)

The Fitness Area is open Monday-Friday from 5:00 a.m. to 10:00 p.m., and on Saturdays and Sundays from 6:00 a.m. to 7:00 p.m. (in each case excluding Building Holidays). Notwithstanding the foregoing, the hours the Fitness Area is open may be modified by Landlord from time to time in Landlord’s sole discretion (and any such change in hours may be communicated in such manner as Landlord chooses, including the posting of signage at the Fitness Area).

 

  (vi)

Appropriate attire and footwear must be worn in the Fitness Area.

 

  (vii)

Smoking is not permitted in the Fitness Area.

 

  (viii)

No food or beverages, except water, are permitted in the Fitness Area.

 

  (ix)

Alcoholic beverages are prohibited in the Fitness Area.

 

  (x)

No glass containers are permitted in the Fitness Area.

 

  (xi)

No person shall leave any litter, trash, debris or articles of clothing in the Fitness Area.

 

  (xii)

Any conduct which unreasonably interferes with the use or enjoyment of the Fitness Area by other users, or disrupts or interferes with the normal, safe, orderly and efficient operation of the Fitness Area, is prohibited. Radios, tape recorders or other similar personal audio equipment may not be used without headphones (except by class instructors in connection with classes approved by Landlord). Use of cameras and recording devices is prohibited in the Fitness Area.

 

D-4


  (xiii)

Equipment and machines in the Fitness Area are to be utilized in only the manner and for the purpose which they are designed.

 

  (xiv)

The Fitness Area may be unmanned and unsupervised. Users of the Fitness Area should not rely in any way on any employees or agents of Landlord, who may be present at any time in the Fitness Area or otherwise, for health, fitness or medical assistance or advice.

 

  (xv)

Locks are provided on the lockers in the locker rooms. Notwithstanding the foregoing, Landlord and its agents assume no responsibility for personal possessions left in the Fitness Area, including in any lockers (locked or otherwise), and assume no responsibility for lost or stolen property. Lockers shall be used during exercise sessions only. Landlord reserves the right to remove possessions left in the Fitness Area overnight.

 

  (xvi)

Each user is responsible for any damage to the Fitness Area caused by such user.

 

  (xvii)

Users must abide by the provisions of any posted signs in the Fitness Area.

 

  (xviii)

Users must immediately notify Building security, at (908) 771-0245 in the event they discover any unsafe or hazardous defect or condition relating to equipment in the Fitness Area, or any breakage, fire or disorder at the Fitness Area.

 

  (xix)

Landlord reserves the right to remove anyone from the Fitness Area or terminate access if the rules set forth herein are not followed.

 

D-5


EXHIBIT E

BUILDING JANITORIAL SPECIFICATIONS

TENANT OFFICE AREAS

 

Daily:

(Monday through Friday, HOLIDAYS excepted)

 

  1.

Remove all trash to designated area.

 

  2.

Spot clean glass areas to remove soil and smudges.

 

  3.

Clean drinking fountains.

 

  4.

Dust mop or vacuum uncarpeted areas using a large treated dust mop.

 

  5.

Remove fingermarks and smudges from doors and wall surfaces.

 

  6.

Vacuum all carpeted areas using beater bar or brush vacuum cleaner. All carpeted areas policed and all surface debris removed.

 

  7.

Dust exposed areas within hand reach with treated cloths.

 

  8.

Damp mop floor and wash counters in kitchenettes.

 

  9.

Replace trash bags in garbage cans.

Weekly:

 

  1.

Spot clean walls, carpeting, partitions, fixtures, and doors.

Monthly:

 

  1.

Wipe wastepaper baskets to remove evident soil.

Quarterly:

 

  1.

Dust all areas above hand-high reach with treated cloths, excluding ceilings and light fixtures.

 

  2.

Vacuum all air supply and exhaust diffusers.

Every Six Months:

 

  1.

Dust all blinds.

 

  2.

Wash all exterior windows, inside and outside.

 

E-1


Overall:

Tenants requiring services in excess of or more frequently than those described above or services on Holidays, weekends, or before or after the building’s Business Hours shall request same through Landlord. All such services shall be provided at Tenant’s expense.

Lavatories

Sweep and wash all lavatory floors with disinfectant nightly.

Clean mirrors, shelves, brightwork, and plumbing work nightly.

Wash and disinfect basins, bowls and urinals daily.

Empty and clean waste receptacles and fill wash dispensers with appropriate tissues, towels and soap nightly. Sanitary napkin receptacles emptied, cleaned and disinfected.

Wash and disinfect tile walls and dividing partitions weekly.

Janitorial Closets and Storage Areas

Clean and store Mops.

Clean sinks and drains free of mop strings an other debris.

Turn off lights and close and lock doors.

Clean equipment.

Main Lobby, Atrium Areas, Elevators, and Corridors

Wipe and wash all floors in main lobby nightly.

Wipe walls and vacuum elevator floor nightly.

Sweep and/or vacuum all hallway corridors stairwells, landings and handrails daily.

Remove fingermarks and smudges from doors, glass, and wall surfaces nightly.

Shampoo carpeting in public lobbies and corridors monthly and spot clean nightly to remove stains.

Clean compactor room nightly.

Wash walls in corridors and lobbies not reached in general cleaning annually.

 

E-2


EXHIBIT F

COMMENCEMENT DATE ADDENDUM

Reference is made to the Lease dated as of February 4, 2025 (the “Lease”) between THE CONNELL COMPANY (“Landlord”) and KALARIS THERAPEUTICS, INC. (“Tenant”). Pursuant to Section 2.01 of the Lease, Landlord and Tenant are entering into this addendum to the Lease to confirm the date of the Commencement Date under the Lease.

Landlord and Tenant hereby confirm that the Commencement Date of the Lease is ____________________.

The parties agree that this addendum is intended solely to confirm the date of the Commencement Date under the Lease, and this addendum shall not in any way affect or modify any of the terms of the Lease.

 

THE CONNELL COMPANY
By:  

   

Name:  

 

Title:  

 

Date:  

 

KALARIS THERAPEUTICS, INC.
By:  

 

Name:  

 

Title:  

 

Date:  

 

 

F-1


EXHIBIT G

APPROVED FORM OF LETTER OF CREDIT

 

     Effective Date:    
     L/C No.:        

 

 

Beneficiary:

The Connell Company

300 Connell Drive

Berkeley Heights, New Jersey 07922

  

Amount:

USD $     

We hereby establish this Irrevocable Letter of Credit No. __________ for U.S. Dollars __________, in your favor as Beneficiary for the account of KALARIS THERAPEUTICS, INC. [insert address] (“Kalaris”). Please be advised that this Letter of Credit supports Kalaris’s obligations under the Lease Agreement dated as of __________, 202[_] (as may be amended from time to time, the “Lease”) between The Connell Company, as Landlord, and Kalaris, as Tenant. This Letter of Credit will have a stated expiration date of [insert date which is one year from the Effective Date], subject to the automatic extension as provided below.

The funds under this Letter of Credit are available to Beneficiary from time to time up to the available amount as provided in this Letter of Credit (less any drawings hereunder) against presentation of your draft at sight drawn on [insert name of issuing bank] when accompanied by the following document:

Beneficiary’s written, signed and dated statement, signed by one of its purported authorized signatories, reading as follows:

“The undersigned being duly authorized to make this statement does hereby state that we are drawing USD……..under Irrevocable Letter of Credit No. __________ because KALARIS THERAPEUTICS, INC. (“Kalaris”)is in default under the terms of the Lease Agreement dated as of __________, 2024 (as amended as of the date hereof) between The Connell Company, as Landlord, and Kalaris, as Tenant (the “Lease”); any period for the cure of such default under the Lease having expired; and the amount being drawn represents but does not exceed the amount due and owing under the Lease.”

You may draw hereunder for the full available amount, or for lesser amounts from time to time, as you may determine.

The expiration date of this Letter of Credit shall be automatically extended for an additional period of one year from the present or each future expiration date, unless at least 30 days prior to such date the Beneficiary receives from us notice in writing by registered mail or hand delivery at the above address, that we elect not to renew this Letter of Credit for such additional period. If the expiration date of this Letter of Credit is extended as provided above, the amount available under this Letter of Credit during such one year period covered by such extension shall equal the amount available immediately prior to such extension. Upon Beneficiary’s receipt of such notice of non-extension, Beneficiary may (within the then applicable expiration date) draw hereunder by presentation to us of your draft, drawn at sight, for an amount not to exceed the balance remaining under this Letter of Credit, accompanied by Beneficiary’s written, signed and dated statement, signed by one of its purported authorized signatories, reading as follows:

 

G-1


“The undersigned being duly authorized to make this statement does hereby state that we are drawing USD……..under Irrevocable Letter of Credit No. __________ because we have received notice from [insert name of issuing bank] of its decision not to extend Letter of Credit Number __________ for an additional year.”

This Letter of Credit may be transferred by The Connell Company (or its successors or assigns) provided that a transfer form, in the form attached hereto, is provided to [insert name of issuing bank].

All correspondence and any drawings presented in connection with this Letter of Credit must only be presented to us at [insert name and address of issuing bank].

We hereby engage with you that all drafts drawn under and in compliance with the terms of this Letter of Credit will be duly honored if drawn and presented for payment as indicated above on or before the expiration date of [insert date one year from Effective Date] or any automatically extended expiration date as provided herein above.

This Letter of Credit is subject to the Uniform Customs and Practice For Documentary Credits (1993 Revision) International Chamber of Commerce Publication No. 500.

 

Yours Truly,
[NAME OF ISSUING BANK]

 

Authorized Signature

 

G-2


Transfer form

[Date]

[Insert name and address of issuing bank]

 

  Re:

Letter of Credit No. ____________

Issued by: [name of issuing bank]

Ladies and Gentlemen:

For value received, the undersigned beneficiary hereby irrevocably transfers to:

[name of transferee]

[address]

all rights of the undersigned beneficiary to draw under the above Letter of Credit in its entirety.

By this transfer, all rights of the undersigned beneficiary in such Letter of Credit are transferred to the transferee and the transferee shall have the sole rights as beneficiary thereof, including sole rights relating to any amendments, whether increases or extensions or other amendments and whether now existing or hereafter made. All amendments are to be advised direct to the transferee without necessity of any consent of or notice to the undersigned beneficiary.

The original of such Letter of Credit is returned herewith, and we ask you to endorse the transfer on the reverse hereof, and forward it direct to the transferee with your customary notice of transfer.

 

very truly yours

 

signature of beneficiary

 

G-3


EXHIBIT G-1

APPROVED FORM OF LETTER OF CREDIT

IRREVOCABLE STANDBY LETTER OF CREDIT NUMBER ____________

ISSUE DATE: ____________

ISSUING BANK:

FIRST-CITIZENS BANK & TRUST COMPANY

3003 TASMAN DRIVE

2ND FLOOR, MAIL SORT HF210

SANTA CLARA, CALIFORNIA 95054

BENEFICIARY:

THE CONNELL COMPANY

300 CONNELL DRIVE

BERKELEY HEIGHTS

NEW JERSEY 07922

APPLICANT:

KALARIS THERAPEUTICS, INC.

628 MIDDLEFIELD ROAD

PALO ALTO, CA 94301

AMOUNT: US$500,000.00 (FIVE HUNDRED THOUSAND AND 00/100 U.S. DOLLARS)

EXPIRATION DATE: ONE YEAR FROM ISSUANCE DATE

PLACE OF EXPIRATION:   ISSUING BANK’S COUNTERS AT ITS ABOVE ADDRESS

DEAR SIR/MADAM:

WE HEREBY ESTABLISH THIS IRREVOCABLE LETTER OF CREDIT NO. SVBFS ____________ FOR U.S. DOLLARS USD$500,000.00 (FIVE HUNDRED THOUSAND AND 00/100 U.S. DOLLARS), IN YOUR FAVOR AS BENEFICIARY FOR THE ACCOUNT OF KALARIS THERAPEUTICS, INC. 628 MIDDLEFIELD ROAD, PALO ALTO, CA. 94301 (“KALARIS”). THIS LETTER OF CREDIT IS ISSUED TO SUPPORTS KALARIS’S OBLIGATIONS UNDER THE LEASE AGREEMENT DATED AS OF ____________, 202[_] (AS MAY BE AMENDED FROM TIME TO TIME, THE “LEASE”) BETWEEN THE CONNELL COMPANY, AS LANDLORD, AND KALARIS, AS TENANT. THIS LETTER OF CREDIT EXPIRES ON ____________, SUBJECT TO THE AUTOMATIC EXTENSION AS PROVIDED BELOW.

THE FUNDS UNDER THIS LETTER OF CREDIT ARE AVAILABLE TO BENEFICIARY FROM TIME TO TIME UP TO THE AVAILABLE AMOUNT AS PROVIDED IN THIS LETTER OF CREDIT (LESS ANY DRAWINGS HEREUNDER) AGAINST PRESENTATION OF YOUR DRAFT(S) AT SIGHT DRAWN ON FIRST-CITIZENS BANK & TRUST COMPANY WHEN ACCOMPANIED BY THE FOLLOWING DOCUMENT:

BENEFICIARY’S WRITTEN, SIGNED AND DATED STATEMENT, SIGNED BY AN AUTHORIZED SIGNATORIES, READING AS FOLLOWS:

 

G-4


“THE UNDERSIGNED BEING DULY AUTHORIZED TO MAKE THIS STATEMENT DOES HEREBY CERTIFY THAT WE ARE DRAWING USD……..UNDER IRREVOCABLE LETTER OF CREDIT NO. SVBFS ____________ EITHER BECAUSE KALARIS THERAPEUTICS, INC. (“KALARIS”) IS IN DEFAULT UNDER THE TERMS OF, OR BECAUSE THE UNDERSIGNED IS OTHERWISE AUTHORIZED BY THE EXPRESS TERMS OF, THE LEASE AGREEMENT DATED AS OF ____________, 2024 (AS AMENDED AS OF THE DATE HEREOF) BETWEEN THE CONNELL COMPANY, AS LANDLORD, AND KALARIS, AS TENANT (THE “LEASE”); ANY PERIOD FOR THE CURE OF SUCH DEFAULT UNDER THE LEASE, AS APPLICABLE, HAVING EXPIRED; AND THE AMOUNT BEING DRAWN REPRESENTS BUT DOES NOT EXCEED THE AMOUNT DUE AND OWING UNDER, OR WHICH LANDLORD IS AUTHORIZED TO DRAW IN ACCORDANCE WITH, THE LEASE.”

PARTIAL DRAWS AND MULTIPLE PRESENTATIONS ARE ALLOWED.

FACSIMILE PRESENTATIONS ARE ALSO PERMITTED. EACH FACSIMILE TRANSMISSION SHALL BE MADE AT: (408) 496-2418 OR (408) 969-6510; AND UNDER CONTEMPORANEOUS TELEPHONE ADVICE TO: (408) 450-5001 OR (408) 654-7176, ATTENTION: GLOBAL TRADE FINANCE. ABSENCE OF THE AFORESAID TELEPHONE ADVICE SHALL NOT AFFECT OUR OBLIGATION TO HONOR ANY DRAW REQUEST.

THIS LETTER OF CREDIT SHALL BE AUTOMATICALLY EXTENDED FOR ADDITIONAL PERIODS OF ONE YEAR, WITHOUT AMENDMENT, FROM THE PRESENT OR EACH FUTURE EXPIRATION DATE UNLESS AT LEAST THIRTY (30) DAYS PRIOR TO THE THEN CURRENT EXPIRATION DATE WE SEND TO YOU (BENEFICIARY) A NOTICE BY REGISTERED OR CERTIFIED MAIL OR OVERNIGHT COURIER SERVICE AT YOUR ABOVE ADDRESS THAT THIS LETTER OF CREDIT WILL NOT BE EXTENDED BEYOND THE THEN CURRENT EXPIRATION DATE. IN NO EVENT SHALL THIS LETTER OF CREDIT BE AUTOMATICALLY EXTENDED BEYOND [INSERT DATE THAT IS AT LEAST 60 DAYS AFTER THE SCHEDULED EXPIRATION DATE, INCLUDING ANY AVAILABLE RENEWAL TERMS]_[ ____________]. IN THE EVENT WE SEND SUCH NOTICE OF NON-EXTENSION, YOU MAY DRAW THE ENTIRE AMOUNT AVAILABLE HEREUNDER BY YOUR PRESENTATION TO US OF YOUR SIGNED AND DATED STATEMENT STATING THAT YOU HAVE RECEIVED A NON-EXTENSION NOTICE FROM FIRST-CITIZENS BANK & TRUST COMPANY IN RESPECT OF LETTER OF CREDIT NO. SVBFS ____________, YOU ARE DRAWING ON SUCH LETTER OF CREDIT FOR US$ ____________, AND YOU HAVE NOT RECEIVED A REPLACEMENT LETTER OF CREDIT OF SUBSTANTIALLY SIMILAR TERMS.

THIS LETTER OF CREDIT IS TRANSFERABLE IN WHOLE BUT NOT IN PART ONE OR MORE TIMES, BUT IN EACH INSTANCE ONLY TO A SINGLE BENEFICIARY AS TRANSFEREE AND FOR THE THEN AVAILABLE AMOUNT, ASSUMING SUCH TRANSFER TO SUCH TRANSFEREE WOULD BE IN COMPLIANCE WITH THEN APPLICABLE LAW AND REGULATION, INCLUDING BUT NOT LIMITED TO THE REGULATIONS OF THE U.S. DEPARTMENT OF TREASURY AND U.S. DEPARTMENT OF COMMERCE. AT THE TIME OF TRANSFER, THE ORIGINAL LETTER OF CREDIT AND ORIGINALS OR COPIES OF ALL AMENDMENTS, IF ANY, TO THIS LETTER OF CREDIT MUST BE SURRENDERED TO US AT OUR ADDRESS INDICATED IN THIS LETTER OF CREDIT TOGETHER WITH OUR TRANSFER FORM ATTACHED HERETO AS EXHIBIT A DULY EXECUTED. APPLICANT SHALL PAY OUR TRANSFER FEE 14 OF OF 1% OF THE TRANSFER AMOUNT (MINIMUM US$250.00) UNDER THIS LETTER OF CREDIT, PROVIDED, HOWEVER, THAT ANY FAILURE OR DELAY BY APPLICANT IN PAYING SUCH TRANSFER FEE SHALL NOT AFFECT OR DELAY IN ANY MANNER THE APPLICABLE TRANSFER. EACH TRANSFER SHALL BE EVIDENCED BY EITHER (1) OUR ENDORSEMENT ON THE REVERSE OF THE LETTER OF CREDIT AND WE SHALL FORWARD THE ORIGINAL OF THE LETTER OF CREDIT SO ENDORSED TO THE TRANSFEREE OR (2) OUR ISSUING A REPLACEMENT LETTER OF CREDIT TO THE TRANSFEREE ON SUBSTANTIALLY THE SAME TERMS AND CONDITIONS AS THE TRANSFERRED LETTER OF CREDIT (IN WHICH EVENT THE TRANSFERRED LETTER OF CREDIT SHALL HAVE NO FURTHER EFFECT).

 

G-5


ALL CORRESPONDENCE AND ANY DRAWINGS PRESENTED IN CONNECTION WITH THIS LETTER OF CREDIT MUST BE PRESENTED TO US AT FIRST-CITIZENS BANK & TRUST COMPANY, 3003 TASMAN DRIVE, 2ND FLOOR, MAILSORT HF-210, SANTA CLARA, CA. 95054 ATTN: GLOBAL TRADE SERVICES. AS USED IN THIS LETTER OF CREDIT, “BUSINESS DAY” SHALL MEAN ANY DAY OTHER THAN A SATURDAY, SUNDAY OR A DAY ON WHICH BANKING INSTITUTIONS IN THE STATE OF CALIFORNIA ARE AUTHORIZED OR REQUIRED BY LAW TO CLOSE.

WE HEREBY ENGAGE WITH YOU THAT ALL DRAFTS DRAWN UNDER AND IN COMPLIANCE WITH THE TERMS OF THIS LETTER OF CREDIT WILL BE DULY HONORED IF DRAWN AND PRESENTED FOR PAYMENT AS INDICATED ABOVE ON OR BEFORE THE EXPIRATION DATE OF ____________ OR ANY AUTOMATICALLY EXTENDED EXPIRATION DATE AS PROVIDED HEREIN ABOVE.

IF ANY INSTRUCTIONS ACCOMPANYING A DRAWING UNDER THIS LETTER OF CREDIT REQUEST THAT PAYMENT IS TO BE MADE BY TRANSFER TO YOUR ACCOUNT WITH ANOTHER BANK, WE WILL ONLY EFFECT SUCH PAYMENT BY FED WIRE TO A U.S. REGULATED BANK.

THIS LETTER OF CREDIT IS SUBJECT TO THE INTERNATIONAL STANDBY PRACTICES (ISP98), INTERNATIONAL CHAMBER OF COMMERCE, PUBLICATION NO. 590.

FIRST-CITIZENS BANK & TRUST COMPANY

 

                       

AUTHORIZED SIGNATURE

 

G-6


IRREVOCABLE STANDBY LETTER OF CREDIT NUMBER    

EXHIBIT A

FORM OF TRANSFER FORM

DATE:

 

TO:  FIRST-CITIZENS BANK & TRUST COMPANY

3003 TASMAN DRIVE

SANTA CLARA, CA 95054

ATTN: GLOBAL TRADE FINANCE

SANTA CLARA

STANDBY LETTERS OF CREDIT

  

RE: IRREVOCABLE STANDBY LETTER OF CREDIT

NO.       ISSUED BY

FIRST-CITIZENS BANK & TRUST COMPANY,

 

L/C AMOUNT:    

LADIES AND GENTLEMEN:

FOR VALUE RECEIVED, THE UNDERSIGNED BENEFICIARY HEREBY IRREVOCABLY TRANSFERS TO:

 

 

(NAME OF TRANSFEREE)

 

 

(ADDRESS)

ALL RIGHTS OF THE UNDERSIGNED BENEFICIARY TO DRAW UNDER THE ABOVE LETTER OF CREDIT UP TO ITS AVAILABLE AMOUNT AS SHOWN ABOVE AS OF THE DATE OF THIS TRANSFER.

BY THIS TRANSFER, ALL RIGHTS OF THE UNDERSIGNED BENEFICIARY IN SUCH LETTER OF CREDIT ARE TRANSFERRED TO THE TRANSFEREE. TRANSFEREE SHALL HAVE THE SOLE RIGHTS AS BENEFICIARY THEREOF, INCLUDING SOLE RIGHTS RELATING TO ANY AMENDMENTS, WHETHER INCREASES OR EXTENSIONS OR OTHER AMENDMENTS, AND WHETHER NOW EXISTING OR HEREAFTER MADE. ALL AMENDMENTS ARE TO BE ADVISED DIRECTLY TO THE TRANSFEREE WITHOUT NECESSITY OF ANY CONSENT OF OR NOTICE TO THE UNDERSIGNED BENEFICIARY.

THE ORIGINAL OF SUCH LETTER OF CREDIT IS RETURNED HEREWITH, AND WE ASK YOU TO EITHER (1) ENDORSE THE TRANSFER ON THE REVERSE THEREOF, AND FORWARD IT DIRECTLY TO THE TRANSFEREE WITH YOUR CUSTOMARY NOTICE OF TRANSFER, OR (2) ISSUE A REPLACEMENT LETTER OF CREDIT TO THE TRANSFEREE ON SUBSTANTIALLY THE SAME TERMS AND CONDITIONS AS THE TRANSFERRED LETTER OF CREDIT (IN WHICH EVENT THE TRANSFERRED LETTER OF CREDIT SHALL HAVE NO FURTHER EFFECT).

 

SINCERELY,

 

(BENEFICIARY’S NAME)

 

(SIGNATURE OF BENEFICIARY)

 

(NAME AND TITLE)

 

AUTHORIZED SIGNATURE

  

SIGNATURE AUTHENTICATED

 

The name(s), title(s), and signature(s) conform to that/those on file with us for the company and the signature(s) is/are authorized to execute this instrument.

 

(Name of Bank)

 

(Address of Bank)

 

(City, State, ZIP Code)

 

(Authorized Name and Title)

 

(Authorized Signature)

 

(Telephone number)

 

G-7