Exhibit 10.38
NET GROUND LEASE AGREEMENT BETWEEN
CHICAGO EXECUTIVE AIRPORT
AND
PWK HANGARS LLC
AT
CHICAGO EXECUTIVE AIRPORT
TABLE OF CONTENTS
|
1. |
Leasehold; Access; Term; Size |
1 |
|
2. |
Leasehold Phases |
2 |
|
3. |
Phase Development |
2 |
|
4. |
Phase Construction Timeline |
3 |
|
5. |
Use of Premises |
4 |
|
6. |
Condition of Premises |
6 |
|
7. |
Rent; Security Deposit |
6 |
|
8. |
Repair and Maintenance |
8 |
|
9. |
Improvements |
8 |
|
10. |
Services and Utilities |
10 |
|
11. |
Taxes and Assessments |
11 |
|
12. |
Insurance |
12 |
|
13. |
Indemnification |
12 |
|
14. |
Governmental Requirements |
13 |
|
15. |
Signs and Lighting |
13 |
|
16. |
Nondiscrimination |
14 |
|
17. |
Assignment, Mortgage or Subletting |
15 |
|
18. |
Damage or Destruction |
19 |
|
19. |
Lessee’s Default and Lessor’s Remedies |
19 |
|
20. |
Lessor’s Default’s and Lessee’s Remedies |
21 |
|
21. |
Reservation of Aviation Easement and Aerial Approach |
21 |
|
22. |
Limitations of Rights and Privileges Granted |
22 |
|
23. |
Condemnation |
22 |
|
24. |
Subordination |
22 |
|
25. |
Rates and Charges; Operation of Airport |
22 |
|
26. |
National Emergency |
23 |
|
27. |
F.A.A. and Airport Instruments |
23 |
|
28. |
Laws, Rules, Regulations, Ordinances and Environmental Laws |
23 |
|
29. |
Surrender of Premises by Lessee |
25 |
|
30. |
Right of Entry Reserved |
25 |
|
31. |
Financial Statements and Reports |
25 |
|
32. |
Security |
26 |
|
33. |
General Provisions |
26 |
NET GROUND LEASE AGREEMENT
This Net Ground Lease Agreement (“Lease”) made to be effective as of the __ day of __, 2023 (“Effective Date”), by and among: the Chicago Executive Airport, an Illinois Municipal Corporation having offices at 1020 South Plant Road, Wheeling, IL 60090 (hereinafter “Lessor”), and PWK Hangars LLC a Delaware Limited Liability Company having offices at 136 Tower Road, Suite 205, Westchester County Airport, White Plains, NY 10604 (hereinafter “Lessee”). Either Lessor or Lessee may be individually referred to herein as a “Party” and collectively “the Parties.” Lessee’s Federal Employer Identification Number is 85-2732947.
WITNESSETH:
|
1. |
Leasehold; Access; Term; Size |
|
a. |
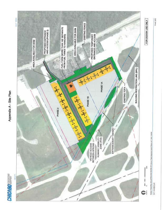
Leasehold. The Lessor does hereby lease to the Lessee and the Lessee does hereby lease from the Lessor a parcel of land situated at Chicago Executive Airport (“Airport”), Wheeling, Illinois, the description of which is set forth upon Exhibit A attached hereto (hereinafter “Premises”). All of the Premises are situated on the Airport. The Parties acknowledge and agree that the leased Premises shall be divided into two (2) separate parcels known as the Phase 1 Parcel (“Phase 1 Parcel”), and the Phase 2 Parcel (“Phase 2 Parcel”), as described in Exhibit A. |
|
b. |
Access To Premises. Lessee shall have access to the Premises over the public roads on the Airport and may use said public roads and other areas on the Airport designated by the Lessor as common areas on a nonexclusive basis. Lessor may at any time close or restrict said roadways or common areas to effect construction, repair, alterations, or additions to the Airport and may do such other acts in and to said roads and common areas as in the Lessor’s judgment may be desirable; provided, that such actions shall not unreasonably impede ingress and egress from the Premises. |
|
c. |
Term. The Parties hereby agree to a fifty (50) year lease term subject to the phased arrangement set forth in Section 2. The term of this Lease is for a period commencing on the date the Parties agree to exact location of Phase 1 to be reflected on a survey containing the legal description (“Commencement Date”) and ending six hundred (600) months thereafter (“Term”), unless sooner terminated pursuant hereto. The Commencement Date shall be memorialized in a written notice of commencement executed by the Parties. As used herein, the term “Anniversary Date” shall mean the month and day of the Commencement Date in successive years, and the term “Lease Year” shall mean the twelve (12) month period following the Commencement Date, and each twelve (12) month period thereafter. |
|
d. |
Parcel Sizes. The total Parcel size (Including Phase 1 and Phase 2) is approximately 25.11 acres to be located on the Southeast side of the Airfield. The exact location to be determined by survey to be completed by the Airport. The Phase 1 Parcel is approximately 652,701 square feet, and the Phase 2 Parcel is approximately 441,293 square feet, as reflected on Exhibit A attached hereto. |
2. Leasehold Phases. The Lease shall be divided into two distinct phases. The first phase (“Phase 1”) shall proceed as outlined in this agreement. The commencement of the second phase (“Phase 2”) is subject to Lessor’s explicit approval, which will be determined following completion of Phase 1 as required by subsection (a) herein and any further requirements listed herein.
|
a. |
Phase 2 Grant. It is the intent of Lessor and Lessee that Phase 2 will be granted to Lessee for hangar development in materially the same size as depicted in Exhibit A. Lessor retains the sole discretion to grant Phase 2 to Lessee. In deciding whether to grant Phase 2, the Lessor will consider many factors, including but not limited to, the following: |
|
i. |
Ground Lease development milestones for Phase 1 have been met, or if any delay has occurred an extension has been granted by the Airport Executive Director. |
|
ii. |
A minimum of 120,000 square feet of vertical improvement have been constructed by Lessee on Phase 1. |
|
iii. |
Lessee has met all financial obligations and lease payments and is in good financial standing with the Lessor. |
|
iv. |
No default by Lessee under the Lease for which notice and the opportunity to cure has lapsed. |
Lessor shall determine whether to grant Phase 2 to Lessee within the later of six (6) months of request for grant of Phase 2 by Lessee or eighteen (18) months from Temporary Certificate of Occupancy of Phase 1. Lessor shall notify Lessee by written notice that the Premises is being granted which notice shall set forth the Phase 2 Effective Date. If Phase 2 is not granted to Lessee, Lessor will reimburse Lessee for all costs associated with activities or improvements related to Phase 2, including any costs which are for the mutual benefit of another party. Payment or reimbursement from Lessor to Lessee shall be made within twelve (12) months and Lessee shall have no further obligations with respect to the Phase 2 Parcel. Any costs in excess of $5,000.00 must be approved in writing by the Lessor prior to being incurred in order to be eligible for reimbursement.
3. Phase Development. Subject to Lessee’s due diligence and permitting and approval of Lessor, which shall not be unreasonably withheld, conditioned or delayed, Lessee plans to design and construct the following (“Capital Improvements” which definition shall also include the improvements to Phase 2):
|
a. |
Phase 1. 7 private and 1 semi-private hangars consisting of approximately 130,000 square feet of indoor private hangar, lounge, and office space. |
|
b. |
Phase 2. 6 private and 1 semi-private hangars consisting of approximately 115,000 square feet of indoor private hangar, lounge, and office space. |
|
c. |
Taxiway connectors. 2 taxiway connectors, providing airside access from the Phase 1 Parcel via Taxiway ‘E’. |
|
d. |
Assuming construction of both Phases, vehicle access, drive, and approximately 300 parking spaces, constructed east of the campus via Milwaukee Ave., to support Lessee’s operations including arrivals and departures, consisting of 2,200 linear feet. |
|
e. |
Prior to the decommissioning of Runway 6/24, Lessor will provide Lessee vehicle access to the Phase 1 Parcel via either the parking lot associated with 1098 S. Milwaukee Ave. or through another suitable access point identified by Lessor. |
|
f. |
Fuel Farm. A fuel farm containing a minimum of two 20thousand gallon underground jet fuel tanks, as well as tanks and infrastructure for other fuels, oils, lubricants, and supporting equipment. |
|
g. |
Apron. Aircraft apron space dedicated to aircraft operations on a managed ramp consisting of 540,00 square feet across both Phases. |
|
h. |
GSE Facilities. A minimum of 2,500 square feet of Administration and GSE facilities. |
|
i. |
All construction design is subject to permitting and approval of Lessor. |
|
4. |
Phase Construction Timeline |
|
a. |
Phase 1 Construction Timeline |
|
i. |
Due diligence shall be completed within one hundred and twenty (120) days of the Effective Date (“Phase 1 Due Diligence Period”). |
|
ii. |
Following successful completion of due diligence on the Phase 1 Parcel, Lessee shall submit a complete set of design plans for review, approval and permitting within 6 months. |
|
iii. |
Construction shall commence within six (6) months of the issuance of permits (“Construction Commencement”). |
|
iv. |
Construction shall be completed, as evidenced by a Temporary Certificate of Occupancy for all facilities developed for Phase 1 within eighteen (18) months of Construction Commencement. |
|
v. |
Lessee’s failure to complete Phase 1 within the timeline set forth herein shall result in the immediate termination of this Lease subject to the provisions set forth in Section 9(f) below. |
The same conditions shall apply to any additional Phase 1 construction (if all Phase 1 construction isn’t completed in a single phase), and the timeline for such additional construction shall commence upon the date of the Parcel becoming available from the Airport.
|
b. |
Phase 2 Construction Timeline |
|
i. |
Due diligence shall be completed the later of one hundred and twenty (120) days from the Phase 2 Effective Date, or thirty-six (36) months from receipt of Certificate of Occupancy for the latest Phase 1 Parcel that is constructed (“Phase 2 Due Diligence Period”). |
|
ii. |
Following successful completion of due diligence on the Phase 2 Parcel, Lessee shall submit a complete set of design plans for review, approval and permitting within 6 months. |
|
iii. |
Construction shall commence within six (6) months of the issuance of permits “Phase 2 Construction Commencement”. |
|
iv. |
Construction shall be completed, as evidenced by a Temporary Certificate of Occupancy for all facilities developed for Phase 2 within eighteen (18) months from Phase 2 Construction Commencement. |
|
v. |
Lessee’s failure to complete Phase 2 within the timeline set forth herein shall result in the immediate termination of Lessee’s leasehold interest in Phase 2 subject to the provisions set forth in Section 9(f) below. |
|
c. |
Economic Development Incentives. Lessor will support Lessee to maximize City of Prospect Heights, Village of Wheeling, Cook County, and State of Illinois economic development incentives (including but not limited to Class 6b tax incentive) to support the various construction projects stated herein. |
|
d. |
Due Diligence. If, upon completion of its due diligence during the Phase 1 Due Diligence Period and the Phase 2 Due Diligence Period, as outlined above, Lessee determines in good faith that the Premises is not suitable for its proposed development, Lessee shall notify Lessor and Lessor will have the opportunity to remedy the site to the satisfaction of Lessee, or to elect not to remedy the site. If Lessor elects not to remedy the site, Lessee will have the option to remedy the site at its sole cost and expense, or to elect to be relieved of any further responsibilities, obligations, or liabilities with respect to the Premises, except that Lessee shall return the Premises to Lessor in the same condition as it was prior to the applicable due diligence period. To the extent that Lessee fails to notify Lessor that the Premises is not suitable for its proposed development, it shall be deemed an acceptance of the Premises as set forth in Section 6 below. In the event that Lessor agrees to remedy and Lessee still declines to proceed, Lessee shall pay Lessor six (6) months of rent for the parcel being declined as a liquidated damages. |
|
e. |
Tie Down Relocation. Lessee will work with Lessor and may, at Lessee’s option and subject to a separate agreement for Lessee to be reimbursed by Lessor, install up to $2.6 million of apron for light general aviation tie down spaces prior to groundbreaking of Phase 1, for the purposes of relocating those aircraft currently occupying the Phase 1 Premises, subject to approval by the Federal Aviation Administration (“FAA”). For the avoidance of doubt, Lessor is obligated to deliver the Premises to Lessee free and clear of other tenants upon completion of the Phase 1 Due Diligence Period unless this lease is terminated during the Phase 1 Due Diligence Period. |
|
5. |
Use of Premises |
|
a. |
Purposes. Lessee shall use the Premises in furtherance of Lessee’s business which uses shall include, but not be limited to, office space, Commercial and Non-Commercial Aircraft Storage as permitted by the Airport Minimum Standards, minor maintenance and repair of Aircraft, operation of a fuel farm, fueling of Aircraft, subject to the conditions in subsection (b) stated below, and for other purposes reasonably related to the foregoing (hereinafter “Lessee’s Business”) including, but not limited to, lavatory services, towing, passenger handling, catering and aircraft detailing. Such uses may be performed by Lessee, or a sublessee or licensee of Lessee. Lessee shall not use the Premises for any purpose other than as set forth above without the prior written consent of the Lessor. The term “Aircraft” as used herein shall include Lessee’s aircraft and third-party aircraft based at or using the Premises in the ordinary course of Lessee’s Business. |
|
b. |
Fuel Farm. Lessee shall be granted the right to sell or dispense fuel and lubricants to Lessee’s Airport based tenants. This agreement shall not grant those rights traditionally associated with a Fixed Based Operator Agreement, specifically, the right to sell or dispense aircraft fuel and lubricants to transient aircraft(s) or to tenants, other than Lessee’s Airport based tenants, on the Airport. Airport based tenants are defined as Lessee’s tenants who have a minimum thirty (30) day lease with Lessee. |
|
i. |
If Lessee sells or dispenses fuel and lubricants to Lessee Airport based tenants, Lessee agrees to pay the prevailing Lessor fuel flowage fee (currently assessed at $0.27 per gallon) for all Jet Aviation fuels sold, dispensed, or consumed from, on or about the premises. |
|
ii. |
Flowage Rates subject to Lessor adjustment, however, rates shall be imposed equitably amongst all Lessor tenants that have fueling and lubricant rights. |
|
iii. |
Lessee further commits to selling or dispensing 2.5 million gallons of jet fuel annually, following construction and stabilization of all phases (i.e., Phase 1 and Phase 2) of the campus. If Lessee fails to sell or dispense 2.5 million gallons of jet fuel, Lessee will pay Lessor the difference between 2.5 million gallons of jet fuel and the actual amount sold multiplied by the fuel flowage fee. For example, if Lessee sells or dispenses 2.0 million gallons of fuel in a given year, Lessee will pay Lessor for 500,000 gallons of fuel times the then current fuel flowage fee (2.5 Million – 2 Million = 500,000 X current fuel flowage fee). |
|
iv. |
If Lessee does not develop the Phase 2 parcel, Lessee’s commitment to sell jet fuel will be reduced to 1,235,000 gallons following construction and stabilization of Phase1. If Lessee fails to sell or dispense 1,235,000 gallons of jet fuel, Lessee will pay Lessor the difference between 1,235,000 million gallons of jet fuel and the actual amount sold multiplied by the fuel flowage fee. For example, if Lessee sells or dispenses 1.0 million gallons of fuel in a given year, Lessee will pay Lessor for 235,000 gallons of fuel times the then current fuel flowage fee (1,235,000 – 1,000,000 = 235,000 X current fuel flowage fee). |
|
v. |
Within 45 days of the end of each Lease Year, the calculations will be made of how many gallons of jet fuel were sold during the immediate prior Lease Year and Lessee shall pay to Lessor any amounts due under Sections 5 (b) (iii) or (iv). |
|
c. |
Services. Except as otherwise provided in this Agreement, Lessee may not perform or offer to perform any services to or for the benefit of any person or entity other than Lessee on or from the Premises without the prior written approval of the Lessor, which approval may be granted or denied in the Lessor’s sole discretion. |
|
d. |
Primary Guiding Documents. All uses and/or services under Required Services and Permitted Services must adhere to all applicable Primary Guiding Documents: (i) the Airport Rules and Regulations, (ii) Lease Rates and Charges Policy, (iii) General Provisions and Definitions, (iv) General Aviation Minimum Standards, (hereinafter, collectively “the Primary Guiding Documents”) as may be amended from time to time, all of which can be accessed at https://www.chiexec.com/documents/. |
6. Condition of Premises. Unless Lessee elects to relieve itself of the duties and obligations with respect to a portion of the Premises as set forth in Section 4(d) above, Lessee warrants that it has inspected the Premises subject to all limitations imposed upon the use thereof by the Primary Guiding Documents (as defined above) and all other applicable laws and admits the suitability and sufficiency of the Premises for the use permitted herein. Lessor represents that to the best of Lessor’s knowledge, as of the Effective Date, the Premises are in compliance with all existing and applicable environmental laws, statutes, regulations and ordinances. During the Phase 1 and Phase 2 Due Diligence Periods, Lessee shall have the right to conduct at its expense a Phase I environmental assessment and soil tests for the parcel identified on Exhibit A. In the event the Lessee’s Phase I study and soil tests for the parcel identified on Exhibit A identify conditions which are unsatisfactory to Lessee, in Lessee's reasonable discretion, Lessee shall give written notice to Lessor specifying the unsatisfactory conditions. Within thirty (30) days of Lesse’s notice, Lessor shall provide written notice of either its election to remedy the conditions or declination to remedy the conditions. To the extent that Lessor declines to remedy the unsatisfactory condition, Lessee shall have the right to either remedy the condition or to terminate this Lease. If Lessor elects to remedy the conditions, it shall promptly commence and diligently complete such remedies at Lessor’s expense to Lessee’s reasonable satisfaction. If timely written notice is given by Lessee electing to terminate this Lease, Lessee shall restore the Premises into the condition they were on the Effective Date or Phase 2 Effective Date as may be applicable and shall be relieved of all further obligations under this Lease except for any obligations that expressly survive termination of this Lease.
|
7. |
Rent; Security Deposit |
|
a. |
Ground Rent. In consideration for the rights, privileges, and possession of the Premises herein granted, subject to the following sentences, the Lessee shall pay to Lessor as rent: |
|
i. |
Phase 1 Parcel Ground Rent. Lessee shall commence the payment of rent for the Phase 1 Parcel upon issuance of a Certificate of Occupancy or Temporary Certificate of Occupancy for the improvements on the Phase 1 Parcel (“Initial Rent Commencement Date”). Lessee hereby promises and agrees to pay Lessor, as annual rent for the Phase 1 Parcel, $685,336.05 (“Annual Base Rent”), at a current rate of $1.05 per square foot, payable in equal monthly installments of $57,111.33, (“Initial Monthly Rent”). To the extent that Lessee is unable to construct (in whole or part) on Phase 1b, the square footage will be adjusted and the Annual Base Rent will be adjusted to reflect the updated square footage. The monthly rent with respect to the Phase 1 Parcel shall be increased by CPI on the first Anniversary of the Initial Rent Commencement Date and annually thereafter except as set forth in Section 7(d) hereof. The Annual Base Rent may change to reflect the actual square footage in Phase 1 as determined by the final survey. |
|
ii. |
Phase 2 Parcel Ground Rent. Lesse shall commence the payment of rent for the Phase 2 Parcel on the issuance of the first Certificate of Occupancy issued in connection with Phase 2 (“Second Rent Commencement Date”). Lessee hereby promises and agrees to pay Lessor, as annual rent for the Phase 2 Parcel, $463,357.65 and upon the Second Rent Commencement Date the annual rent for the Phase 2 Parcel shall be included within the definition of Annual Base Rent, at a current rate of $1.05 per square foot, payable in equal monthly installments of $38,613.14, (“Initial Monthly Rent”). The monthly rent with respect to the Phase 2 Parcel shall be increased by CPI on the first Anniversary Date of the Second Rent Commencement Date and annually thereafter except as set forth in Section 7(d) hereof. The Annual Base Rent may change to reflect the actual square footage in Phase 2 as determined by the final survey. |
|
b. |
Adjustment for CPI Calculation. If the comparative CPI figures are not available until after the Anniversary Date during the Term, Annual Base Rent during each Lease Year shall be payable in an amount equal to the Annual Base Rent payable during the immediately preceding Lease Year until such comparative CPI figures are available. On the first day of the calendar month following publication of such comparative CPI figures, and notification thereof from Lessor to Lessee, Lessee shall begin paying monthly rent at the increased rate and shall pay Lessor the amount equal to the difference between the amount previously paid and the amount due under the formula for the then current Lease Year. |
|
c. |
Definition of CPI. The term “CPI” as used herein shall mean the Consumer Price Index for All Urban Consumers, All Items - All Urban Consumers (base year 1982-84=100) for the Chicago area, published by the Bureau of Labor Statistics of the United States Department of Labor. If the CPI is changed so that the base year differs from that used as of the commencement of the Lease, the CPI shall be converted in accordance with the conversion factor published by the United States Department of Labor, Bureau of Labor Statistics. If the CPI is discontinued or revised during the term of this Lease, such other government index or computation with which it is replaced shall be used in order to obtain substantially the same result as would be obtained if the CPI had not been discontinued or revised. |
|
d. |
Market Rent Study. Rent shall be adjusted on the sixth anniversary of the Second Rent Commencement Date (or the sixth anniversary date of the Initial Rent Commencement Date if Phase 2 is not constructed) and every six years thereafter by Market Rent Study as provided for in the Airport’s Lease/Rates and Charges Policy including any amendments thereto. To the extent that Lessee believes that the Ground Rent determined in the Market Rent Study for ground rent is not consistent with market rate and/or other similar airport leases, two appraisals will be completed, with Lessor and Lessee each retaining one appraiser at their own cost and expense and the median rate of the two appraisals shall be used as the prevailing rental rate for the Premises. In no event shall the rent be reduced from the Lease Year rent for the year immediately preceding the Market Rent Study. |
|
e. |
Time and Place of Payment. Rent shall be paid promptly and without any claims for any deductions or set offs for any purpose whatsoever, in advance and in equal installments on the first business day of each month. Payment shall be made by check, money order or electronically at the office of the Executive Director at the Airport or at such other office as may be directed in writing by the Lessor. |
|
f. |
Late Charge. If any payment that is due under this Lease shall not be paid within ten (10) days of its due date, Lessee shall pay as additional rent, a late charge of 10% of the monthly rent for each month thereafter that such payment remains unpaid. In addition, Lessee shall pay 2.5% interest per month on all amounts not timely paid. |
|
g. |
Security Deposit. Waived. |
|
8. |
Repair and Maintenance |
|
a. |
Lessee’s Responsibilities. Lessee agrees that it shall keep in a good state of repair and in a clean and orderly condition, except for reasonable wear and tear, all and every part of the Premises and any improvements constructed thereon, including regular trash removal and snow removal. Lessee agrees that all repairs shall be accomplished in a diligent, workmanlike manner. The standards of up-keep, maintenance and repairs required of the Lessee under this Lease shall be not less than the standards generally followed by the Lessor for similar buildings and premises under the Lessor’s control. Any deviation from said minimum standards shall be brought to the attention of the Lessee by the Lessor and shall be corrected within thirty (30) days thereafter, however, if such corrections are of the type and nature which cannot be made within thirty (30) days, then this provision shall be deemed to be complied with if Lessee commences efforts to make such corrections within thirty (30) days and continues diligently thereafter until such corrections are completed. |
|
b. |
Lessor’s Rights. If Lessee fails to make such corrections, as provided above, the Lessor may, at Lessor’s option, enter upon the Premises and make the required corrections, and the cost thereof, together with any reasonable attorney’s fees and costs incurred by Lessor plus interest thereon at the rate of ten percent (10%) per annum shall be due and payable as additional rent to the Lessor. Furthermore, should the Lessor, its officers, employees, or agents undertake any work hereunder after Lessee's failure to comply with the preceding Subsection, Lessee hereby waives any claim for damages, consequential or otherwise, as a result therefrom except for claims for damages arising from the negligent or willful misconduct of Lessor or its officers, employees, or agents. The foregoing shall in no way affect or alter the primary obligations of Lessee as set forth in this Lease and shall not impose or be construed to impose upon the Lessor any obligations to maintain the space, unless specifically stated otherwise herein. |
|
9. |
Improvements |
|
a. |
Construction. The Lessee shall have the right to construct the buildings, structures and other improvements described in Section 3 hereof (“Improvements”) on the Premises provided the plans and specifications therefore are first submitted to and receive the written approval of the Executive Director, which approval shall not be unreasonably withheld, conditioned or delayed. The Lessor shall advise Lessee within thirty (30) days after receipt of a written request, together with copies of the plans and specifications for the proposed Improvements, which shall be prepared by a registered architect and approved by a registered engineer, both licensed in the State of Illinois, in sufficient detail to make a proper review thereof, of its approval or disapproval of the proposed work, and in the event it disapproves, stating its reasons therefore. Notwithstanding anything herein to the contrary, Lessee shall comply with all building codes and regulations and shall obtain all proper building permits, including a building permit from the municipality having jurisdiction of where the Improvements are to be built. Lessee shall obtain all necessary zoning changes and variances at its cost, and shall give the Federal Aviation Administration 7460-1 Notice of Proposed Construction Alterations. |
|
b. |
Bonding and Construction Stoppage. The Lessee’s general contractor or contractors, as the case may be, shall be bonded, in an amount equal to the full cost of construction of the Improvements by a reputable company reasonably satisfactory to Lessor, and the agreement between Lessee and the contractor shall require that the contractor provide a lien-free completion bond. Lessee shall, once construction has been commenced, diligently and conscientiously pursue the construction of the Improvements to completion in accordance with the agreed upon plans and specifications; provided that, if Lessee’s efforts to complete construction of the Improvements are delayed or prevented in whole or in part, by reason of fire, flood, storm, strike, lockout, riot, war, rebellion, accidents of God, or any other cause or casualty beyond the reasonable control of Lessee, including the occurrence of a good faith dispute with the Lessee’s general contractor or any supplier, then upon timely written notice to Lessor, the construction requirements under this Subsection, to the extent so effected, shall be suspended during the period of such disability; provided further that, Lessee shall make all reasonable efforts to remove such disability as soon as possible. Failure of Lessee to make such reasonable efforts to remove such disability shall be treated as a Default pursuant to Section 19 herein. |
|
c. |
Improvements Without Consent and Mechanics’ Lien. If Lessee makes any Improvements without the Lessor’s approval, then the Lessor may, at its option, and in addition to any other remedies which may be available to it, give written notice to Lessee to remove the same or at the option of the Lessor cause the same to be changed to the satisfaction of the Lessor. If Lessee fails to comply with such notice within thirty (30) days or to commence to comply and pursue diligently to completion, the Lessor may affect the removal and Lessee shall pay one hundred ten percent (110%) of the cost of such removal to the Lessor.
Because the Premises are publicly owned property, Lessee hereby acknowledges and agrees that pursuant to Illinois law, a contractor or subcontractor performing any construction work at the request of Lessee on the Premises may not properly file a mechanic’s lien or materialmen’s lien (“Mechanics Liens”) against the Premises, including any Improvements constructed thereon. The Lessee shall not permit any Mechanics’ Liens to be filed against the Premises by reason of services or material supplied in connection with any work performed at the Lessee’s request. If any such Mechanics’ Liens shall at any time be filed, the Lessee shall cause the same to be discharged of record within thirty (30) days after the Lessee has knowledge of the filing or provide to Lessor a bond, letter of credit or other security satisfactory to Lessor, in an amount equal to one hundred ten percent (110%) of the full amount of the Mechanics’ Liens. If the Lessee shall fail to discharge such Mechanics’ Liens or provide such security within such period, then, in addition to any other right or remedy, the Lessor may, but shall not be obligated to, discharge the lien, either before or after investigating it, but only upon prior written notice to the Lessee. One hundred ten percent (110%) of all amounts expended by the Lessor to contest or discharge such lien or both, shall constitute rent payable on demand. |
|
d. |
Title to Improvements/Termination of Lease. The Lessee shall be the owner of all the Improvements which Lessee makes on the Premises until the end of this Lease, at which time title to the Improvements shall automatically vest in the Lessor, unless there has been a prior transfer of title by Lessee to Lessor, with the consent of Lessor. Upon the termination of this Lease by lapse of time or otherwise, Lessee shall upon the written direction of Lessor: (i) deliver up to the Lessor the Premises, together with the Improvements thereon in broom clean condition, except for Lessee’s trade fixtures, equipment and personal property of Lessee not permanently installed in the Improvements, in the same condition as existed on the Commencement Date or date of completion, if later, reasonable wear and tear excepted; and/or (ii) promptly remove all or any portion of the Improvements which Lessor directs Lessee to remove, other than Improvements that were erected on the Premises as of the Commencement Date and the Capital Improvements. |
|
e. |
Removal of Improvements. The Lessee agrees, except as provided in Subsection (d) above, that no Improvements which are now or hereafter erected on the Premises shall be removed, torn down, or replaced by Lessee, its agents or employees, without the prior written consent of the Lessor, which consent shall not be unreasonably withheld or delayed. |
|
f. |
In the event (i) Lessee is unable to obtain, through no fault of its own, the permits and/or approvals required under this Section 9; (ii) the project is not feasible as generally designed and approved by the Lessor due to a determination by the FAA or other agency that has jurisdiction over the Premises; or (iii) Lessee is granted such permits, approvals or any other authority subject to terms and conditions which, in the reasonable judgment of Lessee, will increase the total cost of such project by a material amount over the total amount budgeted by Lessee, then Lessee shall not be required to make the Improvements or the Capital Improvements, as the case may be. In the event such permits, approvals or determinations are delayed, there is severe weather that delays construction, or other event which substantially delays construction that is not due to the fault of Lessee, the timeframes for such Improvements or Capital Improvements, as the case may be, set forth in this Section 4 shall be equitably extended. |
|
10. |
Services and Utilities |
|
a. |
Utilities. The Lessee shall pay all charges due for all services and utilities serving the Premises prior to delinquency. These services shall include, without limitation, water, sanitary sewer, oil, gas, electricity, telephone, janitorial, grounds keeping, and trash and snow removal. |
|
b. |
Water Connection. Lessee shall take all actions necessary to connect to the water lines installed by the Airport, the Village of Wheeling, or the City of Prospect Heights as applicable and shall pay the connection charges and fees. Lessor shall pay to install the water line from the existing water line to the boundary line of the Premises. |
|
c. |
Sanitary Sewer. Lessee agrees that it shall install a sanitary sewer line from the Premises to a location designated by and in accordance with plans and specifications prepared by the Airport Engineering consultant, currently Crawford, Miller and Tilly, Inc. (“CMT”). Lessee agrees to pay all costs associated with such installation. Lessee further agrees: |
|
i. |
For the Phase 1 Parcel: Lessee shall pay the one-time Sanitary Sewer Connection Fee at the then prevailing rate based upon a calculation of then prevailing rate multiplied by the square footage of the Phase 1 Parcel. The current rate is $0.1848.; and |
|
ii. |
For the Phase 2 Parcel: Upon approval of Phase 2, Lessee shall pay the one-time Sanitary Sewer Connection Fee at the then prevailing rate based upon a calculation of the prevailing rate multiplied by the square footage of the Phase 2 Parcel. The current rate is $0.1848.; and |
|
iii. |
As additional rent, Lessee shall pay an annual sanitary sewer annual maintenance fee at the then current rate (currently $0.0091) multiplied by the square footage of the leased land to be increased annually by the CPI (as defined in Section 7, Subsection c) as a sanitary sewer service fee; and |
|
d. |
Storm Water Connection and Sewer Fees. Lessee agrees: |
|
i. |
For the Phase 1 Parcel: Lessee shall pay a one-time Storm Water Connection Fee based upon a calculation of the then prevailing rate multiplied by the square footage of the Phase 1 Parcel. The current rate is $0.5497.; and |
|
ii. |
For the Phase 2 Parcel: Upon approval of Phase 2, Lessee shall pay a one-time Storm Water Connection Fee based upon a calculation of the then prevailing rate multiplied by the square footage of the Phase 2 Parcel. The current rate is $0.5497.; and |
|
iii. |
As additional rent, Lessee shall pay an annual sewer maintenance fee to Lessor at the then current rate (the current rate is $0.0274) per year multiplied by the square footage of the leased land to be increased annually by the CPI (as defined in Section 7, Subsection c) as a storm water sewer maintenance fee; and |
|
iv. |
The detention area shall be maintained by the Lessor. Lessee shall at its expense maintain the storm water sewer system situated on the Premises. |
|
e. |
Other Services. The Lessor shall have no responsibility or liability to furnish any services to Lessee, but Lessee may negotiate with the Lessor for any additional service it may request and shall pay for such additional services the consideration so negotiated. |
|
f. |
Utility Easements. Lessee acknowledges and agrees that Lessor hereby expressly reserves to Lessor, and to Lessor’s successors and assigns, public utility easements over the Premises. |
|
11. |
Taxes and Assessments |
It is the purpose and intent of the Lessor and the Lessee that the Annual Base Rent payable under this Lease shall be absolutely net to the Lessor so that this Lease shall yield to the Lessor the amount of the Annual Base Rent specified in Section 7, in each year during the Term of this Lease, free of any charges, assessments, taxes, impositions, or deductions of any kind charged, assessed, levied, exacted or imposed on or against the Premises or on Lessee's operations at the Premises, or on the gross receipts or gross income to the Lessee therefrom, including any real estate taxes, special assessments, license, certification, permit and examination fees and excise taxes (“Assessment(s)”), and without abatement, deduction or set-off by the Lessee, except as expressly provided in the Lease. The Lessor shall not be required to pay any such Assessment(s) or be under any obligation or liability under this Lease, except as expressly set forth herein. The Lessee shall pay all Assessments, and shall make all applications, reports and returns required in connection therewith. The Lessee shall have the right to contest all such Assessment(s) and the Lessor shall give reasonable cooperation to the Lessee in such contest; provided, however, that the Lessee timely commences and thereafter diligently in good faith contests such Assessment(s) by appropriate proceedings and in any event pays all Assessment(s) prior to delinquency. If Lessee fails to pay any Assessment(s), Lessor may, at Lessor’s option, pay such Assessment(s), and the cost thereof, together any reasonable attorney fees and costs incurred by Lessor plus interest thereon at the rate of ten percent (10%) per annum, shall be due and payable as additional rent to the Lessor.
Notwithstanding the foregoing, it is not the intention of the parties that any Assessment(s) be imposed against the Premises as a result of this Lease.
|
12. |
Insurance |
|
a. |
Lessor not responsible for personal property. All personal property of any kind (including property of Lessee) that may be on the Premises during the term of this Lease shall be at the sole risk of the owner of that property; and Lessee will hold the Lessor harmless from any claim of the owner of such property for loss or damage thereto, saving and excepting loss or damage resulting from the negligent or willful act of any officer, employee or agent of the Lessor; |
|
b. |
Lessor not liable for physical injuries. The Lessor shall in no event be liable for physical injuries (including death) to persons or damage to property (including property of Lessee) occurring upon the Premises or arising out of the Lessee’s use or occupancy thereof, unless resulting from the negligent act or willful misconduct of any officer, employee, or agent of Lessor. Lessee shall assume the defense of, and indemnify and save harmless the Lessor, its officers, agents and employees, both personally and officially, from all loss, liability, cost and expense, including but not limited to reasonable attorneys' fees and investigatory expenses, upon, any and all claims based upon such injuries to persons or damage to property (including claims made against the Lessor by its officers and employees), except where the negligence or willful misconduct of the Lessor, its officers, agents, employees shall have caused or been alleged to have caused such injuries or damages. |
|
c. |
Lessee’s obligation to maintain insurance. Lessee agrees that it shall procure and maintain at all times during the term hereof insurance as set forth in Exhibit B attached hereto and made a part hereof. |
|
d. |
Lessee’s obligation to deliver certificates of insurance. Lessee shall deliver to the Lessor, prior to the Effective Date, Certificates of Insurance for each of the insurance policies required by Exhibit B. Each such certificate shall contain an endorsement that it cannot be canceled unless the Lessor is given at least thirty (30) days prior written notice (ten (10) days for nonpayment of premiums) and shall name the Lessor, the Chicago Executive Airport, their agents, employees and representative as additional insured’s. Lessee shall promptly obtain renewals of such policies and deliver to the Lessor certificates for such renewal policies. |
|
e. |
Lessor not liable for damage to Premises. The Lessor shall not be liable for any damage to any property or person at any time in or on the Premises from steam, gases or electricity, or from water, rain or snow, whether they may leak into, issue or flow from any part of the Premises, or from the conduits, pipes or plumbing works of the same or from any other place, unless resulting from the negligent act or willful misconduct of any officer, employee or agent of Lessor. |
|
13. |
Indemnification |
The Lessee agrees to defend, indemnify, save, protect and hold harmless the Village of Wheeling, the City of Prospect Heights, the Lessor, the Lessor’s Board of Directors, the Wheeling Board of Trustees, the Prospect Heights City Council, individually and collectively and each of their representatives, officers, officials, directors, employees, agents, and volunteers of and from any and all costs, liability, damage and expense (including costs of suit and reasonable expenses of legal services) claimed or recovered, by any person, firm or corporation by reason of injury to, or death of, any person or persons, including Lessor’s personnel and damage to, destruction of any and all property, including Lessor’s property, arising from, or resulting from, any operations, works, acts, or omissions of Lessee, its agents, servants, employees, contractors, sublessees or tenants. The foregoing provisions concerning indemnification shall not be construed to indemnify the Lessor, its officers, employees or agents for damage arising out of bodily injury to persons or damage to property caused by or resulting from the negligence or willful misconduct of the Lessor, its officers, employees or agents. Within five (5) days of the filing with Lessor by anyone of a claim for damages arising out of incidents for which the Lessee herein agrees to indemnify and hold the Lessor harmless, the Lessor shall notify the Lessee of such claim and in the event that the Lessee does not settle or compromise such claim, then the Lessee shall undertake the legal defense of such claim both on behalf of the Lessee and behalf of the Lessor by legal counsel selected by the Lessee. It is specifically agreed, however, that the Lessor, at its own cost and expense, may participate in the legal defense of any such claim provided such participation does not unduly interfere with Lessee's legal defense of such claim. Any judgment, final beyond all possibility of appeal, rendered against the Lessor for any cause for which the Lessee is liable hereunder shall be conclusive against the Lessee as to liability and amount upon the expiration of the time for appeal. The Parties agree that under no circumstances shall either Party or their respective subsidiaries and affiliated companies be liable to the other for indirect, incidental, consequential, special, punitive or exemplary damages (including, but not limited to, damages for loss of use, lost profits or diminution in value) whether in contract or tort (including strict liability and negligence).
|
14. |
Governmental Requirements |
The Lessee shall procure all licenses, certificates, permits or other authorization from all governmental authorities, if any, having jurisdiction over the Lessee's operations at the Premises which may be necessary for the Lessee's Business. If for any reason after using all due diligence Lessee is unable to secure any required license, certificate, permit economic incentives (including approval of the IL EDGE incentives by IL Department of Commerce and Economic opportunity) or other authorization for Lessee’s operations at the Premises permitted or required in this Lease, Lessee shall have the right, upon delivery of written notice to Lessor not more than two hundred seventy (270) days following the Commencement Date, to terminate this Lease and all further liability and obligation to Lessor hereunder. In addition, if after using all due diligence Lessee is able to secure a license, certificate, permit or other authorization for Lessee’s operations at the Premises permitted or required in this Lease only if Lessee accepts terms and conditions which, in the reasonable judgment of Lessee, will increase the total cost of operations by a material amount over the total amount budgeted by Lessee, Lessee shall have the right, upon delivery of written notice to Lessor not more than two hundred seventy (270) days following the Commencement Date, to terminate this Lease and all further liability and obligation to Lessor hereunder, provided Lessee shall first reimburse Lessor for Lessor’s reasonable out of pocket engineering and legal expenses incurred in the negotiation and preparation of this Lease and in the fulfillment of all obligations of Lessor under this Lease.
|
15. |
Signs and Lighting |
Lessee shall not post, install, erect or operate any light, sign, placard or poster on any part of the Premises without complying with all applicable laws, rules, regulations and ordinances, including without limitation the ordinances of the Lessor, and without the prior approval of the FAA with respect to lighting. Lessee shall pay Lessor for any fees incurred by Lessor associated with such signs and lighting. Lighting shall not be confusing, blinding, or inhibiting to aircraft landing or taking off at Airport as determined by the FAA and the Lessor in their sole discretion. If after installing such lighting, either the FAA determines or Lessor reasonably determines that such lights are confusing, blinding, or inhibiting to aircraft landing or taking off at Airport, then Lessee shall take such actions as are necessary to correct such problem, including redesigning, replacing, or removing of such lighting. If Lessee fails to take such actions as are necessary to correct such problem, Lessor may, at Lessor’s option, enter upon the Premises and correct such problem, and the cost thereof, together with any reasonable attorney’s fees and costs plus interest thereon at the rate of ten percent (10%) per annum, shall be due and payable as additional rent to the Lessor.
|
16. |
Nondiscrimination |
|
a. |
Lessee, for itself, its personal representatives, successors in interest and assigns, as a part of the consideration hereof, does hereby covenant and agree that: |
|
i. |
no person shall be excluded from participation in regard to the services to be performed, denied the benefits of these services, or be otherwise subjected to discrimination on the basis of race, creed, color, national origin, disability, religion, ancestry, age, sex, marital status, military status or unfavorable discharge from military status; |
|
ii. |
no person shall be excluded from participation in, denied the benefits of, or otherwise be subjected to discrimination in the construction of any improvements on, over or under the Premises, or in the furnishing of services thereon, on the basis of race, creed, color or national origin, disability, religion, ancestry, age, sex, marital status, military status or unfavorable discharge from military status; |
|
iii. |
Lessee shall use the Premises in compliance with all other requirements imposed by or pursuant to Title VI of the Civil-Rights Act of 1964 § 601 (42 U.S.C. § 2000d), Title V of the Rehabilitation Act § 504 (29 U.S.C. § 794), and by the Regulations of the Office of the Secretary of Transportation (49 C.F.R. Part 21, 49 C.F.R. Part 27) and the Illinois Human Rights Act (775 ILCS 5/1-101 et seq.). |
|
b. |
Lessee shall furnish its accommodations and services at a fair, reasonable and not unjustly discriminatory basis to all users thereof, and it shall charge fair, reasonable and not unjustly discriminatory prices for each unit of service, provided, however, that Lessee may be allowed to make reasonable and nondiscriminatory discounts, rebates or other similar types of price reductions to volume purchasers. |
|
c. |
Noncompliance with Subsections (a) or (b) above shall constitute a material breach hereof, and, in the event of such noncompliance: |
|
i. |
the Lessor shall have the right to terminate this Lease without liability therefore, or |
|
ii. |
either the Lessor, the United States or the State of Illinois shall have the right to judicially enforce Subsections (a) or (b). |
|
d. |
The Lessee covenants that it will undertake any affirmative action program as required by 14 CFR Part 152, Subpart E, to insure that no person shall on the grounds of race, creed, color, national origin, or sex be excluded from participating in any employment activities covered in 14 CFR Part 152, Subpart E. The Lessee assures that no person shall be excluded on these grounds from participating in or receiving the services or benefits of any program or activity covered by this subpart. The Lessee covenants that it will require that its covered suborganizations provide assurances to the Lessee that they similarly will undertake affirmative action programs and that they will require assurances from their suborganizations, as required by 14 CFR Part 152, Subpart E, to the same effect. |
|
e. |
Lessee assures that it shall furnish to the United States Government, or the Lessor, whichever is required, any and all documents, reports and records; including but not limited to any affirmative action plan, Form EEO-1, the submission of which are required by 14 CFR Part 152, Subpart E. |
|
17. |
Assignment, Mortgage or Subletting |
|
a. |
Assignment. Lessee agrees that it will not without the prior written consent of Lessor, which consent shall not be unreasonably withheld or delayed; sell, convey, transfer or assign (collectively “Assign” or “Assignment”), sublease, mortgage or pledge this Lease or any part thereof, or any rights hereunder. Lessor shall not be deemed to be unreasonable in the withholding of consent if the proposed assignee or sublessee fails to meet any one or all of the following at Lessor’s sole and absolute discretion: |
|
i. |
in the case of a proposed Assignment, Lessor’s reasonable determination that the proposed assignee is reputable, and has the knowledge, experience and financial capacity necessary to conduct the activities permitted hereunder; |
|
ii. |
Lessee shall be required to reimburse Lessor for its reasonable out of pocket attorneys’ fees and other expenses incurred in connection with the proposed transaction; and |
|
iii. |
The contemplated operations of and the use of the Premises by the proposed assignee shall be substantially similar to those of the Lessee; |
|
b. |
Assignment to Affiliate. Notwithstanding subsection (a) above, Lessee shall have the right to assign this Lease, or sublet the Premises or any portion thereof, without the consent of Lessor, to any entity (a) which Lessee may merge or consolidate, or (b) which is a parent or subsidiary of Lessee (collectively “Lessee Affiliate”). Lessee or its successor in interest shall give Lessor written notice of any such assignment of this Lease to a Lessee within thirty (30) days of said assignment. |
|
c. |
Partial Subletting. So long as the Lessee is not in default hereunder, the Lessee may sublet a portion or portions (but less than substantially all) of the Premises to its tenants in the hangars. |
|
d. |
Mortgage or Pledge, Collateral Assignment of Lease. Notwithstanding the provisions of Subsection (a) above, with the prior consent of Lessor, and subject to the terms and conditions of this Lease, Lessee may convey, pledge or encumber, by deed of trust, mortgage or similar instrument (the “Approved Leasehold Mortgage”), its leasehold interest in and to the Premises in favor of a lender (the “Approved Leasehold Mortgagee”), and Lessee may assign this Lease as collateral security for such Approved Leasehold Mortgage. Any such Approved Leasehold Mortgage, and all rights under or relating thereto, shall be subject to each of the covenants, conditions and restrictions set forth herein, and to all rights of Lessor hereunder and will always be subordinate to the rights of Lessor under this Lease and the Parcel. Notwithstanding the foregoing, the Approved Leasehold Mortgagee shall in no event become personally liable to perform the obligations of Lessee under this Lease unless and until the Approved Leasehold Mortgagee becomes the owner of the leasehold estate pursuant to foreclosure, transfer in lieu of foreclosure, or otherwise, and thereafter said Approved Leasehold Mortgagee shall remain liable for such obligations only so long as such Approved Leasehold Mortgagee remains the owner of the leasehold estate. Lessee shall be responsible for payment of all of Lessor’s costs and expenses, including reasonable attorneys’ fees and expenses, incurred in reviewing any proposed Approved Leasehold Mortgage hereunder. |
|
i. |
If an Approved Leasehold Mortgagee shall give Lessor notice of such Approved Leasehold Mortgagee’s interest in the Premises and such notice shall contain the address to which notices to such Approved Leasehold Mortgagee are to be sent, Lessor will thereafter send to such Approved Leasehold Mortgagee, at the address so given, and in the manner set forth in this Lease, a copy of any notice of default which Lessor may thereafter deliver or send to Lessee. Within the time permitted for the curing or commencing the curing of any default under this Lease, such Approved Leasehold Mortgagee, at its option, may pay any amount due or do any other act or thing required of Lessee by the terms of this Lease, and all amounts so paid or other acts so done by such Approved Leasehold Mortgagee shall be as effective to cure such default as the same would have been if paid or done by Lessee. |
|
ii. |
An Approved Leasehold Mortgagee shall not become liable for Lessee’s obligations under this Lease unless and until such Approved Leasehold Mortgagee becomes the owner of the leasehold estate established hereby by foreclosure, assignment in lieu of foreclosure or otherwise, or if such Approved Leasehold Mortgagee gives notice to Lessor that such Approved Leasehold Mortgagee will assume Tenant’s obligations under this Lease. An Approved Leasehold Mortgagee shall remain liable for the obligations of Lessee under this Lease only for so long as it remains the owner of the leasehold estate established hereby. |
|
iii. |
If any default or event of default occurs under an Approved Leasehold Mortgage, the Approved Leasehold Mortgagee and Lessee shall immediately notify Lessor of the same in writing. |
|
iv. |
If a non-monetary default by Lessee under this Lease is susceptible of being cured by an Approved Leasehold Mortgagee only after such Approved Leasehold Mortgagee has obtained possession of the Premises, then an Approved Leasehold Mortgagee shall have an additional period not to exceed thirty (30) days to cure a non-monetary default after obtaining possession of the Premises; provided, however, that (i) such Approved Leasehold Mortgagee initiated all necessary actions to obtain possession of the Premises, including the initiation of foreclosure proceedings under its Approved Leasehold Mortgage, within thirty (30) days after the earlier of the date on which such Approved Leasehold Mortgagee became aware of such non-monetary default or the date on which such Approved Leasehold Mortgagee received notice from Lessor of such non-monetary default; (ii) such Approved Leasehold Mortgagee shall have pursued such actions with reasonable diligence; (iii) such Approved Leasehold Mortgagee, within any applicable cure period provided in this Lease, shall have paid all Rent and other sums then due to Lessor under this Lease; and (iv) such Approved Leasehold Mortgagee shall have cured any other defaults by Lessee under this Lease that are susceptible of being cured by such Approved Leasehold Mortgagee without obtaining possession of the Parcel. Notwithstanding the foregoing, the rights granted to an Approved Leasehold Mortgagee in this Article shall not impair any right granted to Lessor in this Lease (a) to perform any obligations under this Lease that Tenant is required, but fails, to perform, and (b) to obtain reimbursement from Lessee of Lessor’s costs and expenses incurred in so performing and, subject to rights granted to an Approved Leasehold Mortgagee, to declare an Event of Default if Lessee fails so to reimburse within any applicable cure period. |
|
v. |
Lessee shall be permitted to finance the design, construction and operation of the Lessee Improvements through a Private Activity Bond (“PAB”). Lessor shall provide customary consents and all related approvals required in connection with a PAB issuance and leasehold mortgage as part of the PAB financing program, which will be provided at Lessee’s sole cost and expense. Any lien created to secure such financing or any other debt undertaken by Lessee shall be secured by Lessee’s leasehold interest in the Lease and the Lessee constructed Improvements and shall not be secured by the fee interest in the Premises. IT IS UNDERSTOOD AND AGREED THAT LESSEE’S FINANCING OF THE LESSEE CONSTRUCTED IMPROVEMENTS THROUGH PAB IS SOLELY THE DEBT OF LESSEE AND SHALL NOT RESULT IN ANY FINANCIAL BURDEN OR OBLIGATION OF THE LESSOR IN ANY MANNER, INCLUDING ANY COST OR EXPENSE ASSOCIATED WITH THE TEFRA HEARING OR ANY OTHER CONSENT OR APPROVAL REQUIRED TO BE PROVIDED BY LESSOR. Lienholders through PAB financing described herein shall be included within the definition of Approved Leasehold Mortgagee. Lessee shall be responsible for payment of all of Lessor’s costs and expenses, including reasonable attorneys’ fees and expenses, incurred in reviewing any proposed PAB and related approvals and consents. |
|
vi. |
If this Lease is terminated for Lessee’s breach before the end of the Term, for any reason other than a default that has not been cured by Lessee or Approved Leasehold Mortgagee within the period specified, including, without limitation, as a result of a rejection or disaffirmation of the Lease in a bankruptcy, insolvency or other proceeding affecting creditor’s rights then Lessor shall provide a copy of the termination notice to the Approved Leasehold Mortgagee. Upon the written request of Approved Leasehold Mortgagee made any time within thirty (30) days after the receipt of such notice from Lessor, Lessor shall agree to enter into a new lease of the Premises with Approved Leasehold Mortgagee for the remainder of the Term of the Lease upon the same covenants, conditions, limitations and agreements contain in the Lease, except for such provisions which must be modified to reflect any such termination, rejection or disaffirmance and the passage of time, provided, that, in the event of any such termination, rejection or disaffirmance, Approved Leasehold Mortgagee (or such successor or assign) (A) shall pay to Lessor, simultaneously with the delivery of such new lease, all unpaid amounts due under the Lease up to and including the date of the commencement of the term of such new lease and all reasonable and substantiated expenses incurred by Lessor to prepare such new lease, and (B) otherwise shall cure all other defaults under the Lease promptly and with due diligence after the delivery of such new lease. If Lessor does not enter into a new lease with the Approved Leasehold Mortgagee, then the Approved Leasehold Mortgagee shall immediately remove all trade fixtures and other personal property from the Premises and repair to Lessor’s reasonable satisfaction, any damage caused to the Premises by the removal. The Approved Leasehold Mortgagee shall not remove or tamper with any improvement on the Premises. |
|
vii. |
Lessee’s present and future Approved Leasehold Mortgagee and any present and future mortgagees or similar beneficiaries are intended third party beneficiaries to this section. As third-party beneficiaries, they are entitled to the applicable rights under and may enforce the provisions of this Article of the Lease as if they were parties thereto. |
|
viii. |
Nothing contained herein shall release Lessee from any of its obligations under this Lease that may not have been discharged or fully performed by an Approved Leasehold Mortgagee |
|
e. |
Change in Control of Lessee. For the purposes of this Section, a change in the control of the Lessee shall constitute an Assignment of this Lease. A change in the control of the Lessee shall be deemed to occur in the event that at any time subsequent to the date of execution of this Lease, the beneficial owners of the Lessee as of the date of execution of this Lease own less than fifty-one (51%) percent of the Lessee. A transfer of beneficial ownership of Lessee shall not constitute an impermissible Assignment of the Lease if the transfer is to a Lessee Affiliate. |
|
f. |
Effect of Improper Assignment or Sublease and Non-Release of Lessee. An Assignment of this Lease, or any rights of Lessee hereunder, or the Sublease, except for as expressly provided in Section 17(b), of all or substantially all of the Premises, without Lessor’s prior written consent, shall be null and void and shall entitle the Lessor, at its option, to forthwith terminate this Lease upon written notice to Lessee. The acceptance of rent by Lessor from any other person shall not be deemed to be a waiver by Lessor of any provision hereof. Consent to an Assignment or Sublease shall not be deemed to be a consent to any subsequent Assignment or Sublease. |
|
g. |
Assignor’s Continuing Liability. On the effective date of any Assignment by the Lessor as provided herein, the assignee shall be bound by all the terms, conditions and provisions of this Lease, and shall be obligated to perform all of the covenants and obligations of the Lessee hereunder. Upon expiration of a period of two (2) years from the effective date of such Assignment, the Lessee shall, without any further action required of Lessor, be released from all covenants and obligations set forth herein that arose or first accrued after the date of such release, and shall no longer be bound by the terms, provisions and conditions of this Lease; provided, however, that such release shall not become effective if, and for so long as, default on the part of the Lessee (or assignee) exists under this Lease. During the period during which the Lessee remains liable for the assignee’s liabilities hereunder, the Lessor shall give the Lessee a copy of any notice of default sent to the assignee. Failure to give the Lessee a copy of the notice of default shall not prevent the Lessor from exercising all remedies against the assignee. |
|
h. |
Lessee Not Released. No approval by the Lessor to subleasing by the Lessee of all or a portion of the Premises shall in any way relieve the Lessee of any of its obligations to the Lessor set forth or arising under this Lease. |
|
i. |
Lessor’s Right to Collect Rent. If the Lessee assigns this Lease or sublets (except as expressly provided herein) all or any portion of the Premises in violation of this Section 17, the Lessor may collect from any assignee, sublessee or anyone who claims a right to this Lease or who occupies the Premises any charges or fees payable by it and may apply the net amount collected to the rent payable hereunder. No such collection shall be deemed a waiver by the Lessor of the agreements contained in this Section nor of acceptance by the Lessor of any Assignee, claimant or occupant, nor as a release of the Lessee by the Lessor from the further performance by the Lessee of the agreements contained herein. |
|
18. |
Damage or Destruction |
|
a. |
Duty to Reconstruct. If the Premises are damaged or destroyed during the term of this Lease, Lessee shall, except as hereinafter provided, diligently repair or rebuild the Premises to substantially the condition which existed immediately prior to such damage or destruction. Notwithstanding the foregoing, nothing herein shall require Lessee to reconstruct in the event such damage or destruction was caused by Lessor or officers, employees or agents of Lessor’s negligence and/or willful misconduct. |
|
b. |
Substantial Destruction. If the Improvements or any part of them is damaged or destroyed to the extent that Lessee's licensed architect or civil engineer determines in writing that Lessee cannot, with reasonable diligence, fully repair or restore the Improvements within one hundred eighty (180) days after the date of the damage or destruction, Lessee shall have the option to terminate this Lease. Lessee shall notify Lessor of its determination, in writing, within ninety (90) days after the date of the damage or destruction. In the event the Improvements are not reconstructed Lessee shall remove the damaged Improvement and debris resulting therefrom and restore the surface condition of the Premises to a condition reasonably agreed to by the parties and this Lease will terminate on the date such surface condition reconstruction is completed. All insurance proceeds shall be payable to Lessee in the event the Improvements are not reconstructed, provided Lessee shall have complied with the provisions of this Subsection. |
|
c. |
Rent. Rent shall not abate during the period the Improvements are being removed, repaired or reconstructed. |
|
19. |
Lessee’s Default and Lessor’s Remedies |
|
a. |
Lessee’s Defaults. Each of the following shall constitute a default of Lessee (“Default”): |
|
i. |
Lessee's failure to pay rental or any other amount due hereunder within ten (10) days after written notice of past-due rent is received by Lessee; provided, however, that if within the preceding twelve (12) month period, the Lessor has given the Lessee two (2) or more notices of past-due rent, then no further notice or demand from the Lessor for payment shall be necessary; |
|
ii. |
Lessee’s failure to perform or observe any other obligation imposed hereunder after a period of thirty (30) days after Lessor gives notice to Lessee setting forth in reasonable detail the nature and extent of the failure (provided however that the Lessee shall immediately cure such default if a hazardous condition exists and provided further that, in the event of a non-hazardous, non-monetary default which cannot reasonably be cured within thirty (30) days, the Lessee shall not be deemed in default if within the thirty (30) day period following Lessor’s notice the Lessee commences to cure such default and thereafter diligently prosecutes such cure to completion); |
|
iii. |
Lessee’s abandoning or vacating the Premises; |
|
iv. |
Any proceedings under the United States Bankruptcy Code or any amendment thereto shall be commenced by or against Lessee and, if against Lessee, such proceedings shall not be dismissed before either an adjudication in bankruptcy or the confirmation of a composition, arrangement, or plan or reorganization; |
|
v. |
Lessee is adjudged insolvent or makes an assignment for the benefit of its creditors; |
|
vi. |
If a receiver is appointed in any proceeding or action to which Lessee is a party, with authority to take possession or control of the Premises or the business conducted thereon by Lessee, and such receiver is not discharged within a period of sixty (60) days after his appointment; or |
|
vii. |
Lessee makes any Assignment prohibited by the provisions of this Lease; then such an event shall be deemed to constitute a breach of this Lease by Lessee and Lessor may, with notice to Lessee, terminate this Lease and all rights of Lessee in and to the Premises and also the rights of any and all persons claiming under Lessee. |
|
b. |
Remedies. Following the applicable cure period, Lessor, in addition to the remedies given in this Lease or under the law, may do any one or more of the following if Lessee commits a Default under Subsection (a): |
|
i. |
Terminate this Lease by giving no less than thirty (30) days advance written notice thereof to Lessee, and Lessee shall then peaceably surrender the Premises to Lessor, except that in the case of a monetary default, no written notice is required; |
|
ii. |
Enter and take possession of the Premises with process of law and remove Lessee, with or without having ended this Lease; and |
|
iii. |
Lessee waives claims for damages by reason of Lessor’s re-entry or repossession and for damages by reason of any legal process. |
|
c. |
No Surrender. Lessor’s exercise of any of its remedies or its receipt of Lessee’s keys shall not be considered an acceptance or surrender of the Premises by Lessee. A surrender must be agreed to in writing and signed by both parties. |
|
d. |
Rent. If, because of Lessee’s Default, Lessor terminates this Lease or Lessee's right to possess the Premises, Lessor may hold Lessee liable for rent and additional charges accruing to the date this Lease terminates. Lessee shall also be liable for rental and other amounts that would otherwise have been payable by Lessee during the remainder of the then existing term had there been no Default, reduced by any sums Lessor receives by reletting the Premises during the term. |
|
e. |
Other Expenses. In the event of Default, Lessee shall be liable for and shall pay and hold Lessor harmless from all reasonable costs, expenses and attorneys’ fees incurred by Lessor on account of Lessee’s Default, which sums shall become due and payable immediately upon written demand. Such costs and expenses shall include but not be limited to the cost of removing and storing Lessee’s property and the cost of repairs, alterations and remodeling necessary to put the Premises in the condition existing immediately following construction of the Improvements, reasonable wear and tear excepted. |
|
20. |
Lessor’s Default’s and Lessee’s Remedies |
In the event that Lessor fails to perform all of its obligations or fails to comply with any of its covenants set forth in this Lease, the Lessor shall be deemed to be in default. Upon default of the Lessor, the Lessee shall give the Lessor written notice thereof. If the Lessor fails to cure such default within thirty (30) days, the Lessee shall be entitled to terminate this Agreement upon thirty (30) days advance notice. This right to terminate is in addition to all other remedies available in law or equity.
In the event of a default by the Lessor which cannot reasonably be cured within thirty (30) days, the Lessor shall not be deemed to be in default if within such thirty (30) days the Lessor commences to cure such default and thereafter diligently prosecutes such cure to completion.
|
21. |
Reservation of Aviation Easement and Aerial Approach |
|
a. |
Covenant Not to Erect. Lessee hereby covenants and agrees that the Lessee will not hereafter cause or permit the erection or location of any structure or object upon the Premises to a height which would penetrate the imaginary surfaces described in Part 77a of the Federal Aviation Regulations without the express approval of the Federal Aviation Administration. |
|
b. |
Covenant to Remove. Lessee covenants to take any action within its control to prevent the erection or growth of any structure, tree or other object into the air space above the Premises at or above the elevation described in Subsection (a), and to abate and remove from such air space any and all structures, trees, or other objects that may at any time project or extend above the Premises at such elevations unless expressly approved by the Federal Aviation Administration. |
|
c. |
Grant of Easement and Rights to Lessor. Lessee grants and conveys to the Lessor its agents, contractors, servants, and employees an initial and continuing right and easement to take any action necessary to prevent the erection of any structure or other object into the air space above the Premises at or above the elevation described in Subsection (a), any and all structures or other objects that may at any time project or extend above the Premises at such elevations, together with the right upon reasonable notice to ingress to, egress from, and passage over the Premises, for such purposes. Lessee grants and conveys to the Lessor, its agents, contractors, servants, and employees an initial and continuing right and easement to abate and remove from such air space, any and all structures or other objects that may at any time project or extend above the Premises together with the right to ingress to, egress from, and passage over the Premises, for such purposes, provided Lessor has given Lessee not less than twenty-one (21) days written notice of its intention to abate and remove such structures or other objects and Lessee has failed to complete abatement and removal within such time. One hundred ten percent (110%) of the cost of all expenses associated with the abatement and removal from such air space of structures or other objects shall be the responsibility of Lessee. |
|
d. |
Grant of Easement and Rights to Public. Lessee further grants unto the Lessor, its successors, and assigns, for the benefit of the general public at large, an easement and a continuing right of way for the free and unobstructed passage of aircraft, by whomsoever owned or operated, in and through the air space over and across the Premises at and above the elevation described in Subsection (a). |
|
e. |
Covenant to Prevent Electronic Interference. Lessee shall not hereafter use or permit or suffer use of the premises in such manner as to create electrical or electronic interference with radio transmission and reception between radio-communications and air-navigation installations on or in the Airport and aircraft, or as to make it difficult for flyers to distinguish between Airport lights and others, or as to result in the glare in the eyes of flyers using the Airport, or as to impair the visibility in the vicinity of the Airport (e.g., by discharge of particular matter), or as otherwise to endanger the landing, takeoff, or maneuvering of aircraft. |
|
f. |
Aerial Approach. The Lessor reserves the right to take any action it considers necessary to protect the aerial approaches of the Airport against obstruction, together with the right to prevent the Lessee from erecting or permitting to be erected any building or other structure on the Premises which, in the opinion of the Lessor, would limit the usefulness of the Airport or constitute a hazard to aircraft. |
|
22. |
Limitations of Rights and Privileges Granted |
Except for the exclusive right of the Lessee to possession and quiet enjoyment of the Premises for the purposes described herein and the right of ingress and egress thereto, no rights of any kind or type at the Airport are granted by this Lease including any exclusive right within the meaning of 29 USCS § 40103(e), and other applicable sections of the Federal Aviation Act, as amended, and no greater rights or privileges with respect to the use of the Premises or any part thereof are granted or intended to be granted to the Lessee by this Lease, or by any provision hereof, than the rights and privileges expressly and specifically granted hereby.
|
23. |
Condemnation |
In the event the Premises or any part thereof shall be condemned and taken by authority of eminent domain for any purpose during the term of this Lease or sold to such authority in lieu of a taking (collectively, a “Condemnation”), any award shall be paid to the Lessor, it being understood that title to all real property and all improvements thereon shall be fully vested in the Lessor free and clear of any liens and encumbrances. Notwithstanding the foregoing, the Lessee shall be entitled to any award for the value of the unexpired portion of the term of this Lease and Lessee shall be entitled to an amount equal to the unamortized cost (as reflected on the books of Lessee) of the Improvements and any other buildings, structures or fixtures constructed or installed on the Premises by the Lessee with the approval of Lessor. In any event, the Lessee, consistent with its rights under applicable law, may appear in any condemnation proceeding and recover damages for loss of the Lessee’s personal property and moving expenses, if any, arising from such condemnation. Rental for that portion of the Premises condemned shall be abated from the date that the Lessee is dispossessed therefrom. If all of the Premises is condemned, or if only a portion of the Premises is condemned and the remaining portion of the Premises does not in the Lessee’s reasonable judgment constitute an economically viable property sufficient for Lessee’s Business and operations as conducted prior to such taking, this Lease may be terminated by the Lessor or the Lessee upon written notice to the other in which event all of the Lessee's rights and unaccrued obligations hereunder shall be extinguished.
|
24. |
Subordination |
This Lease is and shall be subordinate to existing and future agreements between the Lessor, the City of Prospect Heights, and/or the Village of Wheeling and the United States or the State of Illinois relative to the operation, management, planning, development or maintenance of the Airport.
|
25. |
Rates and Charges; Operation of Airport |
The Lessor acknowledges and affirms grant assurances given by Lessor to the Federal Aviation Administration that each fixed-based operator at the Airport shall be subject to the same rates, rentals and other charges as are uniformly applicable to all other fixed-based operators making the same or similar uses of the Airport and utilizing the same or similar facilities. The Lessor covenants and agrees that during the Term of this Lease the Lessor will operate the Airport as such in accordance with industry standards for the use and benefit of the public; provided, however, that the Lessor may prohibit or limit any given type, kind, or class of aeronautical use of the Airport if such action is necessary for the safe operation of the Airport or necessary to serve the civil aviation needs of the public.
|
26. |
National Emergency |
In the event possession of the Premises and the Improvements thereon is assumed by the United States of America under any emergency powers, the rent due under this Lease shall abate for the period of such possession. In such event, the Lessee shall not be responsible for any of the other covenants in this Lease until possession by the United States of America shall terminate. Further, in the event that Lessee shall be reimbursed by the United States of America for its assumption of possession, then the rental provisions of this Lease shall remain in effect; provided, however, that if said reimbursement is less than the amount of rent and other payments herein provided, the Lessee shall be required to pay to the Lessor only such amount of reimbursement as it shall receive from the United States of America.
|
27. |
F.A.A. and Airport Instruments |
The Federal Aviation Administration and the Lessor are hereby granted the right and privilege by the Lessee to place on and around the Premises, without cost to the Lessee, whatever instruments and equipment they desire during the term of this Lease, so long as said instruments or equipment do not interfere with the intended use of the Premises by the Lessee or the right of ingress or egress to and from the Premises by Lessee, its tenants, guests, business invitees or the public at large.
|
28. |
Laws, Rules, Regulations, Ordinances and Environmental Laws |
|
a. |
Laws, Rules, Regulations and Ordinances. During the term of this Lease, Lessee agrees to abide by all applicable laws, ordinances, rules and regulations established by the United States of America, State of Illinois, County of Cook, City of Prospect Heights, Village of Wheeling, Chicago Executive Airport, Federal Aviation Administration or its successors or the Division of Aeronautics of the Department of Transportation of the State of Illinois or its successors, including all amendments thereto (“Regulations”) presently in force or that may be enacted during the term of this Lease. The Regulations are hereby incorporated into this Lease. The occupancy and use by Lessee of the Premises and the rights herein conferred upon Lessee shall be subject to valid rules and regulations as are now or may hereafter be prescribed by the Lessor to the lawful exercise of its powers; provided, however, that no such rule or regulation shall be of such nature as to interfere with or cause any derogation or infringement with or upon the rights or privileges herein in this Lease granted to Lessee. Lessee shall keep all equipment necessary in the conduct of its operations in good and safe operating condition, meeting all insurance codes; and secure all licenses and permits required for the operation of its business, operations and equipment. Lessee shall provide Lessor upon request copies of all licenses and permits required for conduct of its operations. Nothing herein shall be construed as estopping or preventing the Lessee from contesting, in good faith, the validity or applicability to the Lessee’s operations hereunder of any such law, ordinance, rule, or regulation, and the Lessee shall be entitled to exhaust any appeal rights in connection with such challenge. |
|
b. |
Environmental Laws. Lessee shall, at Lessee's own expense, comply with all present and hereinafter enacted environmental laws, statutes, regulations or ordinances of any type, kind or sort (any amendments thereto) which may affect Lessee’s operations upon the Premises during the term of this Lease (or any extension thereto). |
No goods, merchandise or material shall be kept, stored or sold in or on the Premises which are explosive or hazardous; and no offensive or dangerous trade, business or occupation shall be carried on therein or thereon except for those moving in transport or necessary to engage in those activities expressly permitted in this Lease which are in compliance with all regulations governing the transportation and storage of such materials; and no offensive or dangerous trade, business or occupation shall be carried on therein or thereon. Nothing shall be done on the Premises, other than as provided for in this Lease, which will increase the rate of or suspend the insurance upon said Premises or to structures of Lessor. If Lessee causes any hazardous or toxic materials or substance to be spilled or placed at any time in, under or about the Premises in quantities which either: (1) exceed permissible levels as defined by any applicable governmental rule, order, statute, regulation or other governmental requirement, as then in effect; or (2) pose a threat to the health and/or safety of any employee, customer and/or invitee of either Lessor or Lessee, Lessee shall at Lessee’s expense, properly remove and dispose of or otherwise remedy, as the case may require, the same. If more than one such governmental requirement shall apply, Lessee shall comply with the most stringent of such requirements.
Lessee also specifically warrants that it shall immediately notify Lessor of (a) any correspondence or communication from any governmental entity regarding the application of environmental laws to the Premises, or Lessee’s operations upon the Premises, and (b) any change in Lessee's operation upon the Premises that would change or has the potential to change Lessee's or Lessor’s obligations and/or liabilities under any environmental laws, statutes, regulations or ordinances of any type, kind or short (and any amendments thereto).
In addition, Lessee covenants and agrees to indemnify and hold harmless Lessor, its employees, agents, successors and assigns from and against any and all loss, damage and expense (including, but not limited to, reasonable investigation, legal fees and expenses) including, but not limited to, any claim or action for injury, liability, or damage to persons or property, or any and all claims or actions brought by any person, firm, governmental body or other entity, alleging or resulting from or arising from or in connection with contamination of or adverse effects upon the environment, or in violation of any environmental law or other statute or ordinance, rule, regulation, judgment or order of any governmental or judicial entity, and from and against any damages, liabilities, costs and penalties assessed as a result of any activity or operation on the Premises during the term of this Lease; provided, however, Lessor shall indemnify, defend and hold harmless Lessee, its employees, agents, successors and assigns from and against any and all loss, damage and expense (including, but not limited to, reasonable investigation, legal fees and expenses) including, but not limited to, any claim or action for injury, liability, or damage to persons or property, or any and all claims or actions brought by any person, firm, governmental body or other entity, alleging or resulting from or arising from or in connection with contamination of or adverse effects upon the environment, or in violation of any environmental law or other statute or ordinance, rule, regulation, judgment or order of any governmental or judicial entity, and from and against any damages, liabilities, costs and penalties assessed as a result of any activity or operation on the Premises prior to Lessee’s operation of the Premises under this Lease. Lessee’s and Lessor’s obligations and liabilities under this Subsection shall continue for so long as Lessor or Lessee bears any potential liability or responsibility under any environmental laws for any activity or operation on the Premises during the Term of this Lease.
Lessor shall have the right to immediately seek to enjoin any such conduct, actions or operations of Lessee upon the Premises which may cause or have the potential to cause or raise the substantial likelihood that violations of any such environmental laws, statutes, ordinances, regulations, etc. will be violated.
Notwithstanding the foregoing, Lessee shall not be responsible for indemnifying Lessor for the consequences of any act or omission of any other tenant, licensee or invitee of Lessor or any other commercial operator at the Airport who enters upon the Premises unless such party is requested or permitted to do so by Lessee.
|
29. |
Surrender of Premises by Lessee |
Upon the expiration or other termination of the term of this Lease or a portion thereof for any reason, Lessee shall quit and surrender the Premises to the Lessor broom clean, in good order and condition, ordinary wear excepted, and Lessee shall remove all of its property and ownership of all Improvements on the Premises shall immediately vest in Lessor. Lessee’s obligations to observe or perform this covenant shall survive the expiration or other termination of the term of this Lease. Lessee shall be liable for all expenditures incurred for breach of this covenant, including, but not limited to, attorneys' fees and other costs.
|
30. |
Right of Entry Reserved |
The Lessor, through its agents, employees, representatives, and contractors, shall have the right at reasonable times and upon reasonable notice to Lessee, to enter in, upon, and under all portions of the Premises to make ordinary inspections, to observe the performance by Lessee of its obligations under this Lease, to install, remove, adjust, repair, replace or otherwise handle any equipment, utility lines, or other matters in, on, or about the Premises, to undertake other non-emergency activities or do any other act or thing which the Lessor may be obligated or have the right to do under this Lease or otherwise. Provided, however, that nothing in this Section shall be construed to limit or diminish the Lessor’s right of entry at any time in the event of an emergency.
Unless specifically provided in this Lease, no abatement of any payments by the Lessee shall be claimed by or allowed to the Lessee by reason of the exercise by the Lessor of any of the rights set forth in this Section or in any other provision of this Lease.
Nothing herein is intended or shall be construed to obligate the Lessor to construct, maintain, repair, replace alter, add to, or impose the Premises or any portion thereof, or to impose upon the Lessor any liability for any failure to do so.
|
31. |
Financial Reports |
Lessee covenants to furnish the Executive Director, upon request and within ninety (90) days of the end of its fiscal year, a statement of gross receipts and all reports of payment of any applicable taxes for operations conducted solely within the confines of the Chicago Executive Airport.
|
32. |
Security |
Lessee hereby acknowledges that Lessor is required by 49 C.F.R. Part 1542, as it may be amended from time to time (“Part 1542”), to adopt and put into use facilities and procedures designed to prevent and deter persons and vehicles from unauthorized access to those areas of the Airport used for the landing, taking-off, movement, and parking of aircraft (“AOA”), and/or the Security Identification Display Area as defined in Part 1542 (“SIDA”). Lessee also acknowledges that Lessor has met said requirements by developing an Airport Security Program (“ASP”) for the Airport. Lessee warrants, covenants, and agrees to be fully bound by and immediately responsive to the requirements of Part 1542 and the ASP in connection with Lessee’s exercise of the privileges granted hereunder. Lessee, at its own cost, shall cause facilities and procedures to be prepared, satisfactory to Lessor, designed to prevent and deter persons and vehicles from unauthorized access to the SIDA and/or the AOA from and through the Premises in accordance with the provisions of Part 1542 and the ASP. Lessee acknowledges that its security procedures and facilities on the Premises shall include but not be limited to: (i) fencing and locked gates; (ii) Lessor-approved badging, badge display, escort and challenge procedures applicable to persons authorized to enter the SIDA and/or the AOA; (iii) an electronic entry control system or a manned guard system where gates or doorways cannot reasonably be controlled by locks; and (iv) other facilities and procedures as may be required to control the entrance of persons and vehicles onto the SIDA and/or AOA. Lessee shall not do or permit its agents, invitees, servants or employees to do anything at the Airport that would be in conflict with or violate the requirements of any federal, state, or local law, regulation or security directive regarding airport security, including without limitation Part 1542 or the ASP, as they may be amended from time to time. Lessee shall be responsible for obtaining and coordinating any security badging, vehicle decals, and/or any other actions required to ensure that Lessee’s agents, invitees, servants and employees are in compliance with all security requirements. Lessee shall be responsible for all costs associated with obtaining such badge and/or access privileges. If a prohibited incursion into the AOA occurs, or if the safety or security of the AOA or other sterile area is breached by or due to the negligence or willful act or omission of Lessee or any of its agents, invitees, servants or employees, and such incursion or breach results in a civil penalty action being brought against Lessor by the U.S. Government, Lessee shall reimburse Lessor for all expenses, including without limitation reasonable attorneys’ fees and litigation expenses, incurred by Lessor in defending against the civil penalty action and for any civil penalty or settlement amount paid by Lessor as a result of such action or inaction, incursion or breach. Lessor shall notify Lessee of any allegation, investigation, or proposed or actual civil penalty sought by the U.S. Government related to action or inaction of Lessee.
|
33. |
General Provisions |
|
a. |
Incorporation of Primary Guiding Documents. The Primary Guiding Documents as may be amended from time to time are hereby incorporated herein and made part of this Lease. In the event of any inconsistencies, the higher or more restrictive standard shall apply. |
|
b. |
Integration. No change or modification of any of the covenants, terms or provisions hereof shall be valid unless in writing and signed by the parties hereto. There are no understandings or agreements of any kind between the parties hereto with respect to the subject matter contained herein, verbal or otherwise, other than as set forth in this Lease including the exhibits hereto. All additions, changes or deletions herein were made prior to execution by either party, except that additions, changes or deletions made after execution by one party and before execution by the other shall be marginally initialed by both parties. |
|
c. |
Severability. The provisions of this Lease are severable and it is the intention of the parties hereto that if this Lease cannot take effect in its entirety because of the final judgment of any court of competent jurisdiction holding invalid any part or parts thereof, the remaining provisions of the Lease shall be given full force and effect as completely as if the part or parts held invalid had not been included herein. |
|
d. |
Headings. The headings of the several articles, paragraphs and sections of this Lease are inserted only as a matter of convenience, and they in no way define, limit, or describe the scope of intent of any provision of this Lease, nor shall they be construed to affect in any manner the terms and provisions hereof or the interpretation or construction thereof. |
|
e. |
Notices. All notices, consents, demands, approvals, and requests which are required or permitted to be given by either party to the other pursuant to any provision of this Lease shall be in writing and delivered personally (including delivery by a regular messenger or courier service), by overnight express delivery, United States mail, or by email. Mailed notices shall be sent by United States Certified or Registered Mail, return receipt requested, postage prepaid and shall be deemed delivered upon receipt. Personally delivered notices, emailed notices and notices delivered by overnight delivery shall be deemed delivered at the time of actual delivery or at the time of attempted delivery (as attested in writing by the person attempting delivery) in the event the intended recipient refuses to accept delivery, and email shall be deemed delivered upon confirmation of sending. The notice addresses of the parties are as follows: |
If to the Lessor:
Executive Director
Chicago Executive Airport
1020 S. Plant Road
Wheeling, IL 60090
Email: finance@chiexec.com
With a copy to:
AGHL Law, LLC
Attn: Thomas J. Lester
839 N. Perryville Rd. Suite 200
Rockford, IL 61107
tlester@aghllaw.com
If to Lessee:
PWK Hangars LLC
c/o Sky Harbour LLC
136 Tower Road, Suite 205
Westchester County Airport
West Harrison, NY 10604
Attn: Alex Saltzman, Chief Operating Officer
asaltzman@skyharbour.group
Attn: Alison Squiccimarro, In House Counsel
asquiccimarro@skyharbour.group
With copy to:
Sky Harbour
132 Lee Duggan Drive
Sugar Land, TX 77498
Attn: Eric Stolpman
estolpman@skyharbour.group
Any party may change its notice address from time to time upon written notice given under this Lease to the other party.
|
f. |
Applicable Law. This Lease is entered into, is to be performed, and shall be construed and enforced in accordance with the internal laws of the State of Illinois, without regard to the conflicts of law principles of the law of such state or of any other state. |
|
g. |
Waivers. Any term, provision or condition of this Lease may be waived in writing at any time by the party which is entitled to the benefits of such term, provision or condition. No waiver of any term, provision or condition of this Lease shall be deemed to be or shall constitute a continuing waiver. No waiver shall be binding unless executed in writing by the party making the waiver. |
[SIGNATURE PAGE TO FOLLOW]
IN WITNESS WHEREOF, the parties hereto have executed this Lease as of the day and year written below.
| LESSOR: | |
| CHICAGO EXECUTIVE AIRPORT | |
|
_____________________________ By: _________________________ Its Chairman |
|
| Date:_________________________ | |
| ATTEST:_______________________ | |
|
By:_________________________ Its Secretary |
|
| LESSEE: | |
|
PWK HANGARS LLC A Delaware Limited Liability Company |
|
| _____________________________ | |
| By:__________________________ | |
| Title:_________________________ | |
| Date:_________________________ |
EXHIBIT A

EXHIBIT B
INSURANCE REQUIREMENTS

